Info Booklet 2653 Springfield Road, Kelowna BC

Page 1

2653 Springfield Road, Kelowna

The content presented here is solely for informational purposes. Any information deemed important by a Buyer should be verified

About this property

Introducing 2653 Springfield Rd, a delightfully updated residence offering versatile living arrangements. With 2 bedrooms and 2 full bathrooms on the upper level, alongside the potential for income generation in the lower level, this home caters to various lifestyle needs. The lower level boasts 2 bedrooms, a full bathroom, and separate laundry facilities, ideal for extended family or rental opportunities. Recent renovations include fresh paint and flooring throughout, complementing the upgraded appliances.

Positioned conveniently on Springfield Rd, residents enjoy seamless access to a plethora of amenities, including the nearby Mission Creek Trail system, Orchard Park Mall, and a range of retail outlets. Accessibility is further enhanced by proximity to the local transit network.

Ample parking space and a generously sized south-facing backyard provide practicality and outdoor enjoyment. For relaxation and entertainment, a thoughtfully designed covered sun deck off the kitchen offers a retreat from the summer sun.

With its blend of modern updates, versatile living spaces, and strategic location, 2653 Springfield Rd presents an enticing opportunity for comfortable living and potential income generation.

FAQ Expenses Natural Gas $50/mo . Hydro $75/mo. Water $50/quarter Insurance $850/yr. Taxes $4039.26 Appliances Main: Refrigerator Samsung Stove - Gas GE Dishwasher Whirlpool Microwave Whirlpool Washer LG Dryer LG Suite: Refrigerator Samsung Stove Kenmore Dishwasher GE Microwave Panasonic Washer Whirlpool Dryer Whirlpool *All appliances are negotiable Renovations/Upgrades Updated flooring, paint and appliances Hot Water Tank Approximate 3 years old Electrical 100 amp Garage 27' x 11.5" Covered Deck 28' x 12' Roofing Asphalt shingles Cell Reception/Wifi Good reception Nearby Amenities The home is very close to schools. Neighbourhood The neighbourhood is parklike. This information is provided by the Sellers to the best of the Seller's knowledge and is not guaranteed. Any information deemed important by a Buyer should be verified.

The Home

This lovely home offers 2 beds and 2 baths on the main level, and a potential income generating suite on the lower level with another 2 bed and 1 bath. There have been recent updates to flooring, paint and more, leaving little for you to do but move in.

Features of this home Stainless appliances including gas range, carpet/laminate/linoleum flooring, central air conditioning, wood burning stove

The Exterior

This home is close to shopping, schools and trail systems and easy access to Springfield Road. Access to transit is also close by. The yard is fully fenced so it is safe for kids and pets to play. There is a cozy covered patio area on the lower floor and a covered deck on the upper floor which is a great space to entertain or enjoy outdoor bbq’s.

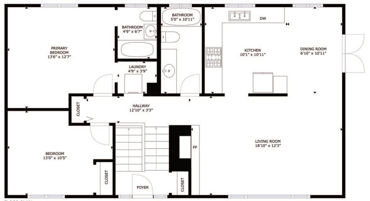
Floorplan

measurements are taken from Matterport Floor Plans and are interior measurements only.
**All
Main Level 1008 SF

Floorplan

**All measurements are taken from Matterport Floor Plans and are interior measurements only. Suite 912 SF

Chris Holm

Personal

1 (250) 309-0039

chris@chrisholm.ca

chrisholmrealestate.ca

@chrisholmrealtor /chrisholmrealtor /chrisholm

@chrisholmrealtor /chrisholmrealtor /chrisholm

For more information

Want to learn more about this property? Check out this listings featured page on our website! https://chrisholmrealestate.info/Features2653Springfield

Browse more photos, watch our virtual tour video with Chris, and even take a tour through the home with the 3D tour option.

Want to schedule a viewing? Give us a call today!

Real
Estate Corporation
The content presented here is solely for informational purposes. Any information deemed important by a Buyer should be verified.

Turn static files into dynamic content formats.

Create a flipbook
Issuu converts static files into: digital portfolios, online yearbooks, online catalogs, digital photo albums and more. Sign up and create your flipbook.