Info Booklet 11705 Lochhaven Drive, Coldstream, BC

Page 1

11705 Lochhaven Drive, Coldstream

About this property

This fabulous 4-bedroom, 3-bathroom gem offers all you need in a home. Situated in a fantastic neighborhood, it boasts beautiful views of the Kalamalka lake, Coldstream Valley, and surrounding mountains, creating a picturesque setting that will leave you in awe.

A perfect layout for any demographic, this home is conveniently located close to schools, a beautiful beach, and just a short walk away from the renowned Kalamalka Provincial Park. The fully fenced backyard provides a safe and secure space for children to play, while the raised garden beds allow for a green thumb to flourish.

Step inside and be greeted by the warmth of a double-sided wood-burning fireplace, elegantly dividing the formal living room and cozy family room. The fireplace adds a touch of charm and creates a cozy ambiance during those chilly winter nights.

Entertain in style in the spacious kitchen, complete with a covered upper deck just off the kitchen, providing an ideal spot for alfresco dining. Additionally, a lower sun deck offers easy access to the backyard, inviting you to relax and soak up the sun.

With its thoughtful layout and lovely features, this home offers the perfect blend of comfort and style. Don't miss the opportunity to make this your forever home and enjoy the wonders of living the Coldstream lifestyle.

FAQ

Home Upgrades

Repaired/Rebuilt lower deck, reconfigured basement bathroom, installed new furnace and air conditioner in 2019

Hot Water Tank

2019

Electrical 125 amp (D)

Roofing

Asphalt shingles

Cell Reception/Wifi

Cell service is good, we use Telus for internet

Nearby Amenities

The elementary school is 3 blocks away, junior/senior high school is 2 km away.

Neighbourhood

the neighbourhood is well kept.

Expenses

Natural Gas $143/mo.

Hydro $164/2 mo.

Water $270/quarter

Insurance $163/mo.

Taxes $3027/yr.

Appliances

Refrigerator Frigidaire

Stove Frigidaire (Induction)

Dishwasher Frigidaire

Microwave Panasonic

Washer Kenmore

Dryer Kenmore

*All appliances are negotiable

The Home

This cozy 4 bed 3 bath home is located in a lovely neighbourhood in Coldstream. The layout is open and there is plenty of space for family and friends.

Features of this home

Double sided wood burning fireplace, stainless steel appliances, carpet/vinyl/ engineered hardwood/tile flooring, central air conditioning

The Exterior

This fully fenced, beautifully landscaped property has 2 large deck spaces with plenty of space to entertain or just sit back and enjoy the surrounding views. There are planter boxes for your garden, and the yard is ready for kids to run around and play. The neighbourhood is quiet and the home is close to schools, shopping and parks.

Floorplan

Main Floor 1519 SF

**All measurements are taken from Matterport Floor Plans and are interior measurements only.

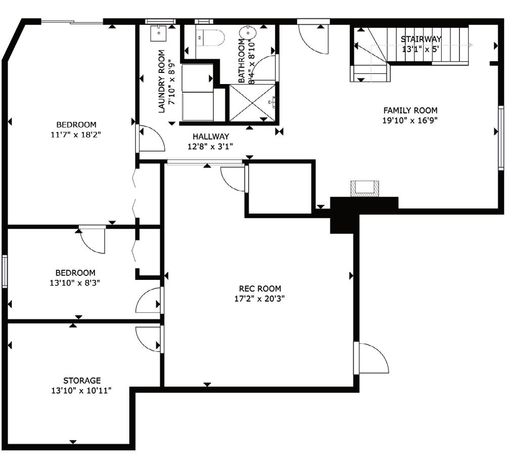
Floorplan

Lower Floor 1301 SF

**All measurements are taken from Matterport Floor Plans and are interior measurements only.

Chris Holm

Personal Real Estate Corporation

1 (250) 309-0039

chris@chrisholm.ca chrisholmrealestate.ca

@chrisholmrealtor /chrisholmrealtor /chrisholm

@chrisholmrealtor /chrisholmrealtor /chrisholm

For more information

Want to learn more about this property? Check out this listings featured page on our website! https://chrisholmrealestate.info/11705LochhavenFeatures

Browse more photos, watch our virtual tour video with Chris, and even take a tour through the home with the 3D tour option.

Want to schedule a viewing?

Give us a call today!

This information is deemed reliable but cannot be guaranteed. Details should be verified if deemed important.

Turn static files into dynamic content formats.

Create a flipbook
Issuu converts static files into: digital portfolios, online yearbooks, online catalogs, digital photo albums and more. Sign up and create your flipbook.