Info Booklet 1121 Mountain view Road, Armstrong, BC

Page 1

1121 Mountain View Road, Armstrong

The content presented here is solely for informational purposes. Any information deemed important by a Buyer should be verified

About this property

Nestled in the rolling countryside of Armstrong & Spallumcheen, this expansive 28.42-acre parcel of land offers a quintessential slice of rural living. Its sprawling L-shaped layout encompasses a tranquil seasonal creek meandering thro, infusing the landscape with natural charm. Positioned at the intersection of Back Enderby Road and Mountain View Road, it boasts convenient access just 10 minutes from Armstrong and a mere 12 minutes from Enderby.

Surrounded by majestic mountains, the property exudes a sense of tranquility and seclusion. Its perimeter fencing lends itself to various possibilities, whether you envision grazing animals or cultivating a thriving homestead. A collection of outbuildings dot the landscape, including two pole barns—one partially enclosed, ideal for equipment storage, and an older barn suited for livestock. Additionally, a double bay shop with power offers ample workspace for various projects.

The main residence, a durable home, presents a comfortable living space with three bedrooms and 1.5 baths on the upper level, complemented by two bedrooms and a full bath in the basement. The home offers a perfect opportunity to place your own personal touch. A secondary 924 sq ft manufactured home provides additional accommodation, offering the flexibility to accommodate family members or generate supplementary income. With its move-in ready condition and potential for customization, this property beckons as a canvas for your countryside dreams.

Renovations/Upgrades

When we first bought the farm, we painted and installed new flooring.

Hot Water Tank

Replaced 2008

Electrical

200 amp service panel in the house

Shop has 220 amp

Roof

Metal roof, was on when we purchased the house

Cell Reception/Wifi

Cell reception is good and wifi provider is Starlink

Nearby Amenities

10 minute drive to Armstrong and 15 minutes to Enderby

Neighbourhood

The neighbours are farmers

$253/mo. equal payments

$4080/yr.

$178.08/yr.

Appliances

Refrigerator Kenmore

Stove Inglis

Dishwasher Whirlpool

Washer Kenmore

Dryer Kenmore

Hot Tub Beachcomber

FAQ
Expenses Hydro
Insurance
Taxes
Tipit
$2223.78/yr.
$343.98 Propane - Trailer
appliances are negotiable
*All
This information is provided by the Sellers to the best of the Seller's knowledge and is not guaranteed. Any information deemed important by a Buyer should be verified.

The Home

This solidly built 5 bed 2.5 bath home is move in ready and open to your update ideas. There is plenty of space for family and an extra home on the property is available for rental income or to use for extended family.

Features of this home

Carpet/vinyl/laminate flooring, wood burning fireplace

The Exterior

This large acreage is perfect if you wants to raise farm animals or grow your own food. There is plenty of space to store hay, house the animals, machinery and more. The perimeter is fenced and the surrounding mountain views are amazing. There is plenty of space for kids to run and play and you can enjoy everything country living has to offer.

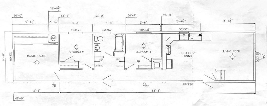
Floorplan

**All measurements are taken from Matterport Floor Plans and are interior measurements only.
Main Floor 1295 SF

Floorplan

**All measurements are taken from Matterport Floor Plans and are interior measurements only. Lower Floor
Manufactured Home
SF
1269 SF
924

Chris Holm

Personal Real Estate Corporation

1 (250) 309-0039

chris@chrisholm.ca chrisholmrealestate.ca

@chrisholmrealtor /chrisholmrealtor /chrisholm

@chrisholmrealtor /chrisholmrealtor /chrisholm

For more information

Want to learn more about this property? Check out this listings featured page on our website! https://chrisholmrealestate.info/Features1121MountainView

Browse more photos, watch our virtual tour video with Chris, and even take a tour through the home with the 3D tour option.

Want to schedule a viewing?

Give us a call today!

The content presented here is solely for informational purposes. Any information deemed important by a Buyer should be verified.

Turn static files into dynamic content formats.

Create a flipbook
Issuu converts static files into: digital portfolios, online yearbooks, online catalogs, digital photo albums and more. Sign up and create your flipbook.