CHOWCHENGHONG1002162150
PORTFOLIO
INTERIORDESIGNSTUDIO03PORTFOLIO
TABLE OF CONTENTS
PROJECT BRIEF 01
PROJECT BRIEF
ct outlines a proposed design of Marang Canoe Clubhouse ated at the Pulau Kekabu, Marang, Terengganu, Malaysia. into an industrial-style boutique hotel while related with tage, KERIS.
ll design of the boutique hotel takes inspiration from the style which features the rawness & an unfinished to the erior of the hotel. The interior itself will be featuring brick walls, unfinished wall design, and exposed structural
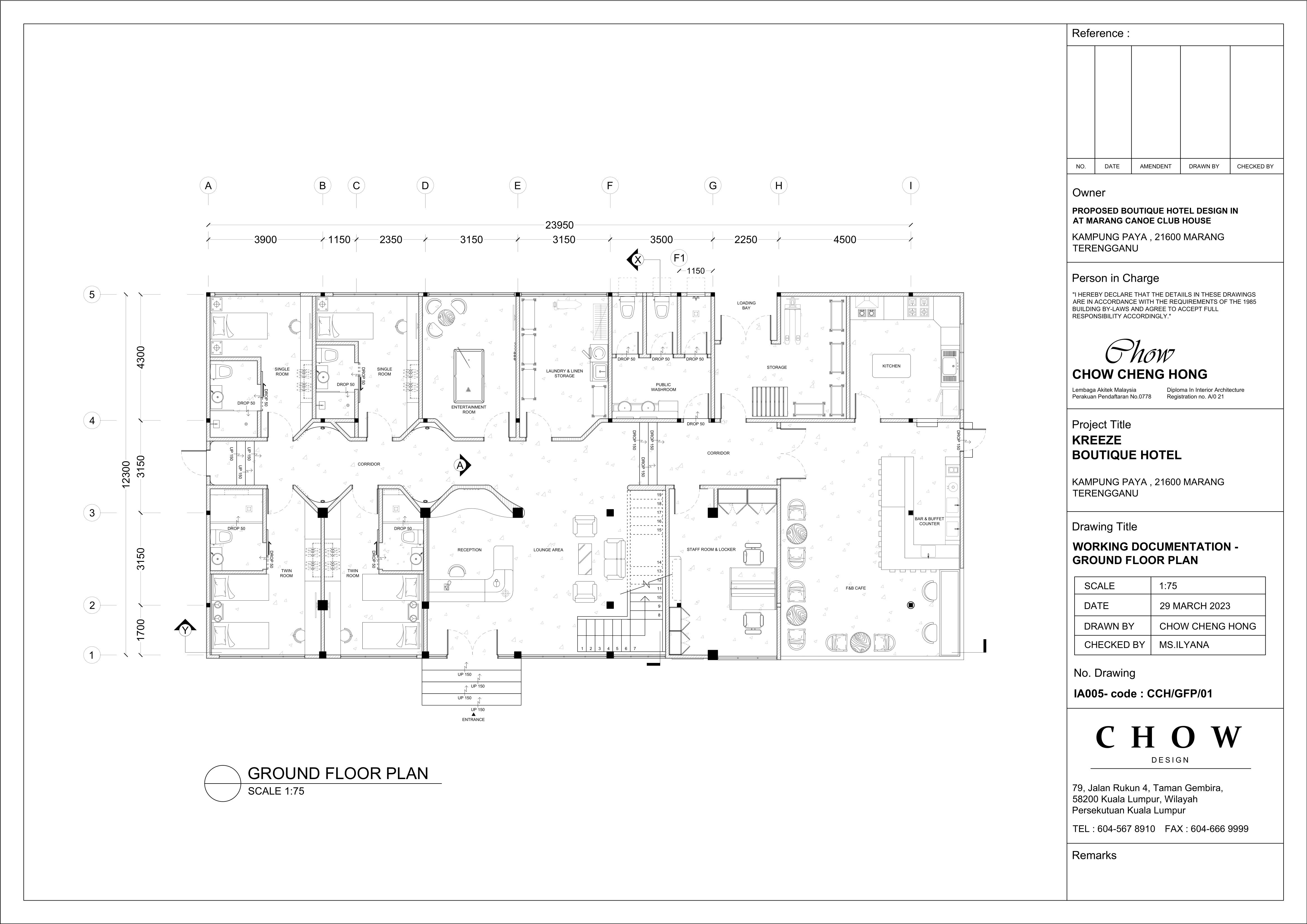
is rough texture & Keris cultural influences design create a -kind atmosphere that appealing to guest experience. The hotel's public space includes 8 guest rooms, a reception nge , snooker room & a F&B cafe & a juice bar.
of the boutique hotel is KREEZE which is inspired from the IS" & "BREEZE". Which KERIS represent the Keris element while eans get a refreshing vacation during the staycation at the hotel.
SITE & BUILDING ANALYSIS
SITE ANALYSIS BOARD
BUILDING ANALYSIS BOARD
SITE ANALYSIS BOARD
BUILDING ANALYSIS BOARD
DESIGN PROGRAMMING
DESIGN CONCEPT & MOOD BOARD
SCHEMATIC DESIGN
MOODBOARD & CONCEPT
RAW & UNFINISHED : INDUSTRIAL
CONCEPT:UNFINISHEDWALL&METALLICEXPOSEDSTRUCTURALCOLUMNS, VINTAGEFURNITURE&FIXTURE&AMBIENT+CONCEALEDLIGHTING
RAW-UNFINISHEDISANCONCEPTBYBLENDINGRAW&UNFINISHEDAS MAINELEMENTSTOBRINGOUTTHEINDUSTRIALSTYLE
CURTAINSYSTEMWILLBEAPPLYTOTHEMAINFACADESOFTHEDESIGN WHICHALLOWNATURALLIGHTTOENTERTHESPACEWHICHALSOHELPSIN CREATINGABRIGHTER&MOREINVITINGATMOSPHERE
THEINTERIORSSHOWCASEANENERGETICMIXOFRAW,VINTAGEAND UNFINISHEDSTYLETHROUGHHIGHCEILING,METALFIXTURESAND UNFINISHEDWALLANDEXPOSEDSTRUCTURALELEMENTS.VINTAGE FURNITURE&FIXTURETOREPRESENTTHEAMBIENTNESSOFDESIGN
BUBBLE DIAGRAM & ADJACENCY MATRIX
BUBBLE DIAGRAM LEGEND
Public Area
Semi Private Area
Private Area
ADJANCENCY MATRIX LEGEND
ADJACENT
NEARBY NO RELATED
KREEZE BOUTIQUE HOTEL DESIGN 04
TECHNICALDRAWINGS
RENDEREDDRAWINGS
PERSPECTIVES
MILLWORKFURNITUREDETAIL
FINALPRESENTATIONBOARD
TECHNICAL DRAWING
FACADEELEVATION
GROUNDFLOORPLAN
RENDERED DRAWING
MEZZANINEFLOORPLAN
RENDERED DRAWING
SECTIONY-Y
RENDERED DRAWING
FACADEELEVATION
RENDERED DRAWING
INTERIORELEVATION
RENDERED DRAWING
MILLWORKFURNITUREDETAIL:BARCOUNTER
MILLWORK FURNITURE DETAIL
MILLWORKFURNITUREDETAIL:RECEPTION
PERSPECTIVEVIEW
VIEW OF 3D PERSPECTIVE
PERSPECTIVEVIEW
VIEW OF 3D PERSPECTIVE
PERSPECTIVEVIEW
VIEW OF 3D PERSPECTIVE
PRESENTATIONBOARD
