En los últimos 50 años el cambio en los métodos de producción ha dejado a lo largo de las fachadas fluviales del Ter un conjunto de patrimonio industrial abandonado difícil de recuperar. En paralelo, el municipio de Torelló se enfrenta a una realidad urbana estancada al no adaptarse a los cambios de paradigma sociales.
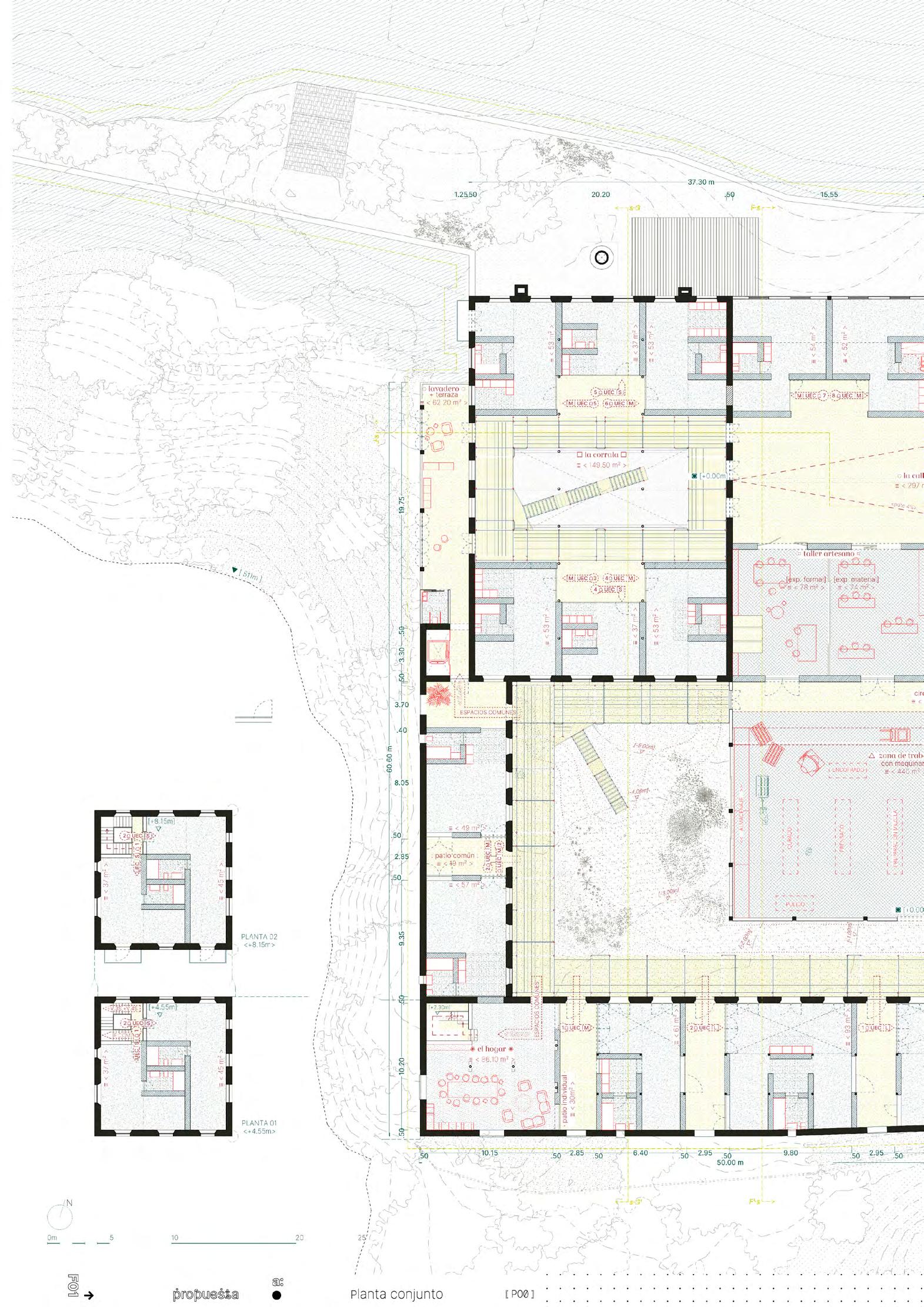
Proponemos la recuperación de Can Tarrés, una antigua fábrica textil abandonada, por parte de la administración pública para su transformación en vivienda dotacional y equipamientos culturales y educativos. Can3R pone en práctica el reaprovechamiento de los recursos disponibles in situ y la búsqueda de soluciones arquitectónicas a través del reciclaje de los residuos derivados de las demoliciones.
El proyecto que presentamos abarca, pues, aspectos sociales, de gestión, urbanísticos y arquitectónicos que se coordinan en una propuesta unitaria para abordar la problemática del acceso a la vivienda y a los recursos.