Portfolio Charlotte Turpaud

Page 1

Portfolio

wwwcharlotte-turpaudcom

Charlotte Turpaud MON EXPERIENCE ET TRAVAUX PERSONNELS

MATIÈRES Table des

04

PROPOS

Permettez-moidevousexpliquerenquoiconsistemon portfolioetcommentvouspouvezaccéderàmes projets.

06

PROJET 1

Unprojetdemaisonenborddemerréaliséenécole d’architectureafindevoirmonévolution

08

PROJET 2

Unprojetactuel,faiten2023pourunclientparticulierqui voulaittoutrefaireluimêmeavecunpetitbudget

10

PROJET 3

UnemaisonsecondaireàlaGrandeMottepourunclient quisouhaitaitunhavredepaixtoutenayantune architecturecontemporaine.

12

PROJET 4

Monprojetdefind’étudesd’école Unespacequi proposedesservicespluriculurelpourdiversifierla populationdansunquartierindustrieldeSingapour

A
03
Charlotte Turpaud A PROPOS 04

Entantqu'architecte,jejoueàlafoislerôledemédiateuretdecréateurvisionnaire,mêlant parfaitementinnovationetfonctionnalité Passantdel'artisteautechnicien,del'empathiqueau concepteur,j'incarneunapprenantperpétuel,dévouéàcomprendreetàinfluencerl'évolution denotremonde

Bienvenuedansmonportfolio,oùl'architecturedevientunlangageetoùchaqueconception raconteunehistoiredecollaboration,decréativitéetd'engagementpourunmondemeilleur

Accédezàtousmesprojetsenciquantici.

BIENVENUE PORTFOLIO

w w w . c h a r l o t t et u r p a u d . c o m
Charlotte Turpaud A PROPOS 05
Charlotte Turpaud PROJET 1 06

LA MAISON EN BORD DE MER

Palavas-les-flots, France

Dans le cadre d'un projet d'école d'architecture, nous avons conçu deux résidences distinctes sur le même terrain : une maison de vacances et une résidence traditionnelle pour un couple de retraités La partie dédiée au couple comprend deux studios séparés, l'un pour la sculpture etl'autrepourlapeinture Inspiréparl'architectureméditerranéenne,ledesignmetl'accentsur la pierre calcaire pour une esthétique robuste en harmonie avec le paysage environnant Ce projet illustre notre engagement à répondre de manière unique aux besoins variés de la communautétoutenexplorantdessolutionsesthétiquesetfonctionnelles

Charlotte Turpaud PROJET 1 07

COCON

Toulouse, France

Charlotte Turpaud PROJET 2 08
Sep 2024

Dansceprojetd'architectureintérieurepourun appartement d'une chambre de 40m² avec jardin, l'objectif était de créer un espace accueillant et fonctionnel tout en minimisant les rénovations nécessaires. Le propriétaire, dans la trentaine, souhaitait un décor élégant etintemporel,aveclapossibilitéderéaliserdes projets de bricolage et d'effectuer des tâches de manière autonome autant que possible. En mettant l'accent sur des solutions de design simples et pratiques, l'espace a été repensé pourrépondreauxbesoins

quotidiens tout en reflétant le style personnel du propriétaire. Des astuces créatives et des idées de bricolage ont été intégrées dans le design, permettant une personnalisation de l'espace tout en respectant les contraintes de budget et de temps. Ce projet démontre qu'il est possible de transformer un espace avec des moyens limités, tout en créant un environnement esthétique et fonctionnel qui peutégalementêtrefacilementlouéàl'avenir

Charlotte Turpaud PROJET 2 09

RESIDENCE SECONDAIRE

Profitez du soleil et son énergie revigorante.

PEACE AND HA P P I N E SS
Charlotte Turpaud PROJET 3 10
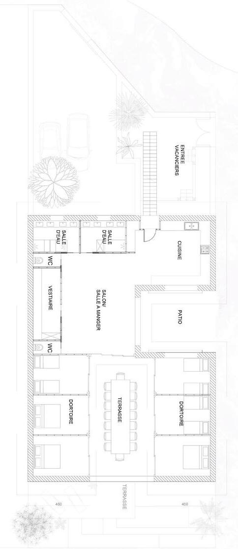
Jan 2021
La grande motte

Unemaisonancienneenbordde mer a été réhabilitée en une maison de vacances moderne pour la famille. Le projet inclut un espace ouvert avec une cuisine, une salle à manger et un salon, unesuiteparentale,unechambre d'amis et une piscine dans un jardin paysager. L'étage propose des chambres fonctionnelles, dont une chambre d'invités avec deslitsjumeauxpourlesenfants, et les espaces sont conçus pour maximiser la circulation et la lumière.

11 Charlotte Turpaud PROJET 3
Vivre en bord de mer
Charlotte Turpaud PROJET 4 12

URBAN ROCK

Singapour

Dans le cadre de mon projet de fin d’étude, je devais concevoir un projet innovant dans lamétropoledeSingapour

L’objectif d’URBAN ROCK est d’offrir aux visiteurs un parc sur différents niveaux : au sol et sur une plateforme surélevée de 7m afin d’avoir une promenade intérieure protégée et rafraîchie. Un hôtel se trouve à l’entréedusiteafind’amenerunepopulation de catégorie socio-professionnelle élevée. Ce bâtiment est proéminent sur la coulée vertecommune Unmuséesetrouveen

milieu de parcelle et offre un parcours : l’utilisateur passe par une exposition temporaire dans un bâtiment et arrive dans l’exposition permanente grâce à des passerelles menant au deuxième bâtiment. La promenade se fini sur des passerelles tournant autour d’un amphithéâtre et amenant sur le parc de la plateforme. J’ai décidé de conclure le parcours de l’utilisateur par ce parc surélevé et une vue sur l’industrie au travers des différents programmes.

Charlotte Turpaud PROJET 4 13
June 2020

Turn static files into dynamic content formats.

Create a flipbook
Issuu converts static files into: digital portfolios, online yearbooks, online catalogs, digital photo albums and more. Sign up and create your flipbook.