Simon Chan - Mini Portfolio -Arkkitehti

Page 1


KONTUKOSKI ARKKITEHDIT

Tilaaja: Pirkanmaan hyvinvointialue

Tehtävät: Arkkitehtisuunnittelu, sisustussuunnittelu, visualisointi, virtuaalimallinnus

Laajuus: 17,000 brm²

Vuosi: 2023

Kontukoski Arkkitehdeillä olin osa tiimiä, joka suunnitteli TAYS lasten ja nuorten psykiatrian rakennusta. Työni sisälsi yksilö- ja jaettujen potilashuoneiden suunnittelua, jotta tiloista saatiin rauhallisia ja parantumista tukevia. Työskentelin myös pääaulan sisätilojen parissa, mukaan lukien porraskäytävän yksityiskohtien suunnittelu, joissa yhdistyivät toimivuus, esteettömyys ja viihtyisyys. Valmistelin piirustusasiakirjoja, käytin Revit-ohjelmaa asiakasesityksiä ja suunnittelun koordinointia varten sekä osallistuin suunnittelukokouksiin, joissa työskentelin tiiviisti tiimin kanssa projektin tavoitteiden saavuttamiseksi.

Lasten- ja nuorisopsykiatrian uudisrakennus

Lasten- ja nuorisopsykiatrian uudisrakennuksen pääaula

TOIMISTO / PORTFOLIO

Mallinnus: Revit, Visualisointi: Photoshop ja Twinmotion

Tilaaja : Ylöjärvi Kaupunki

KONTUKOSKI ARKKITEHDIT

Tehtävät: Kilpailusuunnitelu, arkkitehtisuunnittelu, visualisointi

Sijainti: Ylöjärvi keskusta

Laajuus: 50 ha

Vuosi: 2023

Suunnittelijana olin osana tiimiä Ylöjärven kaupunkisuunnittelukilpailussa. Osallistuin koko suunnitteluprosessiin, aloitusideoista lopullisiin suunnitelmiin ja visualisointeihin. Tehtäväni oli kehittää kaupunkiratkaisuja, jotka parantavat alueen saavutettavuutta, kestävyyttä ja liikkuvuutta. Suunnitelmissa otettiin huomioon myös vihreät alueet ja kaupunkikeskustan toimivuus.

Kilpailun päätavoitteena oli löytää ratkaisuja, jotka sopivat Ylöjärven kaupunkimaisemaan. Ehdotusten tavoitteena oli lisätä keskustan vetovoimaa ja väestöä, säilyttää alueen kulttuurinen ja historiallinen merkitys sekä vahvistaa sen identiteettiä.

Ilmakuva kilpailusta Ylöjärven keskustalle

Mallinnus: Rhino, Visualisointi: Photoshop ja Twinmotion

Tilaaja : Tampere Kaupunki

JOLMA ARKKITEHDIT

Tehtävät: Kaupunkisuunnitelu, arkkitehtisuunnittelu, visualisointi

Vuosi: 2021

Sijainti: Kuninkaankatu, Tampere

Olin pääsuunnittelija Jolma Architectsilla useissa projekteissa, joissa oli kilpailutöitä, kaupunkisuunnittelua ja pienempiä projekteja, joissa keskityttiin kestävyyteen.

Kuninkaankadun konseptisuunnitteluprojektissa vastuuni olivat alueen analysointi, suunnitteluvaihtoehtojen kehittäminen ja lopullisen ehdotuksen tekeminen. Tein suunnitelmapiirustuksia ja valmistauduin esityksiin ja piirustuksiin asiakkaalle eri vaiheissa. Tavoitteena oli parantaa alueen toimivuutta ja kestävyyttä, keskittyen jalankulkijaystävällisiin alueisiin, viheralueisiin ja liikenteen sujuvuuteen. Teimme myös tutkimuksia pelastusliikenteen periaatteista varmistaaksemme, että suunnitelma täytti turvallisuusvaatimukset, kuten palo- ja pelastusajoneuvojen reitit.

Katutaso: Sarja katoksia, jotka on sijoitettu kadulle strategisesti

Mallinnus: Rhino, Visualisointi: Photoshop ja Enscape

Ilmakuva Kuninkaankadusta

TOIMISTO / PORTFOLIO

Mallinnus: Rhino, Visualisointi: Photoshop ja Enscape

Katos mahdollistaa katutaidetta

Aurinkoiset terassit katoksen vierellä

Polkupyöräpysäköinti kadun reunoilla

Kojut & esiintyjät

Kahvilat ja terassit

Kävely & pelastus

Katuidentiteetti: leikkaus ja pohjapiirros

Aluejulkisivu länsi

Aluejulkisivu itä

Kojut ja esiintyjät katosen suojaisissa nurkissa

Leikkaus A-A
Leikkaus C-C

Tilaaja : CirEco Finland

Tehtävät: Kestävä suunnittelu

Sijainti: Nokia

Laajuus: 120m²

Vuosi: 2021

Kontit ovat piilossa puisen julkisivun takana

JOLMA ARKKITEHDIT

Toimin pääsuunnittelijana projektissa, jossa hyödynnettiin kahta konttia ja kierrätettyä 2x4 puutavaraa saunalautan luomiseksi. Tila suunniteltiin luovaksi ja kestäväksi tilaksi virkistykseen ja rentoutumiseen. Vastuuni sisälsivät alustavien konseptisuunnitelmien kehittämisen, jotka hyväksyttiin lopullisiksi suunnitelmiksi, sekä teknisten rakennuspiirustusten laatimisen. Suunnittelin puuprofiilien yksityiskohdat Revitissä. Lisäksi valmistin rakennusdetaljeja urakoitsijalle ja osallistuin suunnittelukokouksiin.

Pohja- ja kattopiirrokset

Saunalautan visualisointi tilaajalle

Avoin tila keskellä Yksityisyys ja näkymät järvelle Näkymä sisältä, yksityisyys ulkoa
Mallinnus: Revit, Visualisointi: Enscape

Tilaaja : CirEco Finland

Tehtävät: Kestävä suunnittelu

Sijainti: Nokia

Vuosi: 2021

Istutuslaatikko ja penkit

JOLMA ARKKITEHDIT

Työskentelin varhaisista suunnitteluvaiheista lopulliseen pohjaratkaisuun keskittyen CLT-leikkuumateriaalien hyödyntämiseen modulaarisessa rakenteessa. Vastuullani oli kestävien materiaalien tutkiminen, konseptisuunnitelmien kehittäminen ja teknisten piirustusten laatiminen. Projekti pyrki luomaan modulaarisia kaupunkiviheralueita kestävänä ratkaisuna vihreiden alueiden lisäämiseksi kaupunkiympäristöön

Kaksi istutuslaatikkoa, pyöräteline ja penkit

Matalat ja korkeat istutuslaatikot sekä matala penkki

Visualisoitu moduulinen kaupunkien istutuslaatikko kaupunkiympäristössä

/ PORTFOLIO

Sketchup, Visualisointi: Enscape

Pieni
Keskikokoinen
Suuri
Mallinnus:

Tilaaja : Yksityinen omistaja

NICK BROWN ARCHITECTS

Vuosi: Syyskuu 2017 - Syyskuu 2018

Tehtävät: Asuinrakennus

Sijainti: Leeds, Englanti

Laajuus: 750m²

Vuosi: 2017-2018

Nick Brown Architectsilla työskentelen eri vaiheissa projekteja, hoitaen tehtäviä alustavista selvityksistä loppupiirustusten ja projektinhallinnan laatimiseen. Rakennan perustavanlaatuista ymmärrystä asuinrakennussuunnittelusta ja kehittelen teknisiä taitoja rakennusasiakirjojen laatimisessa.

Olin mukana rakennuksen uudistamisessa, jossa alkuperäinen viisihuoneinen, 460 m²:n talo purettiin ja sen tilalle rakennettiin tilava uusi kaksikerroksinen, 750 m²:n omakotitalo. Valmistin rakennusdetaljeja urakoitsijalle, seurasin rakennustyön etenemistä säännöllisillä työmaakäynneillä ja huolehdin työmaanaikaisista muutoksista.

TOIMISTO / PORTFOLIO

Pohjapiirros
Olemassa oleva talo

NICK BROWN ARCHITECTS

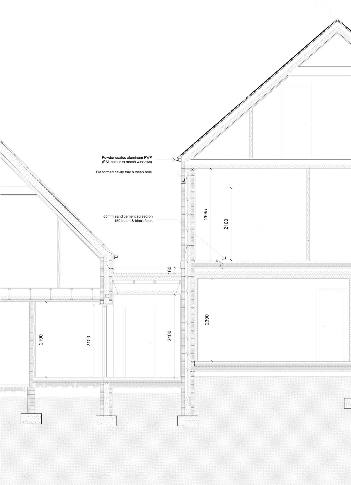
Seinäleikkaus detalji urakoitsijalle

Yhteysseinän detalji urakoitsijalle

Etelän julkisivu

Pohjoisjulkisivu

TOIMISTO / PORTFOLIO

NICK BROWN ARCHITECTS

Tilaaja : Harewood Food & Drink

Tehtävät: Korjausrakentaminen ja tapahtumatila

Sijainti: Leeds, Englanti

Vuosi: 2017-2018

Pääsuunnittelijana Nick Brown Architectsilla työskentelin tässä pienessä itsenäisessä projektissa, jossa suunnittelin Harewood Food & Drinkille tilan, joka muutti olemassa olevat navetat uuteen käyttöön.

Sain kokemusta itsenäisistä suunnittelupäätöksistä ja syvensin ymmärrystäni sopeutetusta käytöstä, erityisesti kulttuuriperintökohteiden osalta. Kehitin myös taitojani asiakastarpeiden huomioimisessa ja vahvistin projektinhallintakykyjäni.

Projektitiedot: Diplomityö

MIELENTERVEYDEN UUSI AIKAKAUSI: SUUNNITTELU PSYKEDEELISEEN HOITOON

Vuosi: Syyskuu 2019 - Heinäkuu 2020

Tehtävät: Mielenterveys ja fyysinen hyvinvointi, terveydenhuolto

Sijainti: Cardross, Skotlanti

Antidepressantteja määrätään liikaa Isossa-Britanniassa, kun taas psykedeeliset hoidot, jotka on todistettu auttavan masennukseen, pakko-oireiseen häiriöön (OCD) ja riippuvuuksiin, jäävät käytännössä vähemmälle huomiolle stigmatisoinnin ja lainsäädännön esteiden vuoksi.

Tämä projekti tutkii psykedeelisen hoidon mahdollisuuksia suunnittelemalla tiloja, jotka parantavat kokemuksellisia ja aistillisia ominaisuuksia ja luovat arkkitehtonisen ympäristön, joka sopii esikäsittelyyn, hoitovaiheeseen ja jälkihoitoon. St. Peter’s Seminary, sen hengellisen ja kuntoutusperinteen vuoksi, tarjoaa ihanteellisen paikan tälle terapeuttiselle innovaatiolle.

Ehdotan St. Peter’s Seminaryn käyttämistä psykedeeliterapian keskuksena. Suunnitelma hyödyntää rakennuksen olemassa olevaa rakennetta luodakseen aistikeskeisiä, terapeuttisia tiloja, jotka tukevat turvallisia psykedeelisiä hoitoja ja heijastavat seminaarin perintöä paikkana toipumiselle ja hengellisyydelle

Poikkileikkausdetaili St. Peter’s -seminaarin läpi

Olemassa oleva rakennus

Esikäsittely – Konsultaatio

Esikäsittely – Puhtaus

ja Photoshop

KURSSITYÖ / PORTFOLIO

Hoitovaihe – Yksilöllinen hoito
Hoitovaihe – Päähoitotila
Mallinnus: Sketchup, Visualisointi: Illustrator

PÄÄRAKENNUS

KERROS 3

Asuinhuoneet

Yhteinen asuintila

WC-tilat

Pesuhuone

KERROS 2

Asuinhuoneet

Yhteinen asuintila

Pesuhuone

KERROS 1

Neuvotteluhuoneet

WC-tilat

Yhteistila

KERROS 0

Ruokailutila

Keittiöosasto

Ryhmä- ja yksilöhoitotila

WC-tilat

KERROS -1

Pääsisäänkäynti

Aula

Esilääkitystilat

Odotushuone

Meditaatiotila

Tekninen huone

TOIMISTOTILA

Laboratorio Toimistot

OPETUSTILA

Ryhmä- ja yksilötukihuoneet Pohdinta-/Hiljainen tila

Räjäytetty aksonometria

KURSSITYÖ / PORTFOLIO

Turn static files into dynamic content formats.

Create a flipbook
Issuu converts static files into: digital portfolios, online yearbooks, online catalogs, digital photo albums and more. Sign up and create your flipbook.
Simon Chan - Mini Portfolio -Arkkitehti by Simon Chan - Issuu