PORTFOLIO

9.12.1994 waisimonman@gmail.com
Suvilahdenkatu 6 A 15, Helsinki 040 623 6355
linkedin.com/in/simonchanSAFA (ARK 12722)
![]()

9.12.1994 waisimonman@gmail.com
Suvilahdenkatu 6 A 15, Helsinki 040 623 6355
linkedin.com/in/simonchanSAFA (ARK 12722)
ARKKITEHTI SAFA
Olen brittiläissyntyinen intohimoinen ja utelias arkkitehti, joka soveltuu monipuolisiin ja vaativiin töihin. Omaan erinomaiset paineensieto- ja ongelmanratkaisukyvyt sekä tehokkaat viestintätaidot. Sopeudun ja mukaudun sinnikkäästi erilaisiin tehtäviin sekä nopeasti vaihtuviin tilanteisiin.
Monipuolinen taustani tarjoaa ainutlaatuisen ja luotettavan osaamisen, joka mahdollistaa vaihtoehtoisen näkökulman arkkitehtuuriin ja suunnitteluun.
ARKKITEHTI, YLEMPI KORKEAKOULUTUTKINTO, 2018–2020
University of Strathclyde, Glasgow, Skotlanti

Revit
ArchiCAD
Rhino 3D
Sketchup
Photoshop
Indesign
Illustrator
AutoCAD
Enscape
Twinmotion
Vray
KIELITAITO
Englanti: Äidinkieli
Suomi: hyvä (B1)
Kiinan kieli (kantoneesi): äidinkielen veroinen
Kiinan kieli (mandariini): alkeet
Hyväksytty arkkitehtitutkinnon rinnastamispäätös (2022)
KIINNOSTUKSEN
KOHTEET
Psykologia, elokuvat, pyöräily ja voimanosto. Piirustus, maalaus sekä valokuvaus.


ARKKITEHTI, ALEMPI KORKEAKOULUTUTKINTO, 2014–2017
Northumbria University, Newcastle, Englanti
METROPOLIA CAREER BOOST KIINTEISTÖ- JA RAKENNUSALA, 9–12/2022
Koulutus täydentää osaamista suomalaisista rakentamismääräyksistä, lainsäädännöstä sekä tukee työelämässä vaadittavia kielitaitoja.
VERKKOKOTO-KOULUTUS, ARFFMAN, 12/2021–8/2022
Intensiivinen kotoutumiskoulutus sisälsi suomen kielen ja työelämätaitojen opetusta kohti B1.1 kielitasoa.
TYÖKOKEMUS
ARKKITEHTI, KONTUKOSKI OY, TAMPERE 3–6/2023
Työskentelin TAYS:n lasten- ja nuorisopsykiatrian suunnitteluryhmässä. Vastasin yksilö- ja yhteishuoneiden suunnittelusta, sisustussuunnittelusta ja pihasuunnittelusta. Olin pääsuunnittelijana Ylöjärven kaupunkisuunnittelun kilpailuhankkeessa. Työskentelin koko suunnitteluprosessin ajan alkuperäisistä konsepteista lopulliseen suunnitteluun ja visualisointeihin.


ARKKITEHTIHARJOITTELIJA, JOLMA ARKKITEHDIT OY, TAMPERE 3–9/2021
Osallistuin kansainvälisiin ja kansallisiin suunnittelukilpailuhankkeisiin, jotka liittyivät kaupunkisuunnitteluun ja asuntosuunnitteluun. Johdin luovia kilpailutiimejä, toteutin asiakirjapiirustuksia ja tuotin runsaasti kuvankäsittely- ja visualisointimateriaaleja.


NUOREMPI ARKKITEHTI, NICK BROWN ARCHITECTS, LEEDS, ENGLANTI 9/2017–9/2018
Työskentelin ryhmässä pienten ja suurten asuinhankkeiden parissa ja seurasin rakennusprosesseja työmaakäyntien aikana.
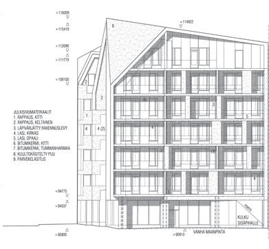
LASTEN JA NUORTEN PSYKIATRIAN RAKENNUS, TAMPERE
KUNINKAANKATU, TAMPERE
SAUNALAUTTA, NOKIA
AIWOODS, TAMPERE
SEVILLE HOUSE, LEEDS, ENGLANTI
HAREWOOD FOOD AND DRINK, LEEDS, ENGLANTI
MAISTERIN TUTKIELMA TOIMISTO
CARDROSS CURATIVE CENTRE MUUT PROJEKTIT
Työskentelin tiukassa suunnitteluryhmässä TAYS lasten- ja nuorisopsykiatrian rakennuksessa, joka on suunniteltu tarjoamaan erikoishoitoa nuorille potilaille. Roolini oli tärkeä terapeuttisten ympäristöjen muokkaamisessa, keskittyen yksilö- ja yhteishuoneisiin. Jokainen tila suunniteltiin huolellisesti lasten ja nuorten tarpeiden mukaan, jotta ne olisivat mukavia, yksityisiä ja toimivia.
Sisustussuunnittelussa teimme yhteistyötä materiaalien, värien ja kalusteiden valinnassa, jotta luotiin rauhoittava tunnelma. Jokainen valinta perustuivat turvallisuuteen, saavutettavuuteen ja kauniiseen ilmeeseen, jotta potilaat voisivat hyvin.
Lisäksi työskentelin tiimissä ulkotilojen suunnittelussa, ja lisäsimme luonnon elementtejä terapeuttisiin pihoihin, jotka parantavat potilaiden kokemusta. Nämä tilat tarjoavat rauhallisen ja tukevan ympäristön, joka auttaa paranemisessa.
Työskentelin yhteistyössä terveydenhuollon ammattilaisten ja muiden suunnittelijoiden kanssa varmistaakseni, että rakennus täyttää potilashoidon vaatimukset. Rakennus valmistuu alkuvuodesta 2028, ja sinne tulee myös sairaalakoulu, joka yhdistää hoidon ja koulutuksen. Kattava suunnittelulähestymistapa tähtää kokonaisvaltaisen ympäristön luomiseen, joka tukee nuorten potilaiden sekä fyysistä että emotionaalista hyvinvointia.



ylöjärven keskustan ideakilpailu
Toimin yhtenä pääsuunnittelijana Ylöjärven kaupunkisuunnittelun kilpailuhankkeessa. Työskentelin koko suunnitteluprosessin läpi alkuperäisistä konsepteista lopulliseen suunnitteluun ja visualisointeihin.
Kilpailun keskeisenä tavoitteena oli löytää Ylöjärven keskustan kaupunkikuvaan sovitettuja täydennysrakentamisen ja kaupunkirakenteen kehittämisen ratkaisuja. Kilpailuehdotusten toivottiin lisäävän Ylöjärven keskustan houkuttelevuutta ja asukasmäärää, tukevan olemassa olevaa kulttuurihistoriallisesti kerroksellista ympäristöä ja vahvistavan alueen identiteettiä.
Kilpailutuomaristo kiitti lähestymistapaamme siitä, että uudet kaupunkielementit oli taitavasti integroitu Ylöjärven kulttuuri-identiteettiin. Vaikka suunnitelma vahvisti kaupungin identiteettiä, tuomaristo suositteli myös huomioimaan alueen historiallisen kontekstin tarkemmin. Ehdotuksemme yhdisti onnistuneesti Leijapuiston uudet rakennukset ja olemassa olevan kirjaston, luoden yhtenäisen ja toimivan kaupunkiympäristön. Suunnittelussa hyödynnettiin tehokkaasti maaston korkeuseroja pysäköintiratkaisuissa, ja siihen sisältyi yhdistelmä julkisia palveluita, kulttuuritiloja ja pienimuotoista liiketoimintaa, mikä lisäsi alueen elinvoimaisuutta koko päivän ajan. Lisäksi Leijapuiston uudistaminen ja tilojen strateginen sijoittelu paransivat julkisia tiloja ja niiden saavutettavuutta.
Yksi suurimmista haasteista, joita kohtasimme Ylöjärven kaupunkisuunnittelukilpailussa, oli tarvittavan asuintilan toteuttaminen samalla kun säilytimme tasapainoisen kaupunkiympäristön. Alkuperäisessä suunnitelmassa oli liikaa kaupallista ja toimistotilaa, mikä uhkasi asuinalueiden osuutta. Tämän ratkaisemiseksi jaoimme asunnot strategisesti kolmelle eri alueelle, varmistaen, että kukin alue oli hyvin integroitunut ympäröivään kaupunkirakenteeseen. Tämä lähestymistapa ei ainoastaan auttanut meitä täyttämään asuinalueiden vaatimuksia, vaan myös loi yhtenäisemmän ja elinvoimaisemman yhteisön, jossa asuinalueet sulautuvat saumattomasti yhteen kaupallisten, kulttuurillisten ja julkisten tilojen kanssa.


Tehtäviini kuului analyysejä, käsitteellisiä suunnitteluvaihtoehtoja ja lopulta lopullinen ehdotus, jonka tavoitteena oli parantaa Kuninkaankadun taloudellista kiinnostavuutta. Suunnitelma sisältää joukon katoksia, jotka ovat sijoitettu strategisesti kadun vilkkaimmille alueille.
Osittaiseen kattamiseen asetettiin seuraavat päätavoitteet: suojatun yhteyden luominen sekä toiminnallisuuden ja elinvoimaisuuden tukeminen. Osittaisen kattamisen tavoitteena oli luoda säältä suojattu yhteys Hämeenkadulta Satakunnankadulle.

Tavoitteena luoda säältä suojattu yhteys Hämeenkadulta Satakunnankadulle.
YLEISRATKAISU

Tavoitteena mahdollistaa erilaisia toimintoja ja tapahtumia, kuten markkinoita ja pienimutoisia kulttuuritapahtumia.

Tavoitteena tukea liiketiloja ja lisätä kadun taloudellista elinvoimaisuutta lisäämällä viihtyisyyttä ja luomalla paikkoja esimerkiksi terasseille.
Pohjoisin katos sijaitsee Kuninkaankulman kauppakeskuksen sisäänkäynnin kohdalla, Kuninkaankadun ja Puutarhakadun risteyksessä. Katos näkyy Puutarhakadulle luoden kiinnostavan maamerkin keskustorin suunnasta saavuttaessa. Katoksen muoto mahdollistaa kadun itäpuolella olevien asuntojen näkymien säilyttämisen.
Keskimmäinen katos sijaitsee Kuninkaankadun ja Puutarhakadun risteyksessä puutarhakadun eteläpuolella. Katos rajaa Puutarhakadun ja kauppakadun välisen kävelykatuosuuden suojaisaksi ja rauhalliseksi.
Eteläisin katos sijaitsee lähellä Puutarhakadun ja Kauppakadun välistä risteystä muodostaen Hämeenkadulta saavuttaessa kiinnostavan sisäänkäynnin Kuninkaankadulle. Katoksen sijoittuminen antaa tilaa rakennushistoriallisesti arvokkaalle Tirkkosen talolle.





mahdollistaa katutaidetta Kojut & esiintyjät Kävely & pelastus








































































Aurinkoiset terassit katoksen vierellä







Polkupyöräpysäköinti kadun reunoilla












































































































Kojut ja esiintyjät katosen suojaisissa nurkissa























PELASTUSLIIKENTEEN PERIAATTEET
Erilliset katokset mahdollistavat luontevasti riittävän määrän nostopaikkoja. Katoksen korkeus ja aukon muoto on mitoitettu riittäväksi pelastusajoneuvoille. Toiminnot on sijoitettu siten, että pelastustiellä ei ole esteitä. Asemapiirroksen pelastusajoneuvojen ulottumissa huomioitu rakennusten korkeus.






















leveä & 4,5m korkea pelastustie
ALUEJULKISIVUT

































































Leikkaus B-B























































































































































Asiakas: CirEco Finland Oy
Olin tämän hankkeen pääsuunnittelija Jolma Arkkitehdit Oy:ssä. Tehtäviini kuului alustavien konseptisuunnitteluvaihtoehtojen toimittaminen asiakkaalle, joista muodostui lopullinen suunnitelma. Toimitin myös tekniset rakennuspiirustukset paikan päällä rakennettavaa hanketta varten. Suunnittelussa käytetään uudelleen 2x 40 tuuman kuljetuskontteja ja kierrätettyjä 2x4 puulankkuja, jotka muodostavat saunalautan aaltojulkisivun.
Saunalautan suunnittelun tavoitteena oli tarjota mielenkiintoinen ja luova tila virkistäytymiseen ja rentoutumiseen. Hankkeessa on käytetty kestäviä suunnitteluelementtejä, kuten kahta sisätiloja muodostavaa kuljetuskonttia. Ulkopuolinen puuverhous on muodostettu uudelleen käytetyistä 2x4-puupaneeleista. Ne on käsitelty Shou Sugi Ban -tekniikoilla, joihin kuuluu puun hiiltäminen, mikä luo sen mustan profiilin.
POHJAPIIRROS





I was involved in this project to a high degree, from early initial design phases to the final design. The client wanted to find new ways of reusing leftover CLT materials in building construction. Normally, these leftover materials are transformed into pellets and burned releasing C02 into the atmosphere.
The design illustrates moduler systems that can be used to create urban vegetation by recycling previous waste material. The modular construction consists of small easily transportable elements that helps to reduce emissions involved with transporting materials. The system is based on a module of 200mm. All modules are straight and rectangular allowing for optimal flexibility in the reuse of the modules. The original CLT cut outs are trimmed to fit the modular system.




The project includes the demolition of the existing house on Ling Lane, Leeds and a creation of a new two storey house with garage to the front. The new development provides a large contemporary house, with an emphasis on high quality design. The house consists of a 6 bedroom house with a GIFA (ground internal floor area) of 733sqm/7844sqft, replacing the old 460sqm/4951sqft 5 bedroom house.
The existing fabric of the house meant that most rooms did not meet the spacial requirements as the rooms were too big or too small. The cost of creating a new build was more cost efficent than restoring the existing house. The layout of the installation provides an open space creating a strong connection with the surrounding landscape.
















This was my main independent project at Nick Brown Architects. It illustrates an exemplary space which provides a venue space for Harewood Food & Drink and alterations to the existing barns to accommodate the new installation and enhancing the key spaces. The scheme maintains the character of the area by responding to existing building lines, scale, form, access and materials.
The building scale has been developed to respond to the existing barns. As a result the building volume has been designed to resonate the transition in scale between the barns. (See concept diagrams).
The layout of the installation provides an open space creating a strong connection with the surrounding landscape.
The timber qualities found within the barns creates a strong connection with the structure of the new development. The qualities are tied in within the old, but also bringing a contemporary style design.










Today, antidepressants are over prescribed in the UK. Alternative treatment methods are continuously researched, and there are more effective approaches to improve upon mental health. Psychedelic drugs are suggested to be more effective than antidepressants in treating depression, yet it is an undervalued resource. The illegal reputation of psychedelic drugs prevented serious research in humans until recently.








St. Peter’s Seminary was completed by Gillespie, Kidd and Coia in 1966 for the training of priests for the Roman Catholic Archdiocese of Glasgow. In 1983, it became a drug rehabilitation centre, but became disused due to significant maintenance issues. Today, the building is completed abandoned and has become a Category A listed building.
The space was initially used by priests, and has a significant spiritual background. As a drug rehabilitation centre, it was used as a space for recovery and restoration. The space provides the perfect ground to design an environment for safe use of psychedelics, spiritualism and healing.

ROTHLEY ARCHAEOLOGY CENTRE







