Rapport d'activités 2024 du CAUE Var

Page 1


DU CONSEIL D'ARCHITECTURE

D'URBANISME ET DE L'ENVIRONNEMENT DU VAR

"Le conseil d’architecture, d’urbanisme et de l’environnement a pour mission de développer l’information, la sensibilité et l’esprit de participation du public dans le domaine de l’architecture, de l’urbanisme et de l’environnement (...). "

Loi du 3 Janvier 1977 modifiée sur l’architecture - Art 7

CARTOGRAPHIE DU RAYONNEMENT DU CAUE VAR EN 2024

EN SAVOIR PLUS !

2024 EN QUELQUES CHIFFRES

3225 DOSSIERS

conseillés par des architectes et paysagistes conseillers sur le territoire varois

ÉLÈVES

bénéficiaires des actions de sensibilisation en milieu scolaire 1721

formés par le CAUE Var 118 STAGIAIRES

UTILISATEURS

du site internet 8800

PARTICIPATIONS 17

aux jurys de concours

cauevar.fr

ABONNÉS

PRESTATAIRES

retenus accordcadre 2024 22

74 MISSIONS DE CONSEIL

d’aide à la décision pour les collectivités

650 PARTICIPANTS

aux évènements organisés dans le cadre de l'exposition 2024 5154 sur nos réseaux sociaux

SOM MAI RE

ÉDITOS

LES CHIFFRES

Les recettes

Les dépenses

CONSEILLER

Conseiller les collectivités

Cour Jardin, tous jardiniers !

Participer aux jurys de concours

Accompagner les actions des partenaires

Conseiller les particuliers

FORMER

Formation des professionnels et de tous les publics

SENSIBILISER

L'exposition 2024

Les Rendez-vous du CAUE

Le Printemps du CAUE Var

Les médiations grand public

C'est mon Patrimoine au CAUE Var

L'application Archistoire

INFORMER & COMMUNIQUER

Rendre accessible nos locaux

Communiquer auprès des publics

Le réseaux des CAUE

Universités d'été

LE CAUE VAR

Présentation de la structure

Le Conseil d'Administration en 2023

LAURIOL, Président du CAUE Var, Conseiller départemental, Chargé de mission auprès du Président du Conseil Départemental "aides financières et techniques aux communes".

UN ENGAGEMENT CONSTANT AU SERVICE DU TERRITOIRE VAROIS

L’année 2024 a été une très belle année pour le CAUE Var. En effet, chacune de nos actions a connu une forte progression sur l’ensemble du territoire. Je tiens tout d’abord à remercier les Varois et Varoises, jeunes et moins jeunes, qui ont participé à de nombreux événements, ainsi que les collectivités et habitants qui nous ont fait confiance pour les accompagner dans leurs décisions et la réalisation de leurs projets. Un grand merci également à nos partenaires publics et privés pour le travail partagé, et aux étudiants en quête de savoir qui ont participé à des réflexions prospectives pour notre territoire. Tout cela n’aurait pas été possible sans l’appui des membres de notre conseil d’administration, qui soutiennent notre stratégie et renforcent notre mission en faveur de la transition écologique. Enfin, je tiens à exprimer ma profonde satisfaction pour l'équipe du CAUE, pour son engagement et son travail tout au long de l'année écoulée.

Le CAUE s’est pleinement inscrit dans les enjeux territoriaux spécifiques au Var. La richesse de notre territoire nécessite une transition écologique contextualisée. La qualité de notre cadre de vie doit être pensée pour s'adapter au changement climatique. La beauté de nos villes et villages constitue des atouts déjà présents pour aider à la revitalisation des centresvilles, et la préservation du patrimoine est une action indispensable pour inscrire le développement dans une trajectoire vertueuse. Au cours de l'année écoulée, le CAUE Var a poursuivi son action sur plusieurs fronts, en accompagnant collectivités, particuliers et professionnels dans leurs projets d'aménagement, d'urbanisme et de construction.

Nos rendez-vous annuels, avec un printemps dynamique et une saison d’automne riche en initiatives, révèlent un territoire précurseur sur des

sujets qui conditionnent la réussite de l’évolution de nos manières d’habiter le Var. La complexité de mise en œuvre, la réduction des moyens et l’instabilité climatique montrent combien notre mission reste plus que jamais d'éclairer les décisions, de sensibiliser les acteurs et de contribuer à l'émergence de projets durables et adaptés aux territoire.

La mission d'intérêt public du CAUE Var auprès des collectivités, des professionnels et du grand public est menée à l’écoute des besoins du territoire. Le CAUE l’accompagne à travers son expertise transversale. Le conseil, la sensibilisation et l’information traduisent son action sur le terrain au quotidien. Cette année, l'une de ses fortes actualités a été l'obtention de la certification Qualiopi, qui fait du CAUE Var un organisme de formation reconnu. Ainsi, il offre au territoire un outil dont les compétences sont aujourd’hui reconnues pour permettre une transmission qualifiante.

RELEVÉ LE DÉFI DES MOYENS

La fin de l’année 2024 nous laisse face à un nouveau défi : les perspectives financières pour l'année à venir ne sont pas bonnes. Le défi à relever et les orientations stratégiques du CAUE seront déterminantes pour l’avenir. Nous faisons le choix de prendre cette contrainte comme une opportunité, avec une vision prospective et un engagement continu. Nous continuerons à innover dans nos méthodes d'accompagnement et à développer des partenariats stratégiques pour répondre au double défi d’aider les porteurs de projets avec moins de moyens financiers. Nous sommes convaincus que la qualité du cadre de vie est un enjeu majeur pour l'attractivité et le bien-être de notre département, et le CAUE Var est déterminé à y jouer un rôle actif.

Notre rapport d'activité présente les actions menées par le CAUE Var au cours de l'année 2024. Je vous invite à découvrir la diversité et l'impact de notre engagement.

UNE ÉQUIPE, AU SERVICE DES MISSIONS

L'ORGANIGRAMME EN 2024

JOCELYNE PAYET Coordinatrice comptabilité juridique - RH jpayet@cauevar.fr

MARC LAURIOL Président contact@cauevar.fr

WILFRID JAUBERT Directeur général wjaubert@cauevar.fr

ADMINISTRATIF

ALEXANDRA BES Administration générale abes@cauevar.fr

PÔLE SENSIBILISATION

JULIE LE BERRE

Chargée de mission sensibilisation jleberre@cauevar.fr

MATHILDE SZYDYWARCALLIES

Chargée d'étude sensibilisation mszydywar@cauevar.fr

MIREILLE ALLEGRINI Accueil - Secrétariat Documentation mallegrini@cauevar.fr

ERIC MARRO

Chargé de mission conseil et formation emarro@cauevar.fr

PIERRE DAVID

Chargé de mission paysage pdavid@cauevar.fr

CLEMENT VACCA

Chargé d'étude conseil et sensibilisation cvacca@cauevar.fr

CLEMENCE MOUNIER

EMMANUELLE PONS

Chargée de mission architecture epons@cauevar.fr

Chargée de communication cmounier@cauevar.fr

MAXIME ANTON

Chargé de mission architecture manton@cauevar.fr

COMMUNICATION

CLOE OLIVIER

Chargée de recherche de financement et de communication colivier@cauevar.fr

UNE ÉQUIPE, UNE AMBITION

Nos paysages sont sensibles à l’intervention des métiers de l'architecture, de l'urbanisme et de l'environnement, mais pas seulement. Ces disciplines jouent un rôle crucial dans les solutions à déployer pour la transition écologique, mais elles ne sont pas les seules. La sensibilisation est une action clé présente dans les différents textes de loi qui impliquent le CAUE et soutiennent les actions en lien avec les enjeux contemporains.

En 2024, l’équipe du CAUE Var s’est ouverte à d’autres métiers et approches, développant ainsi ses compétences.

S’ENRICHIR, ÉCOUTER, APPRENDRE POUR AGIR ET INNOVER

L'équipe du CAUE Var, à travers les formations et les rencontres, cherche à être plus pertinente et efficiente dans la fabrique du paysage. Engagée dans un travail qui allie proximité et transversalité, elle aborde au mieux les sujets liés à l'architecture, l'urbanisme et l'environnement et le paysage. Chaque collaborateur puise au sein de la structure l'aide et l'appui nécessaires pour mener à bien chaque action. Renforcée par des professionnels aux profils variés, l'équipe n'hésite pas à innover pour apporter des réponses toujours plus efficaces.

Notre collaboration avec les enseignements supérieurs et la professionnalisation des futurs acteurs enrichissent notre travail d’un regard nouveau, très concernés par les problématiques liées au changement climatique. L’accueil d’alternants et de stagiaires, considérés comme de véritables collaborateurs, corrobore cet intérêt. En étant à l'écoute de leurs besoins, nous intégrons une approche transversale, inédite et optimisée.

Tout projet, aussi petit soit-il, est pour nous ambitieux, qualitatif, inédit et créatif. Nous définissons des projets respectueux des paysages existants, au service des territoires, soucieux des ressources et de la qualité des espaces de vie de tous les Varois.

La relation avec nos partenaires favorise sans aucun doute le passage à l’acte, car le travail en commun ou complémentaire apporte des solutions concrètes aux porteurs de projets et permet un travail qui répond aux attentes.

L’accompagnement proposé par le CAUE Var se compose de profils différents, indissociables et complémentaires, et ils développent ensemble des méthodes et des process intégrant les Varois et favorisant la montée en compétence de tous. Notre engagement comme acteur de la formation vient confirmer la dimension professionnelle de la transmission.

La confiance de la gouvernance de la structure envers chacun offre un cadre de travail qui permet d’approfondir les recherches pour mieux accomplir notre mission.

C’est avec motivation que l’équipe a fait rayonner le CAUE sur l'ensemble du territoire et au-delà.

De gauche à droite : Maxime ANTON, Mathilde SZYDYWAR-CALLIES, Lenny MENDY, Emmanuelle PONS, Delphine TOURTE, Eric MARRO, Jocelyne PAYET, Marie CARVIN, Mireille ALLEGRINI, Clément VACCA, Éloïne Erpeldinger, Julie LE BERRE, Wilfrid JAUBERT, Alexandra BES, Cloé OLIVIER, Pierre DAVID et Clémence MOUNIER (absente sur la photo)

LES CHIF FRES

P14

LES RECETTES

Analyse des recettes

Graphique

P15

LES DÉPENSES

Analyse des dépenses

Graphique

LES RECETTES, EN 2024

Le bilan de l’exercice 2024 fait ressortir une perte de 176 073.71 € pour un montant de la part CAUE de la Taxe Départementale de 1 237 872,33 € soit un montant de taxe inférieur de 338 067,67 € par rapport à la taxe départementale perçue en 2023 et inscrite au budget 2024.

Le CAUE a perçu un montant de 1 300 000 € sur cet exercice, le montant de la taxe départementale de 2024 étant de 1 237 872,33 €, le trop-perçu a été régularisé sur le 1er acompte de taxe versé en 2025.

Concernant les autres recettes :

Le montant des contributions des collectivités s’est élevé à 144 150 € en progression de 37 990€ par rapport à l’année précédente.

Le montant des subventions s’élève à 43 608 euros et sont constituées d’aide à l’embauche pour 13 500 euros et la consommation du solde de la subvention fonds vert allouée en 2023 pour un montant de 30 108 €.

L’aide à l’embauche des jeunes est en lien avec les contrats de deux alternantes en paysage et communication.

Les produits financiers sont en hausse passant de 60 812,37€ à 81 075.43 € (ouverture d’un compte à terme en 2023 et d’un livret A association et compte sur livret historique)

11% PARTICIPATIONS ET SUBVENTIONS DIVERSES

6% PRODUITS FINANCIERS

1%

AIDE À L'EMBAUCHE ET AVANTAGES EN NATURE

82%

TAXE DÉPARTEMENTALE

LES DÉPENSES, EN 2024

Les achats de sous-traitance correspondent aux engagements de dépenses pris auprès de tiers par le CAUE dans le cadre des actions réalisées pour les collectivités, l’Education Nationale, les diverses actions de formation et d’information. Ces dépenses s’élèvent en 2024 à 346 893.78 € en progression de 57 564.82 € par rapport à l’année précédente.

Afin de donner une meilleure lecture économique de ces dépenses, cet exercice a été l’occasion de changer le traitement comptable de ces charges. Ainsi, ces dépenses ont été comptabilisées au regard des travaux réalisés et l'avancement des missions et non plus au regard des engagements de dépenses globales pris par l'association au cours de l’exercice.

Les autres dépenses de fonctionnement restent stables en 2024 et s’élèvent à 212 266.30 euros.

Le poste impôts et taxe diminue de 7 995,87 euros, notamment du fait de l’obtention d’un dégrèvement de taxe d’habitation appelée à tort en 2023.

À effectif globalement constant, on note une augmentation du cout de la masse salariale sur l’exercice qui s’élève à 1 040 214.60 € en progression de 46 682.18 euros par rapport à 2023.

Ce phénomène s’explique principalement par le paiement d’heures supplémentaires lié notamment à l’ouverture des samedis et la revalorisation d’un poste.

On constate sur l’exercice un résultat exceptionnel positif de 53 576.50 euros.

Ce résultat s’explique par :

- un ajustement des provisions de départ à la retraite de 44 314,89 euros justifié par un changement de méthode d’évaluation.

- l’abandon par le Conseil Départemental d’une dette liée à la prise en charge attendue du salaire d’un ancien directeur du CAUE de 9 261.52 euros.

La perte de l’exercice 2024 est essentiellement due à la diminution de la taxe départementale inférieure de 338 067.67 euros par rapport à 2023.

Malgré cette diminution significative de dotation de taxe d’aménagement, la perte de l’exercice reste contenue grâce à une gestion rigoureuse tout au long de l’année et la prise en compte de l’annonce de cette baisse par les services du département dès septembre 2024.

& Fonctionnement

Accompagnement des collectivités

20 192 heures aux services des varoises, varois et des territoires

CONS SEIL LER

CONSEILLER LES COLLECTIVITÉS

La mission d'aide à la décision et d'accompagnement pour les collectivités en 2024

Les missions engagées en 2023 et poursuivies en 2024

COUR JARDIN, TOUS JARDINIERS !

Processus et philosophie

Focus sur la transformation des cours de collèges

PARTICIPATION AUX JURYS DE CONCOURS ET AUTRES

La place du CAUE Var dans les jurys organisés par les collectivités

APPUI AUX POLITIQUES PARTENAIRES

Liste des partenariats en 2024

CONSEILLER LES PARTICULIERS

Conseiller les particuliers dans leurs projets de construction, rénovation et extension.

Les consultances architecturales et paysagères

Les lieux de permanences décentralisées du CAUE Var

CONSEILLER

LES COLLECTIVITÉS

MISSIONS D’AIDE À LA DÉCISION ET D'ACCOMPAGNEMENT POUR LES COLLECTIVITÉS LOCALES EN 2024

Le CAUE Var poursuit au quotidien ses missions d'accompagnement des collectivités pour la mise en oeuvre de leurs projets.

Il est fier de participer ainsi à la Fabrique d'un cadre de vie de qualité dans tous les territoires de notre Département. Son aide va majoritairement vers les petites communes dépourvus de moyens techniques et humains, mais peut aussi s'adresser aux plus grandes quand des sujets spécifiques appellent une approche innovante.

Qu'il effectue ses missions en interne, grâce à son Pôle Conseil maintenant étoffé de 7 professionnels, ou en s'appuyant sur des compétences de bureaux d'études externes, le CAUE Var développe une démarche de proximité, d'écoute et d'échanges avec les élus et les agents territoriaux.

Cette philosophie répond à la volonté profonde de transmettre avant tout des connaissances plutôt que

de "réfléchir à la place de" et fournir un projet clé en main. Les missions de conseil sont donc tout à la fois mission de sensibilisation et mission de formation sur les sujets qui préoccupent les élus.

Conscient également que les élus ont besoin, pour porter pleinement leurs engagements, d'un bon ancrage de leurs projets dans la justesse des analyses et des propositions, le CAUE Var propose systématiquement d'adopter des démarches actives de co-élaboration et de co-conception des programmes de réalisation.

Ces méthodes participatives, avec les usagers ou les habitants de la commune, permettent en outre une meilleure appréhension des problématiques par les citoyens, et une meilleure appropriation des projets et une meilleure acceptation des évolutions qu'ils engendrent.

La qualité de la commande publique, à travers les marchés de Maîtrise d'Oeuvre que les collectivités devront lancer pour passer à l'étape opérationnelle, s'en touve ainsi facilitée et augmentée.

RÉPARTITION THÉMATIQUE DES 68 ÉTUDES ENGAGÉES EN 2024

Aménagement & développement Urbain

Architecture

Titre du graphique

Paysage / Environnement

68 MISSIONS DE CONSEIL

22 PRESTATAIRES ARCHITECTES, PAYSAGISTES & URBANISTES

CONSEILLER LES COLLECTIVITÉS DANS LEURS PROJETS D'ARCHITECTURE

6 MISSIONS EN ARCHITECTURE ENGAGÉES EN 2024

Communauté de communes Coeur du Var : Conseil et aide à la décision pour la construction d'un Centre technique intercommunal.

Correns : Accompagnement dans le lancement d'une Maîtrise d'oeuvre de travaux pour la réhabilitation de l'école.

Métropole Toulon-Provence-Méditerranée : Conseil et aide à la décision en vue de la construction d'une structure d'accueil au Jardin Remarquable de Baudouvin.

Le-Plan-de-la-Tour : Accompagnement dans le lancement d'une Maîtrise d'oeuvre de travaux pour la réhabilitation d'une maison de village en Maison de la culture

Lorgues : Conseil et aide à la décision en vue de l'extension de l'école maternelle.

Varages : Conseil et aide à la décision en vue de la réhabilitation de la Bastide Saint-Jean et de ses abords

Circulation

Espace

Surface

Circulation

Circulation

Le Plan de la Tour : représentation volumétrique dans le tissu bâti et des surface pour la réhabilitation d'une maison de village en Maison de la Culture

POURCAUEVAR.FR SUIVRE LESDÉMARCHES!

UN EXEMPLE CONCRET SUR LA COMMUNE DE LA SANARY-SUR-MER

Mission de conseil portant sur la restructuration du Quartier de la Poste et la réhabilitation de l'ancien commissariat en logements

La commune de Sanary-Sur-Mer souhaite restructurer le secteur où se situe la Poste et l’ancien commissariat.

Ce secteur est situé en plein coeur de ville et recèle un enjeu de recomposition urbaine important dans un objectif d’harmonisation des constructions et de l’espace public avec le reste du coeur de village typiquement provençal.

Le site de projet se situe à l’extrême Nord du centre historique de Sanary qu’il connecte tel une «porte» avec l’Avenue du Maréchal Leclerc en son milieu.

Mission du CAUE Var

La mission du CAUE a consisté à élaborer un dossier de conseil et d’aide à la décision.

Ce travail permet à la commune d’évaluer l’incidence en termes de travaux et aménagements, d’apprécier l’insertion dans le site afin de prendre une décision sur l’aménagement de cet espace urbain.

Quel projet urbain ? Quel espace public ?

- Ouvrir et connecter cet espace pour affirmer la «porte» Nord du centre ancien.

- Rendre cet espace agréable pour le piéton en uniformisant les traitements de sol et en simplifiant l’accès à ses différents services.

- Gérer la diversité des flux (piéton/véhicules privés)

- Créer une placette avec des usages variés et un lieu de rencontre.

-Réintégrer la Poste dans son environnement ainsi que son accessibilité PMR avec un véritable parvis

-Prolonger l’axe paysager de l’Avenue du Général Rose en amont pour végétaliser l’espace entre la poste et les bâtiments Ouest (double alignement d’arbres).

Vue à vol d'oiseau du quartier

-Conserver les arbres majeurs existants (palmier / faux poivrier) et accentuer la présence du végétal en déminéralisant certains sols et lutter contre le phénomène d’îlot de chaleur.

- Créer une atmosphère de placette villageoise arborée apportant ombre et fraicheur par le végétal et la présence de l’eau typique en Provence.

- Gérer et dissimuler les containers à ordures, blocs de climatisation (enterrés, caches...)

- Implantation d’un nouveau programme de commerces /logements.

ACCOMPAGNER LES DÉMARCHES

EN URBANISME

6 MISSIONS EN URBANISME ENGAGÉES EN 2024

Cavalaire : Conseil et accompagnement pour le développement d'un schéma de mobilités douces.

Communauté de communes Coeur du Var : Conseil en vue de la restructuration urbaine des quartiers longeants la RDN7.

Le-Plan-de-la-Tour : Conseil en vue de l'aménagement d'un local associatif sportif.

Les Salles-sur-Verdon : Conseil et accompagnement en vue d'un schéma d'aménagement des espaces publics.

Saint-Tropez : Conseil et accompagnement en vue de la restructuration de la Zone d'Activité Saint-Claude.

Varages: Accompagnement vers un schéma directeur des espaces publics et des voiries.

Synthèse du diagnostic des espaces publics de Varages en vue de la requalification des espaces publics 1a 1b 2 3a 4 3b la source de la Foux et la Bastide St Jean le Baou, un belvédère sur la vallée le centre du village la promenade de la source la place le parc les places et les rues du vieux village les chemins qui bifurquent

POURCAUEVAR.FR SUIVRE LESDÉMARCHES!

UN EXEMPLE CONCRET SUR LE TERRITOIRE DE COEUR DU VAR

Conseil et aide à la décision en vue de la requalification urbaine de la RDN7 et des quartiers riverains entre le Luc-en-Provence et le Cannet-des-Maures

Deux communes, deux entités urbaines aux passés propres mais une évolution commune suite à l'arrivée du train sur le territoire. Une urbanisation récente fortement liée à la voiture faisant naître une connurbation spontanée. Aujourd'hui les communes veulent redonner du sens à ce développement urbain, le maîtriser, l'améliorer. L'enjeu est de retisser les relations aux deux centre-villes, leur rendre leur centralité dans le respect de leur identité, tout en sécurisant les espaces commerciaux et créant une qualité de vie optimale pour ces quartiers nouveaux.

Vue aérienne d'une hypothèse stratégique

Mission du CAUE Var

La mission du CAUE, dépassant une simple approche d'aménagement routier, a posé les bases d'un questionnement sur une évolution urbaine plaçant les habitants, piétons et usagers, au coeur d'un espace à vivre.

Cette démarche vise à inverser le regard sur les solutions purement routières pour développer un urbanisme durable

Un parc central qui accueille les modes doux

La finalité ? Concerter et conseiller les élus...

Ouvrir une réflexion sur le moyen et long terme...

Aménager un corridor routier de cette importance qui traverse un tissu urbain en pleine évolution spontanée, nécessite de repousser les murs de la réflexion.

Comment passer d’une logique subie de couloir routier à une logique maîtrisée de composition urbaine ?

Comment considérer les outils de planification urbaine pour mettre en œuvre un urbanisme de projet ?

CONSEILLER LES COLLECTIVITÉS DANS LEURS DÉMARCHES PATRIMONIALES

7 MISSIONS EN PATRIMOINE ENGAGÉES EN 2024

Bagnols-en-Forêt : Conseil en vue de l'élaboration d'une Charte de recommandations architecturales et chromatiques, d'une Charte des clôtures et charte de devantures et enseignes commerciales.

Cavalaire : Conseil et accompagnement pour la requalification du Hameau des Collières.

Gonfaron : Conseil et accompagnement en vue de la rénovation du patrimoine architectural.

Mazaugues : Conseil et diagnostic en vue de la réhabilitation du Château de Mazaugues.

Métropole Toulon-Provence-Méditerranée : Conseil et accompagnement en vue de la valorisation du patrimoine lié à l'eau sur le site du Domaine de Fabrégas.

La Martre : Conseil et aide à la décision en vue de la réhabilitation de la Maison Richard.

Saint-Tropez : Conseil et accompagnement en vue de la réalisation d'un inventaire du patrimoine architectural.

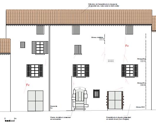
UN EXEMPLE CONCRET SUR LA COMMUNE DE LA MARTRE

Conseil et aide à la décision en vue de la réhabilitation de la Maison Richard

La commune de la Martre est engagée depuis de nombreuses années dans le développement du village, pour maintenir sa population, conserver un dynamisme, une attractivité, et également à l’initiative de projets écoresponsables. Dans cette ambition et cet engagement, la Maison Richard constitue un nouveau projet, visant à recréer quelques logements ou gites au sein de son centre historique.

Mission du CAUE Var

Diagnoostic de la couverture et des combles

Le CAUE VAR est intervenu en conseil dans cette démarche pour définir et structurer les contours de ce projet en établissant notamment :

- Une synthèse du diagnostic technique et un état des lieux,

- Différentes propositions d'orientations de programme, - Une synthèse des principales préconisations et contraintes liées au projet.

- Un pré-chiffrage des scénarios.

Diagnostic de la façade Sud

Trois scénarios sont proposés et en cours de réflexion avec l'équipe du conseil communal

CONSEILLER LES COLLECTIVITÉS DANS LEURS PROJETS DE PAYSAGE

9 MISSIONS EN PAYSAGE ENGAGÉES EN 2024

La Cadière d'Azur : Conseil et aide à la décision en vue de la requalification et de l'extension raisonnée du stationnement sur le site de Font d'Abeille.

Le Cannet-des-Maures : Conseil et aide à la décision en vue du réaménagement du Parc Pellegrin et du parvis de la Mairie

Communauté de communes Coeur du Var : Accompagnement pour l'élaboration d'un guideconseil pour les aménagements paysagers de centres villages.

Communauté de communes Coeur du Var : Conseil et aide à la décision en vue des aménagements extérieurs de l'aire de loisirs des Sigues sur la commune de Gonfaron.

Forcalqueiret : Conseil et accompagnement en vue de l'aménagement d'une boucle de cheminements piétonniers.

Lorgues : Conseil et accompagnement en vue de la désimperméabilisation et la végétalisation de la Place des Ferrages.

Métropole Toulon-Provence-Méditerranée : Conseil et accompagnement en vue de la définition d'un Schéma d'accueil du public et de la définition de Sentiers thématiques sur le massif du grand Sicié sur les communes de la Seyne et de Six-Fours.

Le-Plan-de-la-Tour : Conseil et aide à la décision en vue de la requalification de l'aire de jeux et du parvis de l'école élémentaire du village.

Saint-Tropez : Conseil et aide à la décision en vue de la requalification paysagère et de l'extension raisonnée du Cimetière marin / Granet. Grand Sicié : réflexions sur l’accueil du public et les sentiers thématiques

POURCAUEVAR.FR SUIVRE LESDÉMARCHES!

UN EXEMPLE CONCRET SUR LA COMMUNE DE LA CADIÈRE-D'AZUR

Conseil et aide à la décision en vue de la requalification et de l'extension raisonnée du stationnement sur le site de Font d'Abeille.

La commune de La Cadière d’Azur envisageait d’acquérir une parcelle en vue de réaliser une extension du parking de la Font d’Abeille. Cette parcelle présente une topographie en pente relativement marquée. La commune a sollicité le CAUE Var pour l’accompagner dans sa réflexion sur l’opportunité de réaliser cette acquisition en vue de créer un parking compte-tenu de la configuration topographique des terrains et de son environnement paysager, dans une logique de projet global à l'échelle du site élargi.

D’AMENAGEMENT - LES DEUX VOLETS CUMULÉS

Coupe topographique

Mission du CAUE Var

La mission du CAUE a consisté à élaborer un dossier de conseil et d’aide à la décision. Ce travail permet à la commune d’évaluer l’incidence en termes de travaux et aménagements, d’apprécier l’insertion dans le site et de faire la balance coût de travaux/ places gagnées, afin de formaliser sa décision.

La démarche ?

Concerter et conseiller...

Dessiner pour aider à décider...

Plusieurs hypothèses d’aménagement ont été élaborées et présentées :

Vers le centre-village

- Une extension haute au plus près du village ;

- Le développement en contrebas du site ;

- Une mutualisation des deux scénarios.

Le CAUE conseille de relier les différents plateaux de stationnement avec des liaisons piétonnes et de développer un réseau de «placettes-belvédères».

La complexité du site due à sa déclivité et la nature des sols vont amener la commune vers une étude géotechnique afin de préciser les contraintes et opportunités des différentes hypothèses d’aménagement et d’extension des espaces de stationnement sur le site de la Font d’Abeille.

Croquis d'organisation des espaces

Cette mission d’études et d’ingénierie géotechnique est indispensable pour compléter le dossier et permettre à la municipalité de prendre une décision et de planifier le projet à venir.

ANIMER LES DÉMARCHES

COUR JARDIN, TOUS JARDINIERS !

PROCESSUS ET PHILOSOPHIE

Le processus « Cours-jardins, tous jardiniers ! » interroge l'espace de la cour de récréation en plaçant au centre du projet les besoins et le bien-être des enfants.

Les cours d’école actuelles étant des espaces conçus par des adultes et pour des adultes... la démarche opère un changement de regard sur l’éducation, la relation au vivant et les enjeux climatiques.

Cette démarche est motivée par une double urgence :

L’urgence climatique étroitement liée à l’imperméabilisation massive des sols qui aggrave le phénomène d’îlot de chaleur urbain, la surchauffe, les risques inondation et ruissellement et altère la qualité de l’air.

L’urgence pédagogique qui découle d’un constat unanime où les enfants d’aujourd’hui sont de moins en moins en contact avec leur milieu.

On parle d’une génération "d’enfants d’intérieur" et du "syndrome du manque de nature" qui a pour effet de développer des troubles comportementaux induisant parfois des problèmes de santé.

CHIFFRES CLÉS

9

COLLECTIVITÉS ENGAGÉES EN 2024

3 NIVEAUX (MATERNELLE,PRIMAIRE, COLLÈGE)

17 COURS D'ÉCOLES ENGAGÉES EN 2024

1 HA À DÉSIMPERMÉABILISER

DANS LA DÉMARCHE "COUR-JARDIN"

Conseil Départemental du Var : Accompagnement dans la stratégie de désimperméabilisation et de végétalisation des cours des collèges du Var, avec une démarche-pilote menée sur 4 collèges-tests: La Garde, Sanary-Sur6mer, Draguignan, Brignoles.

Forcalqueiret : Accompagnement "Cour-jardin" sur les cours du groupe scolaire du village

Hyères : Accompagnement "Cour-jardin" sur les cours du Groupe Scolaire Saint-Exupéry et des écoles maternelles Dolto, Costebelle et les Mouettes.

Lorgues : Accompagnement "Cour-jardin" sur la cour de l'école maternelle.

Le-Plan-de-la-Tour : Accompagnement "Cour-jardin" sur la cour de l'école élémentaire du village.

Rougiers : Accompagnement "Cour-jardin" sur les cours des deux écoles maternelle et élémentaire du village.

Salernes : Accompagnement "Cour-jardin" sur la cour de l'école élémentaire Jean Courtin.

Saint-Tropez : Accompagnement "Cour-jardin" sur la cour de l'école élémentaire des Lauriers.

Saint-Zacharie : Accompagnement "Cour-jardin" sur la cour de l'école maternelle Simone Veil.

CHIFFRES CLÉS

275

ÉLÈVES ACTEURS

11

ATELIERS ADULTES

Cette action se situe à la croisée des quatre missions du CAUE :

Conseil auprès de la maitrise d’ouvrage

Sensibilisation auprès des usagers

22

ATELIERS ENFANTS

Information à travers le partage de références sur le sujet (ouvrages, vidéos, conférences)

Formation en direction des enseignants et des agents des collectivités.

La végétalisation de la cour de l’école n’est pas la création d’un décor végétal, mais une réflexion paysagère globale, un processus au temps long, qui évoluera en fonction de l’appropriation des usagers.

L’objectif est de permettre aux nouvelles générations d’être en contact avec le vivant dans leur quotidien, afin qu’ils puissent grandir en étant conscients des enjeux actuels et futurs, tout en sensibilisant également les adultes usagers de l’établissement scolaire.

Conseiller

CAUEVAR.FR POUR SUIVRE LES DÉMARCHES !

FOCUS SUR LA TRANSFORMATION DES COURS DE COLLÈGES

Le Département s'est engagé dans une démarche de désimperméabilisation et de végétalisation des cours de collège. Il s'est tourné vers le CEREMA pour la stratégie et priorisation et vers le CAUE pour l'animation des ateliers de coconstruction.

RENDRE LES ELEVES ACTEURS

Partir du vécu des élèves pour des propositions d’aménagement plus justes.

Faire de la concertation un temps d’apprentissage et de pédagogie.

IDENTIFIER LES SINGULARITES DU COLLEGE

Identifier les singularités humaines et paysagères pour en faire des leviers dans la réflexion.

S’appuyer sur les initiatives existantes des enseignants.

FAVORISER L’ADHESION ET L’APPROPRIATION

Mettre en place un cadre d’échange et d’écoute qui favorise le dialogue.

Fédérer tous les acteurs autour d’un projet commun.

La coconstruction au coeur du projet

Le projet de désimperméabilisation permet de partir des ressentis et des expériences vécues par les élèves et l’équipe éducative dans la cour pour penser un schéma d’aménagement prenant en compte les usages en s’appuyant sur les compétences des professionnels formés à la transmission.

La démarche paysagère

Chaque cour étant unique, les paysagistes concepteurs du CAUE sensibilisent les élèves et les adultes à l’importance de s’appuyer sur les qualités de l’existant pour mener une réflexion paysagère globale à partir du sol, de la végétation, de l’eau, des usages, des ambiances, de la relation au grand paysage et à l’architecture du collège.

Le rôle des éco-délégués

Le rôle des éco-délégués prend un nouveau sens en leur permettant de s’impliquer dans un projet concret et fédérateur.

CHIFFRES CLÉS

8

ATELIERS ADULTES

Partenariat et thème de travail :

8 ATELIERS JEUNES

3 SÉMINAIRES

Lien entre santé mentale et végétal avec le CODES VAR | Collège La Guicharde

Biodiversité et nature en ville avec la LPO | Collège Jean Moulin

Egalité filles et garçons avec Edith Maruéjouls | Collège Jean Rostand

Art expression et créativité avec l'artiste plasticienne Elodie Rougeaux-Léaux | Collège Cousteau

Collège La Guicharde à Sanary
Collège Jean Moulin à Brignoles
Collège Jean Rostand à Draguignan
Collège Jaques Yves Cousteau à La Garde

PARTICIPER

AUX JURYS DE CONCOURS

LA PLACE DU CAUE VAR DANS LES JURYS ORGANISÉS PAR LES COLLECTIVITÉS

Le CAUE Var est régulièrement sollicité pour porter la voix des paysages, de l'architecture, de l'urbanisme et de l'environnement au sein de jury (de maîtrise d'oeuvre, de concours).

Il s'agit de moments stratégiques et passionnants pour diffuser une certaine culture du projet partagé, vertueux, esthétique et durable.

Loin d'une attitude prescriptive et érudite, le CAUE Var propose une lecture critique et experte des réponses techniques apportées par les candidats aux exigences programmatiques des maîtres d'ouvrage.

Le CAUE Var tient à faire participer tous ses représentants et articuler le croisement des regards.

Le CAUE VAR a participé à 19 jurys de concours :

• Les Arcs - Complexe sportifs et loisirs

• Base Navale de Toulon - Complexe restauration base Hyères « La Ligurienne »

• Base Navale de Toulon – Bâtiment administratif pour le service de l’énergie opérationnelle

• Bagnols en forêt – Construction CLSH

• Communauté de communes Coeur du Var –Réhabilitation piscine intercommunale du Luc

• CFA Grande Tourache – Extension et restructuration du site du CFA

• Conseil Départemental du Var - CDE de Brignoles

• Conseil Départemental du Var - CDE de Draguignan

• Hyères – Espace 3000

• Le Plan de la Tour - Construction d’une Maison Assistance Maternelle

• La Seyne – Ecole élémentaire et maternelle Mabily Verne

• La Seyne – Appel à projet en vue de la cession de l'ancien collège Wallon

• Solliès-Toucas –Construction d’un groupe scolaire

• Toulon – Requalification de l’anse Tabarly et de la base Nautique

• Var Aménagement Développement – Nouveau restaurant « La Ligurienne » sur la base navale de Toulon

• Var Habitat - Jury Le Val 8 logements et locaux terra rossa

• Var Habitat - Réhabilitation et requalification de 122 logements collectifs « Le Guynemer » à Toulon

• Var Habitat – 27 logements collectifs « Résidence Publica » à Six Fours

• Var Habitat - 19 logements collectifs «Clos Monin» à La Valette

ACCOMPAGNER LES ACTIONS DES PARTENAIRES

La difficulté pour le CAUE réside dans l’ampleur de la mission qui lui est confiée par la loi de 1977 et ses prolongements. Celle-ci, ainsi que les actions qui en découlent, couvre un champ vaste et s’adresse à un public particulièrement diversifié.

C’est pourquoi le CAUE du Var déploie une politique partenariale claire, orientée vers des acteurs partageant des objectifs communs, des valeurs similaires et des publics cibles convergents. À travers cette démarche, il initie, soutient, accompagne, enrichit ou participe à de nombreuses actions et initiatives, contribuant ainsi activement à faire avancer les sujets d’actualité dans ses domaines de compétence.

Ces partenaires sont principalement des acteurs locaux impliqués dans la fabrique des territoires, mais aussi des interlocuteurs à l’échelle régionale ou nationale.

Dans un contexte de plus en plus contraint et complexe en matière d’aménagement du territoire – qu’il soit bâti, paysager, urbain ou sociétal – le CAUE du Var joue pleinement son rôle d’assemblier, facilitant les coopérations et favorisant les synergies.

Le CAUE Var a été invité au Salon Horizon Climatique, le 02 octobre à Toulon au Palais du Commerce et de la Mer organisé par la Chambre de Commerce et d'Industrie du Var.

Intervention sur le thème « Comment rendre une architecture résiliente ? »

Ce salon a pour but de favoriser les échanges entre acteurs et structures, permettant de développer la culture des gérants d’activités économiques sur les risques naturels et technologiques et ainsi de se préparer à la survenance d’une catastrophe. Lors de cet évènement, le CAUE a été invité à identifier les nombreux risques naturels, illustrés par différents projets d’aménagements architecturaux et paysager résilients sur le territoire varois afin de répondre à la question : Comment faire projet avec le risque ?

Cette réflexion s’est également portée à l’échelle du territoire, les leviers d’actions à développer notamment sur l’aspect administratif pouvant s’appliquer dans les règlement d’urbanisme.

Rendez-vous à la derniere page du rapport d'activité pour décourvrir la liste de nos partenaires et prestataires, qui construisent à nos côtés la fabrique du territoire.

Le Fonds Vert

En 2024, le CAUE a perçu le solde de la subvention du Fonds Vert, en reconnaissance des actions engagées dans le cadre de 19 de ses missions. Celles-ci ont porté sur plusieurs thématiques prioritaires : la renaturation des villes, le développement du covoiturage et le recyclage des friches.

Ces interventions s’inscrivent pleinement dans les axes stratégiques du Fonds Vert : "Adapter les territoires aux changements climatiques" et "Améliorer le cadre de vie".

CONSEILLER LES PARTICULIERS

CONSEILLER LES PARTICULIERS DANS LEUR PROJET DE CONSTRUCTION, RÉNOVATION ET EXTENSION

Les architectes conseillers missionnés sur le territoire (au CAUE, en collectivités, …) ont pour mission de recevoir le public pour l’accompagner dans leur démarche de projet, d’émettre un conseil et une aide à la décision à toutes les phases du projet et de conseiller les élus et services sur les projets de la collectivité.

Le CAUE apporte les compétences nécessaires pour apprécier la qualité architecturale et paysagère des projets et leur intégration à leur environnement. Cet apport est précieux dans un contexte où les politiques publiques et l’environnement juridique et réglementaire se complexifient et sont en constante évolution.

112

CHIFFRES CLÉS

RENDEZ-VOUS CONSEIL AU CAUE VAR

«Lacréationarchitecturale,laqualitédesconstructions, leur insertion harmonieuse dans le milieu environnant, lerespectdespaysages,naturelseturbainsainsiquedu patrimoinesontd’intérêtpublic.Envuedepromouvoir laqualitédel’architectureetdesonenvironnement,le CAUEVarmetàdispositiondesArchitectesConseillers».

(loi du 3 janvier 1977)

3255

DOSSIERS CONSEILLÉS

30

RENDEZ-VOUS CONSEIL

AU PNR ST BAUME

CONSULTANCES ARCHITECTURALES & PAYSAGÈRES SUR LE TERRITOIRE DU PARC NATUREL RÉGIONAL DE LA SAINTE-BAUME

Le CAUE Var, en partenariat avec le Parc naturel régional de la Sainte Baume, a mis en place un dispositif de permanences de conseil à destination des particuliers et des collectivités.

Dans les communes faisant partie du territoire du Parc, le CAUE Var propose des permanences architecturales et paysagères pour conseiller gratuitement les particuliers dans leurs projets de construction, d’extension, de réhabilitation ou d’aménagement extérieur.

Le CAUE s’est déplacé dans plusieurs communes en 2024 pour un total de 30 rendez-vous avec des particuliers souhaitant être conseillés sur leurs projets d’aménagement architectural ou paysager.

RENCONTREZ UN ARCHITECTE CONSEILLER AU CAUE VAR !

LIEUX DE PERMANENCES

DÉCENTRALISÉES DU CAUE VAR EN 2024

LES PERMANENCES EN COMMUNES

Bandol

Cavalaire

Draguignan (SPR & OPAH)

La Cadière d’Azur

La Farlède

La Seyne-sur-Mer

Le Beausset

Le Lavandou

Le Plan de la Tour

Le Pradet

Le Val Nans-les-Pins

Pourrières

Ramatuelle

LES PERMANENCES DANS LES TERRITOIRES

• Communauté de communes Coeur du Var

Besse sur Issole, Cabasse, Le Cannet des Maures, Carnoules, Flassans sur Issole, Le Luc en Provence, Gonfaron, Les Mayons, Pignans, Puget-ville, Le Thoronet.

Lieu des permanences : Le Luc-en-Provence.

LES PERMANENCES DANS LES SALONS

• Salon de la rénovation énergétique à la Crau

Avril 2024

• Salon économie durable en Dracénie

Juin 2024

Roquebrune-surArgens

Saint-Cyr-sur-Mer

Saint-Raphaël

Saint-Tropez

Sanary

Six-Fours

Toulon (au siège du CAUE)

Vidauban

• Parc Naturel de la Sainte-Baume

La Roquebrussanne, Le Castellet et Rougiers.

• Salon des Écotidiens en Coeur du Var

Septembre 2024, organisé à Gonfaron

• Salon « Eco-habitat » au Cannet-des-Maures

Au Cannet-des-Maures (100 personnes)

NOTER UNE PERMANENCE CONSEIL AU CAUE LE 16/06/2024

avec Mme Lucrezia MOTHERE, Avocate ; Loic FRAYSSINET, Ingénieur thermicien ; Maxime ANTON, architecte conseiller CAUE et Pierre DAVID, paysagiste conseiller du CAUE Var

FOR MER

FORMATION DES PROFESSIONNELS ET DE TOUS LES PUBLICS

Affirmation et confortement de la mission de formation

7 sessions de formation et de stage

UNE STRATÉGIE DE FORMATION ET D'AMÉLIORATION PARTAGÉE

Certification Qualiopi

Agrément CNFEL

Nous former ensemble aux défis d'aujourd'hui et de demain

FORMER LES PROFESSIONNELS ET TOUS LES PUBLICS

CHIFFRES CLÉS

7

SESSIONS FORMATIONS & STAGES

118

APPRENANTS STAGIAIRES

AFFIRMATION ET CONFORTEMENT DE LA MISSION DE FORMATION

En 2024, le CAUE Var a affirmé son rôle dans la formation et l'amélioration continue des acteurs de la fabrique des territoires.

Élus locaux, agents de collectivités, professionnels de la conception (maîtres d'oeuvres), professionnels de la réalisation (entreprises), gestionnaires d'espaces naturels et agricoles, équipes pédagogiques...

Tous ces publics jouent un rôle dans l'amélioration de notre cadre de vie et la transition écologique de nos territoires.

Une offre locale - au plus près des territoiresdiversifiée en sessions de stage et de formation est un maillon essentiel dans l'émergence de projets vertueux et d'une réflexion globale et partagée.

Les formateurs et formatrices sont soit des chargé.e.s de mission du CAUE Var (architecte, paysagiste, urbaniste) soit des experts thématiques extérieurs.

CHÂTEAUDOUBLE

TRANS-EN-PROVENCE

Séminaire à Toulon

TOULON
HYÈRES

Une excellente formation de par la qualité et la diversité des intervenants !

Participant à la formation "Réhabilitation énergétique en centre-ancien"

7 SESSIONS DE FORMATION, DE STAGE ET DE SÉMINAIRE

Stage pratique

"Pratiquer la pierre sèche" en Dracénie

En partenariat avec la Dracénie Provence Verdon

Agglomération (DPVA) et les muraillers locaux, 13 agents de collectivités ont été formés à la pierre sèche.

Formation

"Réhabilitation énergétique en centre ancien"

Les 3 sessions (36 apprenants sur l'année) de cette formation construire sur-mesure se sont tenues en avril, juin et octobre, en plein centre ancien de Toulon et avec des experts variés.

Journée d'information

Repenser les cours d'écoles

En partenariat avec l'Agence Régionale de la Biodiversité et de l'Environnement (ARBE PACA), le CAUE Var a animé une journée de partage dans la cour de l'école Godillot à Hyères.

Séminaire

À vos CervEAU !

En partenariat avec la Fédération Nationale des CAUE, 15 chargés de mission de plusieurs CAUE ont été formés à l'optimisation de la transmission via les neurosciences.

Stage d'études

Le paysage, l'élu.e et le projet local

En partenariat avec la Dracénie Provence Verdon

Agglomération (DPVA), un groupe de 13 élus locaux a été formé aux enjeux du paysage contemporain.

Formation "Le paysage, l'élu.e et le projet"
Une visite de cour-jardin
Chantier pierre sèche

PORTER UNE STRATÉGIE GLOBALE DE FORMATION

CERTIFICATION QUALIOPI

UNE RECONNAISSANCE DE L'EXIGENCE ET DE LA QUALITÉ DES FORMATIONS

L'année 2024 a été synonyme de validation de la qualité de nos formations et de la rigueur du suivi des apprenants, via la certification Qualiopi.

QUALIOPI, qu'est-ce que c'est ?

C'est une marque de certification qualité des prestataires de formation, certifiée par l'État, avec un référentiel national unique qui permet une exigence partagée pour le développement des compétences.

Les stagiaires peuvent ainsi bénéficier de fonds publics ou mutualisés (financement par un opérateur de compétences comme les OPCO ou le CPF, par l’État, par les régions, par la Caisse des dépôts et consignations, par France Travail ou par l’Agefiph).

Il est aujourd'hui le seul CAUE certifié Qualiopî en Région Sud PACA.

AGRÉMENT CNFEL

UN RELAI ET UN APPUI AUPRÈS DES ÉLUS LOCAUX

Le CAUE Var bénéficie de l'agrément par le CNFEL, le Conseil National de la Formation des Elus Locaux, renouvelé le 20 juillet 2023. A ce titre, il est un acteur important de la formation des élus locaux au plus près de leurs problématiques territoriales.

CNFEL, qu'est-ce que c'est ?

C'est une instance consultative placée auprès du ministre chargé des collectivités territoriales. Il délivre son agrément aux organismes publics ou privés, qui souhaitent dispenser une formation liée à l’exercice du mandat des élus locaux.

Les élus locaux peuvent choisir des formations qui correspondent à leurs enjeux locaux en étant financés par leur collectivité ou leur Droit Individuel à la Formation.

Le CAUE var sera présent dans le guide numérique des formations des élus locaux dès 2025 Il est aujourd'hui le seul CAUE agréé CNFEL en Région Sud PACA.

à Paris

Séminaire

Cette formation m'a permis d'améliorer la prise en compte des contraintes, d'imaginer des solutions pour le traitement des parois verticales et la mise en œuvre de système de ventilation en rénovation du bâti ancien.

Participant à la formation "Réhabilitation énergétique en centre-ancien"

DES THÈMES STRATÉGIQUE POUR L'ADAPTATION DE NOS TERRITOIRES

NOUS FORMER ENSEMBLE AUX DÉFIS D'AUJOURD'HUI ET DE DEMAIN

Le CAUE Var travaille aux côtés d'autres organismes de formation en région sur les thèmes de l'aménagement du territoire et de la transition écologique de nos territoires : EnvirobatBDM, le Domaine du Rayol, Le Gabion, l'École d'Avignon...

Intégré à cette mosaïque d'acteurs de la formation et de l'amélioration continue, le CAUE Var structure son offre selon 5 grandes orientations thématiques qui croisent les disciplines et les territoires :

FAIRE PROJET ENSEMBLE

Imaginer des projets communs, concertés et decidés avec toutes les parties prenantes : habitants, riverains, enfants, gestionnaires, élus locaux, techniciens... via des démarches concertée, co-conçues et coconstruites.

PRENDRE SOIN DE L’EAU

La prise en compte de l'eau dans l'aménagement, à toute les échelles : risque inondation et ruissellement, déconnexion des eaux pluviales, réusage de l'eau, sols perméables, restauration morphologique et écologique de cours d'eau, réflexion à l'échelle du bassin versant.

UTILISER DES ÉCO-MATÉRIAUX LOCAUX

Le recensement des ressources locales puisées dans le sol et sous-sol (pierre, terre, argile) et la biomasse (fibres végétales ou animales, bois) et leur mobilisation dans les projets locaux.

ACCUEILLIR LE VIVANT

Intégration des êtres vivants dans les projets locaux, écosystèmes, biodiversité ordinaire, sites naturels, bâtiments vivants, végétaux locaux et adaptés aux changements climatiques.

FAIRE AVEC LE DÉJÀ-LÀ

Intégrer le diagnostic et l'état des lieux systématique dans tout projet afin de composer avec les ressources existantes pour les projets à venir : sobriété foncière, recyclage foncier, réemploi / réutilisation / recyclage de matériaux de construction, non imperméabilisation des sols.

Formation à Toulon

ZOOM SUR UN SÉMINAIRE À VOS CervAUE !

OPTIMISER LA TRANSMISSION DE L'AUE GRÂCE AUX NEUROSCIENCES

En novembre 2024, le CAUE Var a mené une journée de séminaire. Le programme s'appuie sur les études récentes des neurosciences afin de comprendre comment le cerveau humain apprend et comment rendre nos moments de transmission plus efficaces.

Ce séminaire a pour objectif de transmettre ces découvertes pour les appliquer aux missions de transmission et d'accompagnement menées par les CAUE.

IDENTIFIER LES MODES D'APPRENTISSAGE

LES PLUS EFFICACES

Cette journée propose des outils concrets pour capter et garder l’attention des publics, les aider à mémoriser les connaissances transmises et favoriser des échanges constructifs lors des temps de concertation.

Le public ciblé est :

- Chargé.e.s de mission Architecture, Urbanisme et Paysage ;

- Chargé.es de mission Sensibilisation ;

- Médiateurs.rices/Animateurs.rices d’ateliers, visites

- Animateurs.trices de concertation, coconstruction

- Chargé.es de formation, formateurs

- Tout autre poste qui a la tâche de transmettre des connaissances

TESTER DES OUTILS ACTIFS

RENCONTRER UN EXPERT CONSTRUIRE UNE ACTIVITÉ PÉDAGOGIQUE EN GROUPE

ZOOM SUR UNE FORMATION RÉHAB' ÉNERGÉTIQUE EN CENTRE ANCIEN

MENER DES PROJETS EN FAVEUR DU CONFORT RÉEL ET DES PERFORMANCES DU BÂTIMENT ANCIEN

Cette formation a été élaborée par le CAUE Var et Samuel Courgey afin de répondre aux enjeux et défis contemporains qu’impliquent les centres anciens de nos villes et de nos villages.

Elle a pour objectif d’accompagner les techniciens et les professionnels de la conception dans leurs projets de réhabilitation énergétique en centre ancien, en leur fournissant à la fois une vision globale des leviers d’actions et des exemples et des focus techniques précis.

Cette formation s’inscrit dans l’accélération de la transition écologique et dans les objectifs de réduction de la consommation énergétique dans nos territoires.

Les objectifs sont :

- Comprendre ce qu’est la réhabilitation énergétique des bâtiments existants aujourd’hui et les solutions pour atteindre le niveau BBC «Bâtiment Basse Consommation»

- Connaitre la méthodologie spécifique pour réussir une réhabilitation énergétique

- Appréhender et connaître les spécificités des bâtiments anciens et celles des bâtiments patrimoniaux

- Engranger et assimiler de nombreuses solutions pour réhabiliter les bâtiments anciens et les amener vers un niveau de type BBC tout en respectant leurs spécificités

SENSI BILI SER

L'EXPOSITION 2024

"(Se) rencontrer ? le sens de nos lieux du quotidien"

Les évènements "(Se) rencontrer ?"

Mécenat et subventions

LES RENDEZ-VOUS DU CAUE

Les Journées Européennes du Patrimoine

Les Journées Nationales de l'Architecture

LE PRINTEMPS DU CAUE VAR

L'exposition du Printemps

Les évènements

Les évènements partenaires

LES MÉDIATIONS JEUNE PUBLIC

Les actions clés-en-main

Les médiations flash C'est mon patrimoine au CAUE Var

L'APPLICATION ARCHISTOIRE

Un outil au service des territoires

Archistoire en France et dans le Var en 2024

L'EXPOSITION, 2024

« (SE) RENCONTRER, LE SENS DE NOS LIEUX DU QUOTIDIEN »

Depuis 2018, la création d’expositions, fait entrer les arts dans les champs de la sensibilisation et la médiation au paysage, à l'urbanisme, à l'architecture, à l'environnement, au territoire et s’accompagne d’une programmation à destination de tous les publics. Cette année, la réflexion a été enrichie du regard d’une artiste photographe, Magali Paulin, dont l’arpentage du département et l’observation d’espaces communs a permis la sélection de vingt-huit photos.

Le thème de l’exposition 2024 a pour objectif d’interroger la sensorialité urbaine, les liens intimes qui peuvent exister entre les habitants et leurs espaces publics et en particulier, la nécessité de réinventer nos

relations aux lieux et au vivant dans nos espaces quotidiens. Comment reprendre « corps en ville » aujourd’hui ?

Pour accompagner la réflexion où le sens et les sens ont un rôle primordial, le CAUE Var a sollicité l’agence [S] CITY composée d’urbanistes, d’architectes, de chercheurs en sciences cognitives et d’ingénieur en design d’usage dont l’expertise est de penser les projets urbains et architecturaux en s’appuyant sur les sciences du cerveau et du comportement. En effet, leur démarche innovante et porteuse de sens confirme que notre usage d’un lieu est un atout dans la conception et que sans aucun doute sa matérialité à un impact sur la façon de le vivre.

L'intention derrière cette exposition était de révéler la diversité des expériences et les usages sensoriels qui témoignent de la nécessité de prendre en compte la subjectivité et le ressenti des habitants dans la fabrique de la ville ; afin de faire évoluer la ville « fonctionnelle» actuelle vers une ville « relationnelle ».

La scénographie proposait au public des expériences sensorielles variées, conçues avec une volonté de frugalité des matériaux, pour accompagner la série intégrale des photos de Magali Paulin dans les locaux du CAUE. La conception/réalisation a été assurée par l'équipe du CAUE en collaboration avec des étudiants stagiaires en design de l'ESAD TPM dans le cadre d'un partenariat reconduit d'année en année.

CHIFFRES CLÉS

LES ÉVÈNEMENTS "(SE) RENCONTRER "

4 ateliers écriture

Menés par Lucile Bordes, auteure

A partir des éléments de l'exposition et de photos inédites de Magali Paulin.

2 promenades architecturales

Menées par Delphine Ratier, architecte passionnée du patrimoine toulonnais, et portant sur la ville sensible, d'hier à aujourd'hui.

1 atelier design sensoriel

Mené par des étudiantes en Design de l'ESAD TPM et l'équipe du CAUE Var, à partir d'un projet partenarial autour des cours-jardins.

1 atelier photo

Mené par Magali Paulin, photographe de l'exposition.

2 marches exploratoires

Diagnostiquer l'espace par les sens depuis le centre de Toulon à SollièsPont.

3 tables rondes

1) La ville : fonctionnelle et relationnelle ?

- Cécile Mezger, Directrice de l'AUDAT Var

- Germain Prévost, Artiste plasticien

2) Espaces vécus : de la cour à l'espace public.

- Nadja Monnet, anthropologue

- Armelle Bénicourt, Gestalt thérapeute, psychologue clinicienne

3) Et si l'architecture faisait appel à nos sens ?

- Maurice Sauzet, Architecte

- Jean Lordet, habitant de "maisons Sauzet"

1 atelier jeune public

Atelier parent/enfant pour la réalisation d'un enduit/fresque en terre crue au CAUE, avec l'architecte enduiseuse Lydia Hareb

1 ciné-rencontre

Au cinéma municipal Henri verneuil à La Valette, en partenariat avec l'association Les Petits Ecrans. Film d'animation tous publics, "Linda veut du poulet" de Chiara Malta et Sébastien Laudenbach, suivi d'un échange.

3 conférences

- Emma Vilarem, chercheuse en neurosciences. Nos espaces essentiels : que disent-ils de nous ?

- Emeline Bailly, urbaniste chercheuse

Les enjeux d'une ville sensible

- Ivry Serres, architecte et Miguel Georgieff, paysagiste concepteur

Le sens comme matière de projet.

Atelier sensoriel

Mené par Armelle Bénicourt, Gestalt thérapeute et psychologue clinicienne, pour prendre conscience de son corps dans l'espace et la relation.

Médiations public scolaire

Des médiations ludiques à destination des publics scolaires pour découvrir l'exposition en jouant, en expérimentant la scénographie avec son corps.

LES RENDEZ-VOUS, DU CAUE

LES JOURNÉES EUROPÉENNES DU PATRIMOINE

les Journées Européennes du Patrimoine ont eu lieu les 20, 21 et 22 septembre 2024 , sur le thème du “Patrimoine des itinéraires, des réseaux et des connexions” et “Patrimoine maritime”. A cette occasion, les rendez-vous organisés par l'équipe du CAUE Var ont mobilisé des publics fidèles d'année en année.

A l’occasion de l’opération «Les enfants du Patrimoine», 2 classes varoises ont pu découvrir l’exposition « (Se) rencontrer ? » dans les locaux du CAUE Var.

Le CAUE Var a organisé plusieurs évènements :

- Promenades architecturales à Toulon : "Ville sensible d'hier à aujourd'hui".

- Portes ouvertes au Fort Lamalgue : "Architecture et fortifications en famille."

CHIFFRES CLÉS

195

ADULTES

53 SCOLAIRES

LES JOURNÉES NATIONALES DE L’ARCHITECTURE

Le week-end du 18 et 19 octobre 2024 ont eu lieu les Journées Nationales de l’Architecture. À cette occasion, l’équipe du CAUE Var a organisé des rencontres variées en lien avec l’exposition annuelle "(Se) rencontrer ? Le sens de nos lieux du quotidien".

CONFERENCE

COMMENT HABITER EN PRENANT SOINT ?

CINÉ-RENCONTRE

LINDA VEUT DU POULET !

PROMENADE ARCHITECTURALE

TOULON VILLE SENSIBLE

CHIFFRES CLÉS

72 ADULTES

1 conférence à Hyères organisée en partenariat avec le Service Patrimoine de la Ville de Hyères, pour se demander comment l'architecture peut prendre soin de l'environnement, des humains, des relations, de l'économie ?

1 ciné-rencontre à La Valette en partenariat avec l'association les Petits Ecrans, pour voir et commenter "Linda veut du poulet !" de Chiara Malta et Sébastien Laudenbach.

1 promenade architecturale menée par l'architecte Delphine Ratier, dans le centre ancien de "Toulon, ville sensible d'hier à aujourd'hui". Toujours un succès !

L'EXPOSITION EN ITINERANCE

ENTREZ DANS LA PIERRE...

A l'occasion d'une sollicitation de l'Abbaye du Thoronet (Monument National), le CAUE Var a organisé l'itinérance de l'exposition "Entrez dans la pierre... Un récit d'architectures varoises" (première mise en place à l'automne 2022) accompagnée de 3 jours de rendez-vous à destination de tous les publics, les 11, 12 et 13 octobre.

2 ateliers scolaires le vendredi pour découvrir l'architecture en pierre de l'abbaye à travers des activités ludiques et pédagogique, et des visites commentées.

1 atelier jeune public découverte de la construction en pierre de l'abbaye du Thoronet le samedi.

1 ciné-débat avec le film "Fernand Pouillon, l'architecte le plus recherché de France".

1 table-ronde "Regards croisés sur l'architecture en pierre" avec le photographe Aldo Moretti et les commissaires d'exposition Véronique Hours et Fabien Mauduit.

1 temps musical, par la soprano Adèle Pons et la flûtiste Meillane Willmotte, sur une composition contemporaine de Etienne Desaux, spécialement créée pour l'acoustique de l'abbatiale du Thoronet "Paraphrase sur Tu es Petrus".

LE PRINTEMPS DU CAUE VAR

L'ÉNERGIE EN TERRITOIRES, CONSOMMER MIEUX, PRODUIRE ICI, FAIRE PROJET ENSEMBLE

Pour son deuxième printemps, le CAUE Var propose trois mois d'exposition, de rendez-vous, d'ateliers, de formations et de conférences pour en savoir plus sur la question des énergies sur le territoire varois.

L'EXPOSITION DU PRINTEMPS

L’exposition "Des paysages pour demain" interroge les solutions que 15 des territoires ont inventées pour proposer un changement radical de leur façon de prévoir durablement l’habitat, les déplacements et l’agriculture, à partir de leurs ressources locales. Ces territoires nous invitent à faire évoluer nos paysages vers une qualité meilleure pour notre cadre de vie et pour la durabilité de nos territoires. Chacune de ces tentatives incarne un paysage de l’après-pétrole, qui donne une évidence à la transition sociétale en cours.

L’exposition a été préparée par le Collectif Paysages de l’après-pétrole (PAP), qui milite pour une transition de notre société vers un modèle équilibré et durable, en s’appuyant sur l’approche paysagère, démarche qui consiste à trouver une juste articulation dans le temps et l’espace entre les ressources naturelles et les organisations humaines.

LES ÉVÈNEMENTS DU PRINTEMPS

2 tables-rondes :

- La transition énergétique chez moi ?

Comment opérer la transition énergétique à l’échelle de notre logement et de notre quotidien. Comment réduire ses factures et son empreinte écologique ? Comment repenser son habitat pour mieux consommer l’énergie ?

- La transition énergétique dans ma commune ?

Comment opérer la transition énergétique à l’échelle de notre territoire communal et de notre bassin de vie. Comment optimiser la consommation énergétique collective ? Comment produire localement de l’énergie ? Quels outils et levier public utiliser pour accompagner les collectivités et ceux qui les font vivre (habitants, entreprises, touristes, agriculteurs, propriétaires) dans la transition écologique ?

LES ÉVÈNEMENTS PARTENAIRES

Ciné-rencontre : Avant-première du film "Toucher terre" de Jérémie Basset & amàco, partenariat Les Petits Ecrans.

A destination du grand-public.

Séminaire FNCAUE : Les cours d'école à la loupe. Travail fédéral du groupe "prospective" sensibilisation.

Congrès des paysagistes : Paysage, source de richesses ?

A destination des professionnels du paysage.

Les 48h de l'agriculture urbaine à Toulon : Promenade paysagère dans Toulon

A destination du grand-public

Fête de la nature à Collobrières : Atelier découverte de la construction en terre crue

A destination du grand public (100 personnes)

4 ateliers découverte de la construction biosourcée et géosourcée

- 1 atelier vannerie d'ombrières en cannes de Provence : une journée d’atelier vannerie pour fabriquer des protections solaires en cannes de Provence. Renouer avec une ressource locale récoltée et transformée à la main, adaptée à son climat et stockant du carbone, pour rafraichir nos villes et villages sans consommer d’énergie ! menée par l'atelier MARE et le Collectif SAFI.

- 3 ateliers construction en terre crue et fibres végétales : comprendre les terres à bâtir, expérimenter le torchis, la fabrication d'abobes, le dressage d'enduit, le pisé, la bauge.

1 promenade paysagère

Ville fertile ! A l’occasion des 48 heures de l’agriculture urbaine, une promenade guidée par un paysagiste du CAUE Var dans la « ceinture verte » de Toulon, entre le quartier de la Loubière et la mer.

1 conférence

Imaginer les paysages de l'après-pétrole, par Jean-Pierre Thibault, président du collectif PAP, réseau national et organisme de formation sur la transition énergétique.

Vannerie en cannes de Provence

CHIFFRES CLÉS

600 VISITEURS TOUT PUBLIC

LES MÉDIATIONS

JEUNE PUBLIC & GRAND PUBLIC

LES MÉDIATIONS "FLASH"

Depuis le renforcement de l’équipe, il est devenu possible pour le pôle sensibilisation de proposer des actions au plus près des publics et des contextes d’intervention. Toutes les actions sont initiées par la sollicitation spontanée d’un public. Elles sont conçues pour s’adapter au contexte et peuvent être développées pour ensuite devenir des actions clés en main.

Ateliers construire en terre crue - Fête de la science

Activités pratiques et expériences pour comprendre la composition et les techniques de construction en terre crue et fibres végétale.

4 journées d'ateliers pour des élèves de primaire à Toulon et à La Seyne.

Accompagnement ESAD TPM - Section Design

Ateliers écriture et illustration pour adapter le conte des Trois petits cochons aux enjeux actuels de l'architecture.

2ème année de l'ESAD TPM, Toulon.

Présentation métiers AUE

Présenter les métiers de l'architecture, de l'urbanisme et du paysage à des élèves en décrochage scolaire.

1 classe du dispositif SAS, collège D. Reinhardt, Toulon

Rencontre des eco-délégués de l'Académie de Nice

Ateliers sur les enjeux de la ville de demain en visio puis lors d'une rencontre en présentiel à l'INSPE

Draguignan.

Les eco-délégués de l'Académie de Nice.

Construire en terre crue & fibres végétales

Accompagnement d'un projet de l'équipe pédagogique de technologie et de SEGPA pour fabriquer des adobes moulées.

6 classes de 5ème technologie, collège Villeneuve, Fréjus

2 classes de SEGPA, collège Villeneuve, Fréjus

Ciné-débat "Fernand Pouillon, l'architecte le plus recherché de France".

250 personnes au Cinéma Le Royal, Toulon.

Ateliers arts plastiques LA FABRIQUE

Créations in situ en "déchets de construction" avec la plasticienne Pauline Léonet pour l'exposition "La Fabrique Ceci n'est pas un déchet".

27 élèves de CM2, Primaire Fort Rouge, Toulon

26 élèves de CM1, Val Fleuri, Toulon

Présentation métiers AUE

Présenter les métiers de l'architecture, de l'urbanisme et du paysage à des élèves en décrochage scolaire.

27 élèves du collège Ravel à Toulon.

Aménagements paysagers au lycée

Chantier de jardinage du parc du lycée, à l'initiative des enseignants du groupe "Dumont en transition".

45 élèves du Lycée Dumont D'Urville, Toulon.

Découverte de la construction en terre crue FAC Toulon

Pour les équipes techniques et enseignantes du campus universitaire de Toulon-La Garde

40 personnels de l'université.

ADIR Beaulieu

Création d'un jardin potager et d'une fresque en terre crue avec les enfants résidants à l'internat Beaulieu de l'ADIR.

16 jeunes atteints de pathologies psychotiques, Toulon

Petit déjeuner du réemploi RAEDIVIVA

Atelier découverte de la construction en terre crue. 15 personnes du réseau Raediviva, Jardin Urbavar, La Garde.

Fresque en terre crue à Collobrières

Réalisation d'une fresque en terre crue locale et fabrication d'adobes avec des enfants en vacances de 6 à 14 ans (enduits et peinture à l'argile).

13 enfants du centre de loisirs de Collobrières.

Promenade architecturale art-déco, moderne, postmoderne

Lecture des styles architecturaux à Toulon

25 élèves du lycée Voltaire

Accompagnement ESAD TPM - Section Design

Accompagnement d'un module pédagogique Design dans une cour-jardin accompagnée par le CAUE Var. 2ème année de l'ESAD TPM, Toulon.

Salon "Eco-habitat"

Table-ronde et atelier construire en torchis.

200 personnes au Cannet-des-Maures.

Salon "Eco-tidien"

30 personnes au Gonfaron

Salon "Ville Basse Température"

300 personnes à Cuers

Collobrières

Gondwana, la fête des plantes méditerranéennes

50 personne au Domaine du Rayol, Le Rayol-Canadel-surMer

Assises Nationales de la construction en terre crue

Stand et présentation des actions CAUE pour la diffusion des techniques et enjeux de la construction en terre crue dans le Var.

200 participants du réseau national, à Marseille.

Colloque du laboratoire Babel

Présentation de la construction en matériaux locaux biosourcés et géosourcés.

50 étudiants et enseignants à la FAC de Droit, Toulon.

Visite commentée expo "(Se) Rencontrer?"

Médiation ludique et sensorielle 15 personnes en échange TVT innovation - Mannheim

Visite commentée expo "(Se) Rencontrer?"

Médiation ludique et sensorielle. 11 étudiants en design d'espace, Antibes.

Visite commentée expo "(Se) Rencontrer?"

Médiation ludique et sensorielle. 10 enseignants des établissements scolaires de TPM.

Atelier ruche en terre & paille

Atelier recherche et développement pour la création d'une ruche de biodiversité en matériaux de site. 25 enfants en stage à la ferme pédagogique le Jardin des 4 saisons, Solliès Pont.

Conférence Sébastien Marot

30 personnes, musée ATP, Draguignan.

Solliès-Pont

LES MEDIATIONS GRAND FORMAT (ÉDUCATION NATIONALE)

Dans son panel d’actions de sensibilisation, le CAUE VAR propose des ateliers longs en milieu scolaire (3 à 5 demijournées), conçus, construits et mis en place par nos experts, en étroite collaboration avec l'Education Nationale. Chaque déploiement d’une action "grand format", fait l’objet d’une adaptation des contenus au contexte et au public.

Comme chaque année en partenariat avec l’Inspection académique du Var, le CAUE VAR a organisé et financé un programme d’actions de sensibilisation à l’Architecture, l’Urbanisme et les Paysages à destination des enseigants (de la maternelle au lycée) ayant un projet pédagogique autour de l'architecture, de l'urbanisme ou du paysage.

Durant l’année scolaire 2023-2024, le CAUE VAR a réalisé des ateliers "grand format" auprès de 49 classes du département :

Ecoconstruire aujourd'hui pour demain.

3 classes, maternelle Alexis Godillot, Hyères

5 classes, maternelle Brunet Barentine, Toulon

2 classes, école Paul Long, Hyères

1 classe, école Maurice Delplace, La Garde

1 classe, école Val Fleuri, Toulon

7 classes (5ème), collège Villeneuve, Fréjus

1 classe (3ème), collège Pierre Puget, Toulon

Suite d'une mission conseil à Cotignac

1 classe de CM1/CM2, école de Cotignac

Des ateliers avec les paysagistes ayant accompagné la mairie de Cotignac pour réfléchir au devenir de l'école maternelle.

Imaginer la ville du futur

2 classes de CM2, Ecole Jean Jaurès, Cuers

2 classes du collège de Cuers

Lire l'évolution urbaine de Draguignan

1 classe de CE2, école Jules Ferry, Draguignan

Découvrir l'éco-quartier Chalucet

1 classe de CM2, école St John Perse, Hyères

Comprendre le hameau des Sablettes

1 classe CE2, école Jean Jacques Rousseau, La Seyne

Comprendre le collège et son milieu

1 classe 5ème, collège Le Vigneret, Le Castellet

Décoder la Batterie du Cap Nègre

1 classe CE2/CM1, école Simone Veil, Ollioules

Gérer une aire terrestre éducative

1 classe, école Paul Barles, St Maximin

Repenser les devantures en zone commerciale

1 classe 1ère, lycée pro St Exupéry, Saint Raphaël

Penser sa cour-jardin

Groupe scolaire (entier), Le Brusquet, Toulon

Eco-délégués, collège La Guicharde, Sanary

Découvrir les paysages varois

Sainte Baume : 1 classe, école Val Fleuri, Toulon

Mont Faron : 1 classe, école fort Ste Catherine, Toulon

Abbaye du Thoronet 1 classe, école auguste carbonnel, Vidauban

Apprendre les courants architecturaux 1 classe, école Bon Accueil, Toulon

19 COMMUNES 21 PROFESSIONNELS

49 CLASSES RETENUES 1721 ENFANTS SENSIBILISÉS

La Garde
Hyères
Saint Raphaël

C'EST MON PATRIMOINE AU CAUE VAR

L’opération, « C’est mon patrimoine » !, lancée par le Ministère de la Culture, porté par la DRAC PACA, permet à des jeunes de 6 à 18 ans hors temps scolaire, éloignés de la culture, de renforcer leur appropriation et leur goût du patrimoine et des arts et d’enrichir leurs connaissances. L'objectif était de faire découvrir aux enfants le patrimoinde bâti en terre crue en les initiant aux techniques de construction.

Centre de loisirs Les Oeillets à Toulon

L’objectif de la semaine était de faire découvrir à partir de la construction d’une cabane dans la cour, le bâti en terre crue et ce que peut apporter ce matériau dans l’architecture.

Construction de la structure de la cabane en branches élaguées dans la cour de l'établissement scolaire.

Compréhension de la composition de la terre. Tamisage.

Mélange foulé aux pieds pour la préparation de la bauge et du torchis.

Façonnage et maconnerie de la bauge, puis application du torchis.

Présentation de la construction aux parents en fin de semaine.

Centre de loisirs à Collobrières

Réalisation d'une fresque en terre crue avec un groupe d'enfants en vacances au centre de loisirs de Collobrières.

La terre a été prélevée sur le chantier de la future salle polyvalente de la commune.

Les enfants ont appris à tester la terre, ils l'ont tamisée puis mélangée à de l'eau pour en faire des briques et de l'enduit.

Application du corps d'enduit puis de l'enduit de finition. Dessin de la fresque par les enfants, inspirée des paysages de Collobrières, massif des Maures.

Fabrication de la peinture naturelle à l'argile verte et blanche + colle de farine. Puis application "a fresco" sur l'enduit de finition.

Modelage de bas reliefs puis fixation sur la fresque.

L'APPLICATION, ARCHISTOIRE

ARCHISTOIRE ET LE CAUE VAR AU CŒUR D’UN PROJET EUROPÉEN

Le Conseil départemental du Var s’est rapproché du CAUE Var, reconnu pour son expertise en matière de parcours de découverte dématérialisé du territoire via l’outil Archistoire.

Dans le cadre de son implication dans un projet européen, le Département du Var participe en tant que partenaire au projet VIA PATRIMONIA ACT – « La voie du réseau pour la valorisation soutenable et inclusive des itinéraires accessibles de l’aire de coopération ». Ce projet stratégique transfrontalier a pour ambition de définir et de mettre en œuvre une feuille de route pour le réseau Via Patrimonia. L’objectif est d’améliorer les politiques publiques et de développer des itinéraires transfrontaliers, en promouvant un tourisme responsable et inclusif, respectueux de l’environnement naturel et culturel, tout en soutenant l’économie locale.

Dans cette optique, le Département a souhaité associer le CAUE Var à un appel à projets destiné aux collectivités varoises, visant la création de trois parcours numériques ainsi que l’animation de tables consultatives tout au long de la durée du projet européen.

Par ailleurs, le CAUE Var a récemment édité un nouveau parcours intitulé « Entre Provence et Verdon », en partenariat avec la Communauté de communes Provence Verdon, le Syndicat mixte Provence Verte Verdon, le label Ville d’art et d’histoire, et la Région.

Un travail a également été amorcé avec la Ville de La Seyne-sur-Mer, portant sur un parcours numérique retraçant l’histoire des chantiers navals, dont la publication est prévue courant 2025.

UNE ASCENSION AU NIVEAU NATIONAL

Le CAUE Var a contribué à l’organisation d’un séminaire de deux jours visant à définir une stratégie de développement national pour l’application Archistoire. L’objectif : renforcer sa visibilité, élargir son audience et favoriser son déploiement à l’échelle nationale. Ce travail a été mené en collaboration avec une agence spécialisée en communication et stratégie pour les organismes publics.

En 2024, près de 90 stories sont disponibles sur la plateforme (soit une trentaine de plus qu’en 2023), permettant à un large public de découvrir et d’explorer de manière interactive et pédagogique les richesses de nos territoires.

Parmi les nouveautés, cinq stories sont consacrées à des architectures labellisées « Architecture contemporaine remarquable » (ACR), mettant en valeur 102 bâtiments construits au cours des 100 dernières années. Ces réalisations illustrent l’intérêt que porte le ministère de la Culture à cet outil innovant, conçu dans le Var.

IN FOR MER

INFORMER NOS PUBLICS

Rendre accessible nos locaux Assurer une veille et une observation documentaire

COMMUNIQUER AUPRÈS DES PUBLICS

Plan de communication

La Com' en chiffres

RÉSEAU DES CAUE

Groupes de travail à la Fédération des CAUE La mutualisation à l'oeuvre

INFORMER, NOS PUBLICS

RENDRE ACCESSIBLE NOS LOCAUX

Découvrir les architectures et les métiers. Porter un regard plus averti sur les richesses et les contraintes du territoire varois. Comprendre l'évolution du cadre de vie. Prendre sa place dans la transition écologique... Tout au long de l'année le CAUE Var propose des rendez-vous pour informer, rendre plus curieux, plus sensibles, accompagner, impliquer l'ensemble de ses publics varois.

Au-delà de l’action menée sur le territoire, 2024 fut une année marquée par une fréquentation particulièrement forte de nos locaux et de nos actions. Nos actions dans nos espaces au cœur du centre-ville de Toulon, pleinement investis depuis 2022, continue de porter ses fruits. Elle nous offre une visibilité accrue, tout en nous engageant à développer toujours plus notre attractivité auprès des publics.

En 2024, nos objectifs étaient d’informer nos publics avec une approche adaptée à chacun, utiliser des canaux de diffusion spécifiques, et renforcer l’impact de nos actions d’information.

Nous avons également mis l’accent sur l’implication de tous dans la fabrique du territoire, en proposant des formats diversifiés, des temps d’échange, et des ressources accessibles.

Cette dynamique est en parfaite cohérence avec la mission confiée aux CAUE par la loi sur l’architecture de 1977 : Développer la culture architecturale, urbaine et paysagère ; susciter l'intérêt du public autour de nos thématiques ; créer des espaces de dialogue et d'échange, valoriser des démarches ou des réalisations de qualité.

Dans la continuité des expérimentations entamées en 2023, nous avons poursuivi l’ouverture de nos locaux les samedis, sur deux périodes : de mi-février à fin juin, puis de mi-septembre à mi-décembre.

Ces temps complémentaires nous permettent de toucher de nouveaux publics, de diversifier les moments de rencontre, et d’inscrire nos actions dans un rythme plus large et plus accessible. 760 OUVRAGES DANS LA MÉDIATHÈQUE

CHIFFRES CLÉS

NOUVEAUX OUVRAGES EN 2024

ASSURER UNE VEILLE ET UNE OBSERVATION DOCUMENTAIRE

En 2024, le CAUE Var renforce son engagement en faveur de la diffusion de la culture architecturale, urbaine et environnementale, en enrichissant continuellement son fonds documentaire.

De nouveaux ouvrages viennent compléter les collections existantes, abordant des thématiques variées.

Le public est accueilli dans notre espace dédié, avec salle de lecture et de consultation, propice à la découverte et à l’étude.

L’ensemble du catalogue est accessible via la médiathèque en ligne, disponible sur notre site Internet : www.cauevar.fr.

La rubrique jeunesse, destinée aux 3-12 ans, continue de s’étoffer avec des titres ludiques et pédagogiques, pour sensibiliser les plus jeunes à leur cadre de vie dès le plus jeune âge.

Informer et communiquer

COMMUNIQUER, AUPRÈS DES PUBLICS

Dans le cadre de la mission information, 2024 inscrit dans la continuité de l'année 2023, avec une visibilité accrue de nos missions originelles.

Le CAUE Var a poursuivi le développement d’une communication institutionnelle structurée, visant à valoriser ses missions, renforcer sa visibilité et entretenir une relation de proximité avec ses publics : le grand public, les collectivités et les professionnels du cadre de vie.

Ainsi, l’association se positionne comme un des experts de l’AUE, référent sur le territoire varois.

L'appui du Conseil d’Administration et de l'Assemblée Générale dans l’évolution de nos outils de communication, nous a permis une politique plus prégnante avec des apports non négligeables.

La transversalité des membres de l'équipe nous offre aussi la possibilité d'avoir une communication nourrie des compétences de chacun

CHIFFRES CLÉS

1750

ABONNÉS SUR FACEBOOK

1037

ABONNÉS LINKEDIN

2352 ABONNÉS INSTAGRAM

L’un des axes majeurs de cette stratégie repose sur la production de documents informatifs et pédagogiques. Ces supports permettent de diffuser des connaissances, de sensibiliser aux enjeux de l’aménagement du territoire et de répondre aux attentes variées des différents acteurs.

La communication du CAUE Var vise également à fidéliser ses publics. Les événements organisés tout au long de l’année sont pensés comme des moments de rencontre marquants, renforçant le lien avec les visiteurs et incitant au maintien du contact.

Afin de promouvoir ses actions, le CAUE Var entretient des relations presse régulières. Un partenariat avec la Ville de Toulon a permis de déployer une communication dans l’espace public grâce à des supports d’affichage urbain offrant une visibilité accrue lors des temps forts de l’année.

Le CAUE Var utilise également des outils de marketing direct et de communication hors-média. Sa newsletter mensuelle, adressée à un réseau d’abonnés ciblés, informe sur l’actualité de la structure. Elle comprend également une veille juridique très appréciée des professionnels de l’aménagement et de l’urbanisme.

Parallèlement, la présence du CAUE Var sur les réseaux sociaux s’est consolidée : Facebook et Instagram pour le grand public, et LinkedIn pour une communication orientée vers les professionnels. Cette année, une stratégie d'influence a été mise en place avec des créateurs de contenus locaux, mobilisant un public nouveau.

23404

COMPTES TOUCHÉS

709 CLICS SUR UN LIEN

1621

INTERACTIONS DIGITALES

74 NOUVEAUX FOLLOWERS

3424 VISITES DE PAGES

111 PUBLICATIONS EN 2024

4324

COMPTES TOUCHÉS

220 CLICS SUR UN LIEN

918

INTERACTIONS DIGITALES

569 NOUVEAUX FOLLOWERS

3240

VISITES DE PAGES

55 PUBLICATIONS EN 2024

RÉSEAUX, DES CAUE

LE CAUE VAR AU SEIN DU RÉSEAU DES CAUE ET DE LA FNCAUE

Le CAUE Var s’inscrit pleinement dans la dynamique nationale portée par la Fédération Nationale des CAUE (FNCAUE), association loi 1901 créée le 9 mai 1980. Celle-ci regroupe l’ensemble des CAUE adhérents, représentés par leurs président·e·s. La fédération a pour missions de représenter, promouvoir, mutualiser, diffuser et défendre les valeurs et actions du réseau à l’échelle nationale.

Véritable lieu d’échange, de capitalisation et de mutualisation des pratiques, la FNCAUE anime le réseau, fournit un appui juridique à ses membres, coordonne des productions communes, et joue un rôle actif dans les concertations nationales liées aux enjeux du cadre de vie. Elle organise également des événements (colloques, congrès, rencontres) et développe des partenariats institutionnels. Par ailleurs, elle assure une veille législative et réglementaire bénéfique à l’ensemble des CAUE.

En 2024, le CAUE Var a participé activement aux travaux des trois pôles de missions définis au niveau national :

- Sensibilisation

- Conseil

- Formation

Il a également pris part à quatre groupes de travail thématiques :

- La vie des lieux de diffusion culturelle

- La gratuité et le financement des CAUE

- La formation des élu·e·s

- L’innovation autour des cours d’école

Ces groupes de travail ont abouti à plusieurs actions et productions collectives majeures au sein du réseau des CAUE :

Une charte nationale de la sensibilisation a été rédigée afin de positionner la sensibilisation comme un levier essentiel de prise de conscience et de responsabilisation dans les actions liées à l’aménagement du cadre de vie.

Un inventaire national des expositions réalisées ou soutenues par les CAUE a été élaboré, dans le but de valoriser la richesse et la diversité des outils de médiation culturelle déployés sur le territoire.

Un forum national sur la renaturation des établissements scolaires, de la maternelle au lycée, a été organisé. Il a permis de partager méthodes, outils et retours d’expériences en matière d’intervention sur ces espaces éducatifs.

Le programme de formation « Le·la élu·e, le paysage », destiné aux collectivités locales, a été généralisé à l’échelle nationale, afin d’accompagner les élu·e·s dans leur compréhension et leur action en faveur du paysage.

Une enquête nationale sur le financement des CAUE a été menée, accompagnée d’une action de sensibilisation et d’interpellation des ministères, afin de garantir des moyens pérennes au service de leurs missions d’intérêt général.

L’application numérique Archistoire a fait l’objet d’un déploiement renforcé sur l’ensemble du territoire, contribuant à l’élargissement de l’accès au patrimoine et à la valorisation des territoires.

Enfin, les travaux ont été engagés pour la rédaction d’un guide national d’ingénierie du conseil en CAUE, qui sera publié en 2026 à destination des futur·e·s élu·e·s municipaux, dans la perspective du prochain renouvellement des équipes locales.

COOPÉRATION INTER-CAUE EN RÉGION SUD

Dans une volonté de renforcement du réseau régional, le CAUE Var a participé à quatre rencontres avec les CAUE des départements voisins (05, 13, 84), dont une réunion régionale avec le CEREMA. Ces échanges ont permis de clarifier nos champs d’intervention respectifs et d’initier des synergies durables.

Le CAUE Var a également apporté son soutien au CAUE des Hautes-Alpes (05) dans le cadre d’une opération de sensibilisation sur la désimperméabilisation et les revêtements de sol, en lien avec l’édition de notre propre guide thématique.

UNE DYNAMIQUE DE RÉSEAU POUR DES ACTIONS LOCALES RENFORCÉES

L’ensemble de ces actions s’inscrit dans une volonté constante de renforcer la dynamique collective du réseau CAUE, d’enrichir nos pratiques par les retours d’expérience, et de développer des réponses innovantes et adaptées aux réalités locales. Ce travail en réseau vient ainsi renforcer l’ancrage territorial du CAUE Var, au service de ses partenaires et publics.

LE CAUE VAR

PRÉSENTATION DE LA STRUCTURE

L'historique

Les missions du CAUE

LE CONSEIL D'ADMINISTRATION

Les membres du Conseil d'Administration en 2023

LE RÉSEAU DU CAUE

VAR

Les prestataires

Les partenaires

Les mécènes

PRÉSENTATION, DE LA STRUCTURE

L'HISTORIQUE

Les CAUE, émanation de la Loi sur l’architecture du 3 janvier 1977, renforcés par divers textes législatifs depuis 2015 :

« L’architecture est une expression de la culture. La création architecturale, la qualité des constructions, leur insertion harmonieuse dans le milieu environnant, le respect des paysages naturels ou urbains ainsi que du patrimoine sont d’intérêt public...En conséquence (...) des Conseils d’Architecture, d’Urbanisme et de l’Environnement sont institués » (art. 1)

Le CAUE « fournit aux personnes qui désirent construire les informations, les orientations et les conseils propres à assurer la qualité architecturale des constructions et leur bonne insertion dans le site environnant, urbain ou rural, sans toutefois se charger de la maîtrise d’œuvre. » (art. 7).

Plus récemment, en matière de planification urbaine (Loi Solidarités et Renouvellement Urbain/SRU du 13 décembre 2000 (art. L-121.7 alinéa 3) : « Les communes ou établissements publics compétents peuvent avoir recours aux conseils du Conseil d’Architecture, d’Urbanisme et de l’Environnement lors

LES MISSIONS DU CAUE

de l’élaboration, de la révision ou de la modification de leurs documents d’urbanisme. »

Loi n° 2015-992 du 17 août 2015 relative à la transition énergétique pour une croissance verte.

Loi n°2016-925 du 7 juillet 2016 relative à la liberté de la création, à l'architecture et au patrimoine.

Loi n° 2016-1087 du 8 août 2016 pour la reconquête de la biodiversité, de la nature et des paysages.

Loi n° 2016-1888 du 28 décembre 2016 de modernisation, de développement et de protection des territoires de montagne.

Loi n° 2016-1917 du 29 décembre 2016 de finances pour 2017.

Décret n° 2017-1422 du 2 octobre 2017 relatif à la mise à jour du code de l'urbanisme concernant les obligations des bénéficiaires de la part départementale de la taxe d'aménagement.

Le CAUE Var a été créé en 1984 à l’initiative du Conseil général du Var. Son intervention, basée sur les thématiques de l’architecture, l’urbanisme et l’environnement est répartie en quatre grandes missions : Conseiller, Former, Sensibiliser et Informer.

AUPRÈS DU GRAND PUBLIC :

Fournir aux personnes qui désirent construire, les informations, orientations et conseils propres à assurer la qualité architecturale des constructions et leur bonne insertion dans le site environnant urbain ou rural, sans toutefois se charger de la maîtrise d’œuvre.

Développer l’information, la sensibilité et l’esprit de participation du public dans les domaines de l’architecture, de l’urbanisme et de l ‘environnement.

AUPRÈS DES PROFESSIONNELS :

Contribuer directement ou indirectement à la formation et au perfectionnement des maîtres d’ouvrage, des professionnels et des agents des administrations et collectivités intervenant dans le domaine de la construction.

AUPRÈS DES COLLECTIVITÉS (COMMUNES ET INTERCOMMUNALITÉS):

Vérifier l’opportunité et la faisabilité technique, financière, réglementaire des projets.

Aider à la formulation des objectifs, l’analyse des besoins et potentialités, la définition des programmes…

Guider dans les choix préalables de partis architecturaux, urbains et paysagers.

Évaluer l’impact du projet en termes paysagers, économiques, sociaux et culturels.

Indiquer les principes de maîtrise du projet tant dans sa conception que dans la gestion de son fonctionnement futur.

Participer à l’élaboration, la révision, la modification des documents d’urbanisme.

LE CONSEIL D'ADMINISTRATION

LES MEMBRES DU CONSEIL D'ADMINISTRATION AU 31 DÉCEMBRE 2024

Représentants de l’Etat, membres de droit :

La Cheffe de l'Unité Départementale de l’Architecture et du Patrimoine.

Le Directeur Départemental des Territoires et de la Mer. Le Directeur des Services Départementaux de l’Education Nationale.

Représentants élus des collectivités locales désignés par le Conseil départemental :

M. Marc LAURIOL, Conseiller départemental du Var, Président du CAUE Var et Chargé de mission auprès du Président du Conseil Départemental « aides financières et techniques aux communes»

Mme. Martine ARENAS, Vice-présidente du Département, présidente de la commission Environnement, espaces naturels sensibles (ENS) et maisons de la nature. Adjointe au maire de Puget sur Argens

M. Dominique LAIN, Vice-Président du Conseil départemental et Maire du Luc en Provence.

Mme. Chantal LASSOUTANIE, Conseillère départementale du Var et 1ère Adjointe au Maire de Brignoles

M. Christian SIMON, Maire de la Crau, Vice-Président de la Métropole TPM.

Mme. Laetitia QUILICI, Vice-Président du Département et Adjointe au Maire d’Ollioules

Représentants des personnes qualifiées, désignés par le Préfet :

M. Jean-Marc DELLUC, Fédération du BTP du Var.

M. Thierry BION, Chambre des métiers et de l’artisanat du Var.

Mme. Pascale BARTOLI, Présidente du Syndicat des Architectes du Var

M. Marc ESPONDA, Directeur de la maison départementale de l'habitat, de Soliha et de l'ADIL du Var.

Deux personnes qualifiées :

M. Franck CHAUVET, Representant de l’AVSANE.

M. Julien COMBES, Représentante du Conseil Régiobale de l'Odre des Architectes

Membres élus au scrutin secret par l’Assemblée Générale :

M. Jean-Luc COULOMB, Architecte

M. Christian LUYTON, Architecte-UrbanistePrésident d’honneur de la Société Française des Urbaniste (SFU)

M. Frédéric PASQUALINI, Architecte – Représentant de la Maison d’ Architecture et de la Ville PACA (MAV)

M. Arnaud AUTRIC, Murailler-Caladeur – Membre de la Fédération Française des Professionnels de la Pierre Sèche

M. Yannick RONZONI, Paysagiste concepteur et Viceprésident la Fédération Française du Paysage PACA

Corse

Représentant du personnel :

Mme. Mireille ALLEGRINI, salariée CAUE VAR

LE RÉSEAU, DU CAUE VAR

LES PRESTATAIRES EN 2023

Anima gestion, Annaloro Milena, APJS, Arch’, Asso Tanguy et Deschamps, Atelier aux iris, Atelier Mare, Aubert Déborah, Bailly Emeline, Benicourt Armelle, Bonifay Armelle, Bordes Luciles, Bresson Schindlbeck, Calvard Elodie, CCI Imprimerie, Ciné flex, COG X Simon Brazey, Confortini Vincent, Coup de crayon, Courguey Samuel, Culture Atout’s, Declik, De fil en paysage, Domallain Luc, Fédération Française des Professionnels de la Pierre Sèche, Fleury Catherine, Frayssinet Loic, G&I Association, Georgieff Miguel, Gilleta Flavien, Gins Cyril, Graines d'archi, Groupe nice matin, Guyon Jeanne, Hareb Constructive, Histoire de, Hours Véronique, Hours Vincent, Imogai Céline, Imprimerie Sira, Kabbadj Oumaïma, Lahondes Sébastien, Le varois, Leonet Pauline, Les petits débrouillards, Les petits écrans, L'Hydre, LPO PACA, Lupin Betty, Made in, Manugraph, Marot Sébastien, Maruejouls Edith, Mathieu Olivier, Maudit Fabien, Menuet Michaël, Mise en boite, Moretti Aldo, Pandora imprimeur, Paulin Magali, Perra Marie, Photon labo photo, Postillons et crachouillis, Quand parlent les pierres, Ratier Delphine, Salamande Pons Adele, Sattler Muriel, Schneider Nathalie, Serres Ivry, Scity Lab, Serres Ivry, Ten Dam Sarah, Terre d’Urba, Territoires urbains, Thibaut Jean-Pierre Topografik, Town to town, Trame, Vacca Clément, Vaidis Virginie, Vallée Alexandre, Vilarem Emma, Vuarnesson Charlotte, Watte Nikola, Willmotte Meillane, YTPROD, 2BSR, 3b Voyages, 9b+

LES PARTENAIRES EN 2023

Ademe, Association des Maires, AUDat, 48h de l’agriculture urbaine, Abbaye du Thoronet, ADIR 83, Altana, ANCT, Association patrimoine et histoire de Cabasse, Association Readiviva, Benicourt Armelle, CAPEB 83, CAUE 05, 13 et 84, CEREMA, Centre des monuments nationaux, CCIV, Club de l’immobilier Toulon Provence, COFOR Alec 83, Communauté de communes du Cœur du Var, CMAV, Conseil Départemental du Var, CROA, DRAC, DDTM du Var, Direction Départementale des services de l’Education nationale, Dracénie Provence Verdon Agglomération, Domaine du Rayol Canadel, La Fédération Nationale des CAUE, la Fondation du Patrimoine, le fort Lamalgue, L’Arbe, le Hameau de Montrieux, Lordet Jean, Métropole Toulon Provence Méditerranée, Monnet Nadja, Parc naturel régional de la Sainte Baume, Permabita, Préfecture du Var, Prévost Germain, Sauzet Maurice, Soliha, Syndicat des architectes du Var, Syndicat mixte Provence Verte Verdon, SFU, TVT innovation, UDAP du Var, Var ingénierie Les écoles : ENSArchitecture Marseille, ENSPaysage, ESAD TPM, Ingémédia Toulon, Lycée Dumont D’Urville, université Emer Fédération Française du Paysage, Les communes de Bandol, La Cadière d’Aur, Cavalaire sur mer, Cuers, Draguignan, La Crau, La Farlède, La Seyne sur mer, Le Beausset, Le Lavandou, Le Plan de la Tour, Le Pradet, Nans les Pins, Pourrières, Réseau Mistral, Roquebrune sur Argens, Saint Cyr sur mer, Saint-Tropez, Sanary sur mer, Six Fours, Toulon, Vidauban

"Accompagner, réfléchir et acter pour des architectures et des paysages respectueux des territoires, des habitants et des enjeux durables et soutenables... pour un Var où il fera toujours bon vivre."

Accompagner, réfléchir et acter pour des architectures et des paysages respectueux des territoires, des enjeux durables, soutenables et des usagers pour un Var où il fera toujours bon vivre.

Qui peut consulter le CAUE VAR ?

Habitants, collectivités, enseignants, professionnels, acteurs de l’aménagement du cadre de vie qui recherchent une information, une aide dans les domaines de l’architecture, de l’urbanisme et de l’environnement.

Pourquoi consulter le CAUE VAR ?

Soucieux de la qualité de votre cadre de vie et de sa compréhension, vous recherchez le conseil d’un professionnel compétent et indépendant pour valoriser votre projet.

Le plus en amont possible de votre projet de construction, réhabilitation, aménagement, transmission culturelle et pédagogique. Quand consulter le CAUE VAR ?

Où trouver le CAUE VAR ?

04 94 22 65 75

26 place Vincent Raspail 83000-Toulon contact@cauevar.fr www.cauevar.fr

Turn static files into dynamic content formats.

Create a flipbook
Issuu converts static files into: digital portfolios, online yearbooks, online catalogs, digital photo albums and more. Sign up and create your flipbook.