CV Portfolio_Fit out 2024

Page 1

L
O CARRIE VILLANUEVA
P O R T F O
I
CARRIE VILLANUEVA
ABOUT

I have an extensive involvement in design and planning with years of experience in the field of Architecture and Interior Design . I am passionate and dedicated with strong attention to details . I am highly organized, collaborative and with a good sense of ownership treating every project as my own . I am pro active, always eager to learn and develop my skills through trainings and mentorship . Equipped with skills in planning, 3 D visualization, construction documentation and coordination that I can share to add value to the company ..

Design is not purely how it looks but how it works . It is experiential more than aesthetic . Being mindful and intentional of every detail ensures functionality which result to a holistic and harmonious design,

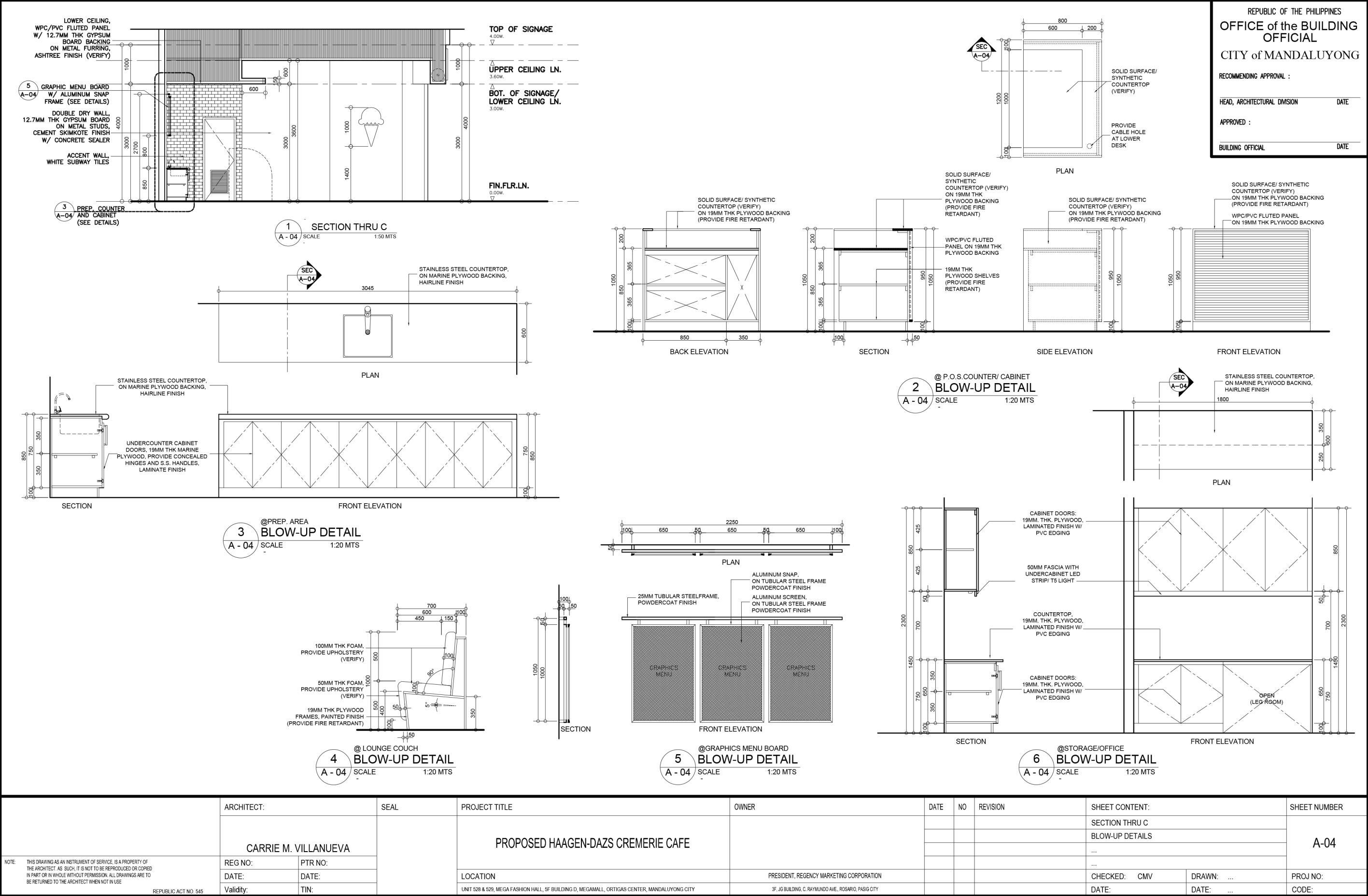
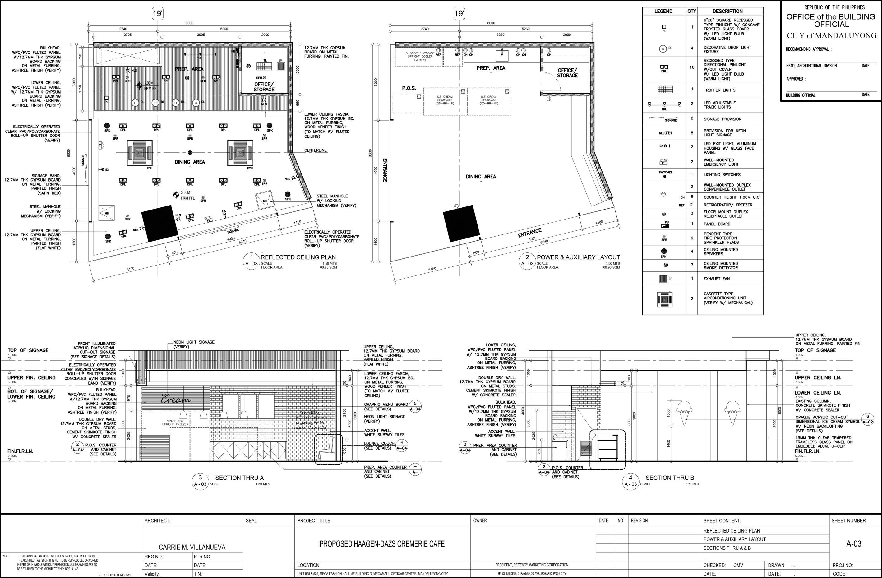
A PROPOSED ICE CREAM CAFE, Mandaluyong City, PH

Commissioned to design an ice cream café inside a shopping center with a concept of a playful and welcoming vibe. I met with the client for their design vision and took their requirement. I formulated few layouts and design concepts for their approval. Once approved, I generated the construction documents for permit and tender. I coordinated with other consultants and suppliers to complete the design. This project is still under the process of permit application.

A PROPOSED ICE CREAM CAFE

MANDALUYONG CITY, Philippines

A PROPOSED ICE CREAM CAFE

MANDALUYONG CITY, Philippines

A PROPOSED ICE CREAM CAFE

MANDALUYONG CITY, Philippines

A PROPOSED ICE CREAM CAFE

MANDALUYONG CITY, Philippines

A PROPOSED ICE CREAM CAFE

MANDALUYONG CITY, Philippines

A PROPOSED ICE CREAM CAFE

MANDALUYONG CITY, Philippines

A PROPOSED ICE CREAM CAFE

MANDALUYONG CITY, Philippines

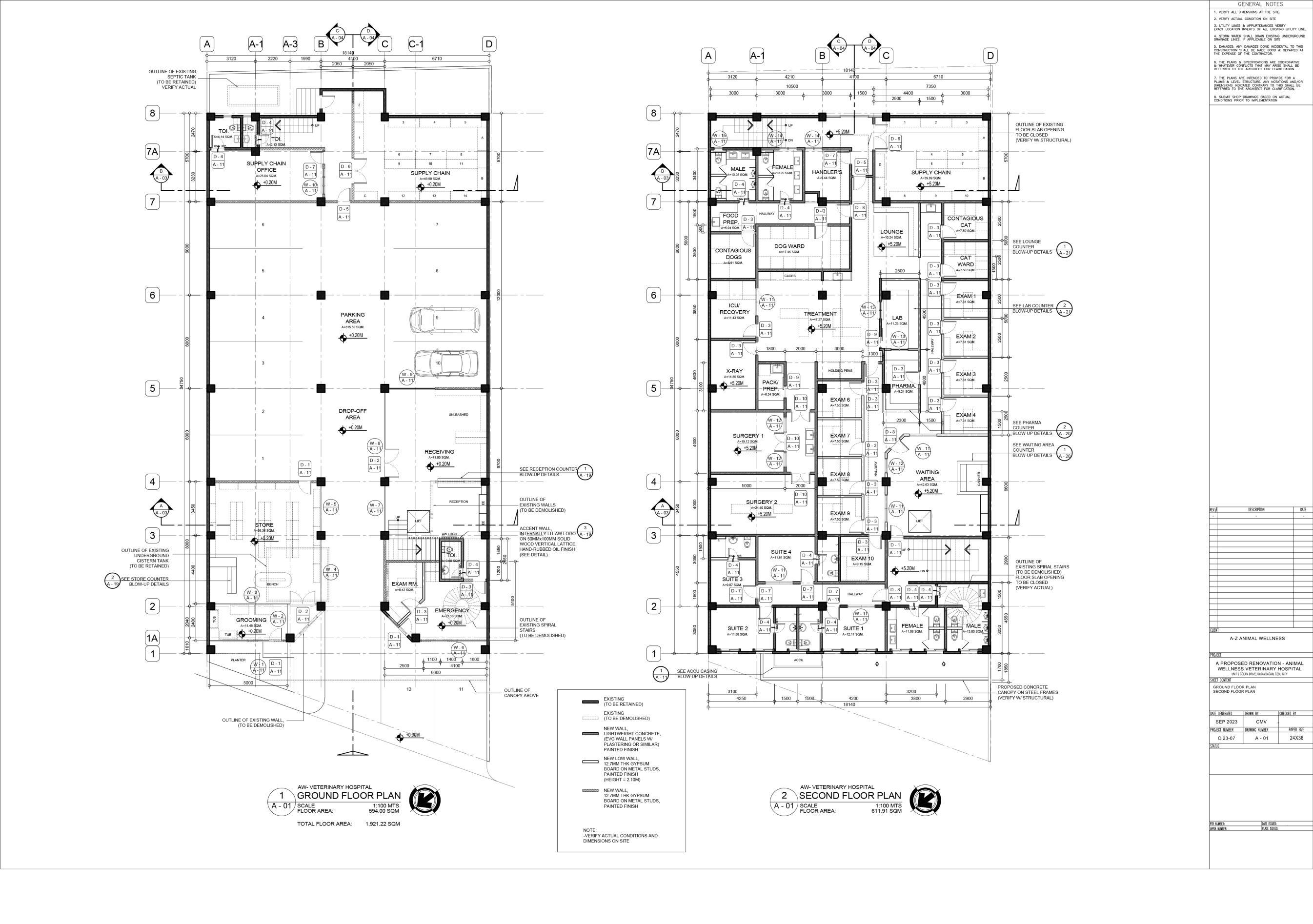
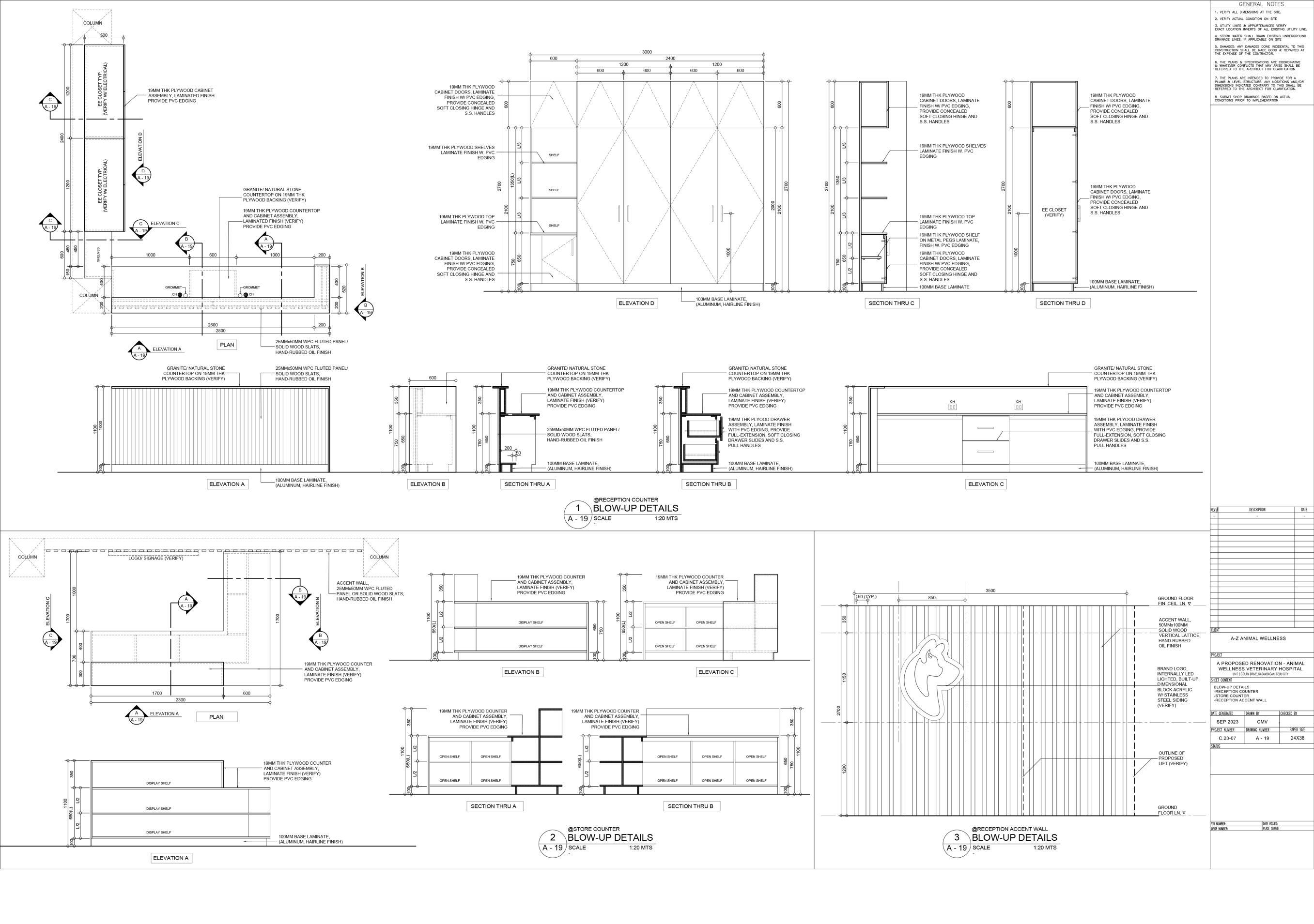
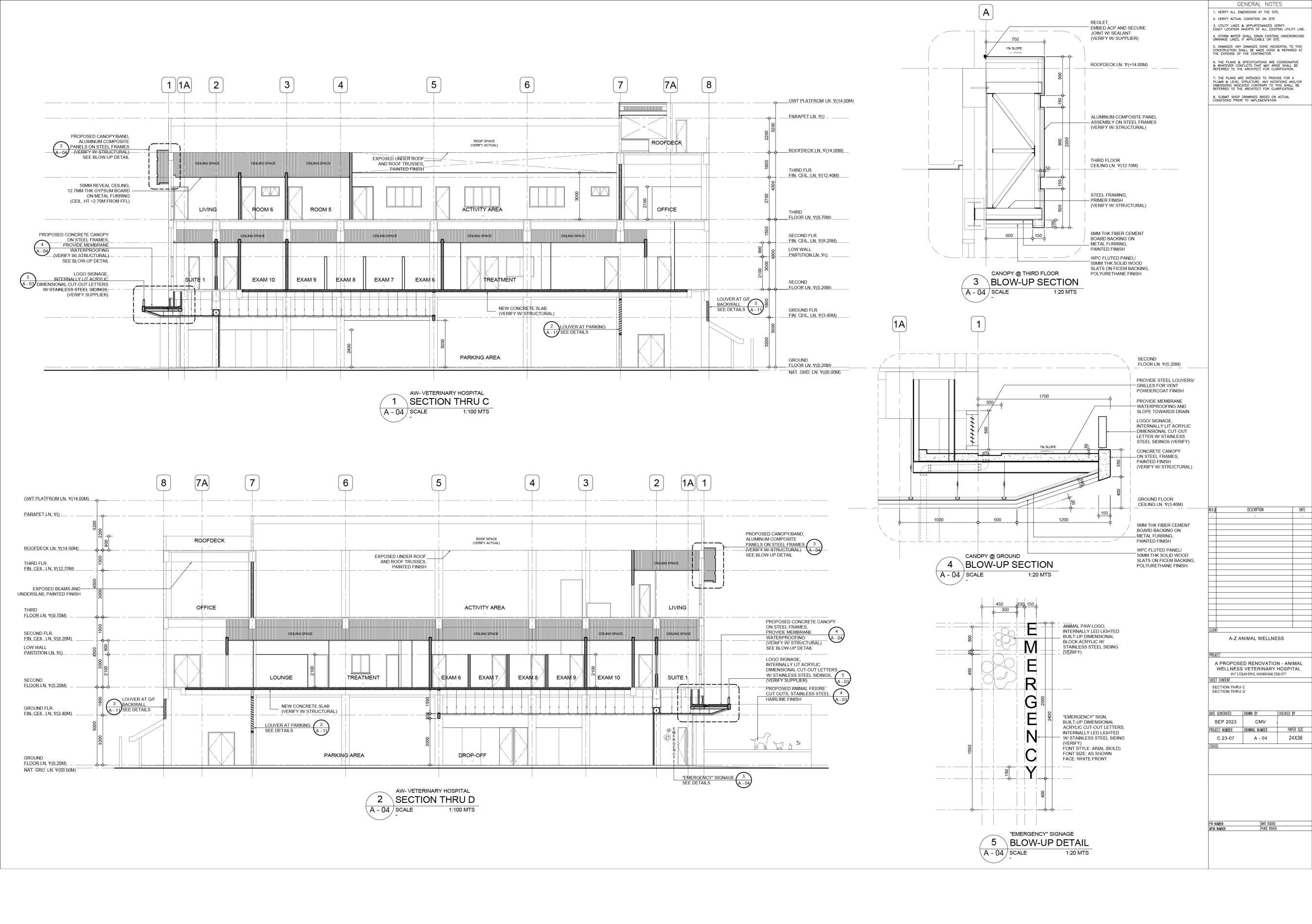
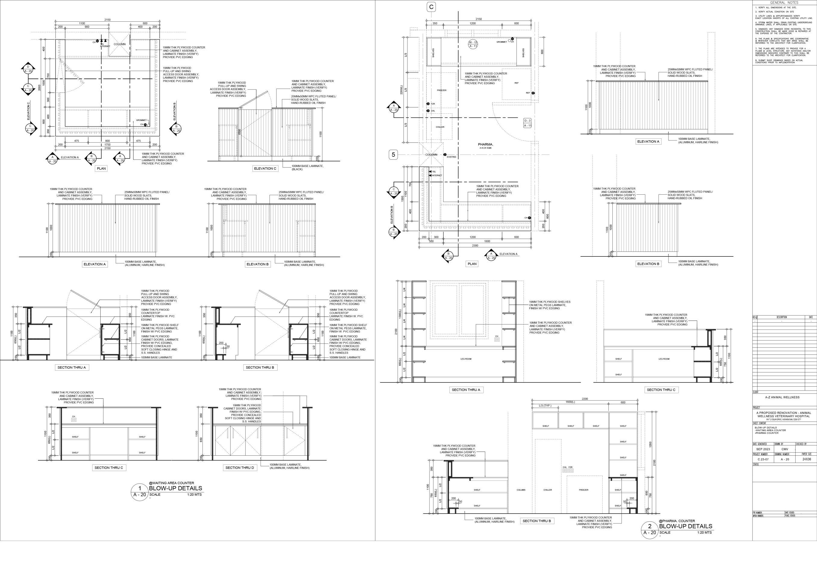
A PROPOSED RENOVATION, Cebu City, PH

This is a proposed renovation of an existing warehouse converted to a commercial building with the main function as a veterinary hospital. Apart from the hospital, it will house areas for a retail store, a pet grooming services, a pet hotel/boarding, and an office. I took the client’s brief and formulated the layout and the design concept. I delegated the tasks, scheduled and monitored the work. I worked on the construction documentation, coordinated and collaborated with my design team, consultants and other stakeholders. This project is on-gong construction.

A PROPOSED RENOVATION

CEBU CITY, Philippines

A PROPOSED RENOVATION

CEBU CITY, Philippines

A PROPOSED RENOVATION

CEBU CITY, Philippines

PROPOSED RENOVATION

A
CEBU CITY, Philippines

PROPOSED RENOVATION

A
CEBU CITY, Philippines

PROPOSED RENOVATION

A
CEBU CITY, Philippines

PROPOSED RENOVATION

A
CEBU CITY, Philippines

PROPOSED RENOVATION

A
CEBU CITY, Philippines

PROPOSED RENOVATION

A
CEBU CITY, Philippines

A PROPOSED RENOVATION

CEBU CITY, Philippines

A PROPOSED RENOVATION

CEBU CITY, Philippines

A

PROPOSED RETAIL STORE & CAFE, San Juan City, PH

This a proposed fit out renovation within a shopping center. It has areas for a library, book restoration, offices, assembly hall, store and a coffee shop. I conceptualized the layout and design. I delegated the tasks among our interior designer, created schedules and monitored the progress from conception to construction. This project is partly under construction and other areas under conceptual phase.

A PROPOSED RETAIL STORE & CAFE

SAN
JUAN CITY, Philippines

A PROPOSED RETAIL STORE & CAFE

SAN JUAN CITY,
Philippines

PROPOSED RETAIL STORE & CAFE

A
SAN JUAN CITY, Philippines

A RETAIL STORE & CAFE, PH

I was commissioned to design fit out boutique stores across the Philippines for various brands. This specific brand is under one company. Design conceptualization developed thru close coordination with the client and other stakeholders in the project. Monitoring and schedules are critical to ensure proper implementation and according to standard.

A RETAIL STORE

CEBU CITY, Philippines

A RETAIL STORE

CEBU CITY, Philippines

A RETAIL STORE

QUEZON CITY, Philippines

RETAIL STORE

A
GAPAN CITY, Philippines

A PROPOSED RETAIL KIOSK

QUEZON CITY, Philippines

A PROPOSED RETAIL KIOSK

QUEZON CITY, Philippines

A PROPOSED RETAIL KIOSK

QUEZON CITY, Philippines
CARRIE VILLANUEVA carrie.mvillanueva@gmail.com Sydney, Australia (+61) 401 320 446

Turn static files into dynamic content formats.

Create a flipbook
Issuu converts static files into: digital portfolios, online yearbooks, online catalogs, digital photo albums and more. Sign up and create your flipbook.