Portafolio de arquitectura

Page 1

PORTAFOLIO DE ARQUITECTURA CRISTIAN
2018-2022
ANDRÉS RAMÍREZ

ESPACIO

• Rejilla

• Café galería

• Colegio NP2

LUGAR

• Museo

• Vivienda

NP1
• Vivienda NP3 HÁBITAT
• Café librería

CRISTIAN ANDRÉS RAMÍREZ

INGLÉS Nivel A2

Certificado Cambridge 2018 CONTACTO

EDUCACIÓN

Universidad Católica de Colombia

Sexto semestre. (2022) Facultad de diseño.

Corel draw - utilización de herramientas de diseño vectorial. SENA (2022) caramirez50@ucatolica. edu.co cristianramirezll@hot mail.com

O

NP
01
¿Cómo se ord ena mi mundo? Reji l la d e los 9 cuadrados Coleg io E SPACI

REJILLA DE LOS 9 CUADRADOS

La rejilla de los nueve cuadrados es un elemento que nos permite entender conceptos básicos de arquitectura para posteriormente aplicarlos al diseño y ambitos realistas, de modo que se enfoca en mostrar la organización de multiples elementos tales como puntos, lineas y planos, que posteriormente crearan espacios, programas, modulación, entre otros.

Siendo este el primer ejercicio de desarrollo arquitectonico en el pro grama, se busca estable cer una idea de composición básica enfocada en la centralidad por medio de un espacio cerrado generado por una modu lación previa, así mismo se proponen espacios fluidos y determinados al establecer múltiples pla nos opacos en la rejilla.

MODULACIÓN PLANTA

PERSPECTIVA

El concepto de centralidad se ejecuta através del espacio opaco, siendo este el de mayor mag nitud e impacto en el proyecto, así mismo, un recorrido oblicuo permite mostrar los retrocesos de los elementos ante el limite de la rejilla.

CORTES

7

Para el proyecto final se tiene un predio de 9m x 9m con vecinos a ambos costados, de modo que como idea de diseño prima el concepto de axialidad, proponiendo un volumen transversal con voladizo que permita la conexión de cada espacio.

MODULACIÓN

La modulacion de los ejes se dilata y comprime para generar variacio nes que permitan acoplarse al con texto y al diseño

PROYECTO
8

Al contar con un diseño de ciudad enfocada en los claustros, torres y barras a partir de formas geometri cas poligonales se propuso romper con el esquema tradicional e influir en la percepción de la persona a través de puentes, espejos de agua y multiples texturas.

DISEÑO ESTRUCTURAL

Se implementa un sistema aporticado con columnas y vigas fundidas en concreto que permiten soportar los 3 niveles en el proyecto.

Así mismo se ejecuta una cimentación a base de zapa tas cuadradas en concreto.

PLANIMETRÍA
NIVEL
PLANTA
PRIMER
INTERVENCIÓN URBANA
PLANTA
SEGUNDO NIVEL
10

CAFÉ GALERÍA

En un enfoque hacia la presentación de la estructura como parte del diseño se plantea una composición con los elementos retrocedidos que permitan entender la importancia del elemento estructural.

PLANIMETRÍA

11

CORTE LONGITUDINAL

Se muestran los cortes que ilustran el movimiento en la fachada a partir del retroceso de los elementos compositivos.

Así mismo buscan ilustrar la idea de la doble altura para de esta manera conservar un espacio que genere una sensación de mayor amplitud y jerarquia con respecto al resto.

CORTE TRANSVERSAL
12

COLEGIO

Ubicado en Chapinero, Cra. 13 con calle 47, se propone el desarrollo de un colegio especializado en bachillera to.

Se plantea como principio organizador la centralidad a partir de un patio central que reparte en su periferia los multiples volumenes que componen el equipamiento.

15
CORTE
CORTE LONGITUDINAL 16
TRANSVERSAL
ALZADO OCCIDENTE ALZADO ORIENTE
¿CÓMO SE

ORDENA MI MUNDO?

Se ordena a partir de conceptos de diseño (centralidad, axialidad, aproxi mación)

La estructura a su vez como parte del diseño, entendiendo los tres principios de la arquitectura de Vitrubio y los principos de la arquitectura mo derna de Le Corbusier.

LUGAR

NP
02
¿Cómo me relaciono con mi entorno?
Museo Vivienda

Situado en el parque Nacional Enrique Olaya Herrera, en la ciudad de Bogotá, Colombia. El lugar se identifica por establecerse en una zona latitudinal situada hacia la franja del Ecuador, situación que permite tener un clima con pequeñas variaciones y que depende de la zonalidad vertical, a su vez, el parque se ubica entre los 2589 y 2690 metros sobre el nivel del mar de modo que la temperatura promedio del lugar es de aproximadamente 13.5°C.

MUSEO 22
23
24

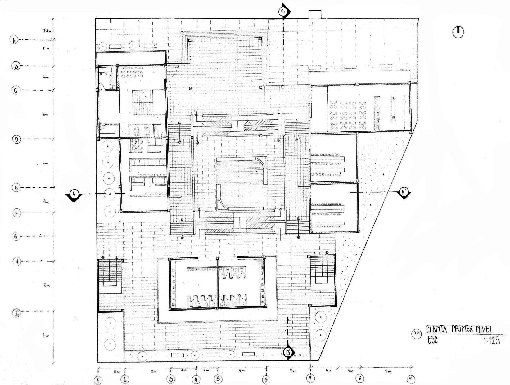
PLANTA PRIMER NIVEL

Se muestra la idea de composicion a partir de volumenes yuxtapuestos y cuenta con un ingreso de forma oblicua al proyecto siguien do la intencion del entorno, así mismo, el desarrollo urbano cuenta con jardines y mobiliario orgánico similar a los jardines zen.

25

El volumen cuenta con una altura de 6-8 metros, dando prioridad al entorno y la vegetación existente, a su vez, los planos translucidos piso-techo facilitan el ingreso de iluminación y da claridad a la visual del exterior.

La altura de la vegetación así como las texturas implementa das permiten favorecer la idea de camuflaje, siendo así que no se pierde el entorno al dar prioridad a la misma sin alterarla o disminuir la importancia del proyecto.

LONGITUDINAL 26
CORTE
27
CORTE TRANSVERSAL

Las fachadas se plantean con elementos propios del lugar con la intención de generar el menor impacto ambiental y elabroar un diseño sustentable.

28
29
VIVIENDA 30
31
32

Ubivado en una zona con contexto historico y cultural, se encuentra el proyecto enfocado en vivienda multifamiliar de entre 2-4 personas por vivienda, cuenta con comercio que a su vez for talece la economía en el lugar y permite tambien que sea auto sustentable.

33
1 J H 2 3 4 5 6 8 9 10 11 12 14 D I A 700 1100 7.00 700 400 7.00 7.00 4.50 430 698 679 2.00 7 1.01 0.01 B F G R R C D 700 900 9.00 1088 C E A 03 B 03 C 03 D 03
36

USOS CRUJÍAS

RITMO Y REPETICIÓN

Se plantean dos crujías a partir de los cuales se desenvuelve el proyecto, estos ejes a su vez permiten establecer ritmo y repetición para ordenar los volúmenes que componen el diseño.

VIVIENDA COMERCIO
37

Se hace uso de materiales sustentables y sostenibles a corto y largo plazo para de esta manera relacionarse al contex to en el que se encuentra y adicionalmente disminiur el impacto ambiental.

38
39
¿CÓMO ME

RELACIONO CON MI ENTORNO?

La importancia de entender el contexto así como sus necesidades, de ma nera que se pueda desarrollar un espacio acorde al entorno y que pueda ser tanto sustentable como sostenible.

NP 03
¿Cómo cualifico el hábitat en el que actuo? Vivienda HÁBITAT

Ubicado en Alcázares, se en cuentra la zona de intervención cuyo objetivo es plantear un nuevo sistema de viviendas multifamiliares enfocadas a solucionar problemas de lo que en su momento fue la pan demia, planteando espacios salubres y optimos para habitar sin necesidad de desplazarse por tramos extensos, teniendo en cuenta la ciudad de los 5 minutos.

SOLSTICIO VERANO 21DE JUNIO 9:00 AM

SOLSTICIO VERANO 21DE JUNIO 4:00 PM

Partiendo de entender las con diciones sociales, culturales y climaticas que aplican para el sector se comienza a desarrollar un plan de acción para solven tar las necesidades vistas.

VIVIENDA MULTIFAMILIAR 43

Surge como propuesta de desa rrollo una única plataforma con patios que articule las unidades de vivienda y a su vez genere comercio y espacios de desarro llo cultural, fisico y lúdico en el primer nivel.

44

La vivienda busca ser flexible, de modo que cada que haga uso de ellas sea capaz de modificarlas a su gusto y necesidades, es así que no se ejecutan elementos que puedan obstruir bruscamente el interior de la vivienda, dejando de esta manera, la circulacion como un espacio moldeable y no unicamente para transitar.

D SEÑO DE Conv n b Fecha CRIS ALIX g Nov OÑ nta C H 0 2 B A U B 20C 0 1 0 19H 0 50 9 1 1 B A A U B 0C 0 5 9H x 0 4 1 2 3 5 7 1 1 1 1 41 5 61 71 81 91 AB A SUBE C x 0 19 H 0 4 3 A B C D E F G H J K 5 0 5 0 0 60 00 7 5 7 500 0 7 0 5 00 0 5 45 0 0 B B C C D D A A N 0 1:20 O TIP LANTA P 2 ARQUITECTONICO 21 ARQ
47
48

Turn static files into dynamic content formats.

Create a flipbook
Issuu converts static files into: digital portfolios, online yearbooks, online catalogs, digital photo albums and more. Sign up and create your flipbook.