Portfolio_1002265645_TristanTioHockHaw

Page 1

F I N A L

P O R T F O L I

TristanTio 1002265645 AR115DesignStudio1 Semester12022
O 19
Project1 WorkshopP1 Points[1D]|Lines[2D]|Volume[3D] Movement Visualization Volumes Construction OperativeDesign DesignPrinciples Reflection[1] 01 02 03 04 05 06 07 08 WorkshopP2 AbstractionandOrderingPrinciples SketchofInvisibleCity FirstAssemblyforZeboide FinalAssembleforZeboide Reflection[2] 09 10 11 12 13
Project2 WorkshopP2a Originalreference(woodblock) Cardboardapparatus P2aReflection 14 15 16 WorkshopP2c Sketchideation 1:5Model 1:1Model Joinery 1:1Functions P2cReflection 26 27 28 29 30 31WorkshopP2b Fieldstudy Traveller’sroadmap Function1 Function2 Function3 Function4 Function5 Function6 P2bReflection 17 18 19 20 21 22 23 24 25
Project3 Contextselection Aroomtoobserve Zobeide TheWhiteCity Startingform 32 33 34 35 Aroomtoobserve Development Completionthefinalroom Contextthefinalroom Expressionthefinalroom Exposition-thefinalpath Climax-thefinalpath Resolution-thefinalpath Reflection 42 43 44 45 46 47 48 49 Designprocess Thefirstroom Thefirstpath Thefirstflaws Adaptation Moodboard Storylines 36 37 38 39 40 41

PROJECT1

TristanTio 1002265645
Introduction DesignStudio1Formplaythroughtwoworkshopthatopens upthepotentialandwaysinthemakingofformswithvaries materiality. Thejourneystartsfromasinglepoint,Workshop1startsfrom locatingthefirstPoint,andcontinuesinsearchofprojectionof Line,Plane[2D]andblow-uptoVolume[3D]andtowardsthe responseofhumanbody&interaction. Usingcardboard,Workshop1carriesonwiththealterationof thebasicorderofform,withtheinlucisonofoperativedesign methodologyandbasicunderstandingofdesignprinciplesfor theguideoftheformorder,dynamics&aesthetics. Workshop2furtherstheformexplorationwithwoodwork andgroupwork.WithliteraryadaptationtotheInvisible Cities,thestudentlearnstocreateamassingofcitywith theunderstandingofabstractionandorderingprinciples.
Points[1D]|Lines[2D]|Volume[3D] Firstworkshoppassingthrough differentdimensions,wherestudents areencouragedtoexplorethepotential offormfromonepointtoanother, onelineconnectstoanotherandthe enclosureofplanescreatesa3dimensionalform. Workshop1 01
Movementcreatesform |Posesgeneratepoints|Pacingproduceslines|Actionscreateelevation| 02
Visualizationofform Thepathandactionstakenare representedintheformofamodel, consistingofmultiplesticks(point) connectedbystrings(line)withvarying heights(elevation). 03
Creatingvolume Usingthestringsasguidelines,planes canbeenvisionedandplaceduntothe modelcreatinga3-dimensional visualization. 04
Construction Anattempttoreplicatethemodel usingadifferentmaterial(wood). Differenttechniquesareusedand newly-foundlimitationschangethe form. 05
OperativeDesign Usingtheunderstandingofform, designprinciplescanbecreatedby applyingthebasicconceptsof dimension. Theseprinciplespavethewayfornew dynamics,aestheticsandorders throughvariousshapesandsizes. 06

Symmetry

DesignPrinciples

Hierarchy

Datum

Rhythm Repetition Transformation

07
Throughthevariouschallengesand practicalwork,agreaterunderstanding oftheconceptandworkingsofabasic formhasbeenattained. Theabilitytoidentifyaformandapply ituntotheprinciplesofdesign providestheopportunitytorealize greaterpotentialsandcreateart. 08

Abstraction and Orderingprinciples

Continuewiththeexplorationof6blocks,studentsfurtherthe explorationofform,relatingtotheirnewly-foundunderstanding oforderingprincipleswiththeirselectedInvisibleCitieschapter. 56inagroup,studentsassembletheseblocksintoanadaptation ofthemassingoftheirInvisibleCity,andphotographand overlaywithsketchmontagestotheirnarrativedrawingof selectedtheInvisibleCity.

Workshop 2 009

Zobeide

Conceptual Sketch

Awhitecity,exposedtothemoonandtiedupinaskein.

Adreamwhichluresmenfromallnations,entrappingthem.

010

FirstAssembly

Prototypeassemblyofblocksinan attempttoconstructZobeideaccording tothegroup’svision.

011

FinalAssembly

Finishingtouchesaddedwith significantreorganization.

012

Attemptingtoimagineandenvision theimageofthecitysharpensthe creativethoughtprocessasthe limitationsinthewritingstrainsthe mindtocreatetheperfectyet imperfectvisionofthecitythrough thecompilationofvariousideasand perspectivesamongadiversegroup. Inthisprocess,thefundamentaldesign principlesareappliedinvariousways, creatingauniqueunderstandinginhow theseprincipleswork.

013

PROJECT2

TristanTio 1002265645
Introduction BodyArchitecture,we’llbelookingintotheclose-knit relationshipoftheexperienceofhuman towardsspace,withheightenedexperiencetoobservethe relativitytowardsthechangeofscale. Weopenupthequestbyfirstunderstandthebasicunitofhuman,orahumanbody. WorkshopP2afocusonanthropometricstudyofoneself,analysinghumanbodies andit’smovementtomakesenseofrequireddimensionstocraftthebaseformof SpatialApparatus. WorkshopP2bwillbeafield-studyofthegivenbody-spatialenvelop,with extendedstudythatoperatethebase-formtoreacttowardstherelativityof changesofspatialscale:one-selftoobject,one-selftoaspace:in,on,inbetween. WorkshopP2cwillbeatectonicstudyandthattranslate paperboardSpatialApparatusintoskeletalframe,crafting 1:1SpatialApparatuswithwoodenframing.
WorkshopP2a 14 Studenttostartwithadaptingabase form[inspirefromaportionof previousmassingmodel]andmakeit withcardboardinto1:1tohumansize. Thiswoodenblockistakenfromthe modelusedinthepreviousprojectof theInvisibleCities. Itwillactasareferenceforthe constructionoftheupcoming apparatus.
15 Withanthropometricstudy:sketchandobserveand analysingdimension,studentshalldevelopan understandingandideatehowthese1:1cardboardmodel couldbefitted/carried/attachedwithit. Studentthentoobservethepotentialandqualityofthese formthatrelatetotheirbody,andhaveOperativeDesign inordertoallow1or2movementofthebodywith theseSpatial-BodyDevice. Theprocessofmakingtheapparatus requirescarefulmeasurementsand calculatedguessestoallowthebodyto fitcomfortably. WorkshopP2a
P2aReflection 16 StartingworkshopP2aprovideda generalideaofthewholeprojectitself. Theunderstandingofthehuman body/anthropometryandhowit relatestoarchitectureseemstobethe focalpointoftheentireproject. AfterworkshopP2a,newknowledge wasobtainedregardingthe functionalityandformofthehuman body.Theindividualityofeveryone’s bodyformcreatesdifferentformsand shapes,representingthevarietyand diversityamongpeople.
Workshop2willbeafield-studytofurther developtheSpatialApparatus,whichisan extendedstudytooperatethebase-formin reactiontowardstherelativityofchangesin spatialscale:one-selftoobject,one-selftoa space:in,onorin-between. 17 WorkshopP2b Anyobjecttointeract[howtointeract]?Anysurfacetorely/attachon? Anyhalfenclosuretoencloseintofullenclosure? Anysunlight/daylighttocollect/tofilter/toblock? [Addition|Displace|Subtract] Anyviewtoconnect/focus[point-line]? Anyviewtobent/twist/skew? Anyviewtoblock/filter?
Atraveller’sroadmap Aftercreatingthecardboardapparatus,itwasexposedtoaspecificenvironmentwithmultiple reactants. ThisspecificenvironmentwaslocatedintheChinatowndistrictsofPasarSeni,KualaLumpur 18 Usingtheproject1’soriginalmodel,6locationswerepinpointedontheprovidedgridlinemap. These6locationswillbevisitedandreactedaccordingtothecardboardapparatus. [1]Locate [2]Observe [3]Photograph/React [4]Journal
Location DayabumiComplexBridgeatKlangRiver Operation Anopeningwasaddedintheshapeofacircleto allowtheleftarmtopassthrough. Action Thenewopeningallowedmyarmtoholdonto therailings,allowingsaferusagewhilegoing downthestairs. 19 Before After P O V Theopeningallowedmyarmtoreactwithanyobjectsinmy vicinity. Inthiscase,theusercouldwalkdownthestairssafelyasthe openingallowedtheusageoftherailings,supportingthebody whiledescending. Ofcourse,itisn'tonlylimitedtostairsastherearemultiple possibilitiestoreactwiththeenvironmentusinghands. Function1
Location AlleywayinJalanHangKatsuri Operation Attached2flatplanestotheupperpartofthe structure,angledat90degrees. Action The2flatplanesbehindmyheadminimizedthe soundcomingfromthevariousloudnoisesinthe city.Thealleywayspecificallyhadloudexhaust ventilationandairconditioning,sothe2backpanels reducedthenoise. 20 BeforeAfter P O V Inthealleyway,therewasasetofventilationandairconditioner compressorswhichwereveryloud.Thebackpanelsreactedwith thenoisetoblockthemoff. Inaddition,duringthefieldstudy,therewasconstantnoiseinthe bustlingpartsofthecity.Thebackpanelshelpedtoreducethenoise,even thoughthereductionwasnotthatsignificant. Function2
Location FleaMarketPetalingStreet Operation Iaddedatopcovertotheupmostpartoftheslanted areaofthecardboard Action Thecovereliminatedtheskyfrommypointofview insidethecardboardstructure,allowingmyselfto focusonthemarketstreetanditsdetails. 21 Before After P O V Thefrontcovereliminatestheupperpartoftheuser'sfieldofvision, forcingtheuser'seyesighttofocusonwhatisvisible. Theremovaloftheupperfieldofvisionignorestheskyandfocuses theviewofthestreetfromtheuser'sperspective. Function3
Location PasarKaratAlleyway Operation Icutarectangularopeninglocatedatthelowerback ofthecardboardstructure,andremovedthe previousheadcover. 22 Before After P O V Action Theopeningallowedmyselftopositionmybodyto betterviewthereactant(MerdekaTower)witha morecomfortablepose. Thefrontcovereliminatestheupperpartoftheuser'sfieldofvision, forcingtheuser'seyesighttofocusonwhatisvisible. Theremovaloftheupperfieldofvisionignorestheskyandfocuses theviewofthestreetfromtheuser'sperspective. Function4 Comparedtothepreviouslocations,thisreactantisveryfaraway.Thetoweris roughly381timestallerthantheuser(myself)andisdistancedaround300 metersaway.Usingthepythagorastheorem,thedistancefromtheusertotheverytop oftheantennaspireisaround742meters.
Location MRTStation,PasarSeni Operation Icutasimilarrectangularopeningfromtheprevious modification,butinthefrontpartofthecardboard structure. Action IsatdownontheparkoutsideoftheMRTStation. Theopeningallowedmyselftositinacomfortable positionwheremylegsweren'tobstructedbythe cardboardstructure. 23 Before After P O V Thefrontopeningcombinedwiththerearopeningcreates fluidityinthemovementsoftheapparatususer. Inthiscase,itallowstheusertositdownonthefloor,whilemaintainingthe structuralintegrityoftheapparatus. However,itcanallowotherfluidmovementsaswell,suchasrunningor stretching. Function5
Location SideofKlangRiver,JalanTunSambanthan Operation Iaddedasmallplatformonbothsides,each accompaniedbyanopeningdirectlyonthesides. Action Thesupportingplatformsactedasarmrests,asthe benchestheredidn'thaveany.Theopeningwasto allowbotharmstopassthroughthestructureand restcomfortablyonthearmrests. 24 Before After P O V Thesupportingarmrestsprovideacomfortable sittingposition,makinguseofnotonlybencheswithoutarmrests,butanyflat surfacewhichcanbesaton. Itisessentiallyauniversalarmrestwhichcanbebroughtanywhere. Italsoisn'tlimitedasanarmrest,butitcanalsosupportthearmswhiledoing otheractivities Function6
P2bReflection Thejourneyacrossthetight-knit streetsandcrampedalleywayswasan experiencetoremember.Theunique architectureofthelocalcityscapeand itslittledetailswerefascinating. Afterthejourneyandtheprocessof locatingthereactants,Iwasableto trulyunderstandhowmyownbody worksandinteractswiththe surroundingenvironment,how anthropometryaffectshowhumans buildtheworldaroundthemselves.I wasalsochallengedtoadapttothe environmentaroundmyselfaccording tomyownphysicalbody. 25

Sketchideation

TectonicstudyandthattranslatepaperboardSpatial Apparatusintoskeletalframe,crafting1:1ofthedevice withwoodenframingandenvelop.

DFrameworkconcepts esignconcept

WorkshopP2c26
[1]Todefineprimarystructureandsecondarystructure tocreatetheframingonupholdtheSpatialApparatus.
Aprototypemockupmodel, totesttheframeworkand design.

WorkshopP2c

[2]Defineandmaptheforcesormovingforcesapplied

1:5Model onSpatialApparatus,andhowyouwouldstrengthenthe forcesapplies,orhowtoallowmovementonspecific partofthedevice

Coverfunction,close andopento minimizefieldof view

27
WorkshopP2c28 [3]Tojoinfromoneframetoanother:Joinery&detailing 1:1Model Final1:1model,madeoutofwood usingmultiplejoinerytechniques

3screwhinge

Nails

Lbracket

MetalJoinery

WoodJoinery

Simplebuttjoint3waylegjoint

TRabbetjoint oungeandgroove

29

thehead

WorkshopP2c3 1.Coveradjustsvision 3.Backsupport-allows comfortableandstable usage 2.Slantedformmoreflexibilityand roomtomaneuver 5.Armrests-supports thearminvarious activites 6.Opening-allowsaccesibility tothesurroundingenvironment 4.Backpanel-blocks outnoiseandsupports

differentlyduetothevarietyinthephysical shapeandform.Thisdiversitybirthstheneed forarchitectureandtheenvironmentaroundus tobeuniversallyacceptableandfunctionalto

31 Project2divesintohowthehumanbody functionsandrelateswitharchitecture.Ihave obtainedinformationregardingtheworkingsof anthropomterywhichwerepreviously unbeknownsttome.Everyone’sbodyfunctions
mostpeople. Inaddition,thedraftingandconstructionofthe apparatussharpenedthecreativethoughtprocess whilealsohoningtechnicalskillsinmodel makingandwoodworking.

PROJECT3

TristanTio 1002265645
Introduction Project3focusesonthepotentialsfound withinasinglefunctionofaspace. ProjectevolvesfromP1andlocateonP1c.massingupaninvisiblecity. Studenttoexplorethedesignofasinglespacethatfulfilledatraveller ONEneed.Howeverinordertoaccommodatevarioustypeof traveller,thereisnoONEanswerofasinglesolutiontofulfillthe functionofspace. Aroomto. ________expandsthewaysofsinglespaceusage, divingdeeperintovariousmanners/processofthechosen functiontostretchfurtheronhowonespacecouldoperate. With6functionsallocatedfortravellerwithinanInvisibleCity,the travellerisenabledtotravelfromonepointtoanotherwhile exploringthecity,withtheirmovementdistinguishingthemselvesas aconstellationof“living”spaces.
6roomswereprovidedwiththeirown specificfunctionsrelatingtothecity. Forthisproject,aroomtoobservewas selected Aroomtoobserve 32 |Aroomto.Observe |Aroomto.Rest |Aroomto.Cleanse |Aroomto.Read |Aroomto.Play o|Aroomto.Repair bserve /əbˈ zəːv/ noticeorperceive(something)andregisteritasbeingsignificant.
33 Theroomtoobservewillbelocatedaccordinglyintheprevious Project1’smassingoftheinvisiblecity. heinvisiblecitywasformedbasedonItaloCalvino’sdescription ofZobeideinhisbook,InvisibleCities. Zobeide Theroomwaslocatedbasedonitsfunctiontoobserve. Inthiscase,theroomwaspositionedontheveryedgeofthe citywall.Thisallowstheroomtobeabletoencompassthe entiretyofthecity,openingupendlesspotentialsforthe creationandformingoftheroom. Italsoprovidesanewrolefortheroom,asitisthesole entranceandexitofthecity Citywalls Citystreets

TheWhiteCity

ConceptualillustrationofZobeide

34
Tocreatetheroom,areferenceforthe startingformwasrequired. ThepreviousProject2’smodel apparatuswasusedasthebasisforthe shapeoftheroomtoobserve. Thisshapewouldservetobethe outsetfortheupcoming transformationsanddevelopments whichwilleventuallycreatearoomto observe. Startingform 35
36Thefirstroom Thedesignbeganwitha1:100scale model,placedwithinthecityitself. Withminorchanges,anupscaled1:25modelwas constructedusingbalsawoodasarepresentationfor theactualmaterial,timber. 1:100Modelversion1 1:100Modelversion2 Observationtower,with2 openings Angledformto compliment adjacentcontext Slide,totrap thetravellers Anglesallowtodirect andlimitthefieldof view Thefirstiterationoftheroomtookamajorityofits inspirationfromtheoriginalapparatus.
37Thefirstpath Observationtower Observationroom Table Triangularwindows Theangledformdirected andlimitedtheviewtowards thecitystreets,withthe variousanglesproviding uniqueperspectives. Themainareawheretravellers stopandobservethecity streets. Travellerscanputthei belongingsonthetableo plan/mapouttheirjourney. Anelevatedcompactspace whichallowsadifferentand widerviewofthecitywithits streets. Rope Travellerswould enterbyclimbingup. Themainideaofthedesignwastohavetheroomactasatrap. Travellerswouldclimbupintotheroomandbepresentedwithalargeopenview,giving theminsightintothecity. Specifically,theywereviewingdownatthenarrowandtwistedstreetsinhopesof sparkingtheircuriositytoexplore. Theywouldtheneitherclimbupthetowertogetadifferentperspective,orbegin planningtheirfollowingjourneyonthetableprovided. Theywouldslidedownthepathprovided,andbetrappedinthecity. Adjacentcontext
38Thefirstflaws However,thereweremultipleflaws withinthedesignoftheroomitself. Intermsofthedesign,itwastoo centeredaroundtheoriginalbase apparatus. Thefunctionalityandideastriedto matchthebaseformandmakeuseof whattherewas. Theroomattemptedtotryandfitthe functionofobserveintotheoriginal form. Thenarrativeandpurposeofthe roomwasn’tenoughtojustifyits simpledesign. Observingthecitystreetsalonefelt toolimited.Thetwistedstreetsand narrowalleywaysweren’tenoughto representthetruenatureofthecity. Theroomalsomadelittleuseofthe potentialsfoundwithinspace.Itwas limitedtoaslantedshapewhichonly servedasaglorifiedexcusetoview thingsatanangle. Inaddition,theroomonlyobserved throughthemeansofvisualsense.
39Adaptation Animprovednarrativewascreatedto betterhelpformthedesignoftheroom. Ratherthanspecificallyviewingthecity streets,theroomwouldfunctionasan experiencewhichwouldluretravellersinto exploringthecity,throughthemeansof spaceandsenseswhichrepresentthecity’s nature(adesire;adream;atrap;aprison) Toachievethis,furtherresearchwas conductedtoexploremethodsonhowto createanexperience. Itwasdecidedthattheideawouldbeto paveapathwayinwhichthetravellerwould experiencedifferentemotions. Thepathwaywouldbedesigned usingdifferentformswhichcan impactaperson’sfeelings. Sharpandtightangleswouldbe implementedintotheformtocreate anuncomfortablefeelingmimicing thatofthecity. Lightandshadowwereformed throughopenings,leadingthe travellersandseducingtheircuriosity. Openspaceandfilteredlighting wouldexposethetravellerstoa relaxingandcomfortingfeeling.

Lightandshadow

40Moodboard Tocreatetheaforementionedspaces,further researchwasconductedtofindreferences regardingthedesignoftheroom. Sharp
Openand filtered
41 Originalnarrative EnterObservePlanExplore Newnarrative Enter Followthe Path Consistsof: DifferingForms Light&Shadow Textures Feelthe Emotions Eventually entrappingthem Drivento Explore Curious Uncomfortable Relaxed Storylines N A T U R E O F Z O B E I D E
Development42 Ideasketches Modelmakingprocess

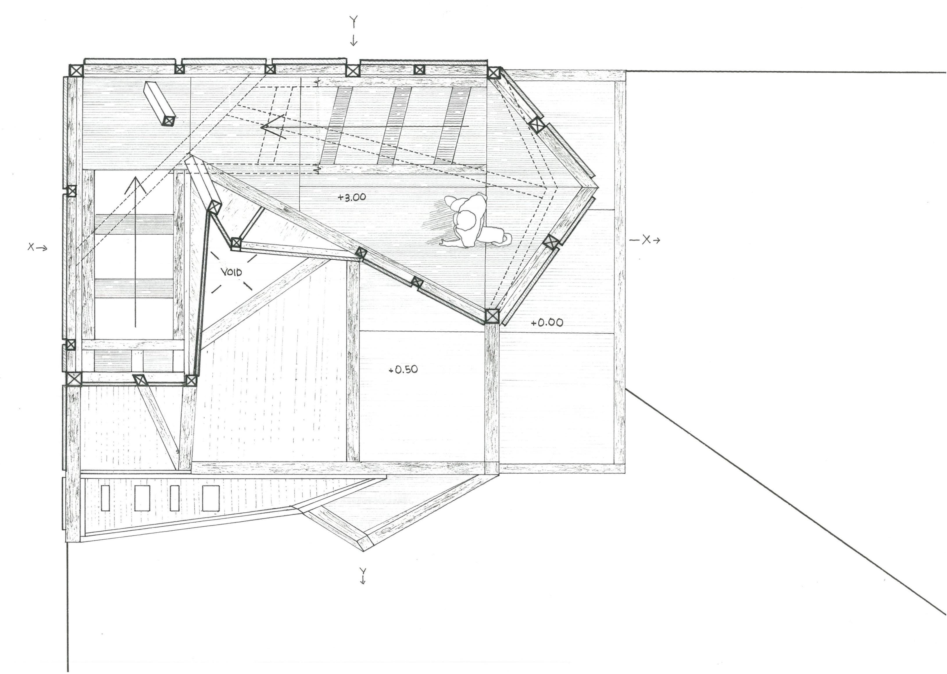
Thefinalroom-completion

Thefollowingmodelistheoriginal roomconsistingofalltheideasand designintentionimplementedintoit.

Amorefinalizedmodelwascreated withbettercraftsmanshipandstructure, whileretainingtheoriginalideasand designintention.

Thefinaldesignoftheroomisrepresentedin thefollowing1:25scalemodel.Itintegratesall theaforementioneddesignaspectsfound withintheimprovednarrative. Asharperformwhichconsistsof openingsallowinglighttopass throughformingapathway whichwillgivethetravellers anexperience,tellingthe storyoftheZobeide.

43

Thefinalroom-context

Theroomtoobserverepresentsapath, leadingtravellersthroughaseriesof spaceswhilemakinguseofthehuman senses,creatingastoryofemotions.

Skylights

actsasguidelights, leadingontravellers

Allthewhilesatiatingthecuriosityand desireofthetravellers,similartothe

Sharpform

makesthetravellersfeel tightanduncomfortable, challengingthem

Slits

helpsguidetravellersalong thepathusinglight

2ndbalcony

travellerswillbepresented withalimitedview(east)of thecity

1stbalcony

travellerswillbepresented withalimitedview(west)of thecity

Openarea

achangeofspace,making travellersfeelmorerelaxed

Louvres

filteredlightingand ventilationgivesasenseof comfortandfreedom

Finalplatform

thefinalareawherethetravellers canviewtheentiretyofthecityand descendtowardsthestreets.

44

Thefinalroom-expression

Section XX Section YY Ground floorplan

First floorplan

45

Thefinalpath-exposition

Travellerswillfirstenterthroughthe highestleveloftheroombyclimbingupa rope.

Theywillthendescendthroughanarrowandsharp tunnel,followingadistantlightpresentaheadof them.

Thestairsareslantedandthetextureofthe adjacentwallsarerough,makingthetravellers uncomfortableastheyhaveahardtimedescending down.

Reachingthefirstbalcony,travellers willbepresentedwiththeviewofthe city,butonlyaportionofit(west side).

Toobservetheentiretyofthecity, theywillhavetoventuredeeper withintheroom.

46

Thefinalpath-climax

Followingthepatternedlights,travellers willencounteranotherflightofstairs.

Thetreadofthestairsarethinandvastly seperated,givingthetravellersyetanother uncomfortableexperiencewhen descendingtothebottomlevel.

Afterreachingthebottomlevel,travellers willbepresentedwithapathway consistingofunevensteps,addingtothe unpleasantjourneyoftheroom.

Theywillthenreachthesecondbalcony, presentingthemwithyetanotherview ofaportionofthecity(eastside).

Theywillthenmoveontothefinalact.

47

Thefinalpath-resolution

Finally,thetravellerswillreachthemostimportant partoftheroom. Theywilltransitionfromsharp,tightand suffocatingspacesintoacomfortableandrelaxing space,complimentedbyopenspacesandfiltered lighting.

Enteringthishallwayimmediatelytransformsthefeeling ofthetraveller,providingthemabreathoffreshairand rewardingthemafterachallengingjourney.

Reachingthefinalplatform,thetravellerswillhave observednotonlythevisualaspectofthecity,but throughthisjourneytheyhaveexperiencedthestory ofthecity.Theywillthencontinuetheirjourney onwards,descendingtoZobeide.

Thejourneyrepresentsthedreaminthestoryof Zobeide,howthemenareluredbytheirdreamsis exactlyhowthetravellersareluredbytheircuriosity. Thatisaroomtoobserve.

48

Reflection

Project3isessentiallyanamalgamationofeverythingtaught inthe1stsemester,combiningelementsfromeveryproject fromtheverystartofthefirstassignmenttotheverylast,it connectsinacomplexyetbeautifulstreamofexperienceand informationtaughttothestudents.

Personally,theprocessofthisfinalprojecthastaughtmeso muchandwillbethebasisfoundationformyprinciplesand ideationofarchitectureasawhole,inthefuture,pastand present. Ifeelestaticandpassionateaboutmyprojectasithasgivena senseofaccomplishmentlikenothingIhaveeverexperienced.

Thefinalprojectassessesthecreativityofthemindandthe criticalthinkingonhowtodesignarchitecturebasedon uniqueandimaginarycontextsprovided.

Theprocessofdesigningtheroomsbasedonconceptual citiesbuiltoffoffictionalworkspushestheboundariesofthe creativeandimaginativethinkingandgivesnewinsightinto thedefinitionandartofdesigningspaceasarchitecture.

Theworkputintothislearningeffortbythelecturersand studentshavecreatedatrulywonderfulandeyeopening experiencewhichIwillcherishfortherestofmydays.

ItisinmyhopesthatIcanreplicatethesatisfactionand standardofwhichIhaveachievedinthisprojectinmyfuture studiesandcareer.Theexperiencegainedfromthissemester willunequivocallyimpactmystudiesandlifeinallaspects.

49

F I N A L

P O R T F O L I

TristanTio 1002265645 AR115DesignStudio1 Semester12022
O

Turn static files into dynamic content formats.

Create a flipbook
Issuu converts static files into: digital portfolios, online yearbooks, online catalogs, digital photo albums and more. Sign up and create your flipbook.
Portfolio_1002265645_TristanTioHockHaw by Tristan - Issuu