
Donde el diseño se convierte en hogar.



![]()

Donde el diseño se convierte en hogar.



Domus One es un desarrollo de viviendas que trasciende los límites de la arquitectura convencional, fusionando elegancia, funcionalidad y diseño en una propuesta única. Inspirado en la palabra latina “domus”, que significa “casa” o “vivienda”, este proyecto reinterpreta el concepto de hogar desde una mirada contemporánea y minimalista.
Con una ubicación estratégica en el corazón de San Martín, Domus One combina accesibilidad con un entorno urbano en crecimiento. Su diseño depurado, los materiales de alta calidad y la cuidada atención al detalle lo convierten en una opción ideal para quienes buscan equilibrio entre estética y confort. El edificio está compuesto por 13 departamentos diseñados para maximizar la privacidad y adaptarse al ritmo de una vida moderna y dinámica.


DomuS oNE:
ubiCaCióN IDEal

Domus One se implanta sobre una de las arterias principales de San Martín, en una zona vibrante, rodeada de comercios, servicios y con excelente conectividad. Su ubicación privilegiada ofrece fácil acceso a medios de transporte, facilitando la conexión con distintos puntos de la ciudad.
A pocos metros de la Peatonal Belgrano —el principal corredor comercial y peatonal—, Domus One combina practicidad y estilo de vida urbano. También se encuentra cerca de la emblemática Plaza
San Martín, frente a la Municipalidad, sumando un valor paisajístico y cultural al entorno.
El proyecto cuenta con proximidad a múltiples líneas de colectivos, a la estación del FFCC Mitre y a importantes avenidas como Av. 25 de Mayo, favoreciendo una movilidad urbana dinámica y eficiente.





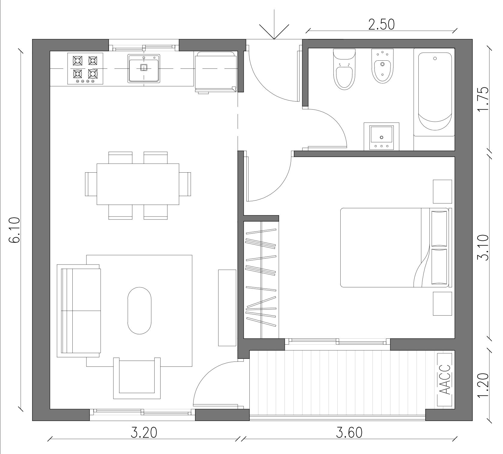
Domus One ofrece 13 exclusivas unidades de 2 ambientes, proyectadas con un enfoque integral en calidad, eficiencia y confort. Cada espacio fue cuidadosamente diseñado para aprovechar al máximo la luz natural, lograr una distribución funcional y brindar ambientes amplios, luminosos y acogedores.
Disposición frente y contrafrente.
Superficie cubierta: 41.00 M2
Expansión: 4.30 M2
Total: 44.30 M2

Unidades de 2 ambientes.



Domus One presenta 2 exclusivas unidades de 2 ambientes en dúplex, diseñadas para ofrecer una experiencia de vivienda que combina confort, funcionalidad y calidad espacial.
Distribuidas en dos niveles, estas unidades proponen una arquitectura contemporánea que maximiza la luz natural y optimiza cada metro cuadrado. Ambientes versátiles, luminosos y conectados con un estilo de vida moderno completan esta propuesta pensada para quienes buscan diseño y practicidad en un mismo lugar.
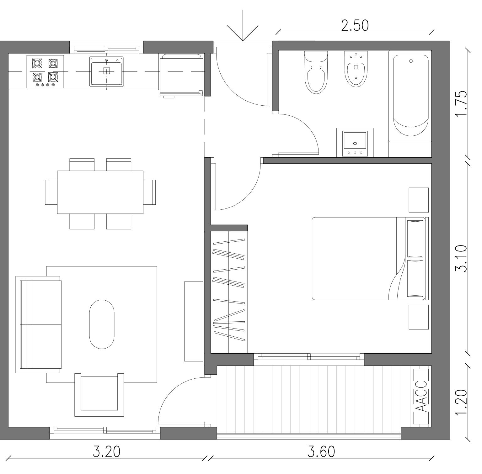
Disposición 6º contrafrente y 7º frente.
Superficie cubierta: 52.30 M2
Expansión: 34.30 M2
Total: 86.60 M2

Planta inferior dúplex.

Diseñadas para combinar confort, funcionalidad y una calidad espacial superior. Cada unidad cuenta con una distribución inteligente que maximiza el aprovechamiento de la luz natural y genera espacios amplios, cómodos y versátiles. El diseño contemporáneo se refleja en cada detalle, desde los materiales seleccionados hasta las terminaciones, garantizando una experiencia de vida moderna y eficiente. Ideales para quienes buscan un estilo de vida dinámico sin resignar calidez ni privacidad.
DETALLES TÉCNICOS
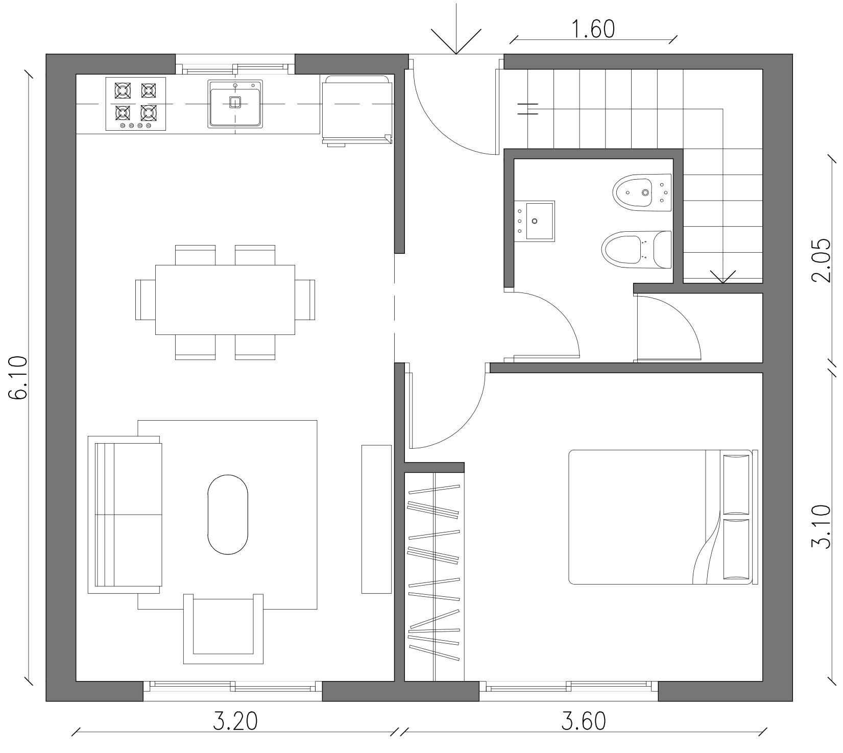
Disposición 6º contrafrente y 7º frente.
Superficie cubierta: 52.30 M2
Expansión: 34.30 M2
Total: 86.60 M2

Planta superior dúplex.




Fiel a su esencia sobria y contemporánea, DOMUS
One se construye a partir de una elección cuidadosa de materiales nobles, duraderos y de bajo mantenimiento, que refuerzan su carácter urbano y atemporal. Hormigón a la vista, carpinterías de aluminio, detalles en hierro y texturas naturales dialogan con el entorno sin estridencias, integrándose de manera armónica al paisaje de la ciudad.
Cada elemento ha sido pensado desde la funcionalidad y la honestidad constructiva, priorizando la experiencia del usuario por encima de gestos formales. El resultado es una arquitectura austera pero cálida, coherente, que se percibe desde lo cotidiano: en la luz que recorre los espacios, en la calidez de los materiales al tacto, en la simplicidad bien resuelta de cada rincón.











DomuS oNE:
proyECto y DirECCióN DE obra
LUMO ARQUITECTURA
Arq. Lucas Montenegro
Responsables del diseño y desarrollo integral de DOMUS One. El estudio se especializa en proyectos residenciales y comerciales, con una mirada contemporánea, funcional y comprometida con la calidad constructiva y el entorno urbano.
11-3475-1106 · lumoarquitectura@gmail.com · @lumo.arquitectura
MONTENEGRO PROPIEDADES
Martillero: Carlos Javier Montenegro
Más de 20 años de trayectoria en el mercado inmobiliario, acompañando a nuestros clientes en cada paso de su inversión.
Dirección: Ayacucho No 2740, San Andrés.
4713-1137 · info@montenegropropiedades.com.ar · www.montenegropropiedades.com.ar




