
arquitetura e urbanismo







![]()

arquitetura e urbanismo







Sou uma pessoa curiosa por natureza, sedenta por conhecimento e com uma profunda admiração e paixão pelas Artes, em especial, pela arquitetura e design. Durante meus anos de faculdade, adquiri muitas habilidades que me ajudaram não apenas a visualizar ideias, mas também a comunicá-las de maneira completa e eficaz.
Neste por olio, apresento alguns dos trabalhos desenvolvidos ao longo da minha trajetória acadêmica, e destaco algumas de minhas competências e habilidades, as quais estão em constante desenvolvimento; pois procuro sempre estudar e me reinventar, impulsionada pelo meu espírito autodidata; a fim de evoluir tanto como pessoa, quanto como profissional.

Formação Acadêmica
2010 - 2017 Bacharel em Arquitetura e Urbanismo: Universidade de Santa Cruz do Sul - UNISC, RS. Brasil
Graduação Sanduíche no Exterior: University of New Mexico - UNM, NM. Estados Unidos

Experiência Profissional
2011 Escritório Arquitetura Contemporânea - Estagiária
Confecção de maquetes físicas dos projetos do escritório para exposição na 2ª feira regional de construção - ConstruArte, em Santa Cruz do Sul.
Projeto de Restauração Casa das Artes Regina Simonis - Estagiária
Realização do levantamento técnico arquitetônico do edifício, levantamento e detalhamento das esquadrias, levantamento das prospecções pictóricas e acompanhamento da análise do sistema construtivo da edificação histórica.
Construtora KS Engenharia e Construções - Estagiária
Elaboração de projetos de Arquitetura e Engenharia em todas as suas etapas, desde o projeto arquitetônico e complementares até o projeto estrutural e seus detalhamentos para a obra; definindo materiais, acabamentos, técnicas, metodologias, analisando dados e informações.
Escritório Arquitetura Contemporânea - Arquiteta
Realização de projetos arquitetônicos de construção civil, desde o trabalho conceitual inicial até a sua finalização; realizando assim os projetos arquitetônicos, complementares e executivos, com detalhamentos para a execução em obra. Trabalho em conjunto com demais profissionais, arquitetos e engenheiros, para o alinhamento preciso entre o projeto arquitetônico e seus complementares, garantindo a ideal execução do projeto durante sua construção em obra. Acompanhamento e assessoramento ao cliente e aos mestres de obra durante todo o projeto e execução.

Realizações
- Bolsa de estudos de 100% para o curso superior através do programa PROUNI;
- Bolsa de estudos CAPES de % para estudos no exterior através do programa Brazil Scientific Mobility Program;
- Conclusão do curso de Arquitetura e Urbanismo com média global correspondente ao primeiro lugar da turma.




(51) 99575-5175
camilafrancetto.work@gmail.com
www.linkedin.com/in/camilafrancetto
Santa Cruz do Sul, RS. Brasil

Competências / Qualificações
Ética
Autodesenvolvimento
Trabalho em equipe
Pensamento Crítico
Comunicação
Liderança
Criatividade
Organização/Gestão de tempo
Inglês proficiente

Habilidades / Softwares
Autocad
SketchUp
Lumion
Revit
Adobe Photoshop
Adobe Illustrator
Adobe inDesign
Microsoft Office

Hobbies e Interesses







TRABALHOS SELECIONADOS

Projeto Arquitetônico
2011 Projeto II: Casa Mirante
2013 Projeto V: Museu de Artes
2016 Projeto VII: Residencial Santa Cecília
2017 Trabalho Final de Graduação: Centro de Atenção Psicossocial

Urbanismo | Paisagismo
2012 Paisagismo I: Praça Central da Unisc
2014 Studio V: Densificação Urbana da Praça Cívica

Interiores
2016 Arquitetura de Interiores: TEAM - Espaço Coworking + Café

Maquete física
2011 Maquete e Fotografia: Casa de Paraty



Disciplina de Projeto II - Residência unifamiliar /
Com um terreno elevado, o qual possuía belas vistas para a cidade de Santa Cruz do Sul, foi desenvolvido o projeto da residência sobre o conceito de casa mirante, com a intenção de explorar as visuais do sítio. A composição do projeto partiu da sobreposição de dois blocos principais (social e íntimo), com a rotação do superior para a esquina do terreno, criando assim o mirante da casa para a cidade. Um terceiro volume foi desenvolvido para os fundos do terreno, com ambientes de serviço e uma residência à parte para visitantes, abrindo-se para a área de lazer junto à mata nativa protegida. O projeto foi desenvolvido em estrutura de madeira e planos de pedra.

















Fotografias da maquete física:
1. Perspectiva aérea a partir do fundo do lote
2. Perspectiva a nível do observador a partir do acesso
3. Perspectiva a nível do observador do pátio interno


Porto Alegre [RS]
Disciplina de Projeto V - Museu contemporâneo junto à edificação histórica /
Projeto desenvolvido no centro da cidade de Porto Alegre, com a proposta de criação de um novo museu da capital gaúcha em ampliação a um anexo cultural já existente, em um edifício histórico. A composição formal surgiu a partir dos alinhamentos do terreno, da vegetação existente e modulações do prédio histórico. O projeto envolve espaços de exposição internos e externos, áreas de manutenção e serviços do museu, ateliers de arte, e áreas administrativas.



















Fotografias da maquete física:
. Vista superior do conjunto . Perspectiva aérea a partir do canto superior norte do terreno . Perspectiva a nível do observador da lateral sul, mostrando a edificação histórica em primeiro plano


Disciplina de Projeto VII - 6/
O Residencial Santa Cecília consiste em um projeto de habitação coletiva e intervenção urbana para o bairro Arroio Grande, de Santa Cruz do Sul. O princípio do projeto parte da inserção de blocos de apartamentos residenciais, que agregam usos comerciais e de prestação de serviços, a áreas de lazer paisagísticas e recreativas, que consistem em espaços de uso comum não apenas para os moradores do condomínio, mas também para todo o bairro. A área de inserção do projeto apresenta-se em formato de um "L" dentro da malha urbana existente, abrangindo dois grandes quarteirões ao sul - com um entorno edifcado e de maior densidade e altura, e um terceiro, que se estende de forma linear para o norte, ao longo de um riacho ao lado esquerdo. Desse modo, as edificações propostas distribuem-se pelo terreno em forma de "desconstrução de densidades", onde os blocos de maior altura concentram-se ao sul e vão se "dissolvendo" para a faixa norte, diminuindo o número de pavimentos gradativamente - de 8 para 3, acompanhando assim a densidade já construída no entorno existente. Esse conceito é demonstrado através dos diagramas seguintes - imagens 4 e 5.







. Vista aérea da área revitalizada ao longo do riacho. Pode visualizar-se claramente aqui a desconstrução dos pavimentos edificados
. Vista de uma das áreas de uso comum que são distribuídas próximas à circulação vertical em todos os blocos residenciais do condomínio
3. Área de estar de uso comum na cobertura de uma das edificações
e . Diagramas do conceito de "desconstrução das densidades": à esquerda, a diagramação das alturas do entorno, e à direita, as alturas das edificações propostas.













































































O residencial abrange um total de apartamentos, cuja orientação solar é norte, leste e nordeste, mantendo para o oeste somente as áreas de circulação e as áreas comerciais no pavimento térreo ao longo do riacho, que são protegidas pela vegetação durante o verão. O afastamento entre as edificações foi estabelecido a fim de garantir que nenhum apartamento ficasse sombreado durante o inverno. Nas áreas então formadas entre as edificações, os caminhos que interligam os blocos desenham os espaços de lazer; com gramados, árvores, quadras de jogos, playground, horta comunitária; sempre direcionando o movimento para a faixa oeste, onde encontra-se o espaço revitalizado ao longo do riacho.
É entorno do riacho revitalizado que se forma a área de maior vitalidade fornecida pelo residencial para uso do bairro, com áreas de lazer em meio à vegetação; espaços comerciais, onde os próprios moradores podem oferecer seus serviços; e áreas gastronômicas, atraindo a população para o local e valorizando os imóveis já existentes do entorno. Uma ciclovia que conecta o resindecial ao bairro e à cidade ainda estende-se por essa faixa, enquanto que o ponto de ônibus situa-se no lado oposto do lote, integrando-se à malha existente de transporte público do município. Próximo deste, ainda propõe-se um espaço para feira rural e artesanal e creche comunitária, inserida no térreo de uma das edificações, enquanto que, em sua maioria, este espaço destina-se ao estacionamento de veículos. -












Na página anterior:
6. Planta baixa do pavimento térreo, apresentando as áreas verdes e espaços de uso comum entre os blocos de apartamentos; as salas comerciais na faixa oeste ao longo do riacho; as áreas de estacionamento sob as edificações; e o espaço da creche comunitária no térreo da edificação situada ao ponto nordeste do lote. Também apresenta-se aqui a proposta de uso para os núcleos de circulação vertical, com espaços de uso comum que diferem em cada pavimento, como áreas de convivência e descanso, academias, lavanderias, espaços para música e espaços para as crianças.
e 8. Fachada da edificação no lado social e dos dormitórios, com a creche comunitária no pavimento térreo. Ao lado, corte transversal do mesmo bloco de apartamentos, com o playground da creche e o muro de proteção.

. Vista aérea do conjunto habitacional a partir do lado Noroeste para o Sudeste, com os apartamentos de pavimentos e o riacho em primeiro plano Nesta página: . Vista a partir da varanda de um dos apartamentos.
. Visual a nível do observador da área de convivência entre os blocos de apartamentos, com enfoque para a quadra de esportes.
. Visual aérea da área verde entre os edifícios, com enfoque para o playground e piscina.
. Visual aérea do conjunto habitacional a partir do ponto Sudeste em direção ao lado Oeste, com as edificações de pavimentos em primeiro plano.

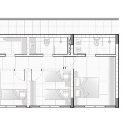
As unidades distribuem-se em plantas tipo de , e dormitórios, com % dos apartamentos acessíveis para pessoas com deficiência. A disposição dos apartamentos para somente um dos lados da circulação permite a ventilação cruzada e evita as visuais diretas para o interior de um apartamento ao outro. A estrutura dos edifícios constitui-se de concreto armado convencional, com vedações em blocos cerâmicos de alvenaria racionalizada, que atendem às normas de desempenho.
































Trabalho Final de Graduação - Tema de livre escolha /
A proposta baseia-se na concepção de um Centro de Atenção Psicossocial - CAPS nível II, que se caracteriza como um lugar de referência e tratamento para pessoas que sofrem com transtornos mentais. Por possibilitar que seus pacientes voltem para casa todos os dias, os CAPS evitam a quebra dos laços sociais e familiares, sendo assim um serviço subtitudo às internações em hospitais psiquiátricos. O projeto objetiva um espaço aberto e comunitário a fim de promover a cidadania e os direitos de todos, colaborando para a quebra do preconceito e da cultura existentes em relação àqueles que sofrem com transtornos mentais. O conceito do projeto se desenvolve em torno da adoção de pátios internos. Desse modo, o programa organiza-se a partir de dois blocos principais, dispostos de forma contígua a acompanhar a linearidade do terreno, conectados entre si por esses vazios. A implantação de pátios apóia-se em uma estratégia projetual na qual o foco principal de qualificação é o ambiente interno, a fim de conectar os usuários a áreas externas, permitindo assim o contato destes com elementos naturais e um generoso acesso solar, além de criar a liberdade de estar em um ambiente aberto mesmo que dentro de um espaço edificado. Os pátios induzem a uma atmosfera introspectiva, humanizando o ambiente físico clínico pela criação de um microcosmo de proteção e tranquilidade.
























Esquema de composição da forma
. Perspectiva a nível do observador do acesso ao Centro
. Vista aérea a partir do ponto sudeste, mostrando a fachada principal da edificação
. Vista aérea a partir do ponto noroeste, mostrando os fundos da edificação
. Implantação
. Área de recepção e espera




































































A composição formal se estabelece de modo simples: busca-se a distribuição dos principais ambientes do projeto e de maior permanência na faixa leste do terreno, e da zona de serviços na parte oeste, liberando assim a área central do lote para a criação dos pátios e áreas de uso comum. A adoção de um segundo pavimento se estabelece não apenas como uma solução para a distribuição de áreas, mas também, e talvez, principalmente, como uma maneira de estabelecer e marcar a relevância do projeto como equipamento público no contexto da cidade.
A partir da implantação do edifício de forma perpendicular ao Leste, buscaram-se eixos principais de conexão entre os dois blocos, os quais permitiram uma distribuição adequada dos diferentes fluxos existentes e formaram as áreas dos pátios internos. Um eixo central horizontal no sentido leste-oeste foi definido como um elemento divisor de setores: é nesse eixo em que ocorrem os acessos do público, a leste, e de serviços e funcionários, a oeste, e onde encontram-se as áreas de uso comum e os elementos de circulação vertical. Ao norte desse eixo distribuem-se os setores de acolhimento e de serviços, e ao sul encontram-se as áreas de atendimento e de usos dos médicos, terapeutas e administradores. Essa distribuição fundamenta-se principalmente na relação entre o edifício e o usuário externo, uma vez que a área de maior circulação externa localiza-se ao norte, onde encontra-se a via de maior fluxo de veículos e pedestres, assim como equipamentos públicos geradores de movimentação, como pontos de ônibus. Os setores também são distribuídos de modo a facilitar o acesso dos funcionários médicos e de serviços a cada ponto de atendimento, sem haver um impacto significante nas áreas utilizadas pelos pacientes e impedindo que os seus fluxos coincidam.
No pavimento superior são distribuídas as áreas de terapia ocupacional, marcando através da hierarquia volumétrica a importância desse setor no contexto da saúde mental, uma vez que esse estabelece a terapia através do trabalho e da socialização, tendo sido, e ainda ser, um dos principais elementos que transformaram a história do tratamento aos transtornos mentais.
. Perspectiva a nível do observador do pátio interno sul da edificação, com o setor administrativo à esquerda
. Vista do jardim de inverno na área dos consultórios
. Vista do pátio interno norte da edificação, com o espaço em comum de estar e refeitório ao fundo
. Vista do jardim de inverno no setor de acolhimento










































































































































































































































































Disciplina de
I - /
Esse projeto constitui uma proposta paisagística para um espaço verde abandonado em uma das áreas centrais da UNISC. A área conecta diversos setores importantes dentro do campus, como por exemplo, a bibioteca central e o estacionamento principal, e por isso apresenta um grande fluxo de circulação de pessoas, constituindo-se assim como uma área de grande relevância para a universidade. O espaço encontra-se descuidado, sem nenhum trabalho paisagístico, apenas com caminhos circundantes que conectam os blocos e de difícil acessibilidade para pessoas com deficiência, causando assim um impacto negativo tanto de forma funcional quanto visual para os seus transeuntes. A revitalização da área objetiva torná-la um ambiente atrativo e de qualidade nos usos do espaç0, agregando ao ambiente o seu devido valor e contribuindo positivamente no cotidiano daqueles que utilizam o local.



. Visual em direção ao ponto central da praça, com a praça de alimentação à direita e a lanchonete e o mirante ao fundo
. Espaço verde no platô do mirante
. Vista aérea da praça, a partir do ponto inferior esquerdo em direção ao lado Nordeste
. Visual a nível do observador no ponto central da praça, com o mirante e a queda d'água à esquerda
. Vista de um dos espaços verdes de descanso no setor direito da praça, com a escultura e a edificação leste ao fundo [todas as visuais estão demarcadas na planta baixa da página seguinte]




6. Visual a partir do ponto inferior esquerdo em direção ao ponto central da praça
. Praça de alimentação com o mirante ao fundo
. Lanchonete e área de alimentação
. Visual do platô do mirante para o centro praça, com o estacionamento da universidade ao fundo
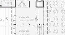
. Planta baixa
. Corte transversal AA'
[todas as visuais estão demarcadas na planta baixa da página seguinte]

O conceito da proposta baseia-se no princípio fundamental do uso desse espaço: a circulação e o fluxo de pessoas. Para tanto, o desenho parte da análise desses fluxos, estudando os sentidos e direções de movimento dos pedestres e as áreas de maior concentração de fluxo, o que permitiu a projeção das rotas de circulação e as suas devidas dimensões. Devido à topografia acentuada do local, buscou-se trabalhar principalmente com o uso de rampas e platôs, de modo a permitir que todos os pontos sejam acessíveis.
Os caminhos traçados se interligam no centro da área, formando o núcleo do projeto, onde o espaço se amplifica para permitir a concentração e a intercepção desses fluxos. Consequentemente, cria-se um amplo platô central que permite a realização de atividades diversas, dentre elas, propõe-se uma praça de alimentação, pois constitui um ponto-chave dentro do campus, principalmente por oferecer um local para refeições nos intervalos das aulas. O caminhos desenhados, em conjunto com a localização da vegetação existente mantida, também acabam por definir o traçado das áreas verdes, que funcionam principalmente como pontos de contemplação e descanso.



Na parte superior do lote, onde situa-se o maior desnível do terreno, propõe-se um platô com a implantação de um mirante, que permite visuais para toda a praça. Uma queda d'água junto à parede desse platô cria um efeito cênico e soluciona o desnível de forma atrativa. Já na parte inferior, o desenho de escadarias no gramado da área verde cria uma espécie de arquibancada, que permite o uso desse espaço também para apresentações ao ar livre, enquanto que nas laterais do lote formam-se espaços mais privativos, uma vez que essas áreas do terreno estão cercadas pelos edifícios em forma de "H".
O mobiliário proposto segue a mesma ideia de desenho da praça, com bancos em concreto armado de formato sinuoso e linear, que remetem às linhas do paisagismo. A inserção de esculturas em pontos de contemplação sugere o uso do espaço também para fins de exposições, que podem ser artísticas ou até mesmo acadêmicas, a partir de trabalhos desenvolvidos pelos alunos da própria universidade.
A proposta de paisagismo apresentada convida as pessoas a permanecerem no ambiente criado e fazerem uso do mesmo, transformando essa área em um espaço de permanência, e não somente uma área de transição como funcionava até então.
















N




























































Densificação Urbana da Praça Cívica
Albuquerque [NM], Estados Unidos
Disciplina de Design Studio V - ARCH /
O projeto de densificação urbana da Praça Cívica faz parte de uma grande proposta de requalificação urbana da cidade de Albuquerque, para a qual foram propostos diversos projetos para diferentes áreas da cidade por diferentes turmas da Faculdade de Arquitetura da Universidade do Novo México. A Praça Cívica consiste em uma grande praça seca localizada no centro da cidade, a qual permanece vazia durante a maior parte do ano, muito devido às condições climáticas de sol e calor que predominam na cidade. Por isso, o principal objetivo do projeto consistia em atrair o público para a utilização desse local, densificando a área pouco frequentada atualmente. Para tanto, fora proposta uma requalificação paisagística e urbana no espaço, incorporando ambientes de lazer e convivência, bem como a mudança de usos do espaço, incorporando edificações de caráter misto; comercial e habitacional, o que faria com que as pessoas tanto frequentassem esse local, como também permanecessem nele. O projeto liga-se diretamente às demais propostas de requalificação urbana da cidade, como, por exemplo, a abertura de novas vias no entorno imediato da praça e a inserção de uma nova estação de metrô no local.














































































. Implantação das novas edificações em meio ao entorno existente
. Visual a partir da via que cruza a implantação, com áreas comerciais no pavimento térreo e edificações de uso misto ao fundo
e . Vistas diurna e noturna, respectivamente, do ambiente transformado com as edificações de uso misto
e . Vista aérea da praça antes e depois da inserção do projeto







Disciplina de Arquitetura de Interiores - 6/
O projeto consiste em uma requalificação e readequação de usos de uma edificação histórica localizada no centro da cidade, propondo um espaço de trabalho em grupo dentro da temática do Coworking, bem como um café para atender tanto àqueles que estejam trabalhando no local, quanto ao público em geral. O conceito para a proposta visual do espaço concentra-se na temática da arquitetura industrial. Para tanto, buscou-se a utilização de materiais de aparência bruta, como o concreto aparente, o aço, e a madeira, além de pinturas em tonalidades mais sóbrias. Mantiveram-se os elementos estruturais, como vigas e lajes, de modo aparente, e propôs-se a retirada do revestimento das paredes em algumas áreas, a fim de deixar os tijolos da estrutura original da edificação histórica visíveis. Em contraposto à essa brutalidade, foram incorporadas diviórias de vidro para segmentear ambientes internos, trazendo leveza para o interior do ambiente.

Primeiro Pavimento:
Hall e Recepção
Circulação Vertical
Salão do Bistrô
Copa do Bistrô
Área Mista: Bistrô e Coworking
Sanitários
Área Técnica: Tecnologia da informação (TI)
Espaço Coletivo Coworking
Salas particulares e Cabines telefônicas
Depósito de material de limpeza
Segundo Pavimento:
Circulação Vertical
Auditório
Salas privativas amplas
Salas de reunião
Sanitários
Depósito de material de limpeza
Área técnica: Central de ar condicionados
Espaço Coletivo Coworking
Copa/ Refeitório
. Visual a partir da área mista do Coworking e Bistrô
. Mesas de trabalho coletivo
. Mesas de trabalho da área mista e espaço do Bistrô ao fundo
. Planta baixa humanizada do pavimento de detalhamento (pavimento térreo)































































Seguindo a temática industrial, também fora proposta a exposição das tubulações mecânicas de ar condicionado e as tubulações elétricas, assim como a utilização de luminárias e peças de mobiliário que se encaixam dentro desse conceito. A escolha das luminárias e também do tipo de luz deteve-se à função de cada ambiente, com luminárias metálicas e iluminação neutra nas áreas de trabalho, e luminárias de estilo vintage e iluminação quente para as áreas do bistrô.
No térreo buscou-se a distribuição de espaços de caráter público, com a disposição do café próximo à entrada da edificação e áreas de trabalho coletivo ao centro; enquanto que os ambientes mais privativos foram mantidos no segundo pavimento, como o auditório, salas de reunião e o próprio espaço de refeição, descanso e convivência dos trabalhadores do Coworking.
















O projeto consiste em uma requalificação e readequação de usos de uma edificação histórica localizada no centro da cidade, propondo um espaço de trabalho em grupo dentro da temática do Coworking, bem como um café para atender tanto àqueles que estejam trabalhando no local, quanto ao público em geral. O conceito para a proposta visual do espaço concentra-se na temática da arquitetura industrial. Para tanto, buscou-se a utilização de materiais de aparência bruta, como o concreto aparente, o aço, e a

Studio MK - Paraty [RJ]
Disciplina de Maquete e Fotografia - /
A construção desse modelo físico teve como conceito principal a representação realística e detalhada do projeto da Casa de Paraty, buscando representar todos os elementos da edificação e do seu entorno imediato da forma mais fiel possível. Localizada em meio à uma densa mata à beira-mar, a paisagem do entorno e a topografia elevada do sítio foram os principais desafios para a construção do modelo, assim como o detalhamento da edificação devido à pequena escala de representação. Fez-se a utilização de materiais existentes, quando possível, como as pedras, a madeira e a areia, e para os demais, buscou-se uma solução que se aproximasse o máximo possível do realismo, como o uso da glicerina e corante para a representação do mar e de massa acrílica marcada com ranhuras para a reprodução do concreto aparente da residência. Internamente, todos o mobiliário foi elaborado com o uso de massa de modelar, com pintura que segue à risca as cores do projeto.



. Vista superior do modelo . Vista de todo oconjunto da maquete
. Fotografia com destaque para a edificação, mostrando em detalhe a representação
fiel dos materiais, como o concreto e a madeira, além do detalhamento interno com a representação do mobiliário e das paredes de pedra e vidro.
. Detalhe da representação realísitica da água e das ondas do mar
. Vista frontal a partir do mar


