Calam Kearney Portfolio 2023-24

Page 1


Introduction

As an Architectural Technologist with a focus on innovative and sustainable construction, I specialise in creating modular unit designs that are fully constructed off-site, optimising both efficiency and quality. My expertise lies in producing comprehensive architectural, structural, and MEP drawings, leveraging tools like Revit to ensure precision and clarity in every project

My role extends beyond design; I oversee design and manufacturing timelines, collaborate with cross-functional teams, conduct factory inspections, and ensure production meets rigorous quality and schedule standards

My experience with Enevate Homes has solidified my commitment to sustainable building practices, encouraging me to adopt proactive, cutting-edge methodologies. By actively engaging in design team meetings, coordinating with contractors and architects, and managing site visits, I consistently maintain workflow efficiency across all stages of project delivery. This portfolio showcases my dedication to pushing the boundaries of efficient, high-quality, and sustainable construction solutions.

Longman Park

Project Overview

Client: The Highland Council & Morrision Construction

Location: Longman Park, Inverness

Project Scope: Modular housing development in phased construction

Phase 1 Completion: 5 houses; each consisting of two pods (17m in length) using the Enevate bolted system

Phase 2: Start date TBD (8 Houses)

Project Responsibilities and Contributions

In this modular housing project, I held a multi-disciplinary role spanning design, technical detailing, and quality assurance, producing over 350 drawings. My responsibilities began with the design and specification of the pod components to ensure seamless integration with the Enevate bolted modular system, achieving a structural length milestone of 17 meters per pod. Working closely with the architects, I developed house types that conformed to both client needs and system constraints. This included producing comprehensive pod design details, M&E layouts, and architectural and setting-out details, along with secure holding-down specifications. Ensuring that every detail aligned with both practical requirements and the client’s vision.

Collaboration and Quality Control

I coordinated regular factory visits, guiding teams from the main contractor, the client, and the architects through the modular production line. Through these visits and ongoing design meetings, I oversaw quality control, ensuring each pod’s adherence to the drawings and specifications. My active role in these walkthroughs and meetings played a critical part in maintaining quality and consistency throughout Phase 1.

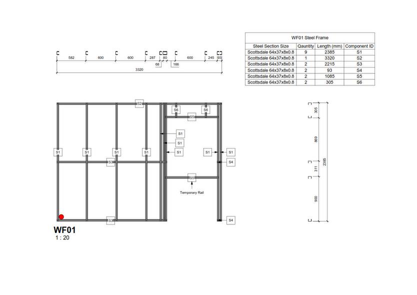
Pod Drawings

My role includes setting out wall layouts and panel details to ensure that stud partitions are accurately placed and aligned. Each wall panel is meticulously designed, ensuring seamless integration into the bolted modular framework. I also develop floor cassette layouts, specifying the exact placement of edge beams and joists Critical details, such as hole locations, are precisely defined to facilitate smooth manufacturing and assembly processes. To ensure high-quality drawings can be produced for manufacturing.

System 2 Components

Responsible for creating all bolted components as families in Revit for 3D modelling and technical drawings to send to manufacturers to be produced.

Pod Details

I developed detailed specifications and configurations for the Enevate System 2 bolted system, tailored to ensure standardisation across factory operations. This approach streamlined processes and enhanced uniformity. Additionally, I applied this system effectively to the Longman Park project, demonstrating adaptability and precision in execution.

Roof Truss Drawings

This was the first occasion for shipping modular units with preinstalled roof trusses. These trusses played a crucial role in the racking system, making precise measurements and alignment essential to ensure seamless integration during the on-site roof assembly.

Fixing Details

In the Enevate bolted system, ensuring that wall panels are effectively braced is crucial for providing structural stability and preventing torsion. Collaborating closely with a structural engineer, we have identified the specific panels that require additional reinforcement. This careful analysis ensures that both the internal and external boards of each panel have precise screw-fixing patterns, which are essential in enhancing the system's racking performance During the design phase, every wall panel is meticulously drafted, and detailed manufacturing drawings are generated. This thorough planning guarantees that each panel is fabricated to exact specifications, ensuring seamless integration and optimal performance upon installation.

Technical Section

Architectural Details

Throughout this project, I developed a comprehensive set of architectural details for all building elements, encompassing the basecourse, windows, roof, and pod connections These detailed specifications were provided to the onsite team to facilitate the final assembly and ensure the precise application of finishes where necessary.

In this project, one of my key responsibilities was ensuring the accurate setting out of modular pods during installation. This involved coordinating with the drilling contractor to align the site-specific requirements with the project specifications, particularly regarding the threaded rods welded to the underside of the pods. I collaborated closely with the structural engineer to develop secure tying-down solutions, addressing challenges posed by the high-wind environment near the ocean marina in Inverness. Additionally, I provided detailed site-specific guidance and oversight to ensure the proper execution of the installation process.

I was responsible for developing the Mechanical, Electrical, and Plumbing (MEP) layouts for modular pods. This involved acquiring a comprehensive understanding of the systems to be integrated into the houses, such as the Air Source Heat Pump (ASHP), mist sprinklers, and the Mechanical Ventilation with Heat Recovery (MVHR) system. With this knowledge, I was able to create detailed layouts and conduct clash detection to ensure that the systems and structural elements were properly coordinated. It was crucial that crossover points aligned accurately between pods to maintain the integrity of the overall design

Kitchen Designs

In my recent project, I developed detailed kitchen designs with a focus on MEP layouts. I created 3D models that integrated essential systems for functionality and efficiency. These models were key in planning and produced high-quality renderings that helped clients visualise the proposed layout. This enhanced client engagement and satisfaction, allowing them to see how the systems would operate in their kitchen. Through this project, I improved my technical drafting and creative visualisation skills, ensuring a smooth transition from concept to reality.

Retrofitting

During the modular pod installation, site-related challenges arose that impacted the landing process. In response, I adapted retrofit solutions to address these challenges efficiently while maintaining the integrity of the original design. By assessing the site conditions and collaborating with the project team, I developed targeted adjustments to enhance the interface between the pods and the foundation. These modifications ensured precise alignment, stability, and compliance with project requirements, ultimately enabling successful installation without compromising the design intent

(WIP - Design Stage)

, within the ement level,

rgh introduces a a protected sitivity with storey building around 34 or efficient d quicker burgh’s g low-energy ght, aligning with of the ten eritagedge between y, eco-friendly nandale Street's ustainable, hoods.

Current Drawings

Please note that the drawings showcased in this portfolio are currently in the draft stage, as the project is still in its design phase. Each piece represents a work in progress, reflecting the ongoing evolution of ideas and concepts. These drafts are a testament to the creative process, highlighting initial explorations, structural layouts, and stylistic experiments. As the project develops, these drafts will serve as foundational elements that guide the final design.

Pod Drawings

In my upcoming project, I will be responsible for the design and implementation of 32 uniquely engineered pods. This initiative marks a pivotal advancement in our approach to structural integrity and durability Unlike previous models that utilised the Enevate bolted system, this project will adopt a welded system for the assembly of each pod. This decision was driven by the need to enhance the overall strength and stability of the structures, ensuring they meet the rigorous demands of their intended environments.

Enevate House Type Portfolio

Throughout my time at Enevate Homes I have been responsible for the creation of an event-focused portfolio showcasing modular house types with 3D volumetric construction

Structural Design

At the beginning stages of a project I would be responsible, creating 3D structural models for collaboration with structural engineers This process starts with understanding the architectural vision and translating it into a detailed digital model, which visually represents the building’s framework while considering factors like load distribution, material selection, and spatial constraints. Once the model is developed, close collaboration with engineers helps refine the design and accurately assess loads, analysing load paths and identifying critical elements. This synergy optimises the design for safety, efficiency, and cost-effectiveness, ultimately merging architectural creativity with structural practicality for a robust building design.

3D Details

My experience encompasses the creation of intricate spiral stair designs that meet aesthetic and functional requirements. Additionally, I have developed comprehensive roof designs My work extends to specifying various wall types, each meticulously designed to optimise thermal performance and contribute to sustainable building practices. These wall types are crucial in calculating U-Values, a key factor in achieving energy efficiency and regulatory compliance. Through my detailed and precise contributions, I have consistently delivered solutions that align with clients' visions and the latest industry standards.

Revit Phasing

I have used Autodesk Revit's phasing capabilities in my manage different construction stages. This tool is essen and multi-phase projects, allowing me to integrate new structures. By clearly communicating timelines and sco project efficiency and reduce risks of miscommunicatio

y projects to effectively plan and ntial for complex renovations w designs with existing ope to stakeholders, I enhance on and design errors.

B I M P r o c e s s e s

In this portfolio section, I showcase my proficiency in Building Information Modeling (BIM) for improved project efficiency and accuracy Utilizing Revit, I enhance stakeholder collaboration and optimise workflows while Navisworks aids in early clash detection and issue resolution. I generate comprehensive reports for informed decisionmaking and extract COBie data to uphold high data standards. Adhering to ISO standards, I ensure quality and consistency. My experience with cloud-based systems like Autodesk Construction Cloud (ACC) & Viewpoint highlights my ability to collaborate securely, streamlining project execution in line with modern industry practices. During college, I developed my Building Information Modeling (BIM) skills through various software tools, creating detailed digital representations of building projects. This expertise was crucial for the WorldSkills UK competition, where I applied my BIM knowledge to improve project efficiency and collaboration My preparation enhanced my technical skills, problem-solving abilities, and teamwork, all vital for success in the competition.

portfolio.

Turn static files into dynamic content formats.

Create a flipbook
Issuu converts static files into: digital portfolios, online yearbooks, online catalogs, digital photo albums and more. Sign up and create your flipbook.
Calam Kearney Portfolio 2023-24 by CalamKearney - Issuu