

Mixed Use
Residential Professional Building
Impeccably Built, Fully Leased Investment Opportunity
This exceptional commercial property offers a rare combination of income potential and luxury living. The medical/professional suites are 100% leased, ensuring steady revenue, including the spacious residential unit. Designed in a timeless Craftsman style, the residence boasts expansive south-facing windows, a sunwashed deck, and a private rooftop retreat. Rich wood inlays and custom details add elegance throughout. Lower-level storage units provide an additional revenue stream.
Located just 2 blocks from the Town square for easy accessibility. There are 17 on-site parking spaces for tenants and patrons to share.




Living at 320 E Broadway – where mountain elegance meets smart investment! Built in 2007 by renowned builder Tennyson Ankeny, this charming Craftsman-style mixed used residential/commercial property features a beautiful 2 bedroom/2 bath condominium with private, abundant decking, and amazing views of Snow King Mountain. This immaculate Craftsman style home has heated concrete floors, a cozy gas fireplace, 14’ ceilings – all just two blocks from bustling Jackson Hole town square.
MIXED USE
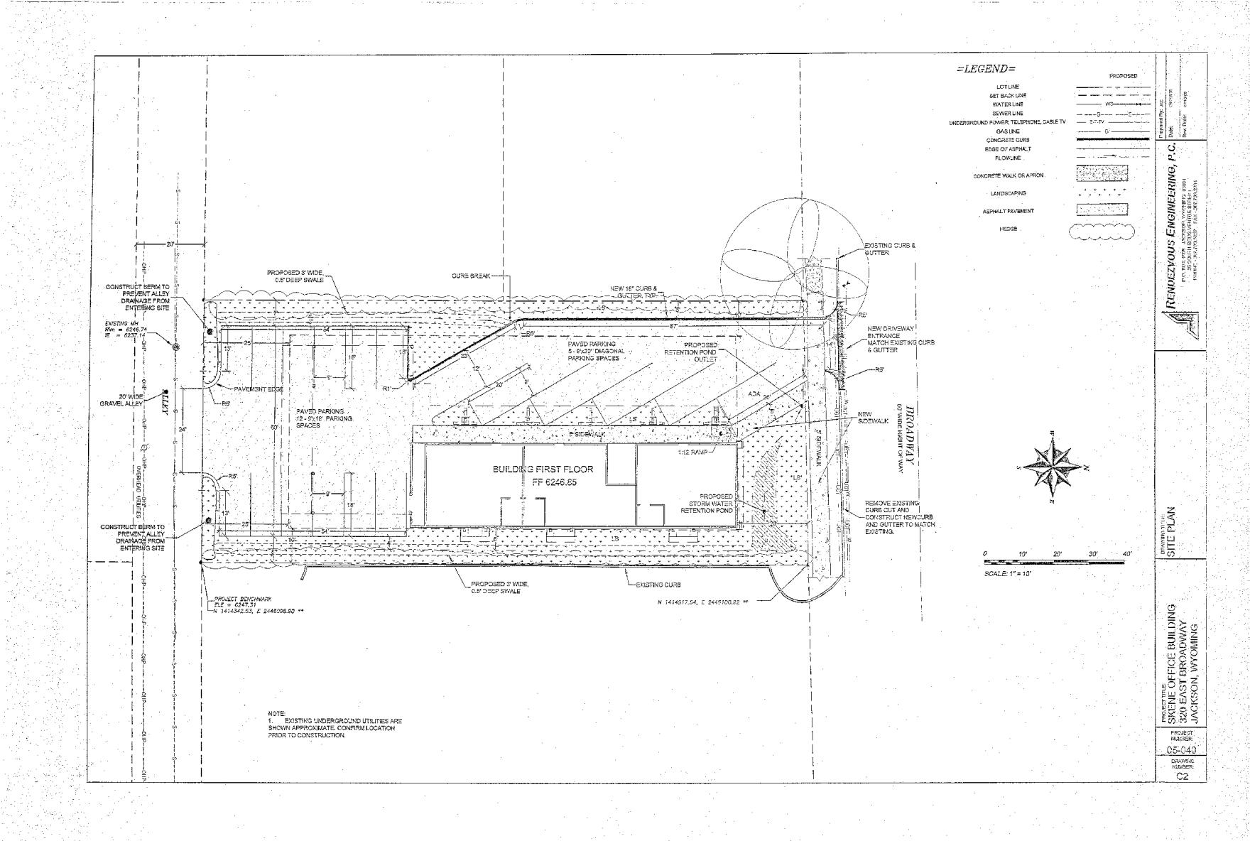
• .30 acres
• 7350 Total square feet
-1272 Basement
-2088 First Floor
-2586 Second Floor
-1404 Condo
• 6 Professional spaces
• 17 On-site parking spaces
• 5 Storage units in Basement
• 1 Large Owner Storage in basement
• Built in 2007 by Tennyson & Ankeny
• Architect: Lori Tillemans
• ZONING: OR
• 2 Blocks to Town Square
CONDO:
• 2 Bedroom
• 2 bathrooms
• Den
• In-floor heat
• Views of Snow King
• 14 Foot Ceilings
• Gas fireplace
• Private deck back deck from living and bedrooms
• Additional roof top deck

INCOME & EXPENSES
EXPENSES
EXPENSES
*Expenses do not include sporadic capital expenses (paving, lot striping). Landscape work done by owner.
Floor Plan

On-site Parking
