






THE PROPERTY - RENDERINGS
4 BD 3 BA PLUS 2 ACCESSORY DWELLING UNITS 4,100SF $2,100,000
500 East Kelly is a once-in-a-generation opportun ty to secure one of the most irreplaceable lots in Jackson
Hole Located directly across from a family-fr endly park, within walk ng distance to Snow King, downtown Jackson, and the Cache Creek tra l system, the property blends lifestyle, curb appeal, and long-term value
This site offers two h ghly compelling development paths
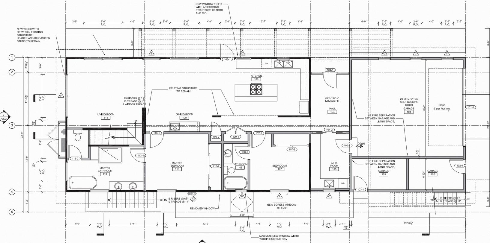
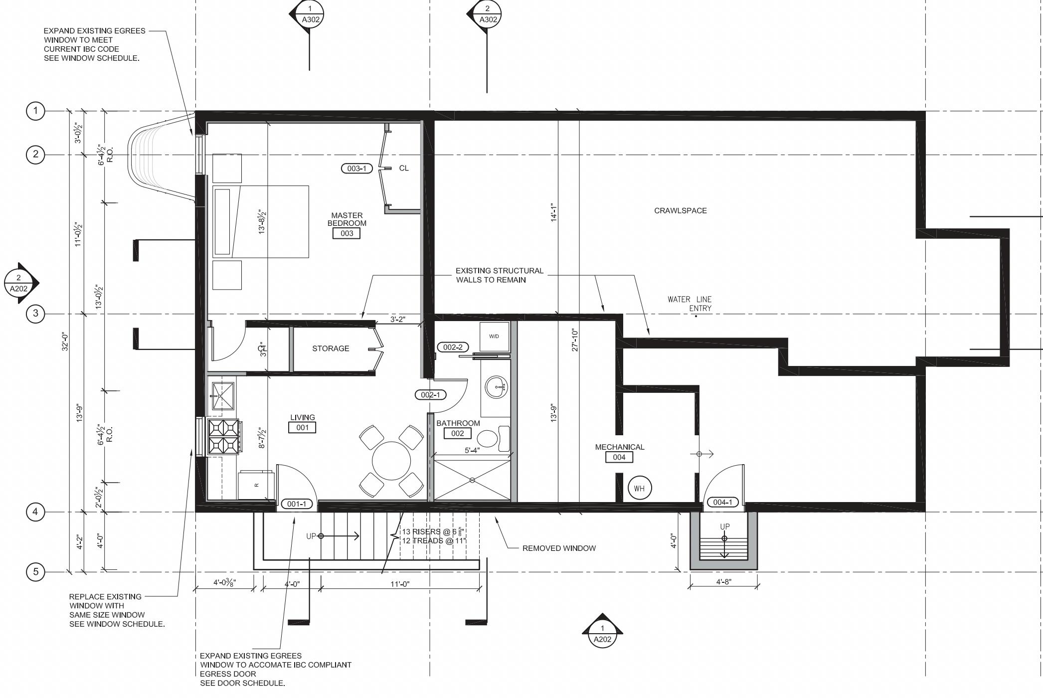
1. Ground-up Prefab Build – a pre-approved 4,100 SF home.
2. Remodel + Expansion – upgrade the exist ng structure and expand to 4,100 SF w th a modular garage and new add tion.


ALL IMAGES ARE RENDERINGS AND NOT ACTUAL PHOTOS OF THE COMPLETED HOME





