IF Architecture Evokes Interaction

Page 1

INTERACTION

Bryan Edgar

A Space of Duality - The Church of Light

Architect : Tadao Ando

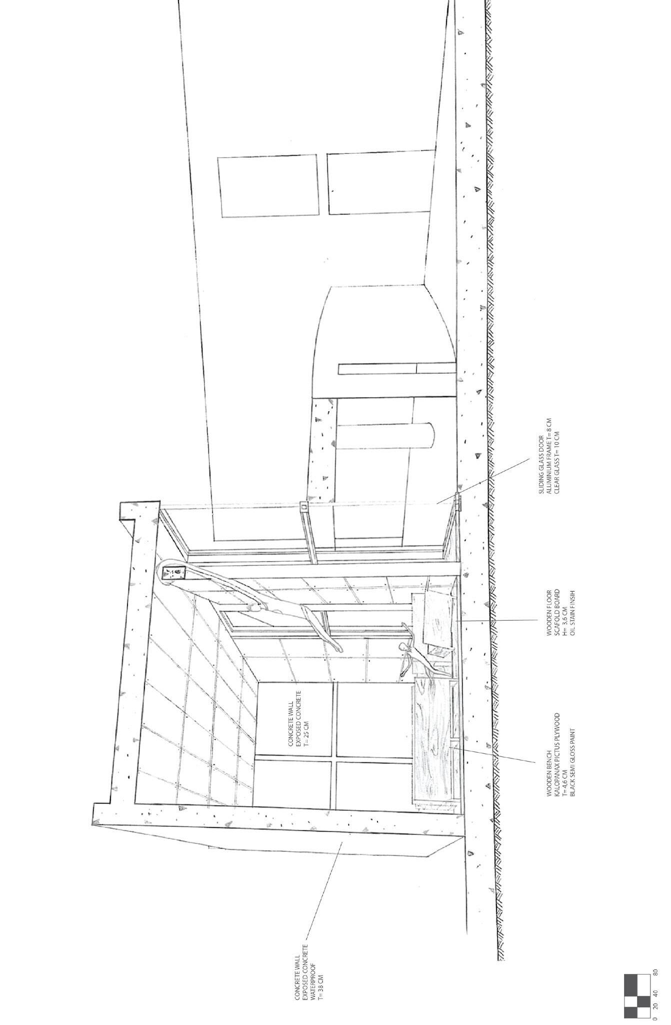
A Church of duality, bringing light and dark. The Church of Light karya Tadao Ando berlokasi di Jepang dan dirancang dengan intensi sebagai tempat untuk umat berkumpul dan berdevosi kepada Tuhan dalam sebuah desain tempat yang minimalis dan simple . Melalui itu, karakter bangunan gereja tersebut berbeda dengan karakter gereja tradisional. Pada sisi atas gereja terdapat sekolah minggu/Sunday school dan bersama denga gereja, kedua bangunan menggunakan tembok beton yang dasarnya berbentuk persegi panjang namun ditambah adanya tembok dengan kemiring 15 derajat yang menembus rangka persegi panjang tersebut. Pada denah dan potongan terlihat bahwa beton merupakan material yang terasa berat dibanding material kayu pada kursi juga kaca pada jendela melalui karakternya materialnya. (gambar 1)

Interior Gereja hanya menggunakan 2 material yaitu beton dan kayu. Berat beton direpresentasikan dengan warna biru dan orange merepresentasikan keringanan kayu dan kaca. Warna tersebut juga menunjukkan temperatur material, beton yang relatif dingin dibanding kayu. Kursi terdapat pada kedua sisi Gereja dan memiliki perbedaan ketinggian di setiap barisnya dengan menghadap pada meja dengan celah Salib di depan pengunjung. Pada diagram terlihat perbedaan tinggi yang drastis dengan manusia yang memberi perasaan megah. Walaupun beton memiliki kesan yang berat, tekstur beton lebih halus dibanding kayu yang memiliki serat saat dipegang. Sehingga pengunjung terdorong untuk mengunakan indra-indra mereka dan mendapat berbagai kesan yang didapatkan pada gereja yang berdesain minimalis ini. (gambar 2)

Namun setelah itu muncul pertanyaan, mengenai interaction with and within the space. What happens when 4 characters meet? What happens on the outside? What happens on the inside? Ketika matahari berada di sisi tenggara dan cahaya matahari menembus masuk ke celah salib pada depan bangunan, celah tersebut membuat pengunjung terfokus pada salib, karena suasana ruangannya redup, hanya disinari cahaya yang memancar keluar dari celah salib. Pada gambar terlihat sifat ke-monokroman bangunan. Sang arsitek berintensi agar pengunjung dapat fokus dan mengarahkan diri pada salib melalui cahaya. Selain itu juga terdapat celah-celah kecil yang menghadirkan cahaya juga, seperti celah pada tembok yang memotong bangunan. Elemen-elemen pada bangunan ini lah yang akan berinteraksi dengan pengunjung. (gambar 3&4)

The church of light memang terlihat simple namun banyak sekali pertemuan material yang dengan pandai disembunyikan oleh sang arsitek. Seperti glass sliding door yang mekanismenya, terdapat base railing di bagian bawah dan atas pintu yang menjadi tempat pintu bergeser dengan roda. Bangunan yang sekilas terlihat simple namun justru sangat intricate, hal tersebut menunjukan betapa hebatnya sang arsitek dalam meracang sebuah design yang thoughtful. (gambar 5&6)

Gambar 1. Site plan dan denah Church of Light yang menunjukan posisi dan materialitas Media : drawing pen

Gambar 2. Kualitas material dan gelap terang ditunjukan melalui duotone

Media : pensil warna

Gambar 3. Potongan perspective eksterior Church of Light Media : pen & pensil

Gambar 4. Potongan perspective interior Church of Light Media : pensil & pen

Gambar 5. Interaksi dengan tektonika - event perspective close-up

Media : pensil & pensil warna

Gambar 6. Detail tektonik glass sliding door

Media : drawing pen

Journey to Nature’s Mirror

Nature’s mirror, berawal dari lokasinya sendiri yaitu pada site bukit batu. Sebuah site luas dan memiliki danau yang begitu besar yang dikelilingi oleh bukit bukitnya dan menjadi center point dari semuanya. Danau pada site menjadi nature’s mirror yang memproyeksikan bukit dan pepohonan diatasnya. Hal tersebut adalah yang saya ingin tonjolkan agar mata pengunjung dapat langsung diarahkan untuk melihat keindahan reflection pada danau. (gambar 1 & 2)

Dengan intensi untuk menciptakan experience yang mengiring pengunjung dan mendapatkan element of surprise sebelum melihat reflective danau, Konsep design mengalami development. Preseden seperti Moses bridge di Netherlands dan jembatan di Belgia menjadi inspirasi untuk intervensi site pada danau. Inspirasi pathway juga berasal dari kawasan perumahan saya yang memiliki pohon-pohon tinggi yang menciptakan efek tunnel tanpa terkesan tertutup dan gelap. Dari inspirasi ini muncullah intervensi site baru saya. (gambar 3)

Untuk project tersebut, saya menggunakan bagian dari Church of light. Church of light memiliki tembok yang terdapat celah, seperti tembok belakang yang memiliki celah karena dipotong oleh tembok yang miring. .Dan tembok tersebut kemudian di rotate, celah menjadi memanjang secara horizontal. Sehingga pada design, saya dapat menggunakan sebidang tembok yang diposisikan pada site dan melalui celah 65 cm mata pengunjung dapat langsung melihat pada bagian danau. (gambar 4)

- journey to nature’s mirror -

Pepohan yang begitu banyak menyambut kita saat memasuki site, pepohonan yang menjadi jalur pathway yang menciptakan kualitas seperti pada tunnel namun tidak terasa tertutup dan gelap. Pepohonan ini menjadi visual blocking untuk elemen site lainnya dan visual site dapat secara perlahan didapatkan. Ketika kita mendekati area danau adanya tanah yang meninggi secara perlahan melihat danau dan sifat reflektifnya berserta konteks site lainnya. (gambar 5 & 6)

Danau yang begitu besar menarik perhatian kita dan terdapat tembok beton di antara hehijauan sehingga terlihat kontras dan menarik kita. Saat menuju area tengah danau kita merasakan turunnya tanah secara perlahan dan terlihat kualitas reflektif dari ketinggian yang berbeda pada sisi kiri dan kanan juga elemen air pada danau terasa lebih immersive dan ketika kita semakin dekat dengan celah tembok mata kita melihat reflektif dari garis horizontal, hal ini menjadi cara melihat reflektif yang baru, menyadarkan akan keindahan sifat reflektif pada danau. (gambar 7 & 8)

Gambar 1. Site bukit batu

Media : digital

Gambar 2. Nature’s mirror - reflective

Media : digital

Gambar 4. Deconstructing Church of Light & bagian yang digunakan

Media : digital

Gambar 5. The journey to nature’s mirror - motion picture Media : mental canvas (animation) (https://www.youtube.com/watch?v=TBBZNHYHysI)

Gambar 6. Pathway tunnel of trees - menujukamn intervensi site

Media : digital

Gambar 7. Through one wall - intervensi site untuk massa

Media : digital

gambar 8. view melihat kualitas reflective Media : digital

The Dragon Bar & Scale

Konsep design berangkat dengan intensi untuk menciptakan suatu gubahan yang dapat evoke interaction & playfulness. Terinspirasi dari kegiatan monkey bar gubahan bentuk dibuat memanjang seperti tubuh naga sehingga saya menyebutnya dragon bar. (gambar 1)

Dapat dilihat pada diagram tampak atas dragon bar saya berbentuk semakin mengecil dan berbentuk melengkung ke belakang seperti tubuh naga. Design tersebut ingin menciptakan monkey bar yang tidak terpaku pada satu ketinggian sehingga siapapun dapat menaikinya dengan suasana yang active dan playful layaknya playground. (gambar 2 & 3)

Untuk pengembangan konsep saya ingin menciptakan suatu mekanisme yang dapat membuka menutup menciptakan ruang yang seperti bernafas. Selain itu, pengembangan tersebut juga diperuntukan untuk solusi agar dragon bar tidak terkena matahari secara langsung ataupun hujan. Berhubungan dan ide dragon bar, saya ingin menciptakan suatu skin yang bergerak layaknya seperti dragon scale. Pengembangan scale menggunakan mekanisme tarik sehingga dapat bergerak melalui sistem katrol. Oleh karena itu bentuk scale telah dirancang agar mendukung bentuk melengkung dan Keringan material juga diperlukan agar pergerakan dapat lebih cepat dan kuat. Disini digunakan material carbon fiber, sebuah material yang ringan, mudah dibentuk dan memiliki tekstur yang menarik sehingga menambah estetika dragon scale juga. (gambar 4 & 5)

Pemikiran mengenai pertemuan material menjadi sangat penting karena dragon scale dapat bergerak, oleh sebab itu usaha untuk menyelesaikan masalah seperti friksi dan bagaimana sistem tension terhubung menjadi penting. Hubungan antar material diperjelas melalui gambar potongan. Dragon bar yang menggunakan material galvanized steel pipe dihubungkan secara las. Sedangkan, dragon scale dihubungkan dengan stainless steel cable. Untuk penyelesaian friksi, saya menambahkan lapisan teflon pada kabel seperti pada kabel rem sepeda, selain itu ditambahkan juga lapisan karet pada bagian scale. Kedua hal ini dapat mencegah terjadinya koefisien friksi yang besar. Lalu untuk menciptakan hubungan yang seamless saya menyalurkan Kabel stainless steel melalui pipa dan baut lubang. (gambar 6 & 7)

Dengan demikian terwujudlah design saya, suatu ruang hidup yang active & playful. Sebuah tempat yang evoke interaction, baik sesama manusia maupun interaksi dengan ruang.

gambar 1. intensi konep design dragon bar Media : Rhino 3d render. watercolour, & pensil warna

Gambar 2. Bentuk Dragon Bar Media : Rhino 3d render

Gambar 3. Tampak samping Dragon Bar yang memperlihatkan perbedaan ketinggian Media : Rhino 3d render

Gambar 4. Potongan Dragon Bar & Scale Media : Rhino 3d render Gambar 5. Komponen dan keseluruan Dragon Scale Media : Rhino 3d render & 3d print Gambar 6. Pergerakan Dragon Scale Media : Rhino 3d render

Gambar 7. Detail komponen Dragon Scale

Media : 3d print maket

Dance Your Anxiety Away

What if a place of healing is able to evoke movement and interaction? Design tersebut berangkat dari sebuah aktivitas menari yang Bernama dance movement therapy yang merupakan kegiatan therapy yang dilakukan melalui kegiatan menari atau bergerak. Dengan workload dan expectation zaman sekarang, tidak jarang orang mengalami anxiety. Dari situ pun konsep saya berangkat, berintensi untuk menciptakan memperbolehkan interaksi dengan bangunan dan ruangan dengan kualitas yang tidak monotone. (gambar 1)

Design diperuntukan untuk 6 orang dan berlokasi di site bernama bukit batu, keindahan site bukit batu seperti danau akan menjadi framing design saya. Ini menjadi dasar peletakan bangunan agar dapat merasakan kualitas reflective pada danau. Kegiatan yang dimulai dari melihat hehijauan dan bebas dari ramainya perkotaan, user akan digiring melalui pathway hingga menaiki site untuk memasuki entrance dari atas. Saat memasuki bangunan user akan menuruni tangga yang melengkung, yang memperlanjutkan view danau dari atas hingga bawah. Dinding bata dengan pola maju mundur menciptakan efek menonjol memicu Act of interaction pertama oleh user. User dapat merasakan kasar dan halusnya material beton dengan bata. (gambar 2 & 3)

Zoning area dicapai melalui perbedaan elevasi dan juga melalui penggunaan perbedaan material. Privasi dan zoning dapat terlihat pada denah dan sequence yang tercipta secara halus. Melalui itu terciptalah 4 zoning yaitu untuk kamar (private), common area, staff, dan zoning untuk activity. Sesi therapy dimulai dari sesi one on one pada counseling room, sebuah ruangan dengan kualitas ruang yang intimate dan tertutup. (gambar 4 & 5)

Berbeda dengan ruangan dance therapy, ruangan yang dikelilingi danau dan menjadi ruangan yang penuh dengan tektonika. Namun sebelum memasuki ruangan, user kembali dapat berinteraksi dengan bangunan saat melalui ramp. Melanjutkan dari mekanisme KAT 2, saya mengembangkan dragon scale agar lebih memiliki efek yang halus dan tidak sharp. Namun dengan mekanisme yang dapat bergerak itu experience yang berbeda menuju ruangan dance therapy. Ruangan dance therapy berintensi untuk menjadi tempat untuk berkumpul dan menghadirkan kualitas yang tertutup namun terbuka. Kualitas ini dapat didapatkan dengan menciptakan pola selang seling pada bata, menciptakan lubang untuk passive cooling dan kualitas yang tidak confining. (gambar 6 & 7 & 8)

Lantai beton yang menuju keluar memberi arah untuk bersentuhan dengan air dan merasakan kualitas reflektif secara dekat. Ruang tersebut menjadi space of tectonics, dimana saya berusaha mengabungkan beberapa material tadi namun menciptakan transition yang halus. Seperti transisi beton ke bata tersebut. Tercipta juga Perpaduan antara curve dan defined corners memberi efek menyatukan seperti circle platform.Melaui experience ini, user dapat fully experience dance movement therapy, a space of healing through movement and interaction. (gambar 9 & 10)

gambar 1. Dance Movement Therapy (DMT) activity

Media : maket

Gambar 2. Site bukit batu dan lokasi bangunan

Media : mix-media

Gambar 3. Denah atap - enterance dan skylight

Media : digital

Gambar 4. Interaksi pertama saat enterance

Media : kolase mix-media

Gambar 6. Ramp menuju DMT room - interacting with Dragon Scale Media : maket Gambar 5. Denah lantai dasar - zoning & sequence Media : digital Gambar 7. Dance Movement Therapy (DMT) activity Media : maket

Gambar 8. Ruangan DMT - space of tectonics

Media : maket

Gambar 9. Pertemuan kaca - beton - bata

Media : maket

Gambar 10. Tektonika bata dan beton Media : maket

Turn static files into dynamic content formats.

Create a flipbook
Issuu converts static files into: digital portfolios, online yearbooks, online catalogs, digital photo albums and more. Sign up and create your flipbook.
IF Architecture Evokes Interaction by Bryan Edgar - Issuu