Portfolio_010

Page 1


ARCHITECTURE

CREATIVITY IS DEAD

( noun )

A bridge crossing the world of reality and imagination, providing a way to create a perception that ignites the imagination and invokes awe

‘Eddy Alejandro Sanchez Gonzalez’ eddyasg19@icloud.com

Scaff Knuckle

Co-Housing Spring-3501 pg 01-08

Trilateral

Hybird building Spring-2501 pg 09-14

Fall-3500 pg 15-20

Recyling

KNUCLE Spring-3501

372 Washington Ave Houston, TX 77002

United States

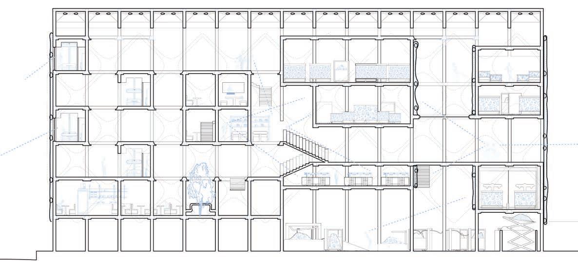
Co-Housing

Project Description

The co-housing project seeks to establish a utopian community where ground floor amenities are conveniently accessible. Two multifunctional theaters are included in the major program, designed to facilitate the gathering of residents through various weekly events. The cohousing units will adopt the form of an L, each offering distinct configurations while adhering to a shared typology. Notably, all units will share a dining area situated outside, fostering communal interaction and the cultivation of a shared space

Building Anatomy

Amenities Housing Units Facade

Section C

Theater Anatomy

Conventianal

Interior and exterior folding doors closed, with the stage directly in front of theater seating.

Open-Air Cinema

Interior folding doors become the projection screen for an outdoor cinmena.

Extended Stage

With both sets of folding doors open, the courtyard becomes part of the theater, extending the stage outdoorsoutdoor

Nouveau Performance

A unique performance space is created with audiences in both the theater and the courtyard. Performers must consciously choose which audience to face.

Amphitheater

With a curtain pulled over the theater seating, the indoor theater becomes a stage for the courtyard, creating an outdoor amphitheater.

2 Floor Plan

Trilateral Spring-2501

400 Richmond Ave Houston, TX 77006 United States

Hybrid Building

Project Description

Trilateral there’s no room for a curve or a circle shape. The reason behind this is that it goes against the entire proposal

Natural light played a big part in this design, I set up the programs at a specific angle in the site so that the dorms and coffee shop/lunch would be placed on the south side for major sunlight exposure. As for the sports field, it would be placed on the northeast for the least sunlight exposure but higher wind currents, allowing a cooler climate.

The opening through the building allows it to serve two purposes. One of them is for passive cooling systems, and the other is for natural light to come inside the building,as far the form of the shell it followed not only the programs but the structure patterns as well.

Ground Floor Plan

Axonometric

East Elevation
West Elevation
North Elevation

Scaff

Fall-3500

1512 Avenue O San Leon, TX 77539

United States

Recycling Plant Project Description

Inspired by James Corner’s concept of “drift,” I implemented a scaffolding structure to enhance the accessibility of my building by Incorporating hotel points of interest in a dynamic environment that blurs the boundaries between leisure and industry. This approach emphasizes the site’s unique identity and invites guests to explore the Oyster recycling process. The scaffolding technique was inspired by the foundation of houses in San Leon, featuring a timber wood scaffolding structure that was exploded to create a unique visual and functional effect. Incorporating multiple ways to access the site and building, adding to its accessibility and appeal, the building will be surrounded by a shell that aims to turn the recycling side and the hotel section into one.

The building’s structure plays a significant role in integrating two distinct programs. By enveloping both programs, the building’s shell unifies them into a single entity

Hotel units are separated from the recycling center but still have access to observe the process of how oysters are being recycled.

The recycling center has a designated area at the front of the building for easy access to drop off oysters and retrieve them after processing. However, the building is designed with multiple entrances to ensure that the two main programs do not intersect.

West Section

Unit Anatomy

Due to space constraints, the units must be 400 sq. ft. while still being efficient and containing all necessities. To address this, the bed can be designed to rise and hide in the ceiling while the living space is used. The bed can be lowered from the roof when needed, transforming the living room into a bedroom.

La Kresten

Spring-1501

Hybrid Stairs Project Description

Hybrid Stairs simultaneously serve the function of moving between floors while offering a variety of other potential uses that exceed our conventional understanding of stairs.

La Kresten was more than a stair that could take you from point A to B creating Woodend blocks to fit the user’s needs best; nonetheless, there is a right way to go up and down and the right path to go up and down its display by the change of color/material of the wood as there are four different types of wood blocks in which each wooded block has a program according to its height

4’Above Ground
16’Above Ground
28’Above Ground

Tic-Nine

Fall-2500

Community living Project Description

Tic-Nine targeted postgraduates. Post Graduate Suffer from depression, stress, anxiety, and mental breakdowns, as they figure out their major does not provide as many job opportunities. Providing mental help is just as crucial as giving shelter

The therapeutic garden became the Hearth of this project as, it helps with depression

With the Idea of still giving back to the community, the second floor became a public Libary to have everyone expand their knowledge.

In the middle of every floor, there would be a void with a glass floor

The reason behind this was for everyone to have access to the hearth project, the Therapeutic garden. The ground floor would not be the only place surrounded by greenery; every balcony and corner on each floor would have flowers, as the Idea here is to cover every corner with greenery to help them mentally.

A BRIDGE TO A REALITY

Turn static files into dynamic content formats.

Create a flipbook
Issuu converts static files into: digital portfolios, online yearbooks, online catalogs, digital photo albums and more. Sign up and create your flipbook.
Portfolio_010 by BridgeToReality - Issuu