Portafolio de Proyectos Académicos

Page 1

PORTAFOLIO ACADEMICO

Borja Martrinez-Falero Rothschild Peru-España

tf DB

TABLA DE CONTENIDOS

TORRE VERTICAL

Paginas: ………………………………... 3 - 9

EM clw

Diseño de Barrio

Paginas: …………………………….… 10 - 14

Edificio mIXTO

Paginas: ………………………..……. 15 - 19

Co-Living Co-Wirking

Paginas: …………………………..…. 20 - 24

INFORMACIÓN

Paginas: ………………………………….…. 25

IF

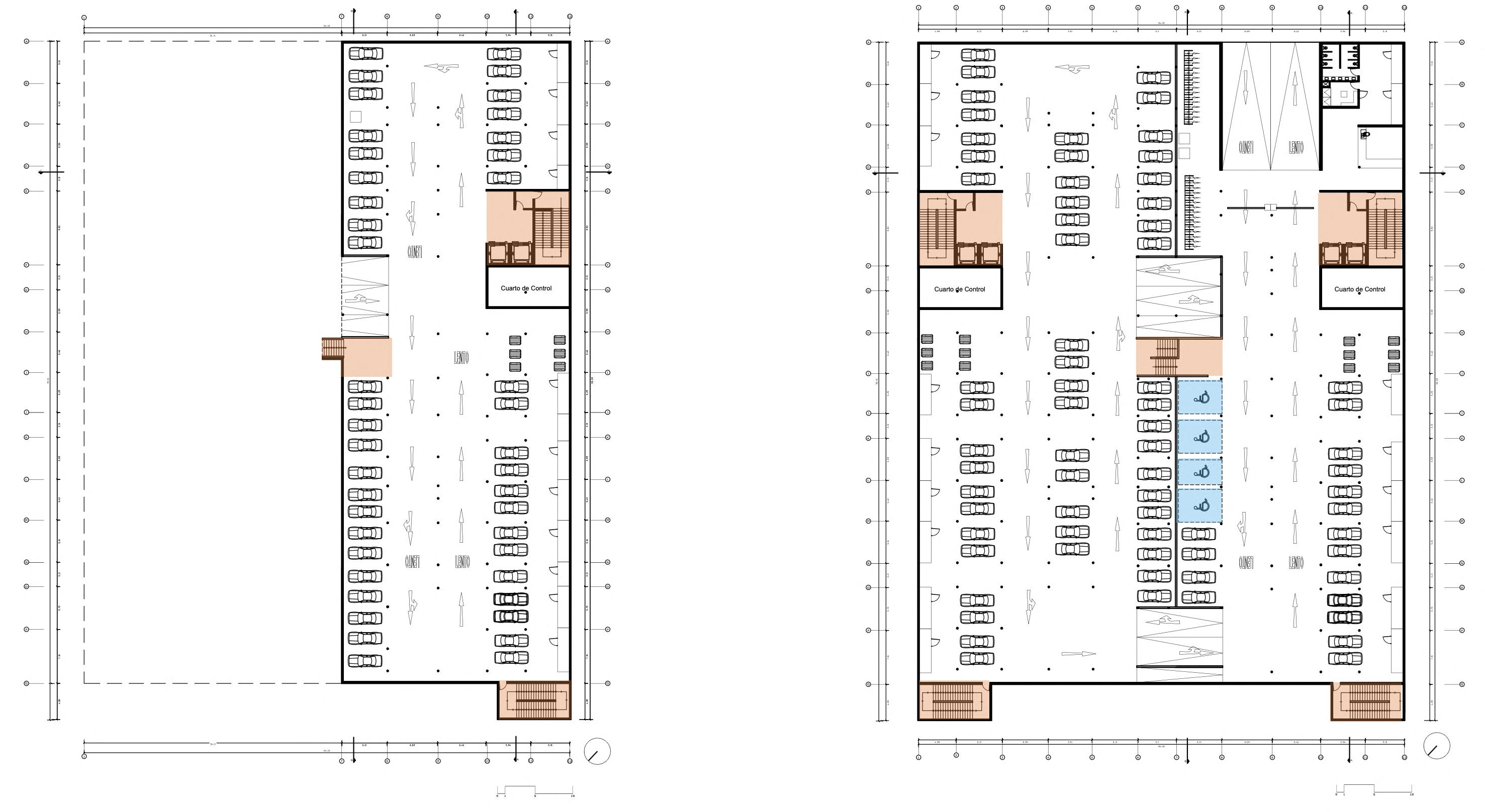
DESCRIPCIÓN: Torre Vertical

Proyecto de 6to ciclo en Lima que consistia en Crear dentro de una estructura reticular, ambientes de programa publico, semi-publico y privado al frente del parque Kennedy

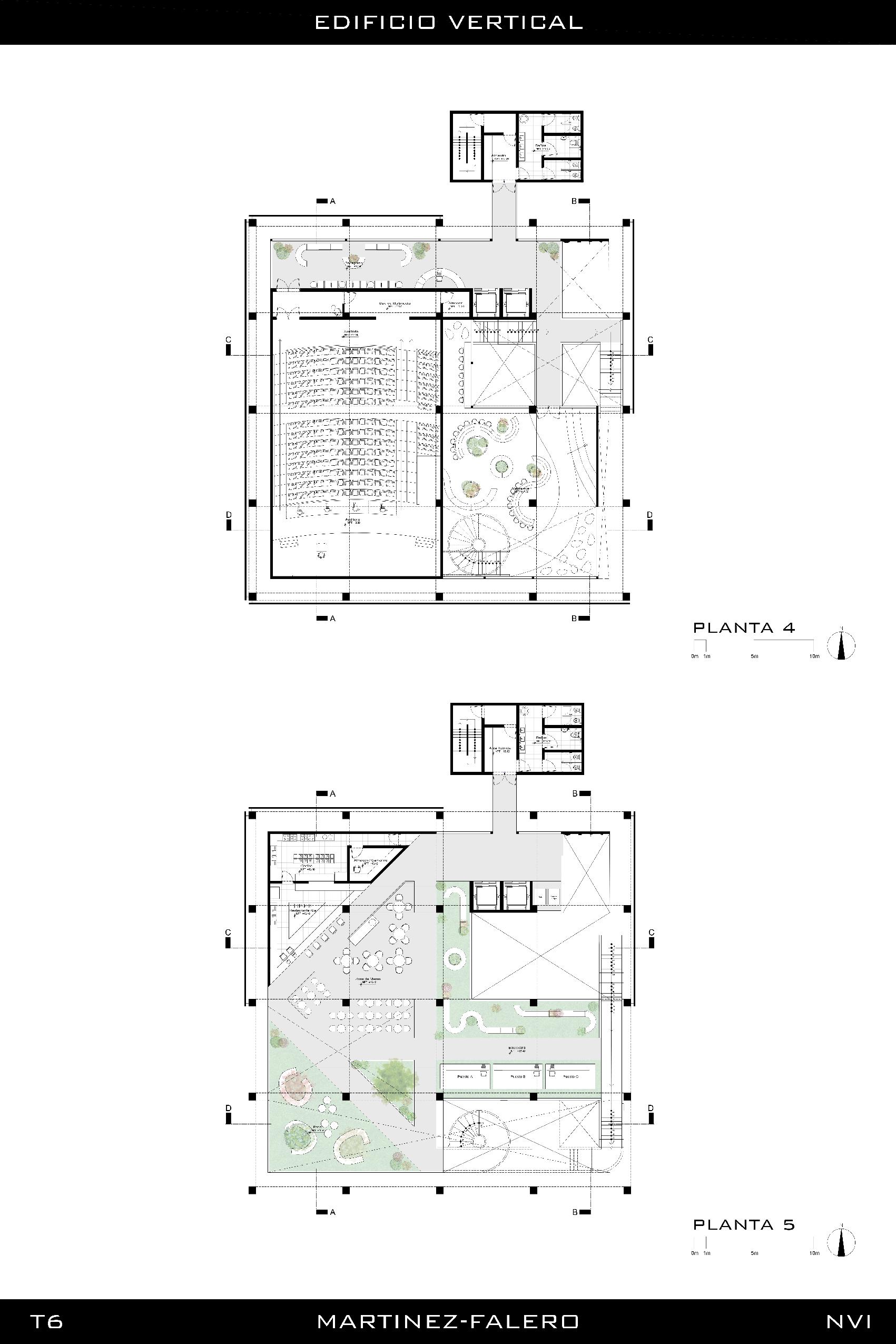
TORRE VERTICAL Axonometría

TORRE VERTICAL Vistas

TORRE VERTICAL Vistas

VISTA INTERIOR: ÁREA DE PISCINA VISTA INTERIOR: BAR DE LA PISCINA VISTA EXTERIOR: INGRESO ESPACIO PÚBLICO – AV. AREQUIPA VISTA EXTERIOR: INGRESO ESPACIO PÚBLICO AV. RICARDO PALMA

DESCRIPCIÓN: Diseño de Barrio

Proyecto de reconstruccion y nuevo diseño de barrio en Puerta del Angel Se analizo el contexto, se diseñaron volumetrias y caminos con el fin de acoger un extenso programa publico y privado que aporte a una vida mas urbana en Madrid

Diseño de Barrio Axonometria

Axonometria

Descripcion:

La vista superior nos muestra como el resultado final del proyecto puede conectar ambos parques en topografia y ademas no se ve como un proyecto aislado de su entorno. Vemos como las rutas primarias conectas ambos perfiles y van en relacion con la trama urbana ya existente colidante y en terminos de columetria, los pliegues se asemejan a las formas de los edificios de madrid y las alturas estan a la par con el entorno para no generar una obstruccion urbana, sino mantener la escala dentro del barrio Mirador de Austrias

Diseño de Barrio
Alumnos: - Borja Martinez-Falero - Alexis Normand
0 8+ Residencial Deportivo Educativo Culto/cementerio Salud Industrial Avenida Principal Calle Peatonal Puente Peatonal Calle Secundaria
Areas Verdes Area Construida
Alumnos: - Borja Martinez-Falero - Alexis Normand

Secciones

Alumnos: - Borja Martinez-Falero - Alexis Normand Corte A-A: Corte B-B: Corte C-C: Diseño de Barrio Secciones Diseño de Barrio Secciones

EL PROYECTO PARTE DESDE LA PERCEPCION COMPARTIDA DE LOS DOS ALUMNOS QUE UN PROYECTO URBANO Y SUS ESPACIOS PUBLICOS DEBEN INTEGRARSE CON EL ENTORNO. tUVIEMOS LA IDEA DE JUGAR CON LAS ESCALAS DE PRIVACIDAD PARA PODER FORMAS UNIDADES DE MANZANAS RESIDENCIAL QUE FORMEN UN ESPACIO COMUN Y QUE SUS ESPACIOS DIVISORES, SEAN LOS QUE CONECTEN AMBOS FRENTES PUBLICOS DEL PROYECTO. INTEGRAMOS LA NETURALEZA DENTRO DEL PROYECTO Y DECIDIMOS EN UTILIZAR UN PROGRAMA FUNCIONAL SOBRE LA BASE DE LA VIVIENDA, SUPLEMENTADO POR EQUIPAMIENTO COMO EL COMERCIO, OFICINAS Y DOTACIONES COMO GUARDERIA Y ESPACIOS CULTURALES CON EL FIN DE LLEVAR AL PROYECTO A OTRA ESCALA DE CONVIVENCIA DE BARRIO, MAS QUE DE UNIDADES INDEPENDIENTES. CADA SISTEMA RESIDENCIAL SE COMUNICARA A TRAVES DE UNA RED DE PLAZAS Y SENDAS QUE DARAN FORMA A LAS VOLUMETRIAS Y EL RECORRIDO DE LAS PERSONAS EN EL ESPACIO PUBLICO YA SEA PARA HABITANTES DEL PROYECTO MISMO O DE LA CIUDAD DE MADRID.

Edificio Mixto

DESCRIPCIÓN:

Este ejercicio Residencial ubicado en el Barrio de Miraflores, cerca al Av La Mar contaba con un dos programas: Vivienda + Biblioteca

publica El ejercicio consistia en partir desde el diseño de las tipologias de vivienda flat y duplex, y ensamblar un conjunto eficiente y comodo para los usuarios residentes y exteriores.

T O P P L A N E S C A L A 1 / 5 0 0 Edificio Mixto Top Plan Edificio Mixto Top Plan

mos visuali e mi comp , esta para sacion de t social l i dentes. Ad inicio, r la puerta y girar por el piloti gene un gir igatorio para que las personas desemboqu la doble altura. En la parte inferior de la escalera se colocaran "cubby holes" donde los invitados y estudiantes propietarios podran dejar sus zapatos, mochilas, maquetas previo a ingresar a la vivienda en si. Este hall de entrada hoy en día toma mayor importancia debido a la pandemia ya que puede servir como zona de desinfectacion previa a la experiencia del duplex.

C O R T E A X O N O M É T R I C O E S C A L A 1 / 7 5 P L A N T A S E X P L E S C A L A 1 / 7
5 8 A L I M E N T A C I O N A S E O D E S C A N S O S O C I A L T R A B A J O C I R C U L A C O N P L A N I M E T R I A T I P O L O G I A S I D E A L E S E S C A L A 1 / 7 5 5 3 5 2
Edificio Mixto Tipologia Duplex Edificio Mixto Tipologia Duplex
C O R T E D D E S C A L A 1 / 1 0 0 C O E S 1 0 7 B A Ñ O S P U B L I V A L E T P A R K I N G
Edificio Mixto Secciones Edificio Mixto Planta Sotano -1

t a n t o e l h a l l d e e n t r a d a c o m o l a d o b l e a l t u r a d e l a t i p o l o g í a e x , p r i m a l a v i r t u a l i d a d y l a i l u m i n a c i ó n n a t u r a l . V e m o s c o m o e l e s o i n d e p e n d i e n t e d e l a r e s i d e n c i a s e c o m u n i c a r a v i s u a l m e n t e c o n e m i s ó t a n o d e l a b i b l i o t e c a . a s i m i s m o , l a d o b l e a l t u r a d e l d u p l e x s t r a c o m o a m b a s p l a n t a s s e c o n e c t a n y e s t e e l e m e n t o e s e l p u n t o a r t i d a h a c i a l a d i s t r i b u c i ó n d e l o s a m b i e n t e s s o c i a l e s a s í c o m o e n e f e r e n t e R i c h a r d M e i e r .

L a z o n a d e l e c t u r a s p r o p o n e n d o s a m b i e n t e s d i s p a r a l o s d i f e r e n t e s u s u a r i o s , d e p e n d i e n d o d e m o m e n t o . E s t o s e s p a c i o s t i e n e n t e c h o a b i e r t o e n c e r r a d o e n e l s e m i s ó t a n o , b r i n d a r l u z n a t u r a l u n a c o m u n i c a c i ó n v i s u a l e n t r e l a r e s i d e n c i a y l a s e r d o s e q u i p a m i e n t o s i n d e p e n d i e n t e s .

P U E N T E S O B R E B I B L I O T E C A R E S A B I E R T O S E N E S P A C I O D E N S I O N E N T R E B A R R A S S A L A D E E X P O C I S I O N E SG A L
I A
E
L
E R
Z O N A D E L E C T U R A D
A D U
T O S Z O N A D E L E C T U R A D E J O V E N E S
Edificio Mixto Vistas Edificio Mixto Vistas VISTA EXTERIOR: PUENTES DISTRIBUIDORES
VISTA INTERIOR: LUZ Y AMPLITUD BIBLIOTECA
VISTA INTERIOR: DOBLE ALTURA DUPLEX

DESCRIPCIÓN: Co-living Co-Working

Este ejercicio fue emplazado en el escorial, al costado del Monasterio de San Lorenzo. Se empleo un programa de vivienda

temporal con zonas de trabajo y programa social con el fin de que sea un edifcio que permita la transicion entre ciudad y turismo, sin reprimir el carácter representativo de la historia en la Ciudad

Co-Living Co-Working Volumetria en Estructura

Volumetria explotada: Cafeteria Cuadricula BaÒos Publicos Oficinas Biblioteca Escalones Flats Estudios Duplex Rampa BaÒos Publicos Flats Puentes Heladeria Comercio N u c l e o
Exterior: Co-Living Co-Working Axonometrias Co-Living Co-Working Axonometrias
SECCION F-F:
SECCION E-E:
BMF

Turn static files into dynamic content formats.

Create a flipbook
Issuu converts static files into: digital portfolios, online yearbooks, online catalogs, digital photo albums and more. Sign up and create your flipbook.
Portafolio de Proyectos Académicos by BorjaMFR - Issuu