ÅSEMURVEIEN HAMNVIK



Illustrasjon av åttemannsboligen

![]()



Illustrasjon av åttemannsboligen

På sentral tomt på Ibestad skal vi bygge to seksmannsboliger, en firemannsbolig og en åttemannsbolig.
Seksmannsboligene inneholder seks like store leiliheter med et bruksareal på 50 kvadratmeter. Alle boenhetene inneholder to soverom, en åpen kjøkken- og stueløsning på over 20 kvadratmeter samt et bad med plass til vaskemaskin. I stuen er det store glassflater som gir mye daglys inn til leilihetene. Alle leilighetene i seksmannsboligene har egen uteplass. De tre leilighetene i første etasje har sin uteplass som overbygd platting, og leilighetene i andre etasje har balkong.
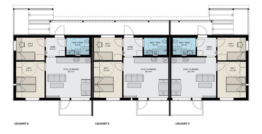
Åttemannsboligen består av smarte og arealeffektive leiligheter med bruksareal på 36 kvadratmeter. Alle leilighetene inneholder et soverom på ca. 6 kvadrateter, og åpen stue- og kjøkkenløsning på nesten 19 kvadratmeter samt bad/vaskerom på 4,8 kvadratmeter. Leilighetene i andre etasje har mønt himling og hems som gir mulighet for god utnyttelse. Leilighetene på bakkeplan får terrassedør fra stueområdet og ut til uteplass.
Firemannsboligen består av fire boenheter med boareal på 70 kvm, og inneholder to soverom, romslig bad, bod og en åpen stue- og kjøkkenløsning. Leilighetene har en hyggelig sosial sone med åpen kjøkken- og stueløsning på nær 30 kvm. Herfra er det utgang til markterrasse i første etasje og balkong i andre etasje.





FAKTA OM LEILIGHETENE
Bruksareal: 50 m²
BRA total: 54 m²
Soverom: 2



Bruksareal: 36 m²
Soverom: 1








FAKTA OM LEILIGHETENE
Bruksareal: 70 m²
Soverom: 2
Bad: 1



Tomtene som det skal bygges på ligger langs Åsemurveien i Hamnvik. Her bllir det etablert et felles grøntområde mellom de to seksmannsboligene og alle boenheter får parkeringsplass. Tomten ligger sentralt til i Ibestad med kun 7 min gåtur til nærmeste butikk.


















Er du lei oppussing og vedlikehold, kalde gulv, trekkfulle vinduer, høye strømutgifter og mye luftfuktighet inne? Å bo i en eldre bolig kan medføre høye bokostnader i måneden.
Velger du å kjøpe ny bolig fra BoligPartner, er du garantert et lunt hjem med høy komfort, jevn innetemperatur og et friskt inneklima. Samtidig slipper du å betale vedlikeholdskostnader de første 10 årene, og du får lavere utgifter til oppvarming.


NY BOLIG GIR MANGE FORDELER
Det er ingen tvil om at det å bo i en helt ny bolig, gir deg mange fordeler. Dette gjelder uavhengig om du kjøper en stor enebolig eller en mindre leilighet. For de månedlige bokostnadene dine blir lavere i en ny bolig bygd etter dagens tekniske forskrifter, sammenliknet med en eldre bolig bygd for 30 år siden. De tekniske kravene til nybygg er strenge. Kvaliteten på bygg, vinduer, isolasjon og øvrig byggemateriale er dermed så god at energiforbruket reduseres betydelig sett opp mot eldre hus og leiligheter.
ET GODT INNEKLIMA
God luftkvalitet gir god livskvalitet. Kjøper du ny bolig, er du sikret et moderne balansert ventilasjonssystem. Det bidrar til et godt inneklima med frisk og behagelig luft, samtidig som systemet gjenvinner cirka 80 prosent av varmen fra den brukte lufta. I tillegg er det godt å vite at isolasjonen vi bruker i våre nye hjem både sparer energi ved å opprettholde en optimal innetemperatur, er svært brannsikker, vannavvisende, absorberer lyd og kan resirkuleres.
NÅR ALT ER NYTT
Følelsen av å kunne flytte inn i noe som er helt nytt kan nesten ikke beskrives. Gled deg til å sette ditt eget preg på alle de fine, nye rommene. Ingen har bodd her før deg. Her er det ingen spikerhull som må sparkles eller vinduskarmer som må males. PS: Ikke glem at du også får 5-års reklamasjonsrett ved kjøp av ny bolig.
Følelsen av å kunne flytte inn i noe som er helt nytt kan nesten ikke beskrives. Gled deg til å sette ditt eget preg på alle de fine, nye rommene.
Det er A+ Bolig AS som står bak prosjektet i Åsemurveien.
Trygghet for kunden er veldig viktig for oss og derfor legger vi stor vekt på fagkunnskap, erfaring og sterk lokal kjennskap.
Som en erfaren og seriøs boligaktør følger vi Bustadoppføringslova. Det betyr at vi stiller økonomisk garanti under byggetiden og fem år etter overlevering. Det økonomiske oppgjøret gjennomføres alltid av eiendomsmegler eller advokat. Kjøper du av oss, utfører vi alltid befaring ett år etter innflytting. Skulle det dukke opp avvik, utbedrer vi disse.
Vi er et trygt valg for deg. Ta kontakt, vi er klare til å svare på dine spørsmål.
Trond Mørk-Nilsen
Boligkonsulent 902 35 333 trond.nilsen@boligpartner.no
A+ Bolig AS Klubbveien 3, 9406 Harstad | Tlf: 902 35 333
Det tas forbehold om trykkfeil. Alle 3D-illustrasjoner, plantegninger og foto er kun ment som illustrasjoner og vil kunne avvike fra standard leveranse. For eksakt funksjonsbeskrivelse og informasjon om den enkelte bolig, henvises det til leveransebeskrivelse og 1:100-tegninger. For info om energimerking av husene henviser vi til boligpartner.no.