ARCHITECTURAL PORTFOLIO - CHRISTIE JOJU

Page 1

ARCHITECTURAL PORTFOLIO -boho

vikara

contents 01 02 05 06 RESUME PRAKRITI SARANI jan
miscellaneous

perforatio atman

flair

03 04 07 08
detour
W resume christie joju dob: 10-11-2000 nationality: indian languages: malayalam, english, tamil, hindi address: curuthukulangara house, thaikkattukara p.o., aluva, ernakulam, kerala, 683106 contact: +91 97460 47234 or christieblithe@gmail.com education: jyothi nivas public school, ernakulam (2004-18) tkm school of architecture, kollam (2018-23 batch) participation: 62nd zonal nasa convention 64th annual nasa convention annual nasa design competition 2020 ‘Typological patterns’ studio exhibition ‘residence forth’ (vertical studio work shop) carpentry, bamboo, clay, lighting, land scaping and masterplan workshops

Hi! I like to see things through an open mind. I like how the art and design changes through time. The belief that Travel can take you through changes runs me. Expeditions takes you to exploration. Sometimes it takes time to learn. I am eager about fashion, culture, architecture, culinary arts, design and open to everything.

01
“ “ Christie boho

prakriti sarani

‘Prakriti Sarani’ means a continuos line of nature. It is a residential project for a client who is a tuition teacher and who loves nature. The site is in Adoor town in KERALA. The house is divided into 3 different blocks - the bedroom block, the main block and the tuition block. It is achieved with the help of a continuos courtyard strip. THE HOUSE HAS A FORMAL LIVING AND A SPACIOUS DOUBLE HEIGHT INFORMAL LIVING. The project helped me with the basics of designing.

design evolution

02
GROUND FLOOR PLAN FIRST FLOOR PLAN 1. FOYER 2. PUBLIC LIVING 3. PRIVATE LIVING 4. DINING ROOM 5. BEDROOM 6. TOILET 7. WASH 8. KITCHEN 9. STORE 10. WORK AREA 11. OFFICE 12. WAITING AREA 13. TUITION ROOM 1. LIVING 2. BEDROOM 3. TOILET 1 2 3 4 75 6 6 5 8 10 9 11 12 13 6 1 2 2 3 3
section

perforatio

‘Perforatio’ means porous. It is an Office project for a gaming company. The site was in Trivandrum, Kerala. The building was to be mechanically ventilated. I chose a diamond grid, rather than a square grid for utilising maximum area. The evolution of its volume was decided in a way to achieve maximum views and open spaces inside the usually bulky office towers. The project helped me learn about medium rises and the basics of designing a mechanically ventilated building.

design evolution

03

BASEMENT PLANS

STRUCTURAL SYSTEM

HVAC SYSTEM 1. STAIRS 2. LIFT 3. HVAC SHAFT 4. CHILLER PLANT 5. AHU ROOM 6. COOLING TOWER PLUMBING SYSTEM 1. STP 2. RAINWATER TANK 3. PUMP ROOM 4. PLUMBING SHAFT 5. SUMP TANK 6. OVERHEAD TANK ELECTRICAL SYSTEM 1. UPS ROOM 2. DG ROOM 3. ELECTRICAL ROOM 4. LT PANEL ROOM 5. ELECTRICAL SHAFT 6. SUBSTATION

atman

‘atman’ means spirit. It is a master planning project and the site was in Candolim, Goa. Goa is struggling to keep its indigenous culture from eroding due to multiculturism. It is ideal to retain the real character of the place and to embRACE ITS SPIRIT. THE DESIGN THEREFORE FOCUSES ON REBUILDING THE IDENTITY OF THE PLACE BY ENHANCING ITS POTENTIALS AND IMPROVING THEIR CONNECTIVITY. THE PROJECT HELPED ME IN GETTING BETTER IN MASTER PLANNING AND DETAILING OF SPECIFICS.

design strategies

04

layers

1. ECO RESORT 2. MANGROVE PLAZA 3. TROPICAL CAFE 4. CHURCH 5. PARKING 6. LIBRARY AND MUSEUM 7. ART CAFE 8. CENTRAL PLAZA 9. APARTMENTS 10. FLEA MARKET 11. EATERIES 12. NURSERY 13. RESIDENTIAL SPACE 14. CASHEW GROOVES 15. COCONUT GROOVES 16. BEACH PLAZA 17. ESPLANADE design
1 2 3 4 5 6 7 8 910 11 12 13 14 15 16 17
1. RESIDENTIAL SPACE 2. TRANSITIONAL SPACE 3. ARTIFICIAL POND 4. FOOD STREET 5. CASHEW GROOVES 6. COCONUT GROOVES 7. FENI SHOPS 8. TREE HUTS 9. FOOTBALL GROUND 10. COMMUNITY CENTER 11. BEACH SHACKS 12. BEACH PLAZA 13. ESPLANADE CLUSTER layers 19 10 3 2 4 12 7 8 6 5 11 13

jan vikara

‘JAN VIKARA’ MEANS THE UPLIFTMENT OR DEVELOPMENT OF PEOPLE AND THEIR LIFE. Mumbai, ‘the city of dreams’, is a very busy city in Maharashtra. As the name says, this is where many people’s dreams have bloomed and cherished while many other’s were unfortunate. The city is running after its dreams of becoming better. The current rising population and the never ending efforts to satisfy the needs of its people has led to many development projects. Our project is one of such, that has the potential to bring this change here.

design strategies

05

layers of masterplan

CLUSTER LAYERS

miscellaneous

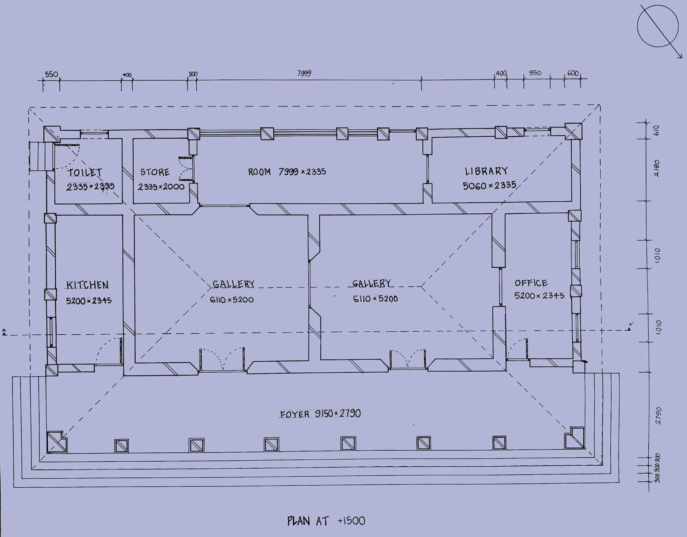
LIVE MEASURED DRAWING

PHYSICAL MODEL MAKING

06

detour

The things i learnt in my life is mostly through travel and experiences. The people and the places taught me the reality of life. These PICTURES ARE of MEMORIES WHICH STILL HAS INFLUENCE ON ME.

07
flair
08
I LIKE TO PAINT ON WALLS, GO OFF-ROADING, VOLUNTEER IN ART EXHIBITIONS, DESIGN CLOTHING AND TO TAKE IMPRESSIONS OF THE WORLD THROUGH PHOTOGRAPHS.
+91 97460 47234 CHRISTIEBLITHE@gmail.com christie_joju

Turn static files into dynamic content formats.

Create a flipbook
Issuu converts static files into: digital portfolios, online yearbooks, online catalogs, digital photo albums and more. Sign up and create your flipbook.