Bhavya Mewada | Undergraduate Architectural Portfolio 2019-2024 | Academy Of Architecture

Page 1

BHAVYA HM

ACADEMY OF ARCHITECTURE

SELECTED WORKS | 2019-2024

BHAVYA HARESHKUMAR MEWADA

08 June, 2001

Mumbai | India English, Hindi, Gujarati

+91 8452066021 bhavyamewada07@gmail.com Instagram - @im_bhavya07

Hello, I am Bhavya Mewada, currently graduated from college,Rachana Sansad’s Academy of Architecture. This Portfolio is a curated collection of my academic works and the skill sets that I have developed as an individual. The Projects ranging from various scales & typologies are selected for portfolio to showcase my learnings of various fields. seek to learn, explore and expand my knowledge in the architectural field and understand the impact of human psychology in the design process. As an aspiring architect, vision to contribute for the public through a combined team effort. I am hardworking and a passionate student, looking forward to work under your guidance and assure to make most of the experience. My interests is towards sustainability and user-centric design value that fosters for better well-being in the future.

CURRICULUM VITAE

EDUCATION

2007-2017 : Thakur International School | Kandivali-(W)| I.C.S.E - 92%

2017-2019 : Nirmala College of Science and Commerce | Kandivali-(E) | H.S.C - 87%

2019-2024 : Rachana Sansad’s Academy of Architecture(Unaided) | Dadar-(W) | C.G.P.I - 8.18

DOCUMENTATION

2019 : Triumphal Gateway Arch | Veermata Jijabai Bhosale Udyan - Byculla, Mumbai (First Year Academic Documentation - Group Project)

2019 : URU Ships of Beypore - World’s Largest Handicraft | Kerala, India (First Year Academic Documentation - Group Project)

COMPETITIONS + COLLABORATION

2020 : Transmedia Storytelling - Narrative worlds, emerging stories & global audiences (Coursera online learning course)

2021 : Girgoan Street Mapping & Analysis | Mumbai (Photo Documentation)

2021 : Sanjay Gandhi National Park - Walk Through Mapping | Borivali - Mumbai (Architectural Drawings & Photo Documentation | Landscape Project)

2021 : International Collaboration with Hogeschool of Rotterdam (Adaptive Reuse Project of Watson Hotel | Fort - Mumbai)

2021 : Smart Cities - Management of Smart City Urban Infrastructures (Coursera online learning course)

2021 : Class Representative Position

2021 : Master Peace - Meditation & Yoga Retreat Centre | Archmellow Competition

2022 : The Habitat 2.0 | Archmellow Competition

2022 : Police Housing Study & Documentation of Island City | Worli - Mumbai (Analysis Drawings of Police Housing Socities | College Project)

2022 : Mumbai Inclusive : Urban Vision Competiton Project (Exploring Urban Design and Architectural Prospects for Greater Mumbai)

2023 : Internship at Studio Pomegranate | Lower Parel

SKILLSETS + INTERESTS

Proficient : Personal Interests :

Autodesk AutoCad

Adobe Photoshop

Adobe Illustrator

Adobe InDesign

Trimble SketchUp

Microsoft Office

Twinmotion

Enscape 3D

Exploring :

Autodesk Revit

Rhinoceros 3D

Chaos Vray

Lumion

ArcGIS Pro

Grasshopper

Sketching

Photography

Graphic Design

Mapping

Anatomy Drawings

Outdoor Sports

Travelling

1 | | 2
3 | | 4 CURATED CONTENT ACADEMIC WORK | COMPETITION | COLLABORATION UNDERGRADUATE ARCHITECTURAL PORTFOLIO “If you give people nothingness, they can ponder what can be achieved from that nothingness.” - Tadao Ando 01 . Community Adaptable Market (Versova) 02 . Women-Centric Vocational Institute 03 . The Erante 04 . The Weave 05 . Hat Truss Tower 06 . Bioscoop : Watson Hotel 07 . The Cultural Intervention 08 . The Urban Dimensions 09 . Urban Energy Park 10 . Technical Drawings 11 . URU- Largest Handicraft 05 - 18 19 - 26 27 - 32 33 - 38 39 - 42 43 - 46 47 - 52 53 - 56 57 - 60 61 - 66 67 - 70 71 - 78 14 . Personal Interests Work

Community Adaptation-Resilience

Fish Market & Community Centre

Thesis Design | Semester 10

Site Location : Versova Village, Mumbai

Project Type : Mixed-used

Site Area : 9,500 Sq.m

Team Strength : Individual Softwares : AutoCad , Photoshop , SketchUp , Powerpoint , Illustrator

Project Brief : The Thesis dwells into understanding the role of climate change in the context of coastal village, which is, Versova Koliwada; analysing the potential fish market and community understanding of the place. The research initially began with mapping the sea level rise that will affect the city of Mumbai and understanding its impact on the people living along the coastal edges. The Design proposal extends the idea of climate-responsive and concept of hedonistic sustainability where architecture and people collaborate to thrive, show resilience and adapt to the changing environments in present time and 50 years ahead as per sea level rise projections.

5 |
ACADEMIC WORK | EMBASSY DESIGN PROJECT 01.
7 | | 8 ACADEMIC WORK | COMMUNITY ADAPTATION MARKET (Sea level rise)
9 | | 10 ACADEMIC WORK | COMMUNITY ADAPTATION MARKET (Sea level rise)
11 | | 12 ACADEMIC WORK | COMMUNITY ADAPTATION MARKET (Sea level rise)
13 | | 14 ACADEMIC WORK | COMMUNITY ADAPTATION MARKET (Sea level rise)
15 | | 16 ACADEMIC WORK | COMMUNITY ADAPTATION MARKET (Sea level rise)
17 | ACADEMIC WORK | COMMUNITY ADAPTATION MARKET (Sea level rise) | 18

Women’s Vocational Institute

Mixed-Used (Institutional)

Architectural Design | Semester 09

Site Location : Sandhurst Road, Mumbai

Project Type : Mixed-Used

Site Area : 7,500 Sq.m

Team Strength : Individual Softwares : AutoCad , Photoshop , SketchUp , Powerpoint

Project Brief : Institutions are the kinds of structures that matter most in the social realm. At some stage we need to consider how institutions struc ture social interations and in what senses they are established and embedded. In part, the durability of institutions stems from the fact that they can usefully create stable expectations of the behavior of others.

19 |
ACADEMIC WORK | EMBASSY DESIGN PROJECT 02.
21 | ACADEMIC WORK | WOMEN’S VOCATIONAL INSTITUTE | 22
23 | | 24 ACADEMIC WORK | WOMEN’S VOCATIONAL INSTITUTE
25 | ACADEMIC WORK | WOMEN’S VOCATIONAL INSTITUTE | 26

The EranTe

Housing in New Paradigm

Architectural Design Studio | Semester 07

Site Location : Malad, Mumbai

Project Type : Housing Project

Site Area : 2400 Sq.m

Team Strength : Individual Softwares : AutoCad , Photoshop , SketchUp

By

Project Brief : Housing in today’s time has derived a new meaning. Standardization is the only constant being observed in current housing. Housing being one of the basic and first needs of the city dwellers it has reached at the level where the supply is excess than the demand. This is the situation where the real estate is heading towards. The design studio demands the design of a mid-rise resi dential (commercial where needed) in the site givenas a final product which needs to be derived, by formulating the programme which needs to be critically brought for ward through the study of bylaws as per the local municipal corporation, the nature of urban context, po tential demand for residential typology and user profiles around the site.

27 |
ACADEMIC WORK | HOUSING DESIGN PROJECT 03.
| 30 ACADEMIC WORK | HOUSING DESIGN PROJECT 29 |
31 | | 32 ACADEMIC WORK | HOUSING DESIGN PROJECT

The Weave

Business Centre

Allied Design Studio | Semester 07

Site Location : Mumbai

Project Type : Interior Design

Site Area : 35 Sq.m

Team Strength : Group (03)

Role : Design & Working Drawing

Softwares : AutoCad , Photoshop

Guided By : Ar.

Project Brief : The Project aims towards the interior designing of the Business Centre at the existing residential building.

33 |
ACADEMIC WORK | INTERIOR DESIGN PROJECT 04.
35 | | 36 ACADEMIC WORK | INTERIOR DESIGN PROJECT
37 | | 38 ACADEMIC WORK | INTERIOR DESIGN PROJECT

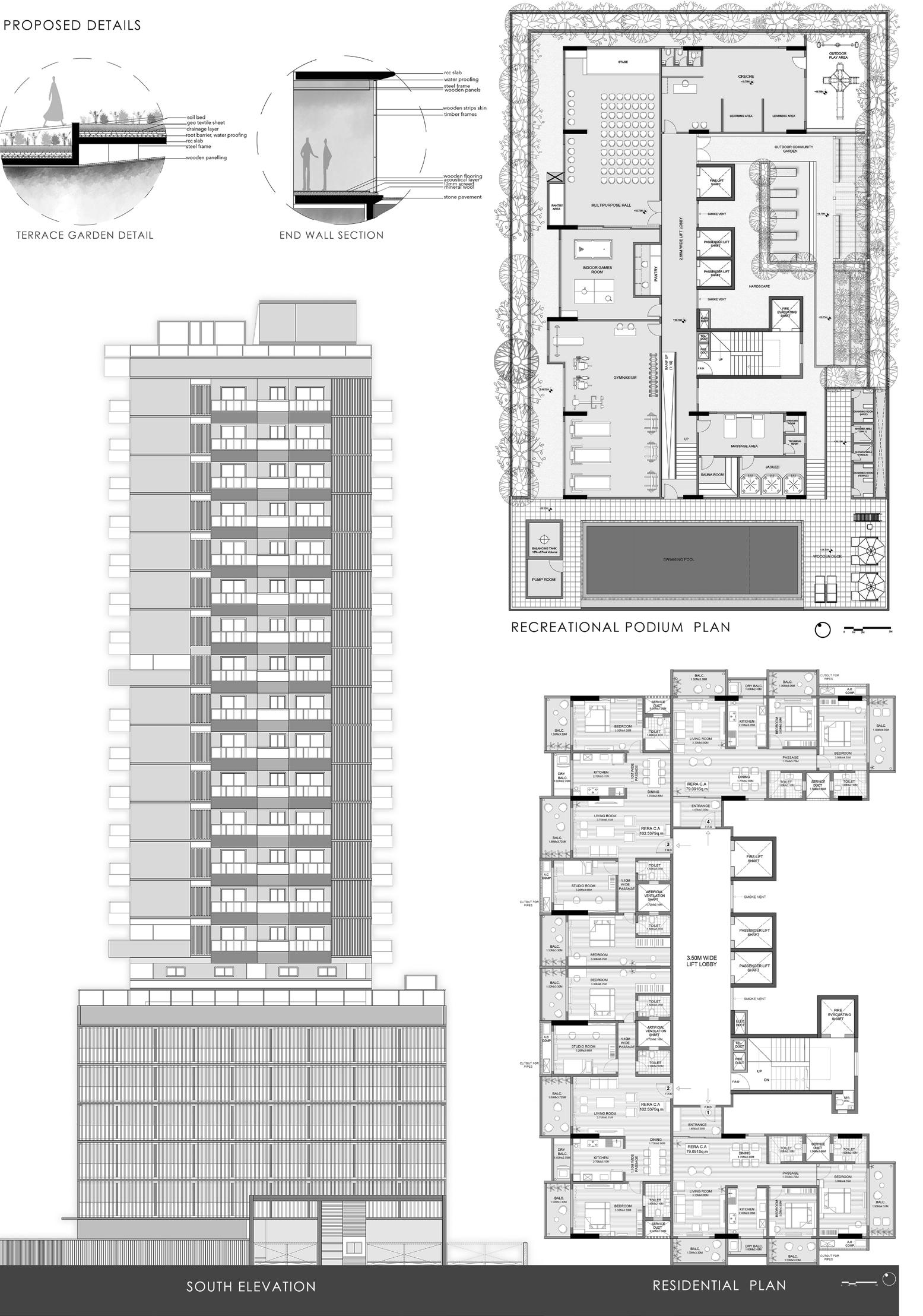
The Hat Office Tower

Skyscrapper Design

Technology-Design Studio | Semester 07

Site Location : Mumbai

Project Type : Skyscrapper Design

Site Area : 4,000 Sq.m

Team Strength : Group (03)

Role : Design & Compilation

Softwares : Rhino , AutoCad , Photoshop

By

Project Brief : The exercise intends to make students aware of different possibilities of design in high rise structures. It focuses on understanding apects of the evolution of design, form, volume and envelope, sustainability, climate, geometry and detailing that is required for high rise construction. A working model in a 3D software with structural system in place and designed. Detailing the USP of the structural system through material research and blow up details.

39 |
ACADEMIC WORK | SKYSCRAPPER DESIGN PROJECT 05.
41 | | 42 ACADEMIC WORK | SKYSCRAPPER DESIGN PROJECT

The BIOSCOOP

Adaptive Re-Use Of Watson’s Hotel

Electives Design Studio | Semester 05

Site Location : Fort, Mumbai

Project Type : Adaptive Re-Use

Team Strength : Group (03)

Role : Research , Design & Graphics Softwares : AutoCad , Photoshop

By :

Project Brief : An International Collaboration with Hogeschool Rotterdam for the project; to revamp the Watson Hotel & aiming to revive the glory of the Heritage Watson Hotel of Mumbai. The Project focuses on the adaptive Re-use of the Watson Hotel and understanding the identity of the structure in the present time’s.

43 |
COLLABORATION WORK | RE-DESIGN OF WATSON HOTEL 06.
45 | | 46 COLLABORATION WORK | RE-DESIGN OF WATSON HOTEL

The Cultural Intervention

Csmvs Mapping, Analysis & Design

Allied Design Studio | Semester 09

Site Location : Analysis: Fort & Design: Sandhurst, Mumbai

Project Type : Urban Design

Site Area : Design: Street Intervention

Team Strength : Group (5)

Softwares : AutoCad , Photoshop , Powerpoint , Illustrator

Guided By : Ar.Harshad

Ar. Amey Ghosalkar Ar. Nitesh Avhad

Project Brief : The Project aims towards understanding the cultural importance in the vicinity of CSMVS situated at Fort Mumbai. Mapping and Analysis of the Street & drawing out conclusions, problems & possible solutions related to the cultural value of the place and implementing it on the site of Sandhurst road through design interventions at human scale.

| 48 47 |
ACADEMIC WORK | CITY MAPPING PROJECT 07.
49 | | 50 ACADEMIC WORK | CITY MAPPING PROJECT
51 | | 52 ACADEMIC WORK | CITY MAPPING PROJECT

The Urban Dimensions

Street Mapping & Analysis

Urban Design Studio | Semester 06

Site Location : Girgoan, Mumbai

Project Type : Mapping & Analysis

Site Area : Selected Zone in DP-2034

Team Strength : Individual Softwares : AutoCad , Photoshop

Guided By : Ar.Harshad

Ar. Amey Ghosalkar

Ar. Nitesh Avhad

Project Brief : The Project aims at the mapping of the selected zone in Island City and draw out analyses based on the various Urban dimen sions. The Student need to select a 300m stretch of Street for de tailing and understanding the Street.

| 54 53 |
ACADEMIC WORK | CITY MAPPING PROJECT 08.
55 | | 56 ACADEMIC WORK | CITY MAPPING PROJECT

Urban Energy Farm

Mumbai Inclusive - Urban Vision

National Competition | Semester 06

Site Location : Coastal Road , Mumbai

Project Type : Public Space Design

Site Area : 05 Acre

Team Strength : Group (15)

Role : Design Process , Graphics , Presentation Softwares : AutoCad , Photoshop

By

Ar. Amey Ghosalkar Ar. Nitesh Avhad

Project Brief : The project aims to bring together schools of architecture in Mumbai to reimagine the city of Mumbai via an urban intervention. It urges the envisioning of inclusive urban realities and endorses a collective dream for the city we love. The lo cation, scale of intervention and other modalities are left to the discretion of the individual colleges. The location/s will be in land reclaimed from the Arabian Sea alongside the Coastal Road presently under construction. Selection to be done from likely site/s in the stretch between Priyadarshini Park (on west coastal edge of Malabar Hill) to the existing Worli - Bandra Sea Link at Worli Sea Face. Addressing the promising availability of open, reclaimed land for public use in Greater Mumbai, with a 21st century time dimension.

57 |
COMPETITION WORK | SOLAR PARK DESIGN 09.

COMPETITION PANEL

59 | | 60 01.SOLAR PARK 02.AGRICULTURAL PARK 03.MINIATUR-CITY PARK
COMPETITION WORK | SOLAR PARK DESIGN

Technical Drawings

Working-Municipal Drawings

Architectural Drawing Studio | Semester 06 & 07

Site Location : Mumbai

Project Type : Technical Drawing

Team Strength : Individual

Softwares : AutoCad

Guided By : Ar. Yateen Gokhale

Project Brief : Working Drawing of Selected Structure of Semester-05 & Municipal Drawing for a redevelopment of existing building on plot bearing CTS no. 728 of village Borla at Eastern Freeway road, Chembur (E), Mumbai.

61 |
ACADEMIC WORK | TECHNICAL DRAWING 10.
63 | | 64 ACADEMIC WORK | TECHNICAL DRAWING WORKING DRAWING
65 | | 66 ACADEMIC WORK | TECHNICAL DRAWING MUNICIPAL DRAWING

URU SHIP

World’s Largest Handicraft

Documentation | Semester 01

Site Location : Beypore, Kerala

Project Type : Documentation

Team Strength : Group (40)

Role : Drawing - Panel , Mapping on Site

Softwares : Hand drawing

Guided By : Ar. Juhi Prasad

Ar. Amey Mhatre

Ar. Joel Roy

Ar. Shripadh Bhalerao

Project Brief : Group Documentation of the URU Ship on site and Exhibition of the Drawings.

| 68 DOCUMENTATION WORK | URU SHIP-WORLD’S LARGEST HANDICRAFT 67 |
11.
| 70 DOCUMENTATION WORK | URU SHIP-WORLD’S LARGEST HANDICRAFT 69 |
| 72 PERSONAL INTERESTS | GRAPHICS
71 |
Graphics : POSTERS, DRAWINGS, ILLUSTRATIONS
| 74 PERSONAL INTERESTS | SKETCHING
73 |
Sketching : STRUCTURES, IDEATIONS, COMPOSITION

HANDS ON EXPLORATION : MODELS , MATERIAL

85 | | 76 PERSONAL INTERESTS | MODEL MAKING

1/1600 Sec

1440x1080 pixels ISO 100 96 Dpi / 24 Depth

1/100 Sec

1440x1080 pixels ISO 200 85 Dpi / 47 Depth

| 78 PERSONAL INTERESTS | PHOTOGRAPHY
77 |
Photography : ARCHITECTURAL, NATURE

BHAVYA HM

ARCHITECTURAL PORTFOLIO

Turn static files into dynamic content formats.

Create a flipbook
Issuu converts static files into: digital portfolios, online yearbooks, online catalogs, digital photo albums and more. Sign up and create your flipbook.