Bhavya Mewada | Architectural Internship Portfolio 2022-2023 | Studio Pomegranate

Page 1

PROFESSIONAL PRACTICE PORTFOLIO

Rachana Sansad’s Academy of Architecture

University of Mumbai | Semester 08

14.11.2022 - 14.05.2023

Studio | pomegranate

BHAVYA MEWADA

ACKNOWLEDGEMENT

I am grateful to the opportunity given to me by Ar. Shweta Chhatpar & Ar. Pranav Naik for learning and Professional development at Studio pomegranate , Lower Parel; a well established firm with 9+ years of experience and a great reputation in the architectural fraternity.

Throughout the course of my 6 month-internship, I have received a great deal of exposure, support and assistance from each and every one on the team in Studio Pomegranate.

I would also like acknowledge my seniors, especially Ar. Neel Davda at Studio Pomegranate, under whose guidance and supervision, have broadened my understanding of the practicality and studio functioning in real life.

They have been knowledgeable in their field and did not hesitate to share all the experiences with me.

I will forever be grateful to all those who have contributed in moulding my skills and the one’s who supported me in this passionate journey of me, looking forward to work and learn for the upcoming projects in the future.

Pedestrian Corridor Rashid Mansion SpiritForward Bar

01 02 03 08 04

Vora Kitchen ANSH Residence | Public Space 01-14 Community Kitchen | 15-24 25-38 | Restro-Bar | | Restaurant | 26-48 House Kitchen 49-56 06 The “ + ” Collection Furniture | 57-62 Private Bungalow | 07
| Private Residence | 63-68 69-72
05 CST-Churchgate
Masala Kitchen
Urvashi Mody Apartments

CST-Churchgate Pedestrian Corridor

Site Location : Churchgate, Mumbai

Client MCGM | Bombay Gymkhana

Project Type : Urban Design

Design Guide : Ar. Pranav Naik

Softwares : AutoCad Photoshop , SketchUp Enscape Render

Learnings :

01 02 01.
OLD BOMBAY
03 04
New Marine Lines to CCG Khau Galli to Cross Maidan Cross Maidan to MG Road Azad Maidan Towards Hazarimal Somani Marg Overlooking Bombay Gymkhana Towards CST Station
05 06
New Marine Lines New Marine Lines Cross Maidan Azad Maidan

Seating & Biophilia (User Experience) Shading-Footpath (Walk of Fame)

Existing Footpath

07 08
Azad Maidan Draft
ICONIC
Form Exploration
1 2 3
09 10
Azad Maidan Proposal
11
Maidan Proposal 12
Cross
13 14 Hazarimal Somani Marg Proposal MG Road Junction Proposal

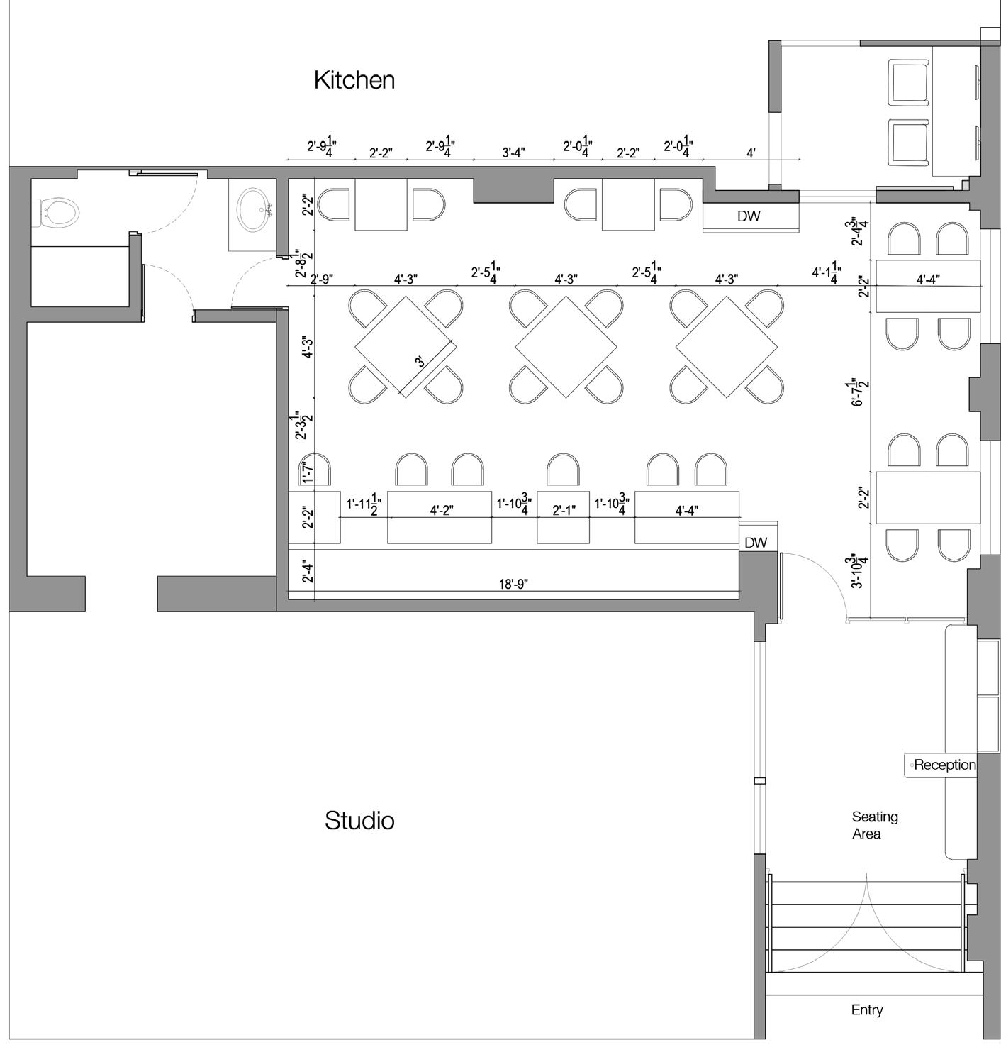
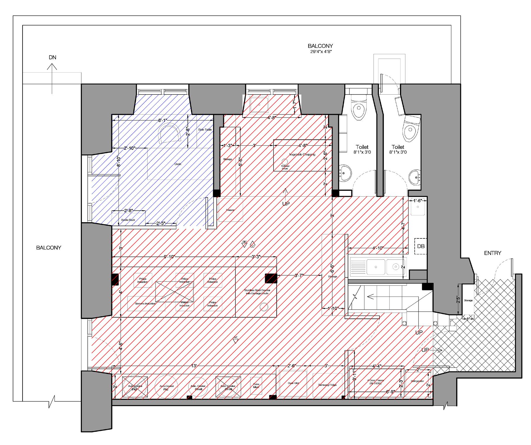
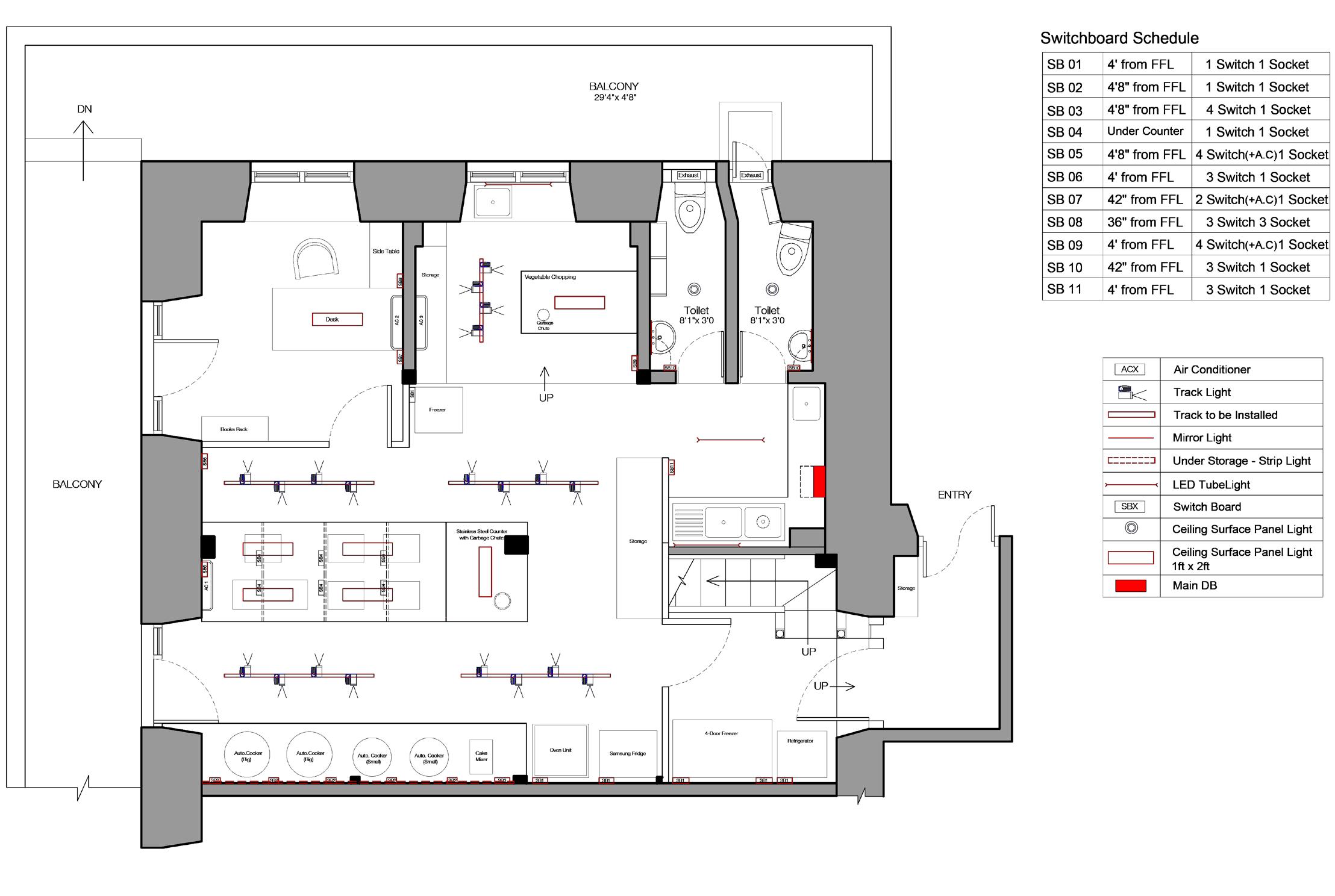
Rashid Mansion | Seva Kitchen

Site Location : Worli, Mumbai

Client Anuja Mariwala (NGO)

Project Type : Interior Community Kitchen

Design Guide : Ar. Shweta Chhatpar

Softwares : AutoCad Photoshop

Learnings :

15 16 02.
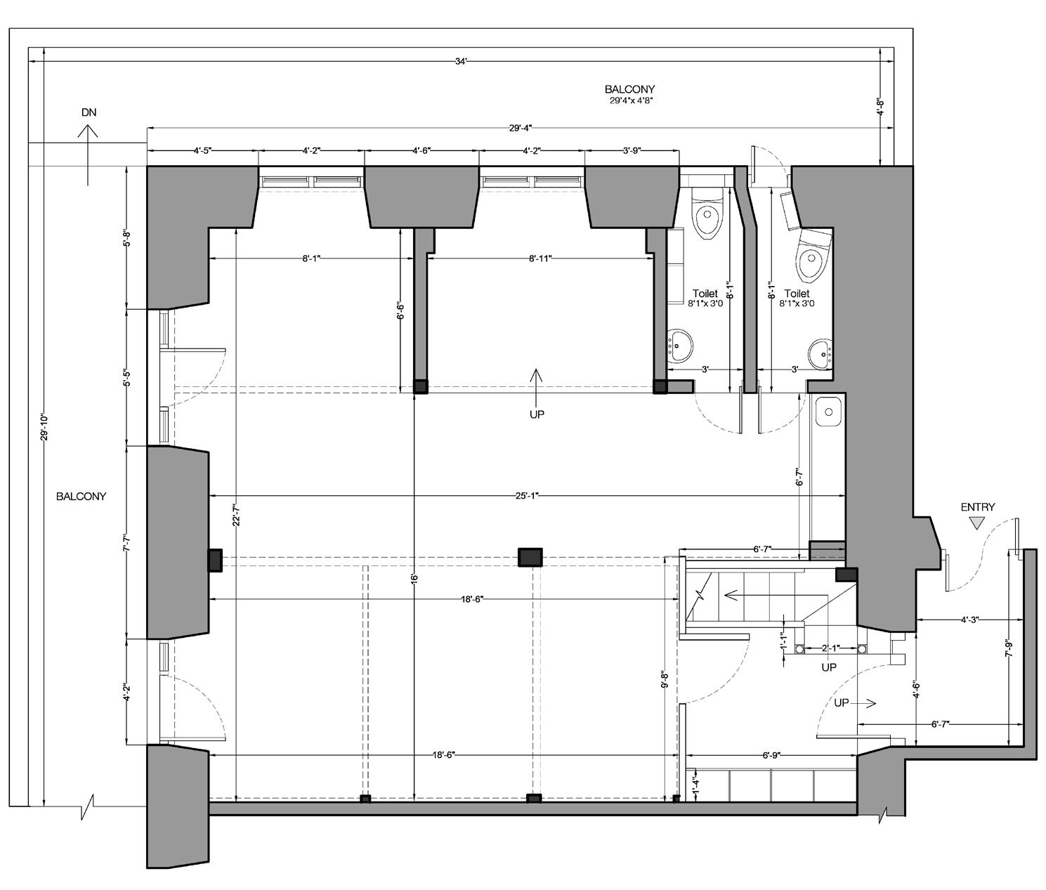
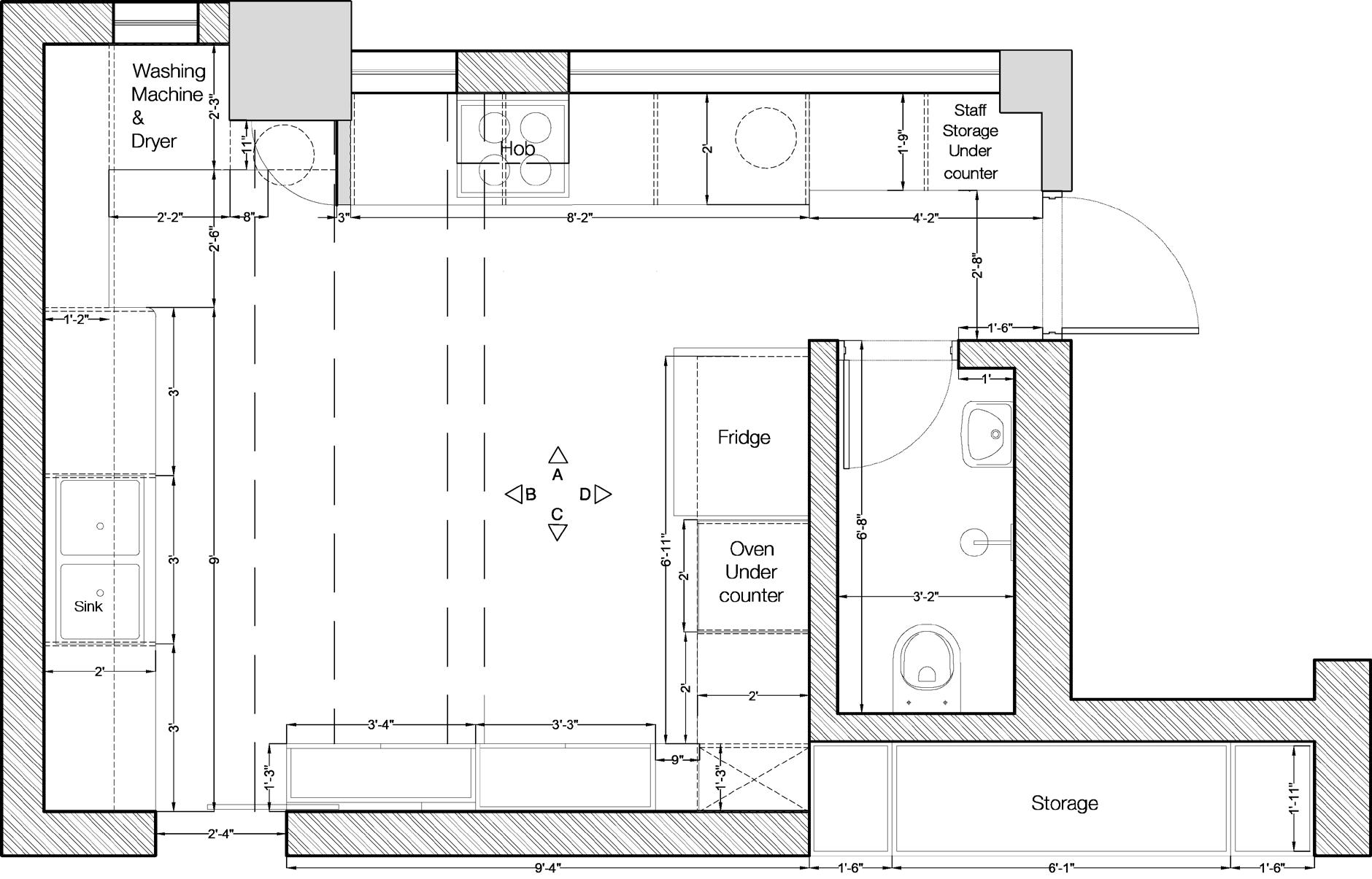
Existing Floor Plan
17 18
Proposed
Floor Plan
Elevation A
B A
Elevation B
19 20
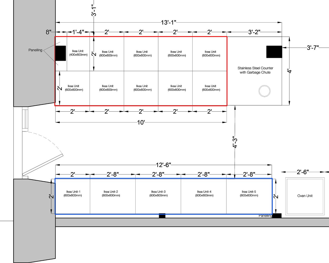
Community Kitchen 4 units : 800 x 600mm 10 units : 600 x 600mm
IKEA Counters :
Cooking Counter Cooker Counter Navy Blue Tile Kota Stone Black Granite Glass Kitchen Materials :
21 22 Flooring Plan Lighting Plan
23 24 SITE VISIT : Existing Condition SITE VISIT : Progress Condition

Bar Lounge

25 26
SpiritForward
Site
Client
Project
Design
Softwares
Enscape
Learnings
03.
Location : Bangalore
Bose
Type : Bar-Lounge Interior
Guide : Ar. Pranav Naik
: AutoCad Photoshop , Sketchup
Render
:
Proposed Floor Plan Proposed Floor Plan

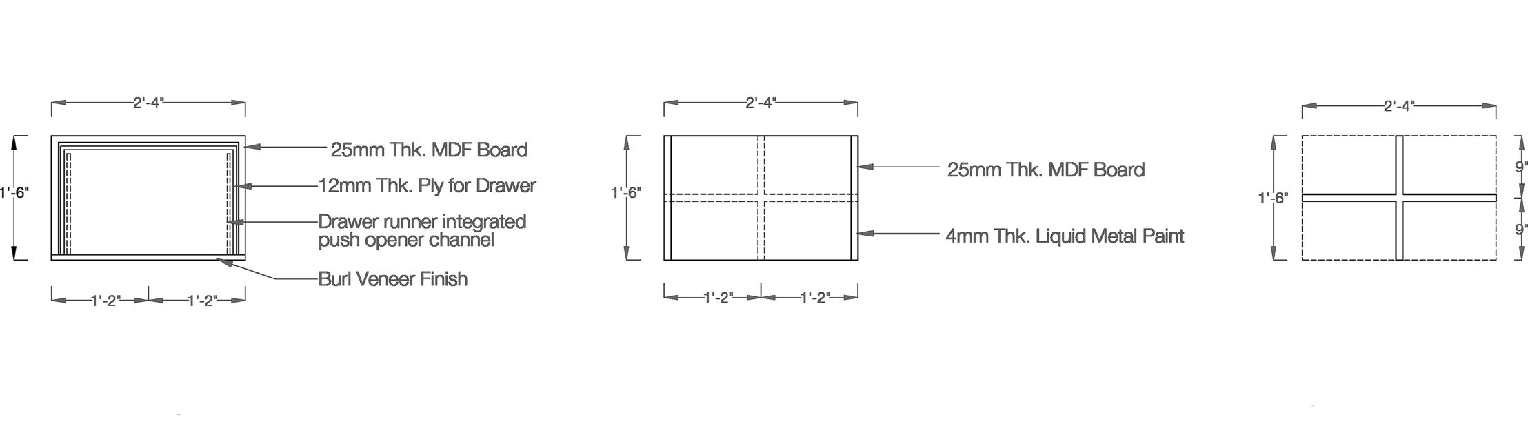
BAR BACK SHELF DESIGN

Initial Design

27| 28
29 30 SFBL Render (cut-01)
31 32 SFBL Render (cut-02)
33 34 SFBL Final Render
35 36
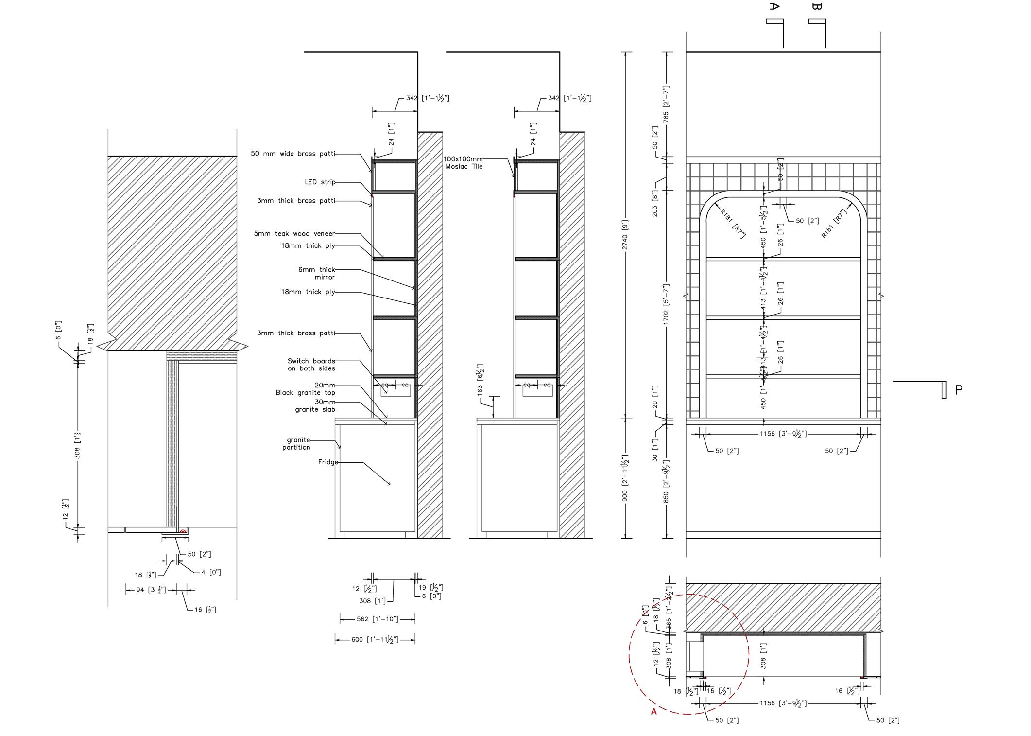
Back Detail : Elevation Section Plan Detail A
Bar

Centre Table Detail :

37 38
Elevation Plan Section Detail A

Masala Kitchen

Site Location : Worli, Mumbai

Client Vikram

Project Type : Restaurant Interior

Project Scope: 3D Rendering

Design Guide : Ar. Shweta Chhatpar, Ar.Pranav Naik

Softwares : AutoCad Photoshop , Rhino3D , Enscape Render

Learnings :

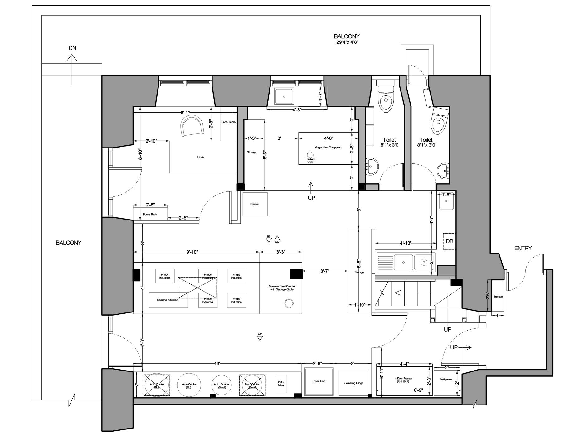
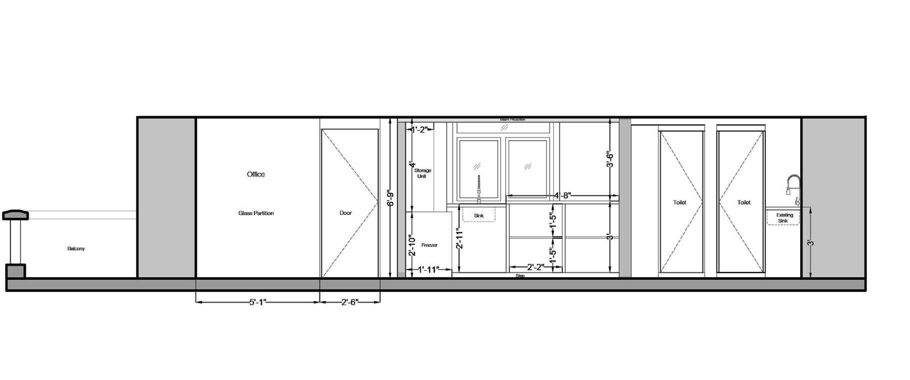
Seating = 36 Pax Proposed Floor Plan

39 40 04.
41 42
43 44 Design Option 01
45 46 Design Option 02
47 48 Final Design Render
49 50 05.
Client
Vora Kitchen Site Location : Lower Parel, Mumbai
Vora Family Project Type : Residential Kitchen Interior Design Guide : Ar. Shweta Chhatpar, Softwares : AutoCad Photoshop , Sketchup , Enscape Render Learnings :
Proposed Kitchen Plan
51 52
Elevation A
B
Elevation Elevation C
D
Elevation
53 54 Design Option-1
55 56 Design Option-2

The “ + ” Collection

Site Location : U.S.A

Client Payal- (Restoration Hardware)

Project Type : Furniture Lineup

Design Guide : Ar. Shweta Chhatpar, Ar. Pranav Naik

Softwares : AutoCad Photoshop , Sketchup , Enscape Render

Learnings :

57 58 06.
59 60
Night Stand Design-1 Site Mock-up

Night Stand

61 62
Design-2

Urvashi Mody Residence

Site Location : Worli, Mumbai

Client Urvashi Mody

Project Type : Residence Interiors

Project Scope : 3D Rendering-Interior Rooms

Design Guide : Ar. Shweta Chhatpar, Ar. Neel Davda

Softwares : AutoCad Photoshop , Sketchup , Enscape Render

Learnings : Understanding the planning of interior spaces, learning about new materials-finishes upholstery Discussing about the material quality, its impact in the space, size availability & market rates of material learning to detail render in the software for clients.

63 64 07.
Proposed Kitchen Plan
65 66 Living Room Den Room Dining Room Parents Bedroom
67 68
Son’s Bedroom Son’s Bedroom Kitchen Parents Bathroom

ANSH - Private Bungalow

Site Location : Alibaug, Mumbai

Client Anil Naik

Project Type : House

Work Scope : 3D Rendering Exterior Views

Design Guide : Ar. Pranav Naik

Softwares : Sketchup Enscape Render

Learnings :

69 70 08.
71 72
RAMMED EARTH KOTA STONE ASPHALT SHINGLE CORTEN STEEL WHITE MARBLE FLUTED GLASS

Site Visits ( Kajjal - Gautam Residence )

Site Visits ( Boys Common Room )

73 74
75 Modelling | Compilation | Drafting 76
BHAVYA MEWADA Studio | pomegranate

Turn static files into dynamic content formats.

Create a flipbook
Issuu converts static files into: digital portfolios, online yearbooks, online catalogs, digital photo albums and more. Sign up and create your flipbook.
Bhavya Mewada | Architectural Internship Portfolio 2022-2023 | Studio Pomegranate by BHAVYA MEWADA - Issuu