

PORTFOLIO BEHNAZ BEHBAHANI
MIKA 911 Office Building
Alidoust & Partner 2016
Rayis Villa
Tamouz Group 2013
DAA Restaurant
House of Design 2014
Bisheh Apratment
House of Design 2018
Film City
Alidoust & Partners 2016
BEHNAZ BEHBAHANI
Architectural
Designer
L: North Vancouver, Canada
T: +1 (236) 9988400
E: bh.behbahani@gmail.com
WORK EXPERIENCE
3D Modeler - Remote Internship
Jedi Corridors LLC, Florida, Jun 2023 - Present
• Created 3D models of road construction projects using CAD tools such as Trimble Business Center and Civil 3D.
• Participated in the estimation for materials and labor costs.
• Tracking project progress utilizing CAD and generating monthly reports.
Architectural & Interior Designer
House of Design, Isfahan , 2016 - 2022
• Managed the design team and supervised construction processes for diverse residential and commercial projects.
• Conducted comprehensive audits of design and construction details to ensure alignment with project requirements.
• Supervised all stages of construction projects and Collaborated with specialized engineering teams to prevent conflicts and inconsistencies.
Architectural Designer
Alidoost & Partners Project Studio, Tehran , 2015- 2016
• Involved in concept designed and design development of interior and architectural projects.
• Conducted thorough feasibility studies, incorporating site analysis to assess existing conditions and determine project viability
• Engaged in client and contractor meetings, fostering clear communication to review requirements and expectations.
Architectural Technician to Designer
Tamooz Architecture and Construction Group, Tehran , 2011- 2015
• Developed conceptual designs and drafted plans for Villas and hospitality projects
• Utilized Adobe software for 2D and 3D drafting, facilitating effective presentations to municipalities and clients.
EDUCATION
Master of Energy Management
New York Institute of Technology, Vancouver, 2022 - Present
Master of Landscape Architecture
Shahid Beheshti University, Tehran, 2011 - 2013
Bachelor of Architectural Engineering | Among top five graduates
Shahid Beheshti University, Tehran, 2006 - 2011
SKILLS
AutoCAD
Sketchup
Adobe Photoshop
Adobe Indesign
Revit
Microsoft office
Free-hand drawing
Civil 3D
Trimble (TBC)
RETScreen eQuest
SAM
REFERENCES
Parna Daei Mozhdehi
Tahereh Mokhtarpour parnarahat@gmail.com t.mokhtarpour@yahoo.com
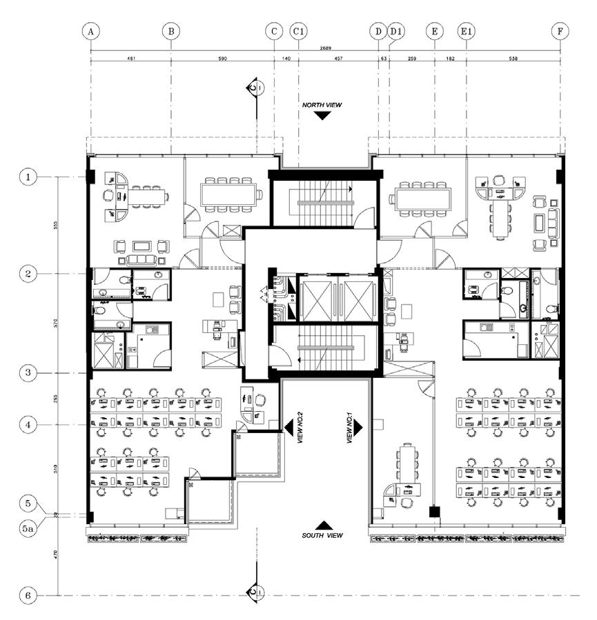
MIKA 911 OFFICE BUILDING
Type: Office / Commercial
Company: Alidoost & Partners
Area: 65000 Sf
Location & Year: Tehran, Iran, 2017
My Role: Concept design | Design development
MIKA 911 was indeed a pioneer building redefining standards of office buildings in Iranian office architectural design. The strategic location of the land with instant access to highway, minimal and function-oriented architecture foreseeing the detailed requirement of the users, wise and generous choice of materials and technology coupled with the selective and cautious choice of the community as its buyers have all given emergence to one of the most prestigious office buildings hosting headquarters of international and credible brands and businesses.
The main concept of the design is to distinguish the internal functions of the project by separating the dual administrative spaces on the upper floors from the commercial space on the ground floor within a unified structure.
To achieve this, the volume of the administrative section is divided into two distinct volumes, enhancing the visibility of interior spaces and allowing sunlight penetration through the middle floors cavity. Addressing the client’s request to divide the ground-floor commercial space into two units, a similar cavity was integrated into this level, ensuring coherence with the upper floors.
A modular network transforms the south face, contributing to the overall unity of the complex. Shifting these modules along the east and west not only creates independent terraces for certain administrative units but also serves as a metaphorical nod to the cornerstone approach in Iranian architecture. This design utilizes repetitive geometry to alter the building mass, adding a symbolic layer to its identity.


2. Divided the volume based on the distinct functions of the project.
3. Incorporated the grid into the volume to create a simple shading system.
4. Shifted the base volume along the grid to enhance sunlight penetration and create integrated balconies
5. Added greenery to different levels of the building from urban spaces through upper levels.
6. Integrated the final volume, green space and shader to achieve final feature of the project.
1. Base Volume




NORTH-SOUTH SECTION




4TH FLOOR PLAN
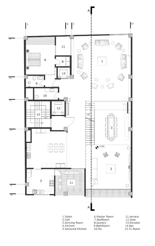
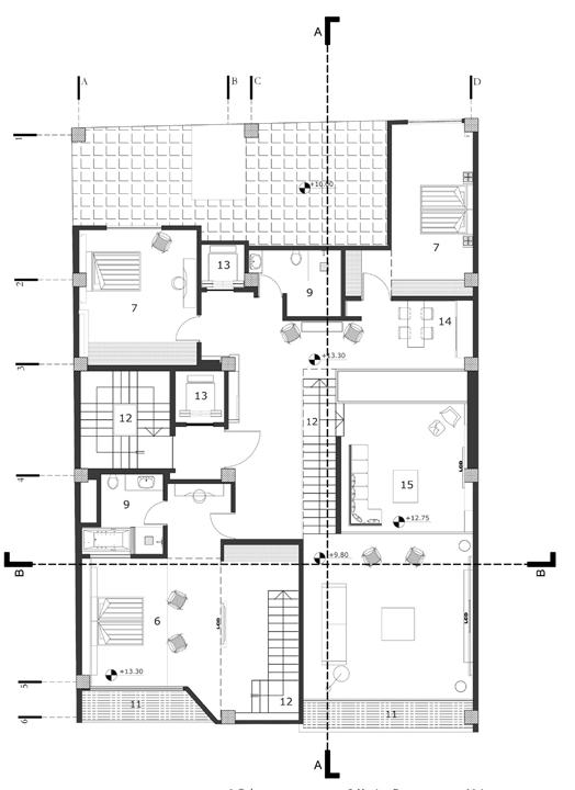
Rayis villa
Type: Residential
Company: Tamouz Architecture & Construction group
Area: 5920 Sf
Location & Year: Mahshahr, Iran, 2013
My role : Concept Design and Design Development
This project emerged as a response to the evolving needs of modern living in a serene, predominantly residential enclave of an industrial landscape. The ground floor was envisioned as a shared space, seamlessly merging indoors and outdoors, while the upper level was allocated to the private spaces. The layout encompassed a living room, two bedrooms, a kitchen, and a dining area on the ground floor, while the first floor offered four bedrooms accompanied by service spaces.
The architectural narrative was inspired by an orthogonal scheme with varying distances. Dividing the verdant expanse into northern and southern realms, the house is positioned as the centerpiece, inviting a symbiotic relationship between the dwelling and its surroundings. By allowing the building to retreat from the eastern and western boundaries, we harnessed the power of natural sunlight, infusing the interiors with its gentle radiance.
The design fosters a connection between indoor and semi-open spaces on the ground floor. Each room on the first floor opened to a personal terrace, ensuring a seamless transition between private and outdoor spaces.



“ A Sustainable Outlook ”
Mindful of the humid climate, we envisioned a design that optimally harnessed natural light and ventilation. While terrace windows supplied indirect light to the first floor, the client’s aspiration led us to integrate controlled openings adorned with sunshades. As the seasons shift, the project remains adaptable to its environment. The meticulously planned structure allows for natural ventilation, while mechanical systems come into play during warmer months. Integrating duct split systems caters to these evolving needs, ensuring comfort and well-being throughout the year.
Rayis Villa

Rayis Villa



Rayis Villa
NORTH ELEVATION



SOUTH ELEVATION

SEC E-E
SECD-D
Rayis Villa

Rayis Villa


FIRST FLOOR
GROUND FLOOR
Rayis Villa
DAA Restaurant
Type: Hospitality
Company: Tamouz Architecture & Construction group
Area: 90000Sf
Location & Year: Mahshahr, Iran, 2014
My role : Design development
DA Restaurant and Reception Hall project, initiated in April 2012 on a 10,000 sq.m plot in Mahshahr, was designed to integrate indoor and outdoor spaces while optimizing natural light, air circulation, and minimizing direct sun exposure. The building, oriented East-West, includes a restaurant, separate men’s and women’s reception halls, and a commercial kitchen capable of serving up to 4,000 dishes daily. The design emphasized transparency and connection with the landscape, using crossovers to create natural ventilation and indoor green spaces, promoting sustainability and enhancing the overall guest experience.
In response to significant economic inflation in 2013, the design team implemented cost-saving measures by designing custom frame-less windows and furniture, which resulted in substantial savings, preserving the project’s budget. Despite challenges like working in a remote location with local labor and limited resources, the project was successfully completed under the project manager’s leadership. The commercial kitchen layout was optimized in collaboration with a food industry expert, ensuring efficient operations and quality service.
In a city with a hot, humid climate and limited entertainment options, DA Restaurant and Reception Hall serves as a crucial social space, enhancing Mahshahr’s infrastructure and offering enjoyment to residents and visitors alike, fostering community interaction and contributing to the city’s cultural and social vibrancy






GROUND FLOOR


NORTH ELEVATION

SOUTH ELEVATION

WEST ELEVATION

EAST ELEVATION





SEC B-B
SEC C-C
SEC A-A
Bisheh Apartment
Type: Residential
Company: Iman Amin lari -House of Design
Area: 20000 Sf
Location & Year: Isfahan, Iran, 2018
My role : Design Development | Project Coordination
Bishe Apartment is located in one of the old and famous quarters of Esfahan. Due to the vicinity of this quarter with Zayande rood and its green band, it holds a unique status.
The advantage of the river view has formed the project’s main idea. Three cubic volumes with maximum openness provide light and view while keeping the form simple. On the ground floor level, parking, a janitor room and a lobby are established, while the basement is allocated for a pool, sports room, party and celebration hall. As the backbone, the stair case was located in the center of the plan and divided into life and function parts and two left and right sections.
Key areas such as sitting rooms and kitchens were strategically oriented towards the southern direction, creating lively living spaces. In contrast, guest rooms and the main hall were thoughtfully positioned to the north.
A suspended wooden cube serves as the family sitting room in the duplex unit. It elegantly bridges the gap between the two floors, echoing the cubic design of the exterior volume within the interior space. This wooden cube harmoniously complements the kitchen as the other wooden element present in the design.


Bisheh Apartment




TRIPLEX UNIT - FIRST FLOOR
TRIPLEX UNIT - SECOND FLOOR


Bisheh Apartment


THIRD FLOOR
SECOND FLOOR
FIRST FLOOR

Bisheh Apartment
TRIPLEX UNIT
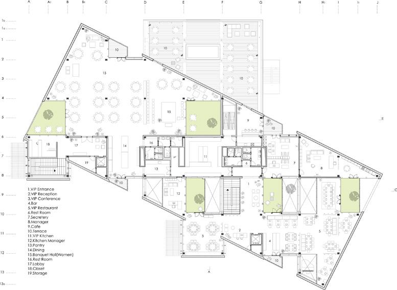
FILM CITY - Connection Between Two Public Spaces
Type: Mixed-Use | Competition
Company: Alidoost & Partners
Area: 1500000 Sf
Location & Year: Mumbai, India, 2016
My role : Concept Design Team
The design seeks to represent the iconic Bollywood Film Industry and redefine the structure as both a functional space and a cultural landmark. Rather than isolating the building with private surroundings, the design integrates public spaces vertically, connecting the lower and upper sections of the project.
The public area at the wharf seamlessly extends into the building’s basement, creating a fluid connection with the ground and inviting the public into the complex. A central courtyard within the landscape leads visitors directly to the tower’s lobby in the basement, enhancing accessibility.
To complement this, a second public space is designed on the upper levels—an outdoor, multifunctional area that mirrors Mumbai’s green spaces, offering panoramic views of the city. This space not only serves as a recreational area but also strengthens the building’s connection with its surroundings.
A vertical transition between these two public spaces is created through an ascending, museum-like space, equipped with observation decks. This space narrates the journey of Bollywood film production, from its early days to the modern era, offering an immersive experience to visitors.
At the pinnacle of the tower, atop the second public area, lies the Bollywood Museum. This space is dedicated to showcasing the vast influence and history of Bollywood, strategically placed in the most prominent part of the structure to emphasize its significance.



Film City
Film City


10th floor plan
With opening plaza through the north east
25th floor plan
With opening plaza through the north west
40th floor plan
With opening plaza through the south
Film City