


Feb/Mar 2025
![]()



Feb/Mar 2025
Evergreen Elementary (2025)
This school year, Evergreen Elementary staff and students are “glamping” at the old Naches Trail building, while Evergreen gets its extreme home makeover thanks to our
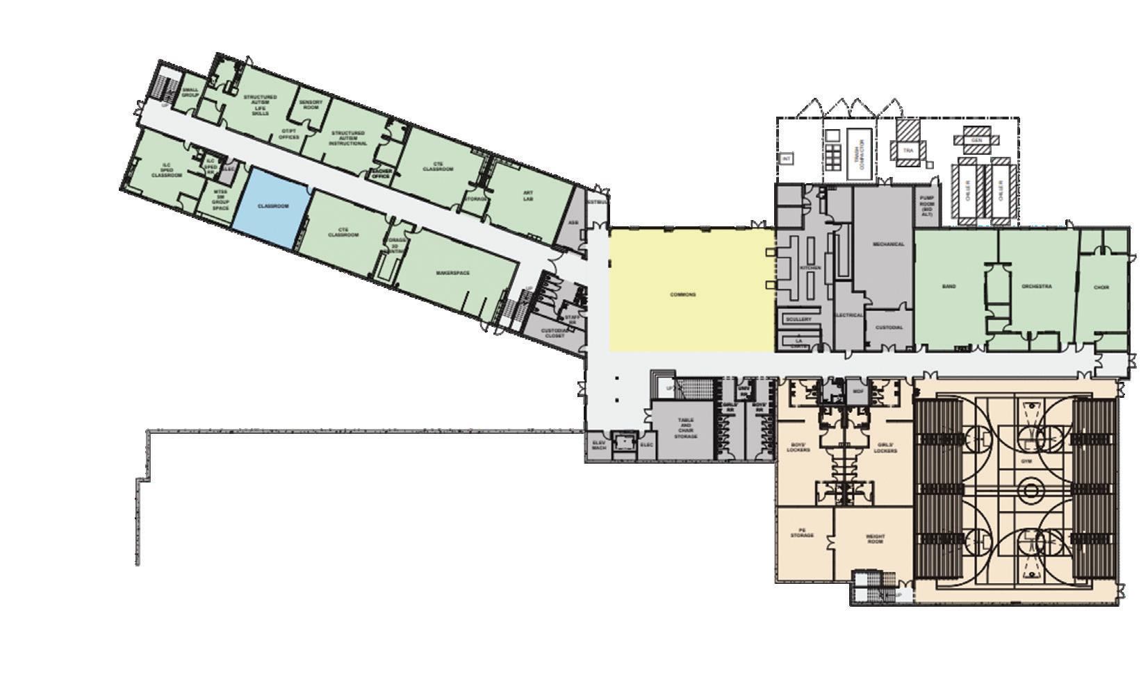
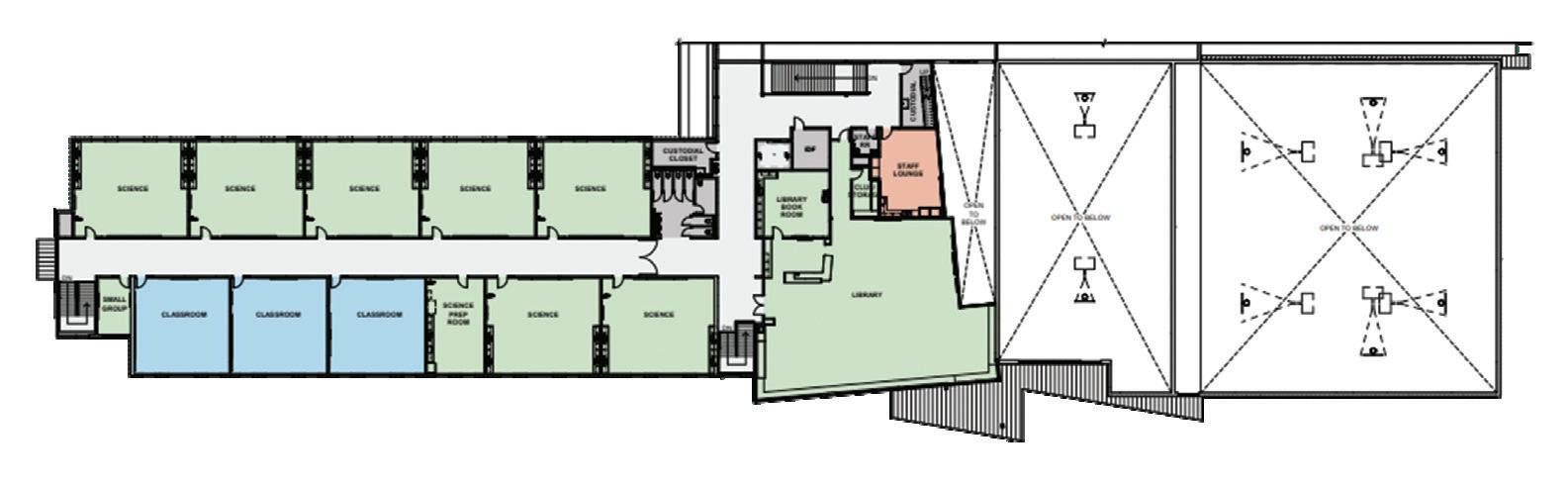
Sara Coccia shared details and preliminary renderings of the much anticipated New Cedarcrest Middle School project.
“If you may recall, the 2019 Bond actually called for a modernization

voters! The much needed expansion of Evergreen Elementary is adding 10,000 square feet to the school, which includes 10 additional classrooms and a new commons area. It is scheduled to be completed this fall.
NEW Bethel High School (2026)
Construction on our biggest bondfunded project began in early 2024 and the building is taking shape! Thanks to our voters, who approved the 2019 School Construction Bond, the new Bethel High is scheduled to be completed in 2026!
NEW Cedarcrest Middle School (2028)
At a recent School Board meeting, Director of Construction and Planning

and addition project,” Coccia said. “But through some very careful bond planning, and some additional funding help from the state in terms of how we get our state match assistance, we were able to allocate some additional money.”
Cedarcrest is one of our older schools in the district. Built in 1982, the school is just under 88,000 square feet, which makes it a similar size to our more modern elementary schools. Along with that, Coccia said the building has a lot of issues.
“It lacks daylight, it has narrow corridors and hallways,” she said. “Quite frankly, our community has outgrown that school. So we’re very excited that we can now build a facility that’s going to meet our current district standards.”
The new school is going to be just under 123,000 square feet. It will be a three-story building with 39 classrooms and is being designed for 850 students. The current capacity for Cedarcrest is only 700 students.
The lower level will house the CTE and art classrooms, as well as the special education suite. A new expanded commons will be on the main level, and the third floor will house science classrooms and the library.
“We worked really hard with the design team to make sure that we could capture some of the views of Mount Rainier,” Coccia said. “By having this on that upper level, the library will have really great views of the mountain.”
Currently, the team is planning to start construction in the summer of 2026. That’s the year Bethel High School students will move to the new BHS building. Cedarcrest students can then move to the old BHS for two years while construction at Cedarcest takes place. The new Cedarcrest is scheduled to open in the fall of 2028.
Bonds are for building, Levies are for Learning
In 2019, our voters approved a School Construction Bond to build new schools and renovate and expand old ones. Bond funding is kept separate from the rest of the district’s budget, including our levies that need to be renewed every four years. As the saying goes: Bonds are for Building, Levies are for Learning. Learn more at bethelsd.org/bond
CedarcrestMiddleSchool,1stFloor

CedarcrestMiddleSchool,2ndFloor

CedarcrestMiddleSchool,3rdFloor


All of our students have had iPads to use in class for almost a decade now. That’s all thanks to our voters, who continue to approve our Technology Levy every four years. Now, because of that technology, you might think we’re a paperless district. But anyone who has been in a classroom knows there’s still a need for printed materials. A lot of printed materials. And that’s where the Bethel Print Shop team comes in.
Print Shop manager Jon Wagoner his team is very busy all year long. “Even in today’s classrooms with iPads and technology, there is still a great need for printed materials,” he said. “There are some times where having something physical or tangible is still important and adds value. Beyond that, there are lots of things you might not even be thinking of that we can produce to support our students and staff, like schedules, calendars, maps, signs, stickers, and a lot more. If you have an idea for something that you want printed or produced, we can probably find a way to make it!”
Each year the Print Shop completes tens of thousands of orders, including over 250,000 student workbooks. That work impacts students in a very real way. And Wagoner said that impact trickles back to the Print Shop too.
“Our team shares a lot of pride and satisfaction in the work that we do, and we don’t go unnoticed. We get a lot of shout outs and appreciation from staff. Some people drop off treats and baked goods as a thank you, and we often receive thank you cards from staff and occasionally from classrooms! One thing I’ve always liked is when I go to community events like ABC Day or the Technology and Art Fair, people will recognize me, or if I tell them I work in the Print Shop, I get the greatest reactions from people who are grateful for the service we provide,” he said.
Not only does Wagoner work here, but his wife is a teacher in our district and his kids attend school in Bethel. Needless to say, he loves the community.
“I think our district is doing a lot of things right. In my time in the Print Shop I’ve gotten to know a lot of staff and see how different departments run. I see a lot of hard-working people that really care about improving the learning environment of students! I’m also really impressed with how our budget is handled and how careful our district has been to keep us in such good financial standing, especially in comparison to other districts in the state,” he said.
Speaking of our budget, Wagoner said having a Print Shop in the district saves our taxpayers a lot of money each year.
“Our Print Shop is here to serve the staff and students of Bethel School District, and we operate as a cost-saving service. Our goal is to produce anything you need for less than it would cost to go outside of the district,” he said.


PRINT SHOP is one of the many programs that is supported by money from our local levy.

School levies are voted on every four years. The next time you’ll see a levy on the ballot will be 2026.
Education isn’t one-size-fits-all, and students at Challenger High School are proving that different learning approaches can open doors to new possibilities.
For students who thrive in a smaller, more personalized environment, Challenger can provide an alternative path to success. Academic counselor Alison Von Stein, who has been at the school for more than 15 years, plays a key role in helping students in all facets of their academic journey.
“Just helping students navigate their High School and Beyond plan and setting them up for success is a big part of what we do,” Von Stein said.
Challenger follows the same graduation requirements and curriculum as our district’s three comprehensive high schools, but it does so with a more individualized approach. The smaller class sizes allow for a more close-knit environment where students receive focused attention and support. That’s exactly why Wyatt, a senior, chose Challenger.
“I came here to Challenger because I heard from different people in the district that this would be a good place for me because it’s much smaller with more focused classes. It’s more of a tight-knit family,” he said.
That sense of community has only grown stronger with the completion of the new Challenger campus, thanks to our 2019 Construction Bond. The new facilities include a gym –something the former campus never had before.
“We used to be in portables, so the weather was a challenge. We’d be drowned rats getting from classroom to classroom, so I think the students appreciate having a roof over our heads. I think that helps with our community building because we’re all under the same roof now,” Von Stein said.
For students like Wyatt, the new building is just one of many things that make Challenger special.
“Whether it’s students, staff, teachers, nobody is afraid to be themselves and show who they are, so you get those more personal, real experiences,” he said.
Beyond academics, Challenger emphasizes the importance of relationships, and Von Stein said those are just as important as the lessons in the classroom.
“I just think that treating everybody with kindness and respect can change a person’s life and go a really long way. Beyond even the books and the papers, building relationships and getting to know people for who they are can really matter in someone’s life,” she said.



“I just think that treating everybody with kindness and respect can change a person’s life and go a really long way.”
~Alison Von Stein


At Bethel Middle School, Leanne Pollard is doing more than just teaching robotics – she’s inspiring the next generation of problem solvers and proving that the future of STEM is open for everyone.
Pollard is in her fourth year of teaching STEM and robotics at Bethel Middle, following a two-decade career in the Navy as a construction electrician. Her path to education wasn’t a straight line, and she didn’t always know she wanted to pursue a career in science and technology.
One of the reasons she chose to teach STEM was to be a role model for girls.
“I think it’s important for them to see that a woman can do this,” Pollard said. “It’s one of those things: See yourself in me. If they can see that I’ve done it, then hopefully that gives

others the courage to try it out.”

In the science and technology fields, which are still largely dominated by men, Pollard’s presence in the classroom sends a powerful message to her students. She’s showing them that innovation has no gender, and that they, too, can be builders, engineers, and coders.
One of the ways Pollard fosters curiosity and engagement in her students is through hands-on experiences, like working with the SPIKE Prime Kit from LEGO Education. This kit helps students develop coding skills and understand the fundamentals of robotics by building and programming their own creations. It’s a tool that allows students of all skill levels to enter the world of STEM, regardless of their prior knowledge or experience.
“No matter their knowledge, they can come in not knowing anything and develop skill, develop knowledge about robotics,” Pollard said. “We want to spark their interest and see if they find something that they engage well with that might, perhaps, spark an interest in what they want to do in their future, post high school.”
For students like seventh grader Mya, the experience has been transformative.
“I just like the idea of creating something that can someday be useful to the world,” Mya said. “And it’s really cool to see what you can build and do with robotics.”
Beyond coding and robotics, Pollard emphasizes the importance of critical thinking and resilience. Trial and error are central to the STEM experience,


taken part in Pollard’s classes. “Last year my robotics team came across a couple of problems (during a

and students learn firsthand how to navigate challenges and setbacks – an essential skill in both technology and life.
“I just like the idea of creating something that can someday be useful to the world.”
~Leanne Pollard
“Sometimes there are challenges when it comes to robotics,” said Preston, an eighth grader who has
competition), so we adjusted them based on the outcomes they produced and fixed them. You just have to help the team out.”
Pollard’s commitment to handson learning extends beyond the classroom. Each year, she takes her students to MESA Day at Pacific Lutheran University, where they engage in STEM-based challenges, such as designing bridges out of popsicle sticks and testing how much weight they can withstand. The event not only strengthens students’ engineering skills but also reinforces teamwork, creativity, and the realworld applications of STEM.
“These classes are important because it lays the foundation for learning how to problem solve early on,” Pollard said. “They’re developing skills that will be useful in life. Some of the skills they’re developing here will help them solve real-world problems.”


Behind every highly-skilled school bus driver in Bethel, there’s a dedicated trainer ensuring that new drivers are prepared for the important responsibility of transporting students.
Our driver trainers play a crucial role in shaping the next generation of bus drivers, equipping them with the skills needed to navigate the road and keep our students safe.
Prior to being named Bethel’s Lead Driver Trainer, Mahogany Corioso was a school bus driver herself. She loved being around kids every day as a driver, but she also loves being able to train the next generation of successful bus drivers in our district.
“It is the most rewarding job,” Corioso said. “There’s something truly special about being able to have a hand in a person’s success. That’s what drives me to do what I do. It’s something that’s embedded in me and something I’m passionate about.”
Driving a school bus is a difficult and important job. Drivers are not only responsible for their vehicles, but for the safety of all of the children on board. Learning the job and gaining confidence behind the wheel can take time, but Corioso said she takes great
pride in helping trainees gain that confidence.
“Our job as trainers is to make them believe that they have the ability to be successful and do their job. Our job is to ignite that confidence and that motivation in them,” she said.
Corioso has a background in the cutthroat corporate world, and she
to spend time with her family without worrying about work.
“The true beauty of working for Bethel Transportation is not only the people, but the quality of life,” she said. “As a driver, we teach them in training that you do your job the way you’re taught to do your job, you handle what you need to handle and you hang up your keys. The leadership doesn’t call you,


appreciates that her current job –and all jobs in the Transportation Department – gives her the freedom TohearmorefromMahogany,scantheQRcodetolistentoEpisode119ofour districtpodcast.
you don’t have dispatch calling you or routing calling you. You go home and you enjoy your family.”
Thinking about a career with our amazing Transportation Team? Come learn about what it’s like to be a Bus Driver and Bus Assistant at our next hiring event!
Location: Transportation Service Center, 5625 192nd St E, Puyallup, WA 98375
Date: April 1, 2025 Time: 2 p.m. to 6 p.m.
There will be opportunities for on-the-spot Interviews and potential day-of job offers. We are proud to offer paid training, benefits, pension, and a schedule that matches students.
Finding joy in your job is a goal many people have. Kim Lingo has found it here in Bethel.
Lingo is a paraeducator at Frederickson Elementary School. It’s a job she came to after her kids got older.
“I was volunteering at my kids’ schools, I was a Girl Scout troop leader, I would help out with my son’s sports league – and all of that felt like … my ‘real life.’ And my ‘work life’ was just something that supported my real life,” she said.
As her kids graduated high school, Lingo said she got to spend less time doing the things she loved that made up her “real” life. “They don’t need me so much anymore, so I have a lot of love and care in my heart that had nowhere to go,” she said.
So she looked at the things that brought her joy in the past and found they revolved around her time at school.
“I just loved being at the school, being around the kids, it just made my heart so happy,” she said. And I realized that I didn’t have to do that just part time, or just volunteering, there were lots of opportunities where I could make that my full-time job.”
And so she did. Now as a paraeducator, she’s found a job that is challenging, rewarding, and brings her joy.
“Every single day after work, I come home with a completely different attitude. And let’s be honest, I’m way more fun at dinner parties –way better stories to tell from the classroom,” she said.
The work not only has a positive impact on her own life, Lingo is positively impacting the students she works with. “I get to work with these kids who truly respond, and I can see and feel the influence that I have on them on a daily basis,” she said. “Fulfilling is not even a word that begins to describe it.”
Each day is different, but the structure of the school day provides some memorable moments.
“In the morning I do about a half hour

of supervision as the kids arrive. I get to say ‘good morning’ and get my morning hugs from my kiddos, which I absolutely love – when they come running up in the morning,” she

said. “Then we do a few minutes of prep and then I have students pretty much all day. We do rotating groups, small groups, like two to four kids at a time where we work with them to help them get their reading and their writing skills up to where they need to be on grade level.”
Lingo’s background isn’t in teaching, but she said the support she gets from staff has been amazing.
“There’s a lot of support. The lead teachers here are so great about coaching and really just checking in and making sure everything’s on track and things are going the way they’re supposed to be going,” she said
If you’re interested in becoming a paraeducator like Lingo, there are lots of options available at jobs.bethelsd. org.
“There’s so many different ways that you can contribute to this district and to the students, the kiddos, that we all love and want such a bright future for,” Lingo said. “If you have that desire in any capacity, whether it’s part time or full time, I would highly suggest folks check out the job listings that are available.”
We’ll be hosting a Hiring Event geared towards Special Education Paraeducators, including 1:1 Instructional Paras
Location: Educational Service Center 516 176th St E, Spanaway, WA 98387 Date: March 12, 2025 Time: 2 p.m. to 6 p.m.


Sports can be about so much more than simply winning or losing. They can also be a bridge that brings general education and special services students together as teammates and friends.
That’s exactly what the Unified Sports program at Bethel aims to do.
Unified Sports offer students of all abilities the opportunity to play side by side, fostering inclusion, teamwork, and lifelong friendships. Miranda Fickle, who teaches Health, Fitness, and Leadership at Graham-Kapowsin High School, is one of the key figures behind the program’s success.
“In basketball, we have three special services students in and two general education students in at a time, so our special services students have an opportunity to play in a competitive game, but with a little help from our general education students. Then they also get that social aspect,” Fickle explained.
Bethel’s Unified Sports program offers basketball, track, and even Unified E-sports, where students can compete in video games like Mario Kart. The goal isn’t just about competition—it’s about creating an environment where all students can thrive and feel valued.
Bryce, a senior general education student, became involved in Unified Sports after Fickle reached out to him as a sophomore. Since then, the experience has made a lasting impact on him.
“I’ve enjoyed every single moment that I’ve been on the court, sharing the court with them. It’s really a once-in-
a-lifetime experience. I’ve made so many friends and I don’t regret doing it at all. If you’re thinking about doing it, don’t hesitate, just go do it,” Bryce said.
One of the biggest events of the year for Unified Sports is Pack the Gym, an event that makes special services students feel like stars.
“For Pack the Gym, it’s really just a huge event where our special services students get to feel like celebrities. The gym is packed, hence the name. There are so many people in the stands and everyone is cheering,” Fickle said. “The students get that sense of belonging, and they also get the opportunity to compete in sport at a pretty high level, and they get to hang out with their friends and play a game that they love.”
The impact of Unified Sports extends beyond the court or track. Last year, the Unified Track team took second place at the state competition—the first time that has happened in the district’s history. One of the standout athletes from that season was Jacob, a 10th-grade special services student who placed at the state track meet.
“I’ve been running real fast, like a racecar, of course,” Jacob said with a smile.
Success in Unified Sports isn’t just measured in wins and losses—it’s measured in the friendships formed and the community built.
“In basketball, I think, honestly, the biggest success is just seeing the relationships that have been built,” Fickle said. “We have a lot of different
students that play on that team, and seeing them eating lunch together or saying ‘hi’ in the hallways is the biggest success.”
This year, Bethel is adding a new sport to its Unified Sports lineup: Unified Cornhole. The game is particularly inclusive, as students in wheelchairs can participate fully. The cornhole boards being used were specially designed and built by students at the Pierce County Skills Center, making it a true community effort.
UNIFIED SPORTS is one of the many programs that is supported by money from our local levy.

School levies are voted on every four years. The next time you’ll see a levy on the ballot will be 2026.





Bethel School District
February 12 at 10:01 am


Bethel School District •••
February 14 at 9:00 am •

Spanaway Lake High School’s FCCLA Leadership class recently hosted a successful blood drive with Bloodworks Northwest. The drive collected 40 units of blood, with 31 students donating for the first time. The donations will play a vital role in saving lives across the region. Great job!




Can you believe it has already been more than 100 days since school started this year? Time flies! The students and staff at Centennial Elementary had a great time celebrating the occasion this week!




Bethel School District
February 11 at 12:45 pm


Do you know how to repair your lawnmower or weed eater? How about rebuild a car engine? Students in Mr. Bland’s Small Engines class at Bethel High School can! This unique, hands-on class teaches students how to diagnose and repair all kinds of engines. They’re... See More






CTJOR RTSORTUINC
USB VRRDIE
RAUDECRPAOAT
Unscramble the words to uncover some great jobs in our district. Then use the circled letters to unscramble the bonus phrase.
USMCI AEECRHT
DSTAICNUO
UETTUBSTSI
CNPRALIPI

BONUS PHRASE

An evening of bidding, community spirit, and generosity awaits as the Graham Business Association prepares to host its annual auction, raising funds to support local students’ educational dreams.
Each year, the GBA auction plays a crucial role in funding approximately 30 scholarships for Bethel students. Unlike many traditional scholarships awarded only to high school seniors, the B.E.S.T. scholarships can be granted as early as fifth grade, provided the recipients continue their education within Bethel and graduate from a district high school.
Jamie Burnett, Principal at Graham Elementary and a former B.E.S.T. Scholarship recipient, knows firsthand how these funds can shape a student's future.
"It was just awesome to have the community that I grew up in give back, and I was able to take that award and apply it to where I am as an educator and a principal today," Burnett said.
Paige Meeks, another former scholarship recipient, attended Naches Trail Elementary, Spanaway Junior High, and graduated from Spanaway Lake High School. Today,

she is a fifth-grade teacher at Clover Creek Elementary, paying forward the support she once received.
"We are very selective," Meeks said. "We bring in a list of kids who will most likely stay in the district as well as show great characteristics of our school’s soar values."
The auction itself is more than just a fundraiser -- it's a celebration of the community’s commitment to education. This year’s theme, "Starry Night," will transform the event into a dazzling affair. Middle school students are lending their creative talents by designing backdrops for photo opportunities, while culinary students from the Pierce County Skills Center are preparing a menu for guests. Additionally, Nelson Elementary students will be on hand to serve food, and artwork from Bethel students will be on display throughout the venue.
Dani Thorn, a teacher at Bethel High School and one of the auction’s organizers, emphasized the importance of incorporating student participation into the event.
"We really want to bring in as much student voice as we can, because it really benefits them, but we also want

to make it a party at the same time," Thorn said.
As attendees place their bids, they will have the chance to win an array of unique and exciting items. A generous parent has donated three guitars for the auction, while sports fans can vie for Seattle Seahawks and Seattle Storm tickets. Outdoor enthusiasts might be drawn to the guided duck hunt experience, and Top Tier Sports has contributed a $500 tournament package. These and many other prizes are expected to generate significant interest and, more importantly, essential funds for the scholarships.
For the dedicated organizers, the months of planning and preparation are well worth it. Karina Teal, Associate Administrator at Roy Elementary and an auction planner, said it is truly a group effort.
"It takes a lot of work," Teal said. "There’s no way to go at this alone. It really does take an entire village."
To learn more about the Graham Business Association or buy tickets for the March 14th GBA auction, visit: grahambusinessassoc.org.


Bethel Pride is produced by the Bethel School District’s Communications Department.
Bethel Schools
516 176th Street East, Spanaway, WA 98387
Phone: 253.800.2000
Email: communications@bethelsd.org Website: bethelsd.org
TheBethelPrideisintendedtoinformthecommunityatlargeaboutgoingsoninthedistrict.Becauseweusebulkmailing, individualaddressescannotberemovedfromthemailinglist.
Bethel School District does not discriminate in any programs or activities on the basis of sex, race, creed, religion, color, national origin, age, veteran or military status, sexual orientation, gender expression or identity, disability, or the use of a trained dog guide or service animal and provides equal access to the Boy Scouts and other designated youth groups. The following employees have been designated to handle questions and complaints of alleged discrimination: Civil Rights Compliance / Gender-Inclusive Schools Coordinator, Debbie Carlman, dcarlman@bethelsd.org, 253.800.2019; Title IX Coordinator, Bryan Streleski, bstreleski@bethelsd.org, 253.800.4302; and 504 Coordinator, Melissa Munson-Merritt, mmunsonmer@bethelsd.org, 253.800.2301. All individuals may be reached at this address: 516 176th Street East, Spanaway, WA 98387. Title IX inquiries may also be directed toward the U.S. Department of Education, Office for Civil Rights (OCR): https://www2.ed.gov/about/offices/list/ocr/index.html. Information about the nondiscrimination and sex-based discrimination policies and grievance procedures, and how to report a concern or complaint: bethelsd.org.
El Distrito Escolar de Bethel no discrimina en sus programas o actividades por motivos de sexo, raza, credo, religión, color, nacionalidad, edad, condición de veterano de guerra o grado militar, orientación sexual, expresión de género o identidad, discapacidad o por el uso de perro guía entrenado o animal de servicio; además ofrece igualdad de acceso a los Boy Scouts y a otros grupos de jóvenes especificados. Los siguientes empleados han sido designados para atender consultas y quejas de supuesta discriminación: Cumplimiento de los Derechos Civiles/Coordinadora Escolar de Inclusión de Género, Debbie Carlman, dcarlman@ bethelsd.org, 253.800.2019; Coordinador del Título IX, Bryan Streleski, bstreleski@bethelsd.org, 253.800.4302 y Coordinadora 504, Melissa Munson-Merritt, mmunsonmer@bethelsd.org, 253.800.2301. Todas las personas pueden ser localizadas en esta dirección 516 176th Street East, Spanaway, WA 98387. Las consultas sobre el Título IX también pueden dirigirse a la Oficina de Derechos Civiles (OCR) del Departamento de Educación de EE.UU.: https://www2.ed.gov/about/offices/list/ocr/index.html. Para más información sobre las políticas de no discriminación y discriminación por razón de sexo; los procedimientos de reclamación y sobre cómo comunicar una preocupación o queja visite: www.bethelsd.org.

Bethel School District No. 403
516 176th St. E., Spanaway, WA 98387-8335
(253) 800-2000 | www.bethelsd.org
