Proposte mese di Marzo Beni Immobiliari

Page 1

www.beniimmobiliaripalermo.it info@beniimmobiliaripalermo it 091.6824690 335.6778932 N . 5 4M A R Z O 2 0 2 3 TTITI COMODO, ASA CHE CERCHI È QUI! MARZO BENI IMMOBILIARI CONSULENZE & VENDITE 90145 PALERMO VIA G B LULLI 27-29-31 LE NOSTRE PROPOSTE DEL MESE DI

CENTRO STORICO

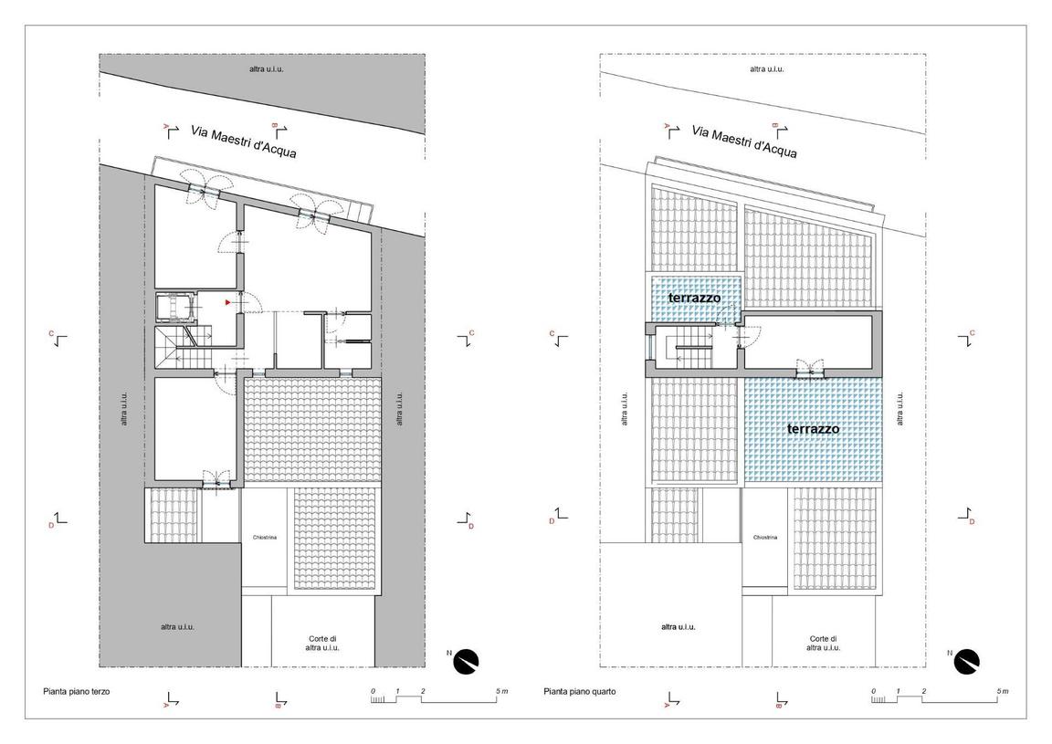
VIA MAESTRI D'ACQUA

A pochi passi da piazza Rivoluzione proponiamo in vendita intera palazzina cielo terra con progetto di ristrutturazione già approvato situato su un area di sedime di circa 140 mq la palazzina è composta da 6 unità abitative così suddivise: piano terra magazzino di circa 120 mq al primo e al secondo piano troviamo due bivani ad ogni piano di circa 60 mq cadauno, al terzo piano appartamento bilivelli con terrazzo di circa 120 mq

TERRAZZO

VANI | MQ 480
290.000
10
EURO
W W W . B E N I I M M O B I L I A R I P A L E R M O . I T
091.6824690 335.6778932
RISTRUTTURARE
10
DA
480 MQ
VANI
Rif 7/23 VUOI VENDERE IL TUO IMMOBILE? V A L U T A Z I O N I I M M O B I L I A R I G R A T U I T E 2 INTERA PALAZZINA

LIBERTA' VILLABIANCA

Tra via Libertà e via Marchese di Villabianca in zona ricca di attività commerciali di ogni tipo proponiamo in vendita luminoso appartamento posto al 4° piano composto da ingresso, salone, cucina, 3 camere 2 bagni e ripostiglio

L'appartamento inoltre gode di un balcone che affaccia sul prospetti principale e un ampio balcone sul retro prospetto

091.6824690

335.6778932

VANI | MQ 130
2 BALCONI BUONO STATO 130 MQ 4VANI 2 WC
4
EURO 219.000
Rif 5/23 3
VALORIZZIAMO AL MEGLIO IL TUO IMMOBILE W W W . B E N I I M M O B I L I A R I P A L E R M O . I T V A L U T A Z I O N I I M M O B I L I A R I G R A T U I T E
VIA BALDISSERA
MQ 130
dal
vendita appartamento luminoso piano alto doppia esposizione composto da ingresso salone doppio 3 camere cucina abitabile bagno con possibilità di ricavare anche il secondo, ripostiglio. Completa la proprietà un box auto.
5 VANI |
EURO 279.000 In zona Notarbartolo Campolo precisamente in Via G B Lulli, a pochi passi
tram, proponiamo in
W W W . B E N I I M M O B I L I A R I P A L E R M O . I T DISCRETO STATO 130 MQ 5 VANI 1 WC CAMPOLO VIA G. B. LULLI Rif 46/22 VUOI VENDERE IL TUO IMMOBILE? BOX AUTO V A L U T A Z I O N I I M M O B I L I A R I G R A T U I T E 4
2
BALCONI 091.6824690 335.6778932

MARCHESE VILLABIANCA

VIA M. TOSELLI

In zona Libertà Marchese di Villabianca, precisamente in via Maggiore Toselli in contesto signorile, appartamento divisibile con doppio ingresso, soggiorno, 2 ampie camere, cucina abitabile, doppi servizi uno con doccia ed uno con vasca, 2 balconi con doppia esposizione L’appartamento si presenta in ottime condizioni, con riscaldamento autonomo, impianti in ottimo stato, porte blindate, infissi in vetrocamera , servizio di portierato

091.6824690

335.6778932

4 VANI | MQ 110 EURO 237.000
V A L U T A Z I O N I I M M O B I L I A R I G R A T U I T E
2 BA
5
VALUTAZIONI IMMOBILIARI GRATUITE W W W . B E N I I M M O B I L I A R I P A L E R M O . I T
Rif. 11/23

EURO 490.000

In Via Mariano Stabile altezza Ruggero Settimo proponiamo in vendita posto al quarto piano con ascensore ampia metratura con doppia esposizione composto da 10 vani + 2 servizi. L'immobile attualmente è un'ufficio con categoria A/10 con possibilità di cambio di destinazione d'so per abitazione.

VANI
MQ
10
|
220
Sia per la posizione
metratura
ottimale
uso B&b - struttura ricettiva.
220 MQ 10 VANI 2 WC
W W W . B E N I I M M O B I L I A R I P A L E R M O . I T POLITEAMA VIA M. STABILE Rif. 37/22 VUOI VENDERE IL TUO IMMOBILE? 6 V A L U T A Z I O N I I M M O B I L I A R I G R A T U I T E
che per l'ampia
si presta in maniera
ad
3 BALCONI DA RISTRUTTURARE
091.6824690 335.6778932
7 5 VANI | MQ 140 EURO 445.000 V A L U T A Z I O N I I M M O B I L I A R I G R A T U I T E 091.6824690 335.6778932 In zona Notarbartolo Liberta’ precisamente in via Francesco lo Iacono appartamento luminoso con doppia esposizione composto da ingresso salone doppio, cucina soggiorno, 2 camere, due bagni, ripostiglio e ampio balcone NOTARBARTOLO VIA LO JACONO Rif. 1/23 VALUTAZIONI IMMOBILIARI GRATUITE W W W . B E N I I M M O B I L I A R I P A L E R M O . I T
In palazzina d'epoca ristrutturata, luminoso appartamento attualmente uso ufficio ristrutturato, composto da: ampio ingresso salone doppio quattro camere cucina doppi servizi
200 MQ 6 VANI 2 WC 091.6824690 335.6778932 W W W . B E N I I M M O B I L I A R I P A L E R M O . I T 6 VANI | MQ 200 EURO 339.000 ROMA-CRISPI VIA F.SO CRISPI Rif. 74/21 VUOI VENDERE IL TUO IMMOBILE? 8 V A L U T A Z I O N I I M M O B I L I A R I G R A T U I T E
2 BALCONI BUONO STATO

CENTRO STORICO VIA SAN CRISTOFORO

In pieno centro storico all’interno di un palazzo del 600’ che porta il nome di Amari Bajardi con prospetto appena rifatto Ampio appartamento posto al primo piano composto da: ingresso, ampio salone con tetti a volta, soggiorno, tre camere di cui 2 soppalcate, cucina, 2 bagni ripostiglio terrazzino e balconi. Si presenta con pavimentazione e mazzetti rifatti porte in douglas, impianto di riscaldamento e rifiniture del 600 come i tetti a cassettoni con dipinti originari

091.6824690

335.6778932

7 VANI | MQ 245 EURO 330.000
2 BALCONI BUONO STATO 245 MQ 7 VANI 2 WC
9
17/21 SCEGLI BENE, SCEGLI BENI IMMOBILIARI. W W W . B E N I I M M O B I L I A R I P A L E R M O . I T V A L U T A Z I O N I I M M O B I L I A R I G R A T U I T E
Rif.

CALATAFIMI ALTA VIA POLLACI

EURO 219.000

All'interno di un residence, luminoso ampio quadrivani, con doppia esposizione. Si presenta in ottimo stato con impianti rifatti e infissi in vetrocamera composto da ingresso, cucina soggiorno, tre ampie camere, bagno, due ripostigli, balconato, posto auto scoperto in zona condominiale

091.6824690

335.6778932

2 BALCONI RISTRUTTURATO 140 MQ 4 VANI 1 WC
W W W . B E N I I M M O B I L I A R I P A L E R M O . I T
4 VANI | MQ 140
Rif. 7/22 VUOI
TUO IMMOBILE? 10
V A L U T A Z I O N I I M M O B I L I A R I G R A T U I T E
VENDERE IL
POSTO AUTO

TRIBUNALE VIA BARBARACI

In centro storico alle spalle della nuova zona del Tribunale, a due passi dallo storico mercato del Capo proponiamo in vendita in palazzina storica ristrutturata 7 piccole unità immobiliari su 2 livelli così divise:

- P TERRA 1 bivani 40 mq ingresso cucina abitabile, camera, wc, spazio esterno 200 mq ;

PRIMO PIANO: 1 monovano mq 22 un vano angolo cottura, wc, balcone;

- 1 monovano mq 24 un vano con angolo cottura, wc, balcone;

- 1 monovano mq 25 un vano con angolo cottura, wc, balcone ;

- 1 bivani mq 45 soggiorno con angolo cottura con balcone sul giardino, camera, wc e terrazzo sovrastante;

- 1 bivani mq 43 cucina soggiorno camera, wc, doppi balconi;

- 1 bivani mq 74 su 2 livelli composto da cucina soggiorno balcone e wc, 2° livello camera con cabina armadio

Tutti gli appartamenti si presentano in ottimo stato, arredati, balconati, con area videosorvegliata Ideale anche come struttura ricettiva e/o b&bcasavacanze. Ottimo uso investimento, alcune unità sono già locate.

091.6824690 335.6778932

11 VANI
MQ
275 MQ 11 VANI 7 WC
|
275 EURO 469.000 7
BALCONI OTTIMO STATO
-
1 1
Rif. 65/21 TI OFFRIAMO UNA CONSULENZA GRATUITA. W W W . B E N I I M M O B I L I A R I P A L E R M O . I T POSSIBILITA' ANCHE DI VENDITA IN BLOCCO: 3 MONOVANI MQ TOTALI 71 EURO 159.000 3 BIVANI MQ TOTALI 162 EURO 229.000 V A L U T A Z I O N I I M M O B I L I A R I G R A T U I T E
4 VANI | MQ 130 EURO 139.000 2 BALCONI BUONO STATO 130 MQ 4 VANI 2 WC In zona residenziale panoramico, luminoso, piano alto, in residence appartamento buono stato, composto da: ingresso salone, 3 camere da letto, cucina abitabile, due bagni, ripostiglio, balconi Completano la proprietà il posto auto e la cantina POSTO AUTO ACQUA DEI CORSARI VIA MONTANA Rif 55/22 091.6824690 335.6778932 W W W . B E N I I M M O B I L I A R I P A L E R M O . I T 12 VUOI VENDERE IL TUO IMMOBILE? V A L U T A Z I O N I I M M O B I L I A R I G R A T U I T E

ACQUA DEI CORSARI VIA KOLBE

185.000

|

BOX AUTO

Nelle immediate vicinanze dello svincolo autostradale, in zona residenziale panoramico vista mare, luminoso, piano alto, in residence appartamento buono stato, composto da: doppio ingresso, salone doppio, 2 camere da letto, studio, cucina, due bagni di cui uno in camera, ripostiglio, balconi Completano la proprietà il posto auto e il box auto

1 3 V A L U T A Z I O N I I M M O B I L I A R I G R A T U I T E
5 VANI MQ 130 EURO 2 BALCONI BUONO STATO
130
MQ 5 VANI 2 WC
091.6824690 335.6778932
ABBIAMO IL MIGLIOR ACQUIRENTE PER TE. W W W . B E N I I M M O B I L I A R I P A L E R M O . I T
Rif. 63/22

Nel primo tratto proponiamo in vendita villa indipendente in ottime condizioni composta da 2 unità immobiliari con 1500 mq di spazio esterno in parte giardino con alberi di alto fusto ed in parte terrazzato

Le due unità immobiliari indipendenti sono composte da:

1° unità al piano rialzato ingresso salone doppio 2 camere cucina soggiorno wc;

2° unità primo piano ingresso salone cucina soggiorno 3 camere,wc ripostiglio.

Ottima soluzione anche per 2 famiglie

091.6824690

335.6778932

10 VANI | MQ 300 EURO 419.000
1.500 MQ OTTIMO STATO 300 MQ 10 VANI 2 WC
Rif.58/22 BELLOLAMPO STRADALE BELLOLAMPO
VUOI VENDERE IL TUO IMMOBILE? W W W . B E N I I M M O B I L I A R I P A L E R M O . I T V A L U T A Z I O N I I M M O B I L I A R I G R A T U I T E 14

MONDELLO VIA MISENO

EURO 659.000

5

| MQ 160

A Mondello nelle vicinanze del Lungomare, all'interno di un residence in Via Miseno proponiamo in vendita villa bilivelli con piscina e spazi esterni composta da piano terra ingresso salone doppio, cucina abitabile wc, ripostiglio; piano seminterrato 3 camere con portafinestra , ulteriore wc. Ampi spazi esterni con zona barbecue, 2 posti auto

La villa si presenta in ottimo stato con impianti rifatti, infissi vetrocamera, sistema d'allarme, riscaldamento autonomo

VANI 400 MQ S. E. OTTIMO STATO 160 MQ 5 VANI 2 WC
Rif
47/22
W W W . B E N I I M M O B I L I A R I P A L E R M O . I T VALUTAZIONI IMMOBILIARI GRATUITE V A L U T A Z I O N I I M M O B I L I A R I G R A T U I T E 1 5
POSTO AUTO 091.6824690 335.6778932
CONTATTACI PER PRESENTARE IL TUO IMMOBILE AL MIGLIOR ACQUIRENTE NEL NOSTRO AMPIO DATABASE. ABBIAMO IL TUO STESSO OBIETTIVO: QUELLO DI VENDERE CASA, VELOCEMENTE E BENE, DANDO VALORE AL TUO IMMOBILE ED AI TUOI PROGETTI. sitobellissimo Perfettovicontatteròalpiùpresto Grazie Grazieperaverecicontattato Levalutazionisonosempregratuite Puòcontattareiltel0916824690 olasciareunrecapto Salvevorreiunavalutazionedelmio immobileEgratuita? BeniImmobiliari Onlne Seen Seen Seen 945 091.6824690 335.6778932 IN ZONA 4/5 VANI NOTARBARTOLO- MALASPINA BUDGET € 280.000 IN ZONA 5-6VANI POLITEAMA - LIBERTA' WWW.BENIIMMOBILIARIPALERMO.IT STAI PENSANDO DI VENDERE CASA? PER TE, IN OMAGGIO IL CERTIFICATO APE X A C Q U I R E N T E E S T E R O VILLA A MONDELLO URGENTE CAMBIO CASA CON AMPI SPAZI ESTERNI VUOI PROPORRE IL TUO IMMOBILE ? RICERCHIAMO PER IMMEDIATO REALIZZO: N O M U T U O ATTICO 4 VANI ZONA CENTRALE SEGUICISUI NOSTRICANALI SOCIAL PERRIMANERESEMPREAGGIORNATO
2 5 6 ASSISTENZAA360°FINOAL ROGITO. PREPARAZIONE MATERIALE PUBBLICITARIO E SERVIZIO VIRTUAL TOUR 360. 4 VALUTAZIONE DETTAGLIATA DELL'IMMOBILE. 1 3 CAPILLARE PROMOZIONE PUBBLICITARIA SU TUTTI I PRINCIPALI PORTALI DI SETTORE. RICERCA QUOTIDIANA E SELEZIONE POTENZIALI ACQUIRENTI. VERIFICAEASSISTENZA DELLADOCUMENTAZIONE DELL'IMMOBILE RIVOLGITI A NOI! 091.6824690 335.6778932 SCEGLI IL METODO BENI IMMOBILIARI HAI UN IMMOBILE DA VENDERE? VALUTIAMO IL TUO IMMOBILE EVIDENZIANDO LE SUE POTENZIALITÀ, OFFRENDOTI UNA CONSULENZA DETTAGLIATA. PROMUOVIAMO E VALORIZZIAMO IL TUO IMMOBILE SU DIVERSI CANALI DI COMUNICAZIONE , PER RIUSCIRE A VENDERLO AL MASSIMO DEL SUO VALORE: PRINCIPALI SITI PARTNER ANNUNCI SPONSORIZZATI SU ANNUNCI SPONSORIZZATI SUI CANALI SOCIAL INVIO DI NEWSLETTER AI CLIENTI IN TARGET PUBBLICAZIONE MENSILE E DISTRIBUZIONE LOCALE DELLA NOSTRA RIVISTA CALL CENTER DEDICATO QUOTIDIANAMENTE

VIA DEGLI ULIVI

EURO 229.000

9 VANI | MQ 300

Villa indipendente bilivelli composta da piano terra ingresso salone triplo cucina abitabile camera, servizio, primo piano ingresso 4 camere, cucina, soggiorno, 2 servizi, + terrazzi

091.6824690

335.6778932

MQ S. E. BUONO STATO
W W W . B E N I I M M O B I L I A R I P A L E R M O . I T
Rif. 10/21 18 V A L U T A Z I O N I I M M O B I L I A R I G R A T U I T E VUOI VENDERE IL TUO IMMOBILE?
TRABIA

CARINI

VIA GERANIO

EURO 185.000

5 VANI | MQ 120

POSTO AUTO

All'interno di un residence di recente costruzione immerso nel verde con parco, a pochi passi dallo svincolo autostradale e dal mare, proponiamo in vendita 2 appartamenti gemellari adiacenti posti al piano terra unificabili Ciascuno appartamento con spazio esterno privato è composto da: ingresso su salone doppio, cucina soggiorno, camera, cameretta, wc ed ampie terrazze antistante e retrostanze + posto auto Di recente ristrutturazione è dotato di infissi in vetrocamera taglio termico, riscaldamento autonomo, impianti rifatti, pavimentazione in gress porcellanato.

MQ S.E. OTTIMO STATO

091.6824690

335.6778932

1 9
Rif. 50/22 AFFIDATI A NOI. W W W . B E N I I M M O B I L I A R I P A L E R M O . I T V A L U T A Z I O N I I M M O B I L I A R I G R A T U I T E

C.DA PIANO

In zona abitata tutto l'anno a c a 1 Km dalla Ciammarita proponiamo in vendita villetta indipendente recentemente ristrutturata, su un lotto di terreno alberi da frutto. L'immobile è wc. Patio coperto posto auto

091.6824690 335.6778932 W W W . B E N I I M M O B I L I A R I P A L E R M O . I T 20 2 VANI | MQ 50 EURO 145.000 2.800MQ S.E RISTRUTTURATA 50 MQ 2 VANI 1 WC V A L U T A Z I O N I I M M O B I L I A R I G R A T U I T E VUOI VENDERE IL TUO IMMOBILE?
Rif. 56/22
INFERNO
VILLA
TRAPPETO

FICARAZZI

VIALE EUROPA

VILLA

| MQ 100

Esattamente sul lungomare di Ficarazzi in residence con piscina e campo da tennis ed accesso privato al mare, proponiamo in vendita villetta a schiera bilivelli con spazio esterno, composta da: Piano terra ingresso, salone doppio, cucinotto, bagno, Primo piano due camere da letto ripostiglio, bagno e balconi. La villetta dispone inoltre di un posto auto coperto con cancello automatico.

CASTELDACCIA

C.DA TELATELANDA

In località Casteldaccia a ca 5 Km dallo svincolo autostradale proponiamo in vendita panoramico terreno agricolo di 5000 mq interamente recintato Vi è la possibilità di realizzare una costruzione/villetta di circa 100 mq avendo avuto un progetto approvato dal comune di Casteldaccia, inoltre gode di approvvigionamento idrico, elettrico, telefonico ed è stato già realizzato e autorizzato lo smaltimento dei liquami mezzo fossa IMOF

VANI
160 MQ S.E DA RISTRUTTURARE 100 MQ 4VANI 2 WC 0 335.6778932 POSTO AUTO M M O B I L I A R I G R A T U I T E
4
EURO 139.000
MQ 5.000 EURO 89.000
.
Rif 65/20
W W W . B E N I I M M O B I L I A R I P A L E R M O . I T
Rif. 2/23
21 VALORIZZIAMO AL MEGLIO IL TUO IMMOBILE
In residence appartamento luminoso composto da ingresso soggiorno con angolo cottura, 2 camere, bagno, ripostiglio + posto auto scoperto TERRAZZO 125 MQ 5 VANI 2 WC 091.6824690 335.6778932 W W W . B E N I I M M O B I L I A R I P A L E R M O . I T 5 VANI | MQ 125 BOX AUTO EURO 135.000 CRUILLAS VIA CRUILLAS Rif.30/22 22 V A L U T A Z I O N I I M M O B I L I A R I G R A T U I T E VUOI VENDERE IL TUO IMMOBILE?

CASTELFORTE C.LE MINEO

65 MQ 3 VANI 1 WC

EURO 65.000

3 VANI | MQ 65

TERRAZZINO

RISTRUTTURATO

In zona servita da diverse attività commerciali, vicini a servizi di trasporto, appartamento indipendente ristrutturato recentemente composto da: ingresso, cucina soggiorno , due camere da letto, bagno, ripostiglio e terrazzo

L'appartamento è dotato di infissi in vetrocamera ed impianti rifatti .

091.6824690

335.6778932

W W W . B E N I I M M O B I L I A R I P A L E R M O . I T
23
5/22 SCEGLI BENE, SCEGLI BENI IMMOBILIARI. V A L U T A Z I O N I I M M O B I L I A R I G R A T U I T E
Rif
110 MQ 4 VANI 1 WC 091.6824690 335.6778932 W W W . B E N I I M M O B I L I A R I P A L E R M O . I T
luminoso quarto piano ed ultimo senza ascensore composto da ingresso salone doppio, camera, cameretta, cucina abitabile, servizio, ripostiglio, balconato
EURO 79.000 PERPIGNANO VIA PETRULLA Rif.57/21 24 V A L U T A Z I O N I I M M O B I L I A R I G R A T U I T E VUOI VENDERE IL TUO IMMOBILE?
2 BALCONI BUONO STATO
Panoramico
4 VANI | MQ 110

VIA DE GASPERI STRASBURGO

BOX

Pressi RAI iniziamo vendita box di nuova realizzazione, varie metrature a partire da Euro 37.000, con doppio accesso sia da Via Alcide de Gasperi che da Viale Strasburgo

EURO 37.000

MQ 30

VIAMALASPINA

MQ 35

EURO 39.000

Box auto posto al piano seminterrato di circa 35 mq capienza per 2 auto, con punto acqua e luce ed apertura saracinesca 5 mt.

F.DO TRAPANI

MQ 30

EURO 21.000

In elegante palazzina box di circa 30 mq con punto acqua e punto luce.

091.6824690

335.6778932

W W W . B E N I I M M O B I L I A R I P A L E R M O . I T
V A L U T A Z I O N I I M M O B I L I A R I G R A T U I T E
25 TI OFFRIAMO UNA CONSULENZA GRATUITA
091.6824690 335.6778932 W W W . B E N I I M M O B I L I A R I P A L E R M O . I T VUOI VENDERE IL TUO IMMOBILE? V A L U T A Z I O N I I M M O B I L I A R I G R A T U I T E
Marco Tullio Cicerone/Papa
Giovanni appartamento ristrutturato composto da ingresso cucina soggiorno , camera e wc. Ottimo investimento in quanto già locato.
BAGHERIA VIA CICERONE
MQ 60 EURO 69.000
Rif.27/21
camere
soggiorno tripli servizi
Appartamento luminoso balconato tripla esposizione ampia metratura composta da ingresso salone triplo 5
cucina
BAGHERIA VIA ASSISI
DA RISTRUTTURARE 120 mq OTTIMO STATO 60 MQ 2 VANI 1 WC 7 VANI 3 WC 26 V A L U T A Z I O N I I M M O B I L I A R I G R A T U I T E
MQ 220 EURO 129.000
Rif 16/20

BAGHERIA VIA LIBERTA'

In zona signorile e precisamente in via Libertà proponiamo in locazione luminoso appartamento di ampia metratura composto da ingresso salone doppio, cucina abitabile, 3 camere, due bagni, ripostiglio e 2 terrazzi e un posto auto. L'appartamento gode di riscaldamento termoautonomo e di un'ottima luminosità

091.6824690

335.6778932

2 TERRAZZI BUONO STATO 175 MQ 5 VANI 2 WC
5 VANI | MQ 175 EURO 165.000
Rif. 6/23 27
W W W . B E N I I M M O B I L I A R I P A L E R M O . I T V A L U T A Z I O N I I M M O B I L I A R I G R A T U I T E ASSICURIAMO MASSIMA VISIBLITA'

STRASBURGO VIA P.PE PANTELLERIA

LOC. COMMERCIALE

In zona strasburgo proponiamo in vendita locale commerciale già locato ad attività ristorativa ad alto reddito 5.000 € mensili. Il locale si presenta in ottime condizioni su un'unico livello con 5 vetrine su strada e possibilità spazio esterno.

CAMPOLO VIA G. B. LULLI

In zona altamente commerciale, notarbartolo campolo, sulla strada principale di Via Lulli proponiamo in locazione locale commerciale posto al piano terra di 280 mq circa + 2 spazi esterni di proprietà esclusiva, 4 vetrine su strada.

091.6824690 335.6778932 W W W . B E N I I M M O B I L I A R I P A L E R M O . I T OTTIMO STATO 400 mq
MQ 400 EURO 880.000
Rif.53/22 28 V A L U T A Z I O N I I M M O B I L I A R I G R A T U I T E LOCALE IN AFFITTO
280 EURO 2.800 Rif.49/22 VUOI VENDERE IL TUO IMMOBILE?
MQ

EURO 95.000

MQ 370

VIA RIELA

Magazzino pilastrato di circa 380 mq, con passo carrabile. Possibilità realizzazione 8 box

MQ 160

EURO 145.000

Locale commerciale con 2 vetrine su strada di circa 160 mq

MQ 160

EURO 129.000

Ampio locale commerciale di 160 mq circa con 3 vetrine su strada e doppia esposizione. Il locale si presenta in ottime condizioni , un unico ampio ambiente più laboratorio e 3 wc Ottimo per per

091.6824690

335.6778932

W W W . B E N I I M M O B I L I A R I P A L E R M O . I T
C.SODEIMILLE
. Rif. 43/22 ARENELLA
ABBIAMO IL MIGLIOR ACQUIRENTE PER TE.
BUONO STATO 370 mq MAGAZZINO
VIA HAZON L O C . C O M M E R C I A L E V A L U T A Z I O N I I M M O B I L I A R I G R A T U I T E 29

EURO VUOI VENDERE IL TUO IMMOBILE?

A Bagheria in Via Dante altezza proponiamo Piscina Swim Power proponiamo in vendita ufficio posto al primo piano composto da ingresso 3 ampie stanze, wc ed archivio.

MQ 180 Rif.34/22

EURO

169.000

091.6824690 335.6778932 W W W . B E N I I M M O B I L I A R I P A L E R M O . I T OTTIMO STATO 180 mq
LOC. COMMERCIALE
A Bagheria in Via Roccaforte altezza stadio, in zona ben servita proponiamo in vendita locale commerciale, 3 vetrine su strada di circa 180 mq. BAGHERIA VIA ROCCAFORTE
BAGHERIA VIA DANTE Rif 52/22 BUONO STATO 95 mq UFFICIO V A L U T A Z I O N I I M M O B I L I A R I G R A T U I T E 30
MQ 95
55.000

M.SE VILLABIANCA

VIA BALDISSERA

EURO 500

MQ 25

In zona signorile precisamente in Via Baldissera proponiamo in locazione locale commerciale in ottimo stato con una vetrina su strada composto da un unico vano, più antibagno e bagno

Il locale si presenta in buone condizioni, dotato di impianto d'allarme e saracinesca elettrica

VICOLO DEL SECCO

MQ 70

EURO 400

Locale unica apertura unico ambiente parte soppalcata oggi catastato c/3 (laboratori per arte e mestieri) ottimo anche come deposito / parcheggio auto.

MQ 60

EURO 500

A pochi metri da Via Liberta' pressi Politeama proponiamo in locazione in zona signorile con servizio di portierato, ufficio posto al piano terra composto da ampio ingresso, 2 vani finestrati, wc

091.6824690

335.6778932

A F F I T T I
31
W W W . B E N I I M M O B I L I A R I P A L E R M O . I T
SCEGLI BENE, SCEGLI BENI IMMOBILIARI.
VIA TORREARSA V A L U T A Z I O N I I M M O B I L I A R I G R A T U I T E Rif 60/22
091.6824690 335.6778932 Vuoi vendere il tuo immobile? VIA G. B. LULLI 27-29-31 90145 PALERMO www.beniimmobiliaripalermo.it info@beniimmobiliaripalermo it C O P I A O M A G G I OP U B B L I C A Z I O N E N . 4 2S E T T E M B R E 2 0 2 2 SCEGLI BENE, SCEGLI BENI IMMOBILIARI. PUOI SCARICARE DIGITALMENTE LA RIVISTA E PORTARLA SEMPRE CON TE SCANSIONANDO IL QR-CODE O RITIRARE LA TUA COPIA CARTACEA GRATUITAMENTEINAGENZIA BENI IMMOBILIARI CONSULENZE & VENDITE LA NOSTRA ESPERIENZA TRENTENNALE NEL SETTORE IMMOBILIARE CI PERMETTE DI SODDISFARE A PIENO TUTTE LE ESIGENZE DEI NOSTRI CLIENTI. V A L U T A Z I O N I I M M O B I L I A R I G R A T U I T E

Turn static files into dynamic content formats.

Create a flipbook
Issuu converts static files into: digital portfolios, online yearbooks, online catalogs, digital photo albums and more. Sign up and create your flipbook.