PROPOSTE MESE DI APRILE BENI IMMOBILIARI

Page 1

www.beniimmobiliaripalermo.it info@beniimmobiliaripalermo it 091.6824690 335.6778932 C O P I A O M A G G I OP U B B L I C A Z I O N E N . 5 5A P R I L E 2 0 2 3 CASA NON E' UNA TIONE DI MATTONI, MA DI AMORE! APRI LE BENI IMMOBILIARI CONSULENZE & VENDITE 90145 PALERMO VIA G B LULLI 27-29-31 LE NOSTRE PROPOSTE DEL MESE DI

CAMPOLO VIA L. DI BROLO

EURO 369.000

In zona signorile in stabile con servizio di portierato, proponiamo in vendita panoramico attico di ampia metratura, anche divisibile, composto da due ingressi, salone doppio con angolo bar e veranda tutto prospicente su terrazza, tre camere da letto, cameretta, cucina abitabile, due bagni e ripostiglio L'immobile gode di un ampia terrazza su due esposizioni. Possibilità box auto.

6 VANI | MQ 205
W W W . B E N
Rif 12/23 VUOI VENDERE IL TUO IMMOBILE? V A L U T A Z I O N I I M M O B I L I A R I G R A T U I T E 2 A T T I C O
TERRAZZO MQ 250
DISCRETO STATO
205 MQ 6 VANI 2 WC

CENTRO STORICO

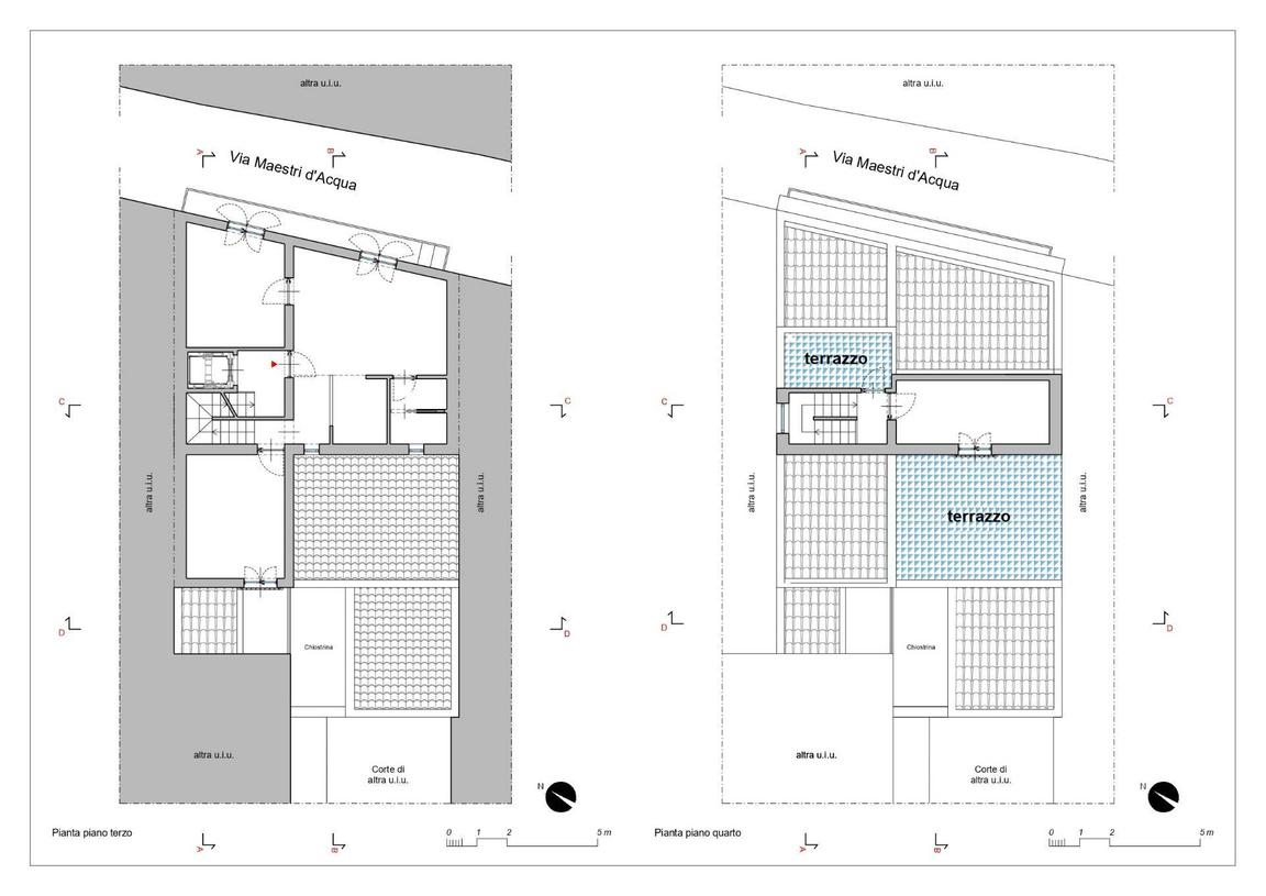
VIA MAESTRI D'ACQUA

A pochi passi da piazza Rivoluzione proponiamo in vendita intera palazzina cielo terra con progetto di ristrutturazione già approvato situato su un area di sedime di circa 140 mq la palazzina è composta da 6 unità abitative così suddivise: piano terra magazzino di circa 120 mq al primo e al secondo piano troviamo due bivani ad ogni piano di circa 60 mq cadauno, al terzo piano appartamento bilivelli con terrazzo di circa 120 mq

091.6824690

335.6778932

VANI
10
| MQ 480 EURO 270.000
W W W . B E N I I M M O B I L I A R I P A L E R M O . I T
TERRAZZO MQ 120
DA RISTRUTTURARE 480 MQ 10 VANI
Rif 7/23 VALUTAZIONI IMMOBILIARI GRATUITE INTERA PALAZZINA V A L U T A Z I O N I I M M O B I L I A R I G R A T U I T E 3 NUOVO PREZZO

MARCHESE VILLABIANCA VIA M. TOSELLI

In zona Libertà Marchese di Villabianca, precisamente in via Maggiore Toselli in contesto signorile, appartamento divisibile con doppio ingresso, soggiorno, 2 ampie camere, cucina abitabile, doppi servizi uno con doccia ed uno con vasca, 2 balconi con doppia esposizione L’appartamento si presenta in ottime condizioni, con riscaldamento autonomo, impianti in ottimo stato, porte blindate, infissi in vetrocamera , servizio di portierato

2 BA

091.6824690

335.6778932

4 VANI | MQ 110 EURO 227.000
VUOI VENDERE IL TUO IMMOBILE? W W W . B E N I I M M O B I L I A R I P A L E R M O . I T V A L U T A Z I O N I I M M O B I L I A R I G R A T U I T E 4 NUOVO PREZZO
Rif. 11/23

TRIBUNALE VIA BARBARACI

I IN CENTRO STORICO ALLE SPALLE DELLA NUOVA ZONA DEL TRIBUNALE, A DUE PASSI DALLO STORICO MERCATO DEL CAPO PROPONIAMO IN VENDITA in palazzina storica ristrutturata 7 piccole unità immobiliari su 2 livelli così divise:

- P TERRA 1 bivani 40 mq ingresso cucina abitabile, camera, wc, spazio esterno 200 mq ;

PRIMO PIANO: 1 monovano mq 22 un vano angolo cottura, wc, balcone;

- 1 monovano mq 24 un vano con angolo cottura, wc, balcone;

- 1 monovano mq 25 un vano con angolo cottura, wc, balcone ;

- 1 bivani mq 45 soggiorno con angolo cottura con balcone sul giardino, camera, wc e terrazzo sovrastante;

- 1 bivani mq 43 cucina soggiorno camera, wc, doppi balconi;

- 1 bivani mq 74 su 2 livelli composto da cucina soggiorno balcone e wc, 2° livello camera con cabina armadio

Tutti gli appartamenti si presentano in ottimo stato, arredati, balconati, con area videosorvegliata Ideale anche come struttura ricettiva e/o b&bcasavacanze. Ottimo uso investimento, alcune unità sono già locate.

OTTIMO INVESTIMENTO

091.6824690

335.6778932

GIARDINO MQ 220 OTTIMO STATO 275 MQ 11 VANI 7 WC
11 VANI | MQ 275 EURO 339.000
-
5
Rif. 65/21 TI OFFRIAMO UNA CONSULENZA GRATUITA. W W W . B E N I I M M O B I L I A R I P A L E R M O . I T V A L U T A Z I O N I I M M O B I L I A R I G R A T U I T E
VANI | MQ 130
In zona Notarbartolo Campolo precisamente in Via G B Lulli, a pochi passi dal tram, proponiamo in vendita appartamento luminoso piano alto doppia esposizione composto da ingresso salone doppio 3 camere cucina abitabile bagno con possibilità di ricavare anche il secondo, ripostiglio. Completa la proprietà un box auto.
5
EURO 279.000
091.6824690 335.6778932 W W W . B E N I I M M O B I L I A R I P A L E R M O . I T DISCRETO STATO 130 MQ 5 VANI 1 WC CAMPOLO VIA G. B. LULLI Rif 46/22 VUOI VENDERE IL TUO IMMOBILE? BOX AUTO V A L U T A Z I O N I I M M O B I L I A R I G R A T U I T E 6
2
BALCONI
7 5 VANI | MQ 140 EURO 445.000 V A L U T A Z I O N I I M M O B I L I A R I G R A T U I T E 091.6824690 335.6778932 In zona Notarbartolo Liberta’ precisamente in via Francesco lo Iacono appartamento luminoso con doppia esposizione composto da ingresso salone doppio, cucina soggiorno, 2 camere, due bagni, ripostiglio e ampio balcone NOTARBARTOLO VIA LO JACONO Rif. 1/23 VALUTAZIONI IMMOBILIARI GRATUITE W W W . B E N I I M M O B I L I A R I P A L E R M O . I T
In palazzina d'epoca ristrutturata, luminoso appartamento attualmente uso ufficio ristrutturato, composto da: ampio ingresso salone doppio quattro camere cucina doppi servizi
200 MQ 6 VANI 2 WC 091.6824690 335.6778932 W W W . B E N I I M M O B I L I A R I P A L E R M O . I T 6 VANI | MQ 200 EURO 339.000 ROMA-CRISPI VIA F.SO CRISPI Rif. 74/21 VUOI VENDERE IL TUO IMMOBILE? 8 V A L U T A Z I O N I I M M O B I L I A R I G R A T U I T E
2 BALCONI BUONO STATO
3 VANI | MQ 80 EURO 115.000 1 BALCONE BUONO STATO 80 MQ 3 VANI 1 WC 091.6824690 335.6778932 In zona Dante/Malaspina, precisamente in via Serradifalco in contesto signorile, appartamento con ingresso, salone, camera, cameretta, cucina, servizio e balcone L’appartamento attualmente locato ottimo uso investimento Rif 15/23 9 DANTE MALASPINA VIA SERRADIFALCO VALORIZZIAMO AL MEGLIO IL TUO IMMOBILE W W W . B E N I I M M O B I L I A R I P A L E R M O . I T V A L U T A Z I O N I I M M O B I L I A R I G R A T U I T E
4 VANI | MQ 130 EURO 139.000 2 BALCONI BUONO STATO 130 MQ 4 VANI 2 WC In zona residenziale panoramico, luminoso, piano alto, in residence appartamento buono stato, composto da: ingresso salone, 3 camere da letto, cucina abitabile, due bagni, ripostiglio, balconi Completano la proprietà il posto auto e la cantina POSTO AUTO ACQUA DEI CORSARI VIA MONTANA Rif 55/22 091.6824690 335.6778932 W W W . B E N I I M M O B I L I A R I P A L E R M O . I T 10 VUOI VENDERE IL TUO IMMOBILE? V A L U T A Z I O N I I M M O B I L I A R I G R A T U I T E

ACQUA DEI CORSARI VIA KOLBE

185.000

|

BOX AUTO

Nelle immediate vicinanze dello svincolo autostradale, in zona residenziale panoramico vista mare, luminoso, piano alto, in residence appartamento buono stato, composto da: doppio ingresso, salone doppio, 2 camere da letto, studio, cucina, due bagni di cui uno in camera, ripostiglio, balconi Completano la proprietà il posto auto e il box auto

1 1 V A L U T A Z I O N I I M M O B I L I A R I G R A T U I T E
5 VANI MQ 130 EURO 2 BALCONI BUONO STATO
130
MQ 5 VANI 2 WC
091.6824690 335.6778932
ABBIAMO IL MIGLIOR ACQUIRENTE PER TE. W W W . B E N I I M M O B I L I A R I P A L E R M O . I T
Rif. 63/22

CALATAFIMI ALTA VIA POLLACI

EURO 219.000

All'interno di un residence, luminoso ampio quadrivani, con doppia esposizione. Si presenta in ottimo stato con impianti rifatti e infissi in vetrocamera composto da ingresso, cucina soggiorno, tre ampie camere, bagno, due ripostigli, balconato, posto auto scoperto in zona condominiale

091.6824690

335.6778932

2 BALCONI RISTRUTTURATO 140 MQ 4 VANI 1 WC
W W W . B E N I I M M O B I L I A R I P A L E R M O . I T
4 VANI | MQ 140
Rif. 7/22 VUOI
TUO IMMOBILE? 12
V A L U T A Z I O N I I M M O B I L I A R I G R A T U I T E
VENDERE IL
POSTO AUTO

MONDELLO VIA MISENO

EURO 659.000

5

| MQ 160

A Mondello nelle vicinanze del Lungomare, all'interno di un residence in Via Miseno proponiamo in vendita villa bilivelli con piscina e spazi esterni composta da piano terra ingresso salone doppio, cucina abitabile wc, ripostiglio; piano seminterrato 3 camere con portafinestra , ulteriore wc. Ampi spazi esterni con zona barbecue, 2 posti auto

La villa si presenta in ottimo stato con impianti rifatti, infissi vetrocamera, sistema d'allarme, riscaldamento autonomo

VANI 400 MQ S. E. OTTIMO STATO 160 MQ 5 VANI 2 WC
Rif
47/22
W W W . B E N I I M M O B I L I A R I P A L E R M O . I T VALUTAZIONI IMMOBILIARI GRATUITE V A L U T A Z I O N I I M M O B I L I A R I G R A T U I T E 1 3
POSTO AUTO 091.6824690 335.6778932

CASTELLAMMAREDELGOLFO

C.DA PIANO VIGNAZZI

10 VANI | MQ 300

Nella splendida località di Scopello a pochi metri dalla spiaggia di Guidaloca villa unifamiliare suddivisa già in due appartamenti completamente autonomi di circa 150 mq ciascuno, con uno spazio esterno di ca 2500 mq Limmobile si presenta in discreto stato conservativo sia interno che esterno Il primo appartamento posto al piano terra è composto da una zona d'ingresso su salone triplo con adiacente cucina abitabile, 3 camere da letto, 2 bagni di cui uno all'interno della camera padronale, e un ripostiglio Completano il piano terra ampi terrazzamenti e un pergolato con cucina esterna Il secondo posto al primo piano con accesso da scala esterna è composto da ingresso su salone triplo adiacente alla cucina abitabile, 3 camere da letto 2 bagni di cui uno all'interno della camera padronale, e un ripostiglio Anche questo gode di ampi terrazzamenti e balconi panoramici. Infine al secondo piano troviamo un ampio terrazzo sovrastante panoramico L'immobile avendo queste caratteristiche si presta sia ad uso familiare, anche di due famiglie, sia per uso struttura recettiva quali B&B o casa vacanza essendo in una posizione strategica vicino a molti punti d'interesse che offre la costa

EURO
395.000
TERRAZZI
300
DISCRETO STATO
MQ 10 VANI 4 WC
W W W . B E N I I M M O B I L I A R I P A L E R M O . I T
091.6824690 335.6778932
Rif. 17/23 VUOI VENDERE IL TUO IMMOBILE? 1 4 V A L U T A Z I O N I I M M O B I L I A R I G R A T U I T E

CARINI VIA GERANIO

EURO 185.000

5 VANI | MQ 120

POSTO AUTO

All'interno di un residence di recente costruzione immerso nel verde con parco, a pochi passi dallo svincolo autostradale e dal mare, proponiamo in vendita 2 appartamenti gemellari adiacenti posti al piano terra unificabili Ciascuno appartamento con spazio esterno privato è composto da: ingresso su salone doppio, cucina soggiorno, camera, cameretta, wc ed ampie terrazze antistante e retrostanze + posto auto Di recente ristrutturazione è dotato di infissi in vetrocamera taglio termico, riscaldamento autonomo, impianti rifatti, pavimentazione in gress porcellanato.

MQ S.E. OTTIMO STATO

091.6824690

335.6778932

1 5
Rif. 50/22 AFFIDATI A NOI. W W W . B E N I I M M O B I L I A R I P A L E R M O . I T V A L U T A Z I O N I I M M O B I L I A R I G R A T U I T E
CONTATTACI PER PRESENTARE IL TUO IMMOBILE AL MIGLIOR ACQUIRENTE NEL NOSTRO AMPIO DATABASE. ABBIAMO IL TUO STESSO OBIETTIVO: QUELLO DI VENDERE CASA, VELOCEMENTE E BENE, DANDO VALORE AL TUO IMMOBILE ED AI TUOI PROGETTI. sitobellissimo Perfettovicontatteròalpiùpresto Grazie Grazieperaverecicontattato Levalutazionisonosempregratuite Puòcontattareiltel0916824690 olasciareunrecapto Salvevorreiunavalutazionedelmio immobileEgratuita? BeniImmobiliari Onlne Seen Seen Seen 945 091.6824690 335.6778932 IN ZONA 4/5 VANI NOTARBARTOLO- MALASPINA BUDGET € 280.000 IN ZONA 5-6VANI POLITEAMA - LIBERTA' WWW.BENIIMMOBILIARIPALERMO.IT STAI PENSANDO DI VENDERE CASA? PER TE, IN OMAGGIO IL CERTIFICATO APE X A C Q U I R E N T E E S T E R O VILLA A MONDELLO URGENTE CAMBIO CASA CON AMPI SPAZI ESTERNI VUOI PROPORRE IL TUO IMMOBILE ? RICERCHIAMO PER IMMEDIATO REALIZZO: N O M U T U O ATTICO 4 VANI ZONA CENTRALE SEGUICISUI NOSTRICANALI SOCIAL PERRIMANERESEMPREAGGIORNATO
2 5 6 ASSISTENZAA360°FINOAL ROGITO. PREPARAZIONE MATERIALE PUBBLICITARIO E SERVIZIO VIRTUAL TOUR 360. 4 VALUTAZIONE DETTAGLIATA DELL'IMMOBILE. 1 3 CAPILLARE PROMOZIONE PUBBLICITARIA SU TUTTI I PRINCIPALI PORTALI DI SETTORE. RICERCA QUOTIDIANA E SELEZIONE POTENZIALI ACQUIRENTI. VERIFICAEASSISTENZA DELLADOCUMENTAZIONE DELL'IMMOBILE RIVOLGITI A NOI! 091.6824690 335.6778932 SCEGLI IL METODO BENI IMMOBILIARI HAI UN IMMOBILE DA VENDERE? VALUTIAMO IL TUO IMMOBILE EVIDENZIANDO LE SUE POTENZIALITÀ, OFFRENDOTI UNA CONSULENZA DETTAGLIATA. PROMUOVIAMO E VALORIZZIAMO IL TUO IMMOBILE SU DIVERSI CANALI DI COMUNICAZIONE , PER RIUSCIRE A VENDERLO AL MASSIMO DEL SUO VALORE: PRINCIPALI SITI PARTNER ANNUNCI SPONSORIZZATI SU ANNUNCI SPONSORIZZATI SUI CANALI SOCIAL INVIO DI NEWSLETTER AI CLIENTI IN TARGET PUBBLICAZIONE MENSILE E DISTRIBUZIONE LOCALE DELLA NOSTRA RIVISTA CALL CENTER DEDICATO QUOTIDIANAMENTE

Nel primo tratto proponiamo in vendita villa indipendente in ottime condizioni composta da 2 unità immobiliari con 1500 mq di spazio esterno in parte giardino con alberi di alto fusto ed in parte terrazzato

Le due unità immobiliari indipendenti sono composte da:

1° unità al piano rialzato ingresso salone doppio 2 camere cucina soggiorno wc;

2° unità primo piano ingresso salone cucina soggiorno 3 camere,wc ripostiglio.

Ottima soluzione anche per 2 famiglie

091.6824690

335.6778932

10 VANI | MQ 300 EURO 419.000
1.500 MQ OTTIMO STATO 300 MQ 10 VANI 2 WC
Rif.58/22 BELLOLAMPO STRADALE BELLOLAMPO
VUOI VENDERE IL TUO IMMOBILE? W W W . B E N I I M M O B I L I A R I P A L E R M O . I T V A L U T A Z I O N I I M M O B I L I A R I G R A T U I T E 18

FICARAZZI

VIALE EUROPA

VILLA

Esattamente sul lungomare di Ficarazzi in residence con piscina e campo da tennis ed accesso privato al mare, proponiamo in vendita villetta a schiera bilivelli con spazio esterno, composta da:

Piano terra ingresso, salone doppio, cucinotto, bagno, Primo piano due camere da letto ripostiglio, bagno e balconi

La villetta dispone inoltre di un posto auto coperto con cancello automatico

CASTELDACCIA

C.DA TELATELANDA

In località Casteldaccia a ca 5 Km dallo svincolo autostradale proponiamo in vendita panoramico terreno agricolo di 5000 mq interamente recintato Vi è la possibilità di realizzare una costruzione/villetta di circa 100 mq avendo avuto un progetto approvato dal comune di Casteldaccia, inoltre gode di approvvigionamento idrico, elettrico, telefonico ed è stato già realizzato e autorizzato lo smaltimento dei liquami mezzo fossa IMOF

VANI
160 MQ S.E DA RISTRUTTURARE 100 MQ 4VANI 2 WC 0 335.6778932 POSTO AUTO M M O B I L I A R I G R A T U I T E
4
| MQ 100 EURO 139.000
MQ 5.000
W W W . B E N I I M M O B I L I A R I P A L E R M O . I T 19
EURO 89.000 Rif 65/20 Rif. 2/23
VALORIZZIAMO AL MEGLIO IL TUO IMMOBILE

VIA DEGLI ULIVI

EURO 229.000

9 VANI | MQ 300

Villa indipendente bilivelli composta da piano terra ingresso salone triplo cucina abitabile camera, servizio, primo piano ingresso 4 camere, cucina, soggiorno, 2 servizi, + terrazzi

091.6824690

335.6778932

MQ S. E. BUONO STATO
W W W . B E N I I M M O B I L I A R I P A L E R M O . I T
Rif. 10/21 20 V A L U T A Z I O N I I M M O B I L I A R I G R A T U I T E VUOI VENDERE IL TUO IMMOBILE?
TRABIA
In residence appartamento luminoso composto da ingresso soggiorno con angolo cottura, 2 camere, bagno, ripostiglio + posto auto scoperto TERRAZZO 125 MQ 5 VANI 2 WC 091.6824690 335.6778932 W W W . B E N I I M M O B I L I A R I P A L E R M O . I T 5 VANI | MQ 125 BOX AUTO EURO 135.000 CRUILLAS VIA CRUILLAS Rif.30/22 VUOI VENDERE IL TUO IMMOBILE? V A L U T A Z I O N I I M M O B I L I A R I G R A T U I T E 21

VIA SPALLANZANI

A due passi dal viale Lazio e Viale Regione Siciliana, precisamente in via Oliveri Mandalà proponiamo in vendita in residence con doppio ingresso da via Mandalà e via Conceria appartamento posto al piano rialzato con spazio esterno e posto auto. L'immobile è composto da ingresso su salone doppio, 2 camere, una cameretta, cucina abitabile, 2 bagni ripostiglio il tutto in buono stato.

091.6824690 335.6778932 W W W . B E N I I M M O B I L I A R I P A L E R M O . I T 22 5 VANI | MQ 130 EURO 179.000 35 MQ S.E BUONO STATO 130 MQ 5 VANI 2 WC POSTO
V A L U T A Z I O N I I M M O B I L I A R I G R A T U I T E VUOI VENDERE IL TUO IMMOBILE?
AUTO
Rif. 14/23
MICHELANGELO

VIALE EUROPA FICARAZZI

75 MQ 3 VANI 2 WC

EURO 145.000

3 VANI | MQ 75

TERRAZZO40MQ RISTRUTTURATO

Esattamente sul lungomare di Ficarazzi in residence con posto auto, panoramico appartamento fronte mare all'interno di una piccola palazzina. L'immobile si presenta in ottimo stato interamente parquettato ed è cosi composto: ingresso su salone/soggiorno, camera, cameretta, 2 bagni, cucinotto e ampio terrazzo. Completa la proprietà 1/8 di lastrico solare.

091.6824690

335.6778932

W W W . B E N I I M M O B I L I A R I P A L E R M O . I T
23
Rif 16/23 SCEGLI BENE, SCEGLI BENI IMMOBILIARI. V A L U T A Z I O N I I M M O B I L I A R I G R A T U I T E

BAGHERIA VIA LIBERTA'

MQ 175

Rif. 6/23

In zona signorile e precisamente in via Libertà proponiamo in locazione luminoso appartamento di ampia metratura composto da ingresso salone doppio, cucina abitabile, 3 camere, due bagni, ripostiglio e 2 terrazzi e un posto auto L'appartamento gode di riscaldamento termoautonomo e di un'ottima luminosità

EURO 165.000

SANTA FLAVIA C.DA CHIARANDA

MQ 5.000

Rif. 8/23

A 5 minuti dallo svincolo autostradale Bagheria, lato monte e precisamente su Contrada Torre Chiaranda, lotto di terreno agricolo coltivato ad uliveto e limoneto di circa 5000 mq con rudere catastato di circa 30 mq con acqua "diga sal Leonardo".

EURO 29.000

MQ 220

Rif 16/20

Appartamento luminoso balconato tripla esposizione ampia metratura composta da ingresso salone triplo 5 camere cucina soggiorno tripli servizi

EURO 129.000

MQ 60

Rif.27/21

Marco Tullio Cicerone/Papa Giovanni appartamento ristrutturato composto da ingresso cucina soggiorno , camera e wc Ottimo investimento in quanto già locato

EURO 69.000

335.6778932

90
W W W . B E N I I M M O B I L I A R I P A L E R M O . I T VUOI VENDERE IL TUO IMMOBILE?
BAGHERIA VIA CICERONE
BAGHERIA VIA ASSISI
26
V A L U T A Z I O N I I M M O B I L I A R I G R A T U I T E

VIA DE GASPERI STRASBURGO

BOX

Pressi RAI iniziamo vendita box di nuova realizzazione, varie metrature a partire da Euro 37.000, con doppio accesso sia da Via Alcide de Gasperi che da Viale Strasburgo

EURO 37.000

MQ 30

VIAMALASPINA

MQ 35

EURO 39.000

Box auto posto al piano seminterrato di circa 35 mq capienza per 2 auto, con punto acqua e luce ed apertura saracinesca 5 mt.

F.DO TRAPANI

MQ 30

EURO 21.000

In elegante palazzina box di circa 30 mq con punto acqua e punto luce.

091.6824690

335.6778932

W W W . B E N I I M M O B I L I A R I P A L E R M O . I T
V A L U T A Z I O N I I M M O B I L I A R I G R A T U I T E
27 TI OFFRIAMO UNA CONSULENZA GRATUITA

VIALE MICHELANGELO

MICHELANGELO

EURO 780.000

MQ 420

420 mq

1.500 mq spazio esterno

In zona commerciale proponiamo in vendita rara opportunità precisamente nel primo tratto di viale Michelangelo, capannone di c a 420 mq categoria D/8, con 1500 mq c.a. di spazio esterno adibito a parcheggio auto attualmente locato, alto reddito L'immobile gode di un accesso carrabile su viale Michelangelo dando così la possibilità e apertura di molteplici attività commerciali, ottimo uso investimento

091.6824690

335.6778932

W W W . B E N I I M M O B I L I A R I P A L E R M O . I T CAPANNONE V A L U T A Z I O N I I M M O B I L I A R I G R A T U I T E 28
Rif.13/23 VUOI VENDERE IL TUO IMMOBILE?

Magazzino pilastrato di circa 380 mq, con passo carrabile. Possibilità realizzazione 8 box .

EURO 95.000

MQ 370

C.SODEIMILLE

MQ 160

EURO 145.000

Locale commerciale con 2 vetrine su strada di circa 160 mq

VIA ROCCAFORTE

MQ 180

EURO 169.000

A in zona ben servita proponiamo in vendita locale commerciale, 3 vetrine su strada di circa 180 mq

091.6824690

335.6778932

W W W . B E N I I M M O B I L I A R I P A L E R M O . I T
Rif. 43/22
ABBIAMO IL MIGLIOR ACQUIRENTE PER TE.
ARENELLA VIA RIELA
BUONO STATO 370 mq MAGAZZINO L O C . C O M M E R C I A L E V A L U T A Z I O N I I M M O B I L I A R I G R A T U I T E 29 BAGHERIA

STRASBURGO VIA P.PE PANTELLERIA

LOC. COMMERCIALE

In zona strasburgo proponiamo in vendita locale commerciale già locato ad attività ristorativa ad alto reddito 5.000 € mensili. Il locale si presenta in ottime condizioni su un'unico livello con 5 vetrine su strada e possibilità spazio esterno.

CAMPOLO VIA G. B. LULLI

In zona altamente commerciale, notarbartolo campolo, sulla strada principale di Via Lulli proponiamo in locazione locale commerciale posto al piano terra di 280 mq circa + 2 spazi esterni di proprietà esclusiva, 4 vetrine su strada.

091.6824690 335.6778932 W W W . B E N I I M M O B I L I A R I P A L E R M O . I T OTTIMO STATO 400 mq
MQ 400 EURO 880.000
Rif.53/22 30 V A L U T A Z I O N I I M M O B I L I A R I G R A T U I T E LOCALE IN AFFITTO
280 EURO 2.800 Rif.49/22 VUOI VENDERE IL TUO IMMOBILE?
MQ

MQ 25 EURO 500

Locale commerciale in ottimo stato con una vetrina su strada composto da un unico vano, più antibagno e bagno. Il locale si presenta in buone condizioni, dotato di impianto d'allarme e saracinesca elettrica

VIA EURIPIDE BAGHERIA

MQ 100

EURO 600

Appartamento arredato composto da ingresso indipendente salone doppio, 2 camere, cucina, servizio, ripostiglio e terrazzo di 30 mq

VICOLO DEL SECCO

MQ 70 EURO 400

Locale unica apertura unico ambiente parte soppalcata oggi catastato c/3 (laboratori per arte e mestieri) ottimo anche come deposito / parcheggio auto.

VIA TORREARSA

MQ 60

EURO 500

A pochi metri da Via Liberta' pressi Politeama proponiamo in locazione in zona signorile con servizio di portierato, ufficio posto al piano terra composto da ampio ingresso, 2 vani finestrati, wc

A F F I T T I
091.6824690 335.6778932
VIA BALDISSERA
31 W W W . B E N I I M M O B I L I A R I P A L E R M O . I T
SCEGLI BENE,
IMMOBILIARI.
SCEGLI BENI
V A L U T A Z I O N I I M M O B I L I A R I G R A T U I T E
091.6824690 335.6778932 Vuoi vendere il tuo immobile? VIA G. B. LULLI 27-29-31 90145 PALERMO www.beniimmobiliaripalermo.it info@beniimmobiliaripalermo it C O P I A O M A G G I OP U B B L I C A Z I O N E N . 4 2S E T T E M B R E 2 0 2 2 SCEGLI BENE, SCEGLI BENI IMMOBILIARI. PUOI SCARICARE DIGITALMENTE LA RIVISTA E PORTARLA SEMPRE CON TE SCANSIONANDO IL QR-CODE O RITIRARE LA TUA COPIA CARTACEA GRATUITAMENTEINAGENZIA BENI IMMOBILIARI CONSULENZE & VENDITE LA NOSTRA ESPERIENZA TRENTENNALE NEL SETTORE IMMOBILIARE CI PERMETTE DI SODDISFARE A PIENO TUTTE LE ESIGENZE DEI NOSTRI CLIENTI. V A L U T A Z I O N I I M M O B I L I A R I G R A T U I T E

Turn static files into dynamic content formats.

Create a flipbook
Issuu converts static files into: digital portfolios, online yearbooks, online catalogs, digital photo albums and more. Sign up and create your flipbook.