

At Baylor, we take immense pride in our strong foundation and the vibrant school community that has flourished throughout our distinguished history. As we look to the future, we are excited to build upon this legacy with a series of exciting new projects, that include:
A new dorm on Rike Field
The beautiful new building honors the architectural heritage of our historic campus and houses two dorms that will provide students with comfortable and modern living spaces. The new Wellness Center is a testament to our commitment to creating an environment where all students feel supported and can comfortably receive medical and mental health care when needed. In addition, the Admission Suite and event space will help us welcome and make a positive impression on visitors and prospective families.
...Rike Field to create a welcoming gateway and landscaped green spaces, adding additional parking, and enhancing the field space for student use and community events.
Rike Field has long been a hub of community activities — hosting tailgates, reunions, student gatherings, and more. The transformation of Rike will include new trees and landscaping, as well as additional parking, to create a beautiful and welcoming gateway to campus while preserving and enhancing the field space for events.
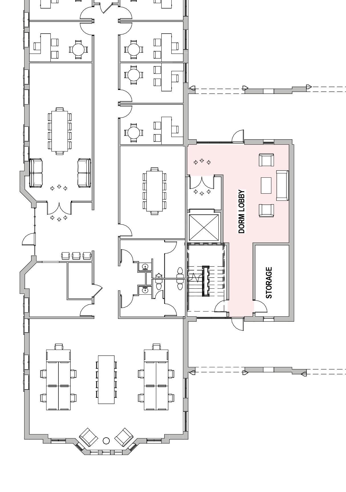
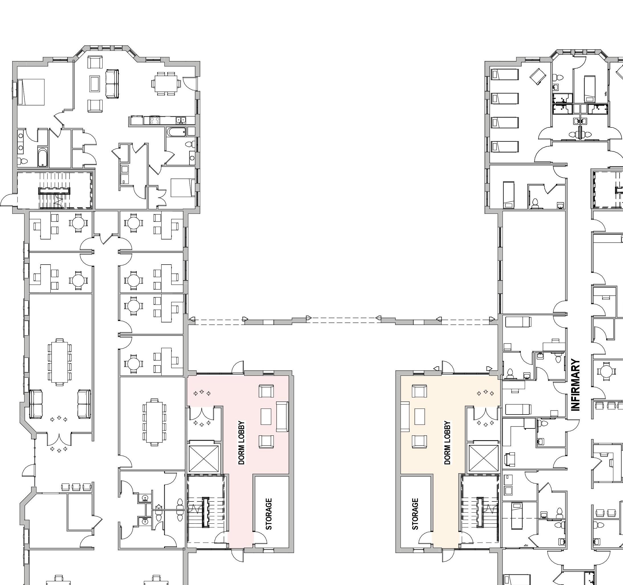
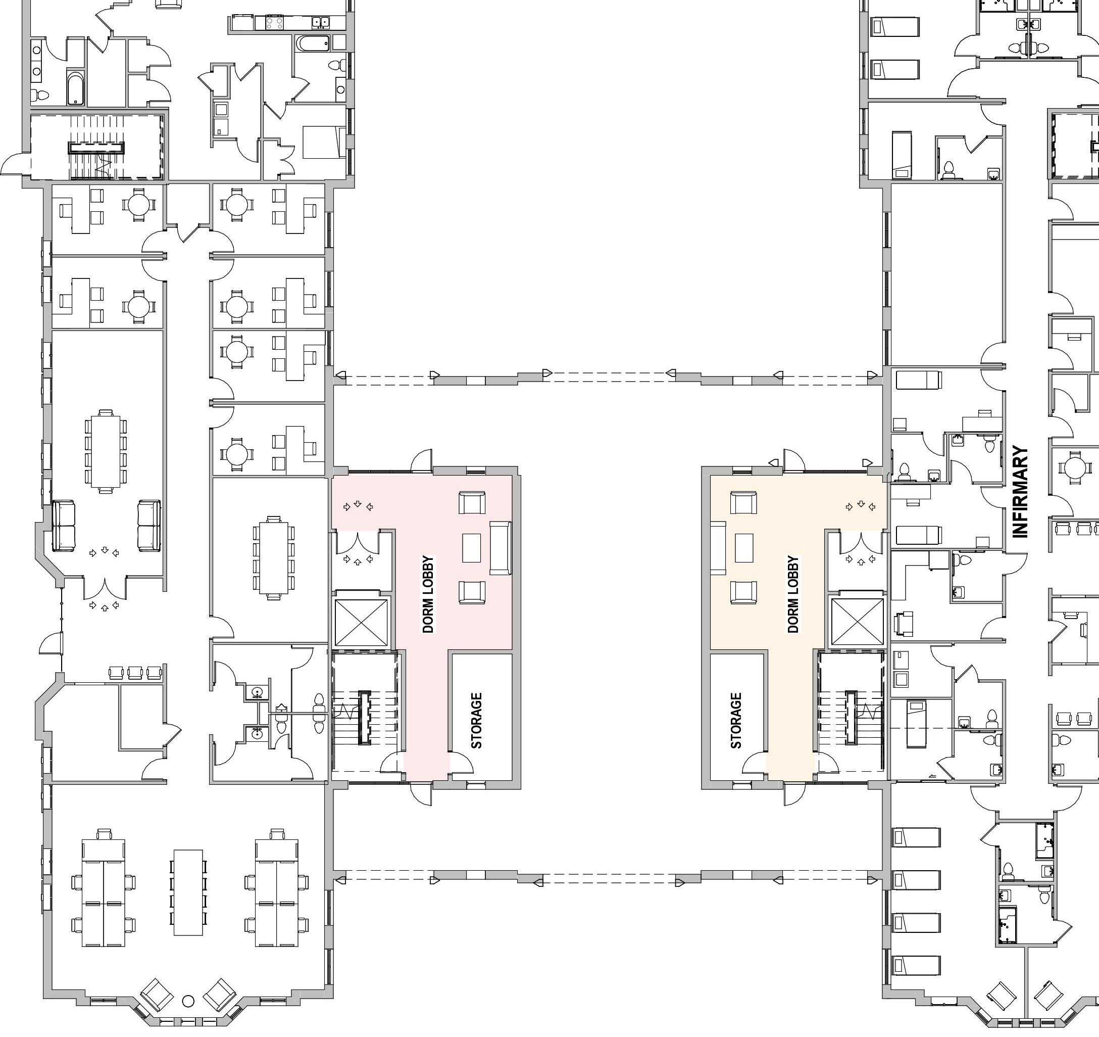
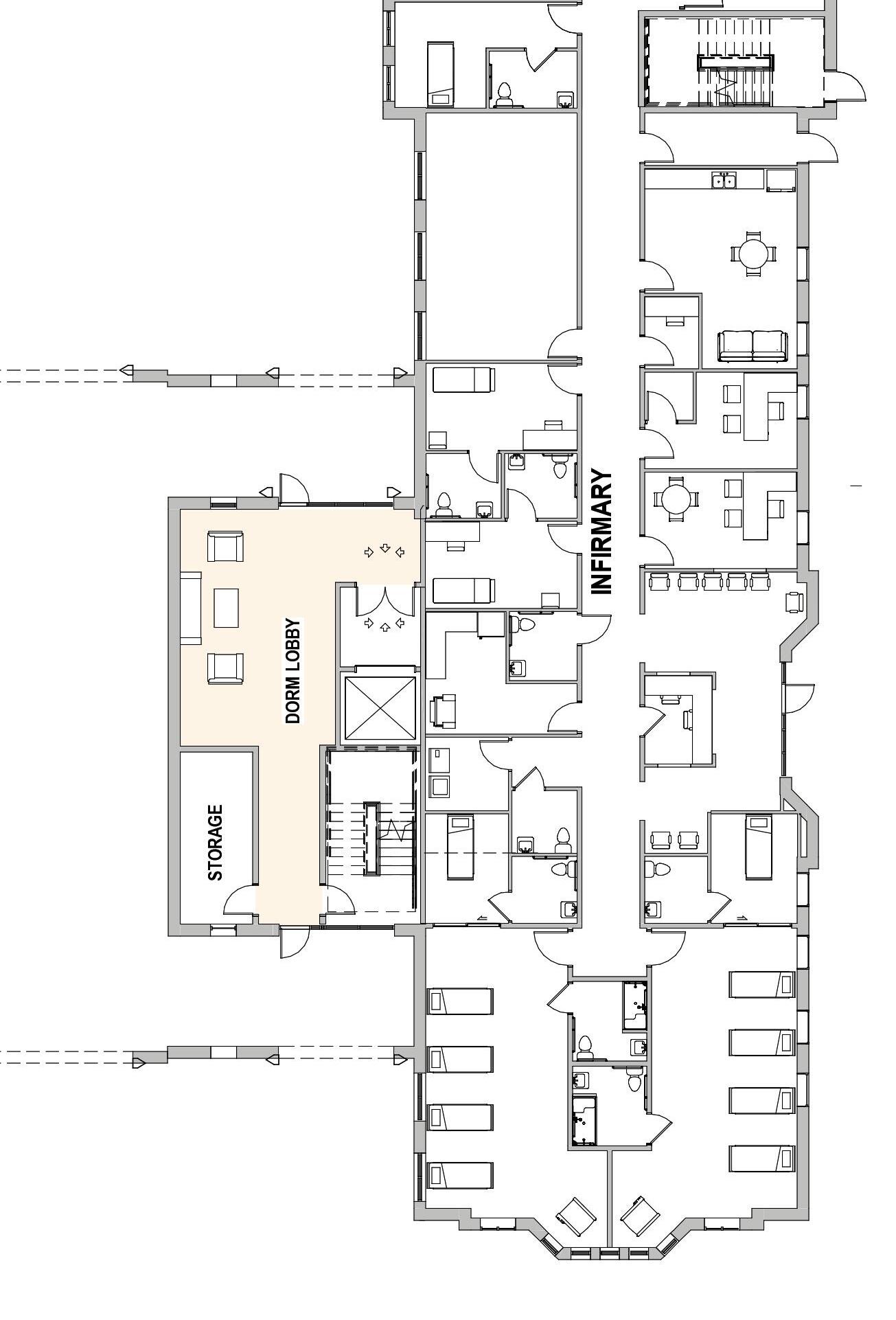
Hunter Hall, Founders Hall, and Lupton Hall to increase dorm capacity while modernizing office spaces.
Due to the age of our historic buildings and the school’s growth over the years, it has become essential to update the offices and living spaces within Founder’s Hall, Lupton Hall, and Hunter Hall. By thoughtfully modernizing and reconfiguring the interiors of these structures, we will preserve these historic buildings original to Baylor’s campus, while increasing our capacity for additional beds and optimizing space needed for offices.