Portfólio de Arquitetura e Urbanismo - Bárbara Coimbra

Page 1

Portfólio BÁRBARA COIMBRA 2020|2024

BÁRBARA COIMBRA

ARQUITETAEURBANISTA

Meidentificoprincipalmentecomaáreadecriação projetual, com foco em arquitetura cultural e institucional, além de possuir grande habilidade em desenhos técnicos. Em meu estágio mais recente, trabalhei com a realização de obras públicas para melhorias no município e pude acompanharnapráticaasuaexecução.Auxilieio desenvolvimento de diferentes tipologias projetuais, contribuindo com ideias que foram posteriormenteaplicadasnaconstruçãofinal.

(31)991618226ou(31)33551367

barbaracsc270@gmail.com

BairroFonteGrande,Contagem,MG.

FORMAÇÃO

Puc Minas

2018.1-2023.2

BacharelemArquiteturaeUrbanismo.

Prefeitura Municipal de Contagem

Estágio|2021-2023

Anteprojetodediferentestipologiascomopraças,unidadesdeensino,saúde,etc. Contribuiçãocomideiasesugestõesdemelhoriaparaprojetos.

Detalhamentosemautocadderevestimentos,áreamolhadas,entreoutros. Projetoexecutivodearquiteturaepaisagismo. Levantamentosinlocoparacriaçãodeplantabaixaerealizaçãodeasbuilt. RenderizaçãodeprojetosemEnscape.

Preparaçãodeapresentaçõesparaclientes. Aprovaçãodeprojetoseadequaçãodedesenhosparaoprojetolegal. Memorialdescritivodeprojetodeintervençãonopatrimônio

British Study Centres

2019.2

IntercâmbiolinguísticoemLondres,ReinoUnido.

Carolina Guimarães Arquitetura

Estágio|2021.1

Projetos executivos residenciais como luminotécnico, pontos hidráulicos, pontos elétricos,plantadedemolição,etc. DetalhamentosemAutocaddeáreasmolhadas. Visitasemobraparafiscalização.

Estúdio Roiz

Estágio|2020.1

RenderizaçãodeprojetosresidenciaisdealtopadrãoemLumion. Modelagem3demSketchUpdearquiteturaeinteriores. ExecutivodeinterioresemarcenariaemLayout.

EXPERIÊNCIA
Fotografia marquise Espaço Popular Eldorado em construção - Contagem

PRÊMIOS HABILIDADES EM SOFTWARE

Melhor Trabalho de Conclusão de Curso | Parque da Memória

2024

Participação no concurso de arquitetura Home For TheBlind.

2021

Conforto ambiental e sustentabilidade

PROJETOU

2024

Revit para eficiência energética em edificações

PROJETOU

2024

WorkshopmaratonaArchicad LUCAS BACELAR

2024

Lev Conceito - Criação de diagramas em photoshop

LEV DESIGN

2020

CreativeArchitecturalDesign&ModelinginRevit

BIM IT

2024

Revit

Avançado

Modelagemtopográfica

Projetoexecutivo

Detalhamento

Fachadaparamétrica

Archicad

Modelagemtopográfica

Modelagemarquitetura

Detalhamento Diagramas

Plug-inJHSBar

Plug-inFredo

Formasorgânicas (CurviLoft)

Layout Indesign Enscape

Básico

Intermediário

Projetoexecutivo Detalhamento

Lumion

Rendervídeos

Criaçãodetexturas

Imagensrealistas

Avançado Avançado Básico

Criaçãodepranchas Detalhamento Webdesign Diagramaçãodepranchas

Inglês

Fluente (C1)

Intermediário Básico Básico

Avançado

Renderizaçãodevídeos

Criaçãodetexturas

Imagensrealistas

Francês SketchUp Autocad

Photoshop

Criaçãodecolagem Pósproduçãodeimagem

Diagramasdearquitetura

Criaçãopadrãodetextura

EXTRACURRÍCULAR
fachada modelada no curso
IDIOMAS
CONTEÚDO
02 03 04 PARQUE DA MEMÓRIA RESIDÊNCIA COREU SESC FLORESTA PAVILHÃO MLC
01

PARQUE DA MEMÓRIA

Tipo: Acadêmico | Arquitetura Cultural

Autor: Bárbara Coimbra

Programas: Revit, Enscape e Photoshop Ano: 2023

O Trabalho de Conclusão de Curso foi criado com objetivo de melhorar a dinâmica urbana e ampliar o acesso ao Centro de Memória do Trabalhador,importantepatrimôniodacidade de Contagem. Com uma expansão do programa cultural já existente no Centro de Memória, o parque possui um circuito de edificações que abrigam um programa de iniciaçãoartísticaparatodasasidades.

Vencedor de Melhor Trabalho deConclusãodeCurso|2023.2

Autoriadorender:BárbaraCoimbra

Av.BabitaCamargos

Av.GeneralDavidSarnoff

Av.BabitaCamargos

Av.GeneralDavidSarnoff

Oterrenopossuiumdeclivedeseismetrosem direção ao córrego ferrugem, que está canalizado à céu aberto. Do outro lado, está o CentrodeMemóriadoTrabalhador.

Foramfeitosaterrosemlocaisestrátegicospara implantação das contruções, de modo que não fosseobstruídaavisãodopatrimônio.

Av.BabitaCamargos

Av.GeneralDavidSarnoff

Av.BabitaCamargos

Av.GeneralDavidSarnoff

Apartirdaimplantação,foramcriadosmirantes nos pontos mais elevados do terreno, sempre visando o patrimônio. Desse modo, evita-se quaisquerpoluiçõesvisuaisnapaisagem.

Para que o córrego deixe de atuar como uma barreira,foramcriadospontosdetravessiacom duaspassarelas,queconectamooutroladodo parqueeocentrodememória.

Conexões
Terrenonatural Implantação Pontosdevisada
Centro de Memória do Trabalhador 01 02 03 04
01
03 04
02

O parque é dividido em setores, sendo eles o Setor Teatro, com o Teatro de arena, o Setor Adm, no acesso principal, Setor Arte, que possui sala de exposição, anfiteatro e café, e o Setor Cursos, que possui salas de dança, música, ateliê, espaço para oficinas, o Centro de ImagemedoSomeumestúdiodegravaçãopúblico.

CentrodeMemória CentrodeMemória

SetorAdministração SetorAdministração

Parquelinear Parquelinear

SetorTeatro SetorTeatro SetorArte SetorArte SetorCursos SetorCursos
14m 6m 2m
Feira Feira
Ateliê
ParqueLinear Mirante Av.Babita Camargos Corte AA

Açocorten

Pisointertravado Pisointertravado

Perspectivamirante Perspectivamirante

Perspectivaparquelinear Perspectivaparquelinear

A materialidade traz de maneira simbólica referências à cidade e à antiga industria lafersa do centro de memória do trabalhador. A jabuticabeira, árvore simbolo da cidade, também foi utilizada em projeto.Assim,conectam-setantopatrimônio,quantopaisagem.

Açocorten Tijoloaparente Tijoloaparente Vista interna galeria setor arte Vista interna

Perspectivabeiralealeta Perspectivabeiralealeta

Detalhe 02 - Corte Detalhe - Corte

1:25 1:25

Detalhe 02 - Ampliação calha Detalhe 02 - Ampliação calha

Detalhe 02 - Planta Detalhe 02 - Planta

2.5cm 5cm 17.5cm 4cm 12cm 28cm

RESIDÊNCIA COREU

Tipo: Acadêmico | Residencial multifamiliar

Autor: Bárbara Coimbra

Programas: Revit, Enscape e Photoshop

Ano: 2022

O projeto de habitação coletiva possui a proposta de aumentar o contato dos moradores com a natureza, integrando os blocos de apartamentos com três praças coletivas e uma pública. Localizado no bairro Dom Cabral, em frente ao campus da Puc Minas ele possui como principais moradores os estudantesdauniversidade.

Autoriadorender:BárbaraCoimbra

AhabitaçãocontacomumafachadaativaparaaAvenidaTrintaeUm deMarço,possuindolojas,cafeteriaeumcoworking.Foramprojetados três tipos de acomodação, contendo um, dois ou três quartos, contribuindotambémparaabrigardiferentestiposdefamílias.

Implantação | Cobertura
15m 7.5m 2.5m
Av. Trinta e Um de Março
2.5m 7.5m 15m
Pavimento tipo

HortaComunitária

totalde46unidadeshabitacionais

Academia170m²

Estacionamento15vagas

totalde23placassolaresduplas340W

Os blocos são implantados em três diferentes níveis, contendo cada um deles um acesso de pedestres ao conjuntoeumacessodeveículospelaruaposterior.

PraçaColetivaPav3

PraçaPúblicaPav2

Loja62m²

PraçaColetivaPav1

Foi implantada em alguns pontos estratégicos a cobertura verde, visando conforto térmico e estética. Foram feitas as camadas para possíbilitar o plantio de vegetação,comomostraodetalhamentoaolado,alémdepontosdedrenagem.

Autoriadosrenders:BárbaraCoimbra

Pátiopraçacoletivaterceiropavimento

Detalhamentocoberturaverde

10cm 30cm 70cm
Corte Avenida Trinta e Um de Março
1m 3m 7m
FachadaAv.TrintaeUmdeMarço Vistadoquartopavimento Vistapraçapública

SESC FLORESTA

Tipo: Acadêmico | Institucional

Autor: Bárbara Coimbra

Programas: Revit, Lumion e Photoshop

Ano: 2021

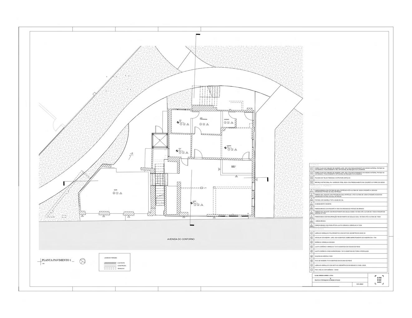
Localizado no bairro Floresta, em Belo Horizonte, o projeto do SESC possui seu terreno na Avenida do Contorno, esquina com a Rua Célio de Castro. Foi pensado para se tornar um equipamento metropolitano que conectaria a diversidade cultural existente no centro, integrandoopatrimôniotombado.

03
Autoriadorender:BárbaraCoimbra

Forampensadosemdoisblocos:umculturaleum esportivo, além de uma praça no entorno dos edifícios 1297 e 1285, ambos tombados. Foi previsto um caminho entre os dois blocos que conectamaCéliodeCastroeosmonumentos,que possuem novo uso de um café e um memorial. A conexão entre os blocos é feita através de passarelasnoterceiroequartopavimento.

RuaCéliodeCastro
5m 15m 35m
1
2
3 COBERTURA SUBSOLO 01 02
05
Implantação
Av.doContorno
PAV
PAV
PAV
03 04

Autoriadosrenders:BárbaraCoimbra

Vista passarela terceiro pavimento Vista fachada posterior Rua Célio de Castro

1.Saladeespera/recepção

2.Guarita

3.VestiárioMarculino

4.VestiárioFeminino

5.Dml

6.Salaanalistas

7.Gerência

8.Almoxarifado

9.Áreadefuncionários

10.Saladereunião

11.Manutenção

12.Foyer

13.Saladeexposição

14.Passarela

15.Quadraspoliesportivas

16.Academia

17.Memorial

Segundo pavimento
5m 15m 35m
Planta de cobertura
1 2 3 4 5 6 7 8 9 10 11 12 13 14 15 16 17

WallSection parede de vidro Escala1:20

Detalhe WallSection Escala1:5

Nafachadasul,voltadaparaaAvenidadoContorno,foram implantadas paredes de vidro, fixadas na laje com perfis metálicos. Desse modo, garante-se a iluminação natural e tambémaventilação,atravésdasaberturaspresentes.

Área no projeto | área mínima

Área total lote: 7500m²

Área construída: 8329,6m² |7500m²

Permeabilidade: 1720m² |1500m² (20%)

Vista Av. do Contorno
2m 6m 14m
Corte AA

PAVILHÃO MLC

Tipo: Acadêmico | Comercial

Autor: Bárbara Coimbra e Vitória de Freitas

Programas: SketchUp, Layout e Enscape

Ano: 2020

Opavilhãofoiprojetadoparaserumlocal multifuncional, localizado em um bairro muito dinâmico e com um estilo de vida boêmio,oSantaTereza.Queríamostrazer a luz natural para dentro do prédio e também o vento, proporcionando conforto. É por isso que projetamos os cobogós, que criam um conceito interessanteparadeixaraluzentrar.

Autoriadorender:BárbaraCoimbra

Planta baixa
1 2 3 4 5 6 7
Autoriadorender:BárbaraCoimbra 1.Salão multiuso 2. Cozinha 3. Depósito 4. Almoxarifado 5. Administração 6. Sanitário
1m 3m 8m
7. Sanitário acessível

Detalhe fixação pilares

Isométrica pilares

1 2 3 4 5 6 7 5 4 6
Vista interna salão

SEÇÃO EXTRA

Autor: Bárbara Coimbra

Programas: Revit e Autocad

Ano: 2024

DETALHAMENTO PREFEITURA

Detalhecasademaquinas-Planta

Escala1:50

Detalhecasademaquinas-CorteAA

Escala1:50

Escala1:50

DetalhamentosanitárioEspaçoPopular-Corte

DetalhemiranteEspaçoPopularEldorado-Corte

Escala1:100

INTERVENÇÃO EM PATRIMÔNIO

Edifícios 1285 e 1287 Avenida do Contorno

Mapeamento de danos

Fachada final 1:75

1:75

PROJETOS COMPLEMENTARES

COMPATIBILIZAÇÃO DE PROJETO

Dadosevoz

Elétrica Hidráulica Incêndio

AC

Plantaluminotécnico

Escala1:100

Hidráulica(águafria)

Elétrica

Esgoto Hidráulica(águaquente)

MEIUS ARQUITETURA - PROJETO AGULHAS NEGRAS

CARTA DE RECOMENDAÇÃO

Obrigada

Turn static files into dynamic content formats.

Create a flipbook
Issuu converts static files into: digital portfolios, online yearbooks, online catalogs, digital photo albums and more. Sign up and create your flipbook.