Portfólio Arquitetura e Urbanismo - Bárbara Coimbra

Page 1

2020|2024
Portfólio BÁRBARA COIMBRA

BÁRBARA COIMBRA

ARQUITETAEURBANISTA

Meidentificoprincipalmentecomaáreadecriação projetual, com foco em arquitetura cultural e institucional, além de possuir grande habilidade em desenhos técnicos. Em meu estágio mais recente, trabalhei com a realização de obras públicas para melhorias no município e pude acompanharnapráticaasuaexecução.Auxilieio desenvolvimento de diferentes tipologias projetuais, contribuindo com ideias que foram posteriormenteaplicadasnaconstruçãofinal.

(31)991618226ou(31)33551367

barbaracsc270@gmail.com

BairroFonteGrande,Contagem,MG.

EXPERIÊNCIA

Prefeitura Municipal de Contagem

Estágio|2021-2023

Anteprojetodediferentestipologiascomopraças,unidadesdeensino,saúde,etc.

Contribuiçãocomideiasesugestõesdemelhoriaparaprojetos.

Detalhamentosemautocadderevestimentos,áreamolhadas,entreoutros.

Projetoexecutivodearquiteturaepaisagismo.

Levantamentosinlocoparacriaçãodeplantabaixaerealizaçãodeasbuilt.

RenderizaçãodeprojetosemEnscape.

Preparaçãodeapresentaçõesparaclientes.

Aprovaçãodeprojetoseadequaçãodedesenhosparaoprojetolegal.

Memorialdescritivodeprojetodeintervençãonopatrimônio

FORMAÇÃO

Puc Minas

2018.1-2023.2

BacharelemArquiteturaeUrbanismo.

British Study Centres

2019.2

IntercâmbiolinguísticoemLondres,ReinoUnido.

Carolina Guimarães Arquitetura

Estágio|2021.1

Projetos executivos residenciais como luminotécnico, pontos hidráulicos, pontos elétricos,plantadedemolição,etc.

DetalhamentosemAutocaddeáreasmolhadas.

Visitasemobraparafiscalização.

Estúdio Roiz

Estágio|2020.1

RenderizaçãodeprojetosresidenciaisdealtopadrãoemLumion.

Modelagem3demSketchUpdearquiteturaeinteriores.

ExecutivodeinterioresemarcenariaemLayout.

Fotografia marquise Espaço Popular Eldorado em construção - Contagem

PRÊMIOS HABILIDADES EM SOFTWARE

Melhor Trabalho de Conclusão de Curso | Parque da Memória

2024

EXTRACURRÍCULAR

Participação no concurso de arquitetura Home For TheBlind.

2021

Conforto ambiental e sustentabilidade

PROJETOU

2024

Revit para eficiência energética em edificações

PROJETOU 2024

WorkshopmaratonaArchicad

LUCAS BACELAR

2024

Lev Conceito - Criação de diagramas em photoshop

LEV DESIGN

2020

CreativeArchitecturalDesign&ModelinginRevit

BIM IT

2024

Archicad Revit

Avançado Intermediário

Modelagemtopográfica Projetoexecutivo Detalhamento Fachadaparamétrica

Modelagemtopográfica Modelagemarquitetura Detalhamento Diagramas

Plug-inJHSBar

Plug-inFredo Formasorgânicas (CurviLoft)

Layout Indesign Enscape

Básico

Criaçãodepranchas Detalhamento

IDIOMAS

Inglês

Fluente (C1)

Avançado

Rendervídeos Criaçãodetexturas Imagensrealistas

Básico

Webdesign Diagramaçãodepranchas

Francês SketchUp Autocad Lumion Photoshop

Básico Avançado

Projetoexecutivo Detalhamento

Avançado

Renderizaçãodevídeos Criaçãodetexturas Imagensrealistas

Básico Intermediário

Criaçãodecolagem Pósproduçãodeimagem Diagramasdearquitetura Criaçãopadrãodetextura

CONTEÚDO
01 02 03 04
DA
RESIDÊNCIA COREU
PAVILHÃO MLC
PARQUE
MEMÓRIA
SESC FLORESTA

PARQUE DA MEMÓRIA

Tipo: Acadêmico | Arquitetura Cultural

Autor: Bárbara Coimbra

Programas: Revit, Enscape e Photoshop

Ano: 2023

O Trabalho de Conclusão de Curso foi criado com objetivo de melhorar a dinâmica urbana eampliaroacessoaoCentrodeMemóriado Trabalhador,importantepatrimôniodacidade de Contagem. Com uma expansão do programa cultural já existente no Centro de Memória, o parque possui um circuito de edificações que abrigam um programa de iniciaçãoartísticaparatodasasidades.

Vencedor de Melhor Trabalho deConclusãodeCurso|2023.2

Autoriadorender:BárbaraCoimbra

Av.BabitaCamargos

Av.GeneralDavidSarnoff

Av.BabitaCamargos

Av.GeneralDavidSarnoff

Oterrenopossuiumdeclivedeseismetrosem direção ao córrego ferrugem, que está canalizado à céu aberto. Do outro lado, está o CentrodeMemóriadoTrabalhador. Foramfeitosaterrosemlocaisestrátegicospara implantaçãodascontruções,demodoquenão fosseobstruídaavisãodopatrimônio.

Av.BabitaCamargos

Av.GeneralDavidSarnoff

Av.BabitaCamargos

Av.GeneralDavidSarnoff

Apartirdaimplantação,foramcriadosmirantes nos pontos mais elevados do terreno, sempre visando o patrimônio. Desse modo, evita-se quaisquerpoluiçõesvisuaisnapaisagem.

Para que o córrego deixe de atuar como uma barreira,foramcriadospontosdetravessiacom duaspassarelas,queconectamooutroladodo parqueeocentrodememória.

Terrenonatural Implantação Pontosdevisada Conexões
de Memória do Trabalhador 01 02 03 04
Centro
01 02 03 04

O parque é dividido em setores, sendo eles o Setor Teatro, com o Teatro de arena, o Setor Adm, no acesso principal, Setor Arte, que possui sala de exposição, anfiteatro e café, e o Setor Cursos, que possui salas de dança, música, ateliê, espaço para oficinas, o Centro de ImagemedoSomeumestúdiodegravaçãopúblico.

CentrodeMemória CentrodeMemória

SetorArte SetorArte

SetorCursos SetorCursos

SetorAdministração SetorAdministração

SetorTeatro SetorTeatro

Parquelinear Parquelinear

Feira Feira 14m

6m 2m
Ateliê
Corte AA
ParqueLinear Mirante Av.Babita Camargos

Perspectivamirante Perspectivamirante

Perspectivaparquelinear Perspectivaparquelinear

Amaterialidadetrazdemaneirasimbólicareferênciasàcidadeeà antiga industria lafersa do centro de memória do trabalhador. A jabuticabeira, árvore simbolo da cidade, também foi utilizada em projeto.Assim,conectam-setantopatrimônio,quantopaisagem.

Açocorten Açocorten Tijoloaparente Tijoloaparente Pisointertravado Pisointertravado
Vista interna galeria setor arte Vista interna

Perspectivabeiralealeta Perspectivabeiralealeta

Detalhe 02 - Corte Detalhe - Corte

1:25 1:25

Detalhe 02 - Ampliação calha Detalhe 02 - Ampliação calha

Detalhe 02 - Planta Detalhe 02 - Planta

5cm 17.5cm 4cm 12cm 28cm
2.5cm

RESIDÊNCIA COREU

Tipo: Acadêmico | Residencial multifamiliar

Autor: Bárbara Coimbra

Programas: Revit, Enscape e Photoshop

Ano: 2022

O projeto de habitação coletiva possui apropostadeaumentarocontatodos moradorescomanatureza,integrando os blocos de apartamentos com três praças coletivas e uma pública. Localizado no bairro Dom Cabral, em frente ao campus da Puc Minas ele possui como principais moradores os estudantesdauniversidade.

Autoriadorender:BárbaraCoimbra

AhabitaçãocontacomumafachadaativaparaaAvenidaTrintaeUm deMarço,possuindolojas,cafeteriaeumcoworking.Foramprojetados três tipos de acomodação, contendo um, dois ou três quartos, contribuindotambémparaabrigardiferentestiposdefamílias.

| Cobertura Av. Trinta e Um de Março 15m 7.5m 2.5m
2.5m 7.5m 15m
Implantação
Pavimento tipo

HortaComunitária

totalde46unidadeshabitacionais

Academia170m²

Estacionamento15vagas

totalde23placassolaresduplas340W

Os blocos são implantados em três diferentes níveis, contendo cada um deles um acesso de pedestres ao conjuntoeumacessodeveículospelaruaposterior.

PraçaColetivaPav3

PraçaPúblicaPav2

Loja62m²

PraçaColetivaPav1

Foi implantada em alguns pontos estratégicos a cobertura verde, visando conforto térmico e estética. Foram feitas as camadas para possíbilitar o plantio de vegetação,comomostraodetalhamentoaolado,alémdepontosdedrenagem.

Autoriadosrenders:BárbaraCoimbra

Pátiopraçacoletivaterceiropavimento

Detalhamentocoberturaverde

10cm 30cm 70cm

Corte Avenida Trinta e Um de Março
1m 3m 7m
FachadaAv.TrintaeUmdeMarço Vistadoquartopavimento Vistapraçapública

SESC FLORESTA

Tipo: Acadêmico | Institucional

Autor: Bárbara Coimbra

Programas: Revit, Lumion e Photoshop

Ano: 2021

Localizado no bairro Floresta, em Belo Horizonte, o projeto do SESC possui seu terreno na Avenida do Contorno, esquina com a Rua Célio de Castro. Foi pensado para se tornar um equipamento metropolitano que conectaria a diversidade cultural existente no centro, integrandoopatrimôniotombado.

03
Autoriadorender:BárbaraCoimbra

5m 15m 35m

Forampensadosemdoisblocos:umculturaleum esportivo, além de uma praça no entorno dos edifícios 1297 e 1285, ambos tombados. Foi previsto um caminho entre os dois blocos que conectamaCéliodeCastroeosmonumentos,que possuem novo uso de um café e um memorial. A conexão entre os blocos é feita através de passarelasnoterceiroequartopavimento.

Implantação RuaCéliodeCastro Av.doContorno
PAV
PAV
PAV
COBERTURA SUBSOLO
05
1
2
3
01 02 03 04
Vista passarela terceiro pavimento Vista fachada posterior Rua Célio de Castro Autoriadosrenders:BárbaraCoimbra
Segundo pavimento Planta de cobertura 5m 15m 35m 1.Saladeespera/recepção 2.Guarita 3.VestiárioMarculino 4.VestiárioFeminino 5.Dml 6.Salaanalistas 7.Gerência 8.Almoxarifado 9.Áreadefuncionários 1 2 3 4 5 6 7 8 9 10 11 12 13 14 15 16 17 10.Saladereunião 11.Manutenção 12.Foyer 13.Saladeexposição 14.Passarela 15.Quadraspoliesportivas 16.Academia 17.Memorial

WallSection parede de vidro

Escala1:20

Detalhe WallSection

Escala1:5

Nafachadasul,voltadaparaaAvenidadoContorno,foram implantadas paredes de vidro, fixadas na laje com perfis metálicos.Dessemodo,garante-seailuminaçãonaturale tambémaventilação,atravésdasaberturaspresentes.

Área no projeto | área mínima

Área total lote: 7500m²

Área construída: 8329,6m² |7500m²

Permeabilidade: 1720m² |1500m² (20%)

Vista Av. do Contorno
2m 6m 14m
Corte AA

PAVILHÃO MLC

Tipo: Acadêmico | Comercial

Autor: Bárbara Coimbra e Vitória de Freitas

Programas: SketchUp, Layout e Enscape

Ano: 2020

Opavilhãofoiprojetadoparaserumlocal multifuncional, localizado em um bairro muito dinâmico e com um estilo de vida boêmio,oSantaTereza.Queríamostrazer a luz natural para dentro do prédio e também o vento, proporcionando conforto. É por isso que projetamos os cobogós, que criam um conceito interessanteparadeixaraluzentrar.

Autoriadorender:BárbaraCoimbra

Planta baixa
1 2 3 4 5 6 7
Autoriadorender:BárbaraCoimbra 1.Salão multiuso 2. Cozinha 3. Depósito 4. Almoxarifado 5. Administração 6. Sanitário
1m 3m 8m
7. Sanitário acessível
1 2 3 4 5 6 7 5 4 6
Isométrica
Detalhe fixação pilares
pilares
Vista interna salão

SEÇÃO EXTRA

Autor: Bárbara Coimbra

Programas: Revit e Autocad

Ano: 2024

DETALHAMENTO PREFEITURA

Fachadaapoioaoturismo

EspaçoPopular

Escala1:75

Detalhecasademaquinas-Planta

Escala1:50

Detalhecasademaquinas-CorteAA

Escala1:50

Escala1:50

DetalhamentosanitárioEspaçoPopular-Corte

DetalhemiranteEspaçoPopularEldorado-Corte

Escala1:100

PROJETO EM ARCHICAD

Concurso de arquitetura Home For the Blind | 2021

1200

Plantabaixa Escala1:100 Plantadecobertura Escala

A residência, cujo morador é deficiente visual, conta com uma conexão maiorcomaáreaexterna,ondefoiprojetadoumjardim,garantindoasua

localização através da luz solar que atravessa as claraboias nas circulações externas. Toda a casa conta com piso tátil para auxiliar a localizaçãodomorador,tantoexternaquantointernamente.

Elevaçãoleste Escala1:100 Elevaçãonorte Escala1:100 Renderfachadanorte Corteperspectivado

PARTICIPAÇÃO EM PROJETOS

Prefeitura Municipal de Contagem - Espaço popular do Eldorado

FotografiaMirante-obrafinalizada|2024

DetalhemiranteEspaçoPopularEldorado-Corte|2023

Escala1:100

PARTICIPAÇÃO EM PROJETOS

Estúdio Roiz - Projeto residencial P|R

Fotografia

externaobrafinalizada|2021

Renderinicial

área áreaexterna|2020

PROJETOS COMPLEMENTARES

COMPATIBILIZAÇÃO DE PROJETO

Plantadedemolição

Escala1:100

Plantaluminotécnico

Escala1:100

Hidráulica(águafria)

Hidráulica(águaquente)

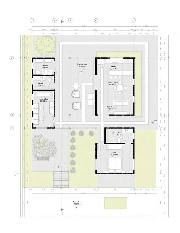
MEIUS ARQUITETURA - PROJETO AGULHAS NEGRAS

CARTA DE RECOMENDAÇÃO

Cláudio Bahia

Arquiteto e Urbanista, possui mestrado em Arquitetura pela Universidade Federal de Minas Gerais. Doutorado no Programa de TratamentodaInformaçãoEspacial em Geografia da Pontifícia Universidade Católica de Minas Gerais-PUCMinas.

Atualmente é professor e Diretor Acadêmico da administração superiordaPUCMinas,membrodo Conselho Superior do Instituto de Arquitetos do Brasil Seção Minas Gerais-IABMG.

Obrigada

Turn static files into dynamic content formats.

Create a flipbook
Issuu converts static files into: digital portfolios, online yearbooks, online catalogs, digital photo albums and more. Sign up and create your flipbook.
Portfólio Arquitetura e Urbanismo - Bárbara Coimbra by barbara_coimbra_ - Issuu