ADS 1- F_UTS - Design Report_20512243_Bakti Nusantara

Page 1

Creative Center Studio Desain Arsitektur 1 Bakti Nusantara - 20512243

creative center

Creative Center merupakan pusat atau tempat yang digunakan untuk mewadahi berbagai macam komunitas kreatif dan menyediakan fasilitas tertentu untuk menunjang kegiatan kegiatan kreatif tersebut. Banyak sekali komunitas kreatif yang dapat diwadahi dalam sebuah creative center. Seperti menari, melukis, membuat gerabah, dan lain-lainnya. Pada dasarnya, tempat ini ada untuk mengembangkan kreativitas pada komunitas di dalamnya dari berbagai kalangan, mulai dari yang muda hingga yang tua. Disinilah akan dijadikan sebagai tempat untuk mengekspresikan dan mentransformasikan karya menjadi nilai ekonomi. Adapun fungsi utama dari bangunan creative center yaitu sebagai kelas dan juga workshop, Namun dalam sebuah creative center biasanya terdapat ruang atau bangunan yang berfungsi untuk menunjang fungsi utama yang dapat berupa cafe dan sejenisnya.

creative center idea

Bakery and Cafe

Bangunan Creative Center ini dirancang untuk komunitas yang bergerak dibidang pastry baik tradisional maupun modern. Bangunan ini akan terdiri dari beberapa ruang yang akan mengakomodasi kegiatan komunitas tersebut, seperti menyediakan ruang baking workshop yang tujukan kepada setiap kalangan masyarakat baik yang ingin memperdalam ilmunya maupun yang ingin mengebangkan dan menekuni usaha dibidang pastry.

Selain itu juga akan terdapat bakery dan sekaligus cafe yang menjual berbagai macam pastry dan minuman, serta terdapat juga ruang produksi pastry Hal ini diharapkan dapat menjadi daya tarik pengunjung untuk mempelajari bahkan menekuni terkait pastry.

DAMPAK REALISASI

Memberikan edukasi atau tambahan skill bagi masyarakat yang memiliki keterbatasan keterampilan Menciptakan lapangan pekerjaan baru serta mengurangi angka pengangguran di kawasan tersebut

Secara tidak langsung ikut berperan dalam meningkatkan pendapatan ekonomi masyarakat sekitar Sehingga akhirnya kawasan tersebut akan dikenal dan dicari oleh masyarakat dalam maupun luar kota sebagai kawasan pembuatan kue, baik untuk konsumsi pribadi maupun sebagai oleh oleh.

preseden 1

Original Bakery

Architects : D+space design

Area : 450 m²

Year : 2017

Location : Suzhou, China

Bangunan yang terdiri dari 4 lantai ini berfungsi sebagai toko roti dan kue yang sekaligus menjual berbagai macam minuman. Perancang menggunakan metode desain hangat untuk membuat hutan semen yang dingin, memberikan perlakuan psikologis dan rasa memiliki kepada pelanggan.

Setiap lantai pada bangunan ini memiliki fungsi yang berbeda beda :

Lantai 1

Berfungsi sebagai area pemesanan makanan dan minuman, seperti roti, kue, dan kopi.

Lantai 2

Berfungsi sebagai area berkumpul bersama teman dan keluarga.

Lantai 3

Berfungsi sebagai area pembelajan karena memiliki area yang lebih luas yang mungkin dapat dijadikan sebagai tempat workshop dan juga terdapat area produksi.

Lantai 4

Berfungsi sebagai ruang kerja para karyawan.

preseden 2

Neon Bakery

Architects : Studio 2Pi Architecture

Area : 180 m²

Year : 2019

Location : Dalamanara, Yunani

Bangunan yang berfungsi sebagai toko yang menjual berbagai macam roti, kue, dan kopi. Dengan bentuk geometris yang sederhana sebagai upaya untuk memaksimalkan kemurnian volume yang ada

Selain itu bangunan ini memiliki caranya sendiri untuk menonjolkan bangunannya agar menarik perhatian pengunjung, yaitu dengan melapisi dinding menggunakan lembaran aluminium berlubang yang bergelombang serta memberikan lampu diantara area tersebut, sehingga pada malam hari fasad bangunan akan memancarkan cahaya.

Konter dan nampan makanan berwarna hitam bertujuan agar produk roti, kue, minuman dengan penyajian dan pembungkusnya yang berwarna warni dapat mengundang pelanggan untuk mengambilnya.

design

Nama : Dr. Ing. Nensi Golda Yuli, S.T., M.Arch Pekerjaan : Dosen Arsitektur Universitas Islam Indonesia

Owner dari bangunan creative center ini merupakan dosen pembimbing mata kuliah Studio Desain Arsitektur 1 kelas F. Owner disini berperan sebagai pembimbing dalam proyek yang akan dirancang serta menetapkan anggaran yang akan dibutuhkan.

0WNER

operator design

Nama : Ria Afrida

Umur : 46 tahun

Pekerjaan : Pengusaha roti dan kue

Merupakan seorang ibu rumah tangga yang memiliki usaha dibidang pastry yang terletak di Kota Rengat, Kabupaten Indragiri Hulu, Provinsi Riau. Kegiatan yang awalnya hanya sekedar hobi untuk mengisi waktu luang dan untuk konsumsi pribadi saja, namun sekarang dengan ketekunan dan keinginan kuat untuk belajar hal ini dapat menjadi sebuah penghasilan yang menjanjikan serta memberikan lahan pekerjaan bagi bagi ibu rumah tangga lainnya Bermula belajar melalui video youtube lalu mencoba untuk menjualnya kepada teman teman dekat dan mendapat respon baik, oleh karena itu timbullah keinginan kuat untuk belajar karena melihat adanya peluang usaha dengan mengikuti berbagai kursus dan kelas baking, hingga saat ini telah dapat membuat berbagai jenis bolu, kue kering, puding, roti, cupcake, hingga birthday cake.

END USER

Bakery and Cafe

Dalam perancangan bangunan creative center ini melibatkan beberapa orang dari kalangan mahasiswa, pelajar, dan masyarakat umum yang sering berkunjung ke Bakery and Cafe ataupun sejenisnya. Dengan tujuan untuk melakukan berbagai aktivitas seperti bersantai, mengerjakan tugas, dan berkumpul bersama teman atau keluarga Disini mereka berperan sebagai pengguna yang memberikan penilaian baik berupa kritik dan saran terhadap suatu tempat yang pernah dikunjungi.

Baking Workshop

Dalam perancangan bangunan creative center ini juga melibatkan beberapa ibu ibu yang pernah mengikuti kegiatan baking workshop. Dengan tujuan untuk memperdalam ilmu dan ingin mengembangkan usaha yang telah dimilikinya. Disini mereka berperan sebagai pengguna yang memberikan penilaian baik berupa kritik dan saran terhadap suatu tempat yang pernah mereka gunakan ketika baking workshop .

Nama : Nelly Eltika

Umur : 48 tahun

Pekerjaan : Pengusaha kue rumahan

Nama : Linda Erawati

Umur : 43 tahun

Pekerjaan : Pengusaha kue rumahan

WAWANCARA operator design

Bagaimana proses pembuatan hingga pengemasan produk bakery yang akan dijual kepada pelanggan ?

Dalam proses pembuatan produk bakery memiliki banyak tahapan dan berbeda beda tergantung jenis produknya. Mungkin secara umum yang pertama kali dilakukan yaitu menimbang bahan sesuai dengan takarannya, barulah setelah itu bahan dicampurkan satu demi satu menggunakan mixer maupun whisk, lalu setelah adonan jadi barulah dimasukkan ke dalam loyang ataupun dicetak dan dilanjutkan ke proses pembakaran menggunakan oven. Untuk tahapan yang terakhir yaitu pengemasan yang dilakukan setelah produk dingin.

Apa saja ruang yang dibutuhkan untuk kegiatan produksi ?

Dalam kegiatan produksi selain terdapat area dapur juga dibutuhkan ruang penyimpanan bahan baku terutama bahan kering seperti tepung, gula, mentega, telur, susu bubuk dan lainnya. Selain itu juga dibutuhkan ruang penyimpanan alat baking seperti loyang, mixer, mangkok, dan timbangan, serta pada area dapur juga dibutuhkan banyak laci-laci untuk menyimpan alat alat kecil seperti spatula, ayakan, penggiling, whisk, squit, dan kuas, maupun bahan yang memiliki kemasan kecil seperti pewarna makanan, ragi, baking soda, dan vanilla ekstrak. Selanjutnya diperlukan juga ruang pengemasan, disini semua hasil produksi yang baru keluar dari oven di dinginkan lalu baru dikemas dan siap dijual kepada pelanggan

Peralatan apa saja yang dibutuhkan ketika kegiatan produksi ? Ketika ingin membuat kue banyak sekali peralatan yang digunakan, paling utama yaitu oven, mixer, loyang, spatula, ayakan dan masih banyak lagi Namun yang menjadi catatan penting ketika membuat kue semua peralatan yang akan digunakan harus diletakkan atau dikumpulkan berdekatan agar ketika proses pembuatan tidak perlu mencari cari lagi sehingga memberikan hasil maksimal

Berapa sekiranya luas dan kapasitas dari setiap ruang yang dibutuhkan untuk kegiatan produksi ?

Untuk dapur produksi sendiri tidak memerlukan ruang yang besar namun juga tidak terlalu kecil, sekiranya ruang yang memiliki kapasitas 5-6 orang pekerja dan tidak saling bersentuhan atau bertabrakan ketika proses pembuatan, serta sama halnya dengan ruang pengemasan yang memiliki kapasitas 3-4 orang pekerja. Sedangkan untuk ruang penyimpanan alat dan bahan dapat dikira-kira saja mungkin sekitar 4x4 meter.

Apa saja ruang yang dibutuhkan untuk kegiatan baking workshop ? Sebenarnya untuk ruang baking workshop bisa terbilang sederhana, tidak memerlukan ruang yang terlalu kompleks asalkan setiap pengguna bebas untuk bergerak. Mungkin untuk sebagai contoh dapat dilihat pada Gallery Masterchef Indonesia yang memisahkan antara area utama atau dapur dengan tempat penyimpanan alat dan bahan.

Berapa sekiranya luas dan kapasitas dari setiap ruang yang dibutuhkan untuk kegiatan baking workshop ?

Luas ruang yang diperlukan untuk baking workshop tergantung dari jumlah peserta yang terpenting luas ruang bebas untuk bergerak, biasanya itu sekitar 5-10 orang bahkan terkadang ada yang private 1-3 orang saja, karena kegiatan ini lebih ke arah baking class atau kursus dengan jumlah peserta yang sedikit sehingga lebih fokus. Makanya harga yang ditawarkan untuk mengikuti baking class sendiri relatif mahal. Sedangkan untuk ruang penyimpanan alat dan bahan dapat dikira-kira saja mungkin sekitar 4x4 meter.

Furniture apa saja yang diperlukan untuk kegiatan baking workshop ? Untuk furniture sendiri sebenarnya sederhana hanya memerlukan meja dengan ukuran yang cukup lebar dan tinggi yang sesuai standar, karena proses baking lebih nyaman dilakukan dengan posisi berdiri tentunya agar lebih fleksibel untuk bergerak. Cuma ada beberapa tahapan yang memakan waktu lama contohnya saja dekorasi untuk birthday cake dan proses pencetakan atau pembentukan untuk kue kering, sehingga dibutuhkan kursi agar tidak pegal berdiri.

Siapa saja yang biasanya berkunjung ke bakery and cafe dan juga yang mengikuti kegiatan baking workshop ? Bakery and cafe biasanya dikunjungi oleh segala umur mulai dari anak-anak, orang dewasa, penyandang disabilitas, dan ibu hamil, namun yang sering nongkrong berasal dari kalangan pelajar dan pekerja kantoran. Sedangkan untuk yang mengikuti kegiatan baking workshop berasal dari kalangan muda maupun ibu-ibu yang ingin memperdalam ilmunya terutama yang ingin lebih mengembangkan usahanya.

Bagaimana kondisi pencahayaan yang dibutuhkan pada masing-masing ruang ? Setiap ruang tentunya memerlukan pencahayaan yang terang terutama pada area produksi dan workshop, karena pada area ini butuh ketelitian lebih dan harus fokus.

Apakah ada kebutuhan khusus terkait sirkulasi udara maupun pencahayaan pada setiap ruangnya yang mempengaruhi berlangsung sebuah kegiatan ? Terkait sirkulasi udara tentunya setiap ruang memerlukan sirkulasi yang baik selain untuk menunjang kenyamanan pegawai dan pengunjung, juga dengan adanya penggunaan alat seperti oven, mixer, kompor, dan lainnya yang mengeluarkan hawa panas pada area produksi dan workshop sehingga dengan sirkulasi udara yang baik setidaknya dapat menetralisir suhu pada ruangan. Sedangkan untuk pencahayaan alami sendiri tidak ada kebutuhan khusus yang akan mempengaruhi proses produksi maupun workshop sehingga fleksibel.

Apakah disebuah bakery and cafe diperlukan ruang untuk manager ? Ruang manager tentu saja penting, karena dalam sebuah usaha manager memiliki pengaruh yang besar untuk mencapai target pasar dengan memimpin, merencanakan, mengendalikan usaha.

Bagaimana jika desain bangunan yang memanfaatkan limbah dari produk bakery contohnya kaleng mentega ?

Hal tersebut tentunya sangat bagus, selain dapat mengurangi limbah juga sekaligus membuat bangunan memiliki visual yang berbeda dari bangunan pada umumnya. Selain itu yang mungkin dapat dijadikan sebagai pertimbangan yaitu adanya perpaduan antara kaleng mentega dengan material alam seperti bambu atau kayu sehingga dapat lebih memperkuat temanya yang berkaitan dengan lingkungan.

wawancara end user

Bakery and Cafe

Wawancara dilakukan dengan cara menyebar pertanyaan melalui Google Form, lalu disebarkan kepada orang-orang yang sekiranya pernah berkunjung ke bakery and cafe. Gform ini diisi oleh 23 respondents.

Seberapa sering anda pergi ke Bakery and Cafe ?

Kapan waktu yang paling sering anda pilih untuk berkunjung ke Bakery and Cafe ?

Berapa lama durasi anda berada di Bakery and Cafe ?

Menurut anda suasana Bakery and Cafe seperti apa yang menarik ?

Apa alasan atau tujuan anda datang ke Bakery and Cafe ? Apa daya tarik sebuah Bakery and Cafe sehingga anda memilih tempat tersebut dibandingkan dengan Tempat lainnya ? Fasilitas Pendukung apa yang paling dibutuhkan di Bakery and Cafe ?

Seperti apa suasana yang diharapkan pada saat anda berada di Bakery and Cafe ?

Seperti apa penghawaan udara yang diinginkan pada saat anda berada di Bakery and Cafe ?

Seperti apa pencahayaan yang diinginkan pada saat anda berada di Bakery and Cafe ?

wawancara end user

Baking Workshop

Wawancara dilakukan dengan cara memberikan pertanyaan langsung melalui chat whatsapp. Apakah anda pernah mengalami kendala saat mengikuti kegiatan baking workshop ?

End User Answer 1 : Nelly Eltika

Tentu saja pernah, yaitu meja yang digunakan untuk baking yang kerendahan, sehingga cepat pegal.

Sebaiknya baking workshop lebih nyaman dilakukan pada area indoor atau semi outdoor atau bahkan outdooor ?

Sebaiknya pada area indoor, agar tidak terkontaminasi kondisi luar.

Sekiranya ruang seperti apa yang anda kategorikan nyaman untuk kegiatan baking workshop ? Tentunya ruang yang memiliki sirkulasi udara yang baik, sehingga tidak pengap apalagi terdapat beberapa alat yang mengeluarkan hawa panas seperti, oven, mixer, dan kompor. Namun terkadang juga yang menggunakan AC.

Bagaimana dengan furniture, apakah anda lebih nyaman mengerjakan proses baking ini jika duduk dikursi atau berdiri atau bahkan langsung duduk di lantai ? Ketika proses pembuatan kue lebih nyaman melakukannya dengan posisi berdiri agar lebih fleksibel untuk bergerak, namun ada beberapa tahapan yang lebih nyaman duduk dikursi contohnya saja ketika tahap dekorasi untuk birthday cake yang cenderung memakan waktu.

End User Answer 2 : Linda Erawati

Apakah anda pernah mengalami kendala saat mengikuti kegiatan baking workshop ? Tentu saja pernah, yaitu penggunaan ruang yang tidak sesuai kapasitasnya sehingga sempit dan tidak fleksibel untuk bergerak.

Sebaiknya baking workshop lebih nyaman dilakukan pada area indoor atau semi outdoor atau bahkan outdooor ?

Sebaiknya pada area indoor, karena proses baking membutuhkan fokus dan ketelitian tinggi

Sekiranya ruang seperti apa yang anda kategorikan nyaman untuk kegiatan baking workshop ?

Tentunya ruang yang memiliki sirkulasi udara yang baik sehingga tidak pengap, serta memiliki pencahayaan yang terang

Bagaimana dengan furniture, apakah anda lebih nyaman mengerjakan proses baking ini jika duduk dikursi atau berdiri atau bahkan langsung duduk di lantai ?

Ketika proses pembuatan kue lebih nyaman melakukannya dengan posisi berdiri agar lebih fleksibel untuk bergerak, namun meja yang digunakan juga harus sesuai standar.

rumusan ide dari hasil wawancara

Menyediakan ruang baking workshop yang terbuka untuk setiap kalangan masyarakat mulai dari kalangan muda hingga ibu ibu yang ingin memperdalam ilmunya maupun yang ingin mengembangkan dan menekuni usaha dibidang pastry.

Menyediakan ruang baking workshop yang layak bagi setiap pengguna dengan fasilitas yang memadai serta dilengkapi dengan ruang penyimpanan alat dan bahan. Perancangan ruang sesuai kapasitas normal sehingga dapat bergerak dengan fleksibel ketika proses baking. Ruang baking workshop akan didesain indoor dengan pencahayaan yang terang serta sirkulasi penghawaan alami yang baik.

Menyediakan ruang produksi yang menyesuaikan dengan jumlah pekerja serta memiliki fasilitas memadai dengan pencahayaan yang terang serta sirkulasi penghawaan alami yang baik. Selain itu juga dilengkapi dengan ruang penyimpanan alat dan bahan

Penataan furniture yang sesuai guna untuk mempermudah dan mengoptimalkan pekerjaan.

Peletakan furniture berupa laci laci pada area dapur produksi maupun workshop guna mempermudah penyimpanan alat dan bahan yang berukuran kecil.

Perancangan bakery and cafe yang terdapat area indoor dengan sistem penghawaan AC dan semioutdoor.

Berupaya untuk menciptakan bakery and cafe dengan suasana yang tenang serta pencahayaan yang cukup tentunya untuk menunjang setiap aktivitas yang dilakukan.

Area produksi : dapur, ruang penyimpanan bahan, ruang penyimpanan alat, serta ruang pengemasan.

Area bakery and cafe : display pastry, tempat order, area tempat duduk pengunjung.

Baking workshop : dapur workshop, ruang penyimpanan bahan, ruang penyimpanan alat.

Toilet,

Ruang Manager
Mushalla, Parkiran luas Kebutuhan Ruang : Fasilitas Pendukung :

Tempatdisplayprodukpastry

Areatempatdudukpengunjung

NO RoomName SQM Needs Adjacencies Public Access Daylight and/or View Privacy Plumbing Special Equipment Special Considerations 1. DapurProduksi 40 m² 2.3. 4. L I M Y Y Tempatpembuatanberbagaijenis pastryyangakandijualkepada pengunjung 2. Ruang PenyimpananAlatProduksi 2x3 m 3.4. 1. L N M N N Tempatpenyimpananalat-alatyang digunakanketikaprosesbaking 3. Ruang PenyimpananBahanProduksi 2x3 m 2.4. 1. L N M N N Tempatpenyimpananstock bahan untuk pastry 4. Ruang Pengemasan 2x3 m 2.3. 1. L I M N Y Tempatuntukpendinginandan pengemasan produkbakery sebelumdijualkepadapengunjung 5. CounterBakeryand Cafe 6.7. H Y N Y Y Tempatpemesanan dan pembuatanmakanandan minuman 6. DisplayPastry 5.7. H Y N N Y
yang akandijualkepadapengunjung 7. Seating Area BakeryandCafe 5.6. H Y N N Y
8. DapurWorkshop 40 m² 9.10. M I M Y Y Tempatpembelajarancara pembuatanberbagaijenispastry 9. Ruang PenyimpananAlatWorkshop 2x3 m 8.10. M N M N N Tempatpenyimpananalat-alatyang digunakanketikaprosesbaking 10. Ruang PenyimpananBahan Workshop 2x3 m 8.9. M N M N N Tempatpenyimpananstock bahan untuk pastry 11. Ruang Manager 2x3 m Center L I H N Y Ruanguntukpengelola bakeryand cafe 12. Toilet 5x3 m Center H Y H Y Y Toiletyangmemisahkan antara laki-lakidanperempuan 13. Mushalla 4x4 m Center H N M N N Tempatberibadahbagiumat muslim 14. Parkiran 180 m² 5.6. 7. H Y N N N Parkiranuntukmobil danmotor PROGRAM ARSITEKTURAL Keterangan : H : Hight M : Medium L : Low Y : Yes N : No/None I : Important But Not Required

TABEL HUBUNGAN RUANG

Dapur Produksi

Ruang Penyimpanan Alat Produksi

Ruang Penyimpanan Bahan Produksi

Ruang Pengemasan

Counter Bakery and Cafe

Display Pastry

Seating Area Bakery and Cafe

Dapur Workshop

Ruang Penyimpanan Alat Workshop

Ruang Penyimpanan Bahan Workshop

Ruang Manager

Toilet Mushalla Parkiran

Keterangan : Berdekatan

Tidak Terlalu Jauh

Jauh

bubble diagram

Keterangan : Publik Semi Publik Privat Berdekatan Tidak terlalu jauh Parkiran Bakery and Cafe Ruang Manager Baking Workshop Toilet Mushalla Produksi Toilet Jauh

Site ini berada pada kawasan yang cukup ramai penduduk sehingga dengan adanya workshop baking diwilayah ini diharapkan dapat menjadi wadah pembelajan untuk menciptakan keahlian dan memulai usaha yang dapat meningkatkan pendapatan ekonomi Selain itu disekitarnya terdapat beberapa cafe karena merupakan kawasan pelajar dari berbagai universitas. Serta juga terdapat banyak pertokoan yang menjual berbagai macam kebutuhan. Hal inilah yang diharapkan dapat menjadi target pasar dari Bakery and Cafe.

site
Berlokasi di Jalan Matematika, Tiyosan, Condongcatur, Kec. Depok, Kabupaten Sleman, Daerah Istimewa Yogyakarta.

REGULASI KABUPATEN SLEMAN

Peraturan Bupati Sleman nomor 49 tahun 2012 tentang petunjuk peraturan daerah Kabupaten Sleman nomor 5 tahun 2011 tentang bangunan gedung.

Tingkat kepadatan lokasi sebagaimana dimaksud dalam Pasal 4 huruf e, meliputi :

Bangunan gedung di lokasi renggang dengan KDB 30% (tiga puluh persen) sampai dengan 45% (empat puluh lima persen);

Bangunan gedung di lokasi sedang dengan KDB diatas 45% (empat puluh lima persen) sampai dengan 60% (enam puluh persen);

Bangunan gedung di lokasi padat dengan KDB diatas 60% (enam puluh persen)

RTHP sebagaimana dimaksud pada ayat (1) dilakukan dengan ketentuan sebagai berikut :

Luas RTHP yang wajib disediakan sebagai berikut : KDH paling sedikit sebesar 30% (tiga puluh persen) dari luas tanah untuk nilai KDB 0% (nol persen) sampai dengan 30% (tiga puluh persen);

KDH paling sedikit sebesar 20% (duapuluh persen) dari luas tanah untuk nilai KDB 31% (tiga puluh satu persen) sampai dengan 70% (tujuh puluh persen);

KDH paling sedikit sebesar 10% (sepuluh persen) dari luas tanah untuk nilai KDB 71% (tujuh puluh satu persen) sampai dengan 100% (seratus persen). Lahan yang memiliki nilai KDB antara 71% (tujuh puluh satu persen) sampai dengan 100% (seratus persen), pemenuhan luas RTHP dapat diganti dengan penyediaan tanaman dalam pot atau roof garden;

1. 2

LUAS

LAHAN KDB (Koefisien Dasar Bangunan) Maksimal 60%, 60% dari 1.500 m² = 900 m² KDH (Koefisien Dasar Hijau) Minimal 20%, 20% dari 1.500 m² = 300 m² KLB (Koefisien Lantai Bangunan) Maksimal 4 lantai, dengan maksimal ketinggian 44 meter GSB (Garis Sepadan Bangunan) Jarak bangunan dari as jalan minimal 5 meter. GSJ (Garis Sepadan Jalan) Jarak pagar dari pinggir jalan minimal 1,5 meter Luas lahan yang digunakan 1.500 m², dengan ukuran 50 x 30 meter.

kondisi sekitar site

Kelebihan :

Berada di kawasan pelajar dari berbagai universitas

Serta terdapat banyak pertokoan dan fasilitas publik lainn yang tentunya mempekerjakan banyak pegawai, hal ini diharapkan dapat menjadi target pasar dari Bakery And Cafe

Berada di kawasan ramai penduduk sehingga diharapkan dapat menjadi target pasar untuk mengikuti kegiatan baking workshop

Akses jalan yang mudah serta dekat dengan jalan raya Tanah yang tidak berkontur (datar) memiliki sistem kelistrikan dan drainase yang baik

Kekurangan :

Terletak ditepi jalan sehingga terdapat kebisingan dari kendaraan yang dapat mengganggu kenyamanan dan ketenangan

Akses jalan yang cukup sempit Tidak memiliki pemandangan yang indah

FASILITAS PUBLIK sekitar site

Universitas Sanata FDharma BE UUIIAPNJMIKOM ogja International Hospital Pertokoan Pertokoan Cafe & Penjual Makanan

analisis site

Aksesibilitas

Jalan yang ditandai dengan warna merah merupakan salah satu jalan raya yang ada di Kecamatan Depok yaitu Jalan Kaliurang, yang tentunya ramai dilewati masyarakat setiap harinya serta dipenuhi dengan pertokoan yang menjual berbagai macam kebutuhan Sedangkan jalan yang ditandai dengan warna kuning merupakan jalan menuju site yang ada di kawasan pemukiman penduduk namun terdapat banyak cafe dan penjual makanan karena merupakan kawasan pelajar.

Jalan raya Jalan pemukiman penduduk

analisis site

Kelistrikan & Drainase

Tepat didepan site terdapat selokan yang mengalir langsung ke anak sungai, yang mungkin dapat digunakan sebagai sistem drainase pada bangunan. Didepan site tersebut juga terdapat jaringan listrik yang berasal dari PLN.

Jalur selokan dan jaringan listrik

ANALISIS SITE

Kebisingan

Pada kawasan ini diperoleh kebisingan rata rata sejumlah 57 dB, min 28 dB, Dan max 81 dB yang diukur pada kondisi normal. Sumber kebisingan berasal dari suara kendaraan yang lewat karena site terletak dipinggir jalan. Selain itu juga berasal dari suara hewan yang berada si sekitaran site seperti suara ayam, burung, dan lain-lain. Dari hasil pengukuran kebisingan pada site diperoleh nilai rata rata 57 dB yang masih berada dibawah standar kebisingan untuk kawasan perkantoran dan perdagangan senilai 65 dB, sehingga masih dapat dikatakan normal dan hal ini tidak menjadi permasalahan yang serius.

Pencahayaan

Pada kawasan ini diperoleh pencahayaan sejumlah 9.355 lux yang diukur pada sore hari sekitar jam 15.00 WIB. Lokasi ini mendapatkan pencahayaan alami yang cukup karena di wilayah tersebut tidak terlalu banyak pepohonan yang menutupi masuknya cahaya matahari.

ANALISIS

Kondisi

Kecepatan angin
8 10 km/h
SITE
Iklim
Angin dari arah selatan
Temperature 28 30 °C Relative Humidity 70 75%

BUBBLE DIAGRAM on site

Alternatif

:

Kelebihan :

Terdapat taman disisi belakang bangunan yang dapat menjadi area hijau dan menciptakan view tersendiri bagi pengguna. area bakery and cafe dan area produksi diposisikan saling berkaitan. Area workshop diposisikan jauh dari jalan agar kebisingan dari arah jalan dapat diminimalkan.

Kekurangan :

Peletakkan mushalla yang sedikit jauh dari area workshop.

1 Batas GSJ Batas GSB Area bakery and cafe Area produksi Area baking workshop Ruang manager Mushalla Toilet Parkiran Taman Keterangan
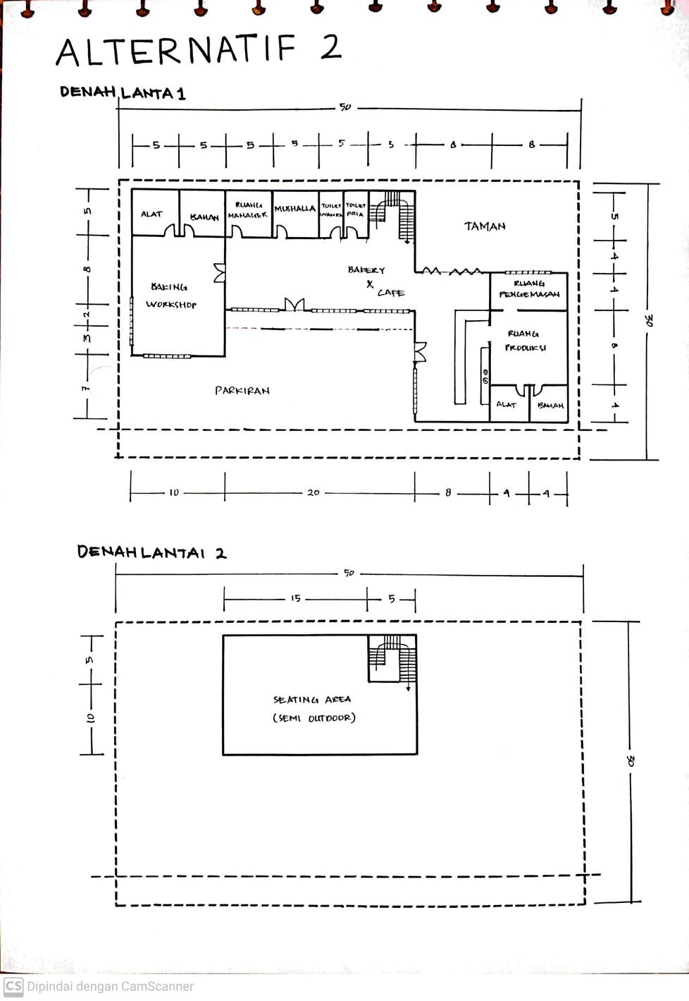
Lantai
1 Lantai 2

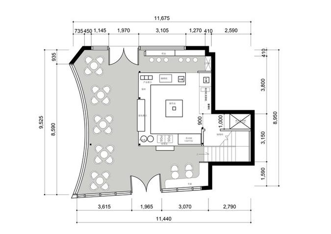
Alternatif

Kelebihan :

Terdapat taman disisi samping bangunan yang dapat menjadi area hijau dan menciptakan view tersendiri bagi pengguna.

area bakery and cafe dan area produksi diposisikan saling berkaitan. Mushalla berada di bagian tengah agar saling berdekatan baik dari area workshop maupun bakery and cafe. Area workshop diposisikan jauh dari jalan agar kebisingan dari arah jalan dapat diminimalkan

Kekurangan :

Hanya terdapat 1 toilet, namun terletak ditengah bangunan sehingga dapat dijangkau dari segala sisi.

2 (Terpilih)
Batas GSJ Batas GSB Area bakery and cafe Area produksi
Area
baking workshop Ruang manager Mushalla Toilet Parkiran Taman Keterangan : Lantai 1 Lantai
2

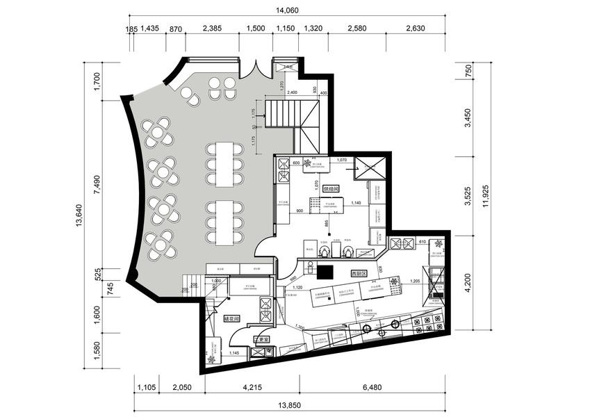
Alternatif

:

Kelebihan :

Area bakery and cafe dan area produksi diposisikan saling berkaitan. Mushalla berada di bagian tengah agar saling berdekatan baik dari area workshop maupun bakery and cafe. Area workshop diposisikan jauh dari jalan agar kebisingan dari arah jalan dapat diminimalkan.

Kekurangan :

Tidak terdapat area hijau dibelakang maupun disamping bangunan. Posisi toilet yang cukup berdekatan.

Batas GSJ
Batas
GSB
Area bakery and cafe Area produksi Area baking
workshop Ruang manager Mushalla Toilet Parkiran Taman
Keterangan
3
Lantai
1
Lantai
2

konsep desain

Fasad bangunan akan menggunakan konsep sustainability design, dengan memanfaatkan limbah dari produksi bakery yaitu berupa kaleng mentega. Selain itu klien juga meminta agar dipadukan dengan material alam seperti bambu atau kayu. Serta dilakukan penyesuaian agar bangunan dapat sesuai dengan konteks lingkungan dan iklim yang ada.

alternatif desain 1

KETERANGAN :

ARAH MATA ANGIN (SELATAN)

U

Denah

Lantai 2

Tampak Belakang

Tampak Samping Kanan Tampak Samping Kiri

Potongan

Bambu Kaleng mentega

alternatif desain 2

Site Plan

KETERANGAN :

GSJ GSB BATAS LAHAN ALUR MASUK & KELUAR
ARAH MATA ANGIN (SELATAN)
U

Potongan

Bambu Kaleng mentega Vertical garden

alternatif desain 3

Site Plan

KETERANGAN :

ARAH MATA ANGIN (SELATAN)

U
Denah Lantai 1

Denah Lantai

Denah Lantai 3

2

Potongan

Bambu Kaleng mentega Vertical gareden

referensi

https://www.archdaily.com/883320/original bakery d plus space design https://www.archdaily.com/936534/neon-bakery-and-coffee-studio-2pi-architecture https://peraturan bpk go id/Home/Details/166010/perbup-kab-sleman-no-3-tahun-2021 https://www.meteoblue.com/en/weather/week/sleman indonesia 1626754 http://e journal.uajy.ac.id/9043/4/3TA14044.pdf http://www.rumahjogjaindonesia.com/isi-majalah/tentang-garis-sempadan-jalan-terhadap-bangunan-dikabupaten-sleman html

Turn static files into dynamic content formats.

Create a flipbook
Issuu converts static files into: digital portfolios, online yearbooks, online catalogs, digital photo albums and more. Sign up and create your flipbook.
ADS 1- F_UTS - Design Report_20512243_Bakti Nusantara by Baktinusantara - Issuu