Architecture Portfolio - 2024

Page 1


Benjamin Guillen

Architecture Portfolio

I acknowledge the Whadjuk people of the Noongar nation as the Traditional Custodians of the land on which I live, work, and create. I pay my respects to Elders past, present, and emerging, and recognise their continuing connection to country, culture, and community. I honor the Noongar people's enduring relationship with this land, which remains signi cant today.

01//Acknowledgement of Country

Contents

P4//Resume

P5//North Perth Residence

P13//NAB 60 King William

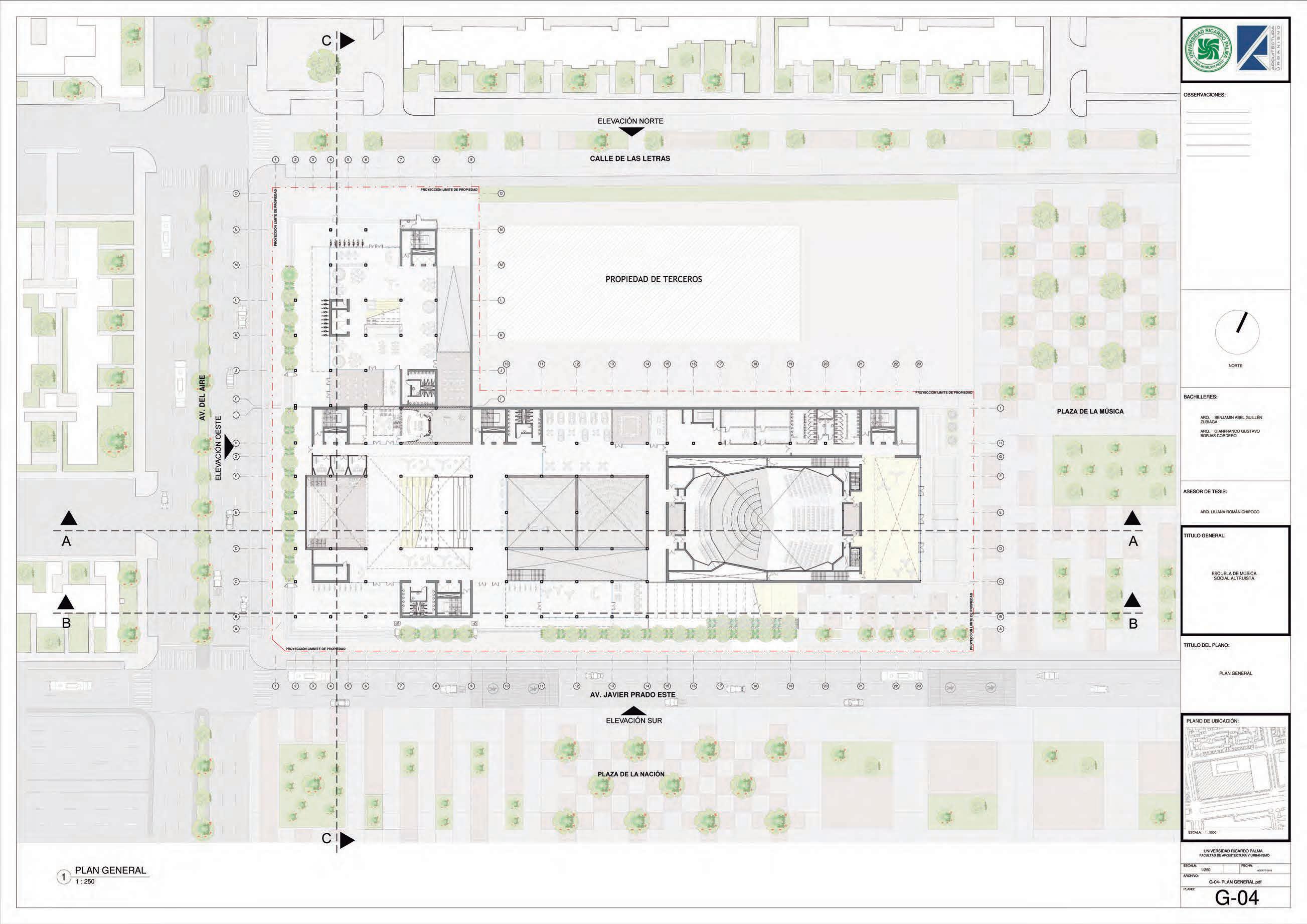
P21//Social-Altruist Music School

P31//’Mama Cocha’ - Sustainable housing

P39//30 Modular Schools in Huanuco

I'm Ben, a professional in architecture and design with over 8 years of experience both locally in Western Australia and overseas in Peru. My diverse portfolio encompasses education, cultural, residential, and commercial projects, re ecting my adaptability and versatility.

I'm driven by meticulous attention to detail and a strong commitment to creating designs that positively impact end-users. Functionality, sustainability, and aesthetics guide my approach, as I believe that architecture can transform lives and communities.

Let's connect and work together to shape a better future through thoughtful design.

Skills

AutoCad Enscape

Revit Lumion

ArchiCad Twinmotion

Rhinoceros Grasshoper

Education

Adobe Suite

Microsoft Suite

Languages

English

Spanish

Portuguese Italian

2023 Overseas Quali cation Assessment

Architects Accreditation Council of Australia - Australia

2019 Honorous Degree in Architecture

(Architect Quali cation)

Ricardo Palma University - Lima,Peru

2015 Bachellor Degree in Architecture

Ricardo Palma University - Lima,Peru

Experience

2022 - Present Experienced Graduate of Architecture

SCA Architecture Studio - Perth, WA

2021-2022 Engineering Draftsperson

APC Engineers - Perth, WA

2018-2019 Project Architect

Berenguel & Acevedo Associates - Lima, Peru

2015-2017 Project Architect

Arquitectura Verde - Lima, Peru

2014 Intern - Jr Architect

51-1 Arquitectos - Lima, Peru Awards

2018 National Contest - ‘Construye para Crecer’ Second Place

Project Architect at Arquitectura Verde

2017 Public Contest - ‘Mercado El Ermitano’ First Place

Project Architect at Arquitectura Verde

https://www.archdaily.pe/pe/805612/primer-lugar-concurso-mercado-el-ermitano-independencia-lima-arquitectura-verde

Click here for Archdaily Publication

COLOURS AND MATERIALS SCHEDULE

CUSTOM ORB WALL LINING

MATERIAL: CORRUGATED STEEL SHEETING

COLOUR: SURFMIST (WHITE)

LOCATION: EXTENSION VOLUME, EXTERIOR WALL FINISH AND ROOF

NATURAL CONCRETE FINISH

MATERIAL: CONCRETE

COLOUR: NATURAL

LOCATION: NEW PLANTERS, KERBS AND SLABS

COMPOSITE TIMBER CLADDING

MATERIAL: RECYCLED WOOD FIBRE AND PLASTICS

COLOUR: TIMBER LOOKING

LOCATION: PROTRUDING FEATURE WINDOW

EXPOSED AGGREGATE CONCRETE

MATERIAL: DECORATIVE AGGREGATE CONCRETE

COLOUR: LIGHT GREY

LOCATION: NEW OUTDOOR AREA FLOORING AND NEW STEPS

NAB 60 King William Adelaide Branch

2023 - Adelaide, South Australia

Experienced Architectural Graduate

SCA Architecture Studio

NAB 60 King William, NAB's main branch in Adelaide, is situated in the CBD within a designated heritage zone. The design, led by SCA Architecture Studio, focuses on integrating modern banking functionality with histori cal preservation .

The project navigates strict heritage regulations while aligning with the overall design intent of the newly built complex designed by COX Architects.

Bespoke solutions were developed speci cally for this branch, ensuring a distinctive banking environment that honors its historical context.

ADELAIDE BRANCH
AXONOMETRIC VIEW 2
AXONOMETRIC VIEW 1

EXTERIOR GLAZING

EXISTING MULLION

ALUMINIUM ANGLE. POWDERCOAT TO MATCH. DOUBLE SIDED STRIP TAPE AND SILICONE CAULKING.

NEW SANDSTONE SILL BY LESSOR

EXTERIOR

SILICONE JOINT

FOLDED 3mm THICK ALUMINIUM SILL GLUED TO SANDSTONE. SILICONE CAULK. POWDERCOAT TO MATCH

ALUMINIUM ANGLE. POWDERCOAT TO MATCH. DOUBLE SIDED STRIP TAPE AND SILICONE CAULKING.

EXISTING MULLION

EXTERIOR GLAZING

EXTERIOR

PAINTED MDF/PLASTERBOARD BUILD CONTINUE ALONG FULL LENGTH OF SHOPFRONT. TO MATCH EXISTING TENANCY.

ALIGN TO BUILD OUT PILLARS TO CONTINUOUS SURFACE.

INTERIOR

EXISTING FRAMELESS DOUBLE AUTOMATIC DOORS

SF1 SKIRTING BEYOND TO CONTINUE ALONG FULL LENGHT OF

ALUMINIUM PRESSING, ALIGN WITH
ALUMINIUM ANGLE. POWDERCOAT TO MATCH. DOUBLE SIDED STRIP TAPE AND SILICONE CAULKING.
ALUMINIUM PRESSING, ALIGN WITH EXTERIOR ALUMINIUM ANGLE. POWDERCOAT TO MATCH. DOUBLE SIDED STRIP TAPE AND SILICONE CAULKING.
SHOPFRONT.

EXTERIOR INTERIOR

FIN BEHIND MULLION BEHIND

90 x 40 x 1.6 ALUMINIUM ANGLE. POWDERCOAT TO MATCH. DOUBLE SIDED STRIP TAPE AND SILICONE CAULKING.

ADDITIONAL FLASHING 1.2mm SEALED TO EXISTING DOOR AND SANDSTONE-

FOLDED 3mm THICK ALUMINIUM SILL. POWDERCOAT TO MATCH. REPLICATE SIMILAR DETAIL FOR UPPER PART OF DOOR

WEEP HOLE, LEAVE FRONT OF PRESSING OPEN.

NEW SANDSTONE SILL BY LESSOR

ALUMINIUM FLAT BAR TO SUIT, ALIGN WITH EXTERIOR ALUMINIUM ANGLE. POWDERCOAT TO MATCH. DOUBLE SIDED STRIP TAPE AND SILICONE CAULKING.

EXISTING FRAMELESS DOOR

PAINTED MDF/PLASTERBOARD BUILD OUT TO CONTINUE ALONG FULL LENGTH OF SHOPFRONT. TO MATCH EXISTING ONES ON TENANCY. ALIGN TO BUILD OUT PILLARS TO ENSURE A CONTINUOUS SURFACE. SILICONE CAULKING

SF1 SKIRTING TO CONTINUE ALONG FULL LENGHT OF SHOPFRONT

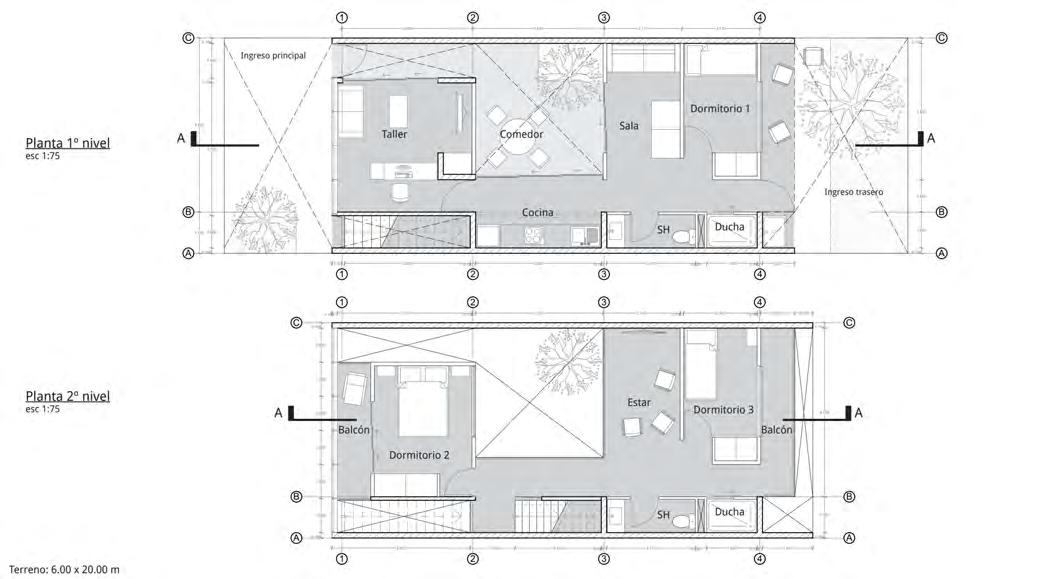
Mama Cocha Sustainable Housing

2017 - Iquitos, Peru

Project Architect Arquitectura Verde

‘Mama Cocha’ project is an innovative urban plan for sustainable social housing in Iquitos, Peru, designed to combine traditional architecture with contemporary concepts. This initiative fosters a strong connection between the built environment and the natural rainforest surroundings.

Emphasizing community dynamics and social interaction, the design re ects local indigenous practices. Housing units are arranged in a "serpent" formation, sharing side walls to reduce costs and construction time, while integrating public spaces for recreation and local commerce.

By addressing Iquitos' challenges of limited public spaces and cultural identity, "Mama Cocha" promotes sustainable urbanism that enhances residents' quality of life and strengthens community ties.

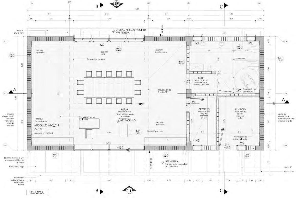
30 Modular Schools in Huanuco

2015 - Huanuco, Peru

Project Architect Arquitectura Verde

This project involved designing 30 modular schools to improve education access in rural Huánuco, Peru; where over 50% of children previously lacked infrastructure.

Funded by the Ministry of Education of Peru and the Inter-American Development Bank, the initiative connects communities through small schools, addressing poverty and long travel distances.

Focusing on the indigenous population, which comprises 42.9% of Huanuco's residents, the design incorporates community engagement, cultural awareness, and environmental sustainability.

The modular approach fosters exibility and creates public spaces that enhance social interaction and support community well-being.

43//30 Modular Schools in Huanuco
Modular Schools in Huanuco

Turn static files into dynamic content formats.

Create a flipbook
Issuu converts static files into: digital portfolios, online yearbooks, online catalogs, digital photo albums and more. Sign up and create your flipbook.