University of Arizona Nano Fabrication Center

Page 1


TOWARD AN ECONOMIC POWERHOUSE

• Accelerate technology transfer and startup formation

• Boost economic competitiveness

• Improve national security

• Reduce dependence on overseas production

• Support regional development and high-paying jobs

• Establish a workforce pipeline

Industry Users

Intel, Pacific Northwest National Laboratory, Araca, Micro-Hybrid Electronics, Leonardo, Arizona Optical Metrology, Norcon Technologies, Cactus Materials, BASF, IRLabs, Wolf Biotech, Edgehog Advanced Technologies, Lockheed Martin, Strike Photonics

Academic Institutions

University of Arizona, Arizona State University, Northern Arizona University, Rio Salado College, Pima Community College, Central Arizona College, Chandler Unified School District, Pima JTED

CONTACT

Funding Sources

Arizona Commerce Authority, State of Arizona, U of A, private contributions

NANO FABRICATION CENTER

Premier cleanroom for universities, government labs, companies

Capabilities in semiconductors, MEMS, optics, bioengineering, thermodynamics

Platform for experimentation, prototyping, product development

CLEANROOM CAPABILITIES

At the forefront of technology

• Silicon Processing

• Micro-Electrical-Mechanical Systems (MEMS) and Fabrication

• Micro-Scale Electronics

• Optoelectronics

• Microfluidics

• Device Characterization

COLLABORATION AT THE CORE

Servicing the state's semiconductor ecosystem

As part of the University of Arizona's Center for Semiconductor Manufacturing, the facility is a single point of contact for collaboration. With researchers and industry working together, the Nano Fabrication Center is bridging the gaps between discovery, technology transfer and commercialization.

EXCELLENCE IN CHIP MANUFACTURING

Etching

Lithography

Deposition/Growth

Chemical/Mechanical Polish

Metrology

Packaging

Partners work across technology domains, from device design and prototyping to process optimization and quality control. The facility is open to users from industry, government labs and other research institutions for short- and long-term use – including for ITAR/Defense-related projects – on site or remotely.

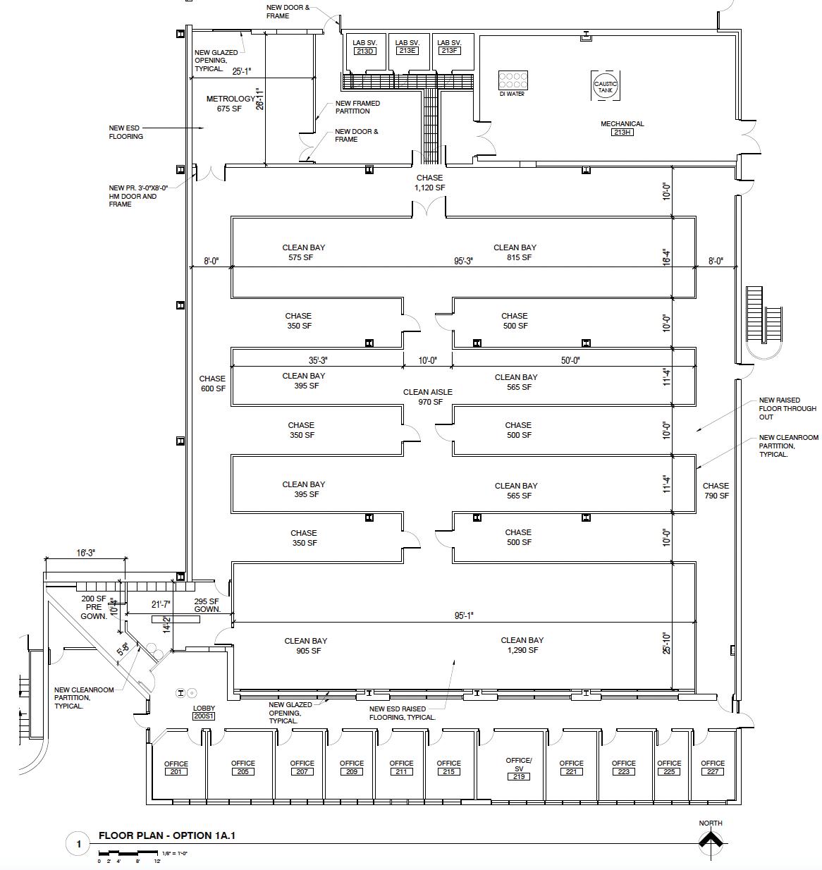
FACILITY EXPANSION

Top-quality systems for air circulation, environmental control, acid neutralization and water softening ensure the very best conditions for precision manufacturing.

$30M RENOVATION

6,475 SQ FT CLEANROOM BAY

COMPLETION DEC. 2025

Turn static files into dynamic content formats.

Create a flipbook
Issuu converts static files into: digital portfolios, online yearbooks, online catalogs, digital photo albums and more. Sign up and create your flipbook.
University of Arizona Nano Fabrication Center by University of Arizona College of Engineering - Issuu