Aurora C. Ruvalcaba Fall 2023 Architecture Portfolio

Page 1

ARCHITECTURAL PORTFOLIO

AURORA C. RUVALCABA

FALL 2019 - FALL 2023

AURORA C.

RUVALCABA

Contact:

Phone : 817.235.4922

Email:

aurora.c.ruvalcaba04@gmail.com

Education:

2024

Masters off Architecture

University of Texas at Arlington

Arlington, Texas

2019 - 2023

Bachelors of Architecture

University of Texas at Arlington Arlington, Texas

2017 - 2019

Associates of Arts Degree

Tarrant County College Fort Worth, Texas

Skills:

Bilingual: Spanish and English

Software Efficiency:

Microsoft Suite

Adobe Suite

Rhino

Lumion

Autocad

Revit

Sketchup

0
1 2 3 4 5 2
TABLE OF CONTENTS 3 01 - Incubator for Knowledge Experience 4 - 16 Fall 2023 - Stephen Knowles 02 - UniverCity 18 - 29 Territorial 18 Urban 22 Architectural 26 Fall 2022 - Oswald Jenewein 03 - Cite De Arts Expansion 30 - 35 Spring 2022 - Jason Cantrell
- Incubation for Emergency Housing 36 - 40 Fall 2021 - Bang Dang 05 - Precedent Study 1 - Perot Museum 41 Fall 2021 - Bang Dang 06 - Mechanical Enhancement 44 - 46 Fall 2021 - Tom Rusher 07 - Precedent Study 2 - Walden 46 Pond Visitor Center Fall 2021 - Charles Macbride 08 - Casa Patio 48 - 50 Spring 2021 - Juan Carlos Gomez
04

01

Incubator for Knowledge Exchange

Proposal for improvements to an Innovation District’s physical assets to improve walkable access through public space on Main Street in South Fort Worth, Texas. An investigation of open-source culture imbedded in a health-oriented innovation district and how it can transfigure its urban & architectural typologies

ARCH - 5670

Advanced Design Studio 1

Professor: Stephen Knowles Fall 2023

Programs Used: Revit, Rhino, Photoshop, Lumion, Indesign, Autocad

Looking more thoroughly into the area, it was found that there is a tie between restaurants & coffee shops and bars, both being at 37% of the food culture of the area. Another thing that was discovered that the ages that are most prominent within the area are Ages 25 - 34 being at 18% and Ages 35 - 44 at 14%. The research also led to the information that the majority of the people who live in the area are predominately Hispanic or Latino being at 46.1% in comparison to the rest of Fort Worth, the highest populated race being white or non-Hispanic at 38.2%.

The analysis led to the finding that there is only one local market within the 1/2 mile and 10 minute radius that are shown above, which means that people are most likely needing to travel out of the 10 minute drive radius to be able to achieve more fresh food. There is also no community garden within the area, the closest community garden that is near the site is at a distance of 1.8 miles away. The only problem is that it is within a residential area.

4

ANALYSIS

FOOD

KEY

RESTAURANTS / COFFEE

DESSERT

BAR

GROCERY / PHARMACY

FOOD TRUCKS

PARKING LOTS

FOOD DEMOGRAPHICS

AGE DEMOGRAPHICS

COMMUNITY GARDEN

DISTANCE: 1.8 miles

5
36
10
7
minutes
minutes
minutes

With the information obtained from the analysis, the idea of having the site will be used by the local people to Connect & Grow. The site would be used to connect with others who live or own a business in the area to be able to grow personally. It would also be used to grow food near their home, so they’re able to reach fresh food within a reasonable budge, along with being able to take part of classes that would be open for anyone in the area, so they could take a full advantage of the site for the betterment of the community and themselves. The space would become a community space that will be shared and open for anyone and everyone to use. It would also be part of a series of proposals for changes within the area, for the betterment of the city, area, and people within.

With the changes within the site and the surrounding areas, would transform the community in the way it would help expose people to other things happening around them, while also learning and growing new things for the betterment of themselves and the community around them.

6

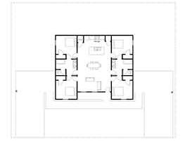
FLOOR PLANS

1 - Gallery

2 - Loading Dock

3 - Restroom

4- Studio

5 - Storage

6 - Classroom

7 - Lobby

8 - Plaza

9 - Library

3 - Restroom

10 - Mechanical Room

FIRST FLOOR UNIT FIRST FLOOR UNIT SITE PLAN
1 9 3 3 2 3 3 4 5 6 7 8
8
10

1 - Gallery

3 - Restroom

11 - Conferece Rooms

12 - Huddle Rooms

13 - Coworking space

8 - Library

14 - Wet Lab

15 - Dry Lab

16 - Maker’s Lab

20

TOP FLOOR 16 15 14 3 3 9 13 11 17 17 12 3 3 1 10 3 3 18 19 3 3 20 21 3 3
10 - Mechanical Room
- Restroom 17 - Reception 18 - Venue
Kitchen
Restroom
3
19 -
3 -
17 - Recption
- Recreational Space
9
21 - Community Garden

AXONOMETRIC VIEWS & DIAGRAMS

AXONOMETRIC PLAN VIEW 10
GROW CONNECT CONNECT AND GROW DIAGRAM
PUBLIC SPACE
PUBLIC SPACE 12
CIRCULATION AXONOMETRIC DIAGRAM VERTICAL CIRCULATION HORIZONTAL CIRCULATION
AXONOMETRIC DIAGRAM
13
LONGITUDINAL SECTION
ELEVATIONS & SECTIONS
NORTH ELEVATION CROSS SECTION 1 CROSS SECTION 2
SITE RENDERED VIEW
MAIN ENTRANCE EXTERIOR VIEW 14
ROOF TOP PERSPECTIVE VIEW AERIAL REDERED VIEW
15
PERSPECTIVE EXTERIOR VIEW VENUE SPACIAL VIEW RECREATIONAL SPACE SPACIAL VIEW

WITHOUT CONTEXT

EAST VIEW OF MODEL NORTH EAST VIEW OF PHYSICAL MODEL IN CONTEXT NORTH VIEW OF PHYSICAL MODEL IN CONTEXT

“GOOD ARCHITECTURE

LETS NATURE IN”

02

UniverCityTerritorial

The current University and Healthcare imbalance within urban and rural Texas show great disadvantages to both people from minority and low-income backgrounds throughout the state. This proves that there is inequality within the state for higher education and healthcare.

With the creation of cities with a focus on health and education within the center of the cities, improved health and education levels throughout the population of Texan citizens will increase and balance the disparity between the different classes/races/minority considerations that currently exists.

ARCH - 4556

Design Studio: Architecture 3

Professor: Oswald Jenewein

Fall 2022

Programs Used:

Indesign, Illustrator, Rhino, Photoshop

18

Rural Texas Without Adequate Healthcare

Rural communities in Texas are generally less healthy than the rest of the state, Which tends to bring a higher experience of substance abuse, obesity, suicide and unintentional deaths. Even though 70% of Texas’ communities are rural, they have lost over half of their hospitals since 1960; 27 closed since 2010, leaving a shortage of primary care physicians. Nearly 75% of Texas’ counties identify as Healthy Professional Shortage Areas and/or Medically-Undeserved Areas. A prediction for the demand of primary care physicians shows it will increase by 67% by the year of 2030 which can lead to a deficit of 3,375 healthcare providers.

EDUCATION AS A STRATEGY FOR HEALTHY URBAN

Working Age (19 - 64) Uninsured by Ethnicity
Proportion of Adults in Rural and Urban Areas with Chronic Conditions, by Gender
Working Age (19 - 64) Uninsured by Gender
Society Analysis Of Data
Information Taken From ReportingTexas.com Data Extracted From the Texas Medical Association, Healthline Data Extracted From Center On Aging
19

Obesity in Texas

34.8% of adults in Texas are obese. Obesity can connect to other health issues; Diabetes and Heart Disease being the two most common ones. There are 1,962,059 adults in Texas that are both Diabetic and Obese, and 1,261,654 people that suffer from heart diseas as well as obesity. Obesity

Data Extracted From American Hospital Directory, Houston Medical in Jackson County Hosptal

Data Extracted From American Hospital Directory, Houston Medical in Jackson County Hosptal

Data Extracted From AnnualReviews.org

Population with High School Degree or Higher in Texas Over The Age of 25

Data

The image is a map of Victoria, Texas showing the distances between hospitals within the Victoria, Texas limits. It can be classified as an ideal rural town due to its abundance of colleges and hospitals within the town.

Target Areas

The diagram shows elevated green spaces as target areas to build cities with a focus on hospitals and college. They are targeted due to its limited resources and access to hospitals and colleges. These areas have a 30 minute or more travel time to be able to reach one of these services.

Census.org 20
Extracted From

The map shows the closest Hospital from Nixon, Texas. There is a small clinic within the limits of Nixon, but for someone who would need severe and urgent care would need to drive 1 hour away from Nixon, Texas.

locations due to the scarcity of resources and services in the area. The nearest hospital is 30 - 40 minutes away from Nixon being two towns away. There are two public schools in the area that are shared with Smiley, Texas

The map shows the closest college from Nixon, Texas. There is no higher education campuse within the limits of Nixon, Texas, leaving an experimental college station being the closest college from Nixon, being a 30 minute drive to the closest college.

Data Extracted From Census.org Data Extracted From Census.org
Population with Bachelors Degree or Higher in Texas Over The Age of 25 Educational Attainment Rate in Nixon, Texas.
21

02

UnivercityUrban

The Univercity drawing shows a 15 minute city in which a person will be able to have an active lifestyle within the city.

The citizens will be able to take about a 15 minute walk to reach the university and access healthcare resources as well as other remaining resources that are offered within the city.

There would be limited parking spaces to be within the city to promote pedestrian movement.

ARCH - 4556

Design Studio: Architecture 3

Professor: Oswald Jenewein Fall 2022

Programs Used: Indesign, Illustrator, Rhino, Photoshop

22
2020
2040 2060 2080
23
2100

Design Ideas and Rules

Univercity follows a spiral shape to create a city that revolves around a central point and allows for open space at the same time.

The shape of the spiral is parametically generated in Grasshopper as the result of the following rules:

1. Spirals are growing out of a starting point, which is the community hub in the form of a tower.

2. The minimum width of the spiral is 10 meters.

3. The spirals cannot overlap

4. The density of the spirals decreases as further the spirals go out.

5. The length of one part of the spiral is about a 15 minute walking distance so is the distance between the community hubs.

Three Towers Designs

The community hub designs include not only schools and hospitals, but also commercial use within the tower.

Axonometric View

24
Zoomed in view of the housing, showing entries on the roof level 15 Minute Walkways Univercity is connected undergrounnd throught trains. In the pedestrian zone, three stations are located from which you can enter the central towers as wel as the train system. Zoomed in view of the stations in the pedestrian zone that give access to the towers and the underground circulation. Zoomed in view of the parking lots located outside of the pedestrian zone to allow parking for the residents and visitors. Perspective View of Towers Perspective View of Tower 1
25
Aerial View of Univercity Design

02

UnivercityArchitectural

The homes within Univercity will also promote walkable movement within the house. It is done so with a multi- level home with circulation within the program of the house. There is also an entrance towards the walkway on the roof which connects all the homes with the city resources inside the city.

ARCH - 4556

Design Studio: Architecture 3

Professor: Oswald Jenewein Fall 2022

Programs Used: Indesign, Illustrator, Rhino, Photoshop

26

Existing Housing Typology

The existing housing typology within the New Texas Triangle does not promote a healthy and active life style. The plans are banal and do not give the opportunity to stay healthy within the home itself.

The existing housing typologies found are studio apartments, student housing, and single family housing.

New Housing Typology

Each unit was designed with movement in mind within. Because of that, the units are designed with split level designs, in which each level has the necessary living requirements but also with a different purpose within.

The housing typology allows the homeowner to be active and healthy in the home while doing everyday activities.

The levels go from the living areas, office, secondary bedroom, master bedroom, activity room, and an entrance to the roof walkway.

The movement between levels will help burn calories and keep the home owner healthy and happy. Each step burns 0.17 calories, multiple trips up and down the stairs will burn up to hundreds of calories without leaving the home.

The home provides an activity room where the home owner can exercise or connect through VR to the education services provided Univercity.

27
ARCHITECTURE SCALE

Student Housing

Square Footage: 1353 sq ft

Lot Size: 5000 sq ft

Lot Percentage: 27%

Design Rules

The following are the design rules used to create the new housing typologies for Univercity.

Studio Housing

Square Footage: 750 sq ft per unit

Lot Size: 3000 sq ft

Lot Percentage: 25%

1. A central light well will be present and unobstructed from the ground floor to the roof.

2. The stairs will be adjacent to the light well.

3. Different programs in the house will be moved to a different level.

4. Each split level will have a five foot separation in height from the level across the light well.

5. The house will have access to the roof walk and bike path connecting the houses.

Private

Shared

Stairs

Bathroom

Parking

Single Family Housing

Square Footage: 1817 sq ft

Lot Size: 20000 sq ft

Lot Percentage: 9%

The diagrams are circulation throughout each level of the base design for the existing and new housing typology. The diagrams show how one can move through the house and the correlation of each room to the next.

Entrance Floor Plan Key Int. Ext. Circulation
Existing Housing Typology
Room
Room
28
New Housing Typology Base Design Base Design Diagram Two Story Design Single Family Design Roof Floor Plan Roof Floor Plan Roof Floor Diagram Third Floor Plan Third Floor Diagram Second Floor Plan Second Floor Diagram First Floor Plan First Floor Diagram Roof Floor Plan Second Floor Plan First Floor Plan Third Floor Plan Second Floor Plan First Floor Plan 29

03

Cite De Arts Expansion

Featuring three courtyards throughout the expansion with a slight topographic elevation in front of the outdoor theatre, a brise soleil facing the East, South and West façades aiding the sun control into the building.

Obscure glass within the galleries to help dilute the lighting coming in from the courtyards.

ARCH - 3554

Design Studio: Architecture 2

Professor: Jason Cantrell Spring 2022

Programs Used: Revit, Autocad, Indesign, Photoshop, Lumion

1” - 20’ First Floor 1” - 20’ Second Floor
30

1” - 20’

Site Plan

Longitudinal Section

Cross Section

31
Elevation Render of Main Entrance Courtyard
32
Elevation Render of Main Entrance Courtyard Perspective Render of Main Entrance Courtyard
33
Perspective Render in the Pool Courtyard
34
South East Perspective View of Main Addition Top View of Addition & Context
35
Perspective View Facing East of Site

04

ARCH - 3551

Third

Incubation for Emergency Housing

Design, Production, and selling of emergency rapid housing.

Incubator for Emergency Housing Design, Production, and selling of emergency rapid housing.

Incubator for Emergency Housing Design, Production, and selling of emergency rapid housing.

Incubator for Emergency Housing Design, Production, and selling of emergency rapid housing.

Design Studio: Architecture 1

Professor: Bang Dang Fall 2021

ARCH - 3551

ARCH - 3551

ARCH - 3551

Design Studio: Architecture I

Design Studio: Architecture I

Design Studio: Architecture I

Programs Used: Revit, Autocad, Indesign, Photoshop, Lumion

Professor: Bang Dang

Professor: Bang Dang

Professor: Bang Dang

Fall 2021

Fall 2021

Fall 2021

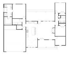
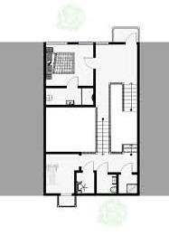
Floor Plan
Floor Plan
Floor Plan
Second
First
36
East Elevation South Elevation
37
West Elevation North Elevation Longitudinal Section Perspective Rendered View of Exterior Perspective Rendered View of Exterior Perspective Rendered View of Interior
39
Perspective Section Perspective View of Model
40
Perspective View of Model

Fourth Floor

Precedent Study 1

Perot Museum

Architects: Morphosis

Year: 2012

Location: Dallas, Texas

Fifth Floor

Sixth Floor

First Floor

Perot Museum was design to bring low-income families a public education about Nature and Science by having multi-sensory, immersive learning environments throughout the six floors of the building.

Precedent Study 1

Second Floor

Third Floor

Perot Museum

05

ARCH - 3551

Precedent Study 1

Design Studio:

Perot Museum

Architects: Morphosis

Architecture I

Fall 2021 - 3551

Professor: Bang Dang

Year: 2012

Architects: Morphosis

Year: 2012

Fall 2021

Design Studio: Architecture I

Location: Dallas, Texas

Location: Dallas, Texas

Professor: Bang Dang

Perot Museum was design to bring low-income families a public education about Nature and Science by having multi-sensory, immersive learning environments throughout the six floors of the building.

Fall 2021

ARCH - 3551

Precedent Study 1

Design Studio:

The Perot Museum was designed to bring low-income families a public education about Nature and Science by having multi-sensory, immersive learning environments thrughout the six floors of the building.

Perot Museum

Architecture I

Fall 2021 - 3551

Professor: Bang Dang

ARCH - 3551

Architects: Morphosis

Design Studio:

Fall 2021

Design Studio: Architecture I

Year: 2012

Professor: Bang Dang Fall 2021

Architecture I

Location: Dallas, Texas

Professor: Bang Dang

Fall 2021

Longitudinal Section

Perot Museum was design to bring low-income families a public education about Nature and Science by having multi-sensory, immersive learning environments throughout the six floors of the building.

ARCH - 3551

FIRST FLOOR SECOND FLOOR THIRD FLOOR FOURTH FLOOR FIFTH FLOOR SIXTH FLOOR
FIRST FLOOR SECOND FLOOR THIRD FLOOR FOURTH FLOOR FIFTH FLOOR SIXTH FLOOR
FIRST FLOOR SECOND FLOOR THIRD FLOOR FOURTH FLOOR FIFTH FLOOR SIXTH FLOOR
41

Mechanical Enhancement

Mechanical Enhancement

Mechanical Enhancement

06

Mechanical Enhancement

Used the mechanical structure, design and planning of a battle ship to help redesign a new interruption of movement within. With the structure and acknowledgment of the mechanical design, it was then used to bring it more natural and biological movement within the final design.

ARCH - 3343

Computer Graphics

Professor: Tom Rusher Fall 2021

Used the mechanical structure, design and planning of a battle ship to help redesign a new interruption of movement within. With the structure and achnologement of the mechanical design, it was then used to bring it more natural and biological movement within the final design.

Used the mechanical structure, design and planning of a battle ship to help redesign a new interruption of movement within. With the structure and achnologement of the mechanical design, it was then used to bring it more natural and biological movement within the final design.

Used the mechanical structure, design and planning of a battle ship to help redesign a new interruption of movement within. With the structure and achnologement of the mechanical design, it was then used to bring it more natural and biological movement within the final design.

ARCH - 3343:

ARCH - 3343:

Programs Used: Rhino, Autocad

ARCH - 3343:

Computer Graphics

Computer Graphics

Computer Graphics

Professor:

Professor:

Professor: Tom Rusher

Tom Rusher

Tom Rusher

Fall 2021

Fall 2021

Fall 2021

From Elevation Render Interior Perspective View Render
42
Axonometric View Render
Longitudinal Section Third Floor Plan
Disformorsis 43
Cross Section Cross Section Mechanical

07

Presedent Study 2

Walden Pond Visitor Center

Architects: Maryann Thompson

Architects

Year: March 2015 - January 2016

Location: Lincoln, Massachusetts

Client: Massachusetts Department of Conservation and Recreation (DCR)

The Walden Pond Visitor Center was certified in June 22nd, 2017 with a USGBC LEED 2009 New Construction Certification, with 63 points at a Gold level as a Net Zero Energy Building. The Construction focused on reducing the energy usage of space along with increasing the energy conservation.

ARCH - 4395

High Performance Facade Systems

Professor: Charles Macbride Fall 2021

Programs Used:

Rhino, Autocad, Indesign, Photoshop

The Walden Pond Visitor Center was certified in June 22nd, 2017 with a USGBC LEED 2009 New Construction certification, with 63 points at a Gold level as a Net Zero Energy Building. The construction focused on reducing the energy usage of the space along with increasing the energy conservation.

Precedent Study 2

Walden Pond

Center was certified in June 22nd, 2017 with a USGBC

Center was certified in June 22nd, 2017 with a USGBC

LEED 2009 New Construction certification, with 63 points at a Gold level as a Net Zero Energy Building. The construction focused on reducing the energy usage of the space along with increasing the energy conservation.

Visitor Center

LEED 2009 New Construction certification, with 63 points at a Gold level as a Net Zero Energy Building. The construction focused on reducing the energy usage of the space along with increasing the

LEED 2009 New Construction certification, with 63 points at a Gold level as a Net Zero Energy Building. The construction focused on reducing the energy usage of the space along with increasing the energy conservation.

Client: Massachusetts

Department of Conservation and Recreation (DCR)

Dates of Construction: March 2015- January 2016

Location: Concord, Massachusetts

Architect: Maryann Thompson Architects

ARCH 4395 - 003:

High Performance

Facade Systems

Professor: Charles Macbride Fall 2021

Fall/Spring Solstice 9:00 am Fall/Spring Solstice 12:00 pm Fall/Spring Solstice 3:00 pm Summer solstice 9:00 am Summer solstice 12:00 PM Summer solstice 3:00 PM
Winter solstice 9:00 am Winter solstice 12:00 PM Fall/Spring Solstice 9:00 am Fall/Spring Solstice 12:00 pm Fall/Spring Solstice 3:00 pm Summer solstice 9:00 am Summer solstice 12:00 PM Summer solstice 3:00 PM
Winter solstice 12:00 PM Winter solstice 3:00 PM Fall/Spring Solstice 9:00 am Fall/Spring Solstice 12:00 pm Fall/Spring Solstice 3:00 pm Summer solstice 9:00 am Summer solstice 12:00 PM Summer solstice 3:00 PM
Winter solstice 9:00 am Winter solstice 12:00 PM Winter solstice 3:00 PM Fall/Spring Solstice 9:00 am Fall/Spring Solstice 12:00 pm Fall/Spring Solstice 3:00 pm Summer solstice 9:00 am Summer solstice 12:00 PM Summer solstice 3:00 PM
Winter Solstice 9:00 AM Fall/Spring Solstice 9:00 AM Summer Solstice 9:00 AM Winter Solstice 12:00 PM Fall/Spring Solstice 12:00 PM
with
Summer Solstice 12:00 PM Winter Solstice 3:00 PM Fall/Spring Solstice 3:00 PM
Solstice 3:00 PM 44
Cross Section
Solstice Lighting Positions
Summer
“ARCHITECTURE IS JUST ART WE LIVE IN”

Casa Patio

08

Casa Patio

Casa Patio

Design of a house that features a Studio for art, modeling, music and paitings, meanwhile also functioning as a private home.

ARCH - 2552

Design & Draw II

Professor: Juan Carlos Gomez

Spring 2021

In Collaboration with: Christian Cortes

Design of a house that features a Studio for art, modeling, music and paintings; meanwhile also functioning as a private home

Programs Used: Revit, Autocad, Indesign, Photoshop, Lumion

ARCH - 2552

Design of a house that features a Studio for art, modeling, music and paintings; meanwhile also functioning as a private home

Design & Draw II

Professor: Juan Carlos Gomez

ARCH - 2552

Spring 2021

Design & Draw II

Collaboration with: Christian Cortes

Professor: Juan Carlos Gomez

Spring 2021

Collaboration with: Christian Cortes

SECOND

Second

FLOOR PLAN
FIRST
FLOOR PLAN
SECOND
FLOOR PLAN
Floor Plan
Plan
First Floor
46

FIRST FLOOR PLAN

FRONT ELEVATION

Perspective View

PERSPECTIVE VIEW

FRONT ELEVATION

Front Elevation

FRONT ELEVATION

Front Elevation

LEFT ELEVATION

Back Elevation

LEFT ELEVATION

Professor: Juan Gomez 2021
Collaboration with: Cortes
BACK
ELEVATION
47

BACK ELEVATION

Cross Section

FRONT PERSPECTIVE

FRONT PERSPECTIVE

FRONT PERSPECTIVE

INNER PERSPECTIVE

INNER PERSPECTIVE VIEW

FRONT PERSPECTIVE

LONGITUDINAL SECTION

Longitudinal Section

LONGITUDINAL SECTION

INNER PERSPECTIVE

INNER PERSPECTIVE

FRONT PERSPECTIVE

Front Perspective View Render

FRONT PERSPECTIVE

INNER PERSPECTIVE

INNER PERSPECTIVE VIEW

INNER PERSPECTIVE VIEW

INNER PERSPECTIVE VIEW

INNER PERSPECTIVE

INNER PERSPECTIVE VIEW

INNER PERSPECTIVE VIEW

PERSPECTIVE VIEW

PERSPECTIVE VIEW RENDER

PERSPECTIVE VIEW

BACK PERSPECTIVE VIEW

PERSPECTIVE VIEW RENDER

PERSPECTIVE VIEW

PERSPECTIVE VIEW RENDER

Inner Perspective View Render Perspective View Render of Perspective View Render of Exterior
48

Turn static files into dynamic content formats.

Create a flipbook
Issuu converts static files into: digital portfolios, online yearbooks, online catalogs, digital photo albums and more. Sign up and create your flipbook.