Aurora C. Ruvalcaba Fall 2022 Architecture Portfolio

Page 1

ARCHITECTURAL PORTFOLIO

AURORA C. RUVALCABA

FALL 2019 - FALL 2022

AURORA C. RUVALCABA

Contact:

Phone : 817.235.4922

Email: aurora.c.ruvalcaba04@gmail.com

Education: 2023

Senior Architecture Student

University of Texas at Arlington

Arlington, Texas

2017 - 2019

Associates of Arts Degree

Tarrant County College

Fort Worth, Texas

Skills:

Bilingual: Spanish and English

Software Efficiency:

Microsoft Suite

Adobe Suite

Rhino Lumion Autocad Revit Sketchup

0
1 2 3 4 5 2
TABLE OF CONTENTS 3 01 - UniverCity 4 - 15 Territorial 4 Urban 8 Architectural 12 Fall 2022 - Oswald Jenewein 02 - Cite De Arts Expansion 16 - 21 Spring 2022 - Jason Cantrell 03 - Incubation for Emergency Housing 22 - 25 Fall 2021 - Bang Dang 04 - Precedent Study 1 - Perot Museum 26 Fall 2021 - Bang Dang 05 - Art Lab at 2901 Morton St. 27 - 28 Fall 2021 - Bang Dang 06 - Mechanical Enhancement 29 - 30 Fall 2021 - Tom Rusher 07 - Precedent Study 2 - Walden 31 Pond Visitor Center Fall 2021 - Charles Macbride 08 - Casa Patio 34 - 36 Spring 2021 - Juan Carlos Gomez 09 - Precedent Study 3 - Stahl House 37 - 38 Spring 2021 - Juan Carlos Gomez 10 - Precedent Study 4 - Eisenman House 39 Fall 2020 - Heath Macdonald 11 - Precedent Study 5 - Rachofsky House 40 - 42 Spring 2020 - Boback Firoozbacht 12 - Purist Still Life 40 Fall 2019 - Steve Quevedo

UniverCityTerritorial

The current University and Healthcare imbalance within urban and rural Texas show great disadvantages to both people from minority and low-income backgrounds throughout the state. This proves that there is inequality within the state for higher education and healthcare. With the creation of cities with a focus on health and education within the center of the cities, improved health and education levels throughout the population of Texan citizens will increase and balance the disparity between the different classes/races/minority considerations that currently exists.

ARCH - 4556

Design Studio: Architecture 3

Professor: Oswald Jenewein

Fall 2022

01
4

Rural Texas Without Adequate Healthcare

Rural communities in Texas are generally less healthy than the rest of the state, Which tends to bring a higher experience of substance abuse, obesity, suicide and unintentional deaths. Even though 70% of Texas’ communities are rural, they have lost over half of their hospitals since 1960; 27 closed since 2010, leaving a shortage of primary care physicians. Nearly 75% of Texas’ counties identify as Healthy Professional Shortage Areas and/or Medically-Undeserved Areas. A prediction for the demand of primary care physicians shows it will increase by 67% by the year of 2030 which can lead to a deficit of 3,375 healthcare providers.

Information Taken From ReportingTexas.com

EDUCATION AS A STRATEGY FOR HEALTHY URBAN

Working Age (19 - 64)

Uninsured by Ethnicity

Working Age (19 - 64)

Uninsured by Gender

Data Extracted From the Texas Medical Association, Healthline

Proportion of Adults in Rural and Urban Areas with Chronic Conditions, by Gender

Data Extracted From Center On Aging Society Analysis Of Data

5

Obesity in Texas

34.8% of adults in Texas are obese. Obesity can connect to other health issues; Diabetes and Heart Disease being the two most common ones. There are 1,962,059 adults in Texas that are both Diabetic and Obese, and 1,261,654 people that suffer from heart diseas as well as obesity. Obesity

Population with High School Degree or Higher in Texas Over The Age of 25

The image is a map of Victoria, Texas showing the distances between hospitals within the Victoria, Texas limits. It can be classified as an ideal rural town due to its abundance of colleges and hospitals within the town.

Target Areas

The diagram shows elevated green spaces as target areas to build cities with a focus on hospitals and college. They are targeted due to its limited resources and access to hospitals and colleges. These areas have a 30 minute or more travel time to be able to reach one of these services.

Data Extracted From AnnualReviews.org Data Extracted From American Hospital Directory, Houston Medical in Jackson County Hosptal Data Extracted From American Hospital Directory, Houston Medical in Jackson County Hosptal
Data Extracted From Census.org 6

Educational Attainment Rate in Nixon, Texas.

The map shows the closest Hospital from Nixon, Texas. There is a small clinic within the limits of Nixon, but for someone who would need severe and urgent care would need to drive 1 hour away from Nixon, Texas.

locations due to the scarcity of resources and services in the area. The nearest hospital is 30 - 40 minutes away from Nixon being two towns away. There are two public schools in the area that are shared with Smiley, Texas

The map shows the closest college from Nixon, Texas. There is no higher education campuse within the limits of Nixon, Texas, leaving an experimental college station being the closest college from Nixon, being a 30 minute drive to the closest college.

Data Extracted From Census.org Data Extracted From Census.org
Population with Bachelors Degree or Higher in Texas Over The Age of 25
7

UnivercityUrban

The Univercity drawing shows a 15 minute city in which a person will be able to have an active lifestyle within the city. The citizens will be able to take about a 15 minute walk to reach the university and access healthcare resources as well as other remaining resources that are offered within the city.

There would be limited parking spaces to be within the city to promote pedestrian movement.

ARCH - 4556

Design Studio: Architecture 3 Professor: Oswald Jenewein Fall 2022

01
8
2020 2040 2060 2080 2100 9

Design Ideas and Rules

Univercity follows a spiral shape to create a city that revolves around a central point and allows for open space at the same time.

The shape of the spiral is parametically generated in Grasshopper as the result of the following rules:

1. Spirals are growing out of a starting point, which is the community hub in the form of a tower.

2. The minimum width of the spiral is 10 meters.

3. The spirals cannot overlap

4. The density of the spirals decreases as further the spirals go out.

5. The length of one part of the spiral is about a 15 minute walking distance so is the distance between the community hubs.

Three Towers Designs

The community hub designs include not only schools and hospitals, but also commercial use within the tower.

Axonometric View

10
Zoomed in view of the housing, showing entries on the roof level 15 Minute Walkways Univercity is connected undergrounnd throught trains. In the pedestrian zone, three stations are located from which you can enter the central towers as wel as the train system. Zoomed in view of the stations in the pedestrian zone that give access to the towers and the underground circulation. Zoomed in view of the parking lots located outside of the pedestrian zone to allow parking for the residents and visitors. Perspective View of Towers Perspective View of Tower 1
11
Aerial View of Univercity Design

UnivercityArchitectural

The homes within Univercity will also promote walkable movement within the house. It is done so with a multi- level home with circulation within the program of the house. There is also an entrance towards the walkway on the roof which connects all the homes with the city resources inside the city.

ARCH - 4556

Design Studio: Architecture 3 Professor: Oswald Jenewein

Fall 2022

01
12

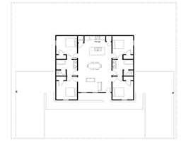
Existing Housing Typology

The existing housing typology within the New Texas Triangle does not promote a healthy and active life style. The plans are banal and do not give the opportunity to stay healthy within the home itself. The existing housing typologies found are studio apartments, student housing, and single family housing.

New Housing Typology

Each unit was designed with movement in mind within. Because of that, the units are designed with split level designs, in which each level has the necessary living requirements but also with a different purpose within.

The housing typology allows the homeowner to be active and healthy in the home while doing everyday activities.

The levels go from the living areas, office, secondary bedroom, master bedroom, activity room, and an entrance to the roof walkway. The movement between levels will help burn calories and keep the home owner healthy and happy. Each step burns 0.17 calories, multiple trips up and down the stairs will burn up to hundreds of calories without leaving the home. The home provides an activity room where the home owner can exercise or connect through VR to the education services provided Univercity.

13 ARCHITECTURE SCALE

Existing Housing Typology

Student Housing

Square Footage: 1353 sq ft

Lot Size: 5000 sq ft

Lot Percentage: 27%

Design Rules

The following are the design rules used to create the new housing typologies for Univercity.

1. A central light well will be present and unobstructed from the ground floor to the roof.

2. The stairs will be adjacent to the light well.

3. Different programs in the house will be moved to a different level.

4. Each split level will have a five foot separation in height from the level across the light well.

5. The house will have access to the roof walk and bike path connecting the houses.

Studio Housing

Square Footage: 750 sq ft per unit

Lot Size: 3000 sq ft

Lot Percentage: 25%

Circulation

Private Room

Shared Room

Stairs

Bathroom

Parking

Single Family Housing

Square Footage: 1817 sq ft

Lot Size: 20000 sq ft

Lot Percentage: 9%

The diagrams are circulation throughout each level of the base design for the existing and new housing typology. The diagrams show how one can move through the house and the correlation of each room to the next.

Plan Key Int. Ext.
Entrance Floor
14
New Housing
Base Design Base Design Diagram Two Story Design Single Family Design Roof Floor Plan Roof Floor Plan Roof Floor Diagram Third Floor Plan Third Floor Diagram Second Floor Plan Second Floor Diagram First Floor Plan First Floor Diagram Roof Floor Plan Second Floor Plan First Floor Plan Third Floor Plan Second Floor Plan First Floor Plan 15
Typology

Cite De Arts Expansion

Featuring three courtyards throughout the expansion with a slight topographic elevation in front of the outdoor theatre, a brise soleil facing the East, South and West façades aiding the sun control into the building. Obscure glass within the galleries to help dilute the lighting coming in from the courtyards.

ARCH - 3554

Design Studio: Architecture 2 Professor: Jason Cantrell

1” - 20’ First Floor 1” - 20’ Second Floor
02
16
1” - 20’ Site Plan
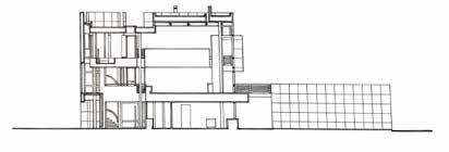
Longitudinal Section
17
Cross Section Elevation Render of Main Entrance Courtyard
18
Elevation Render of Main Entrance Courtyard Perspective Render of Main Entrance Courtyard
19
Perspective Render in the Pool Courtyard
South East Perspective View of Main Addition 20
Top View of Addition & Context
21
Perspective View Facing East of Site

Third Floor Plan

03

Incubation for Emergency Housing

Incubator for Emergency Housing Design, Production, and selling of emergency rapid housing.

Incubator for Emergency Housing Design, Production, and selling of emergency rapid housing.

Incubator for Emergency Housing Design, Production, and selling of emergency rapid housing.

Design, Production, and selling of emergency rapid housing.

ARCH - 3551

ARCH - 3551

ARCH - 3551

ARCH - 3551

Design Studio: Architecture 1

Professor: Bang Dang

Design Studio:

Design Studio:

Design Studio:

Architecture I

Architecture I

Architecture I

Second Floor Plan

Professor: Bang Dang

Professor: Bang Dang

Professor: Bang Dang

Fall 2021

Fall 2021

Fall 2021

First Floor Plan

22

East Elevation

South Elevation

West Elevation

23
North Elevation Longitudinal Section Perspective Rendered View of Exterior Perspective Rendered View of Exterior Perspective Rendered View of Interior
25
Perspective Section Perspective View of Model
26
Perspective View of Model

Fourth Floor

Precedent Study 1

Perot Museum

Architects: Morphosis

Year: 2012

Location: Dallas, Texas

Perot Museum was design to bring low-income families a public education about Nature and Science by having multi-sensory, immersive learning environments throughout the six floors of the building.

First Floor

Precedent Study 1

Perot Museum

04

ARCH - 3551

Precedent Study 1

Design Studio:

Perot Museum

Architects: Morphosis

Fall 2021 - 3551

Architecture I

Professor: Bang Dang

Year: 2012

Architects: Morphosis

Design Studio:

Location: Dallas, Texas

Year: 2012

Fall 2021

Location: Dallas, Texas

Architecture I

Professor: Bang Dang

Perot Museum was design to bring low-income families a public education about Nature and Science by having multi-sensory, immersive learning environments throughout the six floors of the building.

Fall 2021

ARCH - 3551

Precedent Study 1

The Perot Museum was designed to bring low-income families a public education about Nature and Science by having multi-sensory, immersive learning environments thrughout the six floors of the building.

Perot Museum

Design Studio: Architecture I

Fall 2021 - 3551

Professor: Bang Dang

ARCH - 3551

Architects: Morphosis

Design Studio: Architecture I

Fall 2021

Fall 2021

Year: 2012

Professor: Bang Dang

Design Studio: Architecture I

Location: Dallas, Texas

Professor: Bang Dang

Fall 2021

Longitudinal Section

Perot Museum was design to bring low-income families a public education about Nature and Science by having multi-sensory, immersive learning environments throughout the six floors of the building.

ARCH - 3551

FIRST FLOOR SECOND FLOOR THIRD FLOOR FOURTH FLOOR FIFTH FLOOR SIXTH FLOOR
FIRST FLOOR SECOND FLOOR THIRD FLOOR FOURTH FLOOR FIFTH FLOOR SIXTH FLOOR
FIRST FLOOR SECOND FLOOR THIRD FLOOR FOURTH FLOOR FIFTH FLOOR SIXTH FLOOR
Second Floor Third Floor Fifth Floor Sixth Floor
27
Site Plan Perspective
Axonometric View 05 Art Lab 2901 Morton St. Design, Production, and exhibition of the arts. ARCH - 3551 Design Studio: Architecture 1 Professor: Bang Dang Fall 2021 28
View of Model Perspective View of Model
Morton St. Currie St.

Lab

St. and the 3551 Studio: Architecture I

St. and the 3551 Studio: Architecture I

St. and the 3551 Studio: I Bang

East Elevation

South Elevation

St. and the 3551 Studio: I Bang Lab

Lab St. and the 3551 Studio: Architecture I

Bang

St. and the 3551 Studio: I Bang

West Elevation

North Elevation

North Section

29

Bang
Bang
East Section

Mechanical Enhancement

Mechanical Enhancement

Mechanical Enhancement

Used the mechanical structure, design and planning of a battle ship to help redesign a new interruption of movement within. With the structure and acknowledgment of the mechanical design, it was then used to bring it more natural and biological movement within the final design.

ARCH - 3343

Used the mechanical structure, design and planning of a battle ship to help redesign a new interruption of movement within. With the structure and achnologement of the mechanical design, it was then used to bring it more natural and biological movement within the final design.

06

Mechanical Enhancement

Computer Graphics

Used the mechanical structure, design and planning of a battle ship to help redesign a new interruption of movement within. With the structure and achnologement of the mechanical design, it was then used to bring it more natural and biological movement within the final design.

Used the mechanical structure, design and planning of a battle ship to help redesign a new interruption of movement within. With the structure and achnologement of the mechanical design, it was then used to bring it more natural and biological movement within the final design.

Professor: Tom Rusher

Fall 2021

ARCH - 3343:

ARCH - 3343:

ARCH - 3343:

Computer Graphics

Computer Graphics

Computer Graphics

Professor:

Professor:

Professor:

Tom Rusher

Tom Rusher

Tom Rusher

Fall 2021

Fall 2021

Fall 2021

From Elevation Render Interior Perspective View Render
30
Axonometric View Render

Longitudinal Section

Third Floor Plan

Cross Section
Mechanical Disformorsis 31
Cross Section

07 Presedent Study 2 Walden Pond Visitor Center

Architects: Maryann Thompson

Architects

Year: March 2015 - January 2016

Location: Lincoln, Massachusetts

Client: Massachusetts Department of Conservation and Recreation (DCR)

The Walden Pond Visitor Center was certified in June 22nd, 2017 with a USGBC LEED 2009 New Construction Certification, with 63 points at a Gold level as a Net Zero Energy Building. The Construction focused on reducing the energy usage of space along with increasing the energy conservation.

ARCH - 4395

High Performance Facade Systems

Professor: Charles Macbride Fall 2021

Cross Section with Solstice Lighting Positions

The Walden Pond Visitor Center was certified in June 22nd, 2017 with a USGBC LEED 2009 New Construction certification, with 63 points at a Gold level as a Net Zero Energy Building. The construction focused on reducing the energy usage of the space along with increasing the energy conservation.

Center was certified in June 22nd, 2017 with a USGBC

Precedent Study 2 Walden Pond Visitor Center

LEED 2009 New Construction certification, with 63 points at a Gold level as a Net Zero Energy Building. The construction focused on reducing the energy usage of the space along with increasing the energy conservation.

Center was certified in June 22nd, 2017 with a USGBC

LEED 2009 New Construction certification, with 63 points at a Gold level as a Net Zero Energy Building. The construction focused on reducing the energy usage of the space along with increasing the

LEED 2009 New Construction certification, with 63 points at a Gold level as a Net Zero Energy Building. The construction focused on reducing the energy usage of the space along with increasing the energy conservation.

Client: Massachusetts Department of Conservation and Recreation (DCR)

Dates of Construction: March 2015- January 2016

Location: Concord, Massachusetts

Architect: Maryann Thompson Architects

ARCH 4395 - 003: High Performance Facade Systems Professor: Charles Macbride Fall 2021

Fall/Spring Solstice 9:00 am Fall/Spring Solstice 12:00 pm Fall/Spring Solstice 3:00 pm Summer solstice 9:00 am Summer solstice 12:00 PM Summer solstice 3:00 PM
Winter solstice 9:00 am Winter solstice 12:00 PM Fall/Spring Solstice 9:00 am Fall/Spring Solstice 12:00 pm Fall/Spring Solstice 3:00 pm Summer solstice 9:00 am Summer solstice 12:00 PM Summer solstice 3:00 PM
Winter solstice 12:00 PM Winter solstice 3:00 PM Fall/Spring Solstice 9:00 am Fall/Spring Solstice 12:00 pm Fall/Spring Solstice 3:00 pm Summer solstice 9:00 am Summer solstice 12:00 PM Summer solstice 3:00 PM
Winter solstice 9:00 am Winter solstice 12:00 PM Winter solstice 3:00 PM Fall/Spring Solstice 9:00 am Fall/Spring Solstice 12:00 pm Fall/Spring Solstice 3:00 pm Summer solstice 9:00 am Summer solstice 12:00 PM Summer solstice 3:00 PM
Winter Solstice 9:00 AM Fall/Spring Solstice 9:00 AM Summer Solstice 9:00 AM Winter Solstice 12:00 PM Fall/Spring Solstice 12:00 PM
Summer Solstice 12:00 PM Winter Solstice 3:00 PM Fall/Spring Solstice 3:00 PM Summer Solstice 3:00 PM 32
33
“ARCHITECTURE IS JUST ART WE LIVE IN”

Casa Patio

08

Casa Patio

Casa Patio

Design of a house that features a Studio for art, modeling, music and paitings, meanwhile also functioning as a private home.

ARCH - 2552

Design & Draw II

Professor: Juan Carlos Gomez

Spring 2021

Design of a house that features a Studio for art, modeling, music and paintings; meanwhile also functioning as a private home

SECOND FLOOR PLAN

Second Floor Plan

SECOND FLOOR PLAN

In Collaboration with: Christian Cortes

ARCH - 2552

Design of a house that features a Studio for art, modeling, music and paintings; meanwhile also functioning as a private home

Design & Draw II

Professor: Juan

Carlos Gomez

ARCH - 2552

Spring 2021

Design & Draw II

Collaboration with:

Professor: Juan

Christian Cortes

Carlos Gomez

Spring 2021

Collaboration with:

Christian Cortes

FIRST FLOOR PLAN

First Floor Plan

34

Collaboration with: Cortes

FRONT ELEVATION

Perspective View

PERSPECTIVE VIEW

FRONT ELEVATION

Front Elevation

FRONT ELEVATION

Front Elevation

LEFT ELEVATION

Back Elevation

BACK ELEVATION

LEFT ELEVATION

Professor: Juan Gomez 2021
FIRST FLOOR PLAN
35

BACK ELEVATION

FRONT PERSPECTIVE

FRONT PERSPECTIVE

Cross Section

INNER PERSPECTIVE

INNER PERSPECTIVE VIEW

FRONT PERSPECTIVE

FRONT PERSPECTIVE

LONGITUDINAL SECTION

Longitudinal Section

LONGITUDINAL SECTION

INNER PERSPECTIVE

INNER PERSPECTIVE VIEW

INNER PERSPECTIVE

INNER PERSPECTIVE VIEW

PERSPECTIVE VIEW

PERSPECTIVE VIEW RENDER

Front Perspective View Render

FRONT PERSPECTIVE

FRONT PERSPECTIVE

INNER PERSPECTIVE

INNER PERSPECTIVE VIEW

BACK PERSPECTIVE VIEW

INNER PERSPECTIVE

PERSPECTIVE VIEW

PERSPECTIVE VIEW

PERSPECTIVE VIEW RENDER

INNER PERSPECTIVE VIEW

PERSPECTIVE VIEW RENDER

Inner Perspective View Render Perspective View Render of Perspective View Render of Exterior

INNER PERSPECTIVE VIEW

36

Rendered Views

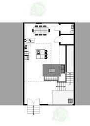
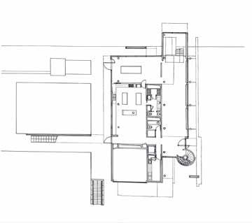
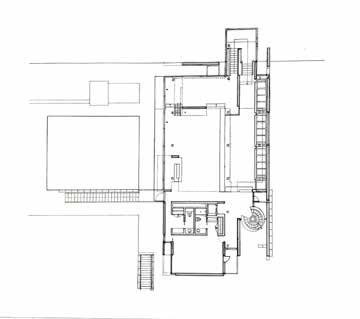
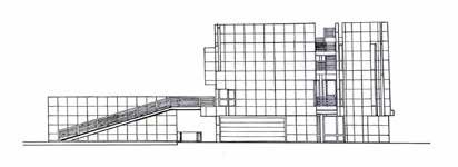
Precedent Study 3 Stahl House

Location : Hollywood, California

Architect : Pierre Koenig

ARCH - 2552 Basic Design & Drawing II Spring 2021

Professor: Juan Carlos Olivar Gomez

Collaboration with: Thanh Pham & Kevin Phan

Precedent Study 3 Stahl House

Architects: Pierre Koenig

Year: 1960

Location: Hollywood, California

The Stahl house was commissioned by C.H. “Buck” and Carlotta Stahl to Architect Pierre Koenig to build a modern family home that is positioned on the cliffside overlooking the city of Hollywood, California.

The Stahl House was designed with floor to ceiling glass walls overlooking the city bellow, which connected the indoor and outdoor living spaces which helped emphasized the idea of a simple yet elegant home.

ARCH - 2552

Design & Draw II

Professor: Juan Carlos Gomez

Spring 2021

In Collaboration with:

Than Pham

Kevin Phan

Rendered Views

View
Plan
living spaces which helped empha
size the idea of a simple yet elegant home. Plan View
Plan View
Axonometric View of Model
09
Model Plan View
37

North Elevation

West Elevation

Precedent Study 3 Stahl House

Precedent Study 3 Stahl House

South Elevation

Location : Hollywood, California

Location : Hollywood, California

Architect : Pierre Koenig

Architect : Pierre Koenig

ARCH - 2552 Basic Design & Drawing II Spring 2021

ARCH - 2552 Basic Design & Drawing II Spring 2021

Professor: Juan Carlos Olivar Gomez

Collaboration with: Thanh Pham & Kevin Phan

Rendered Views

tric View

Stahl house was commissioned by C.H. “Buck” and Carlotta Stahl to Architect Pierre Koenig to build a modern family home that is positioned on the cliffside overlooking the city of Hollywood, Califonia. The Stahl House was designed with floor to ceiling glass walls overlooking the city below, which connected the indoor and outdoor living spaces which helped emphasize the idea of a simple yet elegant home.

Stahl house was commissioned by C.H. “Buck” and Carlotta Stahl to Architect Pierre Koenig to build a modern family home that is positioned on the cliffside overlooking the city of Hollywood, Califonia. The Stahl House was designed with floor to ceiling glass walls overlooking the city below, which connected the indoor and outdoor living spaces which helped emphasize the idea of a simple yet elegant home.

Rendered Views

Axonometric Model

Plan View
Plan View
38

PRECEDENT STUDY

PRECEDENT STUDY

10

Eisenman House II

Precedent Study 4

Eisenman House

PRECEDENT STUDY

Eisenman House II

Architects: Peter Eisenman

Year: 1970

Architect: Peter Eisenman

Location: Hardwick, Vermont

Eisenman House II

Architect: Peter Eisenman

ROOF PLAN

ROOF PLAN

Roof Plan

Architect: Peter Eisenman

ARCH - 2251

ARCH - 2551: Basic Design + Drawing I

Professor: Heath C Macdonald

Fall 2020

ARCH - 2551: Basic Design + Drawing I

Professor: Heath C Macdonald

ARCH - 2551: Basic Design + Drawing I

Fall 2020

The Eisenman House II is situated on a 100-acre hilltop with broad panoramic views extending for twenty miles in three directions. The design attempts to simulate the presence of trees, through the use of a sequence of columns and wall. The columns and walls frame the view and provide a transition from the extroverted life of summer to the introverted security of the winter fireplace.

Professor: Heath C Macdonald

Fall 2020

Basic Design & Drawing I

Professor: Heath Macdonald

Fall 2020

SECOND FLOOR PLAN

Second Floor Plan

SECOND FLOOR PLAN

FIRST FLOOR PLAN

First Floor Plan

FIRST FLOOR PLAN

FIRST FLOOR PLAN

39

Architect: Richard Meier

PRECEDENT STUDY Rachofsky

ARCH - 2551: Basic Design + Drawing I

Professor: Boback

11

House

Firoozbakht

Precedent Study 5

Rachofsky House

Spring 2020

Architects: Richard Meier

Year: 1996

Location: Dallas, Texas

Architect: Richard Meier

Third Floor Plan

SECOND FLOOR PLAN

ARCH - 2551: Basic

Design + Drawing I

Professor: Boback

Firoozbakht

Spring 2020

The Stahl house was commissioned by C.H. “Buck” and Carlotta Stahl to Architect Pierre Koenig to build a modern family home that is positioned on the cliffside overlooking the city of Hollywood, California. The Stahl House was designed with floor to ceiling glass walls overlooking the city bellow, which connected the indoor and outdoor living spaces which helped emphasized the idea of a simple yet elegant home.

ARCH - 2251

Bassic Design & Drawing I

Professor: Boback Firoozbacht

Spring 2020

PRECEDENT STUDY Rachofsky House

Second Floor Plan

SECOND FLOOR PLAN

THIRD FLOOR PLAN

First Floor Plan

FLOOR PLAN
F GROUND
GROUND FLOOR PLAN
40

Longitudinal Section Drawing

SOUTH SECTION DRAWING

NORTH ELEVATION DRAWING

Cross Section Drawing

WEST SECTION DRAWING

North Elevation Drawing

WEST ELEVATION DRAWING

41

NORTH ELEVATION DRAWING

West Elevation Drawing

WEST SECTION DRAWING

WEST ELEVATION DRAWING

South Elevation Drawing

SOUTH ELEVATION DRAWING

East Elevation Drawing

EAST ELEVATION DRAWING

42

Purist Still Life

Purist still life inspired by Le Corbusier. Created with Prismacolor and Chalk Pastels on Strathmore Paper.

ARCH - 1341 Design Communications I

Professor: Steve Quevedo

Fall 2019

Purist Still Life

Purist still life inspired by Le Corbusier. Created with Prismacolor and Chalk Pastels on Strathmore Paper.

ARCH - 1341 Design Communications I

Professor: Steve Quevedo

Fall 2019

12

Purist Still Life

Purist still life inspired by Le Corbusier. Created with Prismacolor, Graphite and Chalk Pastels on Strathmore Paper.

ARCH - 1341

Design Communications I

Professor: Steve Quevedo

Fall 2019

F
F
43

Turn static files into dynamic content formats.

Create a flipbook
Issuu converts static files into: digital portfolios, online yearbooks, online catalogs, digital photo albums and more. Sign up and create your flipbook.
Aurora C. Ruvalcaba Fall 2022 Architecture Portfolio by Aurora_C._Ruvalcaba - Issuu