Portfolio_Asma Boutrik

Page 1


ABOUT ME

ABOUT

ME “ I am a passionate Architectural & Urban designer, who loves to be inspired and make an impact in this world. With 13 years of experience, I worked on impactful large-scale projects forming the emerging master planning of cities across numerous regions, including the US, the Middle East, and Africa.

I have developed skills in designing experiential architecture with spatial design strategies in response to the concept, program, and context. I have gained significant experience executing designs from concept to SD & DD stages, solving spatial complexities, and facilitating multi-discipline cross-Coordination. Notably, I have learned adaptable design for market fluctuation, to manage client demands and budget limitations while contributing to the community and pushing conventional boundaries.

In the Master of Urban Design program at UC Berkeley, I recognized that the mission and values of the program provided a fertile foundation, where I could sow my design competencies, and grow those skills to serve the greater community. The program went beyond design skills and pushed us to consider our role as urban designers in current global issues ”

FIRM GENSLER, 2021

PROJECT TYPE

SCOPE OFFICE HUB WITH RETAIL & HOTEL

CONCEPT PLANNING & ARCHITECTURE

Green Interlace- Pedestrian Network
BROOKFIELD
ECOSPACE BANGALORE
BROOKFIELD
Green Interlace- Pedestrian

SOUTH COAST VILLAGE

COSTA MESA, CALIFORNIA

FIRM GENSLER, 2022

PROJECT TYPE

SCOPE

MULTIFAMILY RESIDENTIAL & MIXED USE

CONCEPT PLANNING & ARCHITECTURE

RETAIL VILLAGE CORNER

SBEARST
SUNFLOWERAVE

SHUSHAH ISLAND

Shushah

core of the masterplan completing Underwater Experience. suspended in the air, grounded in the submerged in water.

Pyramids

VISITOR CENTER DESIGN

Museum & Visitor Center Facade from Shushah Village

LUXURY VILLAS

THE COVE

ABU DHABI, UAE

FIRM , 2018

PROJECT TYPE TEAM

MY ROLE AREA SCOPE

RESIDENTIAL & MIXED USE

478,000 M 2

CONCEPT & SCHEMATIC

COLIN ASHTON, ASMA BOUTRIK, PABLO NUNEZ, REEM EKAY

SENIOR ARCHITECT / TEAM LEADER

AN ADAPTABLE, TREND RESPONSIVE & INCLUSIVE “MIXED-USE COMMUNITY HUB” AT THE WATERFRONT THAT BRINGS TOGETHER A VARIETY OF EXPERIENCES IN A SINGLE LOCATION. THE COVE SHAMS MARINA IS CONCEIVED AS A PROTOTYPE DEVELOPMENT DEMONSTRATING INNOVATION IN ADAPTABILITY AND ECONOMY. IT OFFERS A TYPOLOGY ASSEMBLED WITH ADAPTABLE COMPONENTS, ABLE TO FLEX WITH SHIFTING TRENDS IN BOTH CULTURE AND ECONOMY. IT IS CAPABLE OF MORPHING TO ACCOMMODATE MARKET SHIFTS DURING DESIGN AND RESPOND TO THEM ONCE BUILT.

ASSET FRONTAGE

MULTI - TIER

MULTI - TIER

Resident Gym
Low Rise Residential
Water Retail
Open Cinema
Nursery
Basement Parking
Outdoor Pool
Water Taxi
Podium Parking
Retail
Splash Park
Floating Terrace
Resident Pool
8. Pedestrian Bridge
Restaurant Barge

THE EMIRATES TOWERS DISTRICT RESIDENCES

DUBAI, UAE

FIRM , 2019

AREA RESIDENTIAL TOWERS

SCOPE PROJECT TYPE

TEAM

MY ROLE

120,000 M 2

CONCEPT

COLIN ASHTON, ASMA BOUTRIK, JOSEPH AB, REEM EKAY

SENIOR ARCHITECT / TEAM LEADER

DUBAI’S NEW ELITE RESIDENCES, THE RESIDENCES AT THE EMIRATES TOWERS DISTRICT [ETD] IS COMPOSED OF TWO TOWERS CONNECTED AT THE BASE VIA AN ENCLOSED F&B COLONNADE AND SHARED PODIUM AMENITIES. THE TWO TOWERS ARE IN CLOSE PROXIMITY TO ONE OF DUBAI’S MOST ICONIC BUILDINGS: EMIRATES TOWERS AND THE MUSEUM OF THE FUTURE, WHILST COMMANDING BOTH PRIME VIEWS AND ACCESSIBILITY TO SHEIKH ZAYED ROAD, DUBAI’S FAMOUS HIGHWAY. THE TOWERS SEEK TO COMMAND AN INDEPENDENT IDENTITY WHILST REMAINING RESPECTFUL OF THE ICONIC FORMS OF THE ADJACENT BUILDINGS. A FORMAL GRID FRAME IS APPLIED TO BOTH TOWER FACADES TO ALLOW A COHERENT PAIRING OF THE TOWERS WHILST DELIVERING AN ELEGANT LUXURY TREATMENT.

RESPECTING HIERARCHY

BLENDING FRAMES BLENDING MATERIALITY + +

THE RETAIL

URBAN DATUM

The architecture responds to the different scales on site by breaking down in mass. A formal architectural frame serves as a device to hold two district facade types within a cohesive composition.

EMIRATES TOWERS

STEPPED TOWERS

MUSEUM OF THE FUTURE

Building volume with preferred views to maximize prime units. Views analysis determines the optimal orientation of the buildings.

TOWER1 TOWER2
SHEIKH ZAYED ROAD

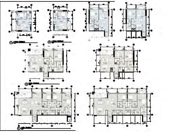
The Residential towers are upper-mid quality residential product focused on efficient internal apartment design. The target efficiency is 82%

THE CHAMFERED FRAME

This facade picks up on the dynamic angular geometries with subtle elegance.

DESIGN CRITERIA

Both towers are designed with the aim of maximizing the views towards Burj Khalifa, Dubai Fountain and the opera. While B1 is almost square in shape because of the narrow views gap left

CONTEXT

The location and orientation of the towers was developed as a response to the surrounding context. B1 tower was located directly on the opera plaza to insure direct interaction and it rotated 90 degrees to face Dubai fountain as the major attractions of the site. On the other hand B2 Tower was located at Mohammad bin Rashid Boulevard with its front facade facing the arrivals to the project.

FIRM , 2014-2016

VIEWS: Both towers are designed with the aim of maximizing the views towards Burj Khalifa, Dubai Fountain and the opera. While B1 is almost square in shape because of the narrow views gap left the adjacent B4 and A4 towers, the layout is designed to ensure all three bedroom units and in majority of the two bedroom units have views. As a result, 58% of the units have direct or partial views towards the fountain and / or the Burj. B2 is rotated to ensure the longest façade is facing the fountain and the result is 61% with direct or partial fountain and / or Burj views.

VIEWS

the adjacent B4 and A4 towers, the layout is designed to ensure all three bedroom units and in majority of the two bedroom units have views. As a result, 58% of the units have direct or partial towards the fountain and / or the Burj. B2 is rotated to ensure the longest façade is facing the fountain and the result is 61% with direct or partial fountain and / or Burj views.

DISTRIBUTION STRATEGY:

B1-B2 RESIDENCES DUBAI, UAE

UNIT DISTRIBUTION

UNIT DISTRIBUTION STRATEGY:

PROJECT TYPE AREA

SCOPE

DESIGN CONCEPT

RESIDENTIAL TOWERS

217,000 M 2

• Three bedroom units: based on the low percentage of required three bedroom units, two aspects were taken into consideration to locate the three bedroom units, the first is to have one unit per floor to give customers the option to choose from low, mid or high level apartments based on their preference. The second was to insure uninterrupted, direct views towards Burj Khalifa and Dubai fountain regardless of the height of the apartment.

TEAM MY ROLE

DESIGN

OBADA ADRA, LISA GANA, ASMA BOUTRIK, SREEJITH PILLAR, LISANDRO MENDOSA

INTERMEDIATE ARCHITECT, KEY TEAM MEMBER

Three bedroom units: based on the low percentage of required three bedroom units, two aspects were taken into consideration to lovate the three bedroom units, the first is to have one unit per floor to give customers the option to choose from low, mid or high level apartments based on their preference. The second was to insure uninterrupted, direct views towards Burj Khalifa and Dubai fountain regardless of the height of the apartment.

The following criteria was taken into consideration while designing the project:

• Two Bedroom units: the strategy was to have the two bedroom unit as high as possible and with Bruj Khalifa and Dubai fountain where possible.

one bedroom units in the lower floors as much as possible and facing the boulevard.

CONCEPT, SCHEMATIC, & DETAIL

Three bedroom units: based on the low percentage of required three bedroom units, two aspects were taken into consideration to lovate the three bedroom units, the first is to have one unit per floor to give customers the option to choose from low, mid or high level apartments based on their preference. The second was to insure uninterrupted, direct views towards Burj Khalifa and Dubai fountain regardless of the height of the apartment.

• One Bedroom units: In order to give the priority to the larger units, the strategy was to keep the

Both towers are designed with the aim of maximizing the views towards Burj Khalifa, Dubai Fountain and the opera. While B1 is almost square in shape because of the narrow views gap left by the adjacent B4 and A4 towers, the layout is designed to ensure all three bedroom units and in majority of the two bedroom units have views. As a result, 58% of the units have direct or partial views towards the foun

CONTEXT: The location and orientation of the towers was developed as a response to the surrounding context. B1 tower was located directly on the opera plaza to insure direct interaction and it rotated 90 degrees to face Dubai fountain as the major attractions of the site. On the other hand B2 Tower was located at Mouhammad bin Rashid Boulevard with its front facade facing the arrivals to the project.

UNIT DISTRIBUTION

“A HIGH-END DEVELOPMENT THAT FORMS THE GATEWAY TO THE OPERA DISTRICT” , B1-B2 IS A UNIQUE ADDITION TO DOWNTOWN DUBAI. INSPIRED BY NEW YORK’S ART DECO STYLE AND REFINED WITH A CONTEMPORARY TWIST TO CREATE AN ELEGANT ADDITION TO DUBAI’S SKYLINE, THE COMPLEX OFFERS UNPRECEDENTED VIEWS OF THE CULTURAL HEART OF DUBAI. THE LOCATION AND ORIENTATION OF THE TOWERS WAS DEVELOPED AS A RESPONSE TO THE SURROUNDING CONTEXT. B1 TOWER WAS LOCATED DIRECTLY ON THE OPERA PLAZA TO INSURE DIRECT INTERACTION AND IT ROTATED 90 DEGREES TO FACE DUBAI FOUNTAIN & BURJ KHALIFA AS THE MAJOR ATTRACTIONS OF THE SITE. ON THE OTHER HAND B2 TOWER WAS LOCATED AT SHEIKH MOHAMMED BIN RASHID BOULEVARD WITH ITS FRONT FACADE FACING THE ARRIVALS TO THE PROJECT.

tain and / or the Burj. B2 is rotated to ensure the longest facade is facing the fountain and the result is 61% with direct or partial fountain and / or Burj views.

MODULAR FACADE

Two Bedroom units: the strategy was to have the two bedroom unit as high as possible and with Bruj Khalifa and Dubai fountain where possible.

Two Bedroom units: the strategy was to have the two bedroom unit as high as possible and with Bruj Khalifa and Dubai fountain where possible.

One Bedroom units: In order to give the priority to the larger units, the strategy was to keep the one bedroom units in the lower floors as much as possible and facing the boulevard.

One Bedroom units: In order to give the priority to the larger units, the strategy was to keep the one bedroom units in the lower floors as much as possible and facing the boulevard.

CORNER LIVING ROOMS:

CORNER LIVING ROOMS:

Inspired by New York’s unique art deco style and refined with a contemporary twist to create an elegant addition to Dubai’s skyline. Windows, louvers and GRC elements were standardized as much as possible to help reduce the building cost and maintain a glazing ratio between 40 -60%.

Because of the better views and higher returns, the layouts were design to insure corners are utilized for living rooms where possible. After taking all different planning constrains (efficiency, apartment configuration, area and type) more than 80% of the towers corners are utilized as living rooms.

Because of the better views and higher returns, the layouts were design to insure corners are utilized for living rooms where possible. After taking all different planning constrains (efficiency, apartment configuration, area and type) more than 80% of the towers corners are utilized as living rooms.

MODULAR FAÇADE: windows, louvers and GRC elements were standardized as much as possible to reduce the building cost and maintain a glazing ratio between 40 -60%.

MODULAR FAÇADE: windows, louvers and GRC elements were standardized as much as possible to help reduce the building cost and maintain a glazing ratio between 40 -60%.

MODULES

MODULES UNIT DISTRIBUTION

Units Distribution

Three bedroom units: b ased on the low percentage of required three bedroom units, two aspects were taken into con

sideration to locate the three bedroom units, the first is to have one unit per floor to give customers the option to choose from low, mid or high level apartments based on their preference. The second was to insure uninterrupted, direct views towards Burj Khalifa and Dubai fountain regardless of the height of the apartment. Two Bedroom units: the strategy was to have the two bedroom unit as high as possible and with Burj Khalifa and Dubai fountain where possible. One Bedroom units: In order to give the priority to the larger units, the strategy was to keep the one bedroom units in the lower floors as much as possible and facing the boulevard.

B1 TYPICAL PLAN

CENTRAL WATERFRONT

SAN FRANCISCO, USA

INSTITUTION UC BERKELEY 2019

PROJECT TYPE

TEAM AREA MASTER PLAN

420 ACRES

ASMA BOUTRIK, JAIME VARAS, DEWI BLEHER

“RESHAPING CENTRAL WATERFRONT SHORE AND MAINTAIN INDUSTRIAL CHARACTER”

THE CENTRAL WATERFRONT SITE COMBINES THE FINE GRAINED SCALE OF DOGPATCH AND THE LARGE SCALE WAREHOUSE AND INDUSTRIAL BUILDINGS ALONG THE WATERFRONT. MUCH OF THE PROPOSED DEVELOPMENT IS INFILL AND URBAN REPAIR, EXTENDING THE STREET GRID AND CREATING A NEW CANAL TO CONNECT THIRD STREET TO THE WATER AT 23RD STREET. PROPOSALS INCLUDE A NEW OUTBOARD SEA WALL TO PROTECT FROM SEA LEVEL RISE AS WELL AS CREATING A NEW WATERFRONT DESTINATION AT PIER 80.

CREATING WATERFRONT CULTURAL ASSETS WITH GREEN INFRASTRUCTURE AND ADAPTIVE REUSE OF HISTORICAL AND INDUSTRIAL LANDMARKS.

CREATING WATERFRONT CULTURAL ASSETS WITH GREEN INFRASTRUCTURE AND ADAPTIVE REUSE OF HISTORICAL AND INDUSTRIAL LANDMARKS.

GREEN INFRASTRUCTURE

SHORELINE & HYDROLOGY

STREETS & BLOCKS

TRANSIT

NEW DESTINATION IN PIER 80 FOR THE LARGER NEIGHBORHOOD, REVIVING SUTRO BATH HISTORY IN CENTRAL WATERFRONT.

Turn static files into dynamic content formats.

Create a flipbook
Issuu converts static files into: digital portfolios, online yearbooks, online catalogs, digital photo albums and more. Sign up and create your flipbook.