Ashley Sparks
School of Architecture | University of Texas at Austin | Undergraduate Portfolio | BS Interior Design
![]()
School of Architecture | University of Texas at Austin | Undergraduate Portfolio | BS Interior Design
Email: ashleyyymarie01@gmail.com Contact
Phone: (817) 374-6354
Address: Austin, Texas 78705
Education
B.S. in Interior Design
The University of Texas at Austin Business Minor
3.89 GPA, May 2025
Weatherford High School Weatherford, Texas
Graduated top 1% of class
4.5 GPA, May 2020
Awards
2025 ASID Certificate of Merit
Metropolis Future100 Class of 2025
Work and Leadership Experience
Lake Flato Design Intern
Austin, Texas/ May 2024- August 2024
• Modeled entire office space and created multiple design iterations for intricate millwork pieces, presented to senior leadership for review
• Gained practical experience in assembling comprehensive drawing sets, enhancing understanding of necessary documentation
• Developed skills in 3D modeling and visual presentation to effectively communicate design ideas
President
Ampersand at UT/ August 2022- present
• Led the organization to foster collaboration and innovation while promoting professional development within the community
• Organized and facilitated site/ office tours, guest lectures, and networking events with industry professionals, enhancing members’ learning and career opportunities
• Developed and maintained strategic partnerships with IIDA and ASID, aligning organizational goals with professional standards and resources
AIA Interior Homes Tour Docent
Austin, Texas/ January 2024
• Greeted incoming guests to make them feel welcomed in the space
• Answered guests questions about the home and its FF&E to convey better understanding of design decisions
• Addressed issues as they occured; for example, keeping guests out of restricted areas to maintain the clients demand for privacy
Collage Scholar Honors Award2023 & 2024
Design Excellence Award- 2023
Edward J. Perrault Endowed Presidential Scholarship- 2023
Dean’s Honor List- 2020-2022
Ist Place in NAACP Writing Contest-
Activities
Active Member: Dell Scholars
Active Member: UT Ampersand
Active Member: Texas Latin Dance Club
Active Member: IIDA Student Chapter
IIDA Student Design Expo
UASC Student Mentor
VPSA UT Student Consultant
Habitat for Humanity Volunteer
Jorge Pardo Workshop
Texas Running Club
Hook’d Magazine
Excellence Award
Professor: Agustina Roderiguez
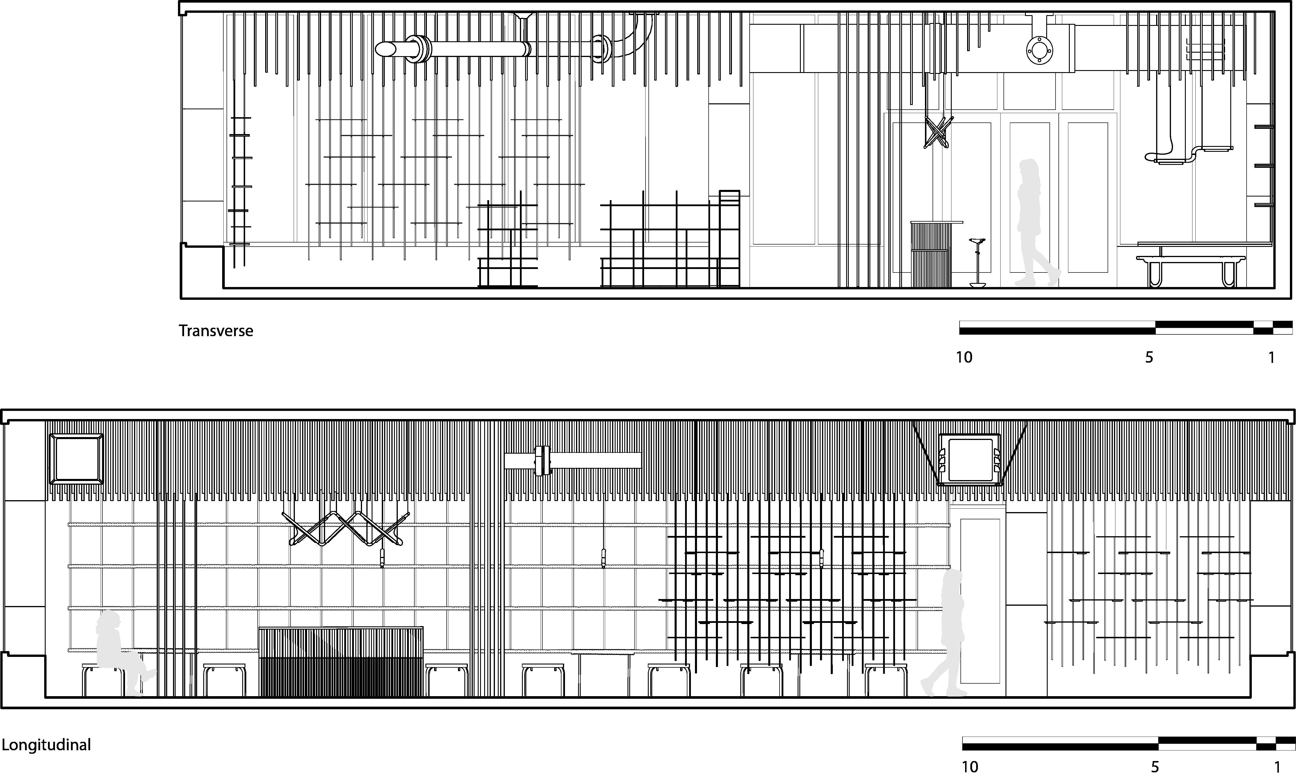
In Design IV, the final was to establish an informal retail store in East Austin, an area historically deemed undesirable. Embracing the locale’s industrial backdrop and unconventional reputation, my design philosophy embraced urban adaptive reuse. Turning perceived urban decay into an innovative opportunity, the store’s interior became a testament to repurposing old industrial waste with grace.
The ceiling acts as a canvas adorned with a grid of metal rods, forming a grid that delineates circulation paths and areas for lingering. Repurposed metal in vibrant patinas blankets the interior, crafting a dynamic tapestry that celebrates the appeal of aged materials. Inspired by city ruins, the floor plan introduces irregular shapes mimicking urban sprawl, with distinct circulation paths resembling main roads and alleys strategically controlling traffic flow. This forward-thinking design challenges assumptions about East Austin while showcasing the elegance of repurposing industrial waste, contributing to the narrative of sustainable urban development.








Corten steel promotes sustainability by repurposing durable, weathered materials and providing a striking, oxidized appearance that combines industrial character with timeless taste

Pink and Warm Tone Patina:
Reusing existing materials creates a distinctive and vibrant aesthetic that evokes a sense of history with a new perspective.

Chromatized Steel Plates:
Urban scrap metal is chromate treated to bring out a variety of hues. It is then assembled together in a patchwork style and screwed together

This oxidized surface, born from age and exposure, becomes a visual metaphor for endurance and transformation. The blue copper patina highlights the beauty in decay and honors the history embedded within materials often discarded.

Painted Existing Concrete
Painting the existing concrete floor is a sustainable solution that minimizes material waste while enhancing the space with a fresh, customizable aesthetic that complements both industrial and contemporary elements.


Professor: Allison Gaskins
Partner: Cameron Farr
In our technical studio class, we designed a versatile Technology Pavilion for rapid assembly in five days, inspired by early modular designs. Reflecting Swiss vernacular, particularly the Swiss Chalet, we used a kit of parts to create flexible environments with color-coded furniture and lighting. Central to our design are strategically placed screens that define private and public areas while enhancing visual connectivity with customizable opacity and patterns. Meeting rooms are organized by color to indicate function, with modular screens promoting interaction and visual connections.
Lighting is vital for defining gathering areas, with pendant lights creating a welcoming atmosphere and integrating the Palantir logo in reception areas. Acoustics are prioritized with carpet and varied wall types for sound isolation. Comfort is emphasized through plush furniture, strategic greenery, and a custom-built coffee bar that encourages interaction between spaces.

PREPARE
EXCEPT WHERE OTHERWISE NOTED, DIMENSIONS ARE TO THE FACE OF STUDS, CENTERLINE OF STRUCTURE, AND CENTERLINE OF OPENINGS.
FIELD VERIFY DIMENSIONS AND REPORT ANY DISCREPANCIES IMMEDIATELY.
DIMENSIONS ARE PROVIDED FOR DESIGN INTENT. INSTALLER SHALL FIELD VERIFY ALL OPENINGS PRIOR TO FABRICATION OF ASSEMBLIES AND SHALL ALLOW FOR SHIM SPACES, JOINTS, SEALANT, ETC. AS REQUIRED.
ANY SUBSTITUTIONS MUST BE APPROVED PRIOR TO PROCUREMENT.
ANY SUBSTITUTIONS MUST BE OF EQUAL OR BETTER PERFORMANCE TO MATERIAL, FINISHING, OR FEATURE SPECIFIED.
CONTRACTOR IS RESPONSIBLE FOR CLEANING ALL AREAS AFTER CONSTRUCTION.
APPROVED PRIOR TO PROCUREMENT.
ANY SUBSTITUTIONS MUST BE OF EQUAL OR BETTER PERFORMANCE TO MATERIAL, FINISHING, OR FEATURE SPECIFIED.
CONTRACTOR IS RESPONSIBLE FOR CLEANING ALL AREAS AFTER CONSTRUCTION.
SHEET NOTES:
ANY WALL AREAS NOT SPECIFIED RECEIVED PT1 FINISH.
ANY FLOOR AREA NOT SPECIFIED RECEIVES T-01 FINISH.
PROTECT BUILT ELEMENTS DURING FINISH INSTALLATION.
R4EFER TO THE JOB BOOK FOR MATRIAL SELECTIONS.
MATERIALS SHALL BE SUBMITTED FOR REVIEW/APPROVAL.
PREPARE SUBBASE FLOOR TO USE IN COORDINATION WITH ADHESIVE WHEN INSTALLING FLOORING.
PREPARE WALLS RECEIVING PT1 WITH PRIMER.
SHEET NOTES:
ANY WALL AREAS NOT SPECIFIED RECEIVED PT1 FINISH.
ANY FLOOR AREA NOT SPECIFIED RECEIVES T-01 FINISH.
PROTECT BUILT ELEMENTS DURING FINISH INSTALLATION.
R4EFER TO THE JOB BOOK FOR MATRIAL SELECTIONS.
MATERIALS SHALL BE SUBMITTED FOR REVIEW/APPROVAL.
PREPARE SUBBASE FLOOR TO USE IN COORDINATION WITH ADHESIVE WHEN INSTALLING FLOORING.
PREPARE WALLS RECEIVING PT1 WITH PRIMER.

Each meeting room is assigned a monochromatic color palette that are applied to FF&E elements creating a distinct ambiance for each space. To ensure the colors are prominent, the surrounding architectural features—such as walls, ceilings, and flooring— are kept in neutral tones and wood finishes. This design strategy results in a harmonious workspace where the integration of color extends beyond mere decoration. It meets the specific needs of diverse teams and individuals, fostering an environment that encourages productivity, creativity, and professionalism while artfully distinguishing between public and private spaces.



This project centers around modular, movable screens that act as the defining element of the space, offering a unique balance between flexibility and privacy. By incorporating adaptable screens, we achieve dynamic spatial divisions that seamlessly transition between public and private areas. Inspired by architectural precedents like the Carpenter Hotel and Kolumba Museum, these screens not only filter natural light to create captivating shadows but also provide customizable privacy levels, allowing the space to respond to varying needs throughout the day. Their versatility fosters a fluid environment where boundaries are defined not by rigid walls, but by the movement and adjustability of the architectural elements themselves.




The pavilion’s design incorporates birch wood for its durability and local relevance. The fine grain and light tones of birch add warmth and richness, complementing the building’s materials and surroundings. Additionally, birch is a renewable resource requiring minimal maintenance, aligning with the project’s eco-friendly goals.
Charred wood siding blends traditional Swiss materials with modern design, creating a pavilion that is both timeless and contemporary. Its durability and weather resistance ensure the office remains functional and appealing, while its connection to local architecture allows it to harmonize with its surroundings.
Tectum ACT panels were selected for their exceptional acoustic performance, effectively reducing noise transmission between rooms and contributing to a more private and focused workspace. This capability was especially crucial in the temporary office setting, where managing acoustics was a top priority.
Despite being a temporary solution, the tiles’ durability and low-maintenance properties were key factors in their selection. Resistant to wear and tear and easy to clean, they remained functional and professional in high-traffic areas throughout the office’s use.
The meeting room design emphasized acoustic performance, choosing carpet for its sound-absorbing qualities, which was crucial in an open office to minimize noise disruption. The dense weave and plush texture significantly reduced echo and enhanced speech clarity.









Professor: Ria Bravo
Partner: Itzel Maceado
Design V focused on creating profound emotional experiences through thoughtful design, culminating in a museum centered on the dichotomy of love and betrayal. The project utilized fabric strategically as a key element in translating emotional nuances into tangible spaces. Guided by a love story narrative, the design represented the stages of a relationship through a sequential journey, with love exhibiting openness and betrayal reflecting turbulence. Circulation in the love space followed a linear progression, while betrayal featured a jagged pattern mirroring emotional upheaval. The scale played a pivotal role, with love expansive and betrayal deliberately condensed. Fabric symbolized the emotional journey, flowing in love and transformed with wax coating in betrayal.


Floor plan: Mezzanine Level
The love space is designed to be open and inviting, characterized by soft and delicate forms that evoke the appearance of flower petals. In stark contrast, the betrayal space feels dark and claustrophobic, a place one would prefer to avoid. The fabric forms in this area become jagged and erratic, while the love space maintains a sense of consistency with its more delicate shapes.





Fabric is chosen for its inherent delicacy, embodying different meanings for both emotions; in the context of love, it feels soft and inviting, eliciting a desire to touch, whereas in the context of betrayal, it does not. In the conceptual model, the fabric takes on a different, more solid form and appears less fluid. We hope to introduce some airflow in our space to bring the fabric to life. Due to technical constraints, the betrayal fabric will appear distressed, showcasing qualities that are not represented in the model. In terms of fragrance, the love space would exude a floral scent, while the betrayal space would carry a burnt aroma, reflective of its color palette.

Thank You!