TERMINAL TERRESTRE PARA LA CIUDAD DE PIURA- 2022

Page 1

TERMINAL TERRESTRE PARA LA CIUDAD DE PIURA-2022 ARQUITECTURA Y EQUIPAMIENTO METROPOLITANO DOCENTE: DR. ARQ. FREDDY DAVID ROJAS ORTEGA ESTUDIANTES: JUÁREZ GUTIÉRREZ ASHELLY KIARA SUSET ORTIZ CORNEJO MARIA FERNANDA 2022-02

DATOS GENERALES

PERFIL

Ashelly Juárez Gutiérrez

Estudiante de Arquitectura con habilidades básicas en dibujo, uso de programas para la elaboración de proyectos, interés por aprender todos los días algo nuevo. Presenta la capacidad de adaptarse a cualquier entorno. Sociable, empática, solidaria, entusiasta y responsable. Siempre poniendo esfuerzo y empeño a cada uno de sus trabajos .

CONTACTO

kjuarezgu2@ucvvirtual.edu.pe

@soyhashe02

Sullana - Piura - Perú

Fernanda Ortiz Cornejo

Estudiante de Arquitectura cursando el VI Ciclo en la Universidad Cesar Vallejo sede Piura. Posee habilidades en dibujo, uso de programas como Autocad, Sketchup, Archicad, entre otros. Muestra interés por aprender día a día. Empática, responsable, amigable, solidaria, entre otras cualidades. Siempre pone esfuerzo al elaborar cada proyecto.

PERFIL CONTACTO

mariafernandaortizcornejo@gmail.com

@Fernandaortiz.30

Morropon - Piura - Perú

PROYECTO DOCENTE UNIVERSIDAD CICLO Terminal Terrestre, Piura 2022 Dr. Arq. Freddy David Rojas Ortega Universidad Cesar Vallejo VI Ciclo PROGRAMAS UTILIZADOS DATOS GENERALES 100% 100% 80% UBICACIÓN DEL PROYECTO Piura Perú ÁREA DEL TERRENO 20,000.00 m2 AÑO DEL PROYECTO 2022 70% 90% 100% 80% 50%
U B I A C I Ó N Y L O C A L I Z A C I Ó N A N A Á L I S I S D E S I T I O I N T E N C Ó N P R O Y E C T U A L A P U N T E S A R Q U I T E C T O N I C O S ÍNDICE P R I M E R N I V E L S E G U N D O N I V E L ASPECTOS GENERALES CONTEXTO VISUALES SOL Y VIENTOS PROBLEMÁTICA MAPEO DE LA CIUDAD DE PIURA ESTRATEGIAS APUNTES ARQUITECTÓNICOS DEA RECTORA PROGRAMA ARQUITECTÓNICO ZONIFICACIÓN CONCEPTO DIAGRAMA DE COMPOSICIÓN ESQUEMA DE UBICACIÓN SECCIONES VIALES PLANTA DE DISTRIBUCIÓN SOLUCIONES DE VENTILACIÓN E ILUMINACIÓN ESQUEMA FUNCIONAL DIAGRAMA DE CIRCULACIÓN PLANTA DE DISTRIBUCIÓN SOLUCIONES DE VENTILACIÓN E ILUMINACIÓN ESQUEMA FUNCIONAL DIAGRAMA DE CIRCULACIÓN PÁG. 06 PÁG. 08 PÁG. 16 PÁG. 20 PÁG. 22 PÁG. 24
ÍNDICE C O R T E S E L E V A C I O N E S P L A N O D E T E C H O S E S T R U C T U R A C L I M A Y V E G E T A C I Ó N D I A G R A M A C I Ó N Y P A N E L E S CORTES ARQUITECTÓNICOS ELEVACIONES PLANO DE TECHOS ESTRUCTURA EN PLANTA LÁMINA EXPLOSIVA ASOLEAMIENTO VIENTOS DIAGRAMA DE COMPOSICIÓN PANELES PÁG. 26 PÁG. 30 PÁG. 34 PÁG. 36 PÁG. 38 PÁG. 42
LEYENDA UBICACIÓN Y LOCALIZACIÓN ESQUEMA DE UBICACIÓN INGRESO PEATONAL PRINCIPAL INGRESO DE PARTICULARES SALIDA DE PARTICULARESL ENTRADA DE BUSES SALIDA DE BUSES SE ENCUNETRA UBICADO ENTRE LA VIA DE EVITAMIENTO NORTE Y LA AV. SÁNCHEZ CERRO LA EDIFICACIÓN CONSTA DE DOS NIVELES

AV. SÁNCHEZ

CERRO

VIA DE EVITAMIENTO NORTE - PIURA

UBICADAS EN UN BUEN LUGAR Y CON UNA EXELENTE ACCESIBILIDAD. SE DISPUSO QUE LA ENTRADA A LA EDIFICACIÓN

SEA UBICACADA EN UNA MENOS TRANSITADA PARA EVITAR LA CONGESTIÓN.

SECCIONES VIALES

ASPECTOS GENERALES

CLIMA

El día más corto es el 21 de junio, con 11 horas y 49 minutos de luz

SOL

VIENTOS

El promedio de la velocidad media d l h

TEMPERATURA

El mes más cálido del año

FAUNA FLORA

GARZA

AGUILUCHO

ASPECTOS

TRADICIONES:

Piura es una región esconde una serie de tradiciones católicas y manifestaciones culturales que se remiten a su pasado prehispánico.

TONDERO SEMANA SANTA
ECONÓMICOS Y TRADICIONES ANÁLISIS DE SITIO

NISSAN

PRIMAX IPESA VIGMA VOLVO PARQUE CRUCE IIRSA PIURA
I.E.P.DIVINO NIÑO
CONTEXTO
CAPILLA

VISUALES

Topografía AV. SÁNCHEZ CERRO VÍA COLECTORA NORTE VÍA COLECTORA SECUNDARIA VÍA EVITAMIENTO NORTE-PIURA
SITIO
VISUALES
ANÁLISIS DE
VISUALES
VISUALES VISUALES
VÍAEVITAMIENTONORTEPIURA SOL Y VIENTOS AV . SÁNCHEZCERRO DIRECCIÓN DEL SOL: ESTE- OESTE DIRECCIÓN DE LOS VIENTOS: SUR-ESTE A NORTE-OESTE
PROBLEMÁTICA PIURA NO CUENTA CON UN TERMINAL TERRESTRE AMPLIO Y QUE CUMPLA CON TODA LA REGLAMENTACIÓN, A PESAR DE QUE HAY 39 TERMINALES NO CUMPLEN CON UN BUEN FUNCIONAMIENTO. ACTUALMENTE EN LA CIUDAD DE PIURA CON EL PASAR DE LOS AÑOS APARECIERON DISTINTOS TERMINALES TERRESTRES UBICADOS EN EL ENTORNO URBANO, POR EL CONSTANTE MOVIMIENTO Y AGLOMERACIÓN DE PERSONAS EN LA CIUDAD DE PIURA HA SIDO EL MOTIVO DE LA EXTENSIÓN DE ESTOS LO CUAL ES UN MEDIO COMÚN DE DESPLAZAMIENTO PARA LA MAYORÍA DE PERSONAS EN TODOS LOS LUGARES DEL MUNDO. 30% 28% 19% 13% 4% 2% 2% 1% 1% 0% Porcentaje Trabajo Compras Otro Escuela / Univ. Visitas Recreación Salud Tramites/Pagos Iglesia NSNC P r o p ó s i t o Buses 42.6% Mototaxis 30.9% Taxi Colecyivo 19.1% Taxis 4.4% MOTIVOS DE VIAJE TRANSPORTE PÚBLICO 68% DE LOS VIAJES
MAPEO EN LA CIUDAD DE PIURA TERMINAL TERRESTRE CASTILLA TERMINAL TRANSPORTE MONTERO TERMINAL SATELITE BAJO PIURA TERMINAL TERRESTRE GECHISA TERMINAL FLORES PIURA TERMINAL TEPSA TERMINAL MOVIL BUS
INFRAESTRUCTURA VERDE TRANSPORTE INTERREGIONAL E INTERPROVINCIAL ESTRATEGIAS - MEJORAR EL SERVICIO DE TRANSPORTE INTERPROVINCIAL E INTERREGIONAL TERRESTRE, A TRAVÉS DE UN TERMINAL TERRESTRE CON ESPACIOS GRANDES, CÓMODOS Y BIEN VENTILADOS. ADEMÁS CUMPLIENDO EL REGLAMENTO. -PRIORIDAD AL PEATÓN BRINDANDO UN INGRESO AMPLIO. -PROPONER VEGETACIÓN DENTRO DEL TERMINAL TERRESTRE PARA UN MEJOR AMBIENTE Y COMODIDAD EN LOS PASAJEROS. -SEGURIDAD VIAL DENTRO DEL TERMINAL.
INFRAESTRUCTURA VERDE
Y
SOCIAL -DEBEMOS DAR PRIORIDAD A LA CIRCULACIÓN DE PEATONES, CREANDO ESTOS CON ESPACIOS VERDES Y CON UNA MEDIDA PARA LA BUENA CIRCULACIÓN. -INVLUIS VEGETACIÓN DENTRO Y FUERA DEL TERMINAL PARA GENERAR UNA SOSTENIBILIDAD ECOLÓGICA INTEGRAR PARQUES O LUGARES PÚBLICOS CON ESPACIO VERDES LLAMATIVOS PARA QUE LAS PERSONAS INTERACTÚEN CÓMODAMENTE ENTRE ELLAS Y DISFRUTEN DE CADA UNO DE ESTOS ESPACIÓS.
INTEGRACIÓN
COHESIÓN

VOLUMETRÍA

IDEA RECTORA
PLANIMETRÍA
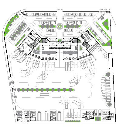
ZONIFICACIÓN 3D ZONA ADMINISTRACIÓN LEYENDA ZONA PÚBLICA SERVICIOS GENERALES ZONA DE OPERACIONES SALIDADE BUSES SALIDADE PARTICULARES ENTRADADE PARTICULARESENTRADADE BUSES ENTRADA Y SALIDA DE PEATONES AV.SÁNCHEZCERRO VÍA EVITAMIENTO NORTE-PIURA

PROGRAMA ARQUITECTÓNICO

CUADRO DE AMBIENTES

ZONA SECTOR AMBIENTES N.º DE AMBIENTE NECESIDAD MOBILIARIO

ADMINISTRACIÓN Gerencia General

Oficinas 4 Dirigir las actividades del Terminal Terrestre Escritorio, silla, computadora y archivador.

Secretaría 1 Recepción Escritorio, sillas y computadora.

Sala de Espera 1 Esperar Sillones. Sala de Reuniones 1 Reuniones de los ejecutivos Mesa grande, sillas y proyector.

SS. HH 2 Necesidades fisiológicas

Inodoro, lavador, espejo, papelera, toallero, jabón y papel higiénico.

CUADRO DE AMBIENTES

ZONA SECTOR AMBIENTES N.º DE AMBIENTE NECESIDAD MOBILIARIO

Venta de boletos 8

Vender boletos de viaje Escritorio y silla Tiendas 2 Comercialización Estantes, silla y escritorio

Cajeros 3 Sacar dinero Cajero automático Telefonía 3 Llamar Teléfonos

ZONA PÚBLICA

Embarque y desembarque de buses

Sala de embarque 1 Esperar la llegada de bus Sillas Sala de desembarque 1

Recepcionar la salida y recoger equipajes Sillas SS. HH 4 Necesidades fisiológicas

Secador de manos, inodoro, lavador, espejo, papelera, toallero, jabón y papel higiénico.

CUADRO DE AMBIENTES

MOBILIARIO

Embarque y desembarq ue de minivan Venta de boletos 4 Vender boletos de viaje Escritorio
Sala de espera 1 Esperar la
de la
Cajeros 2 Sacar dinero Cajero automático Telefonía 2 Llamar Teléfonos SS. HH 4 Necesidades fisiológicas
lavador,
papelera,
PROGRAMA ARQUITECTÓNICO
ZONA SECTOR AMBIENTES N.º DE AMBIENTE NECESIDAD
ZONA PÚBLICA
y silla
llegada
minivan Sillas
Secador de manos, inodoro,
espejo,
toallero, jabón y papel higiénico.

CUADRO DE AMBIENTES

Servicios de Seguridad Casetas de Seguridad + SS. HH 4
Servicios para el Personal Cocina 2 Alimentación
Almacenes 2 Guardar
Comedor 2
Salas de Estar 4
Dormitorios 6 Descansar
SS. HH + Vestidores 4 Necesidades
ZONA SECTOR AMBIENTES N.º DE AMBIENTE NECESIDAD MOBILIARIO
SERVICIOS DE SEGURIDAD Y MANTENIMIENTO
Recepcionar al público Escritorio, sillas, equipo de cómputo.
Equipos de cocina
alimentos Estantes
Sentarse a alimentarse Mesas y sillas
Sentarse a descansar Sillones y Tv
Camas
fisiológicas Secador de manos, inodoro, lavador, espejo, papelera, toallero, jabón y papel higiénico.

PROGRAMA ARQUITECTÓNICO

CUADRO DE AMBIENTES

ZONA SECTOR AMBIENTES N.º DE AMBIENTE NECESIDAD MOBILIARIO

Cuarto de bombas 1

Funcionamiento de los servicios básicos

Bombas de agua

Cuarto de basura 1 Almacén de basura

Tanques de basura

Cuarto de tableros eléctricos 1 Función del grupo eléctrico del terminal

Tableros eléctricos

SERVICIOS DE SEGURIDAD Y MANTENIMIENTO

Servicios de Mantenimien to

Cuarto de subestación a nivel 1

Función del grupo eléctrico de emergencia

Caja general de protección, Interruptor de control de potencia, Toma a tierra del edificio, tablero de control

Enllante y desenllante 1

Ajustar llantas de los buses

Lavado 1

Lavar los buses

Reparación y alineamiento 1

Arreglar los buses con problemas mecánicos

Estantes, sillas, mesas

Estantes, sillas, mesas

Estantes, sillas, mesas

CUADRO DE AMBIENTES

MOBILIARIO

Secador de manos, inodoro, lavador, espejo, papelera, toallero, jabón y papel higiénico.

ZONA SECTOR AMBIENTES N.º DE AMBIENTE NECESIDAD
ZONA PUBLICA COMPLEMENTARIA Servicios Públicos
Tópico 1 Emergencias de Salud Equipo médico. Exhibición 1 Exhibir artesanía de Piura Estantes de exhibición Equipajes 2 Guardar equipajes Mostrador, sillas y repisas. Encomiendas 1 Envío de encomiendas Mostrador, sillas y repisas. Mini plazas 2 Descansar Bancas y jardineras. SS. HH 4 Necesidades fisiológicas
ZONA SECTOR AMBIENTES N.º DE AMBIENTE NECESIDAD MOBILIARIO
COMPLEMENTARI A Servicios Comerciales Patio de Comidas 2 Sentarse a alimentarse Mesas y sillas Módulos de Atención 6 Alimentación Equipos de cocina Cafeterías 2 Sentarse a alimentarse Equipos de cocina, mesas y sillas Farmacia 1 Adquirir medicamentos Estantes, mesas, sillas, congeladoras.
ARQUITECTÓNICO
CUADRO DE AMBIENTES
ZONA PUBLICA
PROGRAMA

CUADRO DE AMBIENTES

ZONA SECTOR AMBIENTES N.º DE AMBIENTE NECESIDAD MOBILIARIO ZONA PUBLICA COMPLEMENTARIA Servicios Comerciales Agencias Bancarias 4 Retiro, depósito y transferencias Escritorios, sillas,
fuertes, armarios y sillones Souvenir 2 Comprar recuerdos Estantes Tiendas 13 Comercialización
y escritorio SS. HH 4 Necesidades fisiológicas
cajas
Estantes, silla
Secador de manos, inodoro, lavador, espejo, papelera, toallero, jabón y papel higiénico.
S I M E T R Í A J E R A R Q U Í A CONCEPTO PRINCIPIOS ORDENADORES CONCEPTO EL CONCEPTO ES CREAR UN TERMINAL TERRESTRE PARTIENDO DE LA IDEA DE UN BUS EN GIRO, TRATANDO DE CREAR UN LUGAR SUSTENTABLE, CON AMBIENTES AGRADABLES, TANTO FUNCIONALMENTE COMO CREANDO Y DISEÑANDO ZONAS ILUMINADAS Y VENTILADAS NATURALMENTE, PERMITIENDO MENOS GASTO Y CONTAMINACIÓN CON EQUIPOS TECNOLÓGICOS.
Posición para una mejor ventilación VÍAEVITAMIENTONORTEPIURA No rompe la trama urbana DIAGRAMA DE COMPOSICIÓN Entorno con fácil acceso AV . SÁNCHEZCERRO Monumental VOLUMETRÍA INICIAL CON EL ENTORNO CERCANO AL LUGAR Y CÓMO ES QUE ESTÁ SE ADECUA A SU CONTEXTO EN EL QUE SE ESTÁ DESARROLLANDO.
MURO PERIMÉTRICO EMBARQYE Y DESEMBARQUE DE BUSES EMBARQUE Y DESEMBARQUE (SALA DE ESPERA) APUNTES ARQUITECTONICOS
VOLUMETRIA Y ESTACIONAMIENTO
ESTACIONAMIENTO E INGRESO

PRIMER NIVEL

SOLUCIONES DE VENTILACIÓN E ILUMINACIÓN

LA ZONA DE EMBARQUE Y DESEMBARQUE POSEE EN LA PARTE DE INGRESO DE VIENTOS UNA TRAMA QUE VA A PERMITIR EL INGRESO DE VIENTOS QUE CORREN EN ESA DIRECCIÓN Y DE UNA BUENA CIRCULACIÓN DE LUZ NATURAL, ESTA TRAMA LO QUE HACE TAMBIÉN ES QUE VA A IMPEDIR QUE EL SOL INGRESE EN GRAN MAGNITUD A LAS ZONAS Y QUE AFECTE A LAS PERSONAS QUE SE ENCUENTREN EN LA ZONA DE ESPERA, ESTA TRAMA TAMBIÉN LA PODEMOS ENCONTRAR EN LA PARTE SUPERIOR DE LA BOLETERÍA.

EN LO QUE RESPECTA A LOS OTROS ESPACIOS SE CUENTA CON UNA VENTILACIÓN E ILUMINACIÓN DEBIDO A AMPLIAS VENTANAS, SALVO LAS DOS BATERIAS DE BAÑOS QUE CUENTAN CON DUCTOS PARA V PERMITIR SU BUENA VENITILACIÓN

.

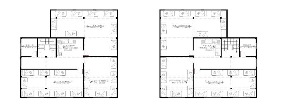
PLANTA DE DISTRIBUCION
ESQUEMA FUNCIONAL HALL EQUIAJES 66 93 M2 BATERÍA DE BAÑOS 42 62 M2 EMBARQUE 762 20 M2 COMPRA DE BOLETOS 146 05 M2 2 TIENDAS 13 86 M2 BATER A DE BAÑOS 42 62 M2 EQUIAJES 66 93 M2 MIN VAN 371 13 M2 ENCOMIENDA 365 34 M2 CIRCULAC ÓN 31 17 M2 HALL 148 58 M2 3 TÉLEFONOS 6 56 M2 3 CAJEROS 6 43 M2 CIRCULAC ÓN 31 17 M2 TÓPICO 72 61 M2 EXHIBIC ÓN 71 05 M2 DESEMBARQUE 762 20 M2 C RCULACIÓN VERT CAL EMBARQUE EQUIPAJES SS HH TÓPICO ENCOMIENDA DESEMBARQUE EQUIPAJES SS HH EXHIBIC ÓN MINIVAN CIRCULAC ÓN VERTICAL T ENDAS COMPRA DE BOLETOS SALIDA INGRESO

SEGUNDO NIVEL

SOLUCIONES DE VENTILACIÓN E ILUMINACIÓN

EL PATIO DE COMIDA POSEE EN LA PARTE DE ADELANTE UN PATIO AL AIRE LIBRE DONDE SE PERSIVE EL INGRESO DE VIENTO NATURAL. EN LA PARTE DE ATRAS HAY UN GRAN MURO CORTINA PARA APROVECHAR TAMBIEN EL INGRESO DE ILUMINACIÓN, CABE RESALTAR QUE ESTE VIDRIO SERA UN POCO OSCURO PARA EVITAR QUE EL INGRESO DEL SOL ENTRE CON FUERZA E INCOMDE A LAS PERSONAS QUE ESTAN OCUPANDO DICHO ESPACIO. EN CUANTO A LOS OTROS ESPACIOS SE CUENTA CON UNA VENTILACIÓN E ILUMINACIÓN DEBIDO A LAS VENTANAS,

.

PLANTA DE DISTRIBUCION
ESQUEMA FUNCIONAL CIRCULACIÓN VERTICAL AGENCIA BANCAR A 2 C RCULACIÓN VERT CAL PATIO DE COMIDAS EXTERIOR VENTA DE COM DA HALL 158 66 M2 TIENDAS 105 10 M2 SS HH 56 79 M2 CIRCULAC ÓN 31 17 M2 AGENCIA BANCAR A 1 157 09 M2 SOURVENIR 31 17 M2 ADM NISTRACIÓN 179 40 M2 PAT O DE COMIDAS 726 89 M2 SS HH 56 79 M2 AGENC A BANCARIA 2 157 09 M2 AGENCIA BANCAR A 4 157 09 M2 AGENCIA BANCARIA 3 157 09 M2 VENTA DE COM DA 319 81 M2 T ENDAS DE DULCES 54 22 M2 CAFETERIAS 179 40 M2 PAT O DE COMIDAS EXTERIOR 196 41 M2 TIENDAS 43 85 M2 FARMAC A 61 25 M2 PLAZA 38 5 M2 PATIO DE COMIDAS SOURVENIR SOURVENIR AGENCIA BANCARIA 1 AGENCIA BANCAR A 3 AGENCIA BANCARIA 4 PATIO DE COMIDAS HALL HALL SS HH SS HH T ENDAS ADMINISTRACIÓN FARMAC A TIENDAS CAFETERIAS

CORTES

CORTES
CORTE B-B CORTE A-A

CORTE C-C

CORTES
CORTE D-D

CORTES

CORTE E-E

CORTES

CORTE EN PERSPECTIVA

CORTE EN PERSPECTIVA ZONA DE INGRESO PRIMER NIVEL

CORTE EN PERSPECTIVA ZONA DE ESPERA EMBARQUE PRIMER NIVEL

ELEVACIONES

ELEVACIONES

INGRESO PEATONAL

INGRESO Y SALIDA DE BUSES
ELEVACIONES
INGRESO PEATONAL INGRESO Y SALIDA DE BUSES

ELEVACIONES

ELEVACIONES

ELEVACIÓN FRONTAL

ELEVACIÓN POSTERIOR

E. LATERAL DERECHA

E. LATERAL IZQUIERDA

PLANO DE TECHOS TECHO TERMINAL

ESTRUCTURA
TERRESTRE

PLANO DE TECHOS

TECHO ENLLANTE Y DESENLLANTE

TECHO CUARTOS DE TERRAMOSAS Y CHOFERES TECHO CUARTO DE MAQUINAS

ESTRUCTURA
VIGAS COLUMNAS PREDIMENSIONAMIENTO PREDIMENSIONAMIENTO: 0.75 M X 0.80 M 0.75 M X 0.75 M FÓRMULA H= 8M / 10 = 0.80
ESTRUCTURA (PLANTA)
VIGA 0 75M X 0 80M COLUMNA 0 75M X 0.75M LOSA 0.30 M PRIMER NIVEL SEGUNDO NIVEL ESTRUCTURA (VOLUMETRÍA)
8:07AM
10:02AM
1201AM
2:01PM 15DEOCTUBRE 4:00PM 15DEDICIEMBRE 6:03PM ASOLEAMIENTO
15DEFEBRERO
15DEABRIL
15DEJUNIO
15DEAGOSTO
GRÁFICOS

LA DIRECCIÓN DEL VIENTO ES DE SUR-ESTE A NORTE OESTE, POR TAL MOTIVO LOS VIENTOS ESTRIAN INGRESANDO DESDE LA PARTE POSTERIOR DEL TERMIANL TERRESTRE, DONDE SE HAN AGREGADO LAS SUFICIENTES VENTANAS Y TRAMAS PARA SU CORRECTA VENTILACIÓN.

GRÁFICOS

VIENTOS

PRIMER NIVEL

VEGETACIÓN
EMPLEADA
NIN
ÁRBOL TAMARINDO ÁRBOL NIN PALMER A ARECA ÁRBOL ALGARROBO ÁRBOL NIN ÁRBOL

HIEDRA INGLESA

SIGNOGIO

FACHADA

VOLUMETRÍA

DIAGRAMA DE COMPOSICIÓN
PLANIMETRÍA
TERMINAL TERRESTRE PIURA 2022 Posciónparauna mejorventlacón Norompe a tramaurbana TRADICIONES El Termina Terrestre se encuentra entre la Av Sánchez Cerro y la Vía Evitamiento Norte Cerca al trébol de ingreso de la ciudad de Piura Este es ideal para todo tipo de usuario, desde los más pequeños a los más grandes NORTE TUMBES Y LA REPÚBLICA DEL ECUADOR SUR: LAMBAYEQUE ESTE: CAJAMARCA Y EL ECUADOR OESTE OCÉANO PACÍF CO REG ÓN: PIURA D STRITO: VE NT SÉIS DE OCTUBRE SUPERFICIE: 2 HECTÁREAS MÁ 1 DE EXPANCIÓN CONTEXTO: EL DEPARTAMENTO DE P URA ESTÁ UBICADO EN LA PARTE NOR OCCIDENTAL DEL PAÍS T ENE UNA SUPERF CIE DE 35 892 KM2 OCUPANDO EL 3 1 POR CIENTO DEL TERR TORIO NACIONAL limites: AV SÁNCHEZ CERRO V A COLECTORA NORTE VÍA COLECTORA SECUNDARIA V A EV TAMIENTO NORTE P URA EL TERMINA TERRESTRE CUENTA CON 12 AGENCIAS, EMBARQUE, DESEMBARQUE, UN TOPICO, ENCOMIENDAS TERMINAL DE MINIVANS, ZONA DE SERVICIOS Y UN ESPACIO SOCIAL EN EL SEGUNDO PISO TOPOGRAFÍA UNIVERSIDAD CESAR VALLEJO ESTUDIANTE: DOCENTE: FECHA: 28 11 22 CICLO: VI TEMA JUÁREZ GUTIÉRREZ ASHELLY ORTIZ CORNEJO FERNANDA DR.ARQ FREDY ROJAS TERMINAL TERRESTRE, PIURA 2022 N.º LAMINA 01 CURSO: ARQUITECTURA Y EQUIPAMIENTO METROPOLITANO embarque embarque FACHADA Y ESTACIONAMIENTO APUNTES ARQUITECTONICOS MURO PERIMÉTRICO IDEA RECTORA AL REALIZAR EL TERM NAL TERRESTRE SE TOMO COMO IDEA RECTORA EL BUS, ESTE SE D VID Ó EN TRES ESPACIOS LOS CUALES SE LLEGARON A UNIR POR 2 TRIANGULOS PARA FORMAR LA UNIDAD Monumenta Entornoconfác acceso VÍAEVITAMIENTONORTE PIURA AVSÁNCHEZCERRO CONCEPTUALIZACIÓN SUCULEMTA ALGAROBO MOLLE PONCIANA PELICANO GARZA AGUILUCHO GOLONDR NA FLORA Y FAUNA PIURA ES UNA REGIÓN ESCONDE UNA SERIE DE TRADICIONES CATÓLICAS Y MANIFESTAC ONES CULTURALES QUE SE REM TEN A SU PASADO PREHISPÁN CO TONDERO SEMANASANTA PRIMER PISO FLUJOGRAMAS SEGUNDO PISO
UNIVERSIDAD CESAR VALLEJO ESTUDIANTE: DOCENTE: FECHA: 28 11 22 CICLO: VI TEMA JUÁREZ GUTIÉRREZ ASHELLY ORTIZ CORNEJO FERNANDA DR.ARQ FREDY ROJAS TERMINAL TERRESTRE, PIURA 2022 N.º LAMINA 02 CURSO: ARQUITECTURA Y EQUIPAMIENTO METROPOLITANO PLANO DE TECHO MAYA ESTRUCTURAL CORTE A A CORTE B B CORTE C C CORTE D D CORTE E E PRIMER NIVEL SEGUNDO NIVEL INGRESO PEATONAL INGRESO Y SALIDA DE BUSES ELEVACIÓN FRONTAL ELEVACIÓN POSTERIOR ELEVACIÓN LATERAL DERECHA ELEVACIÓN LATERAL IZQUIERDA
JuarezGutierrezAshellyKiaraSuset OrtizCornejoMaríaFernanda "Loscambiosmásnotablesdel espacioennuestrasociedad,solose puedenlograralaluzdela Arquitectura" "Laarquitecturaesunarteatravés delcualelserhumanopuede transformarlarealidad,dándole formaybelleza".

Turn static files into dynamic content formats.

Create a flipbook
Issuu converts static files into: digital portfolios, online yearbooks, online catalogs, digital photo albums and more. Sign up and create your flipbook.