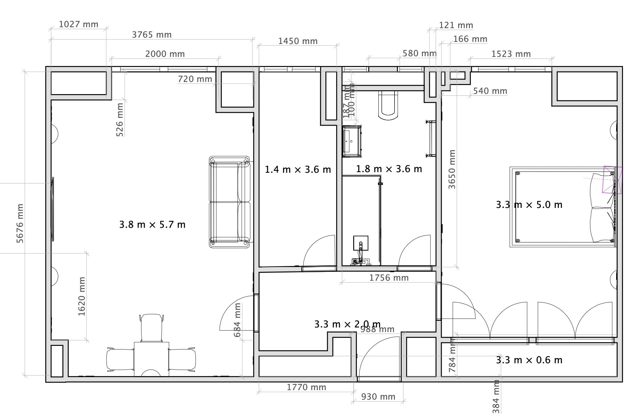
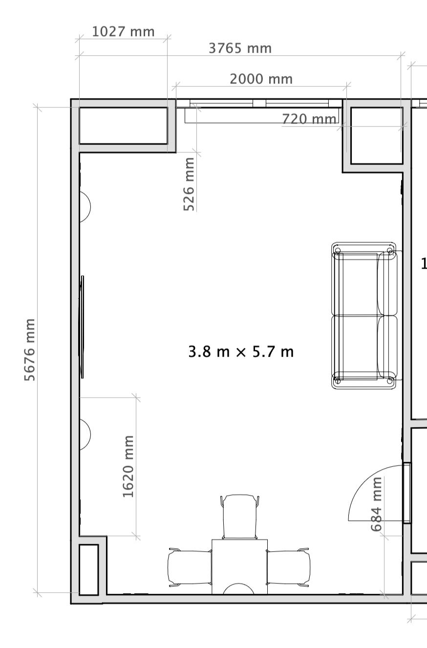
Flat 915 Drawings

Page 1

Nell Gwynn House

Version 001 21 May 2024 Flat 915 NGH

Turn static files into dynamic content formats.

Create a flipbook
Issuu converts static files into: digital portfolios, online yearbooks, online catalogs, digital photo albums and more. Sign up and create your flipbook.
Flat 915 Drawings by Adivalter Sfalsin - Issuu