Flat 213 NGH

Page 1

Nell Gwynn House

Flat 213 NGH Version 001 15 Aug 2023
Floor plan
3D
3D
3D
3D
3D
3D
3D
3D

Proposed internal doors.

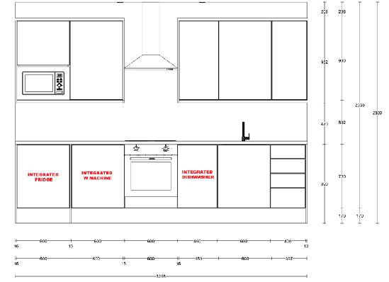
Proposed Kitchen.
Proposed
Kitchen.

KITCHEN

Worktop: to be in white colour

Splash Back: White Glass

KITCHEN

Stainless steel 1 Bowl Sink

HOB: AEG Competence

HK634060XB 58cm Ceramic

Hob - Black / Stainless Steel

KITCHEN

HOB: AEG Competence

HK634060XB 58cm Ceramic

Hob - Black / Stainless Steel

KITCHEN

HOB: AEG Competence

HK634060XB 58cm Ceramic

Hob - Black / Stainless Steel

KITCHEN

RADIATOR

TYPE 22 DOUBLE-PANEL

DOUBLE CONVECTOR

RADIATOR

FLOORING

Texas White Ash RKP8105

To run: Living room area, raised bed platform and hallway.

FLOORING

Texas White Ash RKP8105

To run: Living room area, raised bed platform and hallway.

FLOORING

Texas White Ash RKP8105

To run: Living room area, raised bed platform and hallway.

BATHROOM

Shower

Grohe Thermostatic Shower, Chrome

This Thermostatic complete shower set is supplied with a Dual Control Exposed Bar Valve and an Adjustable Rail, Handset and Overhead Head.

Horizontal Swivable 390mm Projection Shower Arm Exposed Thermostatic Shower

Allows change between shower head and hand shower

BATHROOM

Shower

Grohe Thermostatic Shower, Chrome

1 Spray Patterns: Rain

Grohe Turbostat Compact Cartridge

Grohe Dreamspray Perfect Spray Pattern

Grohe Starlight Chrome Finish

Speedclean Anti-Limescale System

BATHROOM

Bathroom Tap

GROHE Basin Tap with Smooth

Body, tap mixer

BATHROOM

Grohe Construction Cosmopolitan Filing Basket

GROHE BauCosmopolitan Soap basket (S) – convenient bathroom style

GROHE BauCosmopolitan – modern yet timeless design that is perfect for a wide range of bathroom looks! The small version of the soap basket is the cleanest and most elegant way of keeping your soap bar handy and dry.

BATHROOM URGENT REPLY NEEDED

Basin with vanity unit

Supplied with soft close draws - 600mm wide wall hanging.

BATHROOM

Basin with vanity unit

Supplied with soft close draws - 600mm wide wall hanging.

BATHROOM

Basin with vanity unit

Supplied with soft close draws - 600mm wide wall hanging.

BATHROOM

Tavistock Endure

Tavistock Endure 2 Door Mirror Cabinet, 65 x 65 x 13.6 cm

BATHROOM

Tavistock Endure

Tavistock Endure 2 Door Mirror Cabinet, 65 x 65 x 13.6 cm

BATHROOM

Tavistock Endure

Tavistock Endure 2 Door Mirror Cabinet, 65 x 65 x 13.6 cm

BATHROOM

Electric Chrome Straight Heated Towel Rail

High quality polished chrome plated finish

300W thermostatic heating element included

Wiring can be installed either side

Included anti-freeze radiator inhibitor fluid

T piece sold separately for dual fuel function

Tested in accordance to British Standard EN 442

BATHROOM

LED Backlit Extractor Fan with Overrun Timer

KITCHEN

HansGrohe Kitchen Sink Mixer

Tap

Grohe Kitchen Sink Mixer Tap with Flat Spout Chrome

Turn static files into dynamic content formats.

Create a flipbook
Issuu converts static files into: digital portfolios, online yearbooks, online catalogs, digital photo albums and more. Sign up and create your flipbook.