


![]()



Arquitecto de 23 años graduado de su primera maestría en METODOLOGÍA Y GESTIÓN
B I M D E P R O Y E C T O S , CONSTRUCCIÓN Y ACTIVOS INMOBILIARIOS (BUILDING INFORMATION MODELING PROJECT, CONSTRUCTION & FACILITY MANAGEMENT). en la ETSAM de la UNIVERSIDAD POLITÉCNICA DE MADARID, ESPAÑA.
Este portfolio se basa en un resumen de todo lo que se abarcó en el proceso, el primer bloque de introducción, en el segundo al desarrollo e implementación y finalizando con una recopilación del TFM culminado por el equipo.
Actualmente trabaja medio tiempo desde su natal Trujillo en la constructora PLANDUARQ EIRL. en el área de Expedientes Técnicos de Módulos de Vivienda.
Gmail: barroyouceda.12@gmail.com
Dirección: Madrid, España Instagram: brunooarroyou Linkid: BRUNO ARROYO
EXPERIENCIA DE TRABAJO
Trabajo tiempo completo PLANDUARQ E.I.R.L
Expedientes Técnicos de Módulos de Vivienda - VIS 2021-24
TRIPLE TITULACIÓN en Máster en Metodología y Gestión BIM de Proyectos, Construcción y Activos Inmobiliarios (BUILDING INFORMATION MODELING PROJECT, CONSTRUCTIONS & FACILITY MANAGEMENT). UPM, Madrid.
Arquitecto del Colegio de Arquitectos del Perú
Egresado de la UNIVERSIDAD PRIVADA ANTENOR ORREGO 2021
SOFTWARE
Revit Allplan
AutoCad OpenBuilding
Sketchup Presto
Enscape Archicad
Lumion Rhino
Photoshop Illustrator
Lightroom CorelDRAW
Midjourney Veras
Synchro 4D
MENCIONES
Segundo Lugar Semana de arquitectura UPN, Marathon arquitectónico 2017
Participante Semana de arquitectura UPAO, Marathon arquitectónico 2018
Mención honorífica PROGRAMA SIEH 20 UNIVERSIDAD NACIONAL DE SAN AGUSTÍN DE AREQUIPA 2020
Diseño de Maqueta artesanal para la nueva sede del GOBIERNO REGIONAL DE LA LIBERTAD en escala 1/125 2021
Mención honorífica APROBADO POR UNANIMIDAD CON VALORACIÓN SOBRESALIENTE Sustentación de tesis para optar el grado de Arquitecto 2023
Mención honorífica. PRESENTACIÓN DE TFM (TRABAJO DE FIN DE MÁSTER). LEVANTAMIENTO Y MODELADO DE CONDICIONES EXISTENTES DE LA ETSAM. 2024
PortFolio | Bruno Arroyo
Ejercicio Practico | Herramientas de modelado
Casa Turégano
Pozuelo de Alarcón, Madrid, 1988
Alberto Campo Baeza
MANUAL DE APLICACIÓN BIM
La maestría realizado en la UPM se dividieron en 3 bloques, el primero de ellos fue una introducción a los contenidos principales a base de un manual desarrollado por la cátedra Utilizamos un ejemplo genérico para el seguimiento del temario y para ello, tuvimos que entender el proyecto ya construido, a base de datos histórico, planimetría, entrevistas, ubicación, etc.

Imagen: Vista aérea del modelado ejercicio arquitectónico

Imagen: Vista trasera del modelado ejercicio arquitectónico
Casa Turégano
Pozuelo de Alarcón, Madrid, 1988
Alberto Campo Baeza
PROGRAMA DE IMPLEMENTACIÓN BIM.
Se delimitan objetivos y beneficios, se opta por un software, se arma en equipo BIM con roles y responsabilidades con uso de BIM 360.
CRITERIOS GENERALES
Se basaron en el tamaño máximo de archivos, nivel de desarrollo, criterios de modelado (generales, específicos para mediciones en anteproyecto, proyecto básico y proyecto de ejecución) y formato de intercambio de información por fases.
LOSCRITERIOSDECODIFICACIÓN
Son estructurados para los apartados generales, archivos, sub proyectos, vistas, plantillas de vista, planos, familias y tipos, niveles y rejillas, filtros, materiales, parámetros y tablas de planificación.
PLANTILLADEPROYECTO
Las plantillas que se arman sirven para los set de planos y vistas, tablas de planificación y criterios de visualización.
REQUERIMIENTOSINICIALES
Los requerimientos iniciales están basados en segregación de archivos, información de los proyectos y revisiones, georreferenciación, sub proyectos de arquitectura, estructura e instalaciones, concluyendo con la supervisión.
PROCEDIMIENTOSGENERALESBIM
Por último los procedimientos generales BIM se desarrolla la producción de planos, detección de interferencias, exportación de archivos y obtención de mediciones.

Imagen: Vista frontal modelado ejercicio arquitectónico


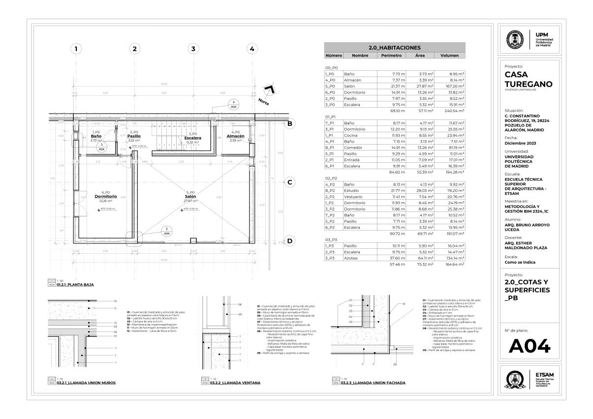
Imagen superior: Plano A-01 SITUACIÓN Y EMPLAZAMIENTO
Imagen inferior: PLANO A-02 DISTRIBUCIÓN GENERAL
Ejercicio Practico
Planimetría de Situación, Emplazamiento y Distribución General
En la parte de la entrega final de este bloque los requisitos consistían en presentar un recopilado de planos arquitectónicos de situación y emplazamiento, distribución, superficies, carpintería, etc.
Con las herramientas presentadas por los docentes, se presentan, junto a las vistas creadas de cada nivel con una escala y nivel de detalle, una leyenda de color en relación a los filtros de vista aplicados a las habitaciones en las vistas de cada nivel.
Su implementación en la arquitectura ha resultado fundamental para optimizar la eficiencia del proceso de diseño. Al utilizar BIM, procesamos los datos en información de las distintas especialidades y así desarrollar los objetivos comunes de manera colaborativa usando un mismo lenguaje de forma integrada.


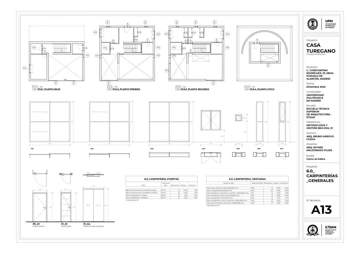
Imagen superior: Plano A-01 SITUACIÓN Y EMPLAZAMIENTO
Imagen inferior: PLANO A-02 DISTRIBUCIÓN GENERAL
Ejercicio Practico
Planimetría de Situación, Emplazamiento y Carpintería general
Las herramientas del software nativo BIM, tienen en su repertorio las tablas de planificación, secciones de detalle, etiquetas de habitación, cotas, niveles y rejillas.
Por la parte de familia y tipo, se pueden administrar sus datos, entre ellos su nomenclatura, ubicación, dimensiones, materiales, proveedor, garantía, entre otros parámetros.
La representación gráfica es un factor importante de este programa, y una herramienta imprescindible, al hablar de los filtros de vista son la manera de Revit de crear grupos de selección inteligentes para poder controlar su visibilidad y o t r a s m o d i fi c a c i o n e s fácilmente. Cuando se crea un filtro, se definen una serie de reglas o criterios, y solamente los objetos que cumplen con esos criterios serán afectados por el filtro.

Imagen: Sección lateral del modelado ejercicio arquitectónico con plumilla de color definido



Imagen arriba: Vista desde BIMx del modelado mas la sección transversal
Imagen centro: Vista desde BIMx de dos tipos de secciones
Imagen abajo: Vista desde BIMx del modelado mas la sección paralela
Ejercicio Practico
Graphisoft Archicad y modelo Hyper-Modelo de BIMx
El siguiente software implementado en esta maestría fue Archicad, resaltando sus fases de documentación, de las cuales, la ultima se trato de publicar el archivo en la plataforma de BIMx, donde se nos permitía abrir y explorar interactivamente el modelo en 3D, que gráficamente esta anexado a la planimetría elaborada en Archicad. En este motor 3D se puede navegar por la jerarquía del indice de las carpetas o modelos 3D, mostrando la pre visualización e información básica.
Archicad introduce una forma flexible de clasificar elementos de acuerdo con cualquier sistema de clasificación estándar nacional o de la empresa y pone a disposición Propiedades de Archicad que se pueden conectar a cualquier elemento o zona de construcción, basándose en cualquier Clasificación de Elementos.


Imagen arriba: Indicaciones para el modelado del ejercicio arquitectónico
Imagen abajo: Vista frontal modelado ejercicio arquitectónico


Imagen arriba: Vista axonometrica del modelado ejercicio arquitectónico en Nemetshek Allplan
Ejercicio Practico
Nemetshek Allplan modelo arquitectónico
El proceso de modelado arquitectónico que seguimos en Nemetschek Allplan comienza con la creación de un proyecto en el que se definen los parámetros básicos y se organizan los archivos y estructuras de datos. La siguiente fase incluye la adición de detalles como escaleras, techos y mobiliario, asegurando precisión y coherencia en c a d a c o m p o n e n t e Finalmente, se generan visualizaciones y planos detallados, facilitando la revisión y presentación del proyecto a los clientes y otros interesados. Allplan también permite la colaboración en tiempo real con otros profesionales a través de la plataforma BIM, asegurando una integración y coordinación efectiva en todas las etapas del diseño y construcción.

Imagen arriba: Indicaciones para el modelado del ejercicio arquitectónico
Imagen abajo: Vista frontal modelado ejercicio arquitectónico


Imagen arriba: Vista frontal modelado ejercicio arquitectónico
Imagen abajo: Vista frontal modelado ejercicio arquitectónico
Ejercicio Practico
OpenBuilding Bentley modelo arquitectónico
A pesar de que esta aplicación es multi disciplina, indagamos solo en la parte del modelado del diseño arquitectónico implementando los flujos de trabajo BIM, produciendo documentación relacionada. abarcamos el diseño colaborativo y visualización avanzada Al igual que Revit también maneja la infamación de familias y tipos Al momento de exportar, existe una opción en pdf 3D, este archivo abierto en el lector de Acrobat puede abrir las jerarquías de carpetas que permite prender y apagar dichas vistas para una mejor visualización.
Coloquio sobre BIM en la practica
Los ejercicios otorgados por los docentes consistían en compartir puntos de vista sobre el BIM en distintas fases del proyecto.
VENTAJAS DE LA IMPLEMENTACION BIM EN EL PROCESO DE DISEÑO
La implementación de BIM en el proceso de diseño arquitectónico ofrece diversas ventajas. En primer lugar, permite una mejor colaboración y comunicación entre los diferentes actores involucrados en el proyecto, como arquitectos, ingenieros y contratistas, al proporcionar una plataforma centralizada para compartir y acceder a la información. Además, el uso de BIM mejora la precisión y la eficiencia en la planificación y el diseño, ya que permite analizar y visualizar el proyecto en etapas tempranas, identificando posibles problemas y optimizando el rendimiento y la sostenibilidad del edificio.
DE LA IMPLEMENTACIÓN BIM EN PROYECTOS ARQUITECTÓNICOS
La implementación de BIM en proyectos arquitectónicos consta de tres etapas principales: pre-implementación, implementación y postimplementación. Durante la etapa de preimplementación, se recopila información sobre el proyecto y se establecen los objetivos y metas para su implementación BIM. En la etapa de implementación, se lleva a cabo la formación y capacitación del equipo, se establecen los estándares y protocolos de trabajo, y se comienza a utilizar el software BIM para la creación y gestión de los modelos. Finalmente, en la etapa de post-implementación, se evalúa el proceso de implementación y se realizan ajustes y mejoras en función de los resultados obtenidos.
Coloquio sobre BIM en la practica
Los ejercicios otorgados por los docentes consistían en compartir puntos de vista sobre el BIM en distintas fases del proyecto.
La implementación de BIM en la arquitectura presenta una serie de retos y consideraciones importantes a tener en cuenta. Uno de los principales desafíos es el cambio cultural que implica adoptar esta metodología, ya que requiere una forma de trabajar más colaborativa y compartida entre los diferentes actores del proyecto. Otro reto es la capacitación y formación del personal en el uso de las herramientas y tecnologías BIM, lo cual es fundamental para aprovechar al máximo sus beneficios. Además, se debe tener en cuenta la necesidad de establecer estándares y protocolos de trabajo para garantizar la calidad y la consistencia de los modelos BIM.

Imagen: Vista aérea del modelado ejercicio arquitectónico
| Bruno Arroyo
Toma de datos del proyecto
Los ejercicios otorgados por los docentes consistían en escanear los sectores de la escuela, proyecto que usaremos para el TFM.
El escaneo láser es un proceso de medición para obtener información precisa sobre el tamaño, forma y condiciones de diseño de los entornos construidos mediante la adquisición de miles de puntos en el espacio 3D, generalmente con la adición de información de intensidad o color. El resultado es una representación finita del espacio conocida como Nube de Puntos.

Imagen: Recogida de datos con el Escáner láser NavVis VLX 3


Imagen izquierda: Toma de datos con el Escáner láser Trimble X7
Imagen derecha: Resultado de la nube de puntos del escaneo


Imagen arriba: Vista del escaneo completo de la ETSAM de la UPM. Imagen abajo: Vista de la imagen 360 recolectada en el hall principal de la escuela.
de datos
Trabajo de campo en la ETSAM de la UPM
Siguiendo con el Manual de buenas prácticas de escaneo láser:
1 Identificación del uso previsto para los datos de escaneo láser.
2. Conocimiento del alcance del proyecto.
3. Conocimiento de entregables requeridos.
4. Identificación del espacio físico dónde se aplica el escaneo láser y establecimiento de puntos de control antes del escaneo.
5 Evaluación del tiempo disponible para entregar el producto.
Para el desarrollo de la captura de datos se ha partido de un escaneado previo realizado en la convocatoria anterior En la presente promoción el escaneo realizado fue guiado por Arturo Zauzo. Tras la finalización del escaneado, se procesó el conjunto de datos tomado por el láser escáner con el software Trimble Realworks.


Imagen izquierda: Toma de datos con el Ricoh Theta Z1 Imagen derecha: Recopilado de fotos 360° en la aplicación del movil vinculado a la camara Ricoh Theta Z1
Resumen del TFM en MMGBIM23241C
Levantamiento y Modelo de Condiciones
Existentes de la ETSAM
Este resumen documenta el proceso académico desarrollado en el Máster en Metodología y Gestión BIM de proyectos, construcción y activos inmobiliarios (Building Information Modeling Project, Construction & Facility Management).
La estructura de trabajo se organiza a través de una jerarquía de roles diseñada para asegurar una colaboración eficiente en la creación de un modelo de información. En este esquema, la dirección del Máster actuó como cliente adjudicador, el cuerpo docente asumió el papel de consultor y auditor, y el Equipo de Desarrollo BIM MAPEC se desempeñó como la empresa adjudicataria.

Imagen: Comparativa entre diferentes vistas, existente, nube de puntos y modelado, grafismo y renderizado. Fuente: Elaboración propia.

PortFolio | Bruno Arroyo
Objetivos del TFM en MMGBIM23241C
Estado de la cuestión sobre el uso de la metodología y análisis de gestión BIM en proyectos
El Trabajo Fin de Máster tiene como objetivos principales aplicar todo el conocimiento adquirido durante el transcurso del máster de una manera coherente en un proyecto profesional piloto, el Levantamiento y Modelado BIM de las Condiciones existentes de ETSAM.
Para su desarrollo, se han fijado los siguientes objetivos específicos:
1. Recopilación de antecedentes
2. Toma de datos de las condiciones actuales del activo
3. Definición de una Planificación y Gestión BIM
4. Modelado de la ETSAM
5. Extraccion de resultados

Imagen: Patio entre los pabellones de la Escuela Técnica Superior de Arquitectura de Madrid (ETSAM). Fuente: Elaboración propia.
PortFolio | Bruno Arroyo
Antecedentes del TFM en MMGBIM23241C
Entender el proceso constructivo histórico de la ETSAM ha sido fundamental para poder conocer su identidad arquitectónica, técnicas constructivas y cambios estructurales.
Esto no solo ha permitido garantizar la precisión y eficiencia del modelo BIM, sino que también facilita la división de modelos, así como la toma de decisiones informadas durante el desarrollo de modelado y la gestión del edificio.
Esto ayuda en el desarrollo de sus actividades, sus edificios y cada proyecto de reforma o ampliación, incluyendo diseño, construcción, puesta en marcha y operación. Teniendo en cuenta los Requisitos de Información de la Organización y los Requisitos de Información del Activo tal y como se describen en la Serie de Normas ISO 19650.
El Levantamiento de las condiciones existentes de la ETSAM se centra en un enfoque zonificado y metodológico, con la continua supervisión de tres BIM Coordinadores de las diferentes disciplinas y bajo la dirección de un BIM Manager. Cada grupo de trabajo (3 grupos), analizará, estudiará y examinará los datos topográficos y las condiciones existentes entregadas por parte del cliente, representados a través de una nube de puntos y diversas fotos 360°.
Este proceso detallado implica la creación de modelos precisos de varias disciplinas (ARQ, EST, INS y definición del entorno), usando el BEP, Metodología y Gestión BIM de la información junto a la documentación detallada del TFM.
PortFolio | Bruno Arroyo
Planificación y Gestión
Delimitación de la Parte Contratante y Parte Contratada (Equipo BIM MAPEC)
EQUIPOS
El proyecto ha sido una tarea compleja y colaborativa, llevada a cabo por el equipo. El éxito del proyecto se debe en gran medida a la definición de roles y responsabilidades dentro del equipo, permitiendo una gestión eficiente y un desarrollo coordinado conforme a los requisitos del cliente y los estándares internacionales ISO 19650.
Establecido en el documento de Requisitos de Información expuesto por el cliente, en dónde se define el Número del Hito, Nombre del Hito, Fecha establecida para la entrega y La información necesaria por Entrega. Así mismo con los flujos de trabajo y división y gestión del modelo.
Su objetivo principal es garantizar la coordinación y coherencia entre todos los agentes intervinientes en el proyecto. Es importante resaltar que el BEP no solo funciona como una guía operativa, sino que también tiene un carácter contractual. Cumpliendo con los requisitos de información del proyecto, cumplimiento de los requisitos, objetivo y usos, gestión, desarrollo colaborativo del proyecto y especificaciones técnica.
la utilidad prioritaria del MIDP radica en la gestión efectiva de la entrega de información a lo largo del proyecto. Incluye un desglose detallado del volumen de suministro, modelos, plantillas, planos, documentos, etc., presentados en formade lista estructurada.
| Bruno Arroyo
“Fuente de información acordada para cualquier proyecto o activo, para recopilar, gestionar y difundir cada contenedor de información a través de un proceso gestionado. Un flujo de trabajo de CDE describe los procesos que se utilizarán y una solución de CDE puede proporcionar la tecnología para soportar esos procesos”.
Fuente : Análisis de la implantación del CDE en Obra - BuildingSMART Spanish Chapter
NOMENCLATURA
La nomenclatura consiste en la conceptualización de una serie de códigos definidos y ordenados con una estructura comprensible, con el fin último de poder hacer una adecuada, ordenada y eficiente gestión de la información del proyecto.
Uno de los aspectos fundamentales de un CDE es la incorporación de los contenedores en el mismo. Dichos contenedores, deben estar siempre localizados en “estado” del documento, de manera estandarizada siguiendo la Norma UNE EN ISO 19650-1: WIP, Shared, Published y Archived.
Cumpliendo un recorrido desde:
1. Inicio del Proyecto
2. Creación de plataforma interna
3. Inicio del Modelado
4. Entregables con el Cliente
5. Comunicación y aprobación del grupo
6. Revisión y Evaluación
7. Comunicación de Resultados
8. Documentación y Registros
9. Finalización del Modelo BIM

Imagen izquierda: Esquema hitos de proyecto según la definición de LOD exigida por el cliente en cada entregable.
Imagen derecha: Axonometría de modelos Fuente: Elaboración propia.
Desarrollo del Modelo
Criterios de Modelado Generales
NORMATIVA Y ESTANDARES BIM
UNE-EN ISO 19650-1
UNE-EN ISO 19650-2
PAS 1192-3:2014
BS 1192-4:2014
GUBIM Class BIM Forum LOD Specif. 22 BUILDING SMART
DEFINICION Y APLICACION DEL LOIN Y LOD
NO GEOMETRICOS (INFO) LOD 300
GEOMETRIA LOD 500
CONTENIDO DE MODELOS
ARQ, EST, INS y ENTORNO
MODELADO DE CONDICIONES EXISTENTES
Las tolerancias acordadas en cada contenido de modelo.
Tener vinculados los modelos de cada especialización



Desarrollo del Modelo
Criterios de Modelado Específicos
La estructura es la disciplina inicial en el proceso de modelado de condiciones existentes, ya que proporciona las bases esenciales para los modelos siguientes, estableciendo los límites y elementos indispensables para la estabilidad del edificio.
Para esta disciplina, la base principal es la nube de puntos junto con las fotos 360, ya que estos documentos permiten especificar con detalle el modelo, basándose en información real y actualizada del activo.
Se crearon subproyectos MEP que fueron asignados a todos los modelos del proyecto, lo que permitió una mejor gestión y organización del proyecto, respetando el LOD asignado a esta especialidad.
Calidad de Modelo del TFM
Plan de Calidad de Intercambio de Información.
CONTROL DE CALIDAD
Para el Equipo establecer un Plan de Calidad en el proceso BIM fue esencial para el éxito del proyecto. Este plan no solo ayuda a optimizar y asegurar la eficiencia en los procesos de modelado, sino que también proporciona una guía clara y estructurada para todas las actividades del proyecto. Al definir procedimientos específicos para la revisión, verificación y validación de los modelos, el Plan de Calidad asegura que cada etapa del desarrollo cumpla con los más altos estándares de precisión y coherencia.

Imagen: Axonometría de las especialidades del proyecto de la Escuela Técnica Superior de Arquitectura de Madrid (ETSAM). Fuente: Elaboración propia.
Calidad de Modelo del TFM
Intercambio de información
Dentro de esta fase el BIM Manager y Los BIM Coordinator dan inicio a la revisión los requeriminetos del cliente, posterior a ello se designan los requerimientos y culmina asignando las tareas pertinentes. En esta fase de delimita la asignación de nomenclatura, chequeos en Nomenclator y para las tareas repetitivas, Dynamo
Los BIM Modelers analizan las tareas a ejecutar para aplicar el Estandar BIM, ejecutando las mismas y yendo a revisar los Warnings producidos, si estos son resueltos, se publican en BIM360, las cuales pasan a una revisión de publicación, si estas son aprobadas, se notifica al BIM Coordinator para Revisar la Tarea Publicada, cerrando la fase con la creación y asignación de Issues BIM 360.
Esta fase se comunica con la anterior, si la tarea es resulta se aplica el Model Checker, para ser Notificada al BIM Manager, haciendo un chequeo de interferencias en Navis, si todo es aprobado se continua a la siguiente fase, en cambio si es una respuesta negativa, se exporta e importan las interferencias de Navis para asignar a un responsable.
Esta ultima se trata de enviar los requerimientos al Cliente mediante el BIM Manager, finalizando con la Revisión por Baywatch, caso contrario se vuelve a iniciar desde la fase inicial.

Imagen: Esquema de Control y aprobación de necesidades por parte del Equipo de Desarrollo BIM MAPEC. Fuente: Elaboración propia
Explotación del Modelo
Usos BIM aceptados y Usos BIM adicionales
CONTROL Y APROBACIÓN DE PROGRAMA DE NECESIDADES
El objetivo de este Uso BIM es desarrollar un modelo BIM detallado de las condiciones existentes de la Escuela Técnica Superior de Arquitectura de Madrid (ETSAM), cumpliendo con los requerimientos establecidos en los Requisitos de Información (EIR) expuestos por parte del cliente y el contrato.
Abarcando:
1. Cumplimiento de Directrices del EIR y Contrato
2. Base para el Diseño de Reformas Futuras
3. Control del Programa de Necesidades
4. Colaboración Multidisciplinaria
5. Documentación Completa



Imagen: Vista de las opciones de búsqueda de habitación y órbita de esculturas en la pagina web creada por el equipo BIM MAPEC para la escuela.
Explotación del Modelo
Usos BIM aceptados y Usos BIM adicionales
Treedis es una plataforma web avanzada con la que se crea el recorrido virtual con el conjunto de imágenes escaneadas del matterport enfatizando en la presentación interactiva y detallada de espacios físicos. Vinculada con la pagina web del Archivo Histórico Digital de la UPM, se relaciona directamente al acercarse en una escultura situada dentro de la escuela, otro vinculo a mencionar es el de la aplicación Polycam que funcionó como motor de escaneo para visualizar y orbitar estas piezas en 3D. Dentro de Treedis también se vinculan mas opciones como la de búsqueda y gestión de habitaciones, producción de plano, opciones de diseño y gestión de equipos mecánicos.



Imagen arriba: Planimetría. Plano de instalaciones en planta, Edificio Ed1. Imagen centro: Planimetría. PLOTPLAN, ETSAM.
Imagen abajo: Planimetría. Plano de arquitectura en planta, Edificio ED1.
Explotación del Modelo
Usos BIM aceptados y Usos BIM adicionales
Con el fin de mantener un orden en la organización del navegador de proyectos, se crearon parámetros de proyecto denominados de la siguiente manera: Mapec_Base
Mapec_Disciplina Mapec_Lote Mapec_SubLote.
Por ejemplo: Mapec_Base: 1_DOC
Mapec_Disciplina: ARQ
Mapec_Lote: BAU (Iniciales del usuario)
Mapec_SubLote: Axonometrías




Imagen: Opciones de diseño de un mismo espacio del Edificio 1 de la ETSAM.
Fuente: Elaboración propia
Explotación del Modelo
Usos BIM aceptados y Usos BIM adicionales
En el presente proyecto de Modelado de Condiciones Existentes, no es posible seguir una revisión de diseño de un proyecto estándar de nueva obra arquitectónica. En este caso, se plantea hacer una propuesta de distribución y diseño de un mismo espacio, variando dependiendo del uso que desempeñará, mostrando a través de información alfanumérica que tipo de elementos varían de una opción a otra (Ejemplo: Mobiliario). Esto tiene como objetivo facilitar el aprovechamiento máximo del espacio disponible y hacer un uso más eficiente.



Imagen arriba: Vista del escaneo completo de la ETSAM de la UPM. Imagen abajo: Vista de la imagen 360 recolectada en el hall principal de la escuela.

Usos BIM aceptados y Usos BIM adicionales
El objetivo del uso de la v i s u a l i z a c i ó n B I M e s emplear el modelo para crear recursos multimedia e interactivos, como imágenes y recorridos virtuales, que muestran el estado actual de la ETSAM.
A partir de la representación visual del estado actual de la ETSAM se desarrolla un modelo del edificio donde se ha sincronizado un modelo Revit independiente que contiene el levantamiento de nube de puntos e imágenes 360° tomadas en el sitio.
Con ello se implanta un flujo de trabajo en el cual se detallan las actividades a concretar, partiendo de una geometría concluida, siguiendo con la valoración visual usando los program a s d e E n s c a p e y Twinmotion que parten desde el archivo federado en Revit, orientados al desarrollo del uso BIM.

Imagen: Vista al patio central del Edificio ED2 de la ETSAM. Fuente: Elaboración propia

Imagen: Gestión ed activos. Modelo donde se muestran los parámetros de mantenimiento de los equipos mecánicos.
Fuente: Elaboración propia
El objetivo de este Uso BIM, es proporcionar la información detallada en los parámetros de los equipos mecánicos, como la fecha de montaje, marca, fabricante y modelo, crucial para tomar decisiones informadas sobre el mantenimiento y renovación de activos. Estos datos permiten evaluar la antigüedad, vida útil y características técnicas de los equipos, lo que mejora la toma de decisiones, la eficiencia energética y la planificación del mantenimiento.
En resumen, contar con esta información facilita la toma de decisiones más acertadas para mantener y optimizar los equipos mecánicos. Usos BIM aceptados y Usos BIM adicionales




Imagen superior: Mediciones. Modelo de Revit conectado con Cost-it y Presto.
Fuente: Elaboración propia Imagen inferior: Mediciones. Presupuesto del proyecto en Presto, conectando parámetros con familias de Revit.
Fuente: Elaboración propia
Usos BIM aceptados y Usos BIM adicionales
El objetivo de este Uso BIM, es proporcionar la información necesaria a través del modelo BIM para la creación de mediciones, ya que estas constituyen una fase primordial en el ciclo de vida del edificio Para un buen desarrollo de este uso, se designó el software P r e s t o u n i d o c o n GUBIMCLASS para la creación de las mediciones e información de códigos y nomenclaturas, destacando su uso en un sector específico de la construcción. El aula designada para su presupuesto, será la “Sala de grados B” de la Etsam, por ser un espacio representativo. Para desglosar cada elemento constructivo, desde los materiales de construcción, hasta el mobiliario y equipos de instalaciones se utilizó el software Presto, el cual mediante Cost-It permitió la exportación de archivos desde Revit.




Imagen: Modelo Power BI para gestión de habitaciones.
Fuente: Elaboración propia
Usos BIM aceptados y Usos BIM adicionales
Se utilizó Dynamo y Python para establecer una conexión dinámica entre el modelo BIM y Power BI, asegurando que ambas plataformas se actualizaran simultáneamente. Esta integración permitió una explotación eficiente del modelo, proporcionando una herramienta robusta para la gestión de espacios. Al tener los datos centralizados y actualizados en Power BI, a futuro el cliente podrá tomar decisiones informadas y rápidas.
Pasos Realizados
1. Configuración del Modelo BIM en Revit
2. Exportación de Datos desde Revit
3. Transformación de Datos con Python
4. Importación de Datos en Power BI
5. Creación de Dashboards y Reportes
6. Automatización de la Actualización de Datos


Imagen: Modelo PERISCOPE para gestión de espacios y gestión de info. de espacios para usuarios. Fuente: Elaboración propia
Usos BIM aceptados y Usos BIM adicionales
GESTIÓN DE MANTENIMIENTO
Caso práctico:
Se quiere saber cuando es necesario el mantenimiento de extintores. Para realizar este proceso se genera una tabla en el modelo virtual con los parámetros esenciales, como categoría, familia, tipo, nivel, fecha de mantenimiento y aula (este proceso se realiza solo una vez pues la tabla creada se puede guardar para otros proyectos).
GESTIÓN DE INFO. DE ESPACIOS PARA USUARIOS
Caso práctico
El modelo puede servir como ayuda para los estudiantes a la hora de buscar un documento en la biblioteca Se ha utilizado una exportación del modelo de las Condiciones Existentes de la ETSAM en formato IFC, de donde se obtiene todos los datos de los elementos del modelo en un visualizador web sin la necesidad de instalar ningún programa adicional.



Imagen: Cupix. Comparacion de modelo de Revit con la realidad en el Edificio Ed1.
Fuente: Elaboración propia
Explotación del Modelo
Usos BIM aceptados y Usos BIM adicionales
COORDINACIÓN INTERFERENCIA CON EDIFICIOS EXISTENTES
El objetivo de este Uso BIM es asegurar la precisión y calidad del proyecto, utilizando tecnología 360 y herramientas BIM (Cupix) para comparar el modelo digital con la realidad construida. Esta tecnología permitió capturar imágenes esféricas detalladas de los edificios de la ETSAM, las cuales se integraron en Cupix A través de esta plataforma, se pudo realizar recorridos virtuales del sitio, superponiendo el modelo BIM con las imágenes 360.





Imagen: Software NavisWorks, donde se muestran las disciplinas de estructura e instalaciones para un mejor control de colisiones.
Fuente: Elaboración propia
Usos BIM aceptados y Usos BIM adicionales
Este uso es necesario por las siguientes razones:
1. Permite al equipo de trabajo tener un control de los elementos del modelo, ya que si hay elementos que chocan unos entre otros se puede detectar errores.
2. Le dan al cliente un control en la calidad del modelo que se les entrega ya que a través de varias sesiones de detección de interferencias, puede ver como van disminuyendo la cantidad de incidencias encontradas en el proceso.
3. Asegura que el modelo digital refleje de manera parecida la construcción existente, ayudando a detectar discrepancias entre el diseño planificado y lo que realmente se construyó.
4. Facilita la gestión de los sistemas de instalaciones como HVAC, elect., font. y sane , proporcionando ubicaciones de los sistemas y posteriormente ayudando a identificar dónde se podrían a llegar a causar problemas.



Imagen: Software NavisWorks, donde se muestran las disciplinas de estructura e instalaciones para un mejor control de colisiones.
Fuente: Elaboración propia
Usos BIM aceptados y Usos BIM adicionales
Gestión de Protección Contra Incendios (PCI)
Utilizar un modelo para analizar las salidas de emergencia y las posibles reacciones de las personas en el recorrido hasta la salida es una excelente práctica en términos de seguridad y planificación de emergencias.
Al simular diferentes escenarios de evacuación, se pueden identificar posibles cuellos de botella, puntos críticos y áreas de mejora en el diseño del espacio, permitiendo la toma de decisiones informadas para optimizar las rutas de evacuación, la señalización de emergencia y la distribución del mobiliario para garantizar la seguridad de todas las personas en caso de una situación de emergencia.
1. Seguridad de los Ocupantes
2. Protección de la Propiedad
3. Cumplimiento Legal y Normativo
4. Preparación y Entrenamiento

Imagen: Gestión de activos. Diagrama gestión de equipos en habitaciones. Fuente: Elaboración propia
Explotación del Modelo
Usos BIM aceptados y
Usos BIM adicionales
Para lograr esto, se crearon parámetros específicos de habitación dentro del modelo, que permiten al usuario identificar con un simple clic si un objeto o equipo se encuentra dentro de una habitación determinada, siendo los objetos parametrizados y contabilidos:
- Tablero
- Tablero movil
- Proyector
- Ordenador
Esta funcionalidad no solo facilita la gestión de los equipos, sino que también permite al usuario contar y verificar las habitaciones en las que se puede llevar a cabo un uso específico y adicionalmente, actualizar de manera sencilla las condiciones del activo a lo largo del tiempo.



Imagen: Planificación 4D. Creación de cronograma en Synchro para la planificación 4D Fuente: Elaboración propia
Explotación del Modelo
Usos BIM aceptados y Usos BIM adicionales
El objetivo de este Uso BIM es demostrar cómo sería la construcción de un nuevo edificio de cafetería y despachos, una vez que el edificio de aulas ya está construido, y cómo se pudo llevar a cabo el movimiento de las maquinarias para lograr la construcción. Este proceso no solo muestra la secuencia de construcción, sino que también está diseñado para ser una herramienta educativa para los estudiantes de arquitectura, permitiéndoles relacionarse con un escenario que podrían encontrar en su futura práctica profesional.
1. Creación de Cronograma
2. Interrelación entre las Tareas
3. Asignación de Recursos
4. Preparación del Modelo para la Exportación
5. Exportación de Modelos
6. División del Modelo en Áreas
7. Uso de la Herramienta Auto Coincidir
8. Configuración de Apariencias
Conclusiones
El desarrollo del TFM en Metodología y Gestión BIM de Proyectos Construcción y Activos Inmobiliarios, centrado en el Levantamiento y Modelado de las condiciones existentes de la ETSAM, ha sido una experiencia integral y enriquecedora. Este proyecto ha permitido aplicar de manera práctica los conocimientos adquiridos, superando diversas barreras técnicas y organizativas y reafirmando nuestra capacidad para abordar desafíos complejos en el ámbito profesional.
1. Integración de Datos Preexistentes
2. Coordinación Multidisciplinaria
3. Estandarización y Revisión
4. Tecnologías Avanzadas
5. Colaboración y Comunicación
6. Optimización de Procesos
7. Documentación y Presentación
8. Impacto y Aplicación Profesional
- Aplicar los conocimientos obtenidos durante el máster: Implementar las habilidades y conocimientos adquiridos en un proyecto real.
- Realizar un levantamiento de la ETSAM utilizando la metodología BIM: Desarrollar un modelo preciso y detallado de las condiciones existentes.
- Identificar y analizar el potencial del levantamiento realizado: Evaluar las oportunidades y mejoras que el modelo puede ofrecer en términos de gestión y operación del activo.
En conclusión, el BIM es el presente y futuro en un flujo de trabajo eficiente y efectivo, permitiendo una mejor integración y coordinación en los proyectos de construcción.

Imagen: LinkedIn de cada participante del equipo BIM MAPEC
Fuente: Elaboración propia

Se culmina con éxito esta etapa y este logro es el inicio de todo.
Gracias al equipo y plana docente, los recordaré eternamente.
- BIM BAU -

Arquitecto peruano de 23 años, con maestría en Building Information Modeling Project, Construction & Facility Management en la ETSAM de la Universidad Politecnica de Madrid, España. Completó cursos en diversos programas de la familia de Autodesk tanto nativos como no nativos BIM. Polivalente en el uso de programas de visualización arquitectónica y realidad virtual, con gran gusto por la fotografía arquitectónica, destacable conocimiento en el idioma ingles, incentivado en siempre aprender en donde le depare el futuro. En su vida profesional siempre demuestra pensamiento critico, reflexivo e innovador, con liderazgo y capacidad de trabajo en equipo al emprender proyectos. En el ambito del deporte actualmente entrena junto al equipo de baloncesto de CD Lourdes de Madrid, proviniendo us amor y disciplina por el deporte desde su natal Trujillo, desarrollando sus conocimientos en un entorno de exigencia constante.
