examen parcial

Page 1

CASOS VIVIENDAS

ARQUITECTURA UNIVERSIDAD CÉSAR VALLEJO CONSTRUCCION SOSTENIBLE
SOSTENIBLES

CASA VILLA JEWEL BOX

CASA NEXUS HAUS

Introducción

ANALISIS DE LOS CASOS

Ubicación-Análisis del contextoclimas - características para resolver el proyecto -función

ESPECIFICACIONES

Materialidad-Componentes energéticos

PLANIMETRIA

Distribución- Cortes- ElevacionesTécnicas constructivas-Vistas Reales y vistas 3D

CONSTRUCCION SOSTENIBLE 01
INDICE GENERAL
02 04 03

GENERAL INTRODUCCION

El agua es uno de los recursos más importante queexisteenelplaneta,yaquetodoslosseres vivos lo requieren para subsistir. Hoy en día la sociedad enfrenta graves y complejos problemas relacionados con el agua; pues la disponibilidad de los recursos hídricos en el planeta, en la cantidad y calidad requerida por el hombre es cada vez menor; fenómeno que se torna más crítico en el abastecimiento del agua potable, ya que la demanda aumenta debido al fuerte crecimiento demográfico, mientras que la oferta disminuye por el deterioro del medio ambiente, debido a la contaminación, deforestación, que ha mermado las reservas abastecedoras de muchas ciudades. En este presente informe presentamos 3 modelos de proyectos de viviendas que hacen uso del tratamiento de aguas residuales, de los cuales rescataremos su estructuración del sistema de aguas residuales.

A su vez, podremos analizar sus elementos sustentables adicionales que tienen estas edificaciones sustentables, ya que presentan alternativas como las energías renovables, los materialessostenibles,entreotros.

Escogimos este problema de las aguas residuales, ya que representa un grave problema, porque puede provocar contaminaciónambiental,enfermedadesgraves enelserhumanoytransformacionesseverasal ecosistema dado que se componen de las sustanciasorgánicasymineralesquevienende lamateriafecalyotrosdesechos.

CONSTRUCCION SOSTENIBLE

CASA VILLA JEWEL BOX

CONSTRUCCION SOSTENIBLE

CASA VILLA JEXEL BOX INTRODUCCION

La "Casa Villa Jewel Box" es un ícono de la arquitectura moderna y ha sido reconocida como un recurso cultural y arquitectónico importante ya que es unaobramaestraarquitectónica. Esta casa es conocida por su diseño innovador y vanguardista, y es una de las edificaciones mas resaltantes de la zona por sus características sostenibles. de esta manera la Casa Villa Jewel Box rompió con las convenciones arquitectónicas de su época.

CONSTRUCCION SOSTENIBLE 01

Es una casa energéticamente eficiente con techo verde que se encuentra en una parcela largayestrechaconvistaalas orillasdeunodeloslagosmás grandesdeLausana.

Debido a su ubicación, el propietarioqueríamaximizarlas vistas tanto hacia el sur como haciaeloeste.Porestarazón, laresidenciahaadoptadouna forma rectangular con una construcción exterior en forma deconchaquesobresalehacia afuerayhaciaarriba

PROYECTO: JEWEL BOX VILLA PROYECTISTA: FELIX BONNIER Paradigms

UBICACIÓN: LAUSANA, SUIZA

ÁREA: 360 M²

SUPERFICIE : 299.19 M2

02
ANALISIS DE CASOS

CASA VILLA JEWEL BOX

FAMILIA FRESCA Y CÓMODA

Debido a una adecuada expulsión y limpieza del dióxido de carbono que se genera dentrodelhogar.

Los árboles , principalmente las copas de los árboles, ayudan a que el viento no penetre directamente con la vivienda, pues lo desvía y así logra que solo se filtre una ventilación adecuada.

DIRECCIÓN DEL VIENTO

DIRECCIÓN

DEL VIENTO

LOS

La doble altura empleado en la salaserviráparaquelosvientos que ingresen del primer piso, tengan un amplio espacio en cuantosequieraventilartodode una manera uniforme y de tal modo también dirigiendo los vientos hacia la superficie superiordondeestesaldrá.

SUR AL NOROESTE

En el sistema de los techos inclinados tienen la función de chimenea el cual por la noche permitepoderventilardeforma adecuada la vivienda, asimismo poder termo regular losvientosdemagnitudfuerte.

VENTILACIÓN DURANTE LA NOCHE
CLIMA
LOS VIENTOS VIENEN A UNA VELOCIDAD DE 7.11 KM/h SUR AL NORTE
VIENTOS VIENEN A UNA CVELOCIDAD DE
KKM / H
5-7
ANALISIS DE CASOS

CASA VILLA JEWEL BOX MATERIALIDAD

La casa Villa Jewel Box cuenta con una estructura de materiales mixtos como el hormigón reciclado, el acero y la madera, para la estructura.

La Casa no solo responde a criterios de sostenibilidad ambiental y eficiencia energética, sino que también garantiza la calidad, resistencia y durabilidad de la construcción. Estos materiales ofrecen una combinación ideal para una vivienda diseñada con un enfoque sostenible y consciente del medio ambiente.

ACEROACERO PVC PVC SVERDES SVERDES EV N T ANASDEDOBLE CAPA EV N T ANASDEDOBLE CAPA 04 ESPECIFICACIONES
ADERA ADERA RMIGON RMIGON

CONCEPTO Y TECNICAS DE CONSTRUCCION

CASA VILLA JEWEL BOX

Su concepto arquitectónico responde a la idea rectora de un “paisaje construido”, en armonía con su entorno inmediato.

Ha pedido del cliente se quiso aprovechar las vistas tanto al sur como al oeste. Para hacer frente a la topografía de los sitios, se decidió que la residencia tomaría una forma similar y se dividiría en dos niveles, además de la forma rectangular primaria, una carcasa exterior sobresale hacia afuera y hacia arriba, funcionando como una pared verde.

Se diseño a detalle los edificios y estructuras están para que se integre armoniosamente con el entorno natural circundante.

ESPECIFICACIPONES 05

CASA VILLA JEWEL BOX

Desde una perspectiva ambiental, estos muros verdes contribuyen a mejorar la calidad del aire alabsorberdióxidodecarbonoyliberaroxígeno, al tiempo que ayudan a bajar las temperaturas ambientales; También actúa como aislante térmico y reduce la necesidad de sistemas de aireacondicionado.

Además, los muros verdes pueden ayudar a reducir el ruido y mejorar la calidad del agua al filtraryretenercontaminantes.

DIENTEDELEON

ORTIGA ORTIGA

ESPECIFICACIONES 06
CONCEPTO Y TECNICAS DE CONSTRUCCION
KALANCHOE KALANCHOE
PLECTRANTHUS PLECTRANTHUS

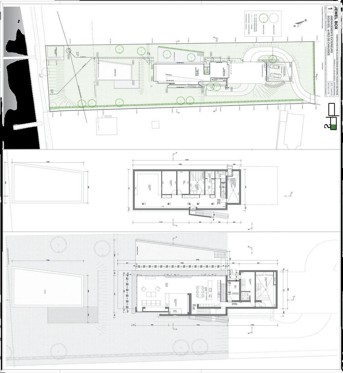
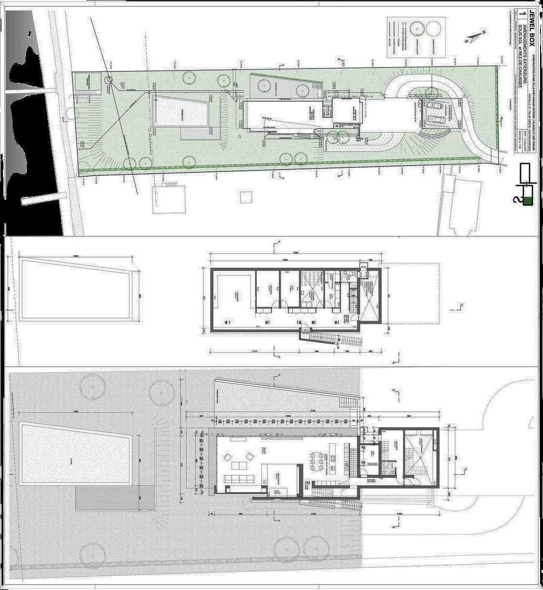
PLANO SOTANO Y PRIMER PISO

CASA VILLA JEWEL BOX

PLANIMETRIA 07
SALA DE ESTAR BIBLIOTECA COCINACOMEDOR Sótano Primer Piso

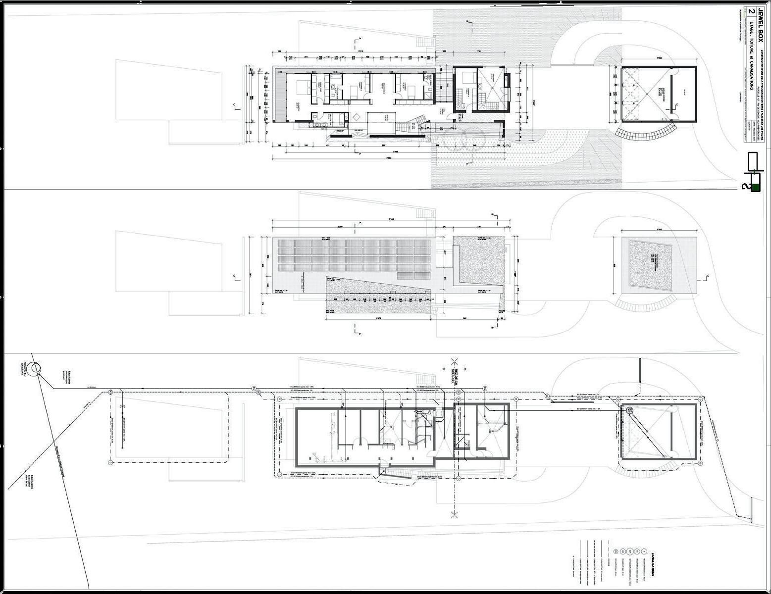
CASA VILLA JEWEL BOX PLANO SEGUNDO NIVEL Y TECHO

DORMITORIO

DORMITORIOS

ESTUDIO
Plano
DE SERVICIO Segundo Piso
Techo
VISTA LATERAL DERECHA VISTA LATERAL ISQUIERDA VISTA POSTERIOR
PLANIMETRIA
VISTA FRONTAL
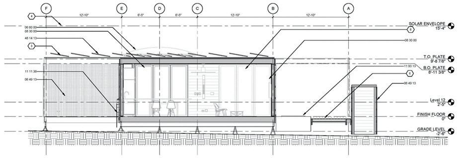
CORTE B-B CORTE C-C PLANIMETRIA
CORTE A-A

CASA VILLA JEWEL BOX VISTAS INTERIORES

CONSTRUCCION SOSTENIBLE 11

CASA VILLA JEWEL BOX VISTAS INTERIORES

CASA NEXUSHAUS

CONSTRUCCION SOSTENIBLE

INTRODUCCION CASA NEXUS HAUS

Nexus Haus fue desarrollado para un concurso internacional de diseño, fue realizado con materiales sostenibles y sistemaseficientesparaelusodelagua ylaproduccióndeenergía.

La casa está cubierta con paneles solares, que generan toda la energía necesaria para su abastecimiento, incluyendo la iluminación, electrodomésticos, electrónica, aire acondicionadoyuncocheeléctrico.

Actualmente, el equipo está construido y aprobado según sus funciones para la queseedificó.

CONSTRUCCION SOSTENIBLE 01

CASA NEXUS HAUS UBICACION

AustinesunadelasciudadesdeEE.UU. que está experimentando un mayor crecimiento.Poresemotivodeberesolver determinados problemas de infraestructura (agua y luz). Pero también está viendo la aparición de ‘bolsas de pobreza’ensusector.

Por ello un equipo de estudiantes de la Universidad de Texas en Austin, y de la Universidad Técnica de Múnich crearon una casa ecológica que pretende ayudar a resolver muchos de esos problemas. Se llama NexusHaus, y su objetivo fue conseguir un prototipo de vivienda prefabricada que se pudiera repetir a gran escala en una factoría de Austin.

PROYECTO: NEXUS HAUS

PROYECTISTA: ESTUDIANTES

UBICACIÓN: AUSTIN, TEXAS

ÁREA: 74 M²

AÑO: 2015

SUPERFICIE : 695.662 M2

CONSTRUCCION SOSTENIBLE 02

CASA NEXUS HAUS CONTEXTO

El proyecto se desarrolló como prototipo para el aumento de la densidad en Austin como parte del Alley Flat Iniciativa, la cual alienta a los propietarios a encontrar más uso para los lotes que ya poseen y a considerar materiales sostenibles y respetuosos con el medio ambiente para realizar el trabajo.

Los objetivos a largo plazo de esta iniciativa son ayudar a crear un sistema de entrega adaptable y autoperpetuable para viviendas asequibles y sostenibles en el área de Austin, pues como muchas otras áreas del país,

está lidiando con el aumento vertiginoso de los precios de la vivienda que son difíciles de mantener. Con la ayuda de los propietarios que utilizan sus propiedades actuales y construyen estos pisos en callejones, es posible reducir algunos de estos problemas desde el principio.

De esta manera CASA NexusHaus sirve como una unidad de vivienda accesoria, la casa se puede colocar en el patio trasero de un lote residencial en Austin para operar como una unidad de producción de recursos.

03
ANALISIS DE CASOS

CASA NEXUS HAUS CLIMA

La casa NexusHaus, este proyecto aprovecha de los recusos naturales (energía solar, agua de lluvia y agua auxiliar) teniendo en consideracion su ubicacion y clima para volverse eficiente. De modo que la casa está cubierta con paneles solares, que generan toda la energía necesaria para su abastecimiento.

La casa NexusHaus, este proyecto aprovecha de los recusos naturales (energía solar, agua de lluvia y agua auxiliar) teniendo en consideracion su ubicacionyclimapara volverse eficiente. De modo que la casa está cubierta con paneles solares, que generan toda la energía necesaria para su abastecimiento.

KMH

04 ESPECIFICACIONES
TENIENDO DIAS MUY CALUROSOS
LA TEMPERATURA PROMEDIO DIARIA Y CON UN PROMEDIO DE 9.7 DIAS 98ML Mayo es el mes con mas lluvia con un promedio
A ABRIL COMO EL MES MAS VENTOSO 15.1
VIENTOS CON UNA VELOCIDAD APROXIMADA DE
35°C
TENIEDO

CASA NEXUS HAUS

Los espacios están diseñados para garantizar el confort sin importar la época del año. Un ejemplo es la zona central de la residencia, que puede ser cerrada o abierta, según el clima externo.

Todo ello se hizo considerando factores de control ambientales relativos al centro de Texas, que incluyen la circulación del aire y la ganancia de calor solar. También se vale de una gran terraza cubierta contoldos.

Los diseñadores de NexusHaus han puesto el foco en hacer de este lugar una casa en la cual sus habitantes sientan el confort y la calidez de vivir en un sitio de elegante diseño. El prototipo tiene cocina con comedor, living, un dormitorio, un baño y una oficina, todos los ambientes con una ventilación e iluminacion adecuada .

FAMILIA FRESCA Y CÓMODA BENEFICIO:

Se utiliza una estrategia pasiva para mantener el interior fresco en verano y cálido en invierno.

05
CONFORT ANALISIS DE CASOS

SOSTENIBILIDAD

CASA NEXUS HAUS

RECICLAJE DEL AGUA

La acuaponía (criadero de peces)es un sistema sustentable de producción de plantas y peces. Este modelo es tan eficiente que puede ahorrar hasta 90% de agua en relación con la siembra tradicional. Se compone de un tanque en el cual se producen los peces, los cuales liberan residuos ricos en nutrientes, que a través de un circuito cerrado son bombeados hacia la parte de arriba del sistema para nutrir las plantas. Las raíces, toman los nutrientes y purifican el agua que regresa por gravedad a estanque de los peces paraqueempieceotravezelciclo.

PANELES SOLARES

NexusHaus emplea multitud de paneles fotovoltaicos en cubierta (7kW). Cada uno de ellos con inversor incluido, para poder convertir la corriente continua en corriente alterna. El inversor central funciona de una manera redundante, pero también permitiendo que cada placa solarpuedaoperarporseparado.

MINIMO CONSUMO ELECTRICO

Con el fin de que el consumo fuese el menos posible, estos estudiantes diseñaron un sistema de calefacción y almacenamientoconunabombadeaguasolar.

06
ANALISIS DE CASOS

CASA NEXUS HAUS

Losestudiantesdecidieronconstruiruna estructura utilizando los principios de diseño de la cuna a la cuna, por lo que la casa está construida casi en su totalidad con materiales renovables y reutilizables. La mayoría de los componentes utilizados están libres de contaminantes y toxinas que se pueden desmontar fácilmente en sus partes constituyentes para facilitar el reciclaje. La fachada está construida casi en su totalidad con madera de materia prima renovable, y en el baño se utilizan baldosas cerámicas certificadas cradleto-cradle.

20% . 20% 20% 20% . 20% ADERA
CERO CERO TELATENSORA TELATENSORA SSOLARES SSOLARES
ADERA
RESISTENTE TÉRMICO
ECOLÓGICO 07 MATERIALIDAD ESPECIFICACIONES
ECONÓMICO MODERNO

CONCEPTO-TECNICAS DE COSTRUCCION

CASA NEXUS HAUS

En el concepto de diseño de los estudiantes, el término «nexo» no se refiere exclusivamente al área que conecta los módulos de estar y dormitorio. También se refiere a la vinculacióndelsuministrodeenergíay aguaenelentornoresidencial.

Se utilizan aguas grises para la lavadora, el fregadero y la ducha, mientrasqueunsistemaacuapónico ayuda a irrigar las plantas alimenticias.

Elprototipoestáfabricadocasiensu totalidad con materiales sostenibles y está equipado con un sistema eficiente de tratamiento de agua y paneles solares en el techo.

Actualmente, el equipo está construyendo y probando la casa en Austin,Texas.

Unabombadecalorsecombinaconun sistema de almacenamiento térmico integrado para enfriar y calentar el circuito de agua de forma económicamenteoptimizada.

Conexión con el paisaje natural
08
ESPECIFICACIONES

PLANIMETRIA -NIVEL 1

CASA NEXUS HAUS

03 01 02 06 04 05 BAÑO DORMITORIO 01 02 COCINA SALA 03 04 COMEDOR 05 CUARTO DE ESTUDIO 06 01 02 09
PLANIMETRIA

CASA NEXUS HAUS

A-A CORTE B -B 10
CORTE
CORTES PLANIMETRIA

CASA NEXUS HAUS VISTAS 3D

11
PLANIMETRIA

CASA NEXUS HAUS VISTAS INTERIORES

12
PLANIMETRIA

CASA NEXUS HAUS VISTAS REALES

13
PLANIMETRIA

CASOS ANALIZADOS

Después de un análisis exhaustivo, la Casa Villa Jewel Box emerge como un paradigma de la innovación arquitectónica y el diseño contemporáneo. Su fusión magistral de formas geométricas, materiales sostenibles y tecnología integrada no solo redefine los límites de la estética residencial, sino que también establece un estándar elevado para la funcionalidad y la eficiencia energética. Esta obra maestra arquitectónica no solo celebra la belleza intrínseca de su entorno, sino que también ofrece un santuario de elegancia y comodidad para sus residentes. En última instancia, la Casa Villa Jewel Box trasciende las convenciones convencionales, dejando una impresión perdurable en el panorama arquitectónico contemporáneo.

Las conclusiones del proyecto NexusHouse incluyen un análisis de la obra desde una perspectiva constructiva y estructural, destacando el enfoque innovador de diseño y organización espacial del conjunto de viviendas, enfatizando así el enfoque sostenible que tiene el proyecto, dando a conocer los materiales que fueron utilizados en la ejecución de la obra.

Asimismo, este proyecto se presenta como oportunidad para que las familias de Austin puedan obtener viviendas más asequibles y sostenibles, pues la casa aprovecha los recursos (energía solar, agua de lluvia y agua auxiliar) que, de otro modo, se desperdiciaría y supondría una carga para la infraestructura municipal.

14 CONCLUSIONES CONCLUSIONES
CASA VILLA JEWEL BOX CASA NEXUSHOUSE

CASOS ANALISADOS REFERENCIAS

CASO 2: CASA VILLA BEWEL BOX

https://is-arquitectura.es/2015/08/08/villa-jewel-boxcasa-ecologica-con-certificado-suizo/

https://homeworlddesign.medium.com/eco-friendlyhouse-design-villa-jewel-box-with-an-multifacetedgarden-outer-shell-2a3e9c0b33b0

https://www.urukia.com/jewel-box-villa-by-designparadigms/#google_vignette

CASO 2 : CASA NEXUSHAUS

https://www.energiarenovable.net/nexushaus-la-casaque-genera-su-propia-energia/

https://ecoinventos.com/nexushaus/

https://blog.is-arquitectura.es/2015/12/02/nexushauscasa-ecologica-que-tambien-proporciona-comida/

https://is-arquitectura.es/2015/08/08/villa-jewel-boxcasa-ecologica-con-certificado-suizo/

15
REFERENCIAS

AUTORES AUTORES

MATOS VILLANUEVA

Natsumy Melissa

100 % porcentaje

DOMINGUEZ GAVIURONDO

FUNCION : investigación del caso , introducción, ubicación , climas.

FUNCION : especificaciones , materialidad ,técnicas de construcción

70% porcentaje

BASUALDO VERGARA

90% porcentaje

FUNCION : planimetría , isometrias , vistas reales vistas 3D

DURAN MARILLO

100% porcentaje

DOMINGUEZ GAVIURONDO

FUNCION : investigación del caso , introducción, ubicación , climas.

EVIDENCIAS

EVIDENCIAS

EVIDENCIAS

EVIDENCIAS

EVIDENCIAS

FUNCION : especificaciones , materialidad ,técnicas de construcción

100% porcentaje

SAAVEDRA PEREZ

100% porcentaje

FUNCION : planimetría , isometrias , vistas reales vistas 3D

EVIDENCIAS

Luis Eduardo
16 INTEGRANTES
Luis Eduardo Grecia Antuanette
EXPOSITORES CASO 1 CASO 2

DESARROLLO DEL ESTUDIO DE DOS CASOS DE VIVIENDAS SOSTENIBLES

CONSTRUCCION SOTENIBLE

Docente:

Mg. Arq. ARRIBASPLATA DE LA CRUZ, D’Yanira

La reproducción parcial o total de este revista esta prohibido por cualquier medio, sin la autorización escrita de los autores registrados

ARQUITECTURA
EDICION 2024

Turn static files into dynamic content formats.

Create a flipbook
Issuu converts static files into: digital portfolios, online yearbooks, online catalogs, digital photo albums and more. Sign up and create your flipbook.