Motto
Gjensyn
Team
Ekanger Fantini arkitekter, Oslo/Nesodden
Robert Ekanger Heilmann, arkitekt MNAL
Niels Ange Aarsrud Fantini, arkitekt MNAL
FOTOGRAFI AV ARBEIDSMODELL Rom for observasjon & kisteinnføring
krematorium Transformasjon & oppgradering
Haslum
GJENSYN
Motto
Gjensyn
Team
Ekanger Fantini arkitekter, Oslo/Nesodden
Robert Ekanger Heilmann, arkitekt MNAL
Niels Ange Aarsrud Fantini, arkitekt MNAL
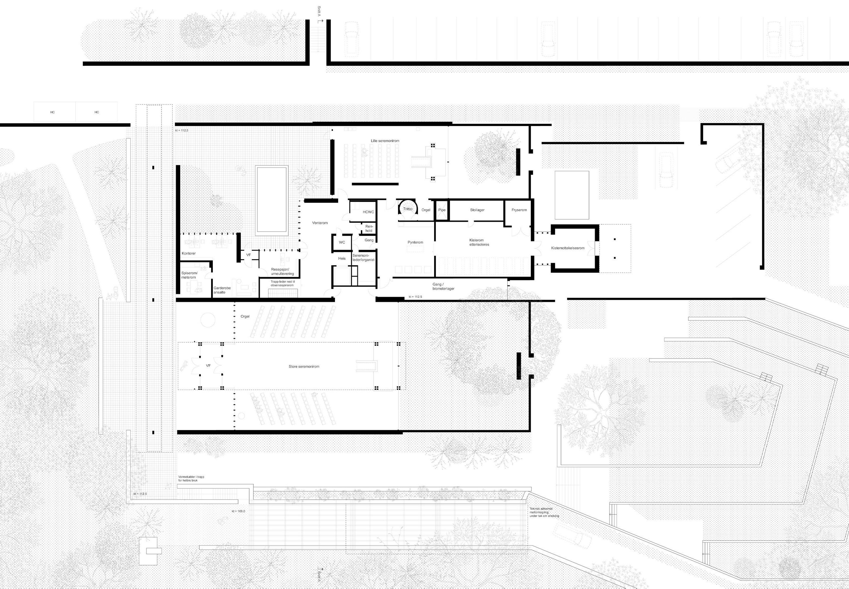
1 Møterom og minnesamvær
2 Resepsjon & kontor
3 Kjøkken & spiserom
4 Venterom
5 Lydsluse
6 WC & garderobe
7 Seremoniutstyr & av/data
8 Seremonileder & garderobe
9 Observasjon kisteinnføring 20 m2
10 Kisteinnføring
11 Pipe
12 Tavlerom
13 Blomster til seremoni
14 Pynterom & blomsteravfall
15 Omlegging & rituell vask
16 Heis & teknisk adkomst
17 Kistebesøk
18 Fulgt kistelevering
1. ETASJE 1:200
Haslum krematorium Transformasjon & oppgradering
Snittlinje
Snittlinje
GJENSYN
Motto
Gjensyn
Team
Ekanger Fantini arkitekter, Oslo/Nesodden
Robert Ekanger Heilmann, arkitekt MNAL
Niels Ange Aarsrud Fantini, arkitekt MNAL
1 Ikke fulgt kistelevering
2 Snuplass
3 Utebod
4 Ev. energisentral
5 Frysecelle
6
7 Verksted
8 Lager
9 Garderobe & dusj
10 Renhold
18 Kisteinnføring
Snittlinje
GJENSYN
Motto
Gjensyn
Team
Ekanger Fantini arkitekter, Oslo/Nesodden
Robert Ekanger Heilmann, arkitekt MNAL
Niels Ange Aarsrud Fantini, arkitekt MNAL
GJENSYN
1 Møterom og minnesamvær
2 Resepsjon & kontor
3 Venterom
4 Observasjon kisteinnføring 20 m2
5 Kisteinnføring 55 m
6 Pynterom & blomsteravfall
7 Omlegging & rituell vask
8 Kistebesøk
9 Fulgt kistelevering
10 Kremasjonsovn, styring, teknikk, osv. 140 m
11 Røykgasskjøler, filter, prosessrom, osv. 120 m
1:200
Haslum krematorium Transformasjon & oppgradering
Motto
Fusio
Team
Artmorepons , Oslo
Bjarne Asp
Fredrik Lid Arkitektur , Asker
Fredrik Lid
FUSIO (fra latin fusio; ‘sammensmeltning‘)
FUSIO søker en helhetlig arkitektonisk idé, en ideell kremasjonsprosess og en gunstig drift innenfor eksisterende rammer. Kunst og arkitektur spiller på lag der forslaget legger til rette for et kunstverk som forholder seg til selve gravferdsritet. Et representativt og verdig ovnsrom er hentet frem i lyset der pårørende har mulighet til å bivåne kisteinnsetting bak et stort glass, gjennom en åpning presist skåret ut eksisterende mur. De besøkende forholder seg til anleggets opprinnelige konstruksjoner. Utviklingsideen gir forbedret logistikk, tilgjenglighet for alle, soneindeling inne og ute og nødvendig funksjonalitet for fremtidig drift i eksisterende bygning samtidig som den opprinnelige arkitekturen ivaretas i svært stor grad.
Haslum krematorium transformasjon og oppgradering av bygget og gravferdsritet
FUSIO
Motto
Fusio
Team
Artmorepons , Oslo
Bjarne Asp
Fredrik Lid Arkitektur , Asker
Fredrik Lid
Forhage/ adm.
Seremoni/ riter
Syning/ observasjon
Ombygges/ påbygges
Kremasjon "tilbygg"
Overlys levering
Overdekket kistemottak og levering U1 Mingleplass
Ny plan 1. etasje målestokk 1:250
Teknisk kjeller under Mulig rampe for uu utforming urnelund og tilkomst rundt bygningen
Urnelund
(bør få universell utforming) Eksisterende
Motto
Fusio
Team
Artmorepons , Oslo
Bjarne Asp
Fredrik Lid Arkitektur , Asker
Fredrik Lid
Overdekket mottak (ute): Kister/blomster/øvrige leveranser, serviceplasser renhold mv.
Ny plan U. etasje målestokk 1:250
Sjakt til teknisk tak (tørrkjølere)
Teknisk kulvert under ny korridor
Teknisk areal under kremasjon (ca. 250 m2)
Tilrettelegge for teknisk adkomst til kjeller (C9)
Motto
Fusio
Team
Artmorepons , Oslo
Bjarne Asp
Fredrik Lid Arkitektur , Asker
Fredrik Lid
Motto
Mot lyset+Motlys
Team
Sanden+Hodnekvam Arkitekter, Oslo
John Sanden, arkitekt og partner
Ingvild Hodnekvam, arkitekt og partner
Andreas Rindal, arkitekt
MOT LYSET
Haslum krematorium gir en god og rolig ramme rundt markeringen av et liv som er slutt. Anlegget er et unikt kulturminne med sterkt særpreg og egenart, kjent for sin arkitektur der lette trekonstruksjoner hviler over tunge prikkhamrede betongmurer med morenestein. Vi ønsker å videreføre dette viktige kulturminnet ved å forsiktig legge til rette for nye tekniske løsninger, et nytt observasjonsrom, flere ovner og bedre arbeidsforhold for de ansatte.
Hovedgrepet forslaget er en utvidelse av underetasjen under bakken mot kirkegården sørøst. Utvidelsen har en del for pårørende og en del for ansatte, og er skånsom plassert. Utvidelsen fremstår som en naturlig del av det opprinnelige anlegget og legger seg der det knapt er synlig for omgivelsene.
forslaget har vi fokusert på en bedre overgang mellom de to etasjene. Forslaget viser en stemningsfull overgang fra de opprinnelige seremonirommene, til det nye observasjonsrommet i krematoriets underetasje. Vi har fokusert på at dette skal fungere like godt for mennesker fra alle trosretninger, enten kremasjonen skjer som en forlengelse av seremonien, eller noen dager senere.
Ved kremasjon som fortsettelse av seremoni holdes første delen av seremonien et av de to flotte seremonirommene før kisten heises ned til etasjen under. Pårørende som ønsker å følge selve innsettingen kremasjonsovnen, går ned, eller tar heisen til underetasjen. Der møter de en ny lang linje. Denne linjen ligger som en parallell til Enghs opprinnelig linje for de døde kroppene. Fra mørket innerst ved trappa leder linjen frem mot utsikten og lyset. Takhøyden øker gradvis, og følelsen av å gå mot lyset blir kraftigere samtidig som gulvhøyden tilpasser seg landskapet utenfor.
Ganglinjen blir en overgang der arkitekturen er med på å understreke både alvoret, høytideligheten og håpet. De pårørende går mot lyset og utsikten. Først når de kommer frem der ganglinjen brer seg ut og blir observasjonsrommet, er kisten bak det store glasset synlig. Langs bakveggen går en benk der pårørende kan sette seg ned, sørge, gråte og ta inn de sterke inntrykkene. Som de to eksisterende seremonirommene 1. etasje, foreslår vi at også observasjonsrommet ender ut et atrium definert av vegger den karakteristiske betongen. Kirkegården, utsikten og landskapet blir atriets fjerde vegg. tilfeller der kremasjonen finner sted en annen dag en seremonien vil de pårørende starte krematoriets foajé, og man vil oppnå den samme effekten av overgangen fra lys, via mørke, til lys igjen.
Gardiner bak glasset gjør at de ansatte kan styre når det er passende å se inn, etter at alt er klart, og har mulighet til å stenge av innsynet ved behov. Bak glasset er det to nye ovner, men gardiner kan også dele av rommet slik at bare én ovn er synlig for de pårørende. To ovner ett rom, som kan deles av med branngardin er mer funksjonelt og gir et hyggeligere arbeidsmiljø enn to ovner på separate steder.
forslaget har vi fokusert på å gjøre minst mulig endringer 1. etasje. De små justeringene vil gjøre anlegget til en bedre arbeidsplass, med bedre kontakt til det nye observasjonsrommet etasjen under. Vi har lagt inn en heis slik at besøkende (og eventuelt ansatte) med behov for heis enkelt kommer ned underetasjen. Heisen har fått en naturlig plassering tilknytning til trappeløpet for publikum, det som dag er seremonilederens rom. Seremonilederen får et nytt rom med tilsvarende plassering.
I tillegg etableres det flere arbeidsplasser med gode dagslysforhold tilknytning til de eksisterende kontorene. Vi har åpnet opp noe rundt trappen ned, for å styrke overgangen mellom etasjene, slik at det å følge den avdøde inn ovnen underetasjen blir bedre for de pårørende. Utover dette er det 1. etasje først og fremst behov for vedlikehold og generell oppgradering som går mer på materialkvaliteter, etterisolering av kisterommet og detaljerte løsninger som ikke vises 1:200 målestokk.
Åpninger underetasjens fasade ut mot kirkegården er diskret plassert og ivaretar den særegne arkitekturen. Betongveggene bør utføres samme overflate som eksisterende vegger, og legger på den måten til et nytt kulturhistorisk lag til anlegget uten å ta oppmerksomhet bort fra anleggets eksisterende kvaliteter. Den ene veggen trekker seg litt tilbake, slik at atriet utenfor også er koblet sammen med den eksisterende trappen opp til inngangspartiet. Observasjonsrommet underetasjen kobler seg på den måten fint på det eksisterende anlegget og legger opp til en seremoni der pårørende ikke trenger å gå den samme veien tilbake, men kan gå ute dagslys etter kisteinnsettingen. Den andre veggen atriet utenfor observasjonsrommet lager et skille mellom pårørende og ansatte, mellom seremoni og teknikk. På den tekniske siden er el-tavle-rommet gjort om til garasje med snumulighet for bilen som leverer kister, og en oppgradert inngang inn til delen av anlegget som er forbeholdt de ansatte. Eksisterende ovnsrom beholder flere av de tekniske funksjonene ettersom det allerede er godt tilrettelagt for dette. På denne måten slipper man også å etablere et nytt pipeløp som vil påvirke det arkitektoniske uttrykket sett fra kirkegården.

Vi mener at oppgraderingen av Haslum krematorium bør gjøres med så lite graving som mulig. Dette vil være skånsomt for John Enghs arkitektur, samtidig som det vil holde kostnader og utslipp nede. For å koble det nye ovnsrommet sammen med de tekniske rommene kan en røykkanal på 1x1m pigges ned under gulvet dagens korridor underetasjen. Alternativt plasseres røykkanalen eksisterende kulvert. Det kan også bli aktuelt å ta ut noe masse under ovner og filter, avhengig av hvilke modeller som menigheten velger. Nødvendige høyder er vist på planen.
Over atriet har vi foreslått en pergola basert på Enghs karakteristiske konstruksjoner. Dette er et punkt vi har diskutert mye, og som vi er åpne for å diskutere videre neste fase. Vi har derfor laget to konkurranseutkast, et med og et uten trekonstruksjonen. Forslaget “Motlys” er uten trekonstruksjonen. Pergolaen definerer atriet og gir mulighet for en lett takkonstruksjon over krematoriets tekniske adkomst. Den rike og flotte vegetasjonen foran fasaden bør bevares slik at inngrepet bygningsmassen dermed knapt blir synlig for omverdenen.
«… slik blir dekor i rommenes fond avløst av naturen selv –som sammen med nordhimmelen danner bakgrunnen for seremonien. Slik knyttes årstidenes gang til rommene», skrev John Engh om Haslum krematorium. Det samme kunne han ha skrevet om utvidelsen 60 år etter.
Motto
Mot lyset+Motlys
Team
Sanden+Hodnekvam Arkitekter, Oslo
John Sanden, arkitekt og partner
Ingvild Hodnekvam, arkitekt og partner
Andreas Rindal, arkitekt
MOT LYSET 2/4
Illustrasjon av hovedgrepet sett fra Kirkegården.
Motto
Mot lyset+Motlys
Team
Sanden+Hodnekvam Arkitekter, Oslo
John Sanden, arkitekt og partner
Ingvild Hodnekvam, arkitekt og partner
Andreas Rindal, arkitekt
Motto
Mot lyset+Motlys
Team
Sanden+Hodnekvam Arkitekter, Oslo
John Sanden, arkitekt og partner
Ingvild Hodnekvam, arkitekt og partner
Andreas Rindal, arkitekt
Motto
Mot lyset+Motlys
Team
Sanden+Hodnekvam Arkitekter, Oslo
John Sanden, arkitekt og partner
Ingvild Hodnekvam, arkitekt og partner
Andreas Rindal, arkitekt
MOTLYS
Haslum krematorium gir en god og rolig ramme rundt markeringen av et liv som er slutt. Anlegget er et unikt kulturminne med sterkt særpreg og egenart, kjent for sin arkitektur der lette trekonstruksjoner hviler over tunge prikkhamrede betongmurer med morenestein. Vi ønsker å videreføre dette viktige kulturminnet ved å forsiktig legge til rette for nye tekniske løsninger, et nytt observasjonsrom, flere ovner og bedre arbeidsforhold for de ansatte.
Hovedgrepet forslaget er en utvidelse av underetasjen under bakken mot kirkegården sørøst. Utvidelsen har en del for pårørende og en del for ansatte, og er skånsom plassert. Utvidelsen fremstår som en naturlig del av det opprinnelige anlegget og legger seg der det knapt er synlig for omgivelsene.
forslaget har vi fokusert på en bedre overgang mellom de to etasjene. Forslaget viser en stemningsfull overgang fra de opprinnelige seremonirommene, til det nye observasjonsrommet i krematoriets underetasje. Vi har fokusert på at dette skal fungere like godt for mennesker fra alle trosretninger, enten kremasjonen skjer som en forlengelse av seremonien, eller noen dager senere.
Ved kremasjon som fortsettelse av seremoni holdes første delen av seremonien et av de to flotte seremonirommene før kisten heises ned til etasjen under. Pårørende som ønsker å følge selve innsettingen kremasjonsovnen, går ned, eller tar heisen til underetasjen. Der møter de en ny lang linje. Denne linjen ligger som en parallell til Enghs opprinnelig linje for de døde kroppene. Fra mørket innerst ved trappa leder linjen frem mot utsikten og lyset. Takhøyden øker gradvis, og følelsen av å gå mot lyset blir kraftigere samtidig som gulvhøyden tilpasser seg landskapet utenfor.
Ganglinjen blir en overgang der arkitekturen er med på å understreke både alvoret, høytideligheten og håpet. De pårørende går mot lyset og utsikten. Først når de kommer frem der ganglinjen brer seg ut og blir observasjonsrommet, er kisten bak det store glasset synlig. Langs bakveggen går en benk der pårørende kan sette seg ned, sørge, gråte og ta inn de sterke inntrykkene. Som de to eksisterende seremonirommene 1. etasje, foreslår vi at også observasjonsrommet ender ut et atrium definert av vegger den karakteristiske betongen. Kirkegården, utsikten og landskapet blir atriets fjerde vegg. tilfeller der kremasjonen finner sted en annen dag en seremonien vil de pårørende starte krematoriets foajé, og man vil oppnå den samme effekten av overgangen fra lys, via mørke, til lys igjen.
Gardiner bak glasset gjør at de ansatte kan styre når det er passende å se inn, etter at alt er klart, og har mulighet til å stenge av innsynet ved behov. Bak glasset er det to nye ovner, men gardiner kan også dele av rommet slik at bare én ovn er synlig for de pårørende. To ovner ett rom, som kan deles av med branngardin er mer funksjonelt og gir et hyggeligere arbeidsmiljø enn to ovner på separate steder.
forslaget har vi fokusert på å gjøre minst mulig endringer 1. etasje. De små justeringene vil gjøre anlegget til en bedre arbeidsplass, med bedre kontakt til det nye observasjonsrommet etasjen under. Vi har lagt inn en heis slik at besøkende (og eventuelt ansatte) med behov for heis enkelt kommer ned underetasjen. Heisen har fått en naturlig plassering tilknytning til trappeløpet for publikum, det som dag er seremonilederens rom. Seremonilederen får et nytt rom med tilsvarende plassering.
I tillegg etableres det flere arbeidsplasser med gode dagslysforhold tilknytning til de eksisterende kontorene. Vi har åpnet opp noe rundt trappen ned, for å styrke overgangen mellom etasjene, slik at det å følge den avdøde inn ovnen underetasjen blir bedre for de pårørende. Utover dette er det 1. etasje først og fremst behov for vedlikehold og generell oppgradering som går mer på materialkvaliteter, etterisolering av kisterommet og detaljerte løsninger som ikke vises 1:200 målestokk.
Åpninger underetasjens fasade ut mot kirkegården er diskret plassert og ivaretar den særegne arkitekturen. Betongveggene bør utføres samme overflate som eksisterende vegger, og legger på den måten til et nytt kulturhistorisk lag til anlegget uten å ta oppmerksomhet bort fra anleggets eksisterende kvaliteter. Den ene veggen trekker seg litt tilbake, slik at atriet utenfor også er koblet sammen med den eksisterende trappen opp til inngangspartiet. Observasjonsrommet underetasjen kobler seg på den måten fint på det eksisterende anlegget og legger opp til en seremoni der pårørende ikke trenger å gå den samme veien tilbake, men kan gå ute dagslys etter kisteinnsettingen. Den andre veggen atriet utenfor observasjonsrommet lager et skille mellom pårørende og ansatte, mellom seremoni og teknikk. På den tekniske siden er el-tavle-rommet gjort om til garasje med snumulighet for bilen som leverer kister, og en oppgradert inngang inn til delen av anlegget som er forbeholdt de ansatte. Eksisterende ovnsrom beholder flere av de tekniske funksjonene ettersom det allerede er godt tilrettelagt for dette. På denne måten slipper man også å etablere et nytt pipeløp som vil påvirke det arkitektoniske uttrykket sett fra kirkegården.

Vi mener at oppgraderingen av Haslum krematorium bør gjøres med så lite graving som mulig. Dette vil være skånsomt for John Enghs arkitektur, samtidig som det vil holde kostnader og utslipp nede. For å koble det nye ovnsrommet sammen med de tekniske rommene kan en røykkanal på 1x1m pigges ned under gulvet dagens korridor underetasjen. Alternativt plasseres røykkanalen eksisterende kulvert. Det kan også bli aktuelt å ta ut noe masse under ovner og filter, avhengig av hvilke modeller som menigheten velger. Nødvendige høyder er vist på planen.
Over atriet har vi vurdert en pergola basert på Enghs karakteristiske konstruksjoner. Dette er et punkt vi har diskutert mye, og som vi er åpne for å diskutere videre neste fase. Vi har derfor laget to konkurranseutkast, et med og et uten trekonstruksjonen. Forslaget “Mot lyset” er vist med en slik trekonstruksjon. Det kan også være aktuelt med en kombinasjon av de to forslagene, for eksempel med tak kun over inngang til driftsdelen. Den rike og flotte vegetasjonen foran fasaden bør bevares slik at inngrepet bygningsmassen dermed knapt blir synlig for omverdenen.
«… slik blir dekor i rommenes fond avløst av naturen selv –som sammen med nordhimmelen danner bakgrunnen for seremonien. Slik knyttes årstidenes gang til rommene», skrev John Engh om Haslum krematorium. Det samme kunne han ha skrevet om utvidelsen 60 år etter.
Motto
Mot lyset+Motlys
Team
Sanden+Hodnekvam Arkitekter, Oslo
John Sanden, arkitekt og partner
Ingvild Hodnekvam, arkitekt og partner
Andreas Rindal, arkitekt
MOTLYS 2/4
Illustrasjon av hovedgrepet sett fra Kirkegården.
Motto
Mot lyset+Motlys
Team
Sanden+Hodnekvam Arkitekter, Oslo
John Sanden, arkitekt og partner
Ingvild Hodnekvam, arkitekt og partner
Andreas Rindal, arkitekt
Motto
Mot lyset+Motlys
Team
Sanden+Hodnekvam Arkitekter, Oslo
John Sanden, arkitekt og partner
Ingvild Hodnekvam, arkitekt og partner
Andreas Rindal, arkitekt
Motto
«Det flytende taket»
Team
XIAOXIAO ZHANG, Oslo
NORD ARKITEKTUR AS, Oslo
DET FLYTENDE TAKET
Motto
«Det flytende taket»
Team
XIAOXIAO ZHANG, Oslo
NORD ARKITEKTUR AS, Oslo
Motto «Det flytende taket»
Team
XIAOXIAO ZHANG, Oslo NORD ARKITEKTUR AS, Oslo
Form
Hvordan ska det nye nngrepet forho de seg l denne f ot e 20- a s byggekuns en? Det e er for oss de v k igs e spørsmåle denne konku ransen Siden v må gjøre noen endr nger utseende or å mø e nye funks onsk av, bø enhver ny endr ng være grund g g ennom enkt
De f y ende take er det første nn rykke Jon Enghs a k tek u g r Det er horison a t, f y ende og strukture t Takene brer seg ho ison al u og eder menneskets bevege se og b ikk De skaper rom som møtekommer s eler t både de avdøde og de evende og rom som svarer i en ras onel p an øsning og bevegelsesorgan ser ng
Form og funksjon møtes ne topp her unde akene
Den nye utv de sen må natur gv s harmonise e med de oppr nnel ge ark ekton ske språket k aft ge søy er, høye b e ker u kragende tak, og ekstur ike murer På den mest di ekte og enk e må en b ir e ementene kons ruert sammen Og na ur igv s b ir det nye i bygget en de av Has um Krema or um, det f ytende aket
Funksjona itet
Når de g e der unks ona te , velger v å g enbruke og oppg adere eksisterende ovnsrom som hoveds rateg Nye ovns om, k sterom, og uf renseanlegg b r plassert under terreng på østs den av bygget Rom or observasjon av k s einn ør ng oppre tes som et te t bygg under den nye takkons ruks onen, omg t av g ønne omgive ser
Andre mu ge oppg ader nger e er orbedr nger
• Nedsenket ysgå d som forbedrer dagslys og rømningsve i k e leren
• Forbedr ng av personalgarderobe k el eren
• Nyt HC- oale t for ansa te i k e leren
• Ny persona heis
• Oppgrader ng av vent asjonsan egg
• Oppgrader ng av kontor- og reseps onsområde
• Ombygging av pub ikum wc område
3 3 DET FLYTENDE TAKET
Motto
Passasje
Team
Björn Förstberg, ansvarig arkitekt
Mikael Ling, ansvarig arkitekt
Passasje
John Enghs arkitektur preges av det skulpturelle samspillet mellom lett og tungt, bærende og båret. det japanskinspirerte Haslums krematorium hviler tretakene lett oppå de rustikke betongmurene og skaper en sammenhengende helhet som blir større enn de delene. De utgjør en komplett komposisjon som lett kan forstyrres med en ufølsom tilbygging som ikke innordner seg det overordnede systemet.
Utvidelsen av kapasiteten krematoriet krever enten relativt store tillegg til bygningsvolumet, over eller under bakken, eller en mer effektiv håndtering av eksisterende arealer. For unngå å forstyrre den følsomme komposisjonen og omfattende gravearbeider atriumene ved seremonisalene, har vi valgt å legge til så få, men
Det nye ovnsrommet effektive kvadratmeter som mulig. hovedtrekk har vi beholdt den nåværende inndelingen med alle offentlige funksjoner på inngangsplanet. På denne måten kan alle gjester dele funksjonene, og behovet for en separat offentlig heis unngås. Dette inkluderer også kremasjonsovnene og et sted hvor de pårørende kan være vitne til kremasjonen. Samtidig har funksjonene den nedre etasjen blitt rendyrket, med nytt kisterom, koordinering av leveranser og alle tekniske rom.
prosjektet inngår det å gjennomgå eksisterende arealer og sikre at nye og allerede gjennomførte moderniseringer og tillegg utføres tråd med John Enghs opprinnelige ideer.
Passasje 4
Motto Passasje
Team
Björn Förstberg, ansvarig arkitekt
Mikael Ling, ansvarig arkitekt
Plan 1, 1:250
Det nye ovnsrommet erstatter det gamle kisterommet og blomster-/pynterommet og får et hevet tak på en lignende måte som de to seremonisalene. Dette gir muligheten til et ovnsrom med arbeidsvennlig belysning samt en verdighet ved bevitnelse av kremering. Teknikk til ovnene plasseres kjelleren rett under det nye ovnsrommet. Oppå kjellerens filter som krever ekstra takhøyde plasseres lager samt urnelagring som kan løses med den lavere takhøyden. skissen har vi tatt utgangspunkt moderne ovner med integrerte kistesnuer. Fondveggen bak ovnene ville være et passende sted for en
kunstnerisk utsmykning samme ånd som de blyinnfattede glasspartiene den eksisterende bygningen. Det gamle kistemottaket, med sitt dekorerte rom, brukes fortsatt til kistebesøk.
Personalrommene får en gjennomgang der møterom og spiserom kan samordnes for en mer effektiv arealbruk. Det gamle spiserommet blir til kjøkken for både ansatte og for anretning og oppdekning forbindelse med seremonier.
Passasje 4
Motto Passasje
Team
Björn Förstberg, ansvarig arkitekt
Mikael Ling, ansvarig arkitekt
Plan U1, 1:250
Samtlige leveranser koordineres til porten skråningen mot gravlunden på det nedre planet. Herplasseres et nytt, større kisterom rommet mellom murene som graves ut. Dette kan moderniseres og energieffektiviseres uten påvirke uttrykket til den eksisterende arkitekturen negativt. På den andre siden av porten plasseres blomsterrommet, som også får et takvindu.
Det eksisterende kisterommet kjelleren får en ny rolle. Med en ny heis direkte opp til ovnsrommet blir det effektivt tilgjengelig og kan brukes som et ovnsnært kisterom.
Det gamle ovnsrommet blir teknikkrom til det nye ovnsrommet rett ovenfor. Så mange funksjoner som mulig beholdes på sin gamle plass for å minimere ombyggingen.
Passasje 4
Motto Passasje
Team
Björn Förstberg, ansvarig arkitekt Mikael Ling, ansvarig arkitekt
Snitt AA, 1:250
A1 Seremoni liten
A2 Seremoni stor
A3 Kistebesøk
A5 Urneutlevering
A7 Kjøkken anretning
A9 WC/HC stellerom
B1 Observasjon kisteinnføring
B2 Innføringsområde
B3 Kremasjonsovn
B4 Utrakingsområde
B5 Nedkjøling aske
B6 Askebereder
B7 Gjenvinning metall
B8 Fylte urner
B9 Styring ovn og teknikk
B10 Arbeidsbenk
B11 Lager, verktøy, utstyr etc.
C1 Røykgasskjøler
C2 Filter
C3 Vifterom
C4 Pipe
C5 Tørrkjøler
C6 Prosessrom
C7 Akkumalatortank
C8 Styringsskap
D2 Venterom
D3 Seremoni leder
D4 AV/data
D5 Seremoniutstyr
D7 Tekjøkken
D8 Blomster til seremoni
D9 WC
D10 Garderobe
D11 Adgang
D12 Orgel
E1 Blomsteravfall
E2 Kister inn/ut
E3 Registerering inn/ut
E4 Kistetruck
E6 Frysecelle
E7 Kisterom
F1 Varmestyring
F2 Tavlerom
F3 Ventilasjon
F4 Teknisk adkomst
F5 Lager
F6 Verksted
F7 Garderobe
F8 WC
F9 Dusj
F11 Renhold
G2 Resepsjon
G3 Kontor
G4 Møterom
G5 Kjøkken
G6 Spiserom
G7 Garderobe
G8 WC
G10 Inngang personal