Azhar-Noronha, Sharlett

Page 1

Sharlett Noronha

LJMU Architecture

Undergraduate Portfolio

Contents

Year 3 Semester 2

6123 'The Stage' Baltic Performing Arts School, Liverpool

Year 3 Semester 1:

6121/6122 The Climate Observa'Tree', Windermere

Year 2 Semester 2:

5123ASA and 5124ASA, Additive and Subtractive ‘Rockfall’ – Hilbre Island

5131ASA BIM, Office block – London Road

Year 2 Semester 1:

5122AR, Photography Studios – Constance Street

5121AR, Group Urban Design Strategy, ‘The Canvas’ – Fabric District

Year 1 Semester 2:

4123ARC and 4124ARC, A Place for Crafting, ‘The Flamenco Studio’ - Windsor Street

4131ARC, Structure and Fabric

Year 1 Semester 1:

4122ARC, Archifilm, ‘Seaside Theatre’ – Thurstaston

4121ARC, AS2, A Room with a view

4121ARC, AS!, Philip Johnson’s Glass House

Roof and Location Plan 1:500 Development 6123
1
'The Stage'Baltic Performing Arts School
First Floor Plan - Scale 1:250 Ground Floor Plan - Scale 1:250 1-Library 2 - Computer Suite 3 - Social Student hub 4 - Group Music Room A 5 - Group Music Room B 6 - Fire Stairs 7 - Male W/C 8 - Female W/C 9 - Classroom 10 - Classroom 11 - Class Room 12 - SchoolEntrance Atrium/Informal Performance space 13 - Reception 14 - Unisex W/C 15 - Studio 16 - Studio 17 - Costume Workshop 18 - Green Room 19 - Changing Rooms 20 - Plant Room 21 - Scenery Workshop 22 - Kitchen 23 - Restaurant 24 - Under seat storage 25 - Theatre Stage 26 - Stage Right 27 - Stage Left 28 - Multifuntional Dance and Drama Performance Pods. 29 - PT Area 30 - Gym 31 - Seating Area 32 - Class Room 33 -Music Room 34 - Recording Studios 35 - Classroom 36 - Classroom 37 - Female Wardrobe 38 - Male Wardrobe 39 - Storage 40 - Cleaning Cupboard 41 - Box Office 42 - Bar 43 - Public Entrance/Theatre Foyer 44 - Seating Area 45 - meeting Room 46 - offices 47 - Private rehearsal rooms 48 - Group rehearsal 49 - Storage 50 - Sitting Room 51 - Kitchenette 52 - Roof Terrace 53 - Tech office Sound 54 - Tech office Light 55 - Tech Bridges 2
Third Floor Plan - Scale 1:250 Second Floor Plan - Scale 1:250 1-Library 2 - Computer Suite 3 - Social Student hub 4 - Group Music Room A 5 - Group Music Room B 6 - Fire Stairs 7 - Male W/C 8 - Female W/C 9 - Classroom 10 - Classroom 11 - Class Room 12 - SchoolEntrance Atrium/Informal Performance space 13 - Reception 14 - Unisex W/C 15 - Studio 16 - Studio 17 - Costume Workshop 18 - Green Room 19 - Changing Rooms 20 - Plant Room 21 - Scenery Workshop 22 - Kitchen 23 - Restaurant 24 - Under seat storage 25 - Theatre Stage 26 - Stage Right 27 - Stage Left 28 - Multifuntional Dance and Drama Performance Pods. 29 - PT Area 30 - Gym 31 - Seating Area 32 - Class Room 33 -Music Room 34 - Recording Studios 35 - Classroom 36 - Classroom 37 - Female Wardrobe 38 - Male Wardrobe 39 - Storage 40 - Cleaning Cupboard 41 - Box Office 42 - Bar 43 - Public Entrance/Theatre Foyer 44 - Seating Area 45 - meeting Room 46 - offices 47 - Private rehearsal rooms 48 - Group rehearsal 49 - Storage 50 - Sitting Room 51 - Kitchenette 52 - Roof Terrace 53 - Tech office Sound 54 - Tech office Light 55 - Tech Bridges 3
4
West Elevation - Scale 1:250 South Elevation - Scale 1:250
5
West Elevation - Scale 1:250
Section - Scale 1:100 6
Theatre
7
8
9
10
11
12
5123 and 5124
13
'The Climate Observatory' - Lake District
0 D0° a n o oQa Q n oQa Q LJ-1.Boat and Bike Storage 2.Circulation 3.Male and Female Changing rooms with shower and W/C 4.Open plan Foyer/Cafe, placed on north side so can be used as exhibition space 5.Classroom/Library 6.Office 7.research lab 8.Plant room 9.3 x Unisex w/c with sink 10.Kitchen 11.Lecture Theatre Ground Floor Plan scale 1:100 Basement 14
South Elevation 1:100
West Elevation North Elevation East Elevation
15
Section A scale 1:100 Section B scale 1:100
16
South Elevation scale 1:100
17
Exploded Axonometric

Perspective Section

18
19

Structural Exploded Axonometric

20
21
22
23
24
Model Images Scale 1:100 25
26
UP UP 1 : 200 Ground Floor 1 : 200 First Floor
5123 and 5124
27
'Rock fall' - Hilbre Island
1 : 200 Section A 1 : 200 Section C 1 : 200 Section B 1 : 200 Section D
: 200 Section E 28
1
3D Views 29

Exploded Axonometric scale 1-200

Exploded Axonometric scale 1-100

30
Perspective Section of Lab and viewing galleries 31

Construction Sections

1 : 50
32
33
Scale 1:200 model
1:500site
Playing with masses on
model
34
1:100 Structural model
1 : 2000 Site plan 1 : 200 Ground floor plan 1 : 200 First (and Second) floor plan 1 : 200 Third floor plan 1 : 200 East Elevation 1 : 200 North Elevation 1 : 200 South Elevation 5131 BIM Office buildingLondon Road 35
3D views 36
FALKLAND STREET CONSTANCE STREET
KEMPSTON
BAYHORSE LANE LONDON ROAD ILFORD STREET
GILDART STREET
STREET
1:500

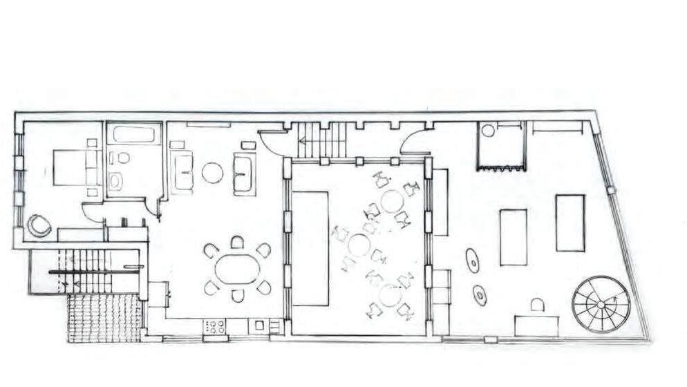
4124ARAS1-APlaceforCrafting (flamencodresses)

1:100Ground floorplan

4124ARAS1-APlaceforCrafting (flamencodresses)

1:100First floor plan

4124ARAS1-APlaceforCrafting (flamencodresses)

1:100Roofplan

4124ARAS1-APlace for Crafting (flamenco dresses)

1:50FrontElevation

4121ARprereview-A

PlaceforCrafting (flamenco dresses)

PerspectiveSection

4123ARAS2-APlacefor Crafting (flamencodresses)

Colouredsketchaxonometric

4124ARAS2-APlaceforCrafting

1.1:20PerspectiveSection

2.1:100ExplodeAxonometric

(flamencodresses)

4131ARAS1-Structure andFabric

1.WeightbearingMasonry

2.TimberHybrid(base:post andbeam,top:Studwall)

4124ARAS1-A PlaceforCrafting (flamencodresses)

1:50ScaleModel images

4122ARAS1-Archifilm 1:50Section

4122ARAS1-Archifilm

Scale1:100 Plan

andElevation

4122ARAS1Archifilm ModelImages

4121ARAS2-ARoomwithaView

1.1:50planandsection

2.1:100siteplan

4121ARAS2-ARoomwithaView

ModelImages

4121AS1-PhilipJohnson’sGlassHouse 1.ViewfromWindow 2.Cornerdetail 3.Floorplanscale 1:50

Turn static files into dynamic content formats.

Create a flipbook
Issuu converts static files into: digital portfolios, online yearbooks, online catalogs, digital photo albums and more. Sign up and create your flipbook.
Azhar-Noronha, Sharlett by Architecture@LJMU - Issuu