Classroom Building Design

Page 1

Group 2 | Cohort 25 | IPLAN Employment

Project Lead

Ontario Building Code Lead

Materials and Methods Lead

Building Information Modeling Lead

Building Information Modeling Lead

Internationally trained Architect and Urban Planner with 8+ years of experience in residential and public space design; interest in research and equitable design.

Proficient in AutoCAD, Revit, SketchUp and Photoshop.

Bachelor of Architecture with CACB certification and 3+ years of professional experience including custom and low/mid rise residential projects in Canadian context. Possesses a good knowledge of OBC 2012 and construction methods.

Proficient in Revit, AutoCAD, SketchUp and Photoshop

Internationally trained and licensed Architect with 10 years of experience in design and construction project management. Passionate about passive design and value engineering.

Proficient in Revit, AutoCAD, SketchUp Pro, and Lumion.

Internationally Trained Architect and Project Manager with 8 years of professional experience, spanning from designing to site supervision in residential, commercial and institutional projects.

Proficient in AutoCAD, Revit, SketchUp and Photoshop.

Internationally trained Architect with 2+ years of experience, interest in Leadership and strategic planning.

Proficient in Revit, Lumion, AutoCAD, Photoshop.

Group 2 | Cohort 25 | Classroom Building
SHREYA MENON VISHWA MEHTA TAYYAB ALI TARUN MALIK WAJDI ALELABI
1. INTRODUCTION 1.1 Team

1.2 Project Brief

Schematic design of Classroom building with a comprehensive and integrated analysis leveraging the knowledge of BIM, Materials and Methods common to the Ontario region and OBC. Material of construction to be concrete with fiber cement panels as rain-screen or alternate feasible material.

Roof

Mechanical penthouse

Seventh Storey

Executive administrative team spaces

Professional teaching team spaces

• Green roof to min 50% of the roof

Fifth/ Sixth Storey

Faculty rooms

Staff support spaces

Second/ Third/ Fourth Storey

Academic classrooms

Allied spaces

• Interconnected 1st and 2nd storeys with connection to 3rd storey

Mezzanine (in addition to prescribed)

Lounge and student lunch area

First Storey

• Exit through the lobby

• Passenger elevators

Academic support spaces

Academic classrooms

Food services

Multiple basements below ground

Schematic massing of building

• 100 car parking

Waste/ Recycling room

Program allocation

Group 2 | Cohort 25 | Classroom Building 1. INTRODUCTION 1 2 3 4 5 6 7 7
storeys

1.3 Methodology

Classroom Building design

Understanding the Design Brief

Understanding TMU Master plan and Midrise building standards

Site Visit and Analysis

OBC

Research and calculation based on Occupancy type and Occupant loads

M&M

Research on envelope material and assemblies based on Fire Resistance Ratings and aesthetic

Schematic design development

BIM

Work-sharing and layout development including cross referencing with brief, OBC and M&M

Report writing and presentation of design

Conceptualization to arrive at massing

Group 2 | Cohort 25 | Classroom Building 1. INTRODUCTION

1.3 Methodology

Classroom Building design

1.4 Project Management and Work-sharing

Understanding the Design Brief

Understanding TMU Master plan and Midrise building standards

Site Visit and Analysis

Site Analysis

Research and Calculation

Design

Drafting

OBC

Research and calculation based on Occupancy type and Occupant loads

M&M

Research on envelope material and assemblies based on Fire Resistance Ratings and aesthetic

Detailing

Compilation

Draft Report

Practice run

Schematic design development

BIM

Work-sharing and layout development including cross referencing with brief, OBC and M&M

Final presentation

Report writing and presentation of design

Simplified Gantt Chart used for Project planning

Group 2 | Cohort 25 | Classroom Building 1. INTRODUCTION
Task Week 1 Week 2 Week 3 Week 4 Week 5 Week 6
Group 2 | Cohort 25 | Classroom Building Gerrard Street E Mutual Street Laneway Laneway Proposed site Site Area 1248.3 Sq.m 2m min. setback for first storey, 1m for all other floors 1m min. setback 2m min. setback 3m min. setback Highrise condos Highrise condos Ramp to basement parking Single storey retail Proposed site with neighboring features N
E
Gerrard Street (North side) Mutual Street (West side) Laneway (South side)
2. BACKGROUND AND OVERVIEW 2.1 Site Study and Analysis
Laneway (East side)

2.2 Design Recommendations

• Architectural design excellence through material usage and the design of a built environment - TMU as a brand. (Campus Master Plan Ryerson University 2020-2030)

• Creating a people-first approach even while creating a vertical campus. (City of Toronto, 2010)

Height and massing to respectfully respond to the pedestrian experience

Ground-level animation and transparency to increase safety and permeability

Context and design considerations

Winter Design via sunlight penetration massing and pedestrian sheltering

Barrier-free street to building accessibility which continues beyond Indigenous Placemaking through increased visibility and inclusivity to celebrate culture

Orient building to frame street edges with distinct architectural detail

Group 2 | Cohort 25 | Classroom Building 2. BACKGROUND AND OVERVIEW
*Pam Cailloux, Knowledge Through the Generations

2.2 Design Recommendations

Recommended North Street Elevation (Campus Master Plan Ryerson University 2020-2030)

Recommended West Street Elevation (Campus Master Plan Ryerson University 2020-2030)

Building

Aerial view of proposed building at the corner of Gerrard and Mutual Streets

Group 2 | Cohort
|
2. BACKGROUND AND
25
Classroom
OVERVIEW
3m 3m 2.7m 3m 3m 2m 3.5m
3m 3m 2.7m 3m

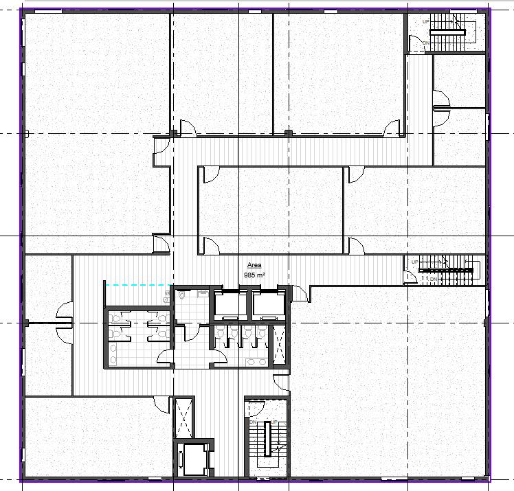
Building area 985 Sq.m

Building height 7 storeys / 33m (as per article 1.4.1.2)

Number of streets 2

Building Classification

Group A, Division 2, Any height, Any area, Sprinklered ( as per 3.2.2.23)

Gross area 6749 Sq.m (as per article 1.4.1.2)

Major Occupancy Group A, Division 2

Subsidiary Occupancy Group D, Group F3

Construction type Non-combustible

Group 2 | Cohort 25 | Classroom Building 3. ONTARIO BUILDING CODE
3.1 Introduction
A2 D F3 7 storeys 4 storeys

3.2

The total Occupant load for the building is determined as 842.

3.3 Plumbing Fixtures

The requirement for 3 Barrier free and 3 Universal washrooms was met instead by providing 6 Universal Washrooms, one/floor.

Group 2 | Cohort 25 | Classroom Building
ONTARIO
3.
BUILDING CODE
Occupant
Level 1st Floor 3 5 1 2nd Floor 3 5 1 3rd Floor 3 5 1 4th Floor 3 5 1 5th Floor 4 4 1 6th Floor 4 4 1 7th Floor 2 2 1 (As per 3.8.2.3.A)
Load
Typical washroom core (as per Table 1.3.17.1) 7th 2nd 3rd 4th 5th 6th 134 150 150 176 110 110 25 1st Occupant load per floor Space Occ. Type Area/person (Sq.m ) Classroom A2(Fixed seats) Lounge/ Breakout room A2 1.85 Cafeteria A2 1.10 Offices D 9.30 Parking/ Storage F3 46.0

Fire separation and resistance ratings

Group 2 | Cohort 25 | Classroom Building 3. ONTARIO BUILDING CODE
Fire Separation and Fire Resistance Rating
3.4
Item Fire resistance rating (hrs.) Code Reference Fire resistance rating of Closure Table 3.1.8.4 Exits 2 3.4.4.1.(1) 1.5 Elevator shafts 1.5 Table 3.5.3.1 1 Vertical shafts 1 Table 3.6.3.1 45 mins Corridor to Suite N/R as Sprinklered 3.3.1.4.(4)(a), 3.3.2.5(3) 20 mins 3.1.8.10.(1) Item Fire Resistance Rating (hrs.) Code Reference Floor assemblies 2 3.2.2.23 Mezzanine 1 3.2.2.23 Walls & Columns 2 3.2.2.23 Roof N/RFloor over basement 1.5 3.3.5.6.(1) Floors below grade 2 3.2.2.15.(2).(b).(ii) 2 hr 1.5 hr 1 hr Elevator shaft wall Service shaft wall
Group 2 | Cohort 25 | Classroom Building 3. ONTARIO BUILDING CODE 3.5 Fire resistance rating between suites Occupancy type Fire resistance Rating (hrs.) A2 D F3 A2 1 3.3.1.1.(1) 1 Table 3.1.3.1. 1 Table 3.1.3.1 D 1 Table 3.1.3.1. N/R 3.1.3.1 3.3.1.1.(3) 1 3.3.1.1.(1) F3 1 Table 3.1.3.1 1 3.3.1.1.(1) 1 3.3.1.1.(1)
occupancy 1 hr Item Fire Resistance Rating (hrs.) Code Reference Floor assemblies 2 3.2.2.23 Mezzanine 1 3.2.2.23 Walls & Columns 2 3.2.2.23 Roof N/RFloor over basement 1.5 3.3.5.6.(1) Floors below grade 2 3.2.2.15.(2).(b).(ii)
Fire separation and resistance ratings of partition walls in
A2

3.6 Egress and Exit

Egress doorways

Min 2 required if:

• Occupant load more than 60,

• travel distance more than 25m or

• the area of Group A and D suite is more than 200Sq.m and 300Sq.m, respectively.

Distance between two Egress Doorways equal or greater than one-third of diagonal dimension of suite

between exits

One half of maximum diagonal dimension of floor area (not less than 9m)

Travel distance to exits

The travel distance to the exit shall not be more than 45m as the floor area is sprinklered

Exit Doors

• Min. distance between a stair riser & a door – 300mmDirection of door swing in the direction of travel

• Only for occupant load more than 60, it need not swing in the direction of exit travel

Group 2 | Cohort 25 | Classroom Building 3. ONTARIO BUILDING CODE
Item Code Reference
3.3.1.5.(1).(b)(d)
3.3.1.5.(2) Exits Min exits
2 3.4.2.1.(1)
required-
Distance
3.4.2.3.(1).(b)
3.4.2.5.(1).(c)
3.4.6.11 3.4.6.12.(1), (2)
6.2m >22m 30m
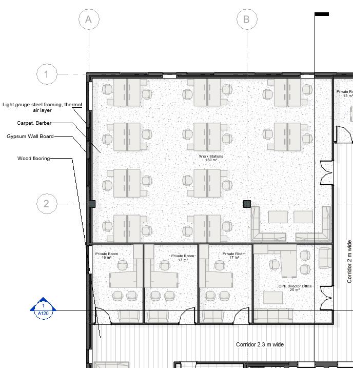
Plan of 2nd floor showing egress and exit distances

• Only one exit is provided with Lobby

• Path of travel to the outside is not more than 15m

• No adjacent occupancies open into the lobby

EXIT 1 Item Code Reference
Exit through lobby
3.4.4.2 Exit width Occupant Load x 8mm = 160 x 8 = 1280mm 3.4.3.2.(1) (a)(b)
3.6
Entry vestibule and
through the
in First Storey
First floor layout showing major exits EXIT 2
Egress and Exit
exit
lobby

3.7 Barrier Free Design

The principal entry is barrier free with its level flush with the street level.

Item Description

Entrance

Path of travel

Occupancy

Requirement

Parking

Universal Washroom

Barrier-free stalls

Doorways

Code Reference

1 Barrier-free entrance required at the principal entrance of the building 3.8.1.2

The minimum width of the corridor is 1100 mm for wheelchair passage 3.8.1.3.(1)

Minimum number of adaptable seating in classroom Table 3.8.2.1

• Size - 3.9 m x 5.6 m, vertical clearance – 2.1 m

• 1 parking space for every 25 parking spots- a total of 4 accessible parking for 100

Toronto zoning bylaw (5692013 Ch.200)

3 universal washrooms required for a building over 6 storeys Table 3.8.2.3.A

For every 1-3 water closets, 1 barrier-free washroom (if a universal washroom is not provided on the same floor) Table

Doorways shall have a clear width of not less than 860 mm when in open position

Typical corridor design as barrier-free

Group 2 | Cohort 25 | Classroom Building 3. ONTARIO
CODE
BUILDING
3.8.2.3.B
3.8.3.3.(1)

3.7 Barrier-Free Design

The principal entry is barrier free with its level flush with the street level.

Item Description

Entrance

Path of travel

Occupancy

Requirement

• Size - 3.9 m x 5.6 m, vertical clearance – 2.1 m

• 1 parking space for every 25 parking spots- a total of 4 accessible parking for 100

3.8.1.2

3.8.1.3.(1)

Table

3.8.2.1

Toronto zoning bylaw (5692013 Ch.200)

Universal Washroom

Doorways

Table

3.8.2.3.A

Table 3.8.2.3.B

3.8.3.3.(1)

Group 2 |
Classroom
3. ONTARIO
Cohort 25 |
Building
BUILDING CODE
16-seater classroom with adaptable seating Code Reference
1 Barrier-free entrance required at the principal entrance of the building
The minimum width of the corridor is 1100 mm for wheelchair passage
Minimum number of adaptable seating in classroom
Parking
3 universal washrooms required for a building over 6 storeys
Barrier-free stalls
For every 1-3 water closets, 1 barrier-free washroom (if a universal washroom is not provided on the same floor)
Doorways shall have a clear width of not less than 860 mm when in open position

3.8 Mezzanine and Interconnected floors

This has been provided between the 1st and 2nd storeys with the mezzanine in between them.

Area of mezzanine does not exceed 40% of open area of the room 3.2.1.1.(3)

Opening through floor assembliesbetween first, mezzanine and second level all through third storey 3.2.8.2.(6)

Mezzanines and openings through floor assemblies

3.9 Fire-Fighting Provisions

3.2.5.16

Fire department connection and access route provided 3.2.5.5.(1) Travel distance from fire hydrant to fire department connection < 45 m

Fire fighting systems to be provided in the building

Perspective section of interconnected stair

Group 2 | Cohort 25 | Classroom
3. ONTARIO BUILDING CODE
Building
Code Reference
Item
Item Code Reference Fire
3.2.4.1.(2) Standpipe
3.2.9.1.(1)
alarm and detection system required
system is required

3.8 Mezzanine and Interconnected floors

This has been provided between the 1st and 2nd storeys with the mezzanine in between them.

Area of mezzanine does not exceed 40% of open area of the room

Opening through floor assembliesbetween first, mezzanine and second level all through third storey

Mezzanines and openings through floor assemblies

3.9 Fire Fighting Provisions

Fire fighting systems to be provided in the building

Group 2 | Cohort 25 | Classroom Building 3. ONTARIO BUILDING CODE
Item Code Reference
Mezzanine floor with view of interconnected stair
3.2.1.1.(3)
3.2.8.2.(6)
Item Code Reference Fire alarm and detection system required 3.2.4.1.(2) Standpipe system is
3.2.9.1.(1) Fire
3.2.5.5.(1)
required
department connection and access route provided
Travel distance from fire hydrant to fire department connection < 45 m 3.2.5.16

3.10 Spatial Separation and Area of Unprotected Openings

North, West, South and East elevations respectively showing Exposed building face

Group 2 | Cohort 25 | Classroom Building 3. ONTARIO BUILDING CODE
North West South East Exposed Building Face 957.8 947.1 931.2 973.7 Limiting distance (m) 11.8 9.5 6.0 5.0 Percentage Permitted 100% 100% 52% 40% Percentage Provided 48.5% 42 % 38% 43.5% Fire resistance rating N/R N/R 45 mins 45 mins Type of Construction Non-combustible Type of Cladding Non-combustible

4.1 Introduction

Structure

Building Envelope

4.2 Structure

i. Caisson Wall We built Caisson Walls to hold against hydrostatic pressure to protect adjacent buildings. The waterproofing membrane is sandwiched between Caisson Walls and Foundation Walls.

Shoring

Bottom of Excavation

Footing and Foundation Wall

Wall Assemblies

Column Grid

Curtain Walls

Roof Assemblies

Floor Slabs

Shoring for Caisson Walls

Waterproofing detail for Caisson Walls

Caisson Wall

WTP-1 waterproof membrane

Welded overlap assembly

Grout all depressions and irregular areas smooth

Welded overlap assembly

WTP-1 waterproof corner transition sheet installed horizontally oriented

Group 2 | Cohort 25 | Classroom Building 4. MATERIALS AND METHODS

4.2 Structure

ii. Structural Footing

River Rock with filter fabric

Extruded Polystyrene

Insulation

Waterproofing membrane

Slab

Water-stop

Rebars

iii. Shear Core & Column Grid

Weeping Tile Footing

Water-stop Mud Slab

Foundation Wall

Bottom of excavation in concrete foundations Horizontal waterproofing for slab on grade

Schematics of post-tensioning in in-situ concrete Two-way flat slab representation

Group 2 | Cohort 25 | Classroom Building 4. MATERIALS AND
METHODS
Shear Walls resisting lateral forces

4.2 Structure

iii. Shear Core & Column Grid

Shear Core & Walls

Columns

Post-tension Slab

Exploded Axonometric view of structural members of the building

Group 2 | Cohort 25 | Classroom Building 4.
MATERIALS AND METHODS

AND METHODS

4.3 Building Envelope

i. Wall Assemblies

DETAIL A

7 storeys

Functional Diagram of Ventilated Facades

Steel Studs

Batt Insulation

Rainscreen Bracket fastening systems DETAIL B

Metal Cladding Board

Air Space

Metal Cladding Board

Continuous External Insulation

4 storeys

Air/Vapour Barrier

I. Metal panel, 200 mm sub ‘Z' steel girt system, 20 mm air space, insulation, air/vapour barrier membrane, concrete masonry unit.

II. Metal panel, 200 mm sub ‘Z' steel girt system, 20 mm air space, insulation, air/vapour barrier membrane, metal studs.

DETAIL B

Mounting tracks and clips

Assembly detail of Rainscreen DETAIL A

Group 2 | Cohort 25 | Classroom Building 4.
MATERIALS
Sectional Perspective of the building envelope

• Glazing on top floors - low-e tempered glazing

• For street-level – low-iron glazing for maximum clarity

• Use of fritted glass to limit thermal gains and make the building birdfriendly as per requirements of the City of Toronto

One type of Fritted Glass depicting varying opaqueness

Group 2 | Cohort 25 | Classroom Building 4. MATERIALS AND METHODS Sectional Perspective of the building envelope DETAIL C 7 storeys 4 storeys
4.3 Building Envelope ii. Curtain Wall
C Curtain wall DETAIL C
Typical Detail of a Curtain Wall and Spandrel Panel at the Edge of Slab
DETAIL
Group 2 | Cohort 25 | Classroom Building 4. MATERIALS AND METHODS Sectional Perspective of the building envelope DETAIL D 7 storeys 4 storeys 4.3 Building Envelope ii. Curtain Wall Triple Pane Window Construction DETAIL D Fenestrations provided to increase natural lighting of spaces
Group 2 | Cohort 25 | Classroom Building 4. MATERIALS AND
Building
METHODS 4.3
Envelope iii. Roof Assemblies
Exterior view showing Green Roof Green roof sectional detail

MATERIALS AND METHODS

4.4 Interior and Exterior Finishes

Interior Finishes

Components Materials

Walls Paint

Floor Finishes

• Vinyl flooring

• Carpet

• Wood laminate

Ceiling

• Exposed acoustic panels

| Cohort 25 | Classroom Building

Group 2
4.
7th-floor common lounge
60-seat classroom
Typical
Stepped feature waiting area

5.1 Introduction

Documentation

Project Lead

• Develop and manage project schedule including ensuring effective communication

• Research and participation across all sectors of design

BIM for Project Management

Collaboration

Document Standardization and Control

Ontario Building Code Lead

• Overseeing the project planning and cross-checking for compliance at every stage

BIM for Design Development

Materials and Methods Lead

• Research and specification on material and structural systems to be adopted

BIM Leads

• Creating and maintaining the REVIT Model

• Conduct regular brainstorming sessions to ensure design progress

BIM for Analysis and Detailing

Conceptual design

Detailed design

Visualization

Calculations

Analysis

Detailed Assemblies

Group 2 | Cohort 25 | Classroom Building 5. BUILDING INFORMATION MODELING

Conceptual Design BIM for Design Development

Step 1 Initial massing model generated with site context Step 2 Levels and Grids created Step 3 Concept development and core design

Group 2 | Cohort 25 | Classroom Building 5. BUILDING INFORMATION MODELING
5.2 Workflow
Group 2 | Cohort 25 | Classroom Building 5. BUILDING INFORMATION MODELING
5.2 Workflow
Step 4 Phase 1 Floorplates and structural systems modelled
Detail Design BIM for Design Development
Step 4 Phase 2 Envelope modelled, and varying sizes of fenestration tried out Step 4 Phase 3 Creating Room and Material Tags
Group 2 | Cohort 25 | Classroom Building 5. BUILDING INFORMATION MODELING
Workflow
Step 4 Phase 4 Feature stepped seating in Entry lobby; South and East facades
Visualization BIM for Design Development 5.2
Step 4 Phase 4 Real-time visualization of interiors in Twinmotion; exterior exported to and rendered in Lumion

A folder was created which all team members could access

Ability to restore previous versions when errors were identified after synchronizing

View templates created

Clash detection was done through the Interference Check tool

Group 2 | Cohort 25 | Classroom Building 5. BUILDING INFORMATION MODELING
Workflow
Collaboration
5.2
Documentation BIM for Project Management
Document Standardization and Control
Group 2 | Cohort 25 | Classroom Building 5. BUILDING INFORMATION MODELING Calculations BIM for Analysis and Detailing 5.2 Workflow Calculation of gross floor area and generating schedules Exploded axonometric views generated
stairs modelled
Custom

Path of travel with distance and time analyzed

Assembly for Green roof created

Structural system and vertical circulation

Colour fill legends based on departments

Path of travel assessed with addition of way-point

People content placed

Group 2 |
25
5. BUILDING INFORMATION MODELING Analysis BIM for Analysis and Detailing 5.2 Workflow
Cohort
| Classroom Building
Group 2 | Cohort 25 | IPLAN Employment Art by Pam Cailloux, Knowledge Through the Generations

Turn static files into dynamic content formats.

Create a flipbook
Issuu converts static files into: digital portfolios, online yearbooks, online catalogs, digital photo albums and more. Sign up and create your flipbook.
Classroom Building Design by shreyamenon - Issuu