Anna Ehrenfors Architectural Portfolio

Page 1

ARCHITECTURAL PORTFOLIO

ANNA EHRENFORS

ANNA EHRENFORS

CONTACT

Forskarbacken13,lgh1104 11415Stockholm

0739120536

ae.97@live.se

ehrenfors.wordpress.com (Architecture)

annaehrenfors.wordpress.com (Recreational)

EDUCATION

KTHRoyalInstituteofTechnology

Architecturalprogramme300hp

Aug2017-June2023

UppsalaUniversity

PsychologyA30hp

Aug2016-Jan2017

KTHRoyalInstituteofTechnology

Japaneseforengineers7,5hp

Jan-May2020

FIELDSOFINTEREST

Sustainability

Health&wellness

SOFTWARESKILLS

AutoCad

Rhinoceros

Revit

QGIS

Affinity

Photoshop TwinMotion

LANGUAGES

Swedish (native)

English (advanced)

French (beginner)

Japanese (beginner)

CONTENTS

RESTAURANGTÅNGBADET

Projecttype: Publicbuilding,restaurant,fishmarket,bathingfacility

Year: 2023

Tutors: PerFranson,FredrikStenberg

HILMAAFKLINT

Projecttype: Artgallery

Year: 2021

Tutors: LeifBrodersen,KonradKrupinski

OCULARFILMSTUDIO

Projecttype: Filminstitute&residences

Year: 2021

Tutors: LeifBrodersen,KonradKrupinski

FOLKETSHUSJÄRNA

Projecttype: Publicbuilding,youthcentre

Year: 2021

Tutors: JanekOzmin,PålRöjgårdHarryan

SELECTEDARTWORK

RESTAURANG TÅNGBADET

Roof: Acousticalgaepanels20mm Insulation/Horisontalbattens45x45mm Vapourbarrior Eelgrassinsulation/beams45x175mm Roofsheet Roofpanel50mm Sugarkelp Loadbearingexteriorwall: Oysterconcretepanels20mm Insulation/Horisontalbattens45x45mm Vapourbarrior Eelgrassinsulation/verticalbeams45x175mm Horisontalbattens45x45mm Verticallattices20mm Woodenpanels20mm Foundation: Oysterconcretefloor25mm Eelgrassinsulation/beams175x45mm Sylls&edgebeam175x45mm Plywood10mm Airgap45mm Tabbyconcreteslab200mm Pipes: Steelcore40mm Tabbyconcretefilling122mm Feedpipe8mm

Nettingtoholddown roofmaterial

Sugarkelproofcoverage

Woodenroofpanels

Woodenstructureof pinewoodbeams/trusses 175x45mm(600cc)

Oysterconcreteslabs200mm

Pipes: Steelcore40mm Oysterconcretefilling122mm Feedpipe8mm

Woodendeckofpressureimpregnatedpinewood withprotectionclassNTR/M 200x45mm Assembledwithstainless steelscrews75mm

Woodstructureofpressureimpregnatedpinewood withprotectionclassNTR/M 250x250mm

Eastelevation1:100
5m 5m 5m 5m 15m 15m 40m 10m 10m 3m 3m
Explodedstructuralaxonometric

HILMAAFKLINT ARTGALLERY

4thfloor

Exhibition:Large

3rdfloor

Exhibition:Medium

2ndfloor

Auditorium Workshops Exhibition:Small

Storage Toilets

Groundlevel

Kitchen Restaurant Toilets

Reception Lobby&library

Basement

Storage

Location: Munsö,Ekerö

Program: Artgallery&restaurant+studios,workshop, auditorium,library/bookshop,overnightcabins

Size:1586m²

Minimalovernightcabinsforvisitorsoftheartgallery
Exhibitonspacesecondfloor Arcadeentrancetothegallery Section

OCULARFILMSTUDIO

0 2m 4m 6m 8m 10m 1:200 Screeningroom Projectorroom Reception Tearoom Pond A A B B Elevatorplatform C C D D Pond A A B B D D C C Shootingarea Editing KitchenStorage Dressing A B B A C C 0 2m 4m 6m 8m 10m 1:200 A Meetingroom Messanin B B A C C

NordicFilmInstitute&residencesinTokyo

OcularFilmStudioisacentreforfilmproductionandprivate residences,aswellasapublicspaceforvisitorstocomefor moviescreenings,exhibitions,lecturesandotherevents.Poblic spacesareplacedabovegroundlevel,whereastheshooting areaandstaffareasarelocatedunderground.

ThelocationforthisprojectisinKoenji,asuburbwestofTokyo.

TheleadingdesignconceptsformyprojectareMaandOku whichareaboutcreatingspacesandnegativespaces throughlayeringandcreatingzones,obstructingviewsand movement.

0 2m 0 2m 4m 6m 8m 10m SectionD-D1:100
0 2m 4m 6m 8m 10m SectionA-A1:100 0 2m 4m 6m 8m 10m SectionA-A1:100 0 2m 4m 6m 8m 10m SectionC-C1:100 02m4m6m8m10m SectionB-B1:100

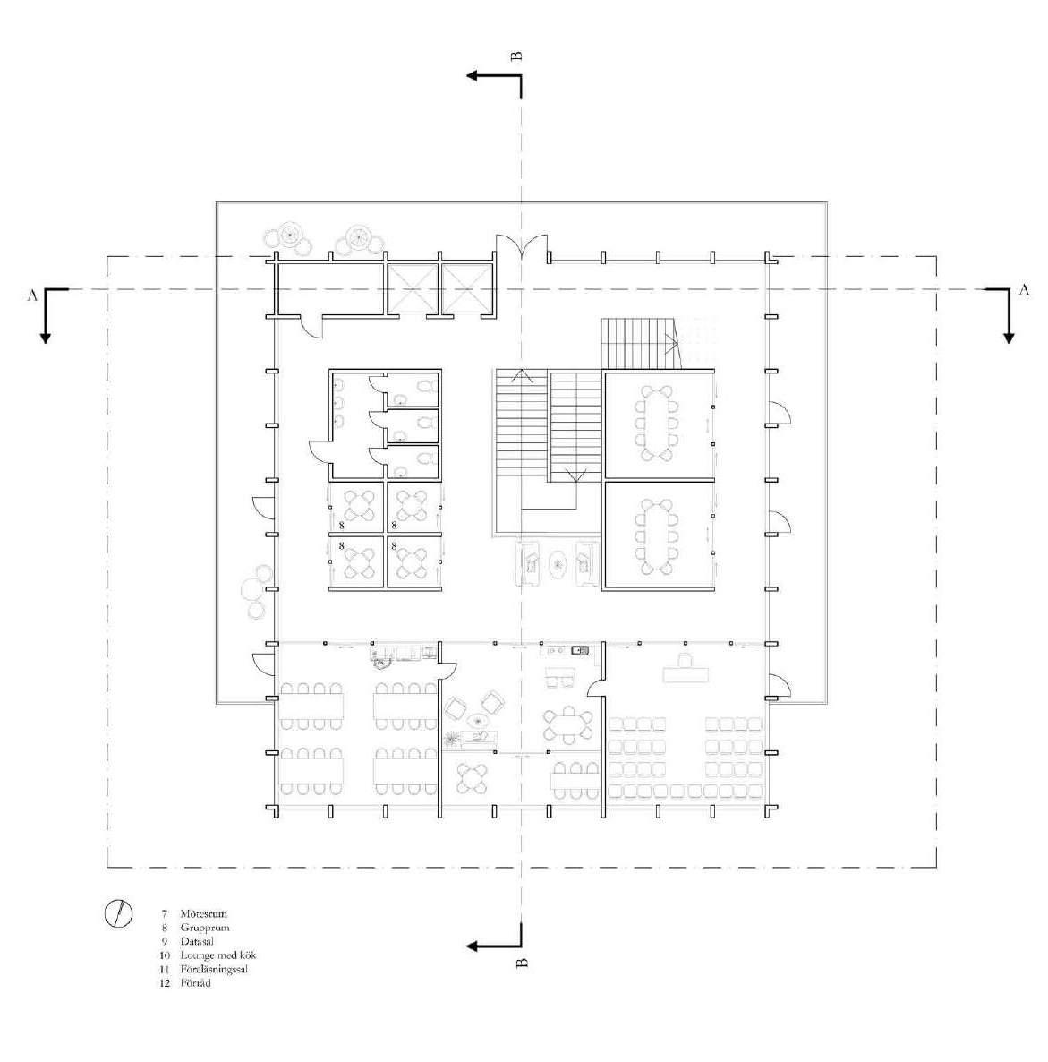
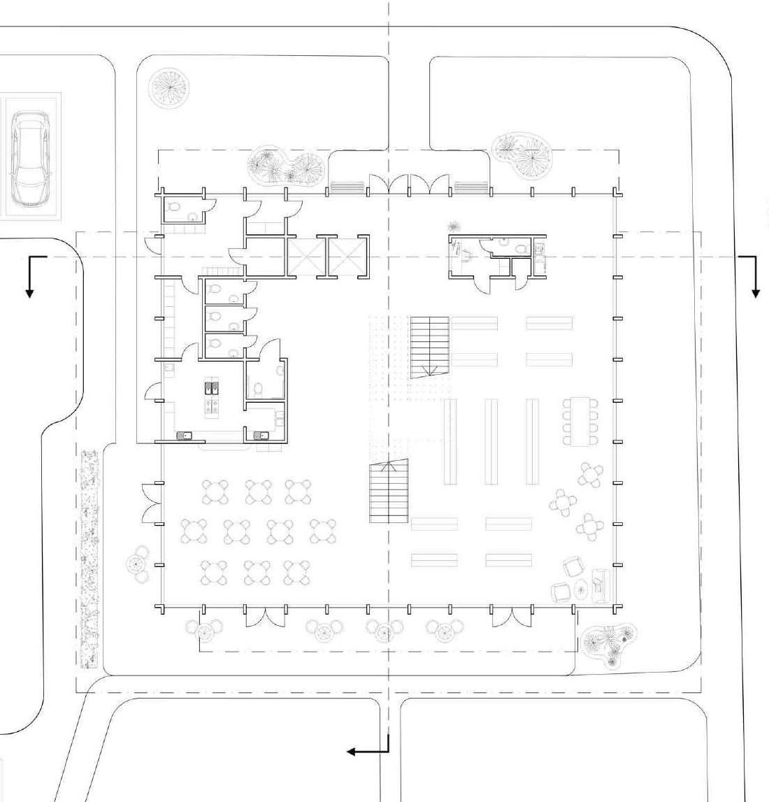
JÄRNAFOLKETSHUS UNGDOM

ThisproposalforanewcivichouseislocatedintheheartofJärna,only100mfromthesquareandanother500mtothetrainstation,thecentral locationisanessentialpartoftheproject.

Theproject'smainfocusisonprotectingtheyouthofJärnaandStockholm'sothersuburbs.Bycreatingasafeandwelcomingplace,aswellas assistingwithengagingandstimulatingactivities,mentalhealthissuesandillnessesamongyoungpeopleisexpectedtobereduced.

InthisnewFolketsHus,peoplearewelcomedtousevariousformsofrecreationalactivitiesthatdevelopboththeirheartsandbrains.Theprogram includeseducationalareassuchasapubliclibrary,bookablelecturehallsandgrouprooms,acomputerroom,aswellasareasforphysicalactivityin thegym,dance/yogahallandlargesportshall.

Thebuildingisintendedtointeractwithitssurroundingsbyextendingthelibrary/cafésectionontheentranceleveltowardstheparkinthesouth.Itis suggestedthatanappleorchardcanbedevelopedthere,whichbothcontributestoanincreasedbiologicaldiversity,butalsogeneratesattractive activitiessuchasappleblossominginthespringandappleharvesting(aswellasmustingandmashing)inthefall.

Thebuildingisdesignedwithoffsetblockstocreateauniquearchitecturaldesign,butitalsocontributeswithterracesandagreaterlightpenetration intothedeepbuilding.Theseterracesprovidea360°viewofJärna,andachanceforsunexposurethroughmostoftheday.

Themainstructureiscomposedoflocaltimber,intheformofaload-bearingsystemofglulambeamsandcolumns,withcomplementaryconcrete elements.Forenvironmentalandsustainabilityreasons,aswellasthematerial'simpactonhumanwell-being,woodistheobviouschoiceofmaterial forthisproject.

Formorevisitmywebsiteatwww.annaehrenfors.wordpress.com

SELECTEDARTWORKS
Architecturalportfolio2023 AnnaEhrenfors www.ehrenfors.wordpress.com

Turn static files into dynamic content formats.

Create a flipbook
Issuu converts static files into: digital portfolios, online yearbooks, online catalogs, digital photo albums and more. Sign up and create your flipbook.