CENTRO CULTURAL

Page 1

CENTRO CULTURAL

ARQUITECTURA Y EQUIPAMIENTO METROPOLITANO

ARQ. VICTOR ENRIQUE VASQUEZ ALVARADO

PROYECTISTAS AREVALO ZEVALLOS ANLLELO GABRIEL NOE MARTINZ LUIGI ENRRIQUE 965957303 NOELUIGI27@GMAIL.COM 952629745 ANLLELOAREVALO@GMAIL.COM
UBICACIÓN IDEA RECTORA PROGRAMA ARQUITECTÓNICO PLANO ARQUITECTONICO PRIMER PISO PLANO ARQUITECTONICO SEGUNDO PISO PLANO ARQUITECTONICO TALLERES PRIMER PISO PLANO ARQUITECTONICO TALLERES SEGUNDO PISO PLANO ESTRUCTURAL PRIMERA PLANTA PLANO ESTRUCTURAL SEGUNDA PLANTA PLANO ESTRUCTURAL TALLERES PRIMERA PLANTA PLANO ESTRUCTURAL TALLERES SEGUNDA PLANTA PLANO DE DESAGUE general PLANO DE DESAGUE TALLERES PRIMER PISO PLANO DE DESAGUE TALLERES SEGUNDO PISO PLANO DE DESAGUE TALLER DE DANZA PLANO INSTALACIONES AGUA GENERAL 5 6 7 8 9 10 11 12 13 14 15 16 17 18 19 20
INDICE:
PLANO INSTALACIONES AGUA TALLERES PRIMER PISO PLANO INSTALACIONES AGUA TALLERES SEGUNDO PISO PLANO INSTALACIONES AGUA TALLER DANZA CORTES generales ELEVACIONES Generales ELEVACIONES TALLERES CORTES TALLERES Renders INDICE: 21 22 23 24 25 26 27 28

UBICACIÓN

PERÚ DEPARTAMENTO DE LAMBAYEQUE

SERVICIOS PÚBLICOS

DISTRITO DE CHICLAYO

AGUA POTABLE

Existen redes de agua potable cerca al terreno, siendo esta red la misma de la cual se abastece el gobierno regional del cual colinda

ALCANTARILLADO

Cuenta con un sistema de alcantarillado conectado a la red pública facilitando la eliminación de desechos

Existe la factibilidad de una conexión, sobre todo porque colinda con una red de alcantarillado público y acceso a la red de alumbrado publico ya existente

Cuenta con una red de internet

SECTOR XV
INTERNET LUZ
ANL E O GA E AR VAL ZE S
ACOGEDOR LLAMATIVO EDUCATIVO CULTURA 01 Trama ortogonal y caminos rectos GOBERNANTE MOCHE SEÑOR DE SIPÁN 02 03 EJE ORDENADOR PRINCIPAL ORDEN Y FORMA DE LOS VOLUMENES VOLUMENES ORDENADOS EN UNA TRAMA DE FORMA ORTOGONAL 03 03
IDEARECTORA

PROGRAMAARQUITECTÓNICO

ÁREA TOTAL

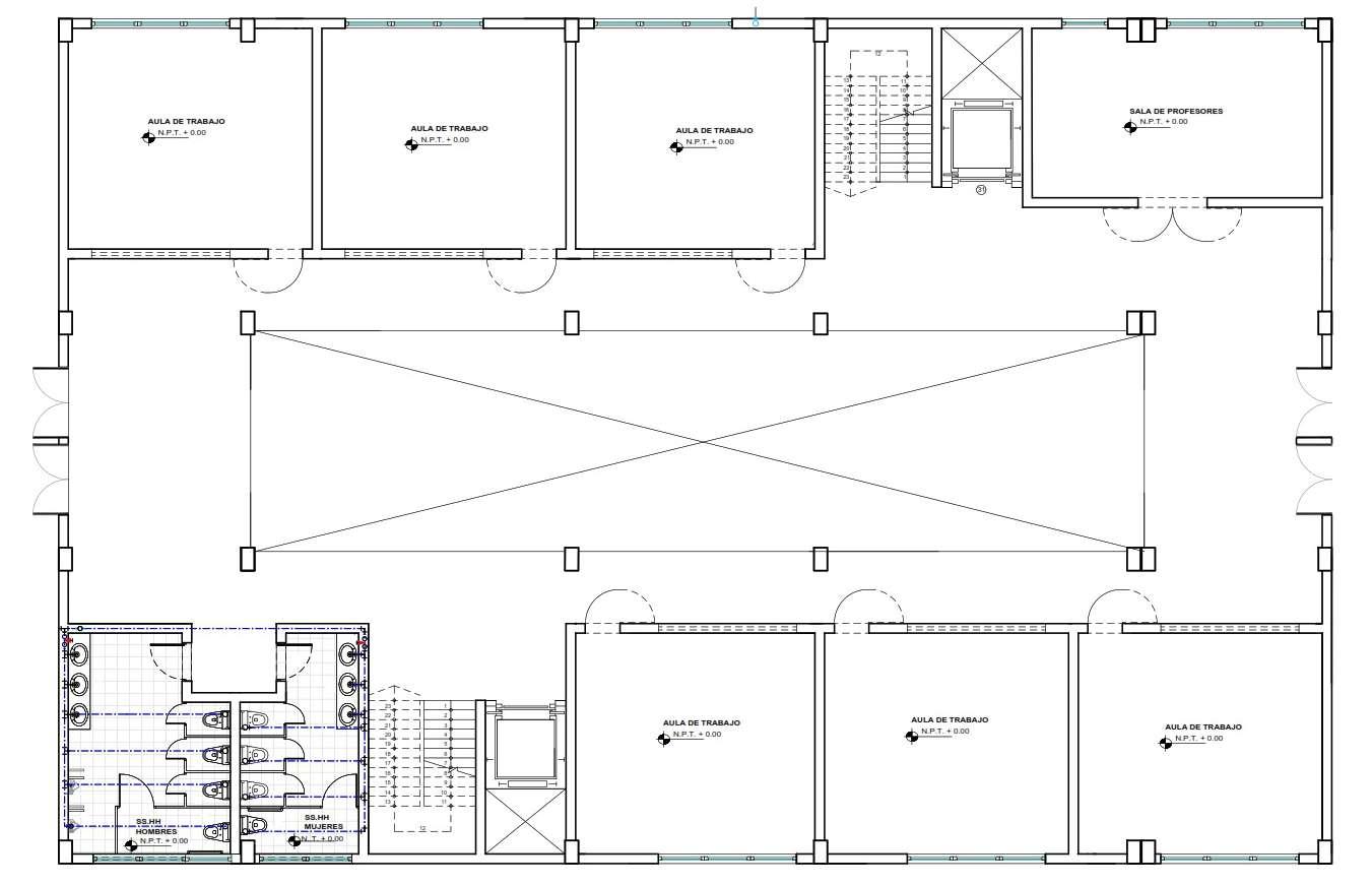
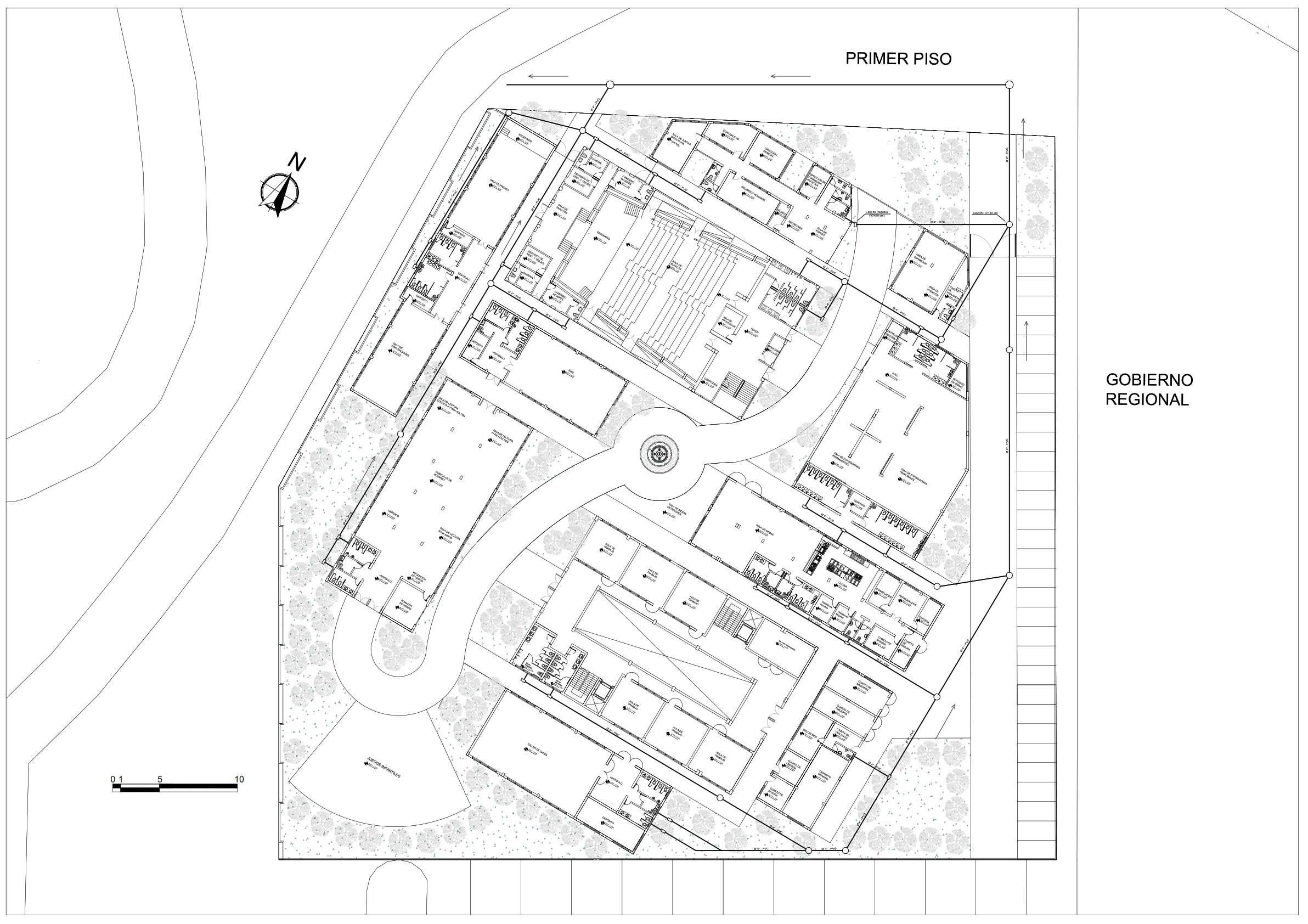
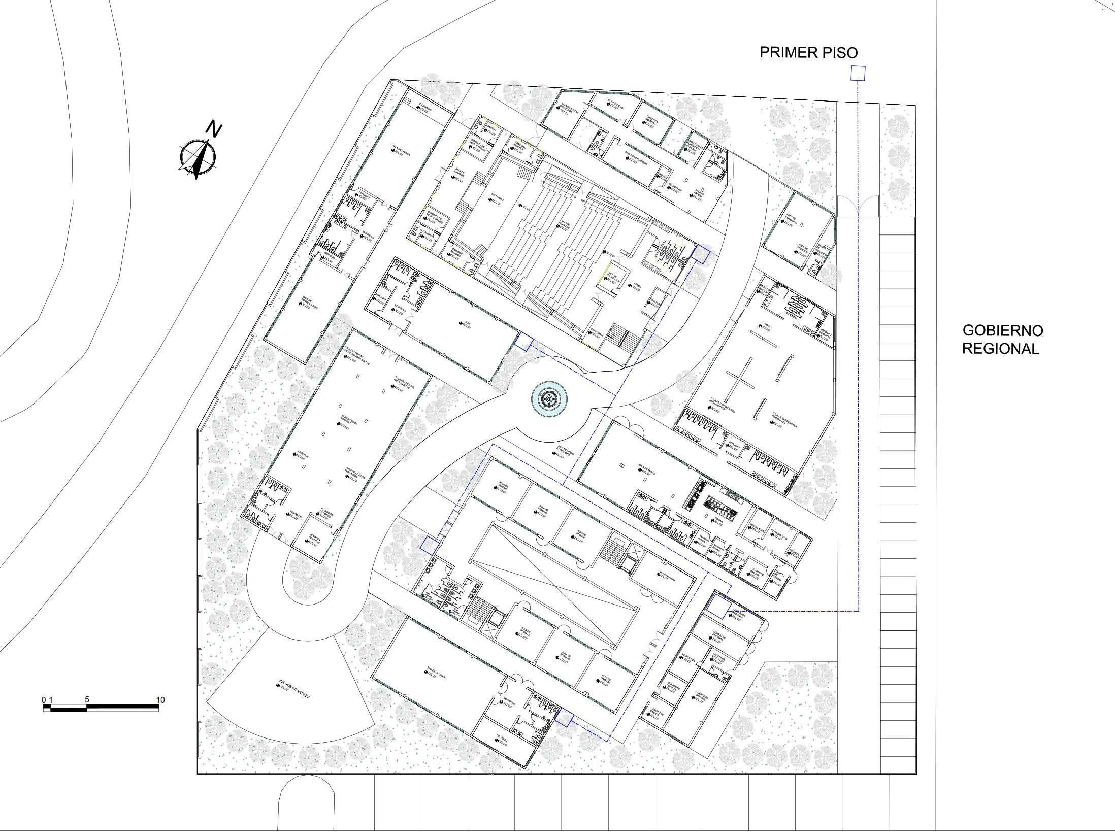
PLANOARQUITECTONICOPRIMERPISO

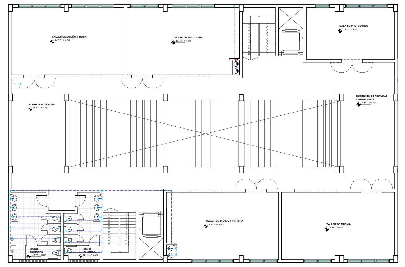
PLANOARQUITECTONICOSEGUNDOPISO

PLANOARQUITECTONICOTALLERESPRIMERPISO

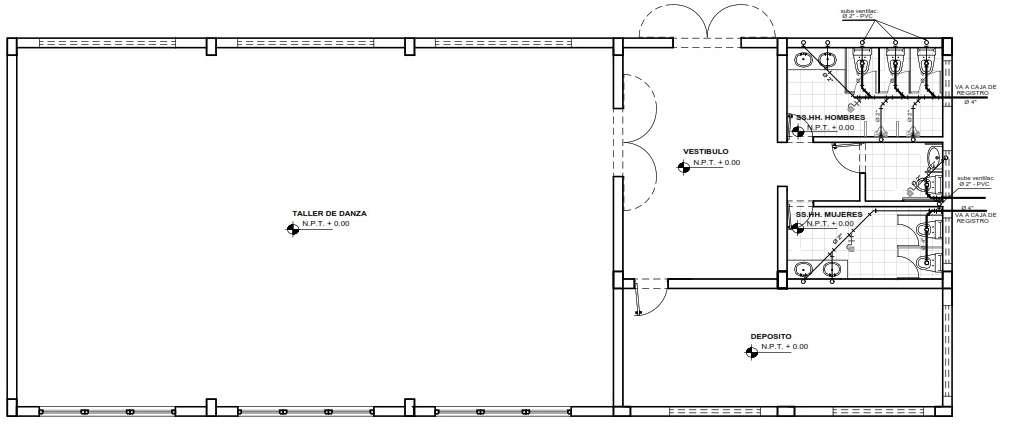
PLANOARQUITECTONICOTALLERESSEGUNDOPISO

PLANOESTRUCTURALPRIMERAPLANTA

PLANOESTRUCTURALSEGUNDAPLANTA

PLANOESTRUCTURALTALLERESPRIMERAPLANTA

PLANOESTRUCTURALTALLERESSEGUNDAPLANTA

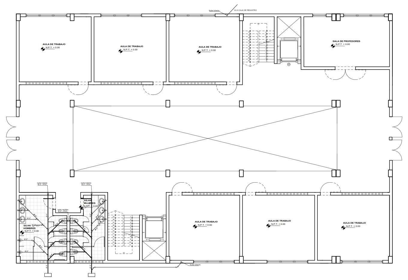
PLANODEDESAGUEGENERAL

PLANODEDESAGUETALLERESPRIMERPISO

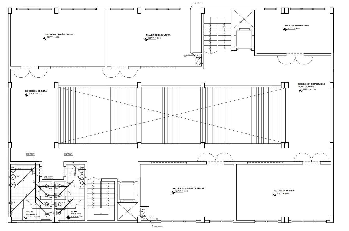
PLANODEDESAGUETALLERESSEGUNDOPISO

PLANODEDESAGUETALLERDEDANZA

PLANOINSTALACIONESAGUAGENERAL

PLANOINSTALACIONESAGUATALLERESPRIMERPISO

PLANOINSTALACIONESAGUATALLERESSEGUNDOPISO

PLANOINSTALACIONESAGUATALLERDANZA

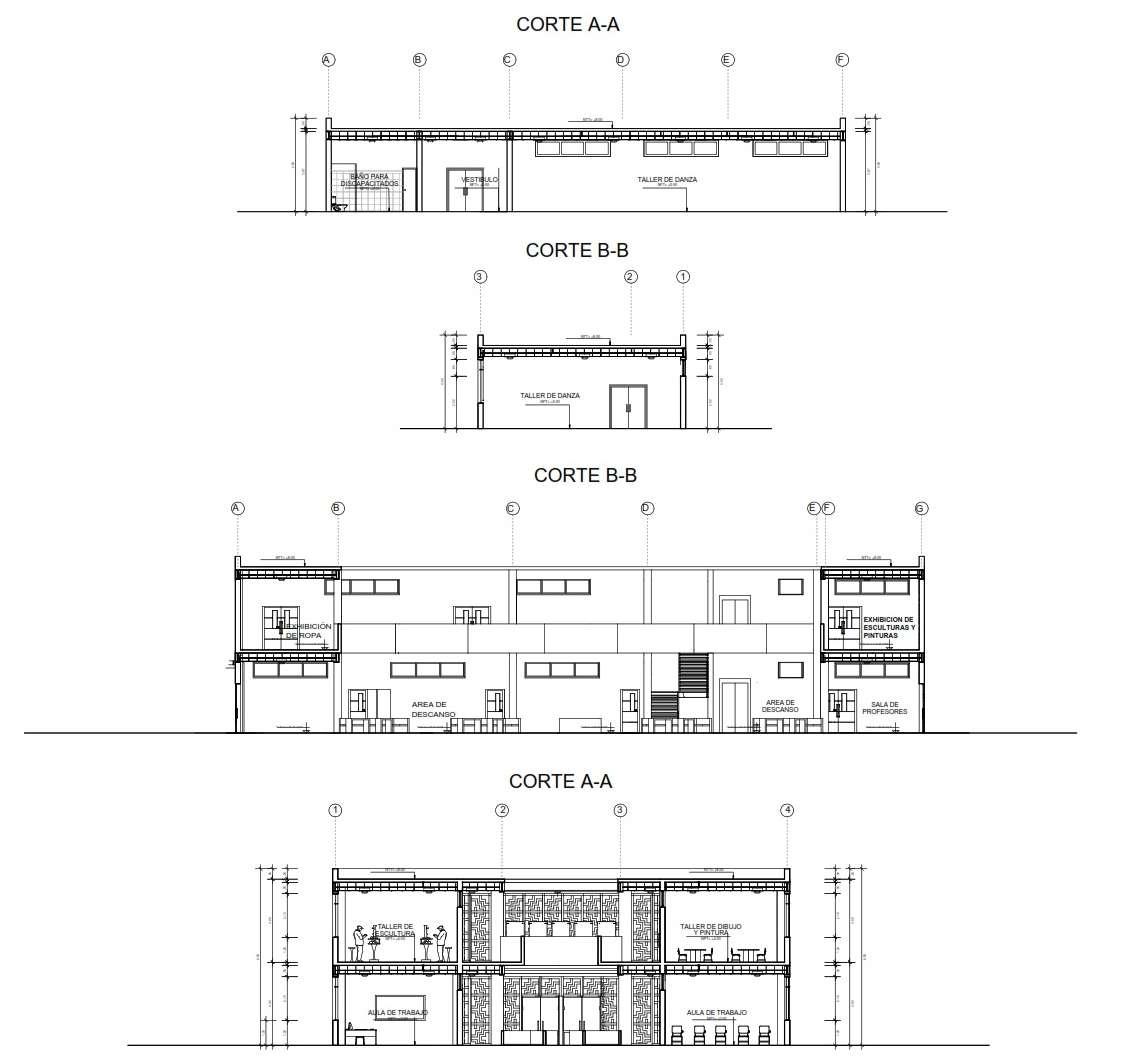
CORTES
ELEVACIONES
ELEVACIONESTALLERES
CORTESTALLERES

RENDERSCENTRO CULTURAL INGRESOS

ENTRADA PRINCIPAL

ENTRADA SECUNDARIA

ENTRADA VEHICULAR

RENDERSCENTROCULTURAL

ESPACIO CENTRAL

RENDERSCENTRO CULTURAL

CAMINO PRINCIPAL

RENDERSCENTRO CULTURAL

CAMINO S SECUNDARIOS

RENDERSCENTRO CULTURAL ADMINISTRACIÓN

PARQUE

RENDERSCENTRO CULTURAL

TIENDA DE SOUVENIS

CASETA DE VIGILANCIA

RENDERSCENTROCULTURAL

CENTRO DE CONVENCIONES Y SALA DE PRENSA

RENDERSCENTRO CULTURAL CAFETERIA

RENDERSCENTRO CULTURAL AUDITORIO

RENDERSCENTRO CULTURAL BIBLIOTECA

RENDERSCENTRO CULTURAL SALA

DE EXPOSICIONES

SALA DE USOS MULTIPLES

RENDERSCENTRO CULTURAL ESTACIONAMIENTO

RENDERSGENERALES

ELEVACION FRONTAL

ELEVACION FRONTAL

ELEVACIÓN IZQUIERDA

ELEVACIÓN POSTERIOR

RENDERS GENERALES PERSPECTVIAS

RENDERSCENTRO CULTURAL TALLERES

RENDERSTALLERES

AREA DE DESCANSO

RENDERSTALLERES

CIRCULACION HORIZONTAL

CIRCULACION VERTICAL

RENDERSTALLERES

EXHIBICIÓN DE ROPA

EXHIBICIÓN DE PINTURAS Y ESCULTURAS

RENDERSTALLERES

TALLER DE COSTURA

RENDERSTALLERES

AULA DE TRABAJO

RENDERSTALLERES

SALA DE PROFESORES

Turn static files into dynamic content formats.

Create a flipbook
Issuu converts static files into: digital portfolios, online yearbooks, online catalogs, digital photo albums and more. Sign up and create your flipbook.