AnitaW-Portfolio

Page 1


Portfolio

M.ARCH ARCHITECTURAL DESIGN

BARTLETT SCHOOL OF ARCHITECTURE

Selected Works

TERRA

The mission was to tackle the housing and climate crises (in terms of the construction industry), with the main theme being environmental, social and economic sustainability.

The goal was to create communities that have access to subsidized and environmentally friendly housing by coming up with innovative solutions looking at housing, matter and automation.

UNIVERSITY COLLEGE LONDON

Bartlett School of Architecture;

RC4; Automation: Platforms, Homes and Housing.

Tutors;

Team Members; Anita Wesonga, Dayong Luke, Du Li, Gareth Volka.

PLATFORM

Terra is a sustainability-conscious nonprofit using a combination of rammed earth and earth castingpartially automated techniques to create environmentally sustainable housing communities.

Through automation of the ramming process, we are able to create a variety of typologies of rammed earth buildings by a computational combination of limited rammed earth components and moulds.

The platform connects residents to a sustainable lifestyle by subscribing them to purchasing sustainable lifestyle products and binding them to a contract that pushes them to reduce individual emissions.

David Doria, Manuel Jimenez Garcia, Provides NG, Gilles Retsin, Kevin Saey, Molly Claypool.

FABRICATION; Construction Process

Automation of the construction process was done by introducing robotic ramming of earth which is the most time consuming and manually engaging process in conventional rammed earth processes.

Matter + Computational

Aggregation

Our computational process combined wave function collapse that was used to aggregate the components to come up with a variety of typologies.

Pix 2 Pix was used to determine the outline of the building depending on the surrounding buildings and landscape. Post processing was also done to ensure efficient lighting and ventilation.

Portfolio

PROFFESIONAL WORKS

Selected Works

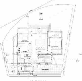
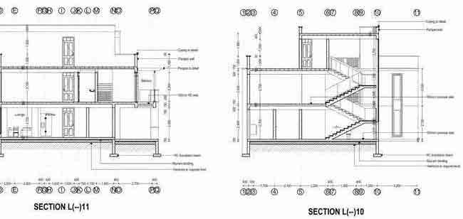
Coastal Residential

The brief was to design a residential home in the coastal region of Kenya. The finishings were inspired by the surrounding coral reefs in the region.

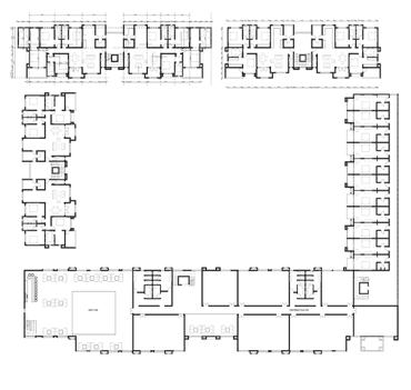
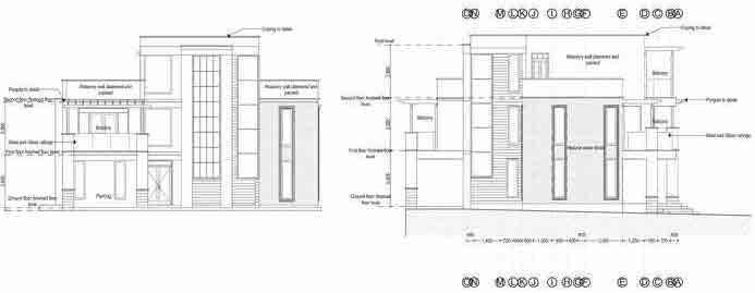
Eastleigh Residential

AKDW

Registered Architect; Martin

The brief was to design apartments in a busy urban high-rise residential zone.

I worked on the project from the conceptual design, technical design and 3D renderings under the supervision of the Senior Architect

Kikambala Hotel

AKDW

Registered Architect; Martin Tairo

Project Status; in progress

Location; Coastal Region

Brief;

The brief was to design a hotel with apartments, hotel rooms and entertainment zones that are family inclusive.

The hotel was also in the coastal region of Kenya.

Project Details

Access to quality education still remains a serious challenge for Disadvantaged children in Sierra Leone, largely due to lack of infrastructure that can absorb the vast majority of children living in poverty-stricken homes.

The aim was to design a school that is dignifying and accessible to benefit youth with disabilities.

School For Disadvantaged Children

Journeyman International

Concepts

The main concepts in consideration were accessibility and design for thermal comfort in a hot and humid region.

Building orientation: The long axis of the building was designed along East–West axis to minimize direct solar radiation penetration in the building and reduce heat gain.

Building shape: Narrow plans were used to maximize natural light, cross-ventilation and minimize heat gain.

Openings on the North-South walls to allow for daylighting whilst minimizing direct solar radiation.

Solar Protection: Overhangs, screens and recessed walls were used.

Bamboo which is locally available was used for screens.

Portfolio

UNDERGRADUATE PORTFOLIO Selected Works

The project demonstrates how the built environment can contribute to creating an environment where the elderly are physically and socially catered for within their homes from the larger scale of the community as a whole to the smaller scale of the housing unit. The themes below were the guiding principles;

• Variety of housing

• Flexibility of structures

• Barrier Free design

• Closeness of housing to services.

• Connection of homes to open spaces

• Integration of activities for all

Aging in Place

Housing Inclusive of the Elderly

Shared amenities such as commercial and recreational spaces are to be distributed across the entire site and also centrally located to enable easy access by residents especially for the pedestrian population.

Housing sorrounds the open spaces with communal parking at the entrance.

Themes mentioned earlier to facilitate for housing inclusive of the elderly were employed at the masterplan ,cluster and the housing unit level

The main themes of the project were connectivity and well being which guided the concepts

Communal Courtyard Planning.

This provides shared interactive spaces for residents to socialize and share amenities to the maximum.

Central Activity Spine

That connects residents to communal spaces throughout the site.

Multi Entry Points create smooth circulation flow on site.

Shared amenities such as commercial and recreational spaces are to be distributed across the entire site and also centrally located to enable easy access by residents especially for the pedestrian population.

Housing sorrounds the open spaces with communal parking at the entrance.

Themes mentioned earlier to facilitate for housing inclusive of the elderly will be employed at the masterplan ,cluster and the housing unit level

INCLUSIVITY AT MASTERPLAN LEVEL: Open and Community Spaces

The park is easily accesible from all housing at a walking distance.

It provides opportunities for relaxation and intergenerational activities that the elderly can take part in.

A variety of activities with different age groups helps in reducing elder lonliness which is prevalent in many aging persons. Including an elderly daycare center

The elderly day care center at the wellness center with transportation services creates an opportunity to age in place especially as one without a caregiver or even those with a caregiver who spend the day alone at home approaches the frail elderly stage of life

CLUSTER

VARIETY OF HOUSING WITHIN CLUSTER;

ADAPTABILITY;

Variety of housing fosters adaptability at cluster level.

One may easily transition from house to house within the same neighbourhood thus maintaining farmiliarity.

Older individuals may have greater connectivity to places they have lived longer in.

INCLUSIVITY;

Proposed park on river riparian. provides opportunities for work, relaxation and play creating a multigenerational inclusive space.

Parks accesible from the housing unit creates opportunities for interaction especially for retired elderly who may have more time for recreational activities.

Shared open spaces within the clusters enable for recreation at a more intimate scale.

Shared space Row housing
Bungalow Bungalow
Shared green space Semi-detached housing
Cluster 1
Cluster 2
Longitudinal Elevation.

As a person ages, their family size may reduce.The flex home provides an opportunity for subdivision of a larger home to two units which may be easily subletable.

This unit has an accesory unit that can accomodate a caregiver. The staircase is located at the entrance enabling for subleting of upper floors or expansion of upper units with time.

The

The ground floor can serve as a starter unit since it is self sufficient with an acccesible bedroom.

The upper floor can be sublet with the lower floor maintaining some privacy due to the positioning of staircase next to the entrance.

Longitudinal Elevation

YOUR

Transverse

Housing with contrasting colour finishes for easier visual identity of housing especially as one ages

Housing with contrasting colour finishes for easier visual identity of housing especially as one ages.

SHITSESWA ANITA WESONGA

ADAPTABILITY

WESONGA contrasting colour finishes for easier especially as one ages.

Different textures in neighboring homes' entrances enables an elderly individual to easier differentiate one space from the other .

Different

Adaptability in the context of housing and neighborhoods derives from a variety of housing plans, tenure options and flexibility of structures and open spaces.

SHITSESWA ANITA WESONGA

ECOLODGE

Design for ecology, sustainability, adaptive re -use; Green Design and Organic design

Academic Year 4

Rongai

The proposed project is the design of a 50 bed eco-lodge on a riverside property located in the suburban countryside.

This ecolodge is expected to reinforce the area's historical conservation and touristic role as host to wildlife dispersal lands, home to the rich cultural heritage of the maasai people, host to tourist lodges and as an adjunct area to the National Park

Urban Park

Unity Park

Journey to Unity; The main theme was promoting unity through art by re inventing a riverside unused central urban space

THEME : JOURNEY TO UNITY

Promoting unity in Kenya is important bearing in mind past conflicts that have led to blood being shed.

If people can unite there can peace and future conflicts can be avoided.

My idea is a walk through the roundabout with sculptures representing:

The idea was a walk through the roundabout with sculptures representing conflict and the destruction it causes, resolution and trying to find a way back to peace and peace found as a result of people uniting and putting their differences aside.

URBAN DESIGN RE(IN)NOVATING

Re(in)novating the informal street

This project focused on the two streets located in the Central Business District. These two streets are a microcosm of the ‘informal’ street in where, like other like other cities in the Global South, the street is increasingly the locus of producing and reproducing daily life.

The main aim was to find a balance between the formal and the informal and to create hormony within the street.

My main focus was the traders and informal stalls and shades that had encroached on the pedestrian walkways.

Instead of getting rid of the informal traders who had encroached on the pedestrian walkways. I chose to embrace them as a design intervention by re-modelling the stalls using sustainable materials such as bamboo and re-use of container stalls.

A cantilevered roof was added to the stalls to improve their facades

The cantilever negates the need to add conopies as was being done by the vendors and provides shade and additional display areas for vendors

In doing so a more harmonized street section, which is more aesthetically pleasing accomodating both the traders and the pedestrians was created.

YOUR URBAN

DETAIL

The river front developments form a huge part of the recreational district of our railway city. The activities in this district will promote both local and international tourism which will promote the railway city and emphasize the use of the improved railway system and also improve the economy of the county as a whole.

As a city within a city, job creation is important and the riverfront developments and hotels and serviced apartments contribute to this.

The location of the recreational district where the riverfront developments and museum are based is convinient because it is sorrounded by a golf course and other city parks.

OBJECTIVES

Providing a recreational space for guests and the area residents and workers

Promoting the railway city and use of trains and trams as a means of transport.

Providing views into the site.

Job creation and boosting the economy

Portfolio

Turn static files into dynamic content formats.

Create a flipbook
Issuu converts static files into: digital portfolios, online yearbooks, online catalogs, digital photo albums and more. Sign up and create your flipbook.