WALLU VILLEGAS-DISEÑO ARQUITECTÓNICO 5B-GRUPO 3.1.1

Page 1

CENTRO DE FORMACION Y DIFUSION CULTURAL

WALLU-VILLEGAS

“Frutos de Villegas”

CCENTE - CHAPOÑAN - HURTADO -TREVEJO
GRUPO 3.1.1
DISEÑO ARQUITECTÓNICO 5B

ÍNDICE

01 UBICACIÓN 02 PLOT PLAN 1:500 03 PLANIMETRÍA PLANTAS, CORTES Y ELEVACIONES 04 ISOMÉTRICA EXPLOTADA 1:250 05 MAQUETA VIRTUAL 06 MAQUETA FÍSICA 07 DETALLES CONSTRUCTIVOS 08 MEMORIA DESCRIPTIVA GRÁFICA FLUJOS PEATONALES Y VEHICULARES PROCESO CONCEPTUAL PROGRAMA ARQUITECTONICO VARIABLES PARAMÉTRICAS 09 VISTAS PEATONALES Y ÁREAS 10 RECORRIDO VIRTUAL + LINK ISSUU

Av.EnriqueMeiggs

Av.EnriqueMeiggs
Av.Argentina Av. Santa Rosa
MINKA
Av.
Nestor Gambeta Av.MoralesDuarez MINKA ZONA
BARRIO CULTURAL - VILLAQTA
Av.Argentina Av. Santa Rosa Av. Nestor Gambeta
DISEÑO ARQUITECTÓNICO 5 B CÁTEDRA: Mg. ARQ. ORTIZ AGAMA Mg. ARQ. CARDENAS FLORES Mg. ARQ. CARRASCO ESCARCENA
G.3.1.1. ESTUDIANTES PLOT PLAN Mg. ARQ. PALACIOS ROJAS Mg. ARQ. MORALES DELGADO LÁMINA 1/500 10 20 50
Ccente Calderon Angela Chapoñan Solar, Ashlye Hurtado Ramos, Marco Trevejo Pinedo Ximena

CIRCULACIÓN HORIZONTAL

CIRCULACIÓN VERTICAL

Av. Santa
Rosa

CIRCULACIÓN HORIZONTAL

CIRCULACIÓN VERTICAL

CIRCULACIÓN HORIZONTAL

CIRCULACIÓN VERTICAL

DISEÑO ARQUITECTÓNICO 5 B CÁTEDRA: Mg. ARQ. ORTIZ AGAMA Mg. ARQ. CARDENAS FLORES Mg. ARQ. CARRASCO ESCARCENA
G.3.1.1. ESTUDIANTES TERCERA PLANTA Mg. ARQ. PALACIOS ROJAS Mg. ARQ. MORALES DELGADO LÁMINA 1/100
Ccente Calderon Angela Chapoñan Solar, Ashlye Hurtado Ramos, Marco Trevejo Pinedo Ximena
SÓTANO 1/200
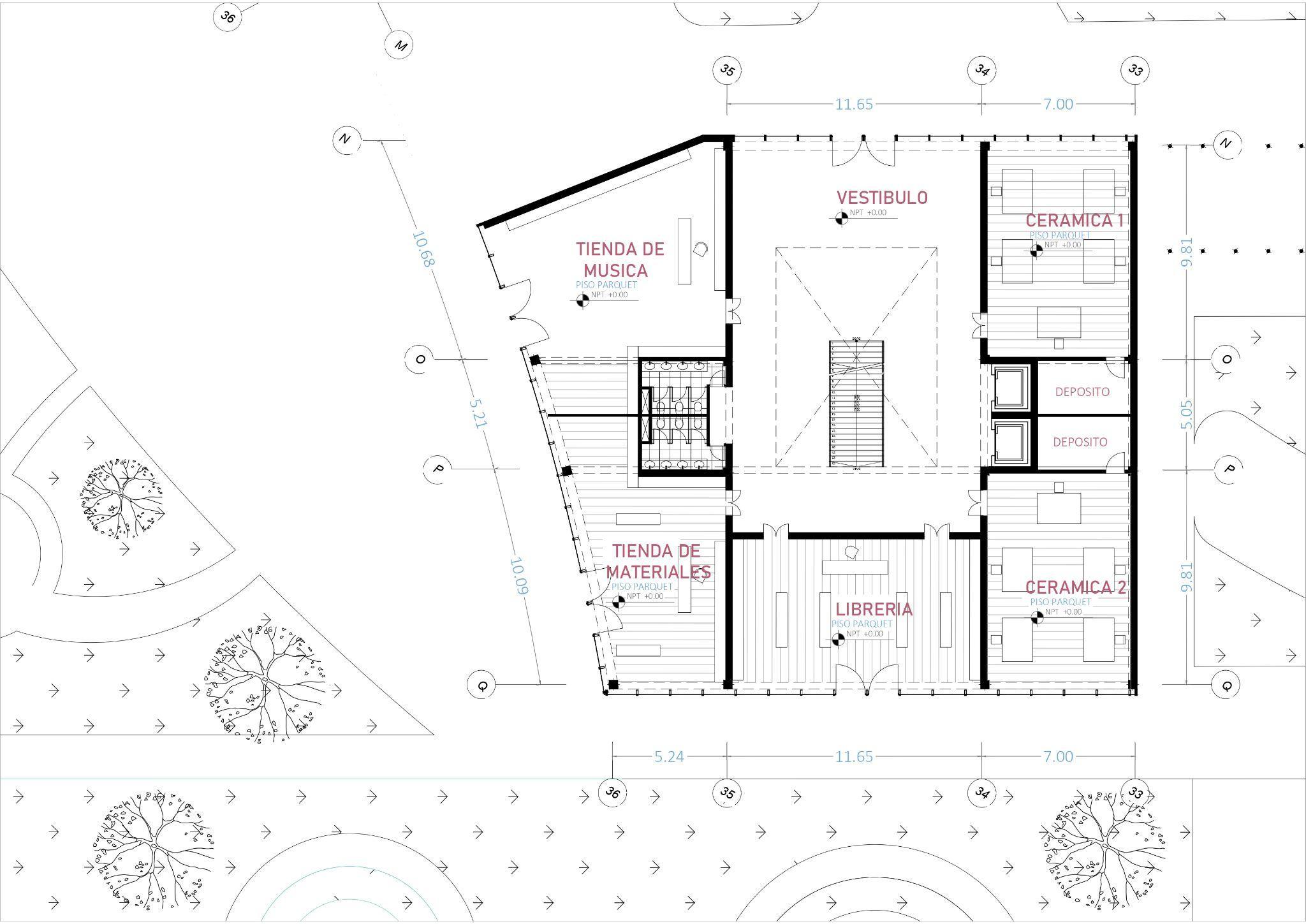
DISEÑO ARQUITECTÓNICO 5 B CÁTEDRA: Mg. ARQ. ORTIZ AGAMA Mg. ARQ. CARDENAS FLORES Mg. ARQ. CARRASCO ESCARCENA
G.3.1.1. ESTUDIANTES PRIMERA PLANTA Mg. ARQ. PALACIOS ROJAS Mg. ARQ. MORALES DELGADO LÁMINA 1/100
Ccente Calderon Angela Chapoñan Solar, Ashlye Hurtado Ramos, Marco Trevejo Pinedo Ximena
Mg. ARQ. ORTIZ AGAMA Mg. ARQ. CARDENAS FLORES Mg. ARQ. CARRASCO ESCARCENA
G.3.1.1. ESTUDIANTES PRIMERA PLANTA Mg. ARQ. PALACIOS ROJAS Mg. ARQ. MORALES DELGADO LÁMINA 1/100
Ccente Calderon Angela Chapoñan Solar, Ashlye Hurtado Ramos, Marco Trevejo Pinedo Ximena
DISEÑO ARQUITECTÓNICO 5 B CÁTEDRA: Mg. ARQ. ORTIZ AGAMA Mg. ARQ. CARDENAS FLORES Mg. ARQ. CARRASCO ESCARCENA
G.3.1.1. ESTUDIANTES SEGUNDA PLANTA Mg. ARQ. PALACIOS ROJAS Mg. ARQ. MORALES DELGADO LÁMINA 1/100
Ccente Calderon Angela Chapoñan Solar, Ashlye Hurtado Ramos, Marco Trevejo Pinedo Ximena
Mg. ARQ. ORTIZ AGAMA Mg. ARQ. CARRASCO ESCARCENA
G.3.1.1. ESTUDIANTES SEGUNDA PLANTA Mg. ARQ. PALACIOS ROJAS Mg. ARQ. MORALES DELGADO LÁMINA 1/100
Ccente Calderon Angela Chapoñan Solar, Ashlye Hurtado Ramos, Marco Trevejo Pinedo Ximena
DISEÑO ARQUITECTÓNICO 5 B CÁTEDRA: Mg. ARQ. ORTIZ AGAMA Mg. ARQ. CARDENAS FLORES Mg. ARQ. CARRASCO ESCARCENA
G.3.1.1. ESTUDIANTES TERCERA PLANTA Mg. ARQ. PALACIOS ROJAS Mg. ARQ. MORALES DELGADO LÁMINA 1/100
Ccente Calderon Angela Chapoñan Solar, Ashlye Hurtado Ramos, Marco Trevejo Pinedo Ximena
DISEÑO ARQUITECTÓNICO 5 B CÁTEDRA: Mg. ARQ. ORTIZ AGAMA Mg. ARQ. CARDENAS FLORES Mg. ARQ. CARRASCO ESCARCENA
G.3.1.1. ESTUDIANTES PRIMERA PLANTA Mg. ARQ. PALACIOS ROJAS Mg. ARQ. MORALES DELGADO LÁMINA 1/100
Ccente Calderon Angela Chapoñan Solar, Ashlye Hurtado Ramos, Marco Trevejo Pinedo Ximena
DISEÑO ARQUITECTÓNICO 5 B CÁTEDRA: Mg. ARQ. ORTIZ AGAMA Mg. ARQ. CARDENAS FLORES Mg. ARQ. CARRASCO ESCARCENA
G.3.1.1. ESTUDIANTES PRIMERA PLANTA Mg. ARQ. PALACIOS ROJAS Mg. ARQ. MORALES DELGADO LÁMINA 1/100
Ccente Calderon Angela Chapoñan Solar, Ashlye Hurtado Ramos, Marco Trevejo Pinedo Ximena
DISEÑO ARQUITECTÓNICO 5 B CÁTEDRA: Mg. ARQ. ORTIZ AGAMA Mg. ARQ. CARDENAS FLORES Mg. ARQ. CARRASCO ESCARCENA
G.3.1.1. ESTUDIANTES PRIMERA PLANTA Mg. ARQ. PALACIOS ROJAS Mg. ARQ. MORALES DELGADO LÁMINA 1/100
Ccente Calderon Angela Chapoñan Solar, Ashlye Hurtado Ramos, Marco Trevejo Pinedo Ximena
DISEÑO ARQUITECTÓNICO 5 B CÁTEDRA: Mg. ARQ. ORTIZ AGAMA Mg. ARQ. CARDENAS FLORES Mg. ARQ. CARRASCO ESCARCENA
G.3.1.1. ESTUDIANTES PRIMERA PLANTA Mg. ARQ. PALACIOS ROJAS Mg. ARQ. MORALES DELGADO LÁMINA 1/100
Ccente Calderon Angela Chapoñan Solar, Ashlye Hurtado Ramos, Marco Trevejo Pinedo Ximena
DISEÑO ARQUITECTÓNICO 5 B CÁTEDRA: Mg. ARQ. ORTIZ AGAMA Mg. ARQ. CARDENAS FLORES Mg. ARQ. CARRASCO ESCARCENA
G.3.1.1. ESTUDIANTES SEGUNDA PLANTA Mg. ARQ. PALACIOS ROJAS Mg. ARQ. MORALES DELGADO LÁMINA 1/100
Ccente Calderon Angela Chapoñan Solar, Ashlye Hurtado Ramos, Marco Trevejo Pinedo Ximena
DISEÑO ARQUITECTÓNICO 5 B CÁTEDRA: Mg. ARQ. ORTIZ AGAMA Mg. ARQ. CARDENAS FLORES Mg. ARQ. CARRASCO ESCARCENA
G.3.1.1. ESTUDIANTES SEGUNDA PLANTA Mg. ARQ. PALACIOS ROJAS Mg. ARQ. MORALES DELGADO LÁMINA 1/100
Ccente Calderon Angela Chapoñan Solar, Ashlye Hurtado Ramos, Marco Trevejo Pinedo Ximena
DISEÑO ARQUITECTÓNICO 5 B CÁTEDRA: Mg. ARQ. ORTIZ AGAMA Mg. ARQ. CARDENAS FLORES Mg. ARQ. CARRASCO ESCARCENA
G.3.1.1. ESTUDIANTES SEGUNDA PLANTA Mg. ARQ. PALACIOS ROJAS Mg. ARQ. MORALES DELGADO LÁMINA 1/100
Ccente Calderon Angela Chapoñan Solar, Ashlye Hurtado Ramos, Marco Trevejo Pinedo Ximena
DISEÑO ARQUITECTÓNICO 5 B CÁTEDRA: Mg. ARQ. ORTIZ AGAMA Mg. ARQ. CARDENAS FLORES Mg. ARQ. CARRASCO ESCARCENA
G.3.1.1. ESTUDIANTES SEGUNDA PLANTA Mg. ARQ. PALACIOS ROJAS Mg. ARQ. MORALES DELGADO LÁMINA 1/100
Ccente Calderon Angela Chapoñan Solar, Ashlye Hurtado Ramos, Marco Trevejo Pinedo Ximena
DISEÑO ARQUITECTÓNICO 5 B CÁTEDRA: Mg. ARQ. ORTIZ AGAMA Mg. ARQ. CARDENAS FLORES Mg. ARQ. CARRASCO ESCARCENA
G.3.1.1. ESTUDIANTES TERCERA PLANTA Mg. ARQ. PALACIOS ROJAS Mg. ARQ. MORALES DELGADO LÁMINA 1/100
Ccente Calderon Angela Chapoñan Solar, Ashlye Hurtado Ramos, Marco Trevejo Pinedo Ximena
DISEÑO ARQUITECTÓNICO 5 B CÁTEDRA: Mg. ARQ. ORTIZ AGAMA Mg. ARQ. CARDENAS FLORES Mg. ARQ. CARRASCO ESCARCENA
G.3.1.1. ESTUDIANTES TERCERA PLANTA Mg. ARQ. PALACIOS ROJAS Mg. ARQ. MORALES DELGADO LÁMINA 1/100
Ccente Calderon Angela Chapoñan Solar, Ashlye Hurtado Ramos, Marco Trevejo Pinedo Ximena
DISEÑO ARQUITECTÓNICO 5 B CÁTEDRA: Mg. ARQ. ORTIZ AGAMA Mg. ARQ. CARDENAS FLORES Mg. ARQ. CARRASCO ESCARCENA
G.3.1.1. ESTUDIANTES TERCERA PLANTA Mg. ARQ. PALACIOS ROJAS Mg. ARQ. MORALES DELGADO LÁMINA 1/100
Ccente Calderon Angela Chapoñan Solar, Ashlye Hurtado Ramos, Marco Trevejo Pinedo Ximena
DISEÑO ARQUITECTÓNICO 5 B CÁTEDRA: Mg. ARQ. ORTIZ AGAMA Mg. ARQ. CARDENAS FLORES Mg. ARQ. CARRASCO ESCARCENA
G.3.1.1. ESTUDIANTES TERCERA PLANTA Mg. ARQ. PALACIOS ROJAS Mg. ARQ. MORALES DELGADO LÁMINA 1/100
Ccente Calderon Angela Chapoñan Solar, Ashlye Hurtado Ramos, Marco Trevejo Pinedo Ximena
DISEÑO ARQUITECTÓNICO 5 B CÁTEDRA: Mg. ARQ. ORTIZ AGAMA Mg. ARQ. CARDENAS FLORES Mg. ARQ. CARRASCO
ESCARCENA
G.3.1.1. ESTUDIANTES PRIMERA PLANTA Mg. ARQ. PALACIOS ROJAS Mg. ARQ. MORALES DELGADO LÁMINA 1/200
Ccente Calderon Angela Chapoñan Solar, Ashlye Hurtado Ramos, Marco Trevejo Pinedo Ximena
DISEÑO ARQUITECTÓNICO 5 B CÁTEDRA: Mg. ARQ. ORTIZ AGAMA Mg. ARQ. CARDENAS FLORES Mg. ARQ. CARRASCO ESCARCENA
G.3.1.1. ESTUDIANTES SEGUNDA PLANTA Mg. ARQ. PALACIOS ROJAS Mg. ARQ. MORALES DELGADO LÁMINA 1/200
Ccente Calderon Angela Chapoñan Solar, Ashlye Hurtado Ramos, Marco Trevejo Pinedo Ximena
DISEÑO ARQUITECTÓNICO 5 B CÁTEDRA: Mg. ARQ. ORTIZ AGAMA Mg. ARQ. CARDENAS FLORES Mg. ARQ. CARRASCO ESCARCENA
G.3.1.1. ESTUDIANTES TERCERA PLANTA Mg. ARQ. PALACIOS ROJAS Mg. ARQ. MORALES DELGADO LÁMINA 1/200 NPT. 11.30 NPT. 10.10
Ccente Calderon Angela Chapoñan Solar, Ashlye Hurtado Ramos, Marco Trevejo Pinedo Ximena

5 B

DISEÑO ARQUITECTÓNICO
CÁTEDRA: Mg. ARQ. ORTIZ AGAMA Mg. ARQ. CARDENAS FLORES Mg. ARQ. CARRASCO ESCARCENA
G.3.1.1. ESTUDIANTES PROGRAMA Mg. ARQ. PALACIOS ROJAS Mg. ARQ. MORALES DELGADO LÁMINA ZONA SUBZONA AMBIENTES ÁREA (m2) AFORO N° ÁREA TOTAL ADMINISTRATIVA VESTIBULO GENERAL VESTIBULO 135 45 135 OFICINAS DE CONTROL ADMINISTRACION 55 5 55 SALA DE PROFESORES 75 8 75 ARTES PLASTICAS VESTIBULO VESTIBULO 85 60 85 BAÑO DE DAMAS 8 3 8 BAÑO DE CABALLEROS 8 3 8 ARTES PLASTICAS ARTES PLASTICAS 1 95 23 95 ARTES PLASTICAS 2 75 4 75 DEPOSITO 20 4 0 CERAMICA Y ESCULTURA CERAMICA 1 65 45 65 DEPOSITO 10 2 10 CERAMICA 2 65 50 65 DEPOSITO 10 2 10 TELARES TELARES 1 75 55 75 TELARES 2 65 45 65 DEPOSITO 20 4 20 PINTURA Y DIBUJO DIBUJO 1 40 20 40 DEPOSITO 10 2 10 DIBUJO 2 60 45 60 DEPOSITO 10 2 10 PINTURA 125 80 125 PINTURA 2 75 60 75 DEPOSITO 15 3 15 PINTURA 3 90 55 90 DEPOSITO 15 3 15 COMERCIO HALL HALL 125 65 125 SERVICIOS BAÑO DE VARONES 25 6 25 BAÑO DE DAMAS 20 6 3 60 BAÑO DE DISCAPACITADOS 5 1 3 15 CUARTO DE SERVICIO 10 2 3 30 DANZA AULA 75 12 75 VESTIDORES 15 3 15 DEPOSITO 10 1 10 VIENTO AULA 100 12 100 DEPOSITO 20 1 20 HALL HALL 125 40 125 CUERDA AULA 85 12 85 DEPOSITO 10 1 10 MUSICA INSTRUMENTOS MUSICALES 95 25 95 ARTE TIENDA DE MATERIALES 72 25 72 LIBRERIA LIBRERIA 75 25 75 ZONA SUBZONA AMBIENTES AREA (m2) AFORO N° AREA TOTAL ADMINISTRACION VESTIBULO GENERAL OF. de ADMINISTRACION 60 6 60 DIRECION SALA DE PROFESORES 35 10 35 TAQUILLA BOLETERIA 25 3 25 TEATRO SALA DE PROYECCION SALA DE PROYECCION 20 3 20 AREA DE BUTACAS PLANTA ALTA 190 150 190 PLANTA BAJA 525 468 525 PALCO 18 3 18 ANTESCENARIO ESTAR DE ARTISTAS 240 48 240 ESCENARIO ESCENARIO 275 45 275 CAMERINO CAMERINO DE DAMAS 38 6 38 BAÑO DE CAMERINO DE DAMAS 15 4 15 CAMERINO DE VARONES 35 6 35 BAÑO DE CAMERINO DE VARONES 15 4 15 CAMERINO ESTELAR 38 6 38 BAÑO DE CAMERINO ESTELAR 17 4 17 FOYER VESTIBULO 372 124 372 SERVICIOS GENERALES BAÑO HOMBRES 36 3 36 BAÑO MUJERES 36 3 2 72 DEPOSITO 10 3 10 ALMACEN AREA DE CARGA Y DESCARGA 220 22 220 UTILERIA 70 7 70 ALMACEN 233 25 233 TALLERES MUSICA PIANO 100 55 100 PERCUSION 165 75 165 TALLERES CULTURALES DANZA 185 46 185 TALLLERS DE IMPROVISACION 155 38 155 COMERCIO CAFETERIA COCINA 15 2 15 ALMACEN 8 2 8 AREA DE COMENSALES (PLANTA BAJA) 136 90 136 AREA DE COMENSALES (PLANTA ALTA) 180 120 180 BARRA 10 2 10 SERVICIOS 30 6 2 60 CONFITERIA CONFITERIA 30 5 30 COMERCIO 100 25 100 COMERCIO 56 14 56 AREA DE COMIDAS AREA DE COMENSALES 245 163 245 PUESTO DE COMIDA 25 16 25 PUESTO DE COMIDA 2 35 23 35 PUESTO DE COMIDA 3 30 20 30 DIFUSION ARTISTICA ZONA SUBZONA AMBIENTES AREA (m2) AFORO N° AREA TOTAL SALA DE EXPOSICION EXHIBICION TEMPORAL EXHIBICION TEMPORAL 365 121 365 EXHIBICION PERMANENTE EXHIBICION PERMANENTE 735 245 735 BIBLIOTECA ADMINISTRACION SECRETARIA 18 2 36 BIBLIOTECA SALA DE LECTURA ADULTOS 220 150 220 SALA DE LECTURA NIÑOS 215 150 215 VIDEOTECA VIDEOTECA 85 20 85 LUDOTECA LUDOTECA 75 50 75 SERVICIOS GENERALES BAÑO HOMBRES 15 4 15 BAÑO MUJERES 15 4 15 DEPOSITO 10 2 10 FORMACIÓN ARTÍSTICA INTERÉS CULTURAL
Ccente Calderon Angela Chapoñan Solar, Ashlye Hurtado Ramos, Marco Trevejo Pinedo Ximena
DISEÑO ARQUITECTÓNICO
CÁTEDRA: Mg. ARQ. ORTIZ AGAMA Mg. ARQ. CARDENAS FLORES Mg. ARQ. CARRASCO ESCARCENA
5 B
G.3.1.1. ESTUDIANTES PROGRAMA Mg. ARQ. PALACIOS ROJAS Mg. ARQ. MORALES DELGADO LÁMINA ZONA SUBZONA AMBIENTES AREA (m2) AFORO N° AREA TOTAL ADMINISTRACIÓN VESTIBULO GENERAL HALL 115 2 1 115 DIRECCION 32 5 1 32 RECEPCION 8 2 1 8 PROYECCIÓN SOCIAL SERVICIO SOCIAL HALL 110 55 1 110 TOPICO 40 3 1 40 PSICOLOGIA 45 3 1 45 NUTRICION 45 3 1 45 SALA DE ESPERA 52 6 1 52 COMEDOR HALL 80 40 1 80 PATIO INTERNO 72 24 1 72 ZONA DE MESAS 200 132 1 200 COCINA 105 10 1 105 ALMACEN 35 3 1 35 SERVICIOS 5 1 5 FORMACIÓN SUM SUM 155 100 1 155 SALA DE CÓMPUTO CUBICULOS DE INTERNET 85 25 1 85 SERVICIOS GENERALES BAÑO DE DAMAS 25 6 1 25 BAÑO DE VARONES 30 6 1 30 BAÑO DE DISCAPACITADOS 6 1 6 CUARTO DE LIMPIEZA 5 1 5 TALLER DE COSTURA AULA DE CORTE Y CONFECCIÓN 85 14 1 85 ALMACEN 15 2 1 15 DEPOSITO 6 1 6 TALLER DE CARPINTERIA TALLER DE CARPINTERIA 80 20 1 80 DEPOSITO 13 2 1 13 TALLER DE COCINA AULA DE COCINA 90 22 2 180 ALMACEN 15 2 2 30 SERVICIOS GENERALES BAÑO DE DAMAS 30 6 2 60 BAÑO DE VARONES 35 6 2 70 BAÑO DISCAPACITADOS 5 2 10 CUARTO DE BASURA 10 2 1 10 SOCIALIZACIÓN SALA DE CO-WORKING SALA DE CO-WORKING 105 70 1 105 ALMACEN 5 1 5 SALA DE REUNIONES SALA DE REUNIONES 40 30 1 40 SALA DE REUS 20 13 1 20 SERVICIOS 12 4 1 4 SALA DE EXPOS SALA DE EXPOS 200 66 1 200 CUARTO DE AUDIO Y PROYECCIÓN 13 2 1 13 AULA AULA 122 30 1 122 ALMACEN 13 2 1 13 ZONA DE INTEGRACION ZONA DE DESCANSO Y ESTAR 285 145 1 285 ZONA SUBZONA AMBIENTES AREA (m2) AFORO N° AREA TOTAL COMERCIO LIBRERIA LIBRERIA 45 10 1 45 MESAS LIBRES 130 40 1 130 PASTELERIA COCINA 90 9 1 90 ALMACEN 15 2 1 15 AREA DE COMENSALES 70 47 1 70 HELADERIA HELADERIA 25 2 1 25 ZONA DE COMIDAS RESTAURANTE 25 2 1 25 ALMACEN 10 2 1 10 CAFETERIA 25 2 1 25 ZONA DE MESAS 225 150 1 225 ZONA ME MESAS ALMACEN 10 2 1 10 BAÑO DE DAMAS 5 1 1 5 BAÑO DE VARONES 5 1 1 5 RESTAURANTE COCINA 20 2 1 20 ALMACEN 18 3 1 18 BARRA 22 4 1 22 AREA DE MESAS 150 100 1 150 TIENDA TIENDA DE SOUVERNIRS 37 13.21 1 37 TIENDA DE PRODUCTOS COMERCIALES 85 30 1 85 ZONAS DE TRABAJO ÁREA CONSTRUIDA ZONA COMUNITARIA DE EMPRENDIMIENTO 3628 ZONA DE INTERÉS CULTURAL 2180 ZONA DE DIFUSIÓN ARTÍSTICA 4094 ZONA DE FORMACIÓN ARTÍSTICA 2223 ESTACIONAMIENTO 6320 ESPACIO PÚBLICO 18788 TOTAL 37233 ZONA COMUNITARIA Y DE EMPRENDIMIENTO
Ccente Calderon Angela Chapoñan Solar, Ashlye Hurtado Ramos, Marco Trevejo Pinedo Ximena
DISEÑO ARQUITECTÓNICO 5 B CÁTEDRA: Mg. ARQ. ORTIZ AGAMA Mg. ARQ. CARDENAS FLORES Mg. ARQ. CARRASCO ESCARCENA
G.3.1.1. ESTUDIANTES ELEVACIONES Mg. ARQ. PALACIOS ROJAS Mg. ARQ. MORALES DELGADO LÁMINA ELEVACIÓN ESTE ELEVACIÓN NORTE
Ccente Calderon Angela Chapoñan Solar, Ashlye Hurtado Ramos, Marco Trevejo Pinedo Ximena
DISEÑO ARQUITECTÓNICO 5 B CÁTEDRA: Mg. ARQ. ORTIZ AGAMA Mg. ARQ. CARDENAS FLORES Mg. ARQ. CARRASCO ESCARCENA
G.3.1.1. ESTUDIANTES ELEVACIONES Mg. ARQ. PALACIOS ROJAS Mg. ARQ. MORALES DELGADO LÁMINA ELEVACIÓN SUROESTE ELEVACIÓN SUR
Ccente Calderon Angela Chapoñan Solar, Ashlye Hurtado Ramos, Marco Trevejo Pinedo Ximena
DISEÑO ARQUITECTÓNICO 5 B CÁTEDRA: Mg. ARQ. ORTIZ AGAMA Mg. ARQ. CARDENAS FLORES Mg. ARQ. CARRASCO ESCARCENA
G.3.1.1. ESTUDIANTES CORTES FUGADOS Mg. ARQ. PALACIOS ROJAS Mg. ARQ. MORALES DELGADO LÁMINA
C-C
B-B
A-A
Ccente Calderon Angela Chapoñan Solar, Ashlye Hurtado Ramos, Marco Trevejo Pinedo Ximena
CORTE
CORTE
CORTE
DISEÑO ARQUITECTÓNICO 5 B CÁTEDRA: Mg. ARQ. ORTIZ AGAMA Mg. ARQ. CARDENAS FLORES Mg. ARQ. CARRASCO ESCARCENA
G.3.1.1. ESTUDIANTES CORTES Mg. ARQ. PALACIOS ROJAS Mg. ARQ. MORALES DELGADO LÁMINA CORTE AUDITORIO FOYER ESCENARIO ANTE ESCENARIO SALA DE PROFESORES TALLERES PROYECCIÓN TRIBUNAS + NPT 15.00 m + NPT 13.45 m + NPT 11.30 m + NPT 10.10 m
Ccente Calderon Angela Chapoñan Solar, Ashlye Hurtado Ramos, Marco Trevejo Pinedo Ximena
SALA DE EXPOSICIÓN DISEÑO ARQUITECTÓNICO 5 B CÁTEDRA: Mg. ARQ. ORTIZ AGAMA Mg. ARQ. CARDENAS FLORES Mg. ARQ. CARRASCO ESCARCENA
G.3.1.1. ESTUDIANTES CORTES Mg. ARQ. PALACIOS ROJAS Mg. ARQ. MORALES DELGADO LÁMINA TRIBUNAS 1/100 CORTE ZONA DE INTERÉS CULTURAL
Ccente Calderon Angela Chapoñan Solar, Ashlye Hurtado Ramos, Marco Trevejo Pinedo Ximena

TRIBUNAS 1/200

CORTE TRANSVERSAL ZONAS DE EMPRENDIMIENTO E INTERÉS CULTURAL

DISEÑO ARQUITECTÓNICO
CÁTEDRA: Mg. ARQ. ORTIZ AGAMA Mg. ARQ. CARDENAS FLORES Mg. ARQ. CARRASCO
5 B
ESCARCENA
G.3.1.1. ESTUDIANTES CORTES Mg. ARQ. PALACIOS ROJAS Mg. ARQ. MORALES DELGADO LÁMINA
Ccente Calderon Angela Chapoñan Solar, Ashlye Hurtado Ramos, Marco Trevejo Pinedo Ximena
DISEÑO ARQUITECTÓNICO 5 B CÁTEDRA: Mg. ARQ. ORTIZ AGAMA Mg. ARQ. CARDENAS FLORES Mg. ARQ. CARRASCO ESCARCENA
G.3.1.1. ESTUDIANTES CORTES Mg. ARQ. PALACIOS ROJAS Mg. ARQ. MORALES DELGADO LÁMINA 1/100 TRIBUNAS CORTE ZONA COMUNITARIA
Ccente Calderon Angela Chapoñan Solar, Ashlye Hurtado Ramos, Marco Trevejo Pinedo Ximena
DETALLES CONSTRUCTIVOS
DETALLES CONSTRUCTIVOS
DISEÑO ARQUITECTÓNICO CÁTEDRA: Mg. ARQ.
Mg.
Mg.
G.3.1.1. Mg.
NPT +13.50
ORTIZ AGAMA
ARQ. CARDENAS FLORES
ARQ. CARRASCO ESCARCENA Trevejo Pinedo Ximena
ARQ. PALACIOS ROJAS Mg. ARQ. MORALES DELGADO
NPT +9.00
3 2 1 4 5
NPT +4.50
CÁTEDRA: Mg. ARQ. ORTIZ AGAMA
DISEÑO ARQUITECTÓNICO
DISEÑO ARQUITECTÓNICO 5 B CÁTEDRA: Mg. ARQ. ORTIZ AGAMA Mg. ARQ. CARDENAS FLORES Mg. ARQ.
CARRASCO ESCARCENA
G.3.1.1. ESTUDIANTES MAQUETA FÍSICA Mg. ARQ. PALACIOS ROJAS Mg. ARQ. MORALES DELGADO LÁMINA
Ccente Calderon Angela Chapoñan Solar, Ashlye Hurtado Ramos, Marco Trevejo Pinedo Ximena

INGRESO PRINCIPAL NOR ESTE

INGRESO PRINCIPAL SUR

FLUJOS

VEHICULAR

PEATONAL

PEATONAL DENTRO DEL COMPLEJO

DISEÑO ARQUITECTÓNICO
CÁTEDRA: Mg. ARQ. ORTIZ AGAMA Mg. ARQ.
Mg.
5 B
CARDENAS FLORES
ARQ. CARRASCO ESCARCENA
G.3.1.1. ESTUDIANTES Mg. ARQ. PALACIOS ROJAS Mg.
DELGADO LÁMINA FLUJOS
Ccente Calderon Angela Chapoñan Solar, Ashlye Hurtado Ramos, Marco Trevejo Pinedo Ximena
ARQ. MORALES
PEATONALES Y VEHICULARES
Av.EnriqueMeiggs
Hacienda
Av.
Casa
Villegas AlamedaVillegas
Santa Rosa

en la prolongación de los radios dominantes se crea un nuevo centro que organizará el proyecto

ALAMEDAMEIGGS

ALAMEDAVILLEGAS

destajos a los bloques para lograr una conexión con las alamedas y generar visuales entre el entorno y el centro del proyecto

VARIABLES CONCEPTO

ENTORNO

HITOS (PASADO HISTÓRICO)

Casa hacienda Villegas

Iniciando del concepto de las casas patio virreinales, se abstarel la creación dun espacio patio central unificador

El terreno posee 2 ingresos principales, los cuales responden al flujo peatonal proveniente de la Av. Santa Rosa y del interior de VILLAQTA, además se encuentra adyacente a las alamedas Meiggs y Villegas

En respuesta a la preexistencia de la Hacienda Villegas se retira el proyecto, a fin de revalorar su importancia dotándola de visuales

En respuesta a la preexistencia ferroviaria se diseña una alameda que rodea e integra las vías del tren.

crear un anillo a modo de galerías que conecten a los diferentes bloques y generen un recorrido cerrado a nivel interno

ASOLEAMIENTO Y

Los vientos predominantes vienen del sur. Estos se aprovechan en las fachadas frente a la alameda villegas

Variación de niveles

LÁMINA
Ccente Calderon Angela Chapoñan Solar, Ashlye Hurtado Ramos, Marco Trevejo Pinedo Ximena
PROCESO CONCEPTUAL
Vientos predominantes del sur
3 4
1
5

Elaboración de superficies en base a variables angulares en Rhinoceros.

Se eligieron como materiales acero galvanizado con zinc y policarbonato con control ambiental. por efectos ambientales

germinar

CÁTEDRA: Mg. ARQ. ORTIZ AGAMA Mg. ARQ. CARDENAS FLORES Mg. ARQ.
ESCARCENA
CARRASCO
ESTUDIANTES PROCESO CONCEPTUAL Mg. ARQ.
Mg.
DELGADO LÁMINA FORMA
Ccente Calderon Angela Chapoñan Solar, Ashlye Hurtado Ramos, Marco Trevejo Pinedo Ximena G.3.1.1.
PALACIOS ROJAS
ARQ. MORALES
“una semilla que emerge y germina de las vías oxidadas del tren para convertirse en una flor, y en cuyo corazón se encuentra oculta el corazón de una nueva hacienda”

ZONA SUBZONA AMBIENTE A. PRIVADA A. SOCIAL A.SEMI SOCIAL A.SERVICIO

VESTÍBULO GENERAL

FORMACIÓN ARTÍSTICA

ADMINISTRATIVA

ARTES PLÁSTICAS

ARTES

PERFORMATIVAS

MÚSICA

OFICINAS DE CONTROL

CERÁMICA Y ESCULTURA

TELARES

PINTURA Y DIBUJO

CANTO

DANZA

CUERDA

PERCUSIÓN

VIENTO

PIANO

CANTO

CÁTEDRA:

5 B

ZONA SUBZONA AMBIENTES A. PRIVADA A. SOCIAL A.SEMI SOCIAL A.SERVICIO

EXHIBICIÓN TEMPORAL

EXHIBICIÓN

ESTUDIANTES

MUSEO

PERMANENTE

BAÑO HOMBRES

BAÑO MUJERES

DIRECCIÓN

SECRETARIA

SALA DE LECTURA

ADULTOS

ZONA DE INTERÉS

CULTURAL

BIBLIOTECA

SALA DE LECTURA NIÑOS

ATENCIÓN Y FICHEROS

CUBÍCULOS DE INTERNET

BAÑO HOMBRES

BAÑO MUJERES DEPÓSITO

DISEÑO ARQUITECTÓNICO
Mg. ARQ. ORTIZ AGAMA
ARQ. CARDENAS FLORES Mg. ARQ. CARRASCO ESCARCENA
Mg.
G.3.1.1.
Ccente Calderon Angela Chapoñan Solar, Ashlye Hurtado Ramos, Marco Trevejo Pinedo Ximena
Mg. ARQ. PALACIOS ROJAS Mg. ARQ. MORALES DELGADO
LÁMINA ORGANIGRAMAS

ADMINISTRACIÓN

TÓPICO

PSICOLOGÍA

NUTRICIÓN

PROYECCIÓN SOCIAL

SALA DE ESPERA

ZONA DE MESAS

COCINA

DEPÓSITO

SUM

AULAS

CUBÍCULOS DE INTERNET

ZONA COMUNITARIA Y DE EMPRENDIMIENTO

FORMACIÓN

SERVICIOS GENERALES

SOCIALIZACIÓN

BAÑO HOMBRES

BAÑO MUJERES

BAÑO DISCAPACITADOS

AULA DE CORTE Y CONFECCIÓN

AULA DE COCINA

DEPÓSITO

BAÑO HOMBRES

BAÑO MUJERES

BAÑO DISCAPACITADOS

DEPÓSITO

HALL

DISEÑO ARQUITECTÓNICO 5 B CÁTEDRA: Mg. ARQ. ORTIZ AGAMA Mg. ARQ. CARDENAS FLORES Mg. ARQ. CARRASCO ESCARCENA
G.3.1.1. ESTUDIANTES Mg. ARQ. PALACIOS ROJAS Mg. ARQ. MORALES DELGADO LÁMINA ORGANIGRAMAS ZONA SUBZONA AMBIENTES A. PRIVADA A. SOCIAL A.SEMI SOCIAL A.SERVICIO
Ccente Calderon Angela Chapoñan Solar, Ashlye Hurtado Ramos, Marco Trevejo Pinedo Ximena
ZONA SUB ZONA AMBIENTES A. PRIVADA A. SOCIAL A.SEMI SOCIAL A.SERVICIO DIFUSION ARTISTICA ADMINISTRACIÓN VESTÍBULO GENERAL DIRECCIÓN TEATRO
DE BUTACAS ESCENARIO VESTIDORES ADMINISTRACIÓN
GENERALES
ESCENARIO
GENERALES CAFETERÍA CAFETERÍA BAR COCINA DEPÓSITO SS HH MUJERES
HH HOMBRES
ÁREA
FOYER TALLERES SERVICIOS
AUDITORIO FOYER ÁREA DE BUTACAS
SERVICIOS
SS
DISEÑO ARQUITECTÓNICO 5 B CÁTEDRA: Mg. ARQ. ORTIZ AGAMA Mg.
ARQ. CARDENAS FLORES Mg. ARQ. CARRASCO ESCARCENA
G.3.1.1. ESTUDIANTES VISTAS Mg.
LÁMINA
Ccente Calderon Angela Chapoñan Solar, Ashlye Hurtado Ramos, Marco Trevejo Pinedo Ximena
ARQ. PALACIOS ROJAS Mg. ARQ. MORALES DELGADO
DISEÑO ARQUITECTÓNICO 5 B CÁTEDRA: Mg.
Mg.
ARQ. ORTIZ AGAMA
ARQ. CARDENAS FLORES Mg. ARQ. CARRASCO ESCARCENA
G.3.1.1. ESTUDIANTES VISTAS Mg.
LÁMINA
Ccente Calderon Angela Chapoñan Solar, Ashlye Hurtado Ramos, Marco Trevejo Pinedo Ximena
ARQ. PALACIOS ROJAS Mg. ARQ. MORALES DELGADO
DISEÑO ARQUITECTÓNICO 5 B CÁTEDRA: Mg. ARQ.
Mg.
ORTIZ AGAMA
ARQ. CARDENAS FLORES Mg. ARQ. CARRASCO ESCARCENA
G.3.1.1. ESTUDIANTES VISTAS Mg.
LÁMINA
Ccente Calderon Angela Chapoñan Solar, Ashlye Hurtado Ramos, Marco Trevejo Pinedo Ximena
ARQ. PALACIOS ROJAS Mg. ARQ. MORALES DELGADO
Mg. ARQ. ORTIZ AGAMA Mg. ARQ. CARRASCO ESCARCENA Trevejo Pinedo Ximena Mg. ARQ. MORALES DELGADO
DISEÑO ARQUITECTÓNICO 5 B CÁTEDRA: Mg. ARQ. ORTIZ AGAMA Mg. ARQ. CARDENAS FLORES Mg. ARQ. CARRASCO ESCARCENA
G.3.1.1. ESTUDIANTES VISTAS Mg. ARQ. PALACIOS ROJAS Mg. ARQ. MORALES DELGADO LÁMINA
Ccente Calderon Angela Chapoñan Solar, Ashlye Hurtado Ramos, Marco Trevejo Pinedo Ximena
DISEÑO ARQUITECTÓNICO 5 B CÁTEDRA: Mg. ARQ. ORTIZ AGAMA Mg. ARQ.
Mg.
CARDENAS FLORES
ARQ. CARRASCO ESCARCENA
G.3.1.1. ESTUDIANTES VISTAS Mg. ARQ.
Mg.
DELGADO LÁMINA
Ccente Calderon Angela Chapoñan Solar, Ashlye Hurtado Ramos, Marco Trevejo Pinedo Ximena
PALACIOS ROJAS
ARQ. MORALES
DISEÑO ARQUITECTÓNICO 5 B CÁTEDRA: Mg. ARQ. ORTIZ AGAMA Mg.
Mg.
ARQ. CARDENAS FLORES
ARQ. CARRASCO ESCARCENA
G.3.1.1. ESTUDIANTES VISTAS Mg.
Mg.
LÁMINA
Ccente Calderon Angela Chapoñan Solar, Ashlye Hurtado Ramos, Marco Trevejo Pinedo Ximena
ARQ. PALACIOS ROJAS
ARQ. MORALES DELGADO
DISEÑO ARQUITECTÓNICO 5 B CÁTEDRA: Mg. ARQ. ORTIZ AGAMA Mg. ARQ. CARDENAS
Mg.
FLORES
ARQ. CARRASCO ESCARCENA
G.3.1.1. ESTUDIANTES VISTAS Mg. ARQ. PALACIOS ROJAS Mg.
DELGADO LÁMINA
Ccente Calderon Angela Chapoñan Solar, Ashlye Hurtado Ramos, Marco Trevejo Pinedo Ximena
ARQ. MORALES
DISEÑO ARQUITECTÓNICO 5 B CÁTEDRA: Mg. ARQ. ORTIZ AGAMA Mg. ARQ. CARDENAS
Mg.
FLORES
ARQ. CARRASCO ESCARCENA
G.3.1.1. ESTUDIANTES VISTAS Mg. ARQ. PALACIOS ROJAS Mg.
DELGADO LÁMINA
Ccente Calderon Angela Chapoñan Solar, Ashlye Hurtado Ramos, Marco Trevejo Pinedo Ximena
ARQ. MORALES
DISEÑO ARQUITECTÓNICO 5 B CÁTEDRA: Mg. ARQ.
Mg.
ORTIZ AGAMA
ARQ. CARDENAS FLORES Mg. ARQ. CARRASCO ESCARCENA
G.3.1.1. ESTUDIANTES VISTAS Mg.
LÁMINA FOYER
Ccente Calderon Angela Chapoñan Solar, Ashlye Hurtado Ramos, Marco Trevejo Pinedo Ximena
ARQ. PALACIOS ROJAS Mg. ARQ. MORALES DELGADO
DISEÑO ARQUITECTÓNICO
B
Mg.
5
CÁTEDRA:
ARQ. ORTIZ AGAMA Mg. ARQ. CARDENAS FLORES Mg. ARQ. CARRASCO ESCARCENA
G.3.1.1. ESTUDIANTES VISTAS Mg.
LÁMINA AUDITORIO
Ccente Calderon Angela Chapoñan Solar, Ashlye Hurtado Ramos, Marco Trevejo Pinedo Ximena
ARQ. PALACIOS ROJAS Mg. ARQ. MORALES DELGADO
DISEÑO ARQUITECTÓNICO 5 B CÁTEDRA: Mg.
ARQ. ORTIZ AGAMA Mg. ARQ. CARDENAS FLORES Mg. ARQ. CARRASCO ESCARCENA
G.3.1.1. ESTUDIANTES VISTAS Mg.
LÁMINA CAFETERIA
Ccente Calderon Angela Chapoñan Solar, Ashlye Hurtado Ramos, Marco Trevejo Pinedo Ximena
ARQ. PALACIOS ROJAS Mg. ARQ. MORALES DELGADO
DISEÑO ARQUITECTÓNICO 5 B CÁTEDRA: Mg.
ARQ. ORTIZ AGAMA Mg. ARQ. CARDENAS FLORES Mg. ARQ. CARRASCO ESCARCENA
G.3.1.1. ESTUDIANTES VISTAS Mg.
LÁMINA SALA DE EXPOSICIONES
Ccente Calderon Angela Chapoñan Solar, Ashlye Hurtado Ramos, Marco Trevejo Pinedo Ximena
ARQ. PALACIOS ROJAS Mg. ARQ. MORALES DELGADO

LINK ISSUU: https://issuu.com/sworted/docs/issuu_acumulado_final

LINK VIDEO RECORRIDO: https://www.youtube.com/watch?v=y1ANRv0jA2o

5 B

CÁTEDRA:

DISEÑO
ARQUITECTÓNICO
Mg.
ARQ. ORTIZ AGAMA Mg. ARQ. CARDENAS FLORES Mg. ARQ. CARRASCO ESCARCENA
G.3.1.1. ESTUDIANTES
ISSUU Mg.
LÁMINA
Ccente Calderon Angela Chapoñan Solar, Ashlye Hurtado Ramos, Marco Trevejo Pinedo Ximena
VIDEO RECORRIDO - LINK
ARQ. PALACIOS ROJAS Mg. ARQ. MORALES DELGADO

Turn static files into dynamic content formats.

Create a flipbook
Issuu converts static files into: digital portfolios, online yearbooks, online catalogs, digital photo albums and more. Sign up and create your flipbook.